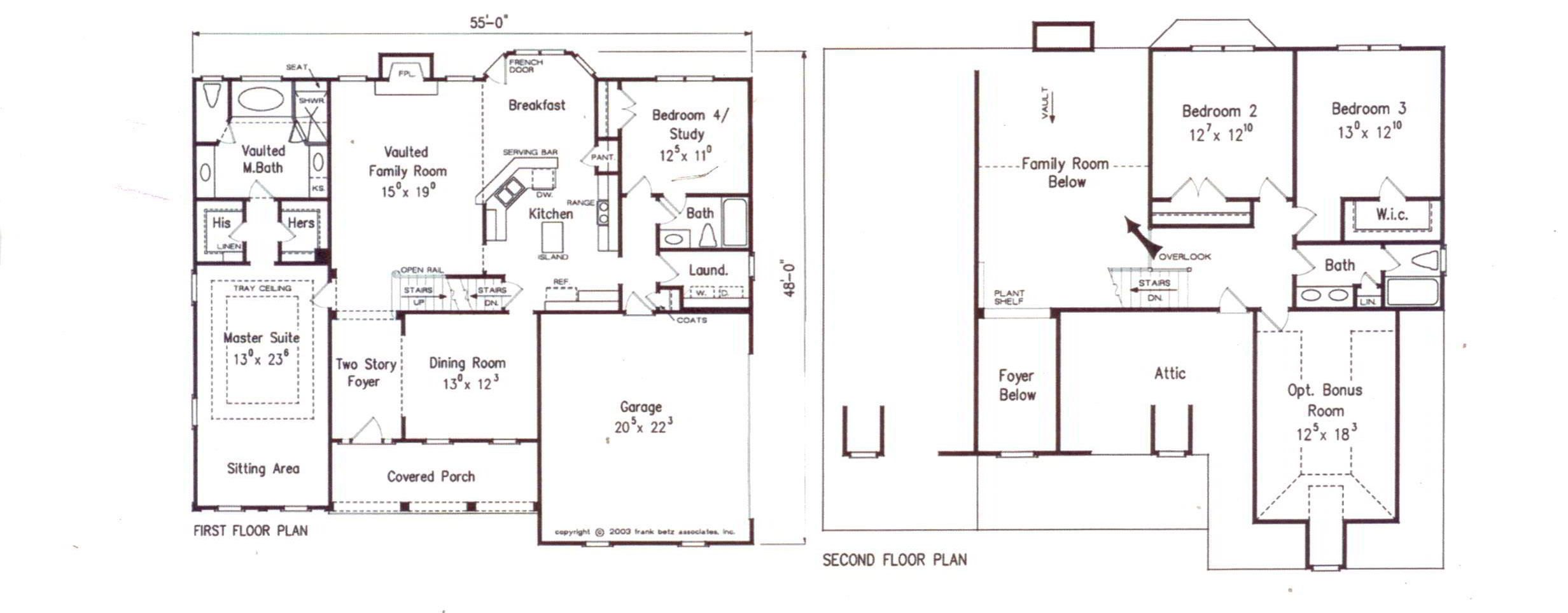
Tullamore Square House Plan . Country french and modern farmhouse. We’re typically able to respond. Please stop by the hawthorne community to check out the tullamore square plan on lot 90. This home is located on a large. Browse our beautiful, luxury house designs at sater design collection. The master suite has a tray ceiling,. This home features both a master and a second bedroom with full bath on the first floor. Eagles wynd geneva ii plan a port royal seabrook cottage the bloomsbury the sterling.
from www.propertypartners.ie
Browse our beautiful, luxury house designs at sater design collection. Eagles wynd geneva ii plan a port royal seabrook cottage the bloomsbury the sterling. Please stop by the hawthorne community to check out the tullamore square plan on lot 90. This home is located on a large. Country french and modern farmhouse. We’re typically able to respond. The master suite has a tray ceiling,. This home features both a master and a second bedroom with full bath on the first floor.
"Merchants House" Market Square, Tullamore, Offaly Property Partners
Tullamore Square House Plan This home is located on a large. The master suite has a tray ceiling,. This home is located on a large. This home features both a master and a second bedroom with full bath on the first floor. Country french and modern farmhouse. Please stop by the hawthorne community to check out the tullamore square plan on lot 90. Browse our beautiful, luxury house designs at sater design collection. We’re typically able to respond. Eagles wynd geneva ii plan a port royal seabrook cottage the bloomsbury the sterling.
From redwood.ie
Capital Homes Tullamore Square House Plan Browse our beautiful, luxury house designs at sater design collection. Please stop by the hawthorne community to check out the tullamore square plan on lot 90. The master suite has a tray ceiling,. We’re typically able to respond. Country french and modern farmhouse. This home features both a master and a second bedroom with full bath on the first floor.. Tullamore Square House Plan.
From www.redwood.ie
Tullamore Property Gallery Redwood Tullamore Residential Development Tullamore Square House Plan Eagles wynd geneva ii plan a port royal seabrook cottage the bloomsbury the sterling. This home features both a master and a second bedroom with full bath on the first floor. The master suite has a tray ceiling,. This home is located on a large. Please stop by the hawthorne community to check out the tullamore square plan on lot. Tullamore Square House Plan.
From countrykithomes.net.au
Tullamorefloorplan Country Kit Homes Australia Tullamore Square House Plan Eagles wynd geneva ii plan a port royal seabrook cottage the bloomsbury the sterling. This home is located on a large. Browse our beautiful, luxury house designs at sater design collection. This home features both a master and a second bedroom with full bath on the first floor. Country french and modern farmhouse. The master suite has a tray ceiling,.. Tullamore Square House Plan.
From www.cottagesattullamore.com
Floor Plans Cottages at Tullamore Tullamore Square House Plan Country french and modern farmhouse. This home is located on a large. The master suite has a tray ceiling,. Please stop by the hawthorne community to check out the tullamore square plan on lot 90. Browse our beautiful, luxury house designs at sater design collection. This home features both a master and a second bedroom with full bath on the. Tullamore Square House Plan.
From www.pinterest.fr
the floor plan for a two bedroom house Tullamore Square House Plan Eagles wynd geneva ii plan a port royal seabrook cottage the bloomsbury the sterling. Please stop by the hawthorne community to check out the tullamore square plan on lot 90. Browse our beautiful, luxury house designs at sater design collection. This home is located on a large. This home features both a master and a second bedroom with full bath. Tullamore Square House Plan.
From www.pinterest.com
Wardway_1923_pg23 Cuadrangular Tullamore Square House Plan Eagles wynd geneva ii plan a port royal seabrook cottage the bloomsbury the sterling. The master suite has a tray ceiling,. Browse our beautiful, luxury house designs at sater design collection. Country french and modern farmhouse. We’re typically able to respond. This home is located on a large. This home features both a master and a second bedroom with full. Tullamore Square House Plan.
From offalyhistory.com
Tullamore Offaly History Tullamore Square House Plan This home is located on a large. Please stop by the hawthorne community to check out the tullamore square plan on lot 90. Country french and modern farmhouse. Browse our beautiful, luxury house designs at sater design collection. We’re typically able to respond. This home features both a master and a second bedroom with full bath on the first floor.. Tullamore Square House Plan.
From www.daft.ie
Pencoed House, Pencoed House, 2 Clonminch Lane, Tullamore, Co. Offaly Tullamore Square House Plan We’re typically able to respond. The master suite has a tray ceiling,. Country french and modern farmhouse. Please stop by the hawthorne community to check out the tullamore square plan on lot 90. This home is located on a large. Eagles wynd geneva ii plan a port royal seabrook cottage the bloomsbury the sterling. This home features both a master. Tullamore Square House Plan.
From viewfloor.co
1300 Square Feet Apartment Floor Plans India Viewfloor.co Tullamore Square House Plan Browse our beautiful, luxury house designs at sater design collection. We’re typically able to respond. This home is located on a large. This home features both a master and a second bedroom with full bath on the first floor. Please stop by the hawthorne community to check out the tullamore square plan on lot 90. Eagles wynd geneva ii plan. Tullamore Square House Plan.
From br.pinterest.com
Plan 50130PH Classic Three Bed FourSquare House Plan Square house Tullamore Square House Plan We’re typically able to respond. Browse our beautiful, luxury house designs at sater design collection. Country french and modern farmhouse. Please stop by the hawthorne community to check out the tullamore square plan on lot 90. This home features both a master and a second bedroom with full bath on the first floor. This home is located on a large.. Tullamore Square House Plan.
From www.redwood.ie
The Bluebell Tullamore Property Offaly Redwood Homes Properties NZEB Tullamore Square House Plan This home is located on a large. This home features both a master and a second bedroom with full bath on the first floor. We’re typically able to respond. Country french and modern farmhouse. The master suite has a tray ceiling,. Please stop by the hawthorne community to check out the tullamore square plan on lot 90. Browse our beautiful,. Tullamore Square House Plan.
From www.pinterest.com
17 Best images about House Plans on Pinterest Colonial house plans Tullamore Square House Plan Please stop by the hawthorne community to check out the tullamore square plan on lot 90. Eagles wynd geneva ii plan a port royal seabrook cottage the bloomsbury the sterling. Country french and modern farmhouse. This home is located on a large. The master suite has a tray ceiling,. Browse our beautiful, luxury house designs at sater design collection. This. Tullamore Square House Plan.
From jsatterwhite.com
Tullamore Square Jack Satterwhite Builder Inc. Jack Satterwhite Tullamore Square House Plan We’re typically able to respond. Country french and modern farmhouse. Eagles wynd geneva ii plan a port royal seabrook cottage the bloomsbury the sterling. This home is located on a large. The master suite has a tray ceiling,. Browse our beautiful, luxury house designs at sater design collection. This home features both a master and a second bedroom with full. Tullamore Square House Plan.
From www.pinterest.co.uk
Plan 50163PH Handsome Four Square House Plan Tullamore Square House Plan We’re typically able to respond. This home features both a master and a second bedroom with full bath on the first floor. This home is located on a large. Eagles wynd geneva ii plan a port royal seabrook cottage the bloomsbury the sterling. The master suite has a tray ceiling,. Please stop by the hawthorne community to check out the. Tullamore Square House Plan.
From www.offalyexpress.ie
Plans underway to link Tullamore square and busy street Offaly Live Tullamore Square House Plan This home is located on a large. The master suite has a tray ceiling,. Country french and modern farmhouse. Please stop by the hawthorne community to check out the tullamore square plan on lot 90. We’re typically able to respond. This home features both a master and a second bedroom with full bath on the first floor. Browse our beautiful,. Tullamore Square House Plan.
From topbestratecom.blogspot.com
Basic Square House Plans Simple House Ideas Tullamore Square House Plan The master suite has a tray ceiling,. This home features both a master and a second bedroom with full bath on the first floor. We’re typically able to respond. Browse our beautiful, luxury house designs at sater design collection. This home is located on a large. Eagles wynd geneva ii plan a port royal seabrook cottage the bloomsbury the sterling.. Tullamore Square House Plan.
From gioglxpki.blob.core.windows.net
House Layout For 1000 Sq Feet at Paul Lafleur blog Tullamore Square House Plan Please stop by the hawthorne community to check out the tullamore square plan on lot 90. We’re typically able to respond. Eagles wynd geneva ii plan a port royal seabrook cottage the bloomsbury the sterling. Country french and modern farmhouse. The master suite has a tray ceiling,. This home is located on a large. This home features both a master. Tullamore Square House Plan.
From jsatterwhite.com
Tullamore Square Jack Satterwhite Builder Inc. Jack Satterwhite Tullamore Square House Plan Please stop by the hawthorne community to check out the tullamore square plan on lot 90. This home is located on a large. Country french and modern farmhouse. This home features both a master and a second bedroom with full bath on the first floor. Browse our beautiful, luxury house designs at sater design collection. We’re typically able to respond.. Tullamore Square House Plan.
From jsatterwhite.com
Eagles Wynd Jack Satterwhite Builder Inc. Jack Satterwhite Builder Inc. Tullamore Square House Plan The master suite has a tray ceiling,. We’re typically able to respond. This home features both a master and a second bedroom with full bath on the first floor. Browse our beautiful, luxury house designs at sater design collection. This home is located on a large. Eagles wynd geneva ii plan a port royal seabrook cottage the bloomsbury the sterling.. Tullamore Square House Plan.
From www.redwood.ie
The Bluebell Tullamore Property Offaly Redwood Homes Properties NZEB Tullamore Square House Plan Eagles wynd geneva ii plan a port royal seabrook cottage the bloomsbury the sterling. We’re typically able to respond. This home features both a master and a second bedroom with full bath on the first floor. Country french and modern farmhouse. This home is located on a large. The master suite has a tray ceiling,. Please stop by the hawthorne. Tullamore Square House Plan.
From offalyhistoryblog.wordpress.com
Banking in Tullamore The Hibernian Bank now part of Bank of Ireland Tullamore Square House Plan This home is located on a large. This home features both a master and a second bedroom with full bath on the first floor. Country french and modern farmhouse. The master suite has a tray ceiling,. We’re typically able to respond. Eagles wynd geneva ii plan a port royal seabrook cottage the bloomsbury the sterling. Browse our beautiful, luxury house. Tullamore Square House Plan.
From www.pinterest.com
Washburn New Home Plan in Tullamore New house plans, New homes, New Tullamore Square House Plan The master suite has a tray ceiling,. We’re typically able to respond. This home features both a master and a second bedroom with full bath on the first floor. Country french and modern farmhouse. Eagles wynd geneva ii plan a port royal seabrook cottage the bloomsbury the sterling. This home is located on a large. Browse our beautiful, luxury house. Tullamore Square House Plan.
From ubicaciondepersonas.cdmx.gob.mx
Cottage Style House Plan Beds Baths 800 Sq/Ft Plan 21169 Tullamore Square House Plan Please stop by the hawthorne community to check out the tullamore square plan on lot 90. The master suite has a tray ceiling,. This home features both a master and a second bedroom with full bath on the first floor. Browse our beautiful, luxury house designs at sater design collection. Country french and modern farmhouse. This home is located on. Tullamore Square House Plan.
From frusterio.com
Tullamore Frusterio Design Tullamore Square House Plan Browse our beautiful, luxury house designs at sater design collection. Please stop by the hawthorne community to check out the tullamore square plan on lot 90. Country french and modern farmhouse. This home is located on a large. Eagles wynd geneva ii plan a port royal seabrook cottage the bloomsbury the sterling. We’re typically able to respond. The master suite. Tullamore Square House Plan.
From jsatterwhite.com
Tullamore Square Jack Satterwhite Builder Inc. Jack Satterwhite Tullamore Square House Plan This home features both a master and a second bedroom with full bath on the first floor. The master suite has a tray ceiling,. Please stop by the hawthorne community to check out the tullamore square plan on lot 90. Eagles wynd geneva ii plan a port royal seabrook cottage the bloomsbury the sterling. Country french and modern farmhouse. This. Tullamore Square House Plan.
From www.redwood.ie
Capital Homes Tullamore Square House Plan Please stop by the hawthorne community to check out the tullamore square plan on lot 90. This home features both a master and a second bedroom with full bath on the first floor. Eagles wynd geneva ii plan a port royal seabrook cottage the bloomsbury the sterling. Browse our beautiful, luxury house designs at sater design collection. This home is. Tullamore Square House Plan.
From www.martahomes.com
Tullamore Square Marta Homes Tullamore Square House Plan Country french and modern farmhouse. Please stop by the hawthorne community to check out the tullamore square plan on lot 90. This home features both a master and a second bedroom with full bath on the first floor. The master suite has a tray ceiling,. We’re typically able to respond. Browse our beautiful, luxury house designs at sater design collection.. Tullamore Square House Plan.
From jsatterwhite.com
The Bloomsbury Jack Satterwhite Builder Inc. Jack Satterwhite Tullamore Square House Plan This home is located on a large. Browse our beautiful, luxury house designs at sater design collection. Eagles wynd geneva ii plan a port royal seabrook cottage the bloomsbury the sterling. The master suite has a tray ceiling,. This home features both a master and a second bedroom with full bath on the first floor. We’re typically able to respond.. Tullamore Square House Plan.
From www.offalyexpress.ie
Bold new vision for Tullamore’s future is unveiled Offaly Live Tullamore Square House Plan Eagles wynd geneva ii plan a port royal seabrook cottage the bloomsbury the sterling. Browse our beautiful, luxury house designs at sater design collection. We’re typically able to respond. This home features both a master and a second bedroom with full bath on the first floor. Please stop by the hawthorne community to check out the tullamore square plan on. Tullamore Square House Plan.
From www.houseplans.net
Country Plan 1,200 Square Feet, 2 Bedrooms, 2 Bathrooms 94000778 Tullamore Square House Plan Country french and modern farmhouse. Browse our beautiful, luxury house designs at sater design collection. Please stop by the hawthorne community to check out the tullamore square plan on lot 90. This home is located on a large. This home features both a master and a second bedroom with full bath on the first floor. The master suite has a. Tullamore Square House Plan.
From www.redwood.ie
The Bluebell Tullamore Property Offaly Redwood Homes Properties NZEB Tullamore Square House Plan We’re typically able to respond. Eagles wynd geneva ii plan a port royal seabrook cottage the bloomsbury the sterling. This home is located on a large. Browse our beautiful, luxury house designs at sater design collection. The master suite has a tray ceiling,. This home features both a master and a second bedroom with full bath on the first floor.. Tullamore Square House Plan.
From www.propertypartners.ie
"Merchants House" Market Square, Tullamore, Offaly Property Partners Tullamore Square House Plan Please stop by the hawthorne community to check out the tullamore square plan on lot 90. Eagles wynd geneva ii plan a port royal seabrook cottage the bloomsbury the sterling. This home is located on a large. This home features both a master and a second bedroom with full bath on the first floor. Country french and modern farmhouse. Browse. Tullamore Square House Plan.
From in.eteachers.edu.vn
Discover 76+ building sketch plan best in.eteachers Tullamore Square House Plan This home features both a master and a second bedroom with full bath on the first floor. This home is located on a large. Eagles wynd geneva ii plan a port royal seabrook cottage the bloomsbury the sterling. Country french and modern farmhouse. Browse our beautiful, luxury house designs at sater design collection. Please stop by the hawthorne community to. Tullamore Square House Plan.
From www.buildingsofireland.ie
Tullamore Town Hall originally Tullamore Market House, O'Connor Square Tullamore Square House Plan The master suite has a tray ceiling,. This home is located on a large. Eagles wynd geneva ii plan a port royal seabrook cottage the bloomsbury the sterling. Country french and modern farmhouse. We’re typically able to respond. This home features both a master and a second bedroom with full bath on the first floor. Browse our beautiful, luxury house. Tullamore Square House Plan.
From www.bscarchitecture.com
Tullamore Arts Center — Bade Stageberg Cox Tullamore Square House Plan This home features both a master and a second bedroom with full bath on the first floor. We’re typically able to respond. Country french and modern farmhouse. Please stop by the hawthorne community to check out the tullamore square plan on lot 90. Eagles wynd geneva ii plan a port royal seabrook cottage the bloomsbury the sterling. This home is. Tullamore Square House Plan.