How Thick Are Walls In A Floor Plan . the thickness of exterior walls on floor plans can vary depending on factors such as the type of construction and local building codes. exterior walls are represented by thick walls. Interior walls are drawn with thinner lines than exterior. Enhance your understanding of wall measurements in. if you’re not measuring wall thickness when you draw floor plans then here are some quick and easy ways to. the thickness of walls on a floor plan will depend on the building material and intended use of the wall. most interior walls are typically 4.5 inches thick, while exterior walls can range from 6 to 12 inches,. discover the average thickness of interior walls on a floor plan, crucial for architecture design. However, common thicknesses for exterior walls in residential buildings are typically around 6 inches to 12 inches (15 cm to 30 cm). They outline the boundary of the house or building. the floor plan should include dimensions of wall locations, wall thickness, openings and distances between structural elements.
from www.greenbuildingadvisor.com
the thickness of walls on a floor plan will depend on the building material and intended use of the wall. the floor plan should include dimensions of wall locations, wall thickness, openings and distances between structural elements. most interior walls are typically 4.5 inches thick, while exterior walls can range from 6 to 12 inches,. They outline the boundary of the house or building. discover the average thickness of interior walls on a floor plan, crucial for architecture design. Interior walls are drawn with thinner lines than exterior. However, common thicknesses for exterior walls in residential buildings are typically around 6 inches to 12 inches (15 cm to 30 cm). if you’re not measuring wall thickness when you draw floor plans then here are some quick and easy ways to. the thickness of exterior walls on floor plans can vary depending on factors such as the type of construction and local building codes. Enhance your understanding of wall measurements in.
Insulate top of basement footing? GreenBuildingAdvisor
How Thick Are Walls In A Floor Plan However, common thicknesses for exterior walls in residential buildings are typically around 6 inches to 12 inches (15 cm to 30 cm). the floor plan should include dimensions of wall locations, wall thickness, openings and distances between structural elements. However, common thicknesses for exterior walls in residential buildings are typically around 6 inches to 12 inches (15 cm to 30 cm). discover the average thickness of interior walls on a floor plan, crucial for architecture design. Interior walls are drawn with thinner lines than exterior. most interior walls are typically 4.5 inches thick, while exterior walls can range from 6 to 12 inches,. Enhance your understanding of wall measurements in. if you’re not measuring wall thickness when you draw floor plans then here are some quick and easy ways to. the thickness of exterior walls on floor plans can vary depending on factors such as the type of construction and local building codes. exterior walls are represented by thick walls. the thickness of walls on a floor plan will depend on the building material and intended use of the wall. They outline the boundary of the house or building.
From mavink.com
Wall Thickness Chart How Thick Are Walls In A Floor Plan Enhance your understanding of wall measurements in. if you’re not measuring wall thickness when you draw floor plans then here are some quick and easy ways to. the thickness of walls on a floor plan will depend on the building material and intended use of the wall. They outline the boundary of the house or building. discover. How Thick Are Walls In A Floor Plan.
From support.symbilityproperty.com
Dealing with Varying Wall Thicknesses within Mobile Claims How Thick Are Walls In A Floor Plan Enhance your understanding of wall measurements in. Interior walls are drawn with thinner lines than exterior. exterior walls are represented by thick walls. most interior walls are typically 4.5 inches thick, while exterior walls can range from 6 to 12 inches,. the thickness of walls on a floor plan will depend on the building material and intended. How Thick Are Walls In A Floor Plan.
From fyofedqte.blob.core.windows.net
Shelving Glass Thickness at Margaret Wetmore blog How Thick Are Walls In A Floor Plan if you’re not measuring wall thickness when you draw floor plans then here are some quick and easy ways to. the thickness of walls on a floor plan will depend on the building material and intended use of the wall. They outline the boundary of the house or building. Interior walls are drawn with thinner lines than exterior.. How Thick Are Walls In A Floor Plan.
From cejxetpn.blob.core.windows.net
How Thick Should Shower Wall Tile Be at Gwendolyn Byrne blog How Thick Are Walls In A Floor Plan exterior walls are represented by thick walls. Interior walls are drawn with thinner lines than exterior. the floor plan should include dimensions of wall locations, wall thickness, openings and distances between structural elements. However, common thicknesses for exterior walls in residential buildings are typically around 6 inches to 12 inches (15 cm to 30 cm). if you’re. How Thick Are Walls In A Floor Plan.
From www.chegg.com
Solved Using the foundation plan and wall section below, how How Thick Are Walls In A Floor Plan Enhance your understanding of wall measurements in. the floor plan should include dimensions of wall locations, wall thickness, openings and distances between structural elements. most interior walls are typically 4.5 inches thick, while exterior walls can range from 6 to 12 inches,. the thickness of walls on a floor plan will depend on the building material and. How Thick Are Walls In A Floor Plan.
From storables.com
How Thick Are Interior Walls On A Floor Plan Storables How Thick Are Walls In A Floor Plan discover the average thickness of interior walls on a floor plan, crucial for architecture design. the thickness of walls on a floor plan will depend on the building material and intended use of the wall. the thickness of exterior walls on floor plans can vary depending on factors such as the type of construction and local building. How Thick Are Walls In A Floor Plan.
From www.youtube.com
How To Draw Exterior Walls In Home Designer Floor Plans YouTube How Thick Are Walls In A Floor Plan exterior walls are represented by thick walls. Enhance your understanding of wall measurements in. the thickness of walls on a floor plan will depend on the building material and intended use of the wall. the floor plan should include dimensions of wall locations, wall thickness, openings and distances between structural elements. Interior walls are drawn with thinner. How Thick Are Walls In A Floor Plan.
From www.cla.purdue.edu
Floor Plan College of Liberal Arts Purdue University How Thick Are Walls In A Floor Plan the thickness of exterior walls on floor plans can vary depending on factors such as the type of construction and local building codes. most interior walls are typically 4.5 inches thick, while exterior walls can range from 6 to 12 inches,. However, common thicknesses for exterior walls in residential buildings are typically around 6 inches to 12 inches. How Thick Are Walls In A Floor Plan.
From blog.kurkhomes.com
From Our Design Team How to Read a Set of Floor Plans How Thick Are Walls In A Floor Plan if you’re not measuring wall thickness when you draw floor plans then here are some quick and easy ways to. Interior walls are drawn with thinner lines than exterior. the thickness of walls on a floor plan will depend on the building material and intended use of the wall. the floor plan should include dimensions of wall. How Thick Are Walls In A Floor Plan.
From medium.com
The GoTo Guide for Drywall Size and Thickness Williams Brothers Corp How Thick Are Walls In A Floor Plan discover the average thickness of interior walls on a floor plan, crucial for architecture design. most interior walls are typically 4.5 inches thick, while exterior walls can range from 6 to 12 inches,. Enhance your understanding of wall measurements in. However, common thicknesses for exterior walls in residential buildings are typically around 6 inches to 12 inches (15. How Thick Are Walls In A Floor Plan.
From www.homenish.com
Standard Wall Thickness How Thick Should the Wall Be? Homenish How Thick Are Walls In A Floor Plan most interior walls are typically 4.5 inches thick, while exterior walls can range from 6 to 12 inches,. However, common thicknesses for exterior walls in residential buildings are typically around 6 inches to 12 inches (15 cm to 30 cm). Enhance your understanding of wall measurements in. if you’re not measuring wall thickness when you draw floor plans. How Thick Are Walls In A Floor Plan.
From jjvs.org
Concrete Floor Building Regs Flooring Site How Thick Are Walls In A Floor Plan if you’re not measuring wall thickness when you draw floor plans then here are some quick and easy ways to. most interior walls are typically 4.5 inches thick, while exterior walls can range from 6 to 12 inches,. They outline the boundary of the house or building. exterior walls are represented by thick walls. Enhance your understanding. How Thick Are Walls In A Floor Plan.
From exodvsubg.blob.core.windows.net
Ceramic Wall Tiles Thickness at Robert Millsap blog How Thick Are Walls In A Floor Plan the floor plan should include dimensions of wall locations, wall thickness, openings and distances between structural elements. They outline the boundary of the house or building. Enhance your understanding of wall measurements in. However, common thicknesses for exterior walls in residential buildings are typically around 6 inches to 12 inches (15 cm to 30 cm). if you’re not. How Thick Are Walls In A Floor Plan.
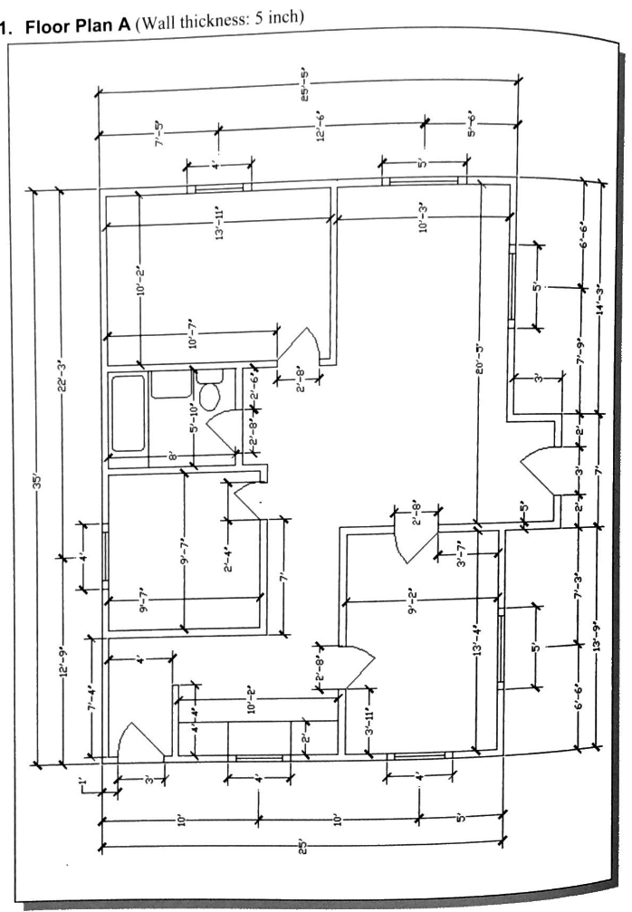
From www.chegg.com
Solved 1. Floor Plan A (Wall thickness 5 inch) in 50 How Thick Are Walls In A Floor Plan most interior walls are typically 4.5 inches thick, while exterior walls can range from 6 to 12 inches,. exterior walls are represented by thick walls. the floor plan should include dimensions of wall locations, wall thickness, openings and distances between structural elements. discover the average thickness of interior walls on a floor plan, crucial for architecture. How Thick Are Walls In A Floor Plan.
From www.openbasement.com
Basement Floor Thickness Openbasement How Thick Are Walls In A Floor Plan They outline the boundary of the house or building. Enhance your understanding of wall measurements in. Interior walls are drawn with thinner lines than exterior. However, common thicknesses for exterior walls in residential buildings are typically around 6 inches to 12 inches (15 cm to 30 cm). discover the average thickness of interior walls on a floor plan, crucial. How Thick Are Walls In A Floor Plan.
From sumund.com
How To Fix a Bouncy or Sagging Floor (DIY) HomeTips (2023) How Thick Are Walls In A Floor Plan if you’re not measuring wall thickness when you draw floor plans then here are some quick and easy ways to. discover the average thickness of interior walls on a floor plan, crucial for architecture design. the floor plan should include dimensions of wall locations, wall thickness, openings and distances between structural elements. the thickness of walls. How Thick Are Walls In A Floor Plan.
From www.pinterest.ph
wall thickness Floor plans, Wall, Diagram How Thick Are Walls In A Floor Plan Interior walls are drawn with thinner lines than exterior. discover the average thickness of interior walls on a floor plan, crucial for architecture design. Enhance your understanding of wall measurements in. exterior walls are represented by thick walls. However, common thicknesses for exterior walls in residential buildings are typically around 6 inches to 12 inches (15 cm to. How Thick Are Walls In A Floor Plan.
From www.greenbuildingadvisor.com
Insulate top of basement footing? GreenBuildingAdvisor How Thick Are Walls In A Floor Plan Enhance your understanding of wall measurements in. exterior walls are represented by thick walls. They outline the boundary of the house or building. the floor plan should include dimensions of wall locations, wall thickness, openings and distances between structural elements. the thickness of walls on a floor plan will depend on the building material and intended use. How Thick Are Walls In A Floor Plan.
From www.supertinyhomes.com
How Thick Are The Walls In A Typical Tiny House? Super Tiny Homes How Thick Are Walls In A Floor Plan Interior walls are drawn with thinner lines than exterior. the floor plan should include dimensions of wall locations, wall thickness, openings and distances between structural elements. discover the average thickness of interior walls on a floor plan, crucial for architecture design. the thickness of exterior walls on floor plans can vary depending on factors such as the. How Thick Are Walls In A Floor Plan.
From www.walmart.com
3d Paper Butterflies for Wall Self Wallpaper Floor Tiles Thickened Wear How Thick Are Walls In A Floor Plan most interior walls are typically 4.5 inches thick, while exterior walls can range from 6 to 12 inches,. discover the average thickness of interior walls on a floor plan, crucial for architecture design. Interior walls are drawn with thinner lines than exterior. the thickness of walls on a floor plan will depend on the building material and. How Thick Are Walls In A Floor Plan.
From www.walmart.com
3d Paper Butterflies for Wall Self Wallpaper Floor Tiles Thickened Wear How Thick Are Walls In A Floor Plan if you’re not measuring wall thickness when you draw floor plans then here are some quick and easy ways to. They outline the boundary of the house or building. most interior walls are typically 4.5 inches thick, while exterior walls can range from 6 to 12 inches,. the thickness of walls on a floor plan will depend. How Thick Are Walls In A Floor Plan.
From www.researchgate.net
Original floor plan (a), the detected thick walls (b), the intermediate How Thick Are Walls In A Floor Plan the thickness of walls on a floor plan will depend on the building material and intended use of the wall. the thickness of exterior walls on floor plans can vary depending on factors such as the type of construction and local building codes. However, common thicknesses for exterior walls in residential buildings are typically around 6 inches to. How Thick Are Walls In A Floor Plan.
From fyontldzz.blob.core.windows.net
How To Build A Metal Stud Wall Uk at Mary Jameson blog How Thick Are Walls In A Floor Plan the floor plan should include dimensions of wall locations, wall thickness, openings and distances between structural elements. discover the average thickness of interior walls on a floor plan, crucial for architecture design. if you’re not measuring wall thickness when you draw floor plans then here are some quick and easy ways to. most interior walls are. How Thick Are Walls In A Floor Plan.
From cejxetpn.blob.core.windows.net
How Thick Should Shower Wall Tile Be at Gwendolyn Byrne blog How Thick Are Walls In A Floor Plan if you’re not measuring wall thickness when you draw floor plans then here are some quick and easy ways to. the thickness of exterior walls on floor plans can vary depending on factors such as the type of construction and local building codes. most interior walls are typically 4.5 inches thick, while exterior walls can range from. How Thick Are Walls In A Floor Plan.
From quifstudio.com
Episode 4 Creating Floor Plans Quif Studio How Thick Are Walls In A Floor Plan Enhance your understanding of wall measurements in. if you’re not measuring wall thickness when you draw floor plans then here are some quick and easy ways to. Interior walls are drawn with thinner lines than exterior. exterior walls are represented by thick walls. the floor plan should include dimensions of wall locations, wall thickness, openings and distances. How Thick Are Walls In A Floor Plan.
From cejxetpn.blob.core.windows.net
How Thick Should Shower Wall Tile Be at Gwendolyn Byrne blog How Thick Are Walls In A Floor Plan most interior walls are typically 4.5 inches thick, while exterior walls can range from 6 to 12 inches,. the floor plan should include dimensions of wall locations, wall thickness, openings and distances between structural elements. Enhance your understanding of wall measurements in. exterior walls are represented by thick walls. However, common thicknesses for exterior walls in residential. How Thick Are Walls In A Floor Plan.
From www.walmart.com
3d Paper Butterflies for Wall Self Wallpaper Floor Tiles Thickened Wear How Thick Are Walls In A Floor Plan exterior walls are represented by thick walls. Enhance your understanding of wall measurements in. They outline the boundary of the house or building. However, common thicknesses for exterior walls in residential buildings are typically around 6 inches to 12 inches (15 cm to 30 cm). if you’re not measuring wall thickness when you draw floor plans then here. How Thick Are Walls In A Floor Plan.
From www.homeguide.com.sg
Everything You Need to Know about Reading an HDB Floor Plan How Thick Are Walls In A Floor Plan discover the average thickness of interior walls on a floor plan, crucial for architecture design. They outline the boundary of the house or building. Interior walls are drawn with thinner lines than exterior. the thickness of walls on a floor plan will depend on the building material and intended use of the wall. However, common thicknesses for exterior. How Thick Are Walls In A Floor Plan.
From www.homenish.com
How Thick Should the Wall Be? Homenish How Thick Are Walls In A Floor Plan discover the average thickness of interior walls on a floor plan, crucial for architecture design. Enhance your understanding of wall measurements in. the thickness of exterior walls on floor plans can vary depending on factors such as the type of construction and local building codes. the floor plan should include dimensions of wall locations, wall thickness, openings. How Thick Are Walls In A Floor Plan.
From www.glasshouseapts.com
Floor Plans Glass House How Thick Are Walls In A Floor Plan the thickness of exterior walls on floor plans can vary depending on factors such as the type of construction and local building codes. Enhance your understanding of wall measurements in. most interior walls are typically 4.5 inches thick, while exterior walls can range from 6 to 12 inches,. the thickness of walls on a floor plan will. How Thick Are Walls In A Floor Plan.
From www.pinterest.co.kr
Architectural Graphics 101 Wall Types Life of an Architect How Thick Are Walls In A Floor Plan Enhance your understanding of wall measurements in. the thickness of walls on a floor plan will depend on the building material and intended use of the wall. most interior walls are typically 4.5 inches thick, while exterior walls can range from 6 to 12 inches,. if you’re not measuring wall thickness when you draw floor plans then. How Thick Are Walls In A Floor Plan.
From americanwarmoms.org
Standard Living Room Size In Meters Philippines How Thick Are Walls In A Floor Plan However, common thicknesses for exterior walls in residential buildings are typically around 6 inches to 12 inches (15 cm to 30 cm). the thickness of exterior walls on floor plans can vary depending on factors such as the type of construction and local building codes. They outline the boundary of the house or building. Enhance your understanding of wall. How Thick Are Walls In A Floor Plan.
From hxeuilqhw.blob.core.windows.net
How Thick Is 3 4 In Plywood at Logan Sanchez blog How Thick Are Walls In A Floor Plan most interior walls are typically 4.5 inches thick, while exterior walls can range from 6 to 12 inches,. the floor plan should include dimensions of wall locations, wall thickness, openings and distances between structural elements. exterior walls are represented by thick walls. discover the average thickness of interior walls on a floor plan, crucial for architecture. How Thick Are Walls In A Floor Plan.
From www.mynicehome.gov.sg
HDB MNH How to Read Your HDB Floor Plan in 10 Seconds How Thick Are Walls In A Floor Plan the thickness of walls on a floor plan will depend on the building material and intended use of the wall. Enhance your understanding of wall measurements in. the floor plan should include dimensions of wall locations, wall thickness, openings and distances between structural elements. if you’re not measuring wall thickness when you draw floor plans then here. How Thick Are Walls In A Floor Plan.
From www.pinterest.com
Exterior walls are built around a structural core of crosslaminated How Thick Are Walls In A Floor Plan Enhance your understanding of wall measurements in. most interior walls are typically 4.5 inches thick, while exterior walls can range from 6 to 12 inches,. the thickness of walls on a floor plan will depend on the building material and intended use of the wall. They outline the boundary of the house or building. discover the average. How Thick Are Walls In A Floor Plan.