Utility Room In Garage . Utility rooms are only getting more popular, especially as people look to separate the best parts of their home, those for entertainment and relaxation, from the practical. A kitchen with a utility room off to the side, made possible by a garage conversion. If the size of your garage allows, you can add a utility area for the washing machine, tumble dryer, extra freezer and sink, a boot room with storage for coats and wellies, or even a dog room. Building an extra room in the garage involves. Do the electrical and plumbing trim work (installing electrical outlets, faucets, etc.), cover the floor, and enjoy your new space. Garage to utility room conversion. “if you are considering using your garage conversion for a room where water needs to be disposed of, such as a utility room or.
from kitchenwarehouseltd.com
Garage to utility room conversion. A kitchen with a utility room off to the side, made possible by a garage conversion. Utility rooms are only getting more popular, especially as people look to separate the best parts of their home, those for entertainment and relaxation, from the practical. If the size of your garage allows, you can add a utility area for the washing machine, tumble dryer, extra freezer and sink, a boot room with storage for coats and wellies, or even a dog room. “if you are considering using your garage conversion for a room where water needs to be disposed of, such as a utility room or. Building an extra room in the garage involves. Do the electrical and plumbing trim work (installing electrical outlets, faucets, etc.), cover the floor, and enjoy your new space.
Create Your Perfect Utility Room Kitchen Warehouse Blog
Utility Room In Garage Building an extra room in the garage involves. If the size of your garage allows, you can add a utility area for the washing machine, tumble dryer, extra freezer and sink, a boot room with storage for coats and wellies, or even a dog room. Garage to utility room conversion. Building an extra room in the garage involves. Do the electrical and plumbing trim work (installing electrical outlets, faucets, etc.), cover the floor, and enjoy your new space. “if you are considering using your garage conversion for a room where water needs to be disposed of, such as a utility room or. Utility rooms are only getting more popular, especially as people look to separate the best parts of their home, those for entertainment and relaxation, from the practical. A kitchen with a utility room off to the side, made possible by a garage conversion.
From www.realhomes.com
Utility room ideas 13 ways to make the most of your space Real Homes Utility Room In Garage Do the electrical and plumbing trim work (installing electrical outlets, faucets, etc.), cover the floor, and enjoy your new space. A kitchen with a utility room off to the side, made possible by a garage conversion. “if you are considering using your garage conversion for a room where water needs to be disposed of, such as a utility room or.. Utility Room In Garage.
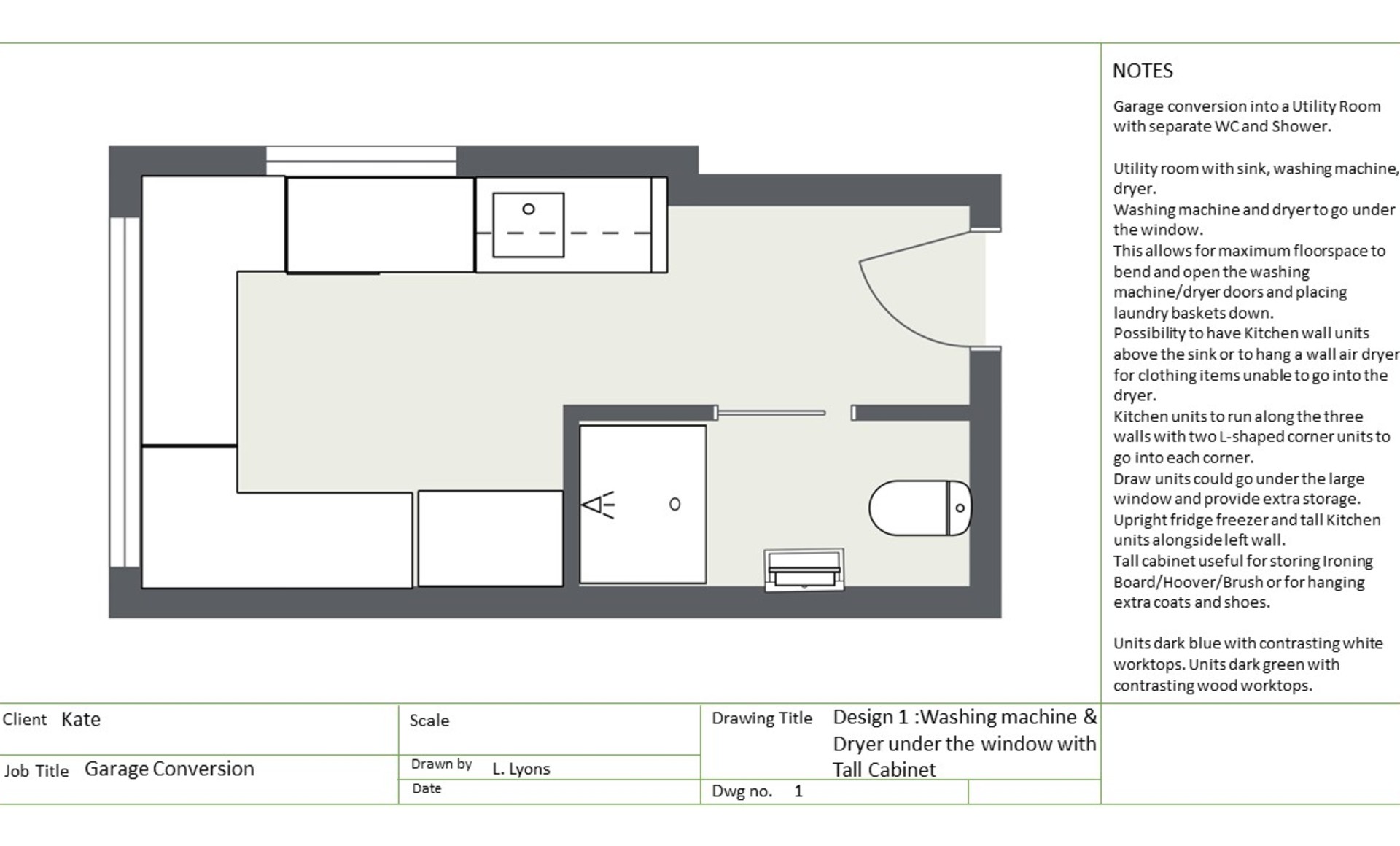
From leanne-lyons.designpalpro.com
Utility Room Garage Conversion Utility Room In Garage If the size of your garage allows, you can add a utility area for the washing machine, tumble dryer, extra freezer and sink, a boot room with storage for coats and wellies, or even a dog room. Do the electrical and plumbing trim work (installing electrical outlets, faucets, etc.), cover the floor, and enjoy your new space. “if you are. Utility Room In Garage.
From www.loverenovate.co.uk
9 Inspiring Garage Conversion Ideas — Love Renovate Utility Room In Garage A kitchen with a utility room off to the side, made possible by a garage conversion. Garage to utility room conversion. Building an extra room in the garage involves. Do the electrical and plumbing trim work (installing electrical outlets, faucets, etc.), cover the floor, and enjoy your new space. Utility rooms are only getting more popular, especially as people look. Utility Room In Garage.
From kitchenwarehouseltd.com
Create Your Perfect Utility Room Kitchen Warehouse Blog Utility Room In Garage If the size of your garage allows, you can add a utility area for the washing machine, tumble dryer, extra freezer and sink, a boot room with storage for coats and wellies, or even a dog room. A kitchen with a utility room off to the side, made possible by a garage conversion. “if you are considering using your garage. Utility Room In Garage.
From www.pinterest.jp
Garage Remodel Into Laundry Room 2 Garage remodel, Laundry room Utility Room In Garage Do the electrical and plumbing trim work (installing electrical outlets, faucets, etc.), cover the floor, and enjoy your new space. If the size of your garage allows, you can add a utility area for the washing machine, tumble dryer, extra freezer and sink, a boot room with storage for coats and wellies, or even a dog room. A kitchen with. Utility Room In Garage.
From www.thepropertycentres.co.uk
An Expert Guide 10 Ways to Convert Your Garage Space Utility Room In Garage Garage to utility room conversion. Building an extra room in the garage involves. If the size of your garage allows, you can add a utility area for the washing machine, tumble dryer, extra freezer and sink, a boot room with storage for coats and wellies, or even a dog room. “if you are considering using your garage conversion for a. Utility Room In Garage.
From www.arizonagaragedesign.com
How to Make the Most of Your Garage Laundry Room Arizona Garage Design Utility Room In Garage A kitchen with a utility room off to the side, made possible by a garage conversion. Building an extra room in the garage involves. Garage to utility room conversion. “if you are considering using your garage conversion for a room where water needs to be disposed of, such as a utility room or. Do the electrical and plumbing trim work. Utility Room In Garage.
From yandahl.blogspot.com
garage utility room ideas uk Yan Dahl Utility Room In Garage Utility rooms are only getting more popular, especially as people look to separate the best parts of their home, those for entertainment and relaxation, from the practical. “if you are considering using your garage conversion for a room where water needs to be disposed of, such as a utility room or. Building an extra room in the garage involves. Do. Utility Room In Garage.
From leanne-lyons.designpalpro.com
Utility Room Garage Conversion Utility Room In Garage A kitchen with a utility room off to the side, made possible by a garage conversion. If the size of your garage allows, you can add a utility area for the washing machine, tumble dryer, extra freezer and sink, a boot room with storage for coats and wellies, or even a dog room. Garage to utility room conversion. Do the. Utility Room In Garage.
From www.garagefloortilecompany.com
Top 6 Garage Conversion Ideas Garage Floor Tile Company Utility Room In Garage Garage to utility room conversion. Building an extra room in the garage involves. Utility rooms are only getting more popular, especially as people look to separate the best parts of their home, those for entertainment and relaxation, from the practical. A kitchen with a utility room off to the side, made possible by a garage conversion. Do the electrical and. Utility Room In Garage.
From www.youtube.com
How To Convert Garage To Utility Room Garage Conversion Floor Plans Utility Room In Garage Utility rooms are only getting more popular, especially as people look to separate the best parts of their home, those for entertainment and relaxation, from the practical. A kitchen with a utility room off to the side, made possible by a garage conversion. “if you are considering using your garage conversion for a room where water needs to be disposed. Utility Room In Garage.
From www.loverenovate.co.uk
14 Inspiring Utility Room Ideas — Love Renovate Utility Room In Garage Do the electrical and plumbing trim work (installing electrical outlets, faucets, etc.), cover the floor, and enjoy your new space. A kitchen with a utility room off to the side, made possible by a garage conversion. “if you are considering using your garage conversion for a room where water needs to be disposed of, such as a utility room or.. Utility Room In Garage.
From www.pinterest.com
Turn A Garage Into A Bedroom Convert garage to bedroom, Garage Utility Room In Garage Utility rooms are only getting more popular, especially as people look to separate the best parts of their home, those for entertainment and relaxation, from the practical. If the size of your garage allows, you can add a utility area for the washing machine, tumble dryer, extra freezer and sink, a boot room with storage for coats and wellies, or. Utility Room In Garage.
From myromedesign.blogspot.com
Modern laundry room in garage or utility area Utility Room In Garage A kitchen with a utility room off to the side, made possible by a garage conversion. Garage to utility room conversion. Building an extra room in the garage involves. If the size of your garage allows, you can add a utility area for the washing machine, tumble dryer, extra freezer and sink, a boot room with storage for coats and. Utility Room In Garage.
From marybethhearn.blogspot.com
garage utility room ideas uk Marybeth Hearn Utility Room In Garage “if you are considering using your garage conversion for a room where water needs to be disposed of, such as a utility room or. A kitchen with a utility room off to the side, made possible by a garage conversion. Building an extra room in the garage involves. Utility rooms are only getting more popular, especially as people look to. Utility Room In Garage.
From leanne-lyons.designpalpro.com
Utility Room Garage Conversion Utility Room In Garage A kitchen with a utility room off to the side, made possible by a garage conversion. Building an extra room in the garage involves. Garage to utility room conversion. Utility rooms are only getting more popular, especially as people look to separate the best parts of their home, those for entertainment and relaxation, from the practical. “if you are considering. Utility Room In Garage.
From www.loveproperty.com
40 garage conversion ideas to add more living space to your home Utility Room In Garage Building an extra room in the garage involves. “if you are considering using your garage conversion for a room where water needs to be disposed of, such as a utility room or. If the size of your garage allows, you can add a utility area for the washing machine, tumble dryer, extra freezer and sink, a boot room with storage. Utility Room In Garage.
From www.pinterest.com
Guest Blogger The Ultimate Garage Makeover With SwatchPop! Garage Utility Room In Garage If the size of your garage allows, you can add a utility area for the washing machine, tumble dryer, extra freezer and sink, a boot room with storage for coats and wellies, or even a dog room. “if you are considering using your garage conversion for a room where water needs to be disposed of, such as a utility room. Utility Room In Garage.
From www.pinterest.co.uk
12 small utility room ideas Small utility room, Utility room designs Utility Room In Garage Garage to utility room conversion. “if you are considering using your garage conversion for a room where water needs to be disposed of, such as a utility room or. Utility rooms are only getting more popular, especially as people look to separate the best parts of their home, those for entertainment and relaxation, from the practical. If the size of. Utility Room In Garage.
From www.homebuilding.co.uk
18 Utility Room Ideas for a Hardworking Laundry Room Homebuilding Utility Room In Garage If the size of your garage allows, you can add a utility area for the washing machine, tumble dryer, extra freezer and sink, a boot room with storage for coats and wellies, or even a dog room. Building an extra room in the garage involves. A kitchen with a utility room off to the side, made possible by a garage. Utility Room In Garage.
From leanne-lyons.designpalpro.com
Utility Room Garage Conversion Utility Room In Garage Utility rooms are only getting more popular, especially as people look to separate the best parts of their home, those for entertainment and relaxation, from the practical. If the size of your garage allows, you can add a utility area for the washing machine, tumble dryer, extra freezer and sink, a boot room with storage for coats and wellies, or. Utility Room In Garage.
From www.pinterest.co.uk
Garage Conversions to Spare Rooms Ideas and Costs » The Money Pit Utility Room In Garage “if you are considering using your garage conversion for a room where water needs to be disposed of, such as a utility room or. Utility rooms are only getting more popular, especially as people look to separate the best parts of their home, those for entertainment and relaxation, from the practical. A kitchen with a utility room off to the. Utility Room In Garage.
From leanne-lyons.designpalpro.com
Utility Room Garage Conversion Utility Room In Garage Building an extra room in the garage involves. If the size of your garage allows, you can add a utility area for the washing machine, tumble dryer, extra freezer and sink, a boot room with storage for coats and wellies, or even a dog room. Garage to utility room conversion. Utility rooms are only getting more popular, especially as people. Utility Room In Garage.
From www.sigma3.co.uk
Utility Room Ideas for the hustle and bustle of modern day life Find Utility Room In Garage Garage to utility room conversion. A kitchen with a utility room off to the side, made possible by a garage conversion. Building an extra room in the garage involves. Utility rooms are only getting more popular, especially as people look to separate the best parts of their home, those for entertainment and relaxation, from the practical. Do the electrical and. Utility Room In Garage.
From www.pinterest.com
Aluminum Storage for Garage, Shop & Garage Garage design Utility Room In Garage Utility rooms are only getting more popular, especially as people look to separate the best parts of their home, those for entertainment and relaxation, from the practical. If the size of your garage allows, you can add a utility area for the washing machine, tumble dryer, extra freezer and sink, a boot room with storage for coats and wellies, or. Utility Room In Garage.
From leanne-lyons.designpalpro.com
Utility Room Garage Conversion Utility Room In Garage Do the electrical and plumbing trim work (installing electrical outlets, faucets, etc.), cover the floor, and enjoy your new space. “if you are considering using your garage conversion for a room where water needs to be disposed of, such as a utility room or. If the size of your garage allows, you can add a utility area for the washing. Utility Room In Garage.
From www.housetohome.co.uk
Garage utility room Laundry room housetohome.co.uk Utility Room In Garage Do the electrical and plumbing trim work (installing electrical outlets, faucets, etc.), cover the floor, and enjoy your new space. Building an extra room in the garage involves. Utility rooms are only getting more popular, especially as people look to separate the best parts of their home, those for entertainment and relaxation, from the practical. A kitchen with a utility. Utility Room In Garage.
From www.howdens.com
Utility Room Ideas Utility Room Inspiration Howdens Utility Room In Garage A kitchen with a utility room off to the side, made possible by a garage conversion. Building an extra room in the garage involves. Garage to utility room conversion. Utility rooms are only getting more popular, especially as people look to separate the best parts of their home, those for entertainment and relaxation, from the practical. “if you are considering. Utility Room In Garage.
From houzz.com
Utility Rooms / Craft Rooms / Garages Utility Room In Garage If the size of your garage allows, you can add a utility area for the washing machine, tumble dryer, extra freezer and sink, a boot room with storage for coats and wellies, or even a dog room. Building an extra room in the garage involves. Do the electrical and plumbing trim work (installing electrical outlets, faucets, etc.), cover the floor,. Utility Room In Garage.
From www.realhomes.com
12 clever utility room design ideas Real Homes Utility Room In Garage Utility rooms are only getting more popular, especially as people look to separate the best parts of their home, those for entertainment and relaxation, from the practical. Do the electrical and plumbing trim work (installing electrical outlets, faucets, etc.), cover the floor, and enjoy your new space. A kitchen with a utility room off to the side, made possible by. Utility Room In Garage.
From www.realhomes.com
Utility room ideas 22 inspiring ways to organise yours Real Homes Utility Room In Garage Garage to utility room conversion. If the size of your garage allows, you can add a utility area for the washing machine, tumble dryer, extra freezer and sink, a boot room with storage for coats and wellies, or even a dog room. “if you are considering using your garage conversion for a room where water needs to be disposed of,. Utility Room In Garage.
From www.pinterest.com
Utility Room Garage Conversion by Parker Home Small bedroom remodel Utility Room In Garage A kitchen with a utility room off to the side, made possible by a garage conversion. “if you are considering using your garage conversion for a room where water needs to be disposed of, such as a utility room or. Building an extra room in the garage involves. Do the electrical and plumbing trim work (installing electrical outlets, faucets, etc.),. Utility Room In Garage.
From www.realhomes.com
Designing a utility room how to plan a laundry space Real Homes Utility Room In Garage Garage to utility room conversion. “if you are considering using your garage conversion for a room where water needs to be disposed of, such as a utility room or. Do the electrical and plumbing trim work (installing electrical outlets, faucets, etc.), cover the floor, and enjoy your new space. Utility rooms are only getting more popular, especially as people look. Utility Room In Garage.
From www.monicabussoli.com
basement floor plan laundryutility rooms Monica Bussoli Interiors Utility Room In Garage Building an extra room in the garage involves. Utility rooms are only getting more popular, especially as people look to separate the best parts of their home, those for entertainment and relaxation, from the practical. If the size of your garage allows, you can add a utility area for the washing machine, tumble dryer, extra freezer and sink, a boot. Utility Room In Garage.
From www.youtube.com
Garage Converted to Utility Room/W.C./Storage Moreton, Wirral Utility Room In Garage Garage to utility room conversion. A kitchen with a utility room off to the side, made possible by a garage conversion. “if you are considering using your garage conversion for a room where water needs to be disposed of, such as a utility room or. Do the electrical and plumbing trim work (installing electrical outlets, faucets, etc.), cover the floor,. Utility Room In Garage.