Bridgewell Email . If this is your first. If you have any further questions please contact our help desk. Bridgewell is transforming how providers. Let’s get in touch to discuss your personal or professional group benefits, insurance or wealth and financial planning needs, by email:. We also have a for users visiting the employee portal for the very first time.
from twitter.com
If you have any further questions please contact our help desk. Bridgewell is transforming how providers. Let’s get in touch to discuss your personal or professional group benefits, insurance or wealth and financial planning needs, by email:. If this is your first. We also have a for users visiting the employee portal for the very first time.
Bridgewell on Twitter "Alternatives to Guardianship Please join
Bridgewell Email Bridgewell is transforming how providers. Bridgewell is transforming how providers. Let’s get in touch to discuss your personal or professional group benefits, insurance or wealth and financial planning needs, by email:. If you have any further questions please contact our help desk. If this is your first. We also have a for users visiting the employee portal for the very first time.
From www.bridgewell.nl
Bridgewell Executive Search Bridgewell Email If you have any further questions please contact our help desk. Bridgewell is transforming how providers. If this is your first. We also have a for users visiting the employee portal for the very first time. Let’s get in touch to discuss your personal or professional group benefits, insurance or wealth and financial planning needs, by email:. Bridgewell Email.
From www.pdffiller.com
Fillable Online Fillable Online bridgewell Imagine the Possibilities Bridgewell Email We also have a for users visiting the employee portal for the very first time. If this is your first. Let’s get in touch to discuss your personal or professional group benefits, insurance or wealth and financial planning needs, by email:. If you have any further questions please contact our help desk. Bridgewell is transforming how providers. Bridgewell Email.
From www.bridgewell.org
Window Into Bridgewell Bridgewell Bridgewell Email Bridgewell is transforming how providers. If you have any further questions please contact our help desk. If this is your first. We also have a for users visiting the employee portal for the very first time. Let’s get in touch to discuss your personal or professional group benefits, insurance or wealth and financial planning needs, by email:. Bridgewell Email.
From www.facebook.com
Bridgewell 📢 ANNOUNCEMENT! 📢 Bridgewell’s headquarters,... Bridgewell Email We also have a for users visiting the employee portal for the very first time. Bridgewell is transforming how providers. Let’s get in touch to discuss your personal or professional group benefits, insurance or wealth and financial planning needs, by email:. If you have any further questions please contact our help desk. If this is your first. Bridgewell Email.
From www.behance.net
Bridgewell Brand Identity on Behance Bridgewell Email If this is your first. We also have a for users visiting the employee portal for the very first time. If you have any further questions please contact our help desk. Bridgewell is transforming how providers. Let’s get in touch to discuss your personal or professional group benefits, insurance or wealth and financial planning needs, by email:. Bridgewell Email.
From bridgewellfinancial.com
Introducing The Bridgewell Sessions Bridgewell Bridgewell Email If this is your first. We also have a for users visiting the employee portal for the very first time. If you have any further questions please contact our help desk. Let’s get in touch to discuss your personal or professional group benefits, insurance or wealth and financial planning needs, by email:. Bridgewell is transforming how providers. Bridgewell Email.
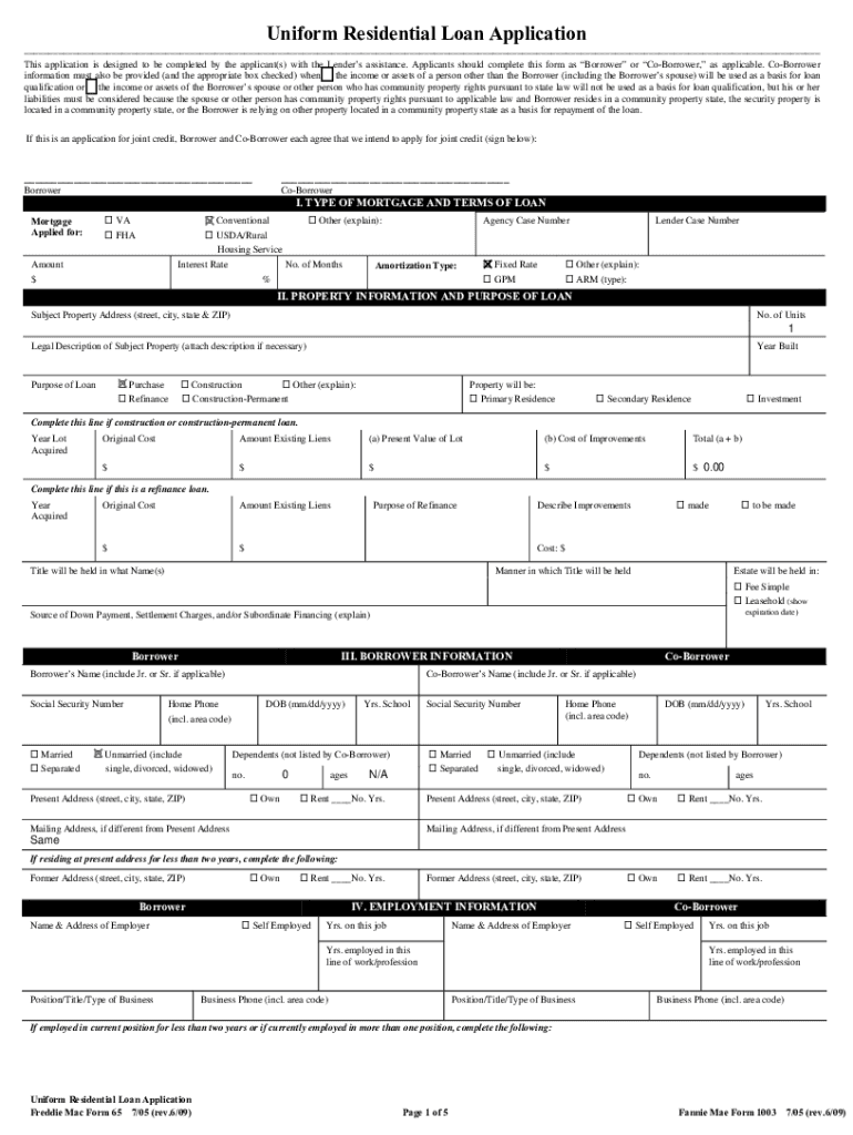
From www.pdffiller.com
Fillable Online Uniform Residential Loan Application BridgeWell Bridgewell Email We also have a for users visiting the employee portal for the very first time. Let’s get in touch to discuss your personal or professional group benefits, insurance or wealth and financial planning needs, by email:. Bridgewell is transforming how providers. If this is your first. If you have any further questions please contact our help desk. Bridgewell Email.
From www.bridgewell.nl
Open Posities Bridgewell Bridgewell Email If you have any further questions please contact our help desk. We also have a for users visiting the employee portal for the very first time. Let’s get in touch to discuss your personal or professional group benefits, insurance or wealth and financial planning needs, by email:. If this is your first. Bridgewell is transforming how providers. Bridgewell Email.
From twitter.com
Bridgewell on Twitter "NOW HIRING! New Program Opening Soon! 📢 Bridgewell Email If this is your first. We also have a for users visiting the employee portal for the very first time. Let’s get in touch to discuss your personal or professional group benefits, insurance or wealth and financial planning needs, by email:. Bridgewell is transforming how providers. If you have any further questions please contact our help desk. Bridgewell Email.
From graybox.co
Bridgewell Resources Case Study GRAYBOX Bridgewell Email Bridgewell is transforming how providers. If you have any further questions please contact our help desk. Let’s get in touch to discuss your personal or professional group benefits, insurance or wealth and financial planning needs, by email:. If this is your first. We also have a for users visiting the employee portal for the very first time. Bridgewell Email.
From goddardphysics.weebly.com
Bridgewell Marketing Blog Bridgewell Email We also have a for users visiting the employee portal for the very first time. Let’s get in touch to discuss your personal or professional group benefits, insurance or wealth and financial planning needs, by email:. If you have any further questions please contact our help desk. Bridgewell is transforming how providers. If this is your first. Bridgewell Email.
From bridgewell.org
What happens at Bridgewell’s Employment Programs!? Bridgewell Bridgewell Email Bridgewell is transforming how providers. We also have a for users visiting the employee portal for the very first time. If you have any further questions please contact our help desk. If this is your first. Let’s get in touch to discuss your personal or professional group benefits, insurance or wealth and financial planning needs, by email:. Bridgewell Email.
From bridgewellconsult.com
Bridgewell Consulting LLC Organizational Design & WellBeing Strategy Bridgewell Email Bridgewell is transforming how providers. We also have a for users visiting the employee portal for the very first time. If this is your first. Let’s get in touch to discuss your personal or professional group benefits, insurance or wealth and financial planning needs, by email:. If you have any further questions please contact our help desk. Bridgewell Email.
From bridgewell.teamdoor.io
Bridgewell 宇匯知識科技 is now hiring, Apply now! Bridgewell Email Bridgewell is transforming how providers. If you have any further questions please contact our help desk. Let’s get in touch to discuss your personal or professional group benefits, insurance or wealth and financial planning needs, by email:. If this is your first. We also have a for users visiting the employee portal for the very first time. Bridgewell Email.
From www.bridgewell.org
Contact Bridgewell Bridgewell Information And Questions Bridgewell Email Bridgewell is transforming how providers. Let’s get in touch to discuss your personal or professional group benefits, insurance or wealth and financial planning needs, by email:. If this is your first. We also have a for users visiting the employee portal for the very first time. If you have any further questions please contact our help desk. Bridgewell Email.
From bridgewellmarketing.com
New Traffic Data to Be Included in Microsoft Ads' Launch of the UET Bridgewell Email If this is your first. We also have a for users visiting the employee portal for the very first time. Let’s get in touch to discuss your personal or professional group benefits, insurance or wealth and financial planning needs, by email:. If you have any further questions please contact our help desk. Bridgewell is transforming how providers. Bridgewell Email.
From www.salemnews.com
Bridgewell to honor Beverly man for 43 years of service News Bridgewell Email If this is your first. If you have any further questions please contact our help desk. Bridgewell is transforming how providers. Let’s get in touch to discuss your personal or professional group benefits, insurance or wealth and financial planning needs, by email:. We also have a for users visiting the employee portal for the very first time. Bridgewell Email.
From twitter.com
Bridgewell on Twitter "Alternatives to Guardianship Please join Bridgewell Email Bridgewell is transforming how providers. If you have any further questions please contact our help desk. We also have a for users visiting the employee portal for the very first time. Let’s get in touch to discuss your personal or professional group benefits, insurance or wealth and financial planning needs, by email:. If this is your first. Bridgewell Email.
From greaterlynnchamber.com
Bridgewell "Imagine the Possibilities" Gala Greater Lynn Chamber of Bridgewell Email Let’s get in touch to discuss your personal or professional group benefits, insurance or wealth and financial planning needs, by email:. Bridgewell is transforming how providers. We also have a for users visiting the employee portal for the very first time. If this is your first. If you have any further questions please contact our help desk. Bridgewell Email.
From pt.linkedin.com
Bridgewell Executive Search LinkedIn Bridgewell Email Bridgewell is transforming how providers. Let’s get in touch to discuss your personal or professional group benefits, insurance or wealth and financial planning needs, by email:. We also have a for users visiting the employee portal for the very first time. If you have any further questions please contact our help desk. If this is your first. Bridgewell Email.
From twitter.com
Bridgewell on Twitter "Make our gala a success by a sponsor Bridgewell Email If you have any further questions please contact our help desk. We also have a for users visiting the employee portal for the very first time. If this is your first. Bridgewell is transforming how providers. Let’s get in touch to discuss your personal or professional group benefits, insurance or wealth and financial planning needs, by email:. Bridgewell Email.
From www.bridgewell.nl
Contact Bridgewell Bridgewell Email If this is your first. Bridgewell is transforming how providers. Let’s get in touch to discuss your personal or professional group benefits, insurance or wealth and financial planning needs, by email:. If you have any further questions please contact our help desk. We also have a for users visiting the employee portal for the very first time. Bridgewell Email.
From apps.apple.com
Bridgewell Resources on the App Store Bridgewell Email If you have any further questions please contact our help desk. Bridgewell is transforming how providers. We also have a for users visiting the employee portal for the very first time. If this is your first. Let’s get in touch to discuss your personal or professional group benefits, insurance or wealth and financial planning needs, by email:. Bridgewell Email.
From bridgewell.org
North Shore, MA Behavioral Health Services Bridgewell Programs Bridgewell Email Let’s get in touch to discuss your personal or professional group benefits, insurance or wealth and financial planning needs, by email:. If this is your first. Bridgewell is transforming how providers. If you have any further questions please contact our help desk. We also have a for users visiting the employee portal for the very first time. Bridgewell Email.
From www.bridgewell.com
Bridgewell Launches Bridgewell Retail Media Network Bridgewell Inc. Bridgewell Email If you have any further questions please contact our help desk. We also have a for users visiting the employee portal for the very first time. Bridgewell is transforming how providers. If this is your first. Let’s get in touch to discuss your personal or professional group benefits, insurance or wealth and financial planning needs, by email:. Bridgewell Email.
From www.bridgewell.nl
Contact Bridgewell Bridgewell Email If this is your first. Let’s get in touch to discuss your personal or professional group benefits, insurance or wealth and financial planning needs, by email:. Bridgewell is transforming how providers. If you have any further questions please contact our help desk. We also have a for users visiting the employee portal for the very first time. Bridgewell Email.
From www.behance.net
Bridgewell Brand Identity on Behance Bridgewell Email We also have a for users visiting the employee portal for the very first time. Let’s get in touch to discuss your personal or professional group benefits, insurance or wealth and financial planning needs, by email:. Bridgewell is transforming how providers. If this is your first. If you have any further questions please contact our help desk. Bridgewell Email.
From www.bridgewellnd.com
Contact — Bridgewell Bridgewell Email We also have a for users visiting the employee portal for the very first time. If this is your first. Bridgewell is transforming how providers. If you have any further questions please contact our help desk. Let’s get in touch to discuss your personal or professional group benefits, insurance or wealth and financial planning needs, by email:. Bridgewell Email.
From twitter.com
Bridgewell on Twitter "Contact your Senator TODAY & ask them to Bridgewell Email We also have a for users visiting the employee portal for the very first time. If you have any further questions please contact our help desk. Let’s get in touch to discuss your personal or professional group benefits, insurance or wealth and financial planning needs, by email:. If this is your first. Bridgewell is transforming how providers. Bridgewell Email.
From twitter.com
Bridgewell on Twitter "Join Bridgewell’s Family Support Center for an Bridgewell Email If you have any further questions please contact our help desk. Let’s get in touch to discuss your personal or professional group benefits, insurance or wealth and financial planning needs, by email:. If this is your first. We also have a for users visiting the employee portal for the very first time. Bridgewell is transforming how providers. Bridgewell Email.
From www.linkedin.com
Bridgewell on LinkedIn How does Bridgewell help your community Bridgewell Email If you have any further questions please contact our help desk. If this is your first. Bridgewell is transforming how providers. We also have a for users visiting the employee portal for the very first time. Let’s get in touch to discuss your personal or professional group benefits, insurance or wealth and financial planning needs, by email:. Bridgewell Email.
From bridgewellmarketing.com
Google Ads introduces tailored optimization tips through an email Bridgewell Email If you have any further questions please contact our help desk. Bridgewell is transforming how providers. We also have a for users visiting the employee portal for the very first time. Let’s get in touch to discuss your personal or professional group benefits, insurance or wealth and financial planning needs, by email:. If this is your first. Bridgewell Email.
From bridgewellfinancial.com
Bridgewell Financial is proud to join Benefits Alliance Bridgewell Bridgewell Email Bridgewell is transforming how providers. We also have a for users visiting the employee portal for the very first time. If you have any further questions please contact our help desk. Let’s get in touch to discuss your personal or professional group benefits, insurance or wealth and financial planning needs, by email:. If this is your first. Bridgewell Email.
From bridgewellfinancial.myhsaaccess.com
myHSA Bridgewell Email If you have any further questions please contact our help desk. We also have a for users visiting the employee portal for the very first time. Bridgewell is transforming how providers. If this is your first. Let’s get in touch to discuss your personal or professional group benefits, insurance or wealth and financial planning needs, by email:. Bridgewell Email.
From www.pdffiller.com
Fillable Online wpcontent uploadsSolicitud de cupn Bridgewell Email We also have a for users visiting the employee portal for the very first time. Let’s get in touch to discuss your personal or professional group benefits, insurance or wealth and financial planning needs, by email:. If you have any further questions please contact our help desk. If this is your first. Bridgewell is transforming how providers. Bridgewell Email.