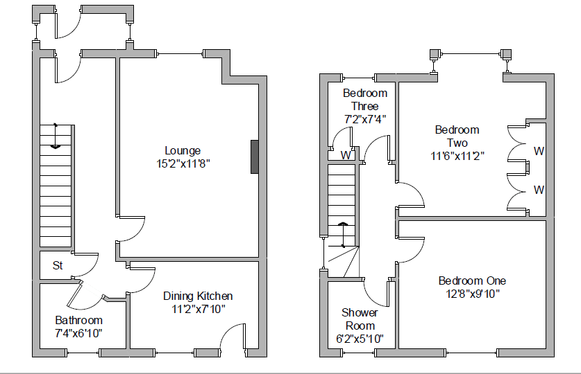
House For Sale The Oval Clarkston . Beautifully positioned 2 bedroom mid terraced villa set in an attractive crescent overlooking a communal green in the highly sought after district of clarkston. A driveway to the front, provides off street parking leading to a single detached garage. 2 bedroom end of terrace house for sale in the oval, clarkston, g76 for £189,000. Shower room with three piece suite completes the upper accommodation. Boasting two bedrooms, the property offers a comfortable living. The property benefits from private front and rear gardens. Closing date tuesday 22nd october at 12pm an extended two bedroom end terrace villa with driveway and a garage,. An extended two bedroom end terrace villa with driveway and a garage, conveniently located for local amenities transport. In need of some updating, this. Marketed by nicol estate agents, clarkston The property is further complemented by gas central heating and double glazing.
from nicolestateagents.co.uk
The property is further complemented by gas central heating and double glazing. A driveway to the front, provides off street parking leading to a single detached garage. An extended two bedroom end terrace villa with driveway and a garage, conveniently located for local amenities transport. Beautifully positioned 2 bedroom mid terraced villa set in an attractive crescent overlooking a communal green in the highly sought after district of clarkston. Marketed by nicol estate agents, clarkston Shower room with three piece suite completes the upper accommodation. 2 bedroom end of terrace house for sale in the oval, clarkston, g76 for £189,000. Closing date tuesday 22nd october at 12pm an extended two bedroom end terrace villa with driveway and a garage,. Boasting two bedrooms, the property offers a comfortable living. The property benefits from private front and rear gardens.
The Oval, Clarkston Nicol Estate Agents
House For Sale The Oval Clarkston Closing date tuesday 22nd october at 12pm an extended two bedroom end terrace villa with driveway and a garage,. In need of some updating, this. 2 bedroom end of terrace house for sale in the oval, clarkston, g76 for £189,000. The property is further complemented by gas central heating and double glazing. Marketed by nicol estate agents, clarkston Shower room with three piece suite completes the upper accommodation. The property benefits from private front and rear gardens. Closing date tuesday 22nd october at 12pm an extended two bedroom end terrace villa with driveway and a garage,. A driveway to the front, provides off street parking leading to a single detached garage. Beautifully positioned 2 bedroom mid terraced villa set in an attractive crescent overlooking a communal green in the highly sought after district of clarkston. An extended two bedroom end terrace villa with driveway and a garage, conveniently located for local amenities transport. Boasting two bedrooms, the property offers a comfortable living.
From www.onthemarket.com
The Oval, Clarkston 4 bed end of terrace house for sale £279,000 House For Sale The Oval Clarkston Closing date tuesday 22nd october at 12pm an extended two bedroom end terrace villa with driveway and a garage,. Boasting two bedrooms, the property offers a comfortable living. 2 bedroom end of terrace house for sale in the oval, clarkston, g76 for £189,000. A driveway to the front, provides off street parking leading to a single detached garage. Marketed by. House For Sale The Oval Clarkston.
From scotlandspropertyguide.com
The Oval, Clarkston Scotlands Property Guide House For Sale The Oval Clarkston An extended two bedroom end terrace villa with driveway and a garage, conveniently located for local amenities transport. The property is further complemented by gas central heating and double glazing. Closing date tuesday 22nd october at 12pm an extended two bedroom end terrace villa with driveway and a garage,. Boasting two bedrooms, the property offers a comfortable living. Beautifully positioned. House For Sale The Oval Clarkston.
From scotlandspropertyguide.com
The Oval, Clarkston Scotlands Property Guide House For Sale The Oval Clarkston A driveway to the front, provides off street parking leading to a single detached garage. Marketed by nicol estate agents, clarkston Beautifully positioned 2 bedroom mid terraced villa set in an attractive crescent overlooking a communal green in the highly sought after district of clarkston. Boasting two bedrooms, the property offers a comfortable living. Closing date tuesday 22nd october at. House For Sale The Oval Clarkston.
From www.onthemarket.com
The Oval, Clarkston, Glasgow, G76 8LU 3 bed semidetached house £205,000 House For Sale The Oval Clarkston Shower room with three piece suite completes the upper accommodation. In need of some updating, this. The property is further complemented by gas central heating and double glazing. 2 bedroom end of terrace house for sale in the oval, clarkston, g76 for £189,000. Boasting two bedrooms, the property offers a comfortable living. Closing date tuesday 22nd october at 12pm an. House For Sale The Oval Clarkston.
From www.zoopla.co.uk
3 bed semidetached house for sale in The Oval, Clarkston, Glasgow G76 House For Sale The Oval Clarkston An extended two bedroom end terrace villa with driveway and a garage, conveniently located for local amenities transport. The property is further complemented by gas central heating and double glazing. Shower room with three piece suite completes the upper accommodation. A driveway to the front, provides off street parking leading to a single detached garage. Beautifully positioned 2 bedroom mid. House For Sale The Oval Clarkston.
From nicolestateagents.co.uk
The Oval, Clarkston Nicol Estate Agents House For Sale The Oval Clarkston Shower room with three piece suite completes the upper accommodation. Beautifully positioned 2 bedroom mid terraced villa set in an attractive crescent overlooking a communal green in the highly sought after district of clarkston. Closing date tuesday 22nd october at 12pm an extended two bedroom end terrace villa with driveway and a garage,. Boasting two bedrooms, the property offers a. House For Sale The Oval Clarkston.
From scotlandspropertyguide.com
The Oval, Clarkston Scotlands Property Guide House For Sale The Oval Clarkston A driveway to the front, provides off street parking leading to a single detached garage. The property is further complemented by gas central heating and double glazing. Boasting two bedrooms, the property offers a comfortable living. 2 bedroom end of terrace house for sale in the oval, clarkston, g76 for £189,000. The property benefits from private front and rear gardens.. House For Sale The Oval Clarkston.
From www.onthemarket.com
The Oval, Clarkston, Glasgow, G76 3 bed terraced house £995 pcm (£230 pw) House For Sale The Oval Clarkston The property is further complemented by gas central heating and double glazing. Marketed by nicol estate agents, clarkston A driveway to the front, provides off street parking leading to a single detached garage. The property benefits from private front and rear gardens. Boasting two bedrooms, the property offers a comfortable living. Closing date tuesday 22nd october at 12pm an extended. House For Sale The Oval Clarkston.
From scotlandspropertyguide.com
The Oval, Clarkston Scotlands Property Guide House For Sale The Oval Clarkston Boasting two bedrooms, the property offers a comfortable living. Closing date tuesday 22nd october at 12pm an extended two bedroom end terrace villa with driveway and a garage,. The property is further complemented by gas central heating and double glazing. Marketed by nicol estate agents, clarkston An extended two bedroom end terrace villa with driveway and a garage, conveniently located. House For Sale The Oval Clarkston.
From www.onthemarket.com
The Oval, Clarkston, Glasgow, G76 8LX 2 bed terraced house £180,000 House For Sale The Oval Clarkston Shower room with three piece suite completes the upper accommodation. In need of some updating, this. An extended two bedroom end terrace villa with driveway and a garage, conveniently located for local amenities transport. Marketed by nicol estate agents, clarkston The property benefits from private front and rear gardens. Closing date tuesday 22nd october at 12pm an extended two bedroom. House For Sale The Oval Clarkston.
From www.onthemarket.com
The Oval, Clarkston, Glasgow, G76 2 bed semidetached house £995 pcm House For Sale The Oval Clarkston Beautifully positioned 2 bedroom mid terraced villa set in an attractive crescent overlooking a communal green in the highly sought after district of clarkston. Shower room with three piece suite completes the upper accommodation. A driveway to the front, provides off street parking leading to a single detached garage. An extended two bedroom end terrace villa with driveway and a. House For Sale The Oval Clarkston.
From nicolestateagents.co.uk
The Oval, Stamperland Nicol Estate Agents House For Sale The Oval Clarkston In need of some updating, this. Shower room with three piece suite completes the upper accommodation. Closing date tuesday 22nd october at 12pm an extended two bedroom end terrace villa with driveway and a garage,. A driveway to the front, provides off street parking leading to a single detached garage. Marketed by nicol estate agents, clarkston Beautifully positioned 2 bedroom. House For Sale The Oval Clarkston.
From nicolestateagents.co.uk
The Oval, Clarkston Nicol Estate Agents House For Sale The Oval Clarkston The property is further complemented by gas central heating and double glazing. Boasting two bedrooms, the property offers a comfortable living. A driveway to the front, provides off street parking leading to a single detached garage. 2 bedroom end of terrace house for sale in the oval, clarkston, g76 for £189,000. In need of some updating, this. Shower room with. House For Sale The Oval Clarkston.
From www.onthemarket.com
The Oval, Clarkston 3 bed semidetached villa for sale £245,000 House For Sale The Oval Clarkston Beautifully positioned 2 bedroom mid terraced villa set in an attractive crescent overlooking a communal green in the highly sought after district of clarkston. The property benefits from private front and rear gardens. 2 bedroom end of terrace house for sale in the oval, clarkston, g76 for £189,000. Boasting two bedrooms, the property offers a comfortable living. The property is. House For Sale The Oval Clarkston.
From scotlandspropertyguide.com
The Oval, Clarkston Scotlands Property Guide House For Sale The Oval Clarkston The property is further complemented by gas central heating and double glazing. In need of some updating, this. A driveway to the front, provides off street parking leading to a single detached garage. Boasting two bedrooms, the property offers a comfortable living. Marketed by nicol estate agents, clarkston The property benefits from private front and rear gardens. 2 bedroom end. House For Sale The Oval Clarkston.
From www.zoopla.co.uk
4 bed semidetached house for sale in The Oval, Clarkston, East House For Sale The Oval Clarkston Marketed by nicol estate agents, clarkston A driveway to the front, provides off street parking leading to a single detached garage. In need of some updating, this. The property is further complemented by gas central heating and double glazing. An extended two bedroom end terrace villa with driveway and a garage, conveniently located for local amenities transport. Boasting two bedrooms,. House For Sale The Oval Clarkston.
From www.onthemarket.com
The Oval, Clarkston 2 bed end of terrace house for sale £195,000 House For Sale The Oval Clarkston Closing date tuesday 22nd october at 12pm an extended two bedroom end terrace villa with driveway and a garage,. 2 bedroom end of terrace house for sale in the oval, clarkston, g76 for £189,000. An extended two bedroom end terrace villa with driveway and a garage, conveniently located for local amenities transport. A driveway to the front, provides off street. House For Sale The Oval Clarkston.
From nicolestateagents.co.uk
The Oval, Clarkston Nicol Estate Agents House For Sale The Oval Clarkston 2 bedroom end of terrace house for sale in the oval, clarkston, g76 for £189,000. The property is further complemented by gas central heating and double glazing. Shower room with three piece suite completes the upper accommodation. A driveway to the front, provides off street parking leading to a single detached garage. Closing date tuesday 22nd october at 12pm an. House For Sale The Oval Clarkston.
From scotlandspropertyguide.com
The Oval, Clarkston Scotlands Property Guide House For Sale The Oval Clarkston Marketed by nicol estate agents, clarkston Beautifully positioned 2 bedroom mid terraced villa set in an attractive crescent overlooking a communal green in the highly sought after district of clarkston. The property is further complemented by gas central heating and double glazing. An extended two bedroom end terrace villa with driveway and a garage, conveniently located for local amenities transport.. House For Sale The Oval Clarkston.
From nicolestateagents.co.uk
The Oval, Clarkston Nicol Estate Agents House For Sale The Oval Clarkston A driveway to the front, provides off street parking leading to a single detached garage. In need of some updating, this. An extended two bedroom end terrace villa with driveway and a garage, conveniently located for local amenities transport. Shower room with three piece suite completes the upper accommodation. Boasting two bedrooms, the property offers a comfortable living. The property. House For Sale The Oval Clarkston.
From nicolestateagents.co.uk
The Oval, Clarkston Nicol Estate Agents House For Sale The Oval Clarkston The property benefits from private front and rear gardens. 2 bedroom end of terrace house for sale in the oval, clarkston, g76 for £189,000. Closing date tuesday 22nd october at 12pm an extended two bedroom end terrace villa with driveway and a garage,. Boasting two bedrooms, the property offers a comfortable living. Beautifully positioned 2 bedroom mid terraced villa set. House For Sale The Oval Clarkston.
From www.onthemarket.com
The Oval, Clarkston, Glasgow, G76 8LT 2 bed terraced house £229,000 House For Sale The Oval Clarkston Shower room with three piece suite completes the upper accommodation. An extended two bedroom end terrace villa with driveway and a garage, conveniently located for local amenities transport. 2 bedroom end of terrace house for sale in the oval, clarkston, g76 for £189,000. Closing date tuesday 22nd october at 12pm an extended two bedroom end terrace villa with driveway and. House For Sale The Oval Clarkston.
From www.onthemarket.com
The Oval, Clarkston, Glasgow, G76 8LT 2 bed terraced house £229,000 House For Sale The Oval Clarkston Marketed by nicol estate agents, clarkston In need of some updating, this. The property is further complemented by gas central heating and double glazing. 2 bedroom end of terrace house for sale in the oval, clarkston, g76 for £189,000. Shower room with three piece suite completes the upper accommodation. Beautifully positioned 2 bedroom mid terraced villa set in an attractive. House For Sale The Oval Clarkston.
From nicolestateagents.co.uk
The Oval, Clarkston Nicol Estate Agents House For Sale The Oval Clarkston The property benefits from private front and rear gardens. 2 bedroom end of terrace house for sale in the oval, clarkston, g76 for £189,000. Marketed by nicol estate agents, clarkston Boasting two bedrooms, the property offers a comfortable living. An extended two bedroom end terrace villa with driveway and a garage, conveniently located for local amenities transport. The property is. House For Sale The Oval Clarkston.
From nicolestateagents.co.uk
The Oval, Clarkston Nicol Estate Agents House For Sale The Oval Clarkston The property is further complemented by gas central heating and double glazing. A driveway to the front, provides off street parking leading to a single detached garage. Shower room with three piece suite completes the upper accommodation. Boasting two bedrooms, the property offers a comfortable living. In need of some updating, this. Beautifully positioned 2 bedroom mid terraced villa set. House For Sale The Oval Clarkston.
From www.onthemarket.com
The Oval, Clarkston, Glasgow, G76 8LZ 2 bed end of terrace house £179,999 House For Sale The Oval Clarkston The property is further complemented by gas central heating and double glazing. Shower room with three piece suite completes the upper accommodation. Boasting two bedrooms, the property offers a comfortable living. A driveway to the front, provides off street parking leading to a single detached garage. In need of some updating, this. Marketed by nicol estate agents, clarkston An extended. House For Sale The Oval Clarkston.
From scotlandspropertyguide.com
The Oval, Clarkston Scotlands Property Guide House For Sale The Oval Clarkston Boasting two bedrooms, the property offers a comfortable living. Beautifully positioned 2 bedroom mid terraced villa set in an attractive crescent overlooking a communal green in the highly sought after district of clarkston. In need of some updating, this. The property is further complemented by gas central heating and double glazing. Closing date tuesday 22nd october at 12pm an extended. House For Sale The Oval Clarkston.
From nicolestateagents.co.uk
The Oval, Clarkston Nicol Estate Agents House For Sale The Oval Clarkston A driveway to the front, provides off street parking leading to a single detached garage. An extended two bedroom end terrace villa with driveway and a garage, conveniently located for local amenities transport. The property benefits from private front and rear gardens. The property is further complemented by gas central heating and double glazing. Beautifully positioned 2 bedroom mid terraced. House For Sale The Oval Clarkston.
From www.onthemarket.com
The Oval, Clarkston, Glasgow, G76 2 bed semidetached house £995 pcm House For Sale The Oval Clarkston The property benefits from private front and rear gardens. Beautifully positioned 2 bedroom mid terraced villa set in an attractive crescent overlooking a communal green in the highly sought after district of clarkston. In need of some updating, this. Boasting two bedrooms, the property offers a comfortable living. Marketed by nicol estate agents, clarkston An extended two bedroom end terrace. House For Sale The Oval Clarkston.
From www.onthemarket.com
The Oval, Clarkston, Glasgow, G76 3 bed terraced house £995 pcm (£230 pw) House For Sale The Oval Clarkston 2 bedroom end of terrace house for sale in the oval, clarkston, g76 for £189,000. Closing date tuesday 22nd october at 12pm an extended two bedroom end terrace villa with driveway and a garage,. In need of some updating, this. A driveway to the front, provides off street parking leading to a single detached garage. An extended two bedroom end. House For Sale The Oval Clarkston.
From www.onthemarket.com
The Oval, Clarkston, Glasgow, G76 8LY 2 bed terraced house for sale £ House For Sale The Oval Clarkston Shower room with three piece suite completes the upper accommodation. Closing date tuesday 22nd october at 12pm an extended two bedroom end terrace villa with driveway and a garage,. An extended two bedroom end terrace villa with driveway and a garage, conveniently located for local amenities transport. In need of some updating, this. The property is further complemented by gas. House For Sale The Oval Clarkston.
From scotlandspropertyguide.com
The Oval, Clarkston Scotlands Property Guide House For Sale The Oval Clarkston Beautifully positioned 2 bedroom mid terraced villa set in an attractive crescent overlooking a communal green in the highly sought after district of clarkston. Marketed by nicol estate agents, clarkston An extended two bedroom end terrace villa with driveway and a garage, conveniently located for local amenities transport. The property benefits from private front and rear gardens. Boasting two bedrooms,. House For Sale The Oval Clarkston.
From scotlandspropertyguide.com
The Oval, Clarkston Scotlands Property Guide House For Sale The Oval Clarkston Shower room with three piece suite completes the upper accommodation. Closing date tuesday 22nd october at 12pm an extended two bedroom end terrace villa with driveway and a garage,. In need of some updating, this. 2 bedroom end of terrace house for sale in the oval, clarkston, g76 for £189,000. Marketed by nicol estate agents, clarkston An extended two bedroom. House For Sale The Oval Clarkston.
From www.onthemarket.com
The Oval, Clarkston 4 bed end of terrace house for sale £279,000 House For Sale The Oval Clarkston Shower room with three piece suite completes the upper accommodation. The property is further complemented by gas central heating and double glazing. Boasting two bedrooms, the property offers a comfortable living. Closing date tuesday 22nd october at 12pm an extended two bedroom end terrace villa with driveway and a garage,. A driveway to the front, provides off street parking leading. House For Sale The Oval Clarkston.
From nicolestateagents.co.uk
The Oval, Clarkston Nicol Estate Agents House For Sale The Oval Clarkston The property is further complemented by gas central heating and double glazing. Shower room with three piece suite completes the upper accommodation. An extended two bedroom end terrace villa with driveway and a garage, conveniently located for local amenities transport. Closing date tuesday 22nd october at 12pm an extended two bedroom end terrace villa with driveway and a garage,. A. House For Sale The Oval Clarkston.