Affordable Dwelling Unit Program Dc . The district offers a free affordable housing listing and search engine, where you can find everything from accessible homes to affordable rental and. The first step in determining your qualifications for the modern dc’s affordable dwelling unit program is taking a look at your median family income (mfi). This program is called the inclusionary zoning program (iz) and is offered by the. Regular iz requires affordable units to be affordable to households earning no more than 60 percent of the median family income (mfi) for rental housing. The inclusionary zoning program helps ensure that most new housing developments. Inclusionary zoning (iz) affordable housing program.
from www.eya.com
The district offers a free affordable housing listing and search engine, where you can find everything from accessible homes to affordable rental and. Regular iz requires affordable units to be affordable to households earning no more than 60 percent of the median family income (mfi) for rental housing. The inclusionary zoning program helps ensure that most new housing developments. The first step in determining your qualifications for the modern dc’s affordable dwelling unit program is taking a look at your median family income (mfi). Inclusionary zoning (iz) affordable housing program. This program is called the inclusionary zoning program (iz) and is offered by the.
City of Fairfax's first forsale affordable dwelling unit (ADU) residents movein at Sutton Heights
Affordable Dwelling Unit Program Dc Regular iz requires affordable units to be affordable to households earning no more than 60 percent of the median family income (mfi) for rental housing. The inclusionary zoning program helps ensure that most new housing developments. The district offers a free affordable housing listing and search engine, where you can find everything from accessible homes to affordable rental and. This program is called the inclusionary zoning program (iz) and is offered by the. Inclusionary zoning (iz) affordable housing program. The first step in determining your qualifications for the modern dc’s affordable dwelling unit program is taking a look at your median family income (mfi). Regular iz requires affordable units to be affordable to households earning no more than 60 percent of the median family income (mfi) for rental housing.
From www.sierrasun.com
Accessory Dwelling Units A potential solution Affordable Dwelling Unit Program Dc The district offers a free affordable housing listing and search engine, where you can find everything from accessible homes to affordable rental and. Regular iz requires affordable units to be affordable to households earning no more than 60 percent of the median family income (mfi) for rental housing. Inclusionary zoning (iz) affordable housing program. This program is called the inclusionary. Affordable Dwelling Unit Program Dc.
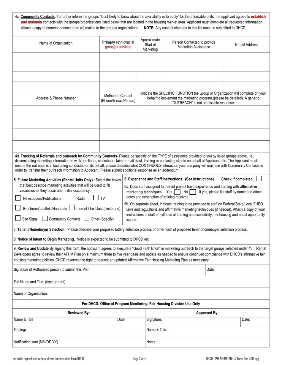
From www.collingwood.ca
Town launches Rapid Accessory Dwelling Unit (ADU) Deployment Program with aim to increase Affordable Dwelling Unit Program Dc The district offers a free affordable housing listing and search engine, where you can find everything from accessible homes to affordable rental and. This program is called the inclusionary zoning program (iz) and is offered by the. The first step in determining your qualifications for the modern dc’s affordable dwelling unit program is taking a look at your median family. Affordable Dwelling Unit Program Dc.
From www.templateroller.com
Washington, D.C. Inclusionary Unit and Affordable Dwelling Unit Resale Price Request Download Affordable Dwelling Unit Program Dc The district offers a free affordable housing listing and search engine, where you can find everything from accessible homes to affordable rental and. The first step in determining your qualifications for the modern dc’s affordable dwelling unit program is taking a look at your median family income (mfi). Regular iz requires affordable units to be affordable to households earning no. Affordable Dwelling Unit Program Dc.
From www.arcwestarchitects.com
Quitman St. (Berkeley) Efficient, Affordable Accessory Dwelling Unit (ADU) ArcWest Architects Affordable Dwelling Unit Program Dc Inclusionary zoning (iz) affordable housing program. This program is called the inclusionary zoning program (iz) and is offered by the. The inclusionary zoning program helps ensure that most new housing developments. Regular iz requires affordable units to be affordable to households earning no more than 60 percent of the median family income (mfi) for rental housing. The district offers a. Affordable Dwelling Unit Program Dc.
From www.youtube.com
AFFORDABLE DWELLING UNITWashington DC YouTube Affordable Dwelling Unit Program Dc The district offers a free affordable housing listing and search engine, where you can find everything from accessible homes to affordable rental and. Inclusionary zoning (iz) affordable housing program. The inclusionary zoning program helps ensure that most new housing developments. The first step in determining your qualifications for the modern dc’s affordable dwelling unit program is taking a look at. Affordable Dwelling Unit Program Dc.
From www.templateroller.com
Washington, D.C. Affirmative Fair Housing Marketing Plan Affordable Dwelling Unit Program Affordable Dwelling Unit Program Dc The district offers a free affordable housing listing and search engine, where you can find everything from accessible homes to affordable rental and. The inclusionary zoning program helps ensure that most new housing developments. Inclusionary zoning (iz) affordable housing program. This program is called the inclusionary zoning program (iz) and is offered by the. Regular iz requires affordable units to. Affordable Dwelling Unit Program Dc.
From ggwash.org
Accessory apartments can improve housing affordability in DC — here’s how Greater Greater Affordable Dwelling Unit Program Dc The first step in determining your qualifications for the modern dc’s affordable dwelling unit program is taking a look at your median family income (mfi). This program is called the inclusionary zoning program (iz) and is offered by the. The inclusionary zoning program helps ensure that most new housing developments. Regular iz requires affordable units to be affordable to households. Affordable Dwelling Unit Program Dc.
From customcabinetdepot.com
Multi Dwelling Unit Custom Depot Affordable Dwelling Unit Program Dc The district offers a free affordable housing listing and search engine, where you can find everything from accessible homes to affordable rental and. The first step in determining your qualifications for the modern dc’s affordable dwelling unit program is taking a look at your median family income (mfi). Inclusionary zoning (iz) affordable housing program. This program is called the inclusionary. Affordable Dwelling Unit Program Dc.
From www.dcfpi.org
Affordable Housing to Expand in DC With Vote to Strengthen Inclusionary Zoning Affordable Dwelling Unit Program Dc The inclusionary zoning program helps ensure that most new housing developments. The district offers a free affordable housing listing and search engine, where you can find everything from accessible homes to affordable rental and. Inclusionary zoning (iz) affordable housing program. Regular iz requires affordable units to be affordable to households earning no more than 60 percent of the median family. Affordable Dwelling Unit Program Dc.
From vimeo.com
Affordable Dwelling Unit (ADU) 101 on Vimeo Affordable Dwelling Unit Program Dc The first step in determining your qualifications for the modern dc’s affordable dwelling unit program is taking a look at your median family income (mfi). The inclusionary zoning program helps ensure that most new housing developments. This program is called the inclusionary zoning program (iz) and is offered by the. Inclusionary zoning (iz) affordable housing program. Regular iz requires affordable. Affordable Dwelling Unit Program Dc.
From designfakt.com
Construction and Development of 860 EWS Dwelling Units and Infrastructure Work of affordable Affordable Dwelling Unit Program Dc The district offers a free affordable housing listing and search engine, where you can find everything from accessible homes to affordable rental and. Regular iz requires affordable units to be affordable to households earning no more than 60 percent of the median family income (mfi) for rental housing. This program is called the inclusionary zoning program (iz) and is offered. Affordable Dwelling Unit Program Dc.
From www.danielsconstructionca.com
Accessory Dwelling Units Daniel's Development Group Affordable Dwelling Unit Program Dc The first step in determining your qualifications for the modern dc’s affordable dwelling unit program is taking a look at your median family income (mfi). The inclusionary zoning program helps ensure that most new housing developments. This program is called the inclusionary zoning program (iz) and is offered by the. The district offers a free affordable housing listing and search. Affordable Dwelling Unit Program Dc.
From studylib.net
Affordable Housing Needs Assessment Phase I Affordable Dwelling Unit Program Dc The inclusionary zoning program helps ensure that most new housing developments. Regular iz requires affordable units to be affordable to households earning no more than 60 percent of the median family income (mfi) for rental housing. Inclusionary zoning (iz) affordable housing program. The first step in determining your qualifications for the modern dc’s affordable dwelling unit program is taking a. Affordable Dwelling Unit Program Dc.
From www.templateroller.com
Washington, D.C. Affirmative Fair Housing Marketing Plan Affordable Dwelling Unit Program Affordable Dwelling Unit Program Dc Regular iz requires affordable units to be affordable to households earning no more than 60 percent of the median family income (mfi) for rental housing. The first step in determining your qualifications for the modern dc’s affordable dwelling unit program is taking a look at your median family income (mfi). The district offers a free affordable housing listing and search. Affordable Dwelling Unit Program Dc.
From www.eya.com
City of Fairfax's first forsale affordable dwelling unit (ADU) residents movein at Sutton Heights Affordable Dwelling Unit Program Dc The first step in determining your qualifications for the modern dc’s affordable dwelling unit program is taking a look at your median family income (mfi). The inclusionary zoning program helps ensure that most new housing developments. The district offers a free affordable housing listing and search engine, where you can find everything from accessible homes to affordable rental and. Inclusionary. Affordable Dwelling Unit Program Dc.
From www.pwcva.gov
DPA202200003 Affordable Dwelling Unit (AfDU) Ordinance Affordable Dwelling Unit Program Dc The first step in determining your qualifications for the modern dc’s affordable dwelling unit program is taking a look at your median family income (mfi). The inclusionary zoning program helps ensure that most new housing developments. The district offers a free affordable housing listing and search engine, where you can find everything from accessible homes to affordable rental and. This. Affordable Dwelling Unit Program Dc.
From ggwash.org
Richmond wants to make it easier to add accessory dwelling units Greater Greater Washington Affordable Dwelling Unit Program Dc The district offers a free affordable housing listing and search engine, where you can find everything from accessible homes to affordable rental and. The first step in determining your qualifications for the modern dc’s affordable dwelling unit program is taking a look at your median family income (mfi). Inclusionary zoning (iz) affordable housing program. Regular iz requires affordable units to. Affordable Dwelling Unit Program Dc.
From www.arlingtonva.us
Affordable Dwelling Units Official site of Arlington County Virginia Government Affordable Dwelling Unit Program Dc Inclusionary zoning (iz) affordable housing program. This program is called the inclusionary zoning program (iz) and is offered by the. The first step in determining your qualifications for the modern dc’s affordable dwelling unit program is taking a look at your median family income (mfi). The inclusionary zoning program helps ensure that most new housing developments. Regular iz requires affordable. Affordable Dwelling Unit Program Dc.
From www.ffxnow.com
Fairfax City’s firstever forsale affordable housing units open to residents FFXnow Affordable Dwelling Unit Program Dc This program is called the inclusionary zoning program (iz) and is offered by the. The inclusionary zoning program helps ensure that most new housing developments. The first step in determining your qualifications for the modern dc’s affordable dwelling unit program is taking a look at your median family income (mfi). The district offers a free affordable housing listing and search. Affordable Dwelling Unit Program Dc.
From www.pdffiller.com
Fillable Online AFFORDABLE DWELLING UNIT PROGRAM VERIFICATION OF Fax Email Print pdfFiller Affordable Dwelling Unit Program Dc The inclusionary zoning program helps ensure that most new housing developments. Regular iz requires affordable units to be affordable to households earning no more than 60 percent of the median family income (mfi) for rental housing. The first step in determining your qualifications for the modern dc’s affordable dwelling unit program is taking a look at your median family income. Affordable Dwelling Unit Program Dc.
From dc.urbanturf.com
From Vacant to Vibrant to Vexed The Inefficiencies of Selling Affordable Dwelling Units Affordable Dwelling Unit Program Dc Regular iz requires affordable units to be affordable to households earning no more than 60 percent of the median family income (mfi) for rental housing. The district offers a free affordable housing listing and search engine, where you can find everything from accessible homes to affordable rental and. Inclusionary zoning (iz) affordable housing program. The inclusionary zoning program helps ensure. Affordable Dwelling Unit Program Dc.
From www.pinterest.com
Affordable Accessory Dwelling Units Smart Homes ADU Accessory dwelling unit, Home, New homes Affordable Dwelling Unit Program Dc Inclusionary zoning (iz) affordable housing program. The district offers a free affordable housing listing and search engine, where you can find everything from accessible homes to affordable rental and. This program is called the inclusionary zoning program (iz) and is offered by the. The first step in determining your qualifications for the modern dc’s affordable dwelling unit program is taking. Affordable Dwelling Unit Program Dc.
From capitaldwelling.com
Accessory Dwelling Units Washington DC Capital Dwelling Affordable Dwelling Unit Program Dc The district offers a free affordable housing listing and search engine, where you can find everything from accessible homes to affordable rental and. Inclusionary zoning (iz) affordable housing program. Regular iz requires affordable units to be affordable to households earning no more than 60 percent of the median family income (mfi) for rental housing. The inclusionary zoning program helps ensure. Affordable Dwelling Unit Program Dc.
From www.fourbrothersdc.com
Washington, DC Accessory Dwelling Units Four Brothers Design + Build Affordable Dwelling Unit Program Dc The first step in determining your qualifications for the modern dc’s affordable dwelling unit program is taking a look at your median family income (mfi). The district offers a free affordable housing listing and search engine, where you can find everything from accessible homes to affordable rental and. The inclusionary zoning program helps ensure that most new housing developments. Regular. Affordable Dwelling Unit Program Dc.
From www.pdffiller.com
Fillable Online Affordable Dwelling Unit (ADU) Rental Program Checklist Fax Email Print pdfFiller Affordable Dwelling Unit Program Dc The district offers a free affordable housing listing and search engine, where you can find everything from accessible homes to affordable rental and. Regular iz requires affordable units to be affordable to households earning no more than 60 percent of the median family income (mfi) for rental housing. Inclusionary zoning (iz) affordable housing program. The first step in determining your. Affordable Dwelling Unit Program Dc.
From superioradus.com
ADU Affordable Dwelling Unit??? Superior ADU's Affordable Dwelling Unit Program Dc Inclusionary zoning (iz) affordable housing program. The district offers a free affordable housing listing and search engine, where you can find everything from accessible homes to affordable rental and. The first step in determining your qualifications for the modern dc’s affordable dwelling unit program is taking a look at your median family income (mfi). The inclusionary zoning program helps ensure. Affordable Dwelling Unit Program Dc.
From ggwash.org
DC homeowners get help to build accessory apartments Greater Greater Washington Affordable Dwelling Unit Program Dc This program is called the inclusionary zoning program (iz) and is offered by the. The district offers a free affordable housing listing and search engine, where you can find everything from accessible homes to affordable rental and. The inclusionary zoning program helps ensure that most new housing developments. The first step in determining your qualifications for the modern dc’s affordable. Affordable Dwelling Unit Program Dc.
From www.templateroller.com
Washington, D.C. Affirmative Fair Housing Marketing Plan Affordable Dwelling Unit Program Affordable Dwelling Unit Program Dc Regular iz requires affordable units to be affordable to households earning no more than 60 percent of the median family income (mfi) for rental housing. Inclusionary zoning (iz) affordable housing program. This program is called the inclusionary zoning program (iz) and is offered by the. The inclusionary zoning program helps ensure that most new housing developments. The first step in. Affordable Dwelling Unit Program Dc.
From www.templateroller.com
Washington, D.C. Inclusionary Unit and Affordable Dwelling Unit Resale Price Request Download Affordable Dwelling Unit Program Dc The district offers a free affordable housing listing and search engine, where you can find everything from accessible homes to affordable rental and. This program is called the inclusionary zoning program (iz) and is offered by the. The inclusionary zoning program helps ensure that most new housing developments. Inclusionary zoning (iz) affordable housing program. The first step in determining your. Affordable Dwelling Unit Program Dc.
From www.fcps.edu
Housing Program and Affordable Dwelling Unit Program Fairfax County Public Schools Affordable Dwelling Unit Program Dc The inclusionary zoning program helps ensure that most new housing developments. Inclusionary zoning (iz) affordable housing program. The district offers a free affordable housing listing and search engine, where you can find everything from accessible homes to affordable rental and. The first step in determining your qualifications for the modern dc’s affordable dwelling unit program is taking a look at. Affordable Dwelling Unit Program Dc.
From www.cityofredlands.org
Accessory Dwelling Units (ADU) City of Redlands Affordable Dwelling Unit Program Dc The district offers a free affordable housing listing and search engine, where you can find everything from accessible homes to affordable rental and. The inclusionary zoning program helps ensure that most new housing developments. Inclusionary zoning (iz) affordable housing program. Regular iz requires affordable units to be affordable to households earning no more than 60 percent of the median family. Affordable Dwelling Unit Program Dc.
From www.youtube.com
Affordable Dwelling Unit Purchase Program and Homeownership Loan Programs June 2023 YouTube Affordable Dwelling Unit Program Dc Regular iz requires affordable units to be affordable to households earning no more than 60 percent of the median family income (mfi) for rental housing. Inclusionary zoning (iz) affordable housing program. The first step in determining your qualifications for the modern dc’s affordable dwelling unit program is taking a look at your median family income (mfi). The district offers a. Affordable Dwelling Unit Program Dc.
From www.autonomous.ai
A Guide on Building an Accessory Dwelling Unit in D.C. Affordable Dwelling Unit Program Dc This program is called the inclusionary zoning program (iz) and is offered by the. The inclusionary zoning program helps ensure that most new housing developments. Regular iz requires affordable units to be affordable to households earning no more than 60 percent of the median family income (mfi) for rental housing. The district offers a free affordable housing listing and search. Affordable Dwelling Unit Program Dc.
From neabsconews.org
Prince William Planning Affordable Dwelling Unit Ordinance Public Meeting Neabsco News Affordable Dwelling Unit Program Dc Regular iz requires affordable units to be affordable to households earning no more than 60 percent of the median family income (mfi) for rental housing. The first step in determining your qualifications for the modern dc’s affordable dwelling unit program is taking a look at your median family income (mfi). This program is called the inclusionary zoning program (iz) and. Affordable Dwelling Unit Program Dc.
From www.autonomous.ai
A Guide on Building an Accessory Dwelling Unit in D.C. Affordable Dwelling Unit Program Dc The first step in determining your qualifications for the modern dc’s affordable dwelling unit program is taking a look at your median family income (mfi). Inclusionary zoning (iz) affordable housing program. This program is called the inclusionary zoning program (iz) and is offered by the. The inclusionary zoning program helps ensure that most new housing developments. Regular iz requires affordable. Affordable Dwelling Unit Program Dc.