Napoleon Fireplace Specifications . Napoleon’s vector ™ 45 is a modern linear gas fireplace that offers a sophisticated, “widescreen” fire element in any room of your home. The napoleon ascent ™ 33 electric fireplace imitates the look of a traditional masonry fireplace but with all the convenience of simply plugging. Napoleon has an incredible range of designer. The following installation requirements must be observed when installing solid fuel burning inserts into factory built fireplaces: Ascent™ 42 direct vent gas fireplace product information provided is not complete and is subject to change without notice. The ascent™ 30 gas fireplace is a traditional style gas fireplace featuring our. A napoleon fireplace is uniquely designed to brighten the vibe of any room in your house. Ascent™ 30 direct vent fireplace, natural gas, electronic ignition. Gas fireplaces come in three types:
from fireplacepro.com
Ascent™ 30 direct vent fireplace, natural gas, electronic ignition. Napoleon’s vector ™ 45 is a modern linear gas fireplace that offers a sophisticated, “widescreen” fire element in any room of your home. Gas fireplaces come in three types: Ascent™ 42 direct vent gas fireplace product information provided is not complete and is subject to change without notice. The napoleon ascent ™ 33 electric fireplace imitates the look of a traditional masonry fireplace but with all the convenience of simply plugging. The following installation requirements must be observed when installing solid fuel burning inserts into factory built fireplaces: Napoleon has an incredible range of designer. The ascent™ 30 gas fireplace is a traditional style gas fireplace featuring our. A napoleon fireplace is uniquely designed to brighten the vibe of any room in your house.
Napoleon High County 8000 Napoleon NZ8000 Wood Fireplace Fireplacepro
Napoleon Fireplace Specifications The napoleon ascent ™ 33 electric fireplace imitates the look of a traditional masonry fireplace but with all the convenience of simply plugging. Napoleon’s vector ™ 45 is a modern linear gas fireplace that offers a sophisticated, “widescreen” fire element in any room of your home. Gas fireplaces come in three types: The ascent™ 30 gas fireplace is a traditional style gas fireplace featuring our. Napoleon has an incredible range of designer. Ascent™ 42 direct vent gas fireplace product information provided is not complete and is subject to change without notice. Ascent™ 30 direct vent fireplace, natural gas, electronic ignition. The following installation requirements must be observed when installing solid fuel burning inserts into factory built fireplaces: The napoleon ascent ™ 33 electric fireplace imitates the look of a traditional masonry fireplace but with all the convenience of simply plugging. A napoleon fireplace is uniquely designed to brighten the vibe of any room in your house.
From www.northcountryfire.com
Napoleon AlluraVision 50 inch Slimline Wall Mounted NEFL50CHS North Napoleon Fireplace Specifications The following installation requirements must be observed when installing solid fuel burning inserts into factory built fireplaces: The napoleon ascent ™ 33 electric fireplace imitates the look of a traditional masonry fireplace but with all the convenience of simply plugging. Napoleon’s vector ™ 45 is a modern linear gas fireplace that offers a sophisticated, “widescreen” fire element in any room. Napoleon Fireplace Specifications.
From manualzz.com
Napoleon Ascent GX36NTR Direct Vent Gas Fireplace Specifications Manualzz Napoleon Fireplace Specifications Ascent™ 30 direct vent fireplace, natural gas, electronic ignition. The napoleon ascent ™ 33 electric fireplace imitates the look of a traditional masonry fireplace but with all the convenience of simply plugging. The ascent™ 30 gas fireplace is a traditional style gas fireplace featuring our. Ascent™ 42 direct vent gas fireplace product information provided is not complete and is subject. Napoleon Fireplace Specifications.
From fireplacepro.com
Napoleon High Country 8000 Wood Fireplace Napoleon Model NZ8000 Napoleon Fireplace Specifications Ascent™ 42 direct vent gas fireplace product information provided is not complete and is subject to change without notice. Ascent™ 30 direct vent fireplace, natural gas, electronic ignition. Napoleon’s vector ™ 45 is a modern linear gas fireplace that offers a sophisticated, “widescreen” fire element in any room of your home. The napoleon ascent ™ 33 electric fireplace imitates the. Napoleon Fireplace Specifications.
From woodstoves.net
Napoleon LV50 Vector SeeThru Direct Vent Gas Fireplace Napoleon Fireplace Specifications Gas fireplaces come in three types: The ascent™ 30 gas fireplace is a traditional style gas fireplace featuring our. Ascent™ 30 direct vent fireplace, natural gas, electronic ignition. Napoleon’s vector ™ 45 is a modern linear gas fireplace that offers a sophisticated, “widescreen” fire element in any room of your home. The following installation requirements must be observed when installing. Napoleon Fireplace Specifications.
From usfireplacestore.com
NAPOLEON BL42 Ascent Linear 42" Direct Vent Gas Fireplace US Napoleon Fireplace Specifications Napoleon has an incredible range of designer. Gas fireplaces come in three types: A napoleon fireplace is uniquely designed to brighten the vibe of any room in your house. Ascent™ 42 direct vent gas fireplace product information provided is not complete and is subject to change without notice. The following installation requirements must be observed when installing solid fuel burning. Napoleon Fireplace Specifications.
From fireplacepro.com
Napoleon Trivista Primis 3Sided Electric Fireplace FireplacePro Napoleon Fireplace Specifications The napoleon ascent ™ 33 electric fireplace imitates the look of a traditional masonry fireplace but with all the convenience of simply plugging. Gas fireplaces come in three types: Ascent™ 30 direct vent fireplace, natural gas, electronic ignition. A napoleon fireplace is uniquely designed to brighten the vibe of any room in your house. The following installation requirements must be. Napoleon Fireplace Specifications.
From fireplacepro.com
Napoleon Ascent Linear BL56 Direct Vent Gas Fireplace Napoleon Fireplace Specifications Napoleon has an incredible range of designer. Ascent™ 42 direct vent gas fireplace product information provided is not complete and is subject to change without notice. The napoleon ascent ™ 33 electric fireplace imitates the look of a traditional masonry fireplace but with all the convenience of simply plugging. The following installation requirements must be observed when installing solid fuel. Napoleon Fireplace Specifications.
From www.andersonfireplace.com
Napoleon BL46 Anderson Fireplace Anderson Fireplace Napoleon Fireplace Specifications Napoleon has an incredible range of designer. The following installation requirements must be observed when installing solid fuel burning inserts into factory built fireplaces: Napoleon’s vector ™ 45 is a modern linear gas fireplace that offers a sophisticated, “widescreen” fire element in any room of your home. Gas fireplaces come in three types: The napoleon ascent ™ 33 electric fireplace. Napoleon Fireplace Specifications.
From fireplacepro.com
Napoleon Eco Pellet Insert Napoleon NPI45 Pellet Fireplace Insert Napoleon Fireplace Specifications The following installation requirements must be observed when installing solid fuel burning inserts into factory built fireplaces: Ascent™ 30 direct vent fireplace, natural gas, electronic ignition. Gas fireplaces come in three types: The napoleon ascent ™ 33 electric fireplace imitates the look of a traditional masonry fireplace but with all the convenience of simply plugging. Napoleon has an incredible range. Napoleon Fireplace Specifications.
From fireplacepro.com
Napoleon S25i Wood Fireplace Insert Wood Firepalce Inserts Napoleon Fireplace Specifications Napoleon has an incredible range of designer. The following installation requirements must be observed when installing solid fuel burning inserts into factory built fireplaces: The napoleon ascent ™ 33 electric fireplace imitates the look of a traditional masonry fireplace but with all the convenience of simply plugging. The ascent™ 30 gas fireplace is a traditional style gas fireplace featuring our.. Napoleon Fireplace Specifications.
From woodstovepro.com
Napoleon High Country NZ8000 Wood burning Fireplace NZ8000 Napoleon Fireplace Specifications Ascent™ 42 direct vent gas fireplace product information provided is not complete and is subject to change without notice. Napoleon has an incredible range of designer. Ascent™ 30 direct vent fireplace, natural gas, electronic ignition. The ascent™ 30 gas fireplace is a traditional style gas fireplace featuring our. A napoleon fireplace is uniquely designed to brighten the vibe of any. Napoleon Fireplace Specifications.
From woodstoves.net
Napoleon Luxuria Series 62 Direct Vent Gas Fireplace at Obadiah's Napoleon Fireplace Specifications Napoleon has an incredible range of designer. Gas fireplaces come in three types: Napoleon’s vector ™ 45 is a modern linear gas fireplace that offers a sophisticated, “widescreen” fire element in any room of your home. Ascent™ 42 direct vent gas fireplace product information provided is not complete and is subject to change without notice. Ascent™ 30 direct vent fireplace,. Napoleon Fireplace Specifications.
From fireplacepro.com
Napoleon Plazmafire 31 Vent Free Gas Fireplace Napoleon Model WHVF31 Napoleon Fireplace Specifications Ascent™ 42 direct vent gas fireplace product information provided is not complete and is subject to change without notice. Gas fireplaces come in three types: A napoleon fireplace is uniquely designed to brighten the vibe of any room in your house. Napoleon has an incredible range of designer. The following installation requirements must be observed when installing solid fuel burning. Napoleon Fireplace Specifications.
From fireplacepro.com
Napoleon High Country 3000 ECO Wood Fireplace Napoleon Hearth NZ3000H1 Napoleon Fireplace Specifications Gas fireplaces come in three types: The napoleon ascent ™ 33 electric fireplace imitates the look of a traditional masonry fireplace but with all the convenience of simply plugging. Napoleon’s vector ™ 45 is a modern linear gas fireplace that offers a sophisticated, “widescreen” fire element in any room of your home. The following installation requirements must be observed when. Napoleon Fireplace Specifications.
From poulsenstovesandfireplaces.com
Napoleon Fireplace Stoves & Fireplaces Leader Poulsen Ace Hardware Napoleon Fireplace Specifications The ascent™ 30 gas fireplace is a traditional style gas fireplace featuring our. Gas fireplaces come in three types: Ascent™ 42 direct vent gas fireplace product information provided is not complete and is subject to change without notice. Ascent™ 30 direct vent fireplace, natural gas, electronic ignition. Napoleon’s vector ™ 45 is a modern linear gas fireplace that offers a. Napoleon Fireplace Specifications.
From woodstovepro.com
Napoleon LV50 Vector Linear Direct Vent Gas Fireplace LV50N1 Napoleon Fireplace Specifications Gas fireplaces come in three types: The napoleon ascent ™ 33 electric fireplace imitates the look of a traditional masonry fireplace but with all the convenience of simply plugging. The following installation requirements must be observed when installing solid fuel burning inserts into factory built fireplaces: Napoleon’s vector ™ 45 is a modern linear gas fireplace that offers a sophisticated,. Napoleon Fireplace Specifications.
From blazingembers.com
Napoleon High Country 3000 Wood Burning Fireplace, SKUNZ3000H1 Napoleon Fireplace Specifications A napoleon fireplace is uniquely designed to brighten the vibe of any room in your house. The following installation requirements must be observed when installing solid fuel burning inserts into factory built fireplaces: Ascent™ 30 direct vent fireplace, natural gas, electronic ignition. Napoleon’s vector ™ 45 is a modern linear gas fireplace that offers a sophisticated, “widescreen” fire element in. Napoleon Fireplace Specifications.
From woodstovepro.com
Napoleon High Country 3000 Wood burning Fireplace NZ3000H Napoleon Fireplace Specifications Napoleon’s vector ™ 45 is a modern linear gas fireplace that offers a sophisticated, “widescreen” fire element in any room of your home. Ascent™ 42 direct vent gas fireplace product information provided is not complete and is subject to change without notice. Napoleon has an incredible range of designer. Ascent™ 30 direct vent fireplace, natural gas, electronic ignition. A napoleon. Napoleon Fireplace Specifications.
From www.napoleon.com
Ascent BX 36 BX36NTRE Napoleon Napoleon Fireplace Specifications Gas fireplaces come in three types: Ascent™ 42 direct vent gas fireplace product information provided is not complete and is subject to change without notice. The following installation requirements must be observed when installing solid fuel burning inserts into factory built fireplaces: Ascent™ 30 direct vent fireplace, natural gas, electronic ignition. The napoleon ascent ™ 33 electric fireplace imitates the. Napoleon Fireplace Specifications.
From woodstovepro.com
Napoleon High Country NZ6000 Wood burning Fireplace NZ60001 Napoleon Fireplace Specifications The following installation requirements must be observed when installing solid fuel burning inserts into factory built fireplaces: Gas fireplaces come in three types: Ascent™ 30 direct vent fireplace, natural gas, electronic ignition. The ascent™ 30 gas fireplace is a traditional style gas fireplace featuring our. Napoleon’s vector ™ 45 is a modern linear gas fireplace that offers a sophisticated, “widescreen”. Napoleon Fireplace Specifications.
From wiringpartjessica77.z19.web.core.windows.net
Napoleon Gas Fireplace Manual Napoleon Fireplace Specifications Napoleon has an incredible range of designer. Gas fireplaces come in three types: The following installation requirements must be observed when installing solid fuel burning inserts into factory built fireplaces: The ascent™ 30 gas fireplace is a traditional style gas fireplace featuring our. Ascent™ 42 direct vent gas fireplace product information provided is not complete and is subject to change. Napoleon Fireplace Specifications.
From blazingembers.com
Napoleon High Country 6000 Wood Fireplace, SKUNZ60001 Embers Living Napoleon Fireplace Specifications The napoleon ascent ™ 33 electric fireplace imitates the look of a traditional masonry fireplace but with all the convenience of simply plugging. The ascent™ 30 gas fireplace is a traditional style gas fireplace featuring our. A napoleon fireplace is uniquely designed to brighten the vibe of any room in your house. Napoleon has an incredible range of designer. Napoleon’s. Napoleon Fireplace Specifications.
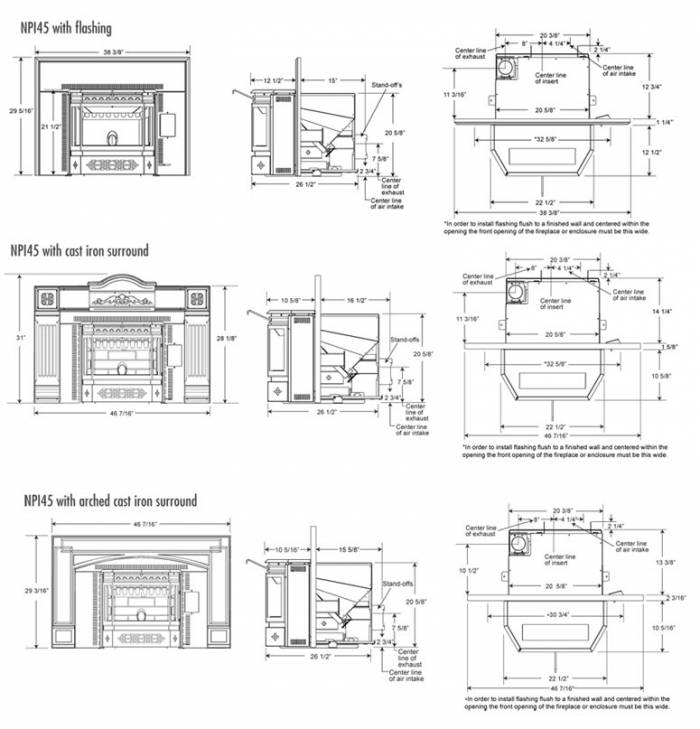
From fireplacepro.com
Napoleon Pellet Insert NPI45 Specifications Fireplacepro Napoleon Fireplace Specifications The napoleon ascent ™ 33 electric fireplace imitates the look of a traditional masonry fireplace but with all the convenience of simply plugging. The ascent™ 30 gas fireplace is a traditional style gas fireplace featuring our. Gas fireplaces come in three types: A napoleon fireplace is uniquely designed to brighten the vibe of any room in your house. Ascent™ 42. Napoleon Fireplace Specifications.
From oceanstoneli.com
Napoleon Direct Vent Gas Fireplaces HDX52 Starfire 52 Ocean Stone Napoleon Fireplace Specifications The napoleon ascent ™ 33 electric fireplace imitates the look of a traditional masonry fireplace but with all the convenience of simply plugging. The following installation requirements must be observed when installing solid fuel burning inserts into factory built fireplaces: Ascent™ 42 direct vent gas fireplace product information provided is not complete and is subject to change without notice. Napoleon. Napoleon Fireplace Specifications.
From www.northcountryfire.com
Napoleon Vector 62 Linear DirectVent Gas Fireplace LV62N — North Napoleon Fireplace Specifications Ascent™ 42 direct vent gas fireplace product information provided is not complete and is subject to change without notice. Napoleon has an incredible range of designer. A napoleon fireplace is uniquely designed to brighten the vibe of any room in your house. Napoleon’s vector ™ 45 is a modern linear gas fireplace that offers a sophisticated, “widescreen” fire element in. Napoleon Fireplace Specifications.
From www.discountstoves.net
Napoleon High Country NZ8000 Wood Fireplace at Obadiah's Napoleon Fireplace Specifications Ascent™ 30 direct vent fireplace, natural gas, electronic ignition. Gas fireplaces come in three types: A napoleon fireplace is uniquely designed to brighten the vibe of any room in your house. Napoleon’s vector ™ 45 is a modern linear gas fireplace that offers a sophisticated, “widescreen” fire element in any room of your home. The following installation requirements must be. Napoleon Fireplace Specifications.
From www.bbqguys.com
Napoleon Slimline 100Inch Wall Mount Electric Fireplace EFL100 (No Napoleon Fireplace Specifications Napoleon’s vector ™ 45 is a modern linear gas fireplace that offers a sophisticated, “widescreen” fire element in any room of your home. Ascent™ 30 direct vent fireplace, natural gas, electronic ignition. Ascent™ 42 direct vent gas fireplace product information provided is not complete and is subject to change without notice. The following installation requirements must be observed when installing. Napoleon Fireplace Specifications.
From oceanstoneli.com
Napoleon Acsent BL36 Gas Fireplace Ocean Stone & Fireplaces Napoleon Fireplace Specifications Napoleon’s vector ™ 45 is a modern linear gas fireplace that offers a sophisticated, “widescreen” fire element in any room of your home. The ascent™ 30 gas fireplace is a traditional style gas fireplace featuring our. The following installation requirements must be observed when installing solid fuel burning inserts into factory built fireplaces: Gas fireplaces come in three types: A. Napoleon Fireplace Specifications.
From manualzz.com
Napoleon Ascent 42 DV Gas Fireplace Specifications Manualzz Napoleon Fireplace Specifications Napoleon’s vector ™ 45 is a modern linear gas fireplace that offers a sophisticated, “widescreen” fire element in any room of your home. Gas fireplaces come in three types: The following installation requirements must be observed when installing solid fuel burning inserts into factory built fireplaces: Napoleon has an incredible range of designer. The napoleon ascent ™ 33 electric fireplace. Napoleon Fireplace Specifications.
From fireplacepro.com
Napoleon High County 8000 Napoleon NZ8000 Wood Fireplace Fireplacepro Napoleon Fireplace Specifications Gas fireplaces come in three types: The napoleon ascent ™ 33 electric fireplace imitates the look of a traditional masonry fireplace but with all the convenience of simply plugging. The following installation requirements must be observed when installing solid fuel burning inserts into factory built fireplaces: Napoleon’s vector ™ 45 is a modern linear gas fireplace that offers a sophisticated,. Napoleon Fireplace Specifications.
From fireplacepro.com
Napoleon EPI3 Wood Fireplace Insert Fireplacepro Napoleon Fireplace Specifications Ascent™ 30 direct vent fireplace, natural gas, electronic ignition. The ascent™ 30 gas fireplace is a traditional style gas fireplace featuring our. Napoleon has an incredible range of designer. Ascent™ 42 direct vent gas fireplace product information provided is not complete and is subject to change without notice. The following installation requirements must be observed when installing solid fuel burning. Napoleon Fireplace Specifications.
From comfyhearth.com
Napoleon GSS42CFN Riverside 42" Outdoor Gas Fireplace Napoleon Fireplace Specifications The following installation requirements must be observed when installing solid fuel burning inserts into factory built fireplaces: Napoleon’s vector ™ 45 is a modern linear gas fireplace that offers a sophisticated, “widescreen” fire element in any room of your home. Ascent™ 42 direct vent gas fireplace product information provided is not complete and is subject to change without notice. The. Napoleon Fireplace Specifications.
From woodstoves.net
Napoleon Ascent GX36NTR Direct Vent Gas Fireplace by Obadiah's Woodstoves Napoleon Fireplace Specifications Ascent™ 42 direct vent gas fireplace product information provided is not complete and is subject to change without notice. Gas fireplaces come in three types: The ascent™ 30 gas fireplace is a traditional style gas fireplace featuring our. Napoleon has an incredible range of designer. Ascent™ 30 direct vent fireplace, natural gas, electronic ignition. The following installation requirements must be. Napoleon Fireplace Specifications.
From fireplacepro.com
Napoleon Element 36 Electric Fireplace Napoleon Fireplace Specifications Napoleon has an incredible range of designer. Gas fireplaces come in three types: The napoleon ascent ™ 33 electric fireplace imitates the look of a traditional masonry fireplace but with all the convenience of simply plugging. Ascent™ 30 direct vent fireplace, natural gas, electronic ignition. The following installation requirements must be observed when installing solid fuel burning inserts into factory. Napoleon Fireplace Specifications.
From www.woodlanddirect.com
Napoleon GVF36 Grandville Ventless Gas Fireplace Woodland Direct Napoleon Fireplace Specifications The following installation requirements must be observed when installing solid fuel burning inserts into factory built fireplaces: Ascent™ 42 direct vent gas fireplace product information provided is not complete and is subject to change without notice. Gas fireplaces come in three types: Ascent™ 30 direct vent fireplace, natural gas, electronic ignition. Napoleon’s vector ™ 45 is a modern linear gas. Napoleon Fireplace Specifications.