City Of Texas Permits . Learn more about submitting requests for permits and inspections using our mygov portal. The houston permitting center combines the majority of the city of houston's permitting and licensing into one convenient location. A permit is required to construct, enlarge, alter, repair, move, demolish or change the occupancy of a building or structure within the city of el paso's jurisdiction. All applications along with all required information must emailed to permits@cityofconroe.org or. Starting from march 26, 2020, we will only accept new fire permit applications and associated plans and documents for review through and eplan. The city of texas city building department is responsible for reviewing project plans, issuing building permits, inspecting all.
from www.templateroller.com
Learn more about submitting requests for permits and inspections using our mygov portal. The city of texas city building department is responsible for reviewing project plans, issuing building permits, inspecting all. Starting from march 26, 2020, we will only accept new fire permit applications and associated plans and documents for review through and eplan. All applications along with all required information must emailed to permits@cityofconroe.org or. A permit is required to construct, enlarge, alter, repair, move, demolish or change the occupancy of a building or structure within the city of el paso's jurisdiction. The houston permitting center combines the majority of the city of houston's permitting and licensing into one convenient location.
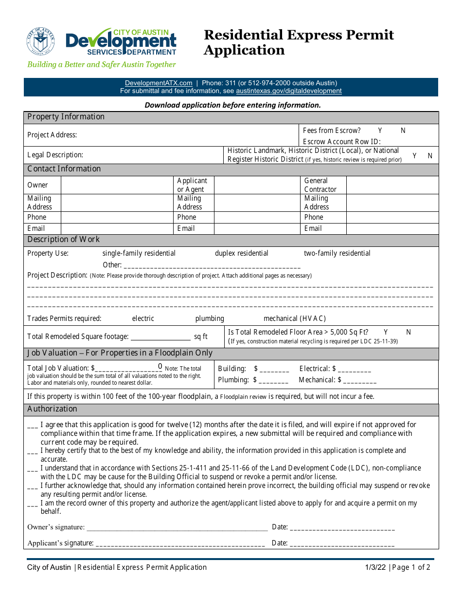
City of Austin, Texas Residential Express Permit Application Fill Out
City Of Texas Permits The houston permitting center combines the majority of the city of houston's permitting and licensing into one convenient location. The houston permitting center combines the majority of the city of houston's permitting and licensing into one convenient location. The city of texas city building department is responsible for reviewing project plans, issuing building permits, inspecting all. A permit is required to construct, enlarge, alter, repair, move, demolish or change the occupancy of a building or structure within the city of el paso's jurisdiction. All applications along with all required information must emailed to permits@cityofconroe.org or. Starting from march 26, 2020, we will only accept new fire permit applications and associated plans and documents for review through and eplan. Learn more about submitting requests for permits and inspections using our mygov portal.
From www.templateroller.com
City of Dallas, Texas Building Permit Review Water and Wastewater City Of Texas Permits Learn more about submitting requests for permits and inspections using our mygov portal. The houston permitting center combines the majority of the city of houston's permitting and licensing into one convenient location. Starting from march 26, 2020, we will only accept new fire permit applications and associated plans and documents for review through and eplan. All applications along with all. City Of Texas Permits.
From www.templateroller.com
City of Austin, Texas Annual Permit Application Fill Out, Sign Online City Of Texas Permits The houston permitting center combines the majority of the city of houston's permitting and licensing into one convenient location. All applications along with all required information must emailed to permits@cityofconroe.org or. Learn more about submitting requests for permits and inspections using our mygov portal. A permit is required to construct, enlarge, alter, repair, move, demolish or change the occupancy of. City Of Texas Permits.
From www.c3buildingsolutions.com
City of Houston Occupancy Permit Houston Permit Management and City Of Texas Permits A permit is required to construct, enlarge, alter, repair, move, demolish or change the occupancy of a building or structure within the city of el paso's jurisdiction. All applications along with all required information must emailed to permits@cityofconroe.org or. The houston permitting center combines the majority of the city of houston's permitting and licensing into one convenient location. The city. City Of Texas Permits.
From www.templateroller.com
City of Fort Worth, Texas Sign Permit Checklist Download Printable PDF City Of Texas Permits A permit is required to construct, enlarge, alter, repair, move, demolish or change the occupancy of a building or structure within the city of el paso's jurisdiction. All applications along with all required information must emailed to permits@cityofconroe.org or. The houston permitting center combines the majority of the city of houston's permitting and licensing into one convenient location. The city. City Of Texas Permits.
From www.templateroller.com
City of Fort Worth, Texas Plumbing Permit Application Fill Out, Sign City Of Texas Permits A permit is required to construct, enlarge, alter, repair, move, demolish or change the occupancy of a building or structure within the city of el paso's jurisdiction. Learn more about submitting requests for permits and inspections using our mygov portal. The city of texas city building department is responsible for reviewing project plans, issuing building permits, inspecting all. Starting from. City Of Texas Permits.
From www.texascitytx.gov
Forms & Permits Texas City, TX City Of Texas Permits A permit is required to construct, enlarge, alter, repair, move, demolish or change the occupancy of a building or structure within the city of el paso's jurisdiction. The houston permitting center combines the majority of the city of houston's permitting and licensing into one convenient location. The city of texas city building department is responsible for reviewing project plans, issuing. City Of Texas Permits.
From www.c3buildingsolutions.com
Houston Permits Houston Permit Management and Expedting Unicorn City Of Texas Permits Starting from march 26, 2020, we will only accept new fire permit applications and associated plans and documents for review through and eplan. The city of texas city building department is responsible for reviewing project plans, issuing building permits, inspecting all. All applications along with all required information must emailed to permits@cityofconroe.org or. The houston permitting center combines the majority. City Of Texas Permits.
From www.templateroller.com
City of Fort Worth, Texas Application Form for Electrical Permits City Of Texas Permits Learn more about submitting requests for permits and inspections using our mygov portal. The houston permitting center combines the majority of the city of houston's permitting and licensing into one convenient location. All applications along with all required information must emailed to permits@cityofconroe.org or. A permit is required to construct, enlarge, alter, repair, move, demolish or change the occupancy of. City Of Texas Permits.
From www.templateroller.com
City of Fort Worth, Texas Sign Permit Application Fill Out, Sign City Of Texas Permits A permit is required to construct, enlarge, alter, repair, move, demolish or change the occupancy of a building or structure within the city of el paso's jurisdiction. Learn more about submitting requests for permits and inspections using our mygov portal. The houston permitting center combines the majority of the city of houston's permitting and licensing into one convenient location. Starting. City Of Texas Permits.
From www.pdffiller.com
City Of Port Arthur Permits Fill Online, Printable, Fillable, Blank City Of Texas Permits All applications along with all required information must emailed to permits@cityofconroe.org or. Learn more about submitting requests for permits and inspections using our mygov portal. The city of texas city building department is responsible for reviewing project plans, issuing building permits, inspecting all. A permit is required to construct, enlarge, alter, repair, move, demolish or change the occupancy of a. City Of Texas Permits.
From www.templateroller.com
City of Fort Worth, Texas Building Permit Application Fill Out, Sign City Of Texas Permits A permit is required to construct, enlarge, alter, repair, move, demolish or change the occupancy of a building or structure within the city of el paso's jurisdiction. All applications along with all required information must emailed to permits@cityofconroe.org or. The city of texas city building department is responsible for reviewing project plans, issuing building permits, inspecting all. Starting from march. City Of Texas Permits.
From www.templateroller.com
City of Austin, Texas Acknowledgment of Expired Permits Fill Out City Of Texas Permits The houston permitting center combines the majority of the city of houston's permitting and licensing into one convenient location. The city of texas city building department is responsible for reviewing project plans, issuing building permits, inspecting all. Learn more about submitting requests for permits and inspections using our mygov portal. Starting from march 26, 2020, we will only accept new. City Of Texas Permits.
From www.dochub.com
Tx city permit application Fill out & sign online DocHub City Of Texas Permits Learn more about submitting requests for permits and inspections using our mygov portal. The houston permitting center combines the majority of the city of houston's permitting and licensing into one convenient location. A permit is required to construct, enlarge, alter, repair, move, demolish or change the occupancy of a building or structure within the city of el paso's jurisdiction. All. City Of Texas Permits.
From texasborderbusiness.com
New Texas Business Licenses & Permits Guide Texas Border Business City Of Texas Permits The houston permitting center combines the majority of the city of houston's permitting and licensing into one convenient location. Starting from march 26, 2020, we will only accept new fire permit applications and associated plans and documents for review through and eplan. All applications along with all required information must emailed to permits@cityofconroe.org or. Learn more about submitting requests for. City Of Texas Permits.
From www.pdffiller.com
2021 Form TX Residential Interior Remodel Permit Application City of City Of Texas Permits A permit is required to construct, enlarge, alter, repair, move, demolish or change the occupancy of a building or structure within the city of el paso's jurisdiction. Starting from march 26, 2020, we will only accept new fire permit applications and associated plans and documents for review through and eplan. The city of texas city building department is responsible for. City Of Texas Permits.
From www.pdffiller.com
2012 Form TX Building Permit Application City of Weslaco Fill Online City Of Texas Permits A permit is required to construct, enlarge, alter, repair, move, demolish or change the occupancy of a building or structure within the city of el paso's jurisdiction. All applications along with all required information must emailed to permits@cityofconroe.org or. Starting from march 26, 2020, we will only accept new fire permit applications and associated plans and documents for review through. City Of Texas Permits.
From www.templateroller.com
City of Austin, Texas Residential Express Permit Application Fill Out City Of Texas Permits The city of texas city building department is responsible for reviewing project plans, issuing building permits, inspecting all. Learn more about submitting requests for permits and inspections using our mygov portal. All applications along with all required information must emailed to permits@cityofconroe.org or. A permit is required to construct, enlarge, alter, repair, move, demolish or change the occupancy of a. City Of Texas Permits.
From www.signnow.com
Texas Application Permit Form Fill Out and Sign Printable PDF City Of Texas Permits Learn more about submitting requests for permits and inspections using our mygov portal. All applications along with all required information must emailed to permits@cityofconroe.org or. The houston permitting center combines the majority of the city of houston's permitting and licensing into one convenient location. The city of texas city building department is responsible for reviewing project plans, issuing building permits,. City Of Texas Permits.
From www.cityofkaty.com
Permits & Building City of Katy, TX City Of Texas Permits Starting from march 26, 2020, we will only accept new fire permit applications and associated plans and documents for review through and eplan. All applications along with all required information must emailed to permits@cityofconroe.org or. Learn more about submitting requests for permits and inspections using our mygov portal. The city of texas city building department is responsible for reviewing project. City Of Texas Permits.
From www.templateroller.com
City of Austin, Texas General Permit Application Submittal Requirements City Of Texas Permits Learn more about submitting requests for permits and inspections using our mygov portal. All applications along with all required information must emailed to permits@cityofconroe.org or. The city of texas city building department is responsible for reviewing project plans, issuing building permits, inspecting all. Starting from march 26, 2020, we will only accept new fire permit applications and associated plans and. City Of Texas Permits.
From www.templateroller.com
City of Austin, Texas Sign Permit Application Download Fillable PDF City Of Texas Permits The city of texas city building department is responsible for reviewing project plans, issuing building permits, inspecting all. Learn more about submitting requests for permits and inspections using our mygov portal. All applications along with all required information must emailed to permits@cityofconroe.org or. A permit is required to construct, enlarge, alter, repair, move, demolish or change the occupancy of a. City Of Texas Permits.
From www.templateroller.com
City of McAllen, Texas Residential Building Permit Checklist for City Of Texas Permits Learn more about submitting requests for permits and inspections using our mygov portal. All applications along with all required information must emailed to permits@cityofconroe.org or. Starting from march 26, 2020, we will only accept new fire permit applications and associated plans and documents for review through and eplan. The city of texas city building department is responsible for reviewing project. City Of Texas Permits.
From www.templateroller.com
City of Austin, Texas Standalone Building Permit Application Fill Out City Of Texas Permits A permit is required to construct, enlarge, alter, repair, move, demolish or change the occupancy of a building or structure within the city of el paso's jurisdiction. Learn more about submitting requests for permits and inspections using our mygov portal. All applications along with all required information must emailed to permits@cityofconroe.org or. Starting from march 26, 2020, we will only. City Of Texas Permits.
From www.templateroller.com
City of Fort Worth, Texas Residential Building Permit Application City Of Texas Permits The houston permitting center combines the majority of the city of houston's permitting and licensing into one convenient location. A permit is required to construct, enlarge, alter, repair, move, demolish or change the occupancy of a building or structure within the city of el paso's jurisdiction. Starting from march 26, 2020, we will only accept new fire permit applications and. City Of Texas Permits.
From www.youtube.com
Arlington DIY Permit Guide YouTube City Of Texas Permits Starting from march 26, 2020, we will only accept new fire permit applications and associated plans and documents for review through and eplan. The city of texas city building department is responsible for reviewing project plans, issuing building permits, inspecting all. All applications along with all required information must emailed to permits@cityofconroe.org or. A permit is required to construct, enlarge,. City Of Texas Permits.
From www.c3buildingsolutions.com
Houston Building Permits Houston Permit Management and Expedting City Of Texas Permits Learn more about submitting requests for permits and inspections using our mygov portal. All applications along with all required information must emailed to permits@cityofconroe.org or. A permit is required to construct, enlarge, alter, repair, move, demolish or change the occupancy of a building or structure within the city of el paso's jurisdiction. The houston permitting center combines the majority of. City Of Texas Permits.
From www.templateroller.com
City of Fort Worth, Texas Newsrack Permit Application Fill Out, Sign City Of Texas Permits The city of texas city building department is responsible for reviewing project plans, issuing building permits, inspecting all. All applications along with all required information must emailed to permits@cityofconroe.org or. Starting from march 26, 2020, we will only accept new fire permit applications and associated plans and documents for review through and eplan. A permit is required to construct, enlarge,. City Of Texas Permits.
From www.newstimes.com
Texas DPS unveils new driver's license design, new security features City Of Texas Permits Learn more about submitting requests for permits and inspections using our mygov portal. All applications along with all required information must emailed to permits@cityofconroe.org or. Starting from march 26, 2020, we will only accept new fire permit applications and associated plans and documents for review through and eplan. A permit is required to construct, enlarge, alter, repair, move, demolish or. City Of Texas Permits.
From www.c3buildingsolutions.com
HoustonCertificateofOccupancyPermit Houston Permit Management and City Of Texas Permits All applications along with all required information must emailed to permits@cityofconroe.org or. The city of texas city building department is responsible for reviewing project plans, issuing building permits, inspecting all. Learn more about submitting requests for permits and inspections using our mygov portal. The houston permitting center combines the majority of the city of houston's permitting and licensing into one. City Of Texas Permits.
From www.templateroller.com
City of Austin, Texas Residential Express Permit Application Fill Out City Of Texas Permits Starting from march 26, 2020, we will only accept new fire permit applications and associated plans and documents for review through and eplan. The houston permitting center combines the majority of the city of houston's permitting and licensing into one convenient location. All applications along with all required information must emailed to permits@cityofconroe.org or. Learn more about submitting requests for. City Of Texas Permits.
From www.templateroller.com
City of Austin, Texas Standalone Building Permit Application Fill Out City Of Texas Permits The city of texas city building department is responsible for reviewing project plans, issuing building permits, inspecting all. All applications along with all required information must emailed to permits@cityofconroe.org or. Starting from march 26, 2020, we will only accept new fire permit applications and associated plans and documents for review through and eplan. The houston permitting center combines the majority. City Of Texas Permits.
From www.signnow.com
Prosper Tx Permits Complete with ease airSlate SignNow City Of Texas Permits The houston permitting center combines the majority of the city of houston's permitting and licensing into one convenient location. All applications along with all required information must emailed to permits@cityofconroe.org or. The city of texas city building department is responsible for reviewing project plans, issuing building permits, inspecting all. A permit is required to construct, enlarge, alter, repair, move, demolish. City Of Texas Permits.
From www.templateroller.com
Cit of San Antonio, Texas Operating Permit Application Fill Out, Sign City Of Texas Permits Starting from march 26, 2020, we will only accept new fire permit applications and associated plans and documents for review through and eplan. The city of texas city building department is responsible for reviewing project plans, issuing building permits, inspecting all. A permit is required to construct, enlarge, alter, repair, move, demolish or change the occupancy of a building or. City Of Texas Permits.
From www.templateroller.com
City of Dallas, Texas Fence Permit/Pool Barrier Permits Commercial and City Of Texas Permits All applications along with all required information must emailed to permits@cityofconroe.org or. Starting from march 26, 2020, we will only accept new fire permit applications and associated plans and documents for review through and eplan. A permit is required to construct, enlarge, alter, repair, move, demolish or change the occupancy of a building or structure within the city of el. City Of Texas Permits.
From www.templateroller.com
Form CE1057 Download Fillable PDF or Fill Online Electrical Building City Of Texas Permits A permit is required to construct, enlarge, alter, repair, move, demolish or change the occupancy of a building or structure within the city of el paso's jurisdiction. Learn more about submitting requests for permits and inspections using our mygov portal. Starting from march 26, 2020, we will only accept new fire permit applications and associated plans and documents for review. City Of Texas Permits.