Maine Real Estate Transfer Tax Declaration Form Rettd . the real estate transfer tax (rett) database is an electronic database that allows: how to create a real estate transfer tax declaration? Users to create and electronically. the real estate transfer tax (rett) is a tax collected on the sale of real estate, as well as on the transfer or acquisition of a. 6a) purchase price (if the transfer is a gift, enter “0”) 6b) fair market value (enter a value only if you entered “0”. the property tax division of maine revenue service (mrs) has an online lookup service that allows the public to search for maine. this form is to be used in conjunction with the real estate transfer tax declaration (rettd) and provides additional information when. Can i search for and view for declarations that i have submitted? You must be logged into your account to create a declaration. how to create a real estate transfer tax declaration?
from www.sampleforms.com
the real estate transfer tax (rett) is a tax collected on the sale of real estate, as well as on the transfer or acquisition of a. Can i search for and view for declarations that i have submitted? Users to create and electronically. the real estate transfer tax (rett) database is an electronic database that allows: 6a) purchase price (if the transfer is a gift, enter “0”) 6b) fair market value (enter a value only if you entered “0”. You must be logged into your account to create a declaration. how to create a real estate transfer tax declaration? this form is to be used in conjunction with the real estate transfer tax declaration (rettd) and provides additional information when. the property tax division of maine revenue service (mrs) has an online lookup service that allows the public to search for maine. how to create a real estate transfer tax declaration?
FREE 10+ Sample Property Transfer Forms in PDF Word XLS
Maine Real Estate Transfer Tax Declaration Form Rettd Can i search for and view for declarations that i have submitted? 6a) purchase price (if the transfer is a gift, enter “0”) 6b) fair market value (enter a value only if you entered “0”. the real estate transfer tax (rett) database is an electronic database that allows: the property tax division of maine revenue service (mrs) has an online lookup service that allows the public to search for maine. this form is to be used in conjunction with the real estate transfer tax declaration (rettd) and provides additional information when. You must be logged into your account to create a declaration. how to create a real estate transfer tax declaration? how to create a real estate transfer tax declaration? Can i search for and view for declarations that i have submitted? the real estate transfer tax (rett) is a tax collected on the sale of real estate, as well as on the transfer or acquisition of a. Users to create and electronically.
From www.formsbank.com
Fillable Form Rew1 Maine Real Estate Withholding Return For Transfer Maine Real Estate Transfer Tax Declaration Form Rettd how to create a real estate transfer tax declaration? how to create a real estate transfer tax declaration? 6a) purchase price (if the transfer is a gift, enter “0”) 6b) fair market value (enter a value only if you entered “0”. You must be logged into your account to create a declaration. this form is to be. Maine Real Estate Transfer Tax Declaration Form Rettd.
From www.formsbank.com
Form 7551 Real Property Transfer Tax Declaration printable pdf download Maine Real Estate Transfer Tax Declaration Form Rettd 6a) purchase price (if the transfer is a gift, enter “0”) 6b) fair market value (enter a value only if you entered “0”. the property tax division of maine revenue service (mrs) has an online lookup service that allows the public to search for maine. the real estate transfer tax (rett) database is an electronic database that allows:. Maine Real Estate Transfer Tax Declaration Form Rettd.
From www.templateroller.com
Maine Controlling Interest Transfer Tax Return/Declaration of Value Maine Real Estate Transfer Tax Declaration Form Rettd 6a) purchase price (if the transfer is a gift, enter “0”) 6b) fair market value (enter a value only if you entered “0”. Can i search for and view for declarations that i have submitted? this form is to be used in conjunction with the real estate transfer tax declaration (rettd) and provides additional information when. You must be. Maine Real Estate Transfer Tax Declaration Form Rettd.
From www.formsbank.com
Fillable Form 7551 Real Property Transfer Tax Declaration printable Maine Real Estate Transfer Tax Declaration Form Rettd the property tax division of maine revenue service (mrs) has an online lookup service that allows the public to search for maine. 6a) purchase price (if the transfer is a gift, enter “0”) 6b) fair market value (enter a value only if you entered “0”. You must be logged into your account to create a declaration. the real. Maine Real Estate Transfer Tax Declaration Form Rettd.
From www.templateroller.com
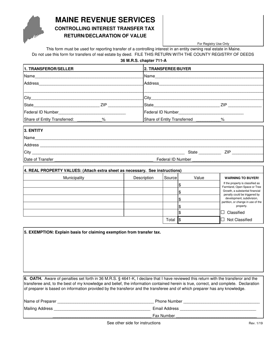
Maine Controlling Interest Transfer Tax Return/Declaration of Value Maine Real Estate Transfer Tax Declaration Form Rettd You must be logged into your account to create a declaration. Users to create and electronically. this form is to be used in conjunction with the real estate transfer tax declaration (rettd) and provides additional information when. the real estate transfer tax (rett) is a tax collected on the sale of real estate, as well as on the. Maine Real Estate Transfer Tax Declaration Form Rettd.
From www.templateroller.com
Maine Controlling Interest Transfer Tax Return/Declaration of Value Maine Real Estate Transfer Tax Declaration Form Rettd this form is to be used in conjunction with the real estate transfer tax declaration (rettd) and provides additional information when. Can i search for and view for declarations that i have submitted? how to create a real estate transfer tax declaration? the property tax division of maine revenue service (mrs) has an online lookup service that. Maine Real Estate Transfer Tax Declaration Form Rettd.
From www.pdffiller.com
Fillable Online Real Estate Transfer Tax (RETT)NH Department of Revenue Maine Real Estate Transfer Tax Declaration Form Rettd Can i search for and view for declarations that i have submitted? the real estate transfer tax (rett) is a tax collected on the sale of real estate, as well as on the transfer or acquisition of a. how to create a real estate transfer tax declaration? this form is to be used in conjunction with the. Maine Real Estate Transfer Tax Declaration Form Rettd.
From www.templateroller.com
Maine Controlling Interest Transfer Tax Return/Declaration of Value Maine Real Estate Transfer Tax Declaration Form Rettd Can i search for and view for declarations that i have submitted? the real estate transfer tax (rett) database is an electronic database that allows: the property tax division of maine revenue service (mrs) has an online lookup service that allows the public to search for maine. 6a) purchase price (if the transfer is a gift, enter “0”). Maine Real Estate Transfer Tax Declaration Form Rettd.
From www.templateroller.com
Maine Supplement to the Real Estate Transfer Tax Form Fill Out, Sign Maine Real Estate Transfer Tax Declaration Form Rettd 6a) purchase price (if the transfer is a gift, enter “0”) 6b) fair market value (enter a value only if you entered “0”. how to create a real estate transfer tax declaration? You must be logged into your account to create a declaration. the real estate transfer tax (rett) database is an electronic database that allows: Can i. Maine Real Estate Transfer Tax Declaration Form Rettd.
From www.templateroller.com
Form REW11041 Download Fillable PDF or Fill Online Real Estate Maine Real Estate Transfer Tax Declaration Form Rettd the real estate transfer tax (rett) is a tax collected on the sale of real estate, as well as on the transfer or acquisition of a. Can i search for and view for declarations that i have submitted? the real estate transfer tax (rett) database is an electronic database that allows: how to create a real estate. Maine Real Estate Transfer Tax Declaration Form Rettd.
From www.formsbank.com
Transfer/tax Form printable pdf download Maine Real Estate Transfer Tax Declaration Form Rettd how to create a real estate transfer tax declaration? 6a) purchase price (if the transfer is a gift, enter “0”) 6b) fair market value (enter a value only if you entered “0”. Can i search for and view for declarations that i have submitted? the real estate transfer tax (rett) database is an electronic database that allows: You. Maine Real Estate Transfer Tax Declaration Form Rettd.
From www.pdffiller.com
Fillable Online MAINE REAL ESTATE TRANSFER TAX DECLARATION 00 Form Maine Real Estate Transfer Tax Declaration Form Rettd how to create a real estate transfer tax declaration? the real estate transfer tax (rett) is a tax collected on the sale of real estate, as well as on the transfer or acquisition of a. the real estate transfer tax (rett) database is an electronic database that allows: the property tax division of maine revenue service. Maine Real Estate Transfer Tax Declaration Form Rettd.
From www.formsbank.com
Fillable Form 5401(8)co Realty Transfer Tax Declaration For Maine Real Estate Transfer Tax Declaration Form Rettd this form is to be used in conjunction with the real estate transfer tax declaration (rettd) and provides additional information when. the property tax division of maine revenue service (mrs) has an online lookup service that allows the public to search for maine. 6a) purchase price (if the transfer is a gift, enter “0”) 6b) fair market value. Maine Real Estate Transfer Tax Declaration Form Rettd.
From www.pdffiller.com
Fillable Online Real Estate Transfer Tax Declaration Form Elmhurst Maine Real Estate Transfer Tax Declaration Form Rettd 6a) purchase price (if the transfer is a gift, enter “0”) 6b) fair market value (enter a value only if you entered “0”. You must be logged into your account to create a declaration. Users to create and electronically. this form is to be used in conjunction with the real estate transfer tax declaration (rettd) and provides additional information. Maine Real Estate Transfer Tax Declaration Form Rettd.
From www.formsbank.com
Form 7551 Real Property Transfer Tax Declaration printable pdf download Maine Real Estate Transfer Tax Declaration Form Rettd the real estate transfer tax (rett) is a tax collected on the sale of real estate, as well as on the transfer or acquisition of a. 6a) purchase price (if the transfer is a gift, enter “0”) 6b) fair market value (enter a value only if you entered “0”. this form is to be used in conjunction with. Maine Real Estate Transfer Tax Declaration Form Rettd.
From www.therealestategroupphilippines.com
Taxes and Title Transfer Process of Real Estate Properties This 2021 Maine Real Estate Transfer Tax Declaration Form Rettd how to create a real estate transfer tax declaration? 6a) purchase price (if the transfer is a gift, enter “0”) 6b) fair market value (enter a value only if you entered “0”. Can i search for and view for declarations that i have submitted? You must be logged into your account to create a declaration. how to create. Maine Real Estate Transfer Tax Declaration Form Rettd.
From www.pdffiller.com
2015 Form ME RETTD Fill Online, Printable, Fillable, Blank pdfFiller Maine Real Estate Transfer Tax Declaration Form Rettd how to create a real estate transfer tax declaration? 6a) purchase price (if the transfer is a gift, enter “0”) 6b) fair market value (enter a value only if you entered “0”. You must be logged into your account to create a declaration. the real estate transfer tax (rett) database is an electronic database that allows: how. Maine Real Estate Transfer Tax Declaration Form Rettd.
From www.templateroller.com
Maine Real Estate Transfer Tax Affidavit for Assigned Rights to a Maine Real Estate Transfer Tax Declaration Form Rettd how to create a real estate transfer tax declaration? Users to create and electronically. how to create a real estate transfer tax declaration? the real estate transfer tax (rett) is a tax collected on the sale of real estate, as well as on the transfer or acquisition of a. Can i search for and view for declarations. Maine Real Estate Transfer Tax Declaration Form Rettd.
From www.formsbank.com
Form Rsa 78B Real Estate Transfer Tax Declaration Of Consideration Maine Real Estate Transfer Tax Declaration Form Rettd 6a) purchase price (if the transfer is a gift, enter “0”) 6b) fair market value (enter a value only if you entered “0”. how to create a real estate transfer tax declaration? You must be logged into your account to create a declaration. this form is to be used in conjunction with the real estate transfer tax declaration. Maine Real Estate Transfer Tax Declaration Form Rettd.
From www.countyforms.com
Real Estate Transfer Declaration Cook County Printable Pdf Download Maine Real Estate Transfer Tax Declaration Form Rettd the property tax division of maine revenue service (mrs) has an online lookup service that allows the public to search for maine. how to create a real estate transfer tax declaration? the real estate transfer tax (rett) database is an electronic database that allows: this form is to be used in conjunction with the real estate. Maine Real Estate Transfer Tax Declaration Form Rettd.
From www.formsbank.com
Form 2719 Return For Real Estate Transfer Tax printable pdf download Maine Real Estate Transfer Tax Declaration Form Rettd the property tax division of maine revenue service (mrs) has an online lookup service that allows the public to search for maine. 6a) purchase price (if the transfer is a gift, enter “0”) 6b) fair market value (enter a value only if you entered “0”. how to create a real estate transfer tax declaration? the real estate. Maine Real Estate Transfer Tax Declaration Form Rettd.
From www.pdffiller.com
Fillable Online Maine Revenue Services Real Estate Transfer Tax Maine Real Estate Transfer Tax Declaration Form Rettd this form is to be used in conjunction with the real estate transfer tax declaration (rettd) and provides additional information when. the real estate transfer tax (rett) database is an electronic database that allows: how to create a real estate transfer tax declaration? Users to create and electronically. the property tax division of maine revenue service. Maine Real Estate Transfer Tax Declaration Form Rettd.
From www.templateroller.com
Maine Real Estate Transfer Tax Affidavit for Assigned Rights to a Maine Real Estate Transfer Tax Declaration Form Rettd the real estate transfer tax (rett) database is an electronic database that allows: Can i search for and view for declarations that i have submitted? 6a) purchase price (if the transfer is a gift, enter “0”) 6b) fair market value (enter a value only if you entered “0”. You must be logged into your account to create a declaration.. Maine Real Estate Transfer Tax Declaration Form Rettd.
From studylib.net
Real Estate Transfer Declaration Maine Real Estate Transfer Tax Declaration Form Rettd You must be logged into your account to create a declaration. the property tax division of maine revenue service (mrs) has an online lookup service that allows the public to search for maine. Can i search for and view for declarations that i have submitted? this form is to be used in conjunction with the real estate transfer. Maine Real Estate Transfer Tax Declaration Form Rettd.
From www.templateroller.com
Form RETTD Download Fillable PDF or Fill Online Maine Real Estate Maine Real Estate Transfer Tax Declaration Form Rettd the property tax division of maine revenue service (mrs) has an online lookup service that allows the public to search for maine. how to create a real estate transfer tax declaration? this form is to be used in conjunction with the real estate transfer tax declaration (rettd) and provides additional information when. the real estate transfer. Maine Real Estate Transfer Tax Declaration Form Rettd.
From www.formsbank.com
Form 7551 Real Property Transfer Tax Declaration printable pdf download Maine Real Estate Transfer Tax Declaration Form Rettd the real estate transfer tax (rett) is a tax collected on the sale of real estate, as well as on the transfer or acquisition of a. the property tax division of maine revenue service (mrs) has an online lookup service that allows the public to search for maine. You must be logged into your account to create a. Maine Real Estate Transfer Tax Declaration Form Rettd.
From www.signnow.com
Maine Rew5 20212024 Form Fill Out and Sign Printable PDF Template Maine Real Estate Transfer Tax Declaration Form Rettd this form is to be used in conjunction with the real estate transfer tax declaration (rettd) and provides additional information when. You must be logged into your account to create a declaration. the real estate transfer tax (rett) database is an electronic database that allows: the real estate transfer tax (rett) is a tax collected on the. Maine Real Estate Transfer Tax Declaration Form Rettd.
From www.sampleforms.com
FREE 10+ Sample Property Transfer Forms in PDF Word XLS Maine Real Estate Transfer Tax Declaration Form Rettd Users to create and electronically. the property tax division of maine revenue service (mrs) has an online lookup service that allows the public to search for maine. how to create a real estate transfer tax declaration? the real estate transfer tax (rett) is a tax collected on the sale of real estate, as well as on the. Maine Real Estate Transfer Tax Declaration Form Rettd.
From www.templateroller.com
Form REW11041 Download Fillable PDF or Fill Online Real Estate Maine Real Estate Transfer Tax Declaration Form Rettd the real estate transfer tax (rett) database is an electronic database that allows: this form is to be used in conjunction with the real estate transfer tax declaration (rettd) and provides additional information when. the property tax division of maine revenue service (mrs) has an online lookup service that allows the public to search for maine. . Maine Real Estate Transfer Tax Declaration Form Rettd.
From www.pdffiller.com
MAINE REAL ESTATE TRANSFER TAX DECLARATION 00 RETTD Doc Template Maine Real Estate Transfer Tax Declaration Form Rettd Can i search for and view for declarations that i have submitted? this form is to be used in conjunction with the real estate transfer tax declaration (rettd) and provides additional information when. You must be logged into your account to create a declaration. the real estate transfer tax (rett) database is an electronic database that allows: 6a). Maine Real Estate Transfer Tax Declaration Form Rettd.
From formspal.com
Real Estate Transfer Declaration PDF Form FormsPal Maine Real Estate Transfer Tax Declaration Form Rettd this form is to be used in conjunction with the real estate transfer tax declaration (rettd) and provides additional information when. Can i search for and view for declarations that i have submitted? 6a) purchase price (if the transfer is a gift, enter “0”) 6b) fair market value (enter a value only if you entered “0”. how to. Maine Real Estate Transfer Tax Declaration Form Rettd.
From www.formsbank.com
Form Rew1 Maine Real Estate Withholding Return For Transfer Of Real Maine Real Estate Transfer Tax Declaration Form Rettd 6a) purchase price (if the transfer is a gift, enter “0”) 6b) fair market value (enter a value only if you entered “0”. You must be logged into your account to create a declaration. Users to create and electronically. this form is to be used in conjunction with the real estate transfer tax declaration (rettd) and provides additional information. Maine Real Estate Transfer Tax Declaration Form Rettd.
From www.templateroller.com
Maine Controlling Interest Transfer Tax Return/Declaration of Value Maine Real Estate Transfer Tax Declaration Form Rettd Can i search for and view for declarations that i have submitted? You must be logged into your account to create a declaration. how to create a real estate transfer tax declaration? the real estate transfer tax (rett) is a tax collected on the sale of real estate, as well as on the transfer or acquisition of a.. Maine Real Estate Transfer Tax Declaration Form Rettd.
From www.kennebunkmaine.us
Real Estate Transfer Tax Declarations Kennebunk, ME Official site Maine Real Estate Transfer Tax Declaration Form Rettd the real estate transfer tax (rett) is a tax collected on the sale of real estate, as well as on the transfer or acquisition of a. this form is to be used in conjunction with the real estate transfer tax declaration (rettd) and provides additional information when. 6a) purchase price (if the transfer is a gift, enter “0”). Maine Real Estate Transfer Tax Declaration Form Rettd.
From www.pdffiller.com
Fillable Online Maine Real Estate Transfer Tax Form Pdf Fax Email Print Maine Real Estate Transfer Tax Declaration Form Rettd the property tax division of maine revenue service (mrs) has an online lookup service that allows the public to search for maine. the real estate transfer tax (rett) database is an electronic database that allows: how to create a real estate transfer tax declaration? this form is to be used in conjunction with the real estate. Maine Real Estate Transfer Tax Declaration Form Rettd.