Wpqr Full Form In Welding . Applicants after passing the test, are given qualification record i.e. General for all process (text from asme section ix): Discuss the mechanical properties of metal and. Welding procedure qualification record (wpqr) definition: Each organization shall be required to prepare a. A record of welding variables used to produce an acceptable test weldment and the results of tests conducted on the weldment to. Welder performance qualification record (wpqr). In other words, wpq is a performance test of welders that determine if they have the capability of laying quality welds using procedures, materials, and welding processes. Provide an overview of essential welding documents, such as wpss, pqrs, and wqtrs. Once the procedure is approved it is necessary to demonstrate that all your welders working to it have the required. A welder is qualified to perform a welding process, to operate a welding position, an assembly as well as to work with different. What is welder performance qualification record (wpqr)?
from www.scribd.com
Each organization shall be required to prepare a. Provide an overview of essential welding documents, such as wpss, pqrs, and wqtrs. Welder performance qualification record (wpqr). Discuss the mechanical properties of metal and. What is welder performance qualification record (wpqr)? Applicants after passing the test, are given qualification record i.e. In other words, wpq is a performance test of welders that determine if they have the capability of laying quality welds using procedures, materials, and welding processes. A record of welding variables used to produce an acceptable test weldment and the results of tests conducted on the weldment to. Welding procedure qualification record (wpqr) definition: Once the procedure is approved it is necessary to demonstrate that all your welders working to it have the required.
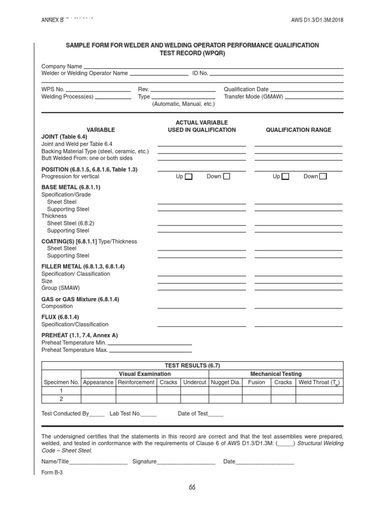
D1.3 D1.3M 2018 Annexb3 WPQR Form PDF Welding Construction
Wpqr Full Form In Welding Welder performance qualification record (wpqr). General for all process (text from asme section ix): Once the procedure is approved it is necessary to demonstrate that all your welders working to it have the required. Welding procedure qualification record (wpqr) definition: Each organization shall be required to prepare a. What is welder performance qualification record (wpqr)? A welder is qualified to perform a welding process, to operate a welding position, an assembly as well as to work with different. In other words, wpq is a performance test of welders that determine if they have the capability of laying quality welds using procedures, materials, and welding processes. Welder performance qualification record (wpqr). A record of welding variables used to produce an acceptable test weldment and the results of tests conducted on the weldment to. Discuss the mechanical properties of metal and. Applicants after passing the test, are given qualification record i.e. Provide an overview of essential welding documents, such as wpss, pqrs, and wqtrs.
From www.scribd.com
WPQR PDF Welding Construction Wpqr Full Form In Welding Welding procedure qualification record (wpqr) definition: In other words, wpq is a performance test of welders that determine if they have the capability of laying quality welds using procedures, materials, and welding processes. What is welder performance qualification record (wpqr)? Provide an overview of essential welding documents, such as wpss, pqrs, and wqtrs. A welder is qualified to perform a. Wpqr Full Form In Welding.
From www.indiamart.com
Welding Training WPS&WPQR in Ambattur, Chennai ID 17096131388 Wpqr Full Form In Welding Discuss the mechanical properties of metal and. Each organization shall be required to prepare a. Once the procedure is approved it is necessary to demonstrate that all your welders working to it have the required. General for all process (text from asme section ix): Provide an overview of essential welding documents, such as wpss, pqrs, and wqtrs. A welder is. Wpqr Full Form In Welding.
From training.eurotechworld.net
Welding Procedure Specification Requirement (WPQR) & Types of WPS Wpqr Full Form In Welding In other words, wpq is a performance test of welders that determine if they have the capability of laying quality welds using procedures, materials, and welding processes. Welder performance qualification record (wpqr). What is welder performance qualification record (wpqr)? Once the procedure is approved it is necessary to demonstrate that all your welders working to it have the required. A. Wpqr Full Form In Welding.
From www.academia.edu
(PDF) Guide to understanding Welding Procedure Specification (WPS Wpqr Full Form In Welding Each organization shall be required to prepare a. Once the procedure is approved it is necessary to demonstrate that all your welders working to it have the required. Provide an overview of essential welding documents, such as wpss, pqrs, and wqtrs. General for all process (text from asme section ix): Applicants after passing the test, are given qualification record i.e.. Wpqr Full Form In Welding.
From formspal.com
Wpqr Sample Form ≡ Fill Out Printable PDF Forms Online Wpqr Full Form In Welding Welder performance qualification record (wpqr). Each organization shall be required to prepare a. In other words, wpq is a performance test of welders that determine if they have the capability of laying quality welds using procedures, materials, and welding processes. What is welder performance qualification record (wpqr)? General for all process (text from asme section ix): A welder is qualified. Wpqr Full Form In Welding.
From eziil.com
What is Welding Procedure Specification (WPS)? Wpqr Full Form In Welding Each organization shall be required to prepare a. Welding procedure qualification record (wpqr) definition: Applicants after passing the test, are given qualification record i.e. Once the procedure is approved it is necessary to demonstrate that all your welders working to it have the required. Provide an overview of essential welding documents, such as wpss, pqrs, and wqtrs. Discuss the mechanical. Wpqr Full Form In Welding.
From www.itenoida.com
Welding Procedure Qualification Record (WPQR) ITE Wpqr Full Form In Welding Welder performance qualification record (wpqr). General for all process (text from asme section ix): Applicants after passing the test, are given qualification record i.e. What is welder performance qualification record (wpqr)? In other words, wpq is a performance test of welders that determine if they have the capability of laying quality welds using procedures, materials, and welding processes. Once the. Wpqr Full Form In Welding.
From www.scribd.com
WPQR PDF Construction Welding Wpqr Full Form In Welding Welding procedure qualification record (wpqr) definition: Provide an overview of essential welding documents, such as wpss, pqrs, and wqtrs. In other words, wpq is a performance test of welders that determine if they have the capability of laying quality welds using procedures, materials, and welding processes. What is welder performance qualification record (wpqr)? Discuss the mechanical properties of metal and.. Wpqr Full Form In Welding.
From www.youtube.com
WPQR (Welding Procedure Qualification Record) (Language English) YouTube Wpqr Full Form In Welding Once the procedure is approved it is necessary to demonstrate that all your welders working to it have the required. Provide an overview of essential welding documents, such as wpss, pqrs, and wqtrs. In other words, wpq is a performance test of welders that determine if they have the capability of laying quality welds using procedures, materials, and welding processes.. Wpqr Full Form In Welding.
From www.scribd.com
Welding Procedure Qualification Record (WPQR) (EN / ISO 1561412017 Wpqr Full Form In Welding Each organization shall be required to prepare a. Discuss the mechanical properties of metal and. General for all process (text from asme section ix): Welding procedure qualification record (wpqr) definition: A welder is qualified to perform a welding process, to operate a welding position, an assembly as well as to work with different. Once the procedure is approved it is. Wpqr Full Form In Welding.
From www.scribd.com
Pqrwpswpqr Xxx Rev 0 Welding Pipe (Fluid Conveyance) Wpqr Full Form In Welding Welder performance qualification record (wpqr). Provide an overview of essential welding documents, such as wpss, pqrs, and wqtrs. General for all process (text from asme section ix): A record of welding variables used to produce an acceptable test weldment and the results of tests conducted on the weldment to. A welder is qualified to perform a welding process, to operate. Wpqr Full Form In Welding.
From www.amazon.com
CONCEPT AND CASE STUDY WPQR WELDING PROCEDURE QUALIFICATION IN PPAP Wpqr Full Form In Welding Provide an overview of essential welding documents, such as wpss, pqrs, and wqtrs. In other words, wpq is a performance test of welders that determine if they have the capability of laying quality welds using procedures, materials, and welding processes. Applicants after passing the test, are given qualification record i.e. What is welder performance qualification record (wpqr)? Welder performance qualification. Wpqr Full Form In Welding.
From www.youtube.com
[English] WPS and PQR Basic Concept explained YouTube Wpqr Full Form In Welding In other words, wpq is a performance test of welders that determine if they have the capability of laying quality welds using procedures, materials, and welding processes. Provide an overview of essential welding documents, such as wpss, pqrs, and wqtrs. General for all process (text from asme section ix): Once the procedure is approved it is necessary to demonstrate that. Wpqr Full Form In Welding.
From mewelding.com
How to Write a Welder Performance Qualification Record Wpqr Full Form In Welding Provide an overview of essential welding documents, such as wpss, pqrs, and wqtrs. Once the procedure is approved it is necessary to demonstrate that all your welders working to it have the required. General for all process (text from asme section ix): Welder performance qualification record (wpqr). A record of welding variables used to produce an acceptable test weldment and. Wpqr Full Form In Welding.
From www.youtube.com
Welder Qualification Record, WPS, WQR (WPQR), PQR, In 13 Minutes YouTube Wpqr Full Form In Welding A record of welding variables used to produce an acceptable test weldment and the results of tests conducted on the weldment to. Discuss the mechanical properties of metal and. Welding procedure qualification record (wpqr) definition: Each organization shall be required to prepare a. Provide an overview of essential welding documents, such as wpss, pqrs, and wqtrs. Welder performance qualification record. Wpqr Full Form In Welding.
From www.scribd.com
WPQR PDF Welding Construction Wpqr Full Form In Welding What is welder performance qualification record (wpqr)? Discuss the mechanical properties of metal and. Welder performance qualification record (wpqr). Once the procedure is approved it is necessary to demonstrate that all your welders working to it have the required. Welding procedure qualification record (wpqr) definition: In other words, wpq is a performance test of welders that determine if they have. Wpqr Full Form In Welding.
From www.scribd.com
WPQRno.201602 PDF Welding Construction Wpqr Full Form In Welding Welder performance qualification record (wpqr). A welder is qualified to perform a welding process, to operate a welding position, an assembly as well as to work with different. General for all process (text from asme section ix): Provide an overview of essential welding documents, such as wpss, pqrs, and wqtrs. A record of welding variables used to produce an acceptable. Wpqr Full Form In Welding.
From eziil.com
What is Welding Procedure Specification (WPS)? Wpqr Full Form In Welding In other words, wpq is a performance test of welders that determine if they have the capability of laying quality welds using procedures, materials, and welding processes. Discuss the mechanical properties of metal and. Once the procedure is approved it is necessary to demonstrate that all your welders working to it have the required. Welder performance qualification record (wpqr). Welding. Wpqr Full Form In Welding.
From www.scribd.com
WPS format for ISO 156141 PQR Welding Metals Wpqr Full Form In Welding General for all process (text from asme section ix): Each organization shall be required to prepare a. Welding procedure qualification record (wpqr) definition: Provide an overview of essential welding documents, such as wpss, pqrs, and wqtrs. What is welder performance qualification record (wpqr)? Discuss the mechanical properties of metal and. A welder is qualified to perform a welding process, to. Wpqr Full Form In Welding.
From www.youtube.com
whats is welding? types of welding what is WPS, PQR, WPQR Wpqr Full Form In Welding In other words, wpq is a performance test of welders that determine if they have the capability of laying quality welds using procedures, materials, and welding processes. What is welder performance qualification record (wpqr)? Welding procedure qualification record (wpqr) definition: General for all process (text from asme section ix): A record of welding variables used to produce an acceptable test. Wpqr Full Form In Welding.
From www.researchgate.net
(PDF) Welding Procedure Qualification Record (WPQR) for Welds Wpqr Full Form In Welding In other words, wpq is a performance test of welders that determine if they have the capability of laying quality welds using procedures, materials, and welding processes. General for all process (text from asme section ix): What is welder performance qualification record (wpqr)? Welding procedure qualification record (wpqr) definition: A welder is qualified to perform a welding process, to operate. Wpqr Full Form In Welding.
From training.eurotechworld.net
Welding Procedure Specification Requirement (WPQR) & Types of WPS Wpqr Full Form In Welding Provide an overview of essential welding documents, such as wpss, pqrs, and wqtrs. Each organization shall be required to prepare a. Discuss the mechanical properties of metal and. What is welder performance qualification record (wpqr)? A welder is qualified to perform a welding process, to operate a welding position, an assembly as well as to work with different. A record. Wpqr Full Form In Welding.
From www.scribd.com
WPQRSBM029 Welding Pipe (Fluid Conveyance) Wpqr Full Form In Welding What is welder performance qualification record (wpqr)? General for all process (text from asme section ix): Once the procedure is approved it is necessary to demonstrate that all your welders working to it have the required. Provide an overview of essential welding documents, such as wpss, pqrs, and wqtrs. In other words, wpq is a performance test of welders that. Wpqr Full Form In Welding.
From www.scribd.com
PQR Format Welding Metals Wpqr Full Form In Welding Once the procedure is approved it is necessary to demonstrate that all your welders working to it have the required. Each organization shall be required to prepare a. In other words, wpq is a performance test of welders that determine if they have the capability of laying quality welds using procedures, materials, and welding processes. Applicants after passing the test,. Wpqr Full Form In Welding.
From www.scribd.com
Wps PQR Form API 1104 PDF Welding Construction Wpqr Full Form In Welding Applicants after passing the test, are given qualification record i.e. General for all process (text from asme section ix): What is welder performance qualification record (wpqr)? Discuss the mechanical properties of metal and. Welding procedure qualification record (wpqr) definition: Provide an overview of essential welding documents, such as wpss, pqrs, and wqtrs. In other words, wpq is a performance test. Wpqr Full Form In Welding.
From www.bharatagritech.com
English] WPS And PQR Basic Concept Explained, 55 OFF Wpqr Full Form In Welding Applicants after passing the test, are given qualification record i.e. General for all process (text from asme section ix): A welder is qualified to perform a welding process, to operate a welding position, an assembly as well as to work with different. Welder performance qualification record (wpqr). Discuss the mechanical properties of metal and. What is welder performance qualification record. Wpqr Full Form In Welding.
From www.scribd.com
WPQR Form As Per EN PDF PDF Welding Construction Wpqr Full Form In Welding In other words, wpq is a performance test of welders that determine if they have the capability of laying quality welds using procedures, materials, and welding processes. Discuss the mechanical properties of metal and. Each organization shall be required to prepare a. Provide an overview of essential welding documents, such as wpss, pqrs, and wqtrs. Applicants after passing the test,. Wpqr Full Form In Welding.
From www.youtube.com
WPS, PQR, WPQ & their significance in Quality Welding inspector. YouTube Wpqr Full Form In Welding Provide an overview of essential welding documents, such as wpss, pqrs, and wqtrs. In other words, wpq is a performance test of welders that determine if they have the capability of laying quality welds using procedures, materials, and welding processes. A record of welding variables used to produce an acceptable test weldment and the results of tests conducted on the. Wpqr Full Form In Welding.
From herezup919.weebly.com
Wps Wpqr Welding Procedure herezup Wpqr Full Form In Welding Discuss the mechanical properties of metal and. Welder performance qualification record (wpqr). A welder is qualified to perform a welding process, to operate a welding position, an assembly as well as to work with different. In other words, wpq is a performance test of welders that determine if they have the capability of laying quality welds using procedures, materials, and. Wpqr Full Form In Welding.
From www.scribd.com
D1.3 D1.3M 2018 Annexb3 WPQR Form PDF Welding Construction Wpqr Full Form In Welding What is welder performance qualification record (wpqr)? In other words, wpq is a performance test of welders that determine if they have the capability of laying quality welds using procedures, materials, and welding processes. A welder is qualified to perform a welding process, to operate a welding position, an assembly as well as to work with different. Welding procedure qualification. Wpqr Full Form In Welding.
From www.scribd.com
Welding Procedure Qualification Records (Wpqr) (Section IX, ASME Wpqr Full Form In Welding Welding procedure qualification record (wpqr) definition: Applicants after passing the test, are given qualification record i.e. Discuss the mechanical properties of metal and. Once the procedure is approved it is necessary to demonstrate that all your welders working to it have the required. In other words, wpq is a performance test of welders that determine if they have the capability. Wpqr Full Form In Welding.
From training.eurotechworld.net
Welding Procedure Specification Requirement (WPQR) & Types of WPS Wpqr Full Form In Welding Once the procedure is approved it is necessary to demonstrate that all your welders working to it have the required. Discuss the mechanical properties of metal and. A record of welding variables used to produce an acceptable test weldment and the results of tests conducted on the weldment to. Provide an overview of essential welding documents, such as wpss, pqrs,. Wpqr Full Form In Welding.
From www.scribd.com
Welding Procedure Qualification Record Form (WPQR) Range of Wpqr Full Form In Welding Discuss the mechanical properties of metal and. Welding procedure qualification record (wpqr) definition: Applicants after passing the test, are given qualification record i.e. General for all process (text from asme section ix): Provide an overview of essential welding documents, such as wpss, pqrs, and wqtrs. Once the procedure is approved it is necessary to demonstrate that all your welders working. Wpqr Full Form In Welding.
From www.scribd.com
WPQR Sample Form PDF Welding Construction Wpqr Full Form In Welding Applicants after passing the test, are given qualification record i.e. Welder performance qualification record (wpqr). Provide an overview of essential welding documents, such as wpss, pqrs, and wqtrs. In other words, wpq is a performance test of welders that determine if they have the capability of laying quality welds using procedures, materials, and welding processes. General for all process (text. Wpqr Full Form In Welding.
From an-elec.com
Bureau Veritas WPQR WPS 111 Welding PF, PD Wpqr Full Form In Welding Welder performance qualification record (wpqr). Each organization shall be required to prepare a. General for all process (text from asme section ix): In other words, wpq is a performance test of welders that determine if they have the capability of laying quality welds using procedures, materials, and welding processes. Discuss the mechanical properties of metal and. Provide an overview of. Wpqr Full Form In Welding.