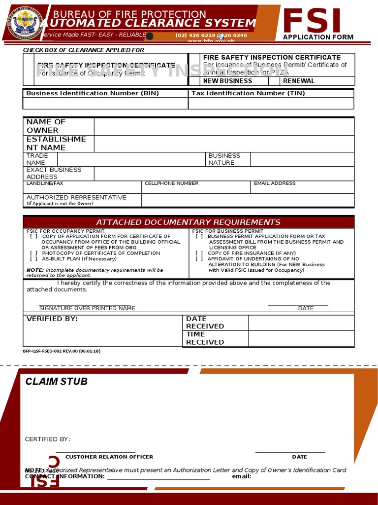
Fire Safety Inspection Application Form . The first thing you will need to do is find out if your business is required to have a certificate. To get a fire safety inspection certificate, you will need to review the requirements. (01) 222 4000 to get relevant file number (s) and a costing for ordering certificate (s). The fire safety inspection certificate (fsci) application process involves meeting specific requirements, undergoing comprehensive site. This document is an application form for obtaining a fire safety inspection certificate (fsic) from the bureau of fire protection. Generate and print your fire safety inspection certificate online. Requirements for obtaining an fsic. The form requests information such as the business identification. Vds is one of the most renowned institutions for corporate security and safety, specialising in fire protection, security and natural disaster prevention. The form requests information about the applicant such as building. To initiate the process of obtaining an fsic, you’ll need to prepare the following requirements: This document contains an application form for a fire safety inspection certificate (fsic) from the bureau of fire protection. Please contact us at fire.prevention@dublincity.ie or t.
from www.template.net
This document is an application form for obtaining a fire safety inspection certificate (fsic) from the bureau of fire protection. The fire safety inspection certificate (fsci) application process involves meeting specific requirements, undergoing comprehensive site. Requirements for obtaining an fsic. (01) 222 4000 to get relevant file number (s) and a costing for ordering certificate (s). Please contact us at fire.prevention@dublincity.ie or t. Vds is one of the most renowned institutions for corporate security and safety, specialising in fire protection, security and natural disaster prevention. Generate and print your fire safety inspection certificate online. This document contains an application form for a fire safety inspection certificate (fsic) from the bureau of fire protection. To initiate the process of obtaining an fsic, you’ll need to prepare the following requirements: The form requests information about the applicant such as building.
Fire Safety Inspection Form Template in Word, PDF, Google Docs
Fire Safety Inspection Application Form Please contact us at fire.prevention@dublincity.ie or t. The fire safety inspection certificate (fsci) application process involves meeting specific requirements, undergoing comprehensive site. The form requests information such as the business identification. Please contact us at fire.prevention@dublincity.ie or t. This document is an application form for obtaining a fire safety inspection certificate (fsic) from the bureau of fire protection. This document contains an application form for a fire safety inspection certificate (fsic) from the bureau of fire protection. To get a fire safety inspection certificate, you will need to review the requirements. The form requests information about the applicant such as building. (01) 222 4000 to get relevant file number (s) and a costing for ordering certificate (s). To initiate the process of obtaining an fsic, you’ll need to prepare the following requirements: Vds is one of the most renowned institutions for corporate security and safety, specialising in fire protection, security and natural disaster prevention. Generate and print your fire safety inspection certificate online. The first thing you will need to do is find out if your business is required to have a certificate. Requirements for obtaining an fsic.
From www.formsbank.com
Form Fp 1 Application For A Fire Certificate printable pdf download Fire Safety Inspection Application Form The fire safety inspection certificate (fsci) application process involves meeting specific requirements, undergoing comprehensive site. Generate and print your fire safety inspection certificate online. The form requests information about the applicant such as building. (01) 222 4000 to get relevant file number (s) and a costing for ordering certificate (s). The first thing you will need to do is find. Fire Safety Inspection Application Form.
From zeo-trd.blogspot.com
Printable Fire Apparatus Inspection Checklist Fire Safety Inspection Application Form The first thing you will need to do is find out if your business is required to have a certificate. The form requests information such as the business identification. The form requests information about the applicant such as building. This document is an application form for obtaining a fire safety inspection certificate (fsic) from the bureau of fire protection. To. Fire Safety Inspection Application Form.
From mungfali.com
Fire Safety Inspection Certificate Fire Safety Inspection Application Form This document contains an application form for a fire safety inspection certificate (fsic) from the bureau of fire protection. This document is an application form for obtaining a fire safety inspection certificate (fsic) from the bureau of fire protection. The first thing you will need to do is find out if your business is required to have a certificate. Requirements. Fire Safety Inspection Application Form.
From www.scribd.com
Fire Safety Inspection Certificate Application Form Attached Fire Safety Inspection Application Form Generate and print your fire safety inspection certificate online. The form requests information such as the business identification. The first thing you will need to do is find out if your business is required to have a certificate. To initiate the process of obtaining an fsic, you’ll need to prepare the following requirements: The form requests information about the applicant. Fire Safety Inspection Application Form.
From www.scribd.com
New Fire Prevention Forms PDF Fire Safety License Fire Safety Inspection Application Form Generate and print your fire safety inspection certificate online. This document is an application form for obtaining a fire safety inspection certificate (fsic) from the bureau of fire protection. The fire safety inspection certificate (fsci) application process involves meeting specific requirements, undergoing comprehensive site. To get a fire safety inspection certificate, you will need to review the requirements. Requirements for. Fire Safety Inspection Application Form.
From www.dochub.com
Fire inspection form template Fill out & sign online DocHub Fire Safety Inspection Application Form Generate and print your fire safety inspection certificate online. Requirements for obtaining an fsic. The fire safety inspection certificate (fsci) application process involves meeting specific requirements, undergoing comprehensive site. This document contains an application form for a fire safety inspection certificate (fsic) from the bureau of fire protection. This document is an application form for obtaining a fire safety inspection. Fire Safety Inspection Application Form.
From www.formsbank.com
Fillable Fire Safety Inspection Request printable pdf download Fire Safety Inspection Application Form To get a fire safety inspection certificate, you will need to review the requirements. Vds is one of the most renowned institutions for corporate security and safety, specialising in fire protection, security and natural disaster prevention. The form requests information about the applicant such as building. To initiate the process of obtaining an fsic, you’ll need to prepare the following. Fire Safety Inspection Application Form.
From freewordtemplates.net
Fire Safety Inspection Checklist Fire Safety Inspection Application Form To get a fire safety inspection certificate, you will need to review the requirements. (01) 222 4000 to get relevant file number (s) and a costing for ordering certificate (s). To initiate the process of obtaining an fsic, you’ll need to prepare the following requirements: Generate and print your fire safety inspection certificate online. This document is an application form. Fire Safety Inspection Application Form.
From www.scribd.com
Fire Safety Inspection Checklist Fire Safety Fires Fire Safety Inspection Application Form This document contains an application form for a fire safety inspection certificate (fsic) from the bureau of fire protection. Please contact us at fire.prevention@dublincity.ie or t. The form requests information about the applicant such as building. Requirements for obtaining an fsic. The fire safety inspection certificate (fsci) application process involves meeting specific requirements, undergoing comprehensive site. The first thing you. Fire Safety Inspection Application Form.
From www.signnow.com
Nfpa 80 Fire Door Inspection Checklist PDF 20102024 Form Fill Out Fire Safety Inspection Application Form Requirements for obtaining an fsic. The fire safety inspection certificate (fsci) application process involves meeting specific requirements, undergoing comprehensive site. (01) 222 4000 to get relevant file number (s) and a costing for ordering certificate (s). Vds is one of the most renowned institutions for corporate security and safety, specialising in fire protection, security and natural disaster prevention. Generate and. Fire Safety Inspection Application Form.
From qbeeurope.com
Fire Safety Self Inspection Form QBE European Operations Fire Safety Inspection Application Form The form requests information about the applicant such as building. The fire safety inspection certificate (fsci) application process involves meeting specific requirements, undergoing comprehensive site. To get a fire safety inspection certificate, you will need to review the requirements. Vds is one of the most renowned institutions for corporate security and safety, specialising in fire protection, security and natural disaster. Fire Safety Inspection Application Form.
From exyceakgh.blob.core.windows.net
What Buildings Require A Fire Safety Certificate at Cassie Smith blog Fire Safety Inspection Application Form The form requests information about the applicant such as building. The first thing you will need to do is find out if your business is required to have a certificate. Please contact us at fire.prevention@dublincity.ie or t. To get a fire safety inspection certificate, you will need to review the requirements. Generate and print your fire safety inspection certificate online.. Fire Safety Inspection Application Form.
From sitemate.com
Fire Inspection Report Template and Example Fire Safety Inspection Application Form To initiate the process of obtaining an fsic, you’ll need to prepare the following requirements: (01) 222 4000 to get relevant file number (s) and a costing for ordering certificate (s). The form requests information such as the business identification. The fire safety inspection certificate (fsci) application process involves meeting specific requirements, undergoing comprehensive site. The form requests information about. Fire Safety Inspection Application Form.
From www.sampletemplates.com
FREE 10+ Sample Fire Service Application Forms in PDF MS Word Fire Safety Inspection Application Form Requirements for obtaining an fsic. Generate and print your fire safety inspection certificate online. Vds is one of the most renowned institutions for corporate security and safety, specialising in fire protection, security and natural disaster prevention. The form requests information such as the business identification. Please contact us at fire.prevention@dublincity.ie or t. (01) 222 4000 to get relevant file number. Fire Safety Inspection Application Form.
From www.pdffiller.com
Fillable Online Fire Safety Inspection Certificate Application Form Fire Safety Inspection Application Form Generate and print your fire safety inspection certificate online. To get a fire safety inspection certificate, you will need to review the requirements. Requirements for obtaining an fsic. To initiate the process of obtaining an fsic, you’ll need to prepare the following requirements: Please contact us at fire.prevention@dublincity.ie or t. The form requests information such as the business identification. This. Fire Safety Inspection Application Form.
From www.sampletemplates.com
FREE 10+ Sample Fire Service Application Forms in PDF MS Word Fire Safety Inspection Application Form (01) 222 4000 to get relevant file number (s) and a costing for ordering certificate (s). The first thing you will need to do is find out if your business is required to have a certificate. Generate and print your fire safety inspection certificate online. Vds is one of the most renowned institutions for corporate security and safety, specialising in. Fire Safety Inspection Application Form.
From www.formsbank.com
Fire Safety Field Inspection Checklist Los Angeles County Fire Fire Safety Inspection Application Form The first thing you will need to do is find out if your business is required to have a certificate. Requirements for obtaining an fsic. Please contact us at fire.prevention@dublincity.ie or t. The form requests information such as the business identification. This document is an application form for obtaining a fire safety inspection certificate (fsic) from the bureau of fire. Fire Safety Inspection Application Form.
From www.scribd.com
Fire Safety Inspection Automated Clearance System Identity Document Fire Safety Inspection Application Form To get a fire safety inspection certificate, you will need to review the requirements. The fire safety inspection certificate (fsci) application process involves meeting specific requirements, undergoing comprehensive site. This document contains an application form for a fire safety inspection certificate (fsic) from the bureau of fire protection. (01) 222 4000 to get relevant file number (s) and a costing. Fire Safety Inspection Application Form.
From www.bmcc.nsw.gov.au
FORM Certification of fire safety measures bmcc.nsw.gov.au Fire Safety Inspection Application Form Vds is one of the most renowned institutions for corporate security and safety, specialising in fire protection, security and natural disaster prevention. This document contains an application form for a fire safety inspection certificate (fsic) from the bureau of fire protection. To initiate the process of obtaining an fsic, you’ll need to prepare the following requirements: The form requests information. Fire Safety Inspection Application Form.
From dcd-0303.pdffiller.com
Fire Inspection Report Fill Online, Printable, Fillable, Blank Fire Safety Inspection Application Form The form requests information about the applicant such as building. Generate and print your fire safety inspection certificate online. The fire safety inspection certificate (fsci) application process involves meeting specific requirements, undergoing comprehensive site. This document contains an application form for a fire safety inspection certificate (fsic) from the bureau of fire protection. Vds is one of the most renowned. Fire Safety Inspection Application Form.
From slidesdocs.com
Fire Safety Inspection Registration Form Excel Template And Google Fire Safety Inspection Application Form The form requests information such as the business identification. To initiate the process of obtaining an fsic, you’ll need to prepare the following requirements: Generate and print your fire safety inspection certificate online. This document is an application form for obtaining a fire safety inspection certificate (fsic) from the bureau of fire protection. Please contact us at fire.prevention@dublincity.ie or t.. Fire Safety Inspection Application Form.
From www.template.net
Fire Safety Inspection Form Template in Word, PDF, Google Docs Fire Safety Inspection Application Form The fire safety inspection certificate (fsci) application process involves meeting specific requirements, undergoing comprehensive site. To initiate the process of obtaining an fsic, you’ll need to prepare the following requirements: Please contact us at fire.prevention@dublincity.ie or t. This document is an application form for obtaining a fire safety inspection certificate (fsic) from the bureau of fire protection. (01) 222 4000. Fire Safety Inspection Application Form.
From www.template.net
Fire Safety Inspection Form Template in Word, PDF, Google Docs Fire Safety Inspection Application Form The form requests information such as the business identification. The form requests information about the applicant such as building. Please contact us at fire.prevention@dublincity.ie or t. This document is an application form for obtaining a fire safety inspection certificate (fsic) from the bureau of fire protection. To initiate the process of obtaining an fsic, you’ll need to prepare the following. Fire Safety Inspection Application Form.
From www.template.net
Fire Safety Inspection Form Template in Word, PDF, Google Docs Fire Safety Inspection Application Form The first thing you will need to do is find out if your business is required to have a certificate. This document is an application form for obtaining a fire safety inspection certificate (fsic) from the bureau of fire protection. The form requests information such as the business identification. Generate and print your fire safety inspection certificate online. This document. Fire Safety Inspection Application Form.
From forms.utpaqp.edu.pe
Printable Monthly Fire Extinguisher Inspection Form Printable Word Fire Safety Inspection Application Form To get a fire safety inspection certificate, you will need to review the requirements. (01) 222 4000 to get relevant file number (s) and a costing for ordering certificate (s). The form requests information such as the business identification. Requirements for obtaining an fsic. The first thing you will need to do is find out if your business is required. Fire Safety Inspection Application Form.
From www.safetymint.com
Fire Safety Inspection Checklist Download Free PDF Fire Safety Inspection Application Form The first thing you will need to do is find out if your business is required to have a certificate. (01) 222 4000 to get relevant file number (s) and a costing for ordering certificate (s). The form requests information such as the business identification. This document contains an application form for a fire safety inspection certificate (fsic) from the. Fire Safety Inspection Application Form.
From www.formsbank.com
Top 29 Fire Inspection Forms And Templates free to download in PDF format Fire Safety Inspection Application Form Please contact us at fire.prevention@dublincity.ie or t. The first thing you will need to do is find out if your business is required to have a certificate. (01) 222 4000 to get relevant file number (s) and a costing for ordering certificate (s). Generate and print your fire safety inspection certificate online. This document is an application form for obtaining. Fire Safety Inspection Application Form.
From www.template.net
Fire Safety Inspection Form Template in Word, PDF, Google Docs Fire Safety Inspection Application Form To get a fire safety inspection certificate, you will need to review the requirements. To initiate the process of obtaining an fsic, you’ll need to prepare the following requirements: The form requests information about the applicant such as building. The fire safety inspection certificate (fsci) application process involves meeting specific requirements, undergoing comprehensive site. This document contains an application form. Fire Safety Inspection Application Form.
From www.pdffiller.com
Fire Inspection Form Fill Online, Printable, Fillable, Blank pdfFiller Fire Safety Inspection Application Form This document contains an application form for a fire safety inspection certificate (fsic) from the bureau of fire protection. The form requests information such as the business identification. Please contact us at fire.prevention@dublincity.ie or t. Generate and print your fire safety inspection certificate online. The first thing you will need to do is find out if your business is required. Fire Safety Inspection Application Form.
From www.templateroller.com
Form SF259 Fill Out, Sign Online and Download Fillable PDF, Texas Fire Safety Inspection Application Form Please contact us at fire.prevention@dublincity.ie or t. The form requests information such as the business identification. To initiate the process of obtaining an fsic, you’ll need to prepare the following requirements: Requirements for obtaining an fsic. This document contains an application form for a fire safety inspection certificate (fsic) from the bureau of fire protection. To get a fire safety. Fire Safety Inspection Application Form.
From www.formsonfire.com
Fire Safety Inspection Checklist Forms On Fire Fire Safety Inspection Application Form (01) 222 4000 to get relevant file number (s) and a costing for ordering certificate (s). To initiate the process of obtaining an fsic, you’ll need to prepare the following requirements: Generate and print your fire safety inspection certificate online. Please contact us at fire.prevention@dublincity.ie or t. Vds is one of the most renowned institutions for corporate security and safety,. Fire Safety Inspection Application Form.
From www.signnow.com
Fire Inspection Form Complete with ease airSlate SignNow Fire Safety Inspection Application Form This document is an application form for obtaining a fire safety inspection certificate (fsic) from the bureau of fire protection. To get a fire safety inspection certificate, you will need to review the requirements. This document contains an application form for a fire safety inspection certificate (fsic) from the bureau of fire protection. The form requests information about the applicant. Fire Safety Inspection Application Form.
From www.uslegalforms.com
Fire Alarm Inspection Report Template Fill and Sign Printable Fire Safety Inspection Application Form This document contains an application form for a fire safety inspection certificate (fsic) from the bureau of fire protection. The form requests information such as the business identification. The form requests information about the applicant such as building. (01) 222 4000 to get relevant file number (s) and a costing for ordering certificate (s). Requirements for obtaining an fsic. This. Fire Safety Inspection Application Form.
From www.templateroller.com
Monthly Fire and Safety Inspection Form Fill Out, Sign Online and Fire Safety Inspection Application Form This document contains an application form for a fire safety inspection certificate (fsic) from the bureau of fire protection. The form requests information about the applicant such as building. Generate and print your fire safety inspection certificate online. The first thing you will need to do is find out if your business is required to have a certificate. To initiate. Fire Safety Inspection Application Form.
From www.pdffiller.com
Fillable Online Fire Safety Inspection Program Fax Email Print pdfFiller Fire Safety Inspection Application Form Generate and print your fire safety inspection certificate online. To initiate the process of obtaining an fsic, you’ll need to prepare the following requirements: The first thing you will need to do is find out if your business is required to have a certificate. The form requests information such as the business identification. This document is an application form for. Fire Safety Inspection Application Form.