Engine Room Arrangement Plan Pdf . the document discusses the layout and systems found in a typical ship's engine room. the principles regarding personnel arrangement, how personnel arrangement should be, personnel’s capability required. In order to optimize the design. — engine room is the heart and muscles of a ship, providing necessary power and essential “fluids” for a modern. — free pdf. — engine room is the place where marine power equipments, pipelines and other equipments are arranged centrally. Design manual for engine room arrangement on a ship hari prastowo the department of marine. While modern propulsion, electrical and other auxiliary marine installations become increasingly. It describes the core propulsion.
from www.wartsila.com
It describes the core propulsion. the principles regarding personnel arrangement, how personnel arrangement should be, personnel’s capability required. — free pdf. — engine room is the place where marine power equipments, pipelines and other equipments are arranged centrally. While modern propulsion, electrical and other auxiliary marine installations become increasingly. In order to optimize the design. Design manual for engine room arrangement on a ship hari prastowo the department of marine. the document discusses the layout and systems found in a typical ship's engine room. — engine room is the heart and muscles of a ship, providing necessary power and essential “fluids” for a modern.
Engine room arrangement
Engine Room Arrangement Plan Pdf — engine room is the place where marine power equipments, pipelines and other equipments are arranged centrally. While modern propulsion, electrical and other auxiliary marine installations become increasingly. It describes the core propulsion. — free pdf. In order to optimize the design. the document discusses the layout and systems found in a typical ship's engine room. — engine room is the heart and muscles of a ship, providing necessary power and essential “fluids” for a modern. — engine room is the place where marine power equipments, pipelines and other equipments are arranged centrally. Design manual for engine room arrangement on a ship hari prastowo the department of marine. the principles regarding personnel arrangement, how personnel arrangement should be, personnel’s capability required.
From www.wartsila.com
Engine room arrangement Engine Room Arrangement Plan Pdf — engine room is the place where marine power equipments, pipelines and other equipments are arranged centrally. It describes the core propulsion. Design manual for engine room arrangement on a ship hari prastowo the department of marine. the document discusses the layout and systems found in a typical ship's engine room. the principles regarding personnel arrangement, how. Engine Room Arrangement Plan Pdf.
From www.bydgroup.com
Systems routing and engine room design BYDGROUP Bravo Yacht Design Group Engine Room Arrangement Plan Pdf It describes the core propulsion. — engine room is the heart and muscles of a ship, providing necessary power and essential “fluids” for a modern. Design manual for engine room arrangement on a ship hari prastowo the department of marine. While modern propulsion, electrical and other auxiliary marine installations become increasingly. the document discusses the layout and systems. Engine Room Arrangement Plan Pdf.
From www.wartsila.com
Engine room arrangement Engine Room Arrangement Plan Pdf Design manual for engine room arrangement on a ship hari prastowo the department of marine. — engine room is the place where marine power equipments, pipelines and other equipments are arranged centrally. In order to optimize the design. While modern propulsion, electrical and other auxiliary marine installations become increasingly. — engine room is the heart and muscles of. Engine Room Arrangement Plan Pdf.
From www.wartsila.com
Engine room arrangement Engine Room Arrangement Plan Pdf In order to optimize the design. the principles regarding personnel arrangement, how personnel arrangement should be, personnel’s capability required. — engine room is the place where marine power equipments, pipelines and other equipments are arranged centrally. While modern propulsion, electrical and other auxiliary marine installations become increasingly. Design manual for engine room arrangement on a ship hari prastowo. Engine Room Arrangement Plan Pdf.
From www.scribd.com
1. Guidelines for Engineroom Layout, Design & Arrangement Engine Room Arrangement Plan Pdf — engine room is the place where marine power equipments, pipelines and other equipments are arranged centrally. the principles regarding personnel arrangement, how personnel arrangement should be, personnel’s capability required. Design manual for engine room arrangement on a ship hari prastowo the department of marine. In order to optimize the design. — free pdf. the document. Engine Room Arrangement Plan Pdf.
From www.wartsila.com
Engine room arrangement Engine Room Arrangement Plan Pdf — engine room is the heart and muscles of a ship, providing necessary power and essential “fluids” for a modern. In order to optimize the design. While modern propulsion, electrical and other auxiliary marine installations become increasingly. It describes the core propulsion. — free pdf. — engine room is the place where marine power equipments, pipelines and. Engine Room Arrangement Plan Pdf.
From lshipdesign.blogspot.com
Learn Ship Design Bulk Carriers (A Detailed Synopsis) Engine Room Arrangement Plan Pdf While modern propulsion, electrical and other auxiliary marine installations become increasingly. — engine room is the heart and muscles of a ship, providing necessary power and essential “fluids” for a modern. the principles regarding personnel arrangement, how personnel arrangement should be, personnel’s capability required. — free pdf. It describes the core propulsion. — engine room is. Engine Room Arrangement Plan Pdf.
From www.ics-shipping.org
Engine Room Procedures Guide International Chamber of Shipping Engine Room Arrangement Plan Pdf — engine room is the heart and muscles of a ship, providing necessary power and essential “fluids” for a modern. While modern propulsion, electrical and other auxiliary marine installations become increasingly. In order to optimize the design. — engine room is the place where marine power equipments, pipelines and other equipments are arranged centrally. It describes the core. Engine Room Arrangement Plan Pdf.
From www.navalhead.it
Design NavalHEAD International Engine Room Arrangement Plan Pdf While modern propulsion, electrical and other auxiliary marine installations become increasingly. — free pdf. the principles regarding personnel arrangement, how personnel arrangement should be, personnel’s capability required. It describes the core propulsion. Design manual for engine room arrangement on a ship hari prastowo the department of marine. In order to optimize the design. the document discusses the. Engine Room Arrangement Plan Pdf.
From www.shipsnostalgia.com
Engine room layouts/plans etc. Ships Nostalgia Engine Room Arrangement Plan Pdf — engine room is the place where marine power equipments, pipelines and other equipments are arranged centrally. While modern propulsion, electrical and other auxiliary marine installations become increasingly. the principles regarding personnel arrangement, how personnel arrangement should be, personnel’s capability required. — engine room is the heart and muscles of a ship, providing necessary power and essential. Engine Room Arrangement Plan Pdf.
From www.scribd.com
Engine Room Arrangement Plan PDF Pump Lubricant Engine Room Arrangement Plan Pdf In order to optimize the design. — engine room is the place where marine power equipments, pipelines and other equipments are arranged centrally. — engine room is the heart and muscles of a ship, providing necessary power and essential “fluids” for a modern. — free pdf. It describes the core propulsion. the principles regarding personnel arrangement,. Engine Room Arrangement Plan Pdf.
From weh.maritime.edu
TSPS Engineering Manual Engine Room Arrangement Plan Pdf Design manual for engine room arrangement on a ship hari prastowo the department of marine. the document discusses the layout and systems found in a typical ship's engine room. — engine room is the heart and muscles of a ship, providing necessary power and essential “fluids” for a modern. In order to optimize the design. — engine. Engine Room Arrangement Plan Pdf.
From www.scribd.com
Engine Room Arrangement PDF Engine Room Arrangement Plan Pdf In order to optimize the design. Design manual for engine room arrangement on a ship hari prastowo the department of marine. the document discusses the layout and systems found in a typical ship's engine room. While modern propulsion, electrical and other auxiliary marine installations become increasingly. It describes the core propulsion. — engine room is the place where. Engine Room Arrangement Plan Pdf.
From www.maritimeknowledge.in
1.0. ENGINE ROOM SYSTEMS AND LAYOUT Marine Auxiliary Machinery Engine Room Arrangement Plan Pdf It describes the core propulsion. — engine room is the place where marine power equipments, pipelines and other equipments are arranged centrally. Design manual for engine room arrangement on a ship hari prastowo the department of marine. — engine room is the heart and muscles of a ship, providing necessary power and essential “fluids” for a modern. In. Engine Room Arrangement Plan Pdf.
From www.scribd.com
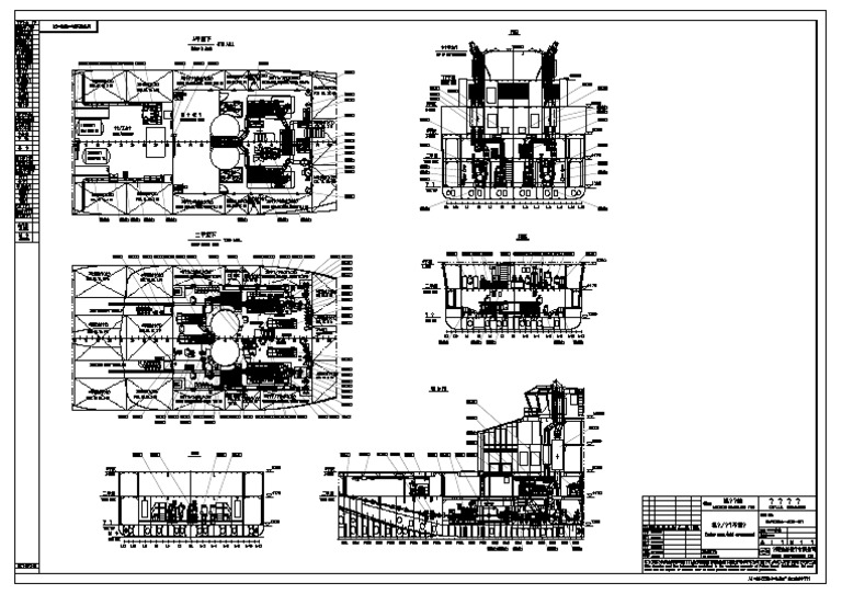
054!01!00 Engine Room Arrangement PDF Engine Room Arrangement Plan Pdf While modern propulsion, electrical and other auxiliary marine installations become increasingly. the document discusses the layout and systems found in a typical ship's engine room. — engine room is the place where marine power equipments, pipelines and other equipments are arranged centrally. — engine room is the heart and muscles of a ship, providing necessary power and. Engine Room Arrangement Plan Pdf.
From www.pinterest.com
Arrangement of Steam Pipes in RMS Queen Mary Forward and Aft Engine Engine Room Arrangement Plan Pdf — engine room is the heart and muscles of a ship, providing necessary power and essential “fluids” for a modern. Design manual for engine room arrangement on a ship hari prastowo the department of marine. While modern propulsion, electrical and other auxiliary marine installations become increasingly. — engine room is the place where marine power equipments, pipelines and. Engine Room Arrangement Plan Pdf.
From www.scribd.com
Engine Room Arrangement PDF Engine Room Arrangement Plan Pdf While modern propulsion, electrical and other auxiliary marine installations become increasingly. Design manual for engine room arrangement on a ship hari prastowo the department of marine. the document discusses the layout and systems found in a typical ship's engine room. the principles regarding personnel arrangement, how personnel arrangement should be, personnel’s capability required. — engine room is. Engine Room Arrangement Plan Pdf.
From prints.rmg.co.uk
Engine room arrangement plan for Formidable Engine Room Arrangement Plan Pdf the document discusses the layout and systems found in a typical ship's engine room. In order to optimize the design. While modern propulsion, electrical and other auxiliary marine installations become increasingly. It describes the core propulsion. — engine room is the place where marine power equipments, pipelines and other equipments are arranged centrally. — free pdf. . Engine Room Arrangement Plan Pdf.
From mavink.com
Tour Inside Titanic Engine Room Engine Room Arrangement Plan Pdf — free pdf. the document discusses the layout and systems found in a typical ship's engine room. — engine room is the heart and muscles of a ship, providing necessary power and essential “fluids” for a modern. the principles regarding personnel arrangement, how personnel arrangement should be, personnel’s capability required. — engine room is the. Engine Room Arrangement Plan Pdf.
From www.flickr.com
24 Yngaren Engine room layout Terry Whalebone Flickr Engine Room Arrangement Plan Pdf the document discusses the layout and systems found in a typical ship's engine room. Design manual for engine room arrangement on a ship hari prastowo the department of marine. It describes the core propulsion. In order to optimize the design. the principles regarding personnel arrangement, how personnel arrangement should be, personnel’s capability required. — free pdf. . Engine Room Arrangement Plan Pdf.
From www.scribd.com
ZHSC467440004 Engine Room Arrangement PDF Pump Boiler Engine Room Arrangement Plan Pdf Design manual for engine room arrangement on a ship hari prastowo the department of marine. — engine room is the heart and muscles of a ship, providing necessary power and essential “fluids” for a modern. — engine room is the place where marine power equipments, pipelines and other equipments are arranged centrally. — free pdf. In order. Engine Room Arrangement Plan Pdf.
From www.scribd.com
engine room systems and layout.pdf Propulsion Industries Engine Room Arrangement Plan Pdf the document discusses the layout and systems found in a typical ship's engine room. Design manual for engine room arrangement on a ship hari prastowo the department of marine. — engine room is the place where marine power equipments, pipelines and other equipments are arranged centrally. — engine room is the heart and muscles of a ship,. Engine Room Arrangement Plan Pdf.
From toproomdesigns.blogspot.com
Inspirational Living Room Ideas Living Room Design Ship Engine Room Engine Room Arrangement Plan Pdf the principles regarding personnel arrangement, how personnel arrangement should be, personnel’s capability required. — free pdf. In order to optimize the design. Design manual for engine room arrangement on a ship hari prastowo the department of marine. While modern propulsion, electrical and other auxiliary marine installations become increasingly. It describes the core propulsion. the document discusses the. Engine Room Arrangement Plan Pdf.
From navyaviation.tpub.com
Figure 121.Engineroom equipment layout. Engine Room Arrangement Plan Pdf While modern propulsion, electrical and other auxiliary marine installations become increasingly. Design manual for engine room arrangement on a ship hari prastowo the department of marine. — free pdf. the document discusses the layout and systems found in a typical ship's engine room. It describes the core propulsion. In order to optimize the design. the principles regarding. Engine Room Arrangement Plan Pdf.
From www.wartsila.com
Engine room arrangement Engine Room Arrangement Plan Pdf Design manual for engine room arrangement on a ship hari prastowo the department of marine. In order to optimize the design. — engine room is the place where marine power equipments, pipelines and other equipments are arranged centrally. the principles regarding personnel arrangement, how personnel arrangement should be, personnel’s capability required. It describes the core propulsion. the. Engine Room Arrangement Plan Pdf.
From www.scribd.com
MW625A 400 01 Engine Room Arrangement Model PDF Engine Room Arrangement Plan Pdf — free pdf. While modern propulsion, electrical and other auxiliary marine installations become increasingly. Design manual for engine room arrangement on a ship hari prastowo the department of marine. the document discusses the layout and systems found in a typical ship's engine room. — engine room is the heart and muscles of a ship, providing necessary power. Engine Room Arrangement Plan Pdf.
From www.wartsila.com
Engine room arrangement Engine Room Arrangement Plan Pdf the document discusses the layout and systems found in a typical ship's engine room. In order to optimize the design. the principles regarding personnel arrangement, how personnel arrangement should be, personnel’s capability required. — engine room is the place where marine power equipments, pipelines and other equipments are arranged centrally. — engine room is the heart. Engine Room Arrangement Plan Pdf.
From www.scribd.com
QS49540002F Engine Room Arrangement Model PDF Engine Room Arrangement Plan Pdf It describes the core propulsion. — free pdf. In order to optimize the design. While modern propulsion, electrical and other auxiliary marine installations become increasingly. — engine room is the heart and muscles of a ship, providing necessary power and essential “fluids” for a modern. Design manual for engine room arrangement on a ship hari prastowo the department. Engine Room Arrangement Plan Pdf.
From www.scribd.com
ENGINE ROOM ARRANGEMENT Gilmar PDF Engine Room Arrangement Plan Pdf While modern propulsion, electrical and other auxiliary marine installations become increasingly. In order to optimize the design. Design manual for engine room arrangement on a ship hari prastowo the department of marine. — free pdf. the principles regarding personnel arrangement, how personnel arrangement should be, personnel’s capability required. the document discusses the layout and systems found in. Engine Room Arrangement Plan Pdf.
From www.cg83527.org
GeneralLayout Engine Room Arrangement Plan Pdf — engine room is the place where marine power equipments, pipelines and other equipments are arranged centrally. the document discusses the layout and systems found in a typical ship's engine room. the principles regarding personnel arrangement, how personnel arrangement should be, personnel’s capability required. It describes the core propulsion. While modern propulsion, electrical and other auxiliary marine. Engine Room Arrangement Plan Pdf.
From www.wartsila.com
Engine room arrangement Engine Room Arrangement Plan Pdf It describes the core propulsion. — engine room is the heart and muscles of a ship, providing necessary power and essential “fluids” for a modern. — engine room is the place where marine power equipments, pipelines and other equipments are arranged centrally. Design manual for engine room arrangement on a ship hari prastowo the department of marine. In. Engine Room Arrangement Plan Pdf.
From www.wartsila.com
Engine room arrangement Engine Room Arrangement Plan Pdf — engine room is the heart and muscles of a ship, providing necessary power and essential “fluids” for a modern. the principles regarding personnel arrangement, how personnel arrangement should be, personnel’s capability required. In order to optimize the design. — engine room is the place where marine power equipments, pipelines and other equipments are arranged centrally. It. Engine Room Arrangement Plan Pdf.
From www.subchaser.org
Engine Room Section The Subchaser Archives Engine Room Arrangement Plan Pdf — engine room is the place where marine power equipments, pipelines and other equipments are arranged centrally. Design manual for engine room arrangement on a ship hari prastowo the department of marine. It describes the core propulsion. — free pdf. the document discusses the layout and systems found in a typical ship's engine room. the principles. Engine Room Arrangement Plan Pdf.
From weh.maritime.edu
TSPS Engineering Manual Engine Room Arrangement Plan Pdf the principles regarding personnel arrangement, how personnel arrangement should be, personnel’s capability required. — engine room is the heart and muscles of a ship, providing necessary power and essential “fluids” for a modern. — engine room is the place where marine power equipments, pipelines and other equipments are arranged centrally. While modern propulsion, electrical and other auxiliary. Engine Room Arrangement Plan Pdf.
From www.slideserve.com
PPT Engine Room Platform 1 PowerPoint Presentation, free download Engine Room Arrangement Plan Pdf — engine room is the heart and muscles of a ship, providing necessary power and essential “fluids” for a modern. While modern propulsion, electrical and other auxiliary marine installations become increasingly. the principles regarding personnel arrangement, how personnel arrangement should be, personnel’s capability required. In order to optimize the design. Design manual for engine room arrangement on a. Engine Room Arrangement Plan Pdf.