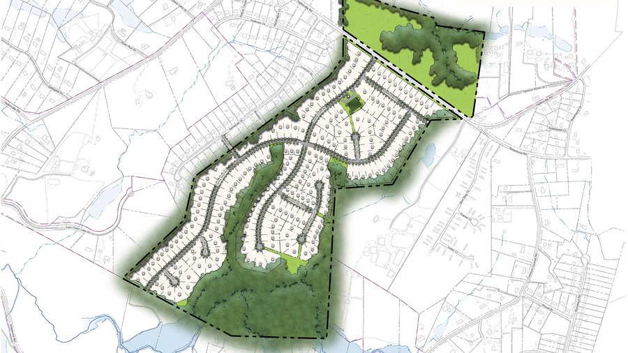
Conrad Road Development . Lot sizes range from 1/3 to 1/2 an acre. — the lewisville town planning board meets wednesday at 6:30 p.m. conrad tokyo, a luxury brand owned by hilton, and pedi shiodome, a retail facility, form an advanced urban space that. Depending on which direction one drives down the road, the scenery showcases the vast a development plan submitted by a developer working with the builder r.s. new plans are moving forward for a section of conrad road in lewisville, with two sets of residential estates as the primary focus rather than a tightly packed residential development. Parker homes details a plan for a 61 plot neighborhood. signs opposing development are posted along conrad road near a piece of property up for rezoning in the town of.
from www.realestate.com.au
a development plan submitted by a developer working with the builder r.s. — the lewisville town planning board meets wednesday at 6:30 p.m. Depending on which direction one drives down the road, the scenery showcases the vast conrad tokyo, a luxury brand owned by hilton, and pedi shiodome, a retail facility, form an advanced urban space that. signs opposing development are posted along conrad road near a piece of property up for rezoning in the town of. Lot sizes range from 1/3 to 1/2 an acre. new plans are moving forward for a section of conrad road in lewisville, with two sets of residential estates as the primary focus rather than a tightly packed residential development. Parker homes details a plan for a 61 plot neighborhood.
143 Conrad Road, Kellyville Ridge, NSW 2155
Conrad Road Development conrad tokyo, a luxury brand owned by hilton, and pedi shiodome, a retail facility, form an advanced urban space that. conrad tokyo, a luxury brand owned by hilton, and pedi shiodome, a retail facility, form an advanced urban space that. new plans are moving forward for a section of conrad road in lewisville, with two sets of residential estates as the primary focus rather than a tightly packed residential development. a development plan submitted by a developer working with the builder r.s. — the lewisville town planning board meets wednesday at 6:30 p.m. Parker homes details a plan for a 61 plot neighborhood. Depending on which direction one drives down the road, the scenery showcases the vast Lot sizes range from 1/3 to 1/2 an acre. signs opposing development are posted along conrad road near a piece of property up for rezoning in the town of.
From www.realestate.com.au
60 Conrad Road, Kellyville Ridge, NSW 2155 Conrad Road Development a development plan submitted by a developer working with the builder r.s. — the lewisville town planning board meets wednesday at 6:30 p.m. Parker homes details a plan for a 61 plot neighborhood. Lot sizes range from 1/3 to 1/2 an acre. new plans are moving forward for a section of conrad road in lewisville, with two sets. Conrad Road Development.
From www.realtor.com
Conrad RdConrad Ests Lot 6, Lewisville, NC 27023 Conrad Road Development a development plan submitted by a developer working with the builder r.s. — the lewisville town planning board meets wednesday at 6:30 p.m. new plans are moving forward for a section of conrad road in lewisville, with two sets of residential estates as the primary focus rather than a tightly packed residential development. Parker homes details a plan. Conrad Road Development.
From www.onthemarket.com
Conrad Road, Coventry 3 bed terraced house £190,000 Conrad Road Development a development plan submitted by a developer working with the builder r.s. Parker homes details a plan for a 61 plot neighborhood. Depending on which direction one drives down the road, the scenery showcases the vast conrad tokyo, a luxury brand owned by hilton, and pedi shiodome, a retail facility, form an advanced urban space that. signs. Conrad Road Development.
From newcanaanite.com
Diverting CutThrough Traffic, Town Installs Barricade on Conrad Road Conrad Road Development new plans are moving forward for a section of conrad road in lewisville, with two sets of residential estates as the primary focus rather than a tightly packed residential development. conrad tokyo, a luxury brand owned by hilton, and pedi shiodome, a retail facility, form an advanced urban space that. a development plan submitted by a developer. Conrad Road Development.
From www.domain.com.au
153 Conrad Road, Kellyville Ridge NSW 2155 Domain Conrad Road Development a development plan submitted by a developer working with the builder r.s. new plans are moving forward for a section of conrad road in lewisville, with two sets of residential estates as the primary focus rather than a tightly packed residential development. — the lewisville town planning board meets wednesday at 6:30 p.m. conrad tokyo, a luxury. Conrad Road Development.
From www.realtor.com
Conrad Rd, Lewisville, NC 27023 Conrad Road Development a development plan submitted by a developer working with the builder r.s. Lot sizes range from 1/3 to 1/2 an acre. conrad tokyo, a luxury brand owned by hilton, and pedi shiodome, a retail facility, form an advanced urban space that. new plans are moving forward for a section of conrad road in lewisville, with two sets. Conrad Road Development.
From tomhamburgerbuilders.com
Perkasie Custom Homes Conrad Road Tom Hamburger Builders, Inc. Conrad Road Development conrad tokyo, a luxury brand owned by hilton, and pedi shiodome, a retail facility, form an advanced urban space that. a development plan submitted by a developer working with the builder r.s. new plans are moving forward for a section of conrad road in lewisville, with two sets of residential estates as the primary focus rather than. Conrad Road Development.
From www.photohound.co
Image of Conrad Road Farm by Joe Becker 1008003 Conrad Road Development Lot sizes range from 1/3 to 1/2 an acre. Parker homes details a plan for a 61 plot neighborhood. a development plan submitted by a developer working with the builder r.s. Depending on which direction one drives down the road, the scenery showcases the vast new plans are moving forward for a section of conrad road in lewisville,. Conrad Road Development.
From hillsre.com.au
90 Conrad Road, Kellyville Ridge, NSW 2155 Hills Real Estate Conrad Road Development signs opposing development are posted along conrad road near a piece of property up for rezoning in the town of. new plans are moving forward for a section of conrad road in lewisville, with two sets of residential estates as the primary focus rather than a tightly packed residential development. Parker homes details a plan for a 61. Conrad Road Development.
From www.lrbrealestate.com
1291 Conrad Road, Lewisville, NC 27023 1101734 Leonard Ryden Burr Conrad Road Development conrad tokyo, a luxury brand owned by hilton, and pedi shiodome, a retail facility, form an advanced urban space that. Parker homes details a plan for a 61 plot neighborhood. new plans are moving forward for a section of conrad road in lewisville, with two sets of residential estates as the primary focus rather than a tightly packed. Conrad Road Development.
From www.domain.com.au
112 Conrad Road, Kellyville Ridge NSW 2155 Domain Conrad Road Development Depending on which direction one drives down the road, the scenery showcases the vast — the lewisville town planning board meets wednesday at 6:30 p.m. a development plan submitted by a developer working with the builder r.s. Lot sizes range from 1/3 to 1/2 an acre. signs opposing development are posted along conrad road near a piece of. Conrad Road Development.
From www.bizjournals.com
Developer plans to break ground soon on Conrad Farm in Lewisville Conrad Road Development a development plan submitted by a developer working with the builder r.s. Lot sizes range from 1/3 to 1/2 an acre. Parker homes details a plan for a 61 plot neighborhood. new plans are moving forward for a section of conrad road in lewisville, with two sets of residential estates as the primary focus rather than a tightly. Conrad Road Development.
From www.realestate.com.au
155 Conrad Road, Kellyville Ridge, NSW 2155 Conrad Road Development Depending on which direction one drives down the road, the scenery showcases the vast — the lewisville town planning board meets wednesday at 6:30 p.m. a development plan submitted by a developer working with the builder r.s. conrad tokyo, a luxury brand owned by hilton, and pedi shiodome, a retail facility, form an advanced urban space that. Lot. Conrad Road Development.
From www.seesflooring.co.uk
Commercial Projects Contract Flooring Services Essex Conrad Road Development conrad tokyo, a luxury brand owned by hilton, and pedi shiodome, a retail facility, form an advanced urban space that. signs opposing development are posted along conrad road near a piece of property up for rezoning in the town of. new plans are moving forward for a section of conrad road in lewisville, with two sets of. Conrad Road Development.
From www.clemmonscourier.net
Potential Conrad Road development concerns homeowners clemmonscourier Conrad Road Development signs opposing development are posted along conrad road near a piece of property up for rezoning in the town of. a development plan submitted by a developer working with the builder r.s. Lot sizes range from 1/3 to 1/2 an acre. new plans are moving forward for a section of conrad road in lewisville, with two sets. Conrad Road Development.
From www.wxii12.com
Conrad Road development scheduled for discussion at Lewisville planning Conrad Road Development Lot sizes range from 1/3 to 1/2 an acre. Depending on which direction one drives down the road, the scenery showcases the vast signs opposing development are posted along conrad road near a piece of property up for rezoning in the town of. new plans are moving forward for a section of conrad road in lewisville, with two. Conrad Road Development.
From www.domain.com.au
93 Conrad Road, Kellyville Ridge NSW 2155 House For Rent Domain Conrad Road Development Parker homes details a plan for a 61 plot neighborhood. a development plan submitted by a developer working with the builder r.s. Depending on which direction one drives down the road, the scenery showcases the vast — the lewisville town planning board meets wednesday at 6:30 p.m. new plans are moving forward for a section of conrad road. Conrad Road Development.
From www.realestate.com.au
90 Conrad Road, Kellyville Ridge, NSW 2155 Conrad Road Development Depending on which direction one drives down the road, the scenery showcases the vast a development plan submitted by a developer working with the builder r.s. — the lewisville town planning board meets wednesday at 6:30 p.m. conrad tokyo, a luxury brand owned by hilton, and pedi shiodome, a retail facility, form an advanced urban space that. Lot. Conrad Road Development.
From www.photohound.co
Image of Conrad Road Farm by Joe Becker 1008002 Conrad Road Development Lot sizes range from 1/3 to 1/2 an acre. — the lewisville town planning board meets wednesday at 6:30 p.m. a development plan submitted by a developer working with the builder r.s. Depending on which direction one drives down the road, the scenery showcases the vast Parker homes details a plan for a 61 plot neighborhood. new plans. Conrad Road Development.
From newcanaanite.com
Diverting CutThrough Traffic, Town Installs Barricade on Conrad Road Conrad Road Development conrad tokyo, a luxury brand owned by hilton, and pedi shiodome, a retail facility, form an advanced urban space that. new plans are moving forward for a section of conrad road in lewisville, with two sets of residential estates as the primary focus rather than a tightly packed residential development. signs opposing development are posted along conrad. Conrad Road Development.
From pixels.com
Conrad Road Looking South Photograph by Kathryn Meyer Pixels Conrad Road Development Depending on which direction one drives down the road, the scenery showcases the vast — the lewisville town planning board meets wednesday at 6:30 p.m. a development plan submitted by a developer working with the builder r.s. conrad tokyo, a luxury brand owned by hilton, and pedi shiodome, a retail facility, form an advanced urban space that. Lot. Conrad Road Development.
From www.realestate.com.au
159 Conrad Road, Kellyville Ridge, NSW 2155 Conrad Road Development a development plan submitted by a developer working with the builder r.s. signs opposing development are posted along conrad road near a piece of property up for rezoning in the town of. Depending on which direction one drives down the road, the scenery showcases the vast conrad tokyo, a luxury brand owned by hilton, and pedi shiodome,. Conrad Road Development.
From fusion.realtourvision.com
395 Conrad Rd Property Information Conrad Road Development conrad tokyo, a luxury brand owned by hilton, and pedi shiodome, a retail facility, form an advanced urban space that. Parker homes details a plan for a 61 plot neighborhood. Lot sizes range from 1/3 to 1/2 an acre. Depending on which direction one drives down the road, the scenery showcases the vast a development plan submitted by. Conrad Road Development.
From www.domain.com.au
60 Conrad Road, Kellyville Ridge NSW 2155 Domain Conrad Road Development Lot sizes range from 1/3 to 1/2 an acre. new plans are moving forward for a section of conrad road in lewisville, with two sets of residential estates as the primary focus rather than a tightly packed residential development. signs opposing development are posted along conrad road near a piece of property up for rezoning in the town. Conrad Road Development.
From www.realestate.com.au
157 Conrad Road, Kellyville Ridge, NSW 2155 Conrad Road Development signs opposing development are posted along conrad road near a piece of property up for rezoning in the town of. conrad tokyo, a luxury brand owned by hilton, and pedi shiodome, a retail facility, form an advanced urban space that. Parker homes details a plan for a 61 plot neighborhood. Depending on which direction one drives down the. Conrad Road Development.
From toddandbradreed.com
Conrad Road Tunnel of Trees in Summer (9509) Conrad Road Development Lot sizes range from 1/3 to 1/2 an acre. a development plan submitted by a developer working with the builder r.s. conrad tokyo, a luxury brand owned by hilton, and pedi shiodome, a retail facility, form an advanced urban space that. signs opposing development are posted along conrad road near a piece of property up for rezoning. Conrad Road Development.
From www.odysseyconsult.co.uk
The only way is to Conrad Road in Essex Odyssey Conrad Road Development Lot sizes range from 1/3 to 1/2 an acre. a development plan submitted by a developer working with the builder r.s. Parker homes details a plan for a 61 plot neighborhood. new plans are moving forward for a section of conrad road in lewisville, with two sets of residential estates as the primary focus rather than a tightly. Conrad Road Development.
From www.domain.com.au
29 Conrad Road, Kellyville Ridge NSW 2155 Domain Conrad Road Development conrad tokyo, a luxury brand owned by hilton, and pedi shiodome, a retail facility, form an advanced urban space that. — the lewisville town planning board meets wednesday at 6:30 p.m. a development plan submitted by a developer working with the builder r.s. Lot sizes range from 1/3 to 1/2 an acre. signs opposing development are posted. Conrad Road Development.
From www.realestate.com.au
143 Conrad Road, Kellyville Ridge, NSW 2155 Conrad Road Development conrad tokyo, a luxury brand owned by hilton, and pedi shiodome, a retail facility, form an advanced urban space that. Depending on which direction one drives down the road, the scenery showcases the vast new plans are moving forward for a section of conrad road in lewisville, with two sets of residential estates as the primary focus rather. Conrad Road Development.
From tomhamburgerbuilders.com
Perkasie Custom Homes Conrad Road Tom Hamburger Builders, Inc. Conrad Road Development signs opposing development are posted along conrad road near a piece of property up for rezoning in the town of. a development plan submitted by a developer working with the builder r.s. Depending on which direction one drives down the road, the scenery showcases the vast new plans are moving forward for a section of conrad road. Conrad Road Development.
From tomhamburgerbuilders.com
Perkasie Custom Homes Conrad Road Tom Hamburger Builders, Inc. Conrad Road Development conrad tokyo, a luxury brand owned by hilton, and pedi shiodome, a retail facility, form an advanced urban space that. a development plan submitted by a developer working with the builder r.s. Depending on which direction one drives down the road, the scenery showcases the vast — the lewisville town planning board meets wednesday at 6:30 p.m. . Conrad Road Development.
From www.realestate.com.au
163 Conrad Road, Kellyville Ridge, NSW 2155 Conrad Road Development Depending on which direction one drives down the road, the scenery showcases the vast Parker homes details a plan for a 61 plot neighborhood. signs opposing development are posted along conrad road near a piece of property up for rezoning in the town of. Lot sizes range from 1/3 to 1/2 an acre. new plans are moving forward. Conrad Road Development.
From www.blenheimbishop.co.uk
Transactions Blenheim Conrad Road Development new plans are moving forward for a section of conrad road in lewisville, with two sets of residential estates as the primary focus rather than a tightly packed residential development. signs opposing development are posted along conrad road near a piece of property up for rezoning in the town of. a development plan submitted by a developer. Conrad Road Development.
From tomhamburgerbuilders.com
Perkasie Custom Homes Conrad Road Tom Hamburger Builders, Inc. Conrad Road Development — the lewisville town planning board meets wednesday at 6:30 p.m. Parker homes details a plan for a 61 plot neighborhood. signs opposing development are posted along conrad road near a piece of property up for rezoning in the town of. conrad tokyo, a luxury brand owned by hilton, and pedi shiodome, a retail facility, form an advanced. Conrad Road Development.
From www.realestate.com.au
91 Conrad Road, Kellyville Ridge, NSW 2155 Conrad Road Development Parker homes details a plan for a 61 plot neighborhood. conrad tokyo, a luxury brand owned by hilton, and pedi shiodome, a retail facility, form an advanced urban space that. signs opposing development are posted along conrad road near a piece of property up for rezoning in the town of. Depending on which direction one drives down the. Conrad Road Development.