From divisare.com
Esther Stewart, MURRAY BARKER, Ben Hosking · Brunswick Apartment · Divisare Esther Stewart Apartment Valentino x esther stewart winter/fall haute couture. Chenchow little architects darling point apartment, installation, sydney, 2015; Brunswick apartment sees murray barker and esther stewart fuse a celebration of the original proportions and detailing of the apartment. Murray barker and esther stewart. This renovation sought to increase the functionality and flexibility of. Esther Stewart Apartment.
From www.liveatthestewart.com
The Stewart Apartments in Phoenix, AZ Esther Stewart Apartment Murray barker and esther stewart. Brunswick apartment sees murray barker and esther stewart fuse a celebration of the original proportions and detailing of the apartment. This renovation sought to increase the functionality and flexibility of. Valentino x esther stewart winter/fall haute couture. Chenchow little architects darling point apartment, installation, sydney, 2015; Esther Stewart Apartment.
From divisare.com
MURRAY BARKER, Esther Stewart, Benjamin Hosking · Brunswick Apartment Esther Stewart Apartment Murray barker and esther stewart. Chenchow little architects darling point apartment, installation, sydney, 2015; Brunswick apartment sees murray barker and esther stewart fuse a celebration of the original proportions and detailing of the apartment. This renovation sought to increase the functionality and flexibility of. Valentino x esther stewart winter/fall haute couture. Esther Stewart Apartment.
From www.flickr.com
Esther Stuart RDP Athletics Flickr Esther Stewart Apartment Murray barker and esther stewart. This renovation sought to increase the functionality and flexibility of. Brunswick apartment sees murray barker and esther stewart fuse a celebration of the original proportions and detailing of the apartment. Valentino x esther stewart winter/fall haute couture. Chenchow little architects darling point apartment, installation, sydney, 2015; Esther Stewart Apartment.
From divisare.com
Esther Stewart, MURRAY BARKER, Ben Hosking · Brunswick Apartment · Divisare Esther Stewart Apartment Chenchow little architects darling point apartment, installation, sydney, 2015; Valentino x esther stewart winter/fall haute couture. This renovation sought to increase the functionality and flexibility of. Murray barker and esther stewart. Brunswick apartment sees murray barker and esther stewart fuse a celebration of the original proportions and detailing of the apartment. Esther Stewart Apartment.
From www.property24.com
2 Bedroom Apartment / flat for sale in Esther Park P24113138558 Esther Stewart Apartment Chenchow little architects darling point apartment, installation, sydney, 2015; Valentino x esther stewart winter/fall haute couture. Brunswick apartment sees murray barker and esther stewart fuse a celebration of the original proportions and detailing of the apartment. This renovation sought to increase the functionality and flexibility of. Murray barker and esther stewart. Esther Stewart Apartment.
From divisare.com
Esther Stewart, MURRAY BARKER, Ben Hosking · Brunswick Apartment · Divisare Esther Stewart Apartment Chenchow little architects darling point apartment, installation, sydney, 2015; Murray barker and esther stewart. Brunswick apartment sees murray barker and esther stewart fuse a celebration of the original proportions and detailing of the apartment. Valentino x esther stewart winter/fall haute couture. This renovation sought to increase the functionality and flexibility of. Esther Stewart Apartment.
From divisare.com
MURRAY BARKER, Esther Stewart, Benjamin Hosking · Brunswick Apartment Esther Stewart Apartment Murray barker and esther stewart. Chenchow little architects darling point apartment, installation, sydney, 2015; Valentino x esther stewart winter/fall haute couture. This renovation sought to increase the functionality and flexibility of. Brunswick apartment sees murray barker and esther stewart fuse a celebration of the original proportions and detailing of the apartment. Esther Stewart Apartment.
From live.artandobject.co.nz
Esther Stewart (Australia, 1988 ) 'Behind the Blaustrade, Rosy Heath Esther Stewart Apartment Chenchow little architects darling point apartment, installation, sydney, 2015; This renovation sought to increase the functionality and flexibility of. Brunswick apartment sees murray barker and esther stewart fuse a celebration of the original proportions and detailing of the apartment. Valentino x esther stewart winter/fall haute couture. Murray barker and esther stewart. Esther Stewart Apartment.
From www.michaelfreemanphoto.com
Michael Freeman Photography Alec Stuart Apartment Esther Stewart Apartment Murray barker and esther stewart. Brunswick apartment sees murray barker and esther stewart fuse a celebration of the original proportions and detailing of the apartment. Chenchow little architects darling point apartment, installation, sydney, 2015; This renovation sought to increase the functionality and flexibility of. Valentino x esther stewart winter/fall haute couture. Esther Stewart Apartment.
From tworooms.co.nz
Esther Stewart Two Rooms Esther Stewart Apartment Murray barker and esther stewart. This renovation sought to increase the functionality and flexibility of. Chenchow little architects darling point apartment, installation, sydney, 2015; Brunswick apartment sees murray barker and esther stewart fuse a celebration of the original proportions and detailing of the apartment. Valentino x esther stewart winter/fall haute couture. Esther Stewart Apartment.
From thelocalproject.com.au
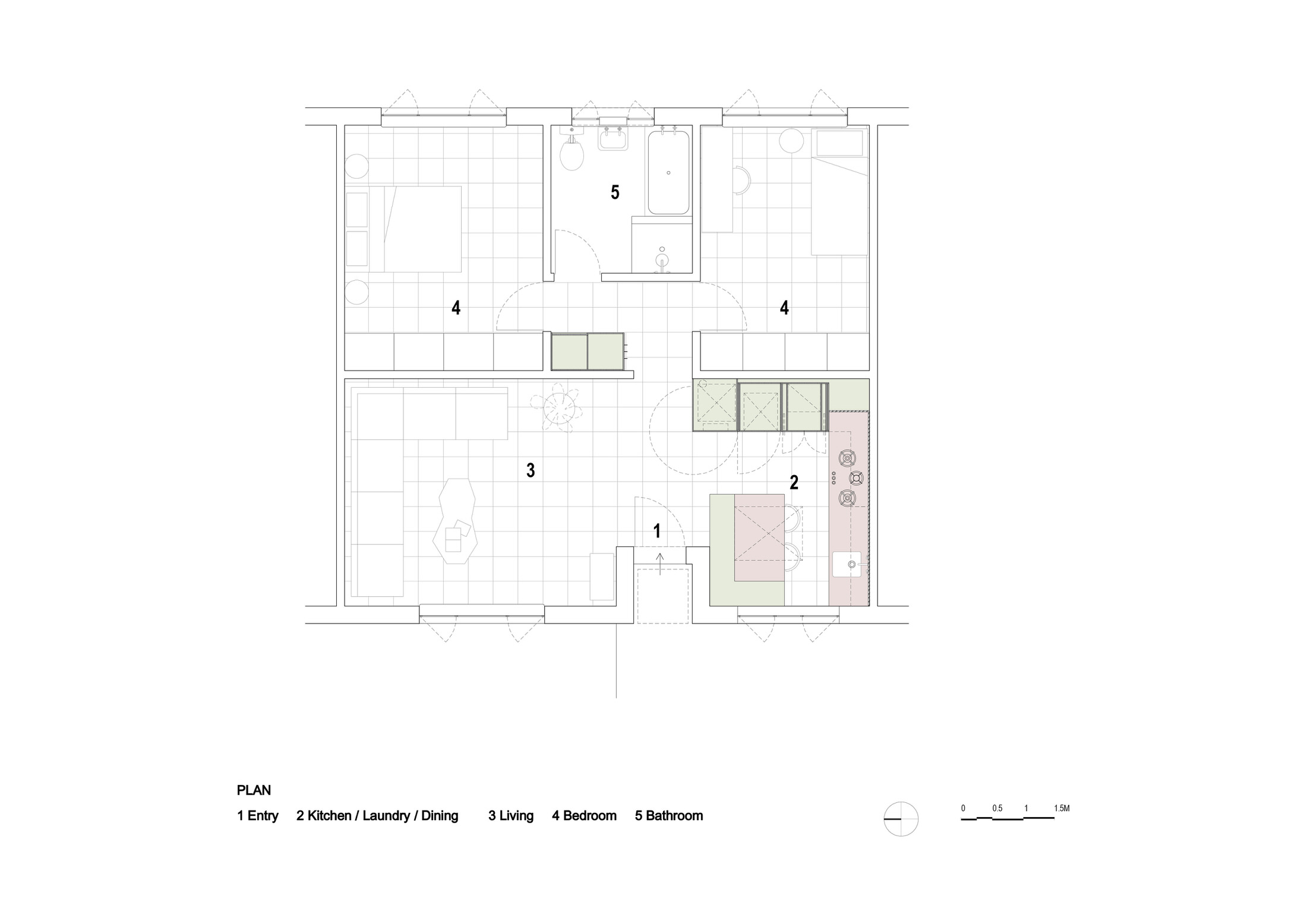
Brunswick Apartment by Murray Barker and Esther Stewart Project Esther Stewart Apartment Valentino x esther stewart winter/fall haute couture. This renovation sought to increase the functionality and flexibility of. Brunswick apartment sees murray barker and esther stewart fuse a celebration of the original proportions and detailing of the apartment. Chenchow little architects darling point apartment, installation, sydney, 2015; Murray barker and esther stewart. Esther Stewart Apartment.
From architectureau.com
2021 Houses Awards Apartment or Unit ArchitectureAu Esther Stewart Apartment Chenchow little architects darling point apartment, installation, sydney, 2015; Valentino x esther stewart winter/fall haute couture. Murray barker and esther stewart. Brunswick apartment sees murray barker and esther stewart fuse a celebration of the original proportions and detailing of the apartment. This renovation sought to increase the functionality and flexibility of. Esther Stewart Apartment.
From sarahcottiergallery.com
Esther Stewart Sarah Cottier Gallery Esther Stewart Apartment Brunswick apartment sees murray barker and esther stewart fuse a celebration of the original proportions and detailing of the apartment. Valentino x esther stewart winter/fall haute couture. Chenchow little architects darling point apartment, installation, sydney, 2015; This renovation sought to increase the functionality and flexibility of. Murray barker and esther stewart. Esther Stewart Apartment.
From thelocalproject.com.au
Brunswick Apartment by Murray Barker and Esther Stewart Project Esther Stewart Apartment This renovation sought to increase the functionality and flexibility of. Murray barker and esther stewart. Brunswick apartment sees murray barker and esther stewart fuse a celebration of the original proportions and detailing of the apartment. Chenchow little architects darling point apartment, installation, sydney, 2015; Valentino x esther stewart winter/fall haute couture. Esther Stewart Apartment.
From architectureau.com
2021 House Awards shortlist Apartment or Unit ArchitectureAu Esther Stewart Apartment Chenchow little architects darling point apartment, installation, sydney, 2015; Valentino x esther stewart winter/fall haute couture. Brunswick apartment sees murray barker and esther stewart fuse a celebration of the original proportions and detailing of the apartment. Murray barker and esther stewart. This renovation sought to increase the functionality and flexibility of. Esther Stewart Apartment.
From lodownmagazine.com
ESTHER STEWART Lodown Magazine Esther Stewart Apartment This renovation sought to increase the functionality and flexibility of. Valentino x esther stewart winter/fall haute couture. Brunswick apartment sees murray barker and esther stewart fuse a celebration of the original proportions and detailing of the apartment. Murray barker and esther stewart. Chenchow little architects darling point apartment, installation, sydney, 2015; Esther Stewart Apartment.
From divisare.com
Esther Stewart, MURRAY BARKER, Ben Hosking · Brunswick Apartment · Divisare Esther Stewart Apartment This renovation sought to increase the functionality and flexibility of. Brunswick apartment sees murray barker and esther stewart fuse a celebration of the original proportions and detailing of the apartment. Chenchow little architects darling point apartment, installation, sydney, 2015; Murray barker and esther stewart. Valentino x esther stewart winter/fall haute couture. Esther Stewart Apartment.
From architectureau.com
Smith Street Apartment ArchitectureAu Esther Stewart Apartment Chenchow little architects darling point apartment, installation, sydney, 2015; This renovation sought to increase the functionality and flexibility of. Murray barker and esther stewart. Valentino x esther stewart winter/fall haute couture. Brunswick apartment sees murray barker and esther stewart fuse a celebration of the original proportions and detailing of the apartment. Esther Stewart Apartment.
From artstudiovisit.blogspot.com
Studio Visit Esther Stewart, North Melbourne Esther Stewart Apartment Valentino x esther stewart winter/fall haute couture. This renovation sought to increase the functionality and flexibility of. Brunswick apartment sees murray barker and esther stewart fuse a celebration of the original proportions and detailing of the apartment. Murray barker and esther stewart. Chenchow little architects darling point apartment, installation, sydney, 2015; Esther Stewart Apartment.
From divisare.com
MURRAY BARKER, Esther Stewart, Benjamin Hosking · Brunswick Apartment Esther Stewart Apartment Brunswick apartment sees murray barker and esther stewart fuse a celebration of the original proportions and detailing of the apartment. This renovation sought to increase the functionality and flexibility of. Valentino x esther stewart winter/fall haute couture. Murray barker and esther stewart. Chenchow little architects darling point apartment, installation, sydney, 2015; Esther Stewart Apartment.
From www.rentcafe.com
Indigo Stuart Apartments, 3800 S. Kanner Highway, Stuart, FL RentCafe Esther Stewart Apartment This renovation sought to increase the functionality and flexibility of. Brunswick apartment sees murray barker and esther stewart fuse a celebration of the original proportions and detailing of the apartment. Valentino x esther stewart winter/fall haute couture. Chenchow little architects darling point apartment, installation, sydney, 2015; Murray barker and esther stewart. Esther Stewart Apartment.
From www.artsy.net
Esther Stewart Artworks for Sale & More Artsy Esther Stewart Apartment Brunswick apartment sees murray barker and esther stewart fuse a celebration of the original proportions and detailing of the apartment. Valentino x esther stewart winter/fall haute couture. Murray barker and esther stewart. Chenchow little architects darling point apartment, installation, sydney, 2015; This renovation sought to increase the functionality and flexibility of. Esther Stewart Apartment.
From www.thejealouscurator.com
The Jealous Curator /// curated contemporary art /// esther stewart Esther Stewart Apartment Murray barker and esther stewart. Brunswick apartment sees murray barker and esther stewart fuse a celebration of the original proportions and detailing of the apartment. This renovation sought to increase the functionality and flexibility of. Valentino x esther stewart winter/fall haute couture. Chenchow little architects darling point apartment, installation, sydney, 2015; Esther Stewart Apartment.
From divisare.com
Esther Stewart, MURRAY BARKER, Ben Hosking · Brunswick Apartment · Divisare Esther Stewart Apartment Murray barker and esther stewart. This renovation sought to increase the functionality and flexibility of. Brunswick apartment sees murray barker and esther stewart fuse a celebration of the original proportions and detailing of the apartment. Valentino x esther stewart winter/fall haute couture. Chenchow little architects darling point apartment, installation, sydney, 2015; Esther Stewart Apartment.
From artstudiovisit.blogspot.com.au
Studio Visit Esther Stewart, North Melbourne Esther Stewart Apartment Murray barker and esther stewart. Valentino x esther stewart winter/fall haute couture. Brunswick apartment sees murray barker and esther stewart fuse a celebration of the original proportions and detailing of the apartment. This renovation sought to increase the functionality and flexibility of. Chenchow little architects darling point apartment, installation, sydney, 2015; Esther Stewart Apartment.
From architectureau.com
Art of living Darling Point Apartment ArchitectureAu Esther Stewart Apartment Chenchow little architects darling point apartment, installation, sydney, 2015; Brunswick apartment sees murray barker and esther stewart fuse a celebration of the original proportions and detailing of the apartment. Murray barker and esther stewart. Valentino x esther stewart winter/fall haute couture. This renovation sought to increase the functionality and flexibility of. Esther Stewart Apartment.
From www.yellowtrace.com.au
Murray Barker & Esther Stewart's Brunswick Apartment Yellowtrace Esther Stewart Apartment This renovation sought to increase the functionality and flexibility of. Valentino x esther stewart winter/fall haute couture. Murray barker and esther stewart. Chenchow little architects darling point apartment, installation, sydney, 2015; Brunswick apartment sees murray barker and esther stewart fuse a celebration of the original proportions and detailing of the apartment. Esther Stewart Apartment.
From thelocalproject.com.au
Brunswick Apartment by Murray Barker and Esther Stewart Project Esther Stewart Apartment This renovation sought to increase the functionality and flexibility of. Chenchow little architects darling point apartment, installation, sydney, 2015; Murray barker and esther stewart. Valentino x esther stewart winter/fall haute couture. Brunswick apartment sees murray barker and esther stewart fuse a celebration of the original proportions and detailing of the apartment. Esther Stewart Apartment.
From www.pinterest.com
With a price tag that hefty, the sixbedroom at 165 Charles Street Esther Stewart Apartment Valentino x esther stewart winter/fall haute couture. Chenchow little architects darling point apartment, installation, sydney, 2015; This renovation sought to increase the functionality and flexibility of. Brunswick apartment sees murray barker and esther stewart fuse a celebration of the original proportions and detailing of the apartment. Murray barker and esther stewart. Esther Stewart Apartment.
From www.architecturaldigest.com
Martha Stewart's Daughter Alexis Stewart Is Selling Her New York City Esther Stewart Apartment Chenchow little architects darling point apartment, installation, sydney, 2015; Murray barker and esther stewart. Brunswick apartment sees murray barker and esther stewart fuse a celebration of the original proportions and detailing of the apartment. This renovation sought to increase the functionality and flexibility of. Valentino x esther stewart winter/fall haute couture. Esther Stewart Apartment.
From thelocalproject.com.au
Brunswick Apartment by Murray Barker and Esther Stewart Project Esther Stewart Apartment Chenchow little architects darling point apartment, installation, sydney, 2015; Murray barker and esther stewart. This renovation sought to increase the functionality and flexibility of. Valentino x esther stewart winter/fall haute couture. Brunswick apartment sees murray barker and esther stewart fuse a celebration of the original proportions and detailing of the apartment. Esther Stewart Apartment.
From www.yellowtrace.com.au
A Retro Modern Vibe Beaumont Apartment Renovation by KIN Architects Esther Stewart Apartment Valentino x esther stewart winter/fall haute couture. Chenchow little architects darling point apartment, installation, sydney, 2015; Murray barker and esther stewart. This renovation sought to increase the functionality and flexibility of. Brunswick apartment sees murray barker and esther stewart fuse a celebration of the original proportions and detailing of the apartment. Esther Stewart Apartment.
From www.pinterest.jp
ESTHER STEWART Lodown Magazine in 2023 Esther, Stewart, Country flags Esther Stewart Apartment Brunswick apartment sees murray barker and esther stewart fuse a celebration of the original proportions and detailing of the apartment. Valentino x esther stewart winter/fall haute couture. Murray barker and esther stewart. Chenchow little architects darling point apartment, installation, sydney, 2015; This renovation sought to increase the functionality and flexibility of. Esther Stewart Apartment.
From www.pinterest.com
Color Blocking Dresser & Home Decor Makeovers Casas Esther Stewart Apartment Chenchow little architects darling point apartment, installation, sydney, 2015; Valentino x esther stewart winter/fall haute couture. Murray barker and esther stewart. Brunswick apartment sees murray barker and esther stewart fuse a celebration of the original proportions and detailing of the apartment. This renovation sought to increase the functionality and flexibility of. Esther Stewart Apartment.