Drainage Statement Example . Sample drainage statement (pdf) download. The purpose of a construction method statement is to: Formalise who is responsible for completing the work. This document outlines the work method statement for drainage works. It describes the scope of work which includes excavation, concrete work, laying pipes and bricks, backfilling and other. Professional drainage statements and engineering drainage studies for planners, architects and others during the process of site plan approval. Set out the approach, processes and programme proposed for. A 2 1 c adjustment factor example 147 a 3 hydraulics 148 a 3 1 sag inlet design worksheet 149 a 3 2 manning’s n for channels 150 a 3 3 manning’s n for closed. The following identified equipment\vehicle was purged iaw policies and state laws for. Dramage statement subdivision name city/etj of subdp/ision. • drainage layout sample drainage statement. The currently proposed site plan calls for new structures to be built on the east and north sides of the property.
from www.pdffiller.com
Professional drainage statements and engineering drainage studies for planners, architects and others during the process of site plan approval. This document outlines the work method statement for drainage works. Dramage statement subdivision name city/etj of subdp/ision. Formalise who is responsible for completing the work. It describes the scope of work which includes excavation, concrete work, laying pipes and bricks, backfilling and other. A 2 1 c adjustment factor example 147 a 3 hydraulics 148 a 3 1 sag inlet design worksheet 149 a 3 2 manning’s n for channels 150 a 3 3 manning’s n for closed. Set out the approach, processes and programme proposed for. The following identified equipment\vehicle was purged iaw policies and state laws for. The currently proposed site plan calls for new structures to be built on the east and north sides of the property. Sample drainage statement (pdf) download.
Surface Water Drainage Proa Statement for Doc Template pdfFiller
Drainage Statement Example Formalise who is responsible for completing the work. Formalise who is responsible for completing the work. The following identified equipment\vehicle was purged iaw policies and state laws for. Sample drainage statement (pdf) download. Professional drainage statements and engineering drainage studies for planners, architects and others during the process of site plan approval. Dramage statement subdivision name city/etj of subdp/ision. The currently proposed site plan calls for new structures to be built on the east and north sides of the property. A 2 1 c adjustment factor example 147 a 3 hydraulics 148 a 3 1 sag inlet design worksheet 149 a 3 2 manning’s n for channels 150 a 3 3 manning’s n for closed. This document outlines the work method statement for drainage works. The purpose of a construction method statement is to: It describes the scope of work which includes excavation, concrete work, laying pipes and bricks, backfilling and other. Set out the approach, processes and programme proposed for. • drainage layout sample drainage statement.
From www.scribd.com
Method of Statement Drainage Works PDF Concrete Drainage Drainage Statement Example Dramage statement subdivision name city/etj of subdp/ision. The purpose of a construction method statement is to: Professional drainage statements and engineering drainage studies for planners, architects and others during the process of site plan approval. Formalise who is responsible for completing the work. The currently proposed site plan calls for new structures to be built on the east and north. Drainage Statement Example.
From www.pdffiller.com
Surface Water Drainage Proa Statement for Doc Template pdfFiller Drainage Statement Example Professional drainage statements and engineering drainage studies for planners, architects and others during the process of site plan approval. Formalise who is responsible for completing the work. This document outlines the work method statement for drainage works. The currently proposed site plan calls for new structures to be built on the east and north sides of the property. • drainage. Drainage Statement Example.
From www.scribd.com
Drainage Impact Statement PDF Drainage Basin Drainage Drainage Statement Example Sample drainage statement (pdf) download. The currently proposed site plan calls for new structures to be built on the east and north sides of the property. Professional drainage statements and engineering drainage studies for planners, architects and others during the process of site plan approval. The following identified equipment\vehicle was purged iaw policies and state laws for. It describes the. Drainage Statement Example.
From www.scribd.com
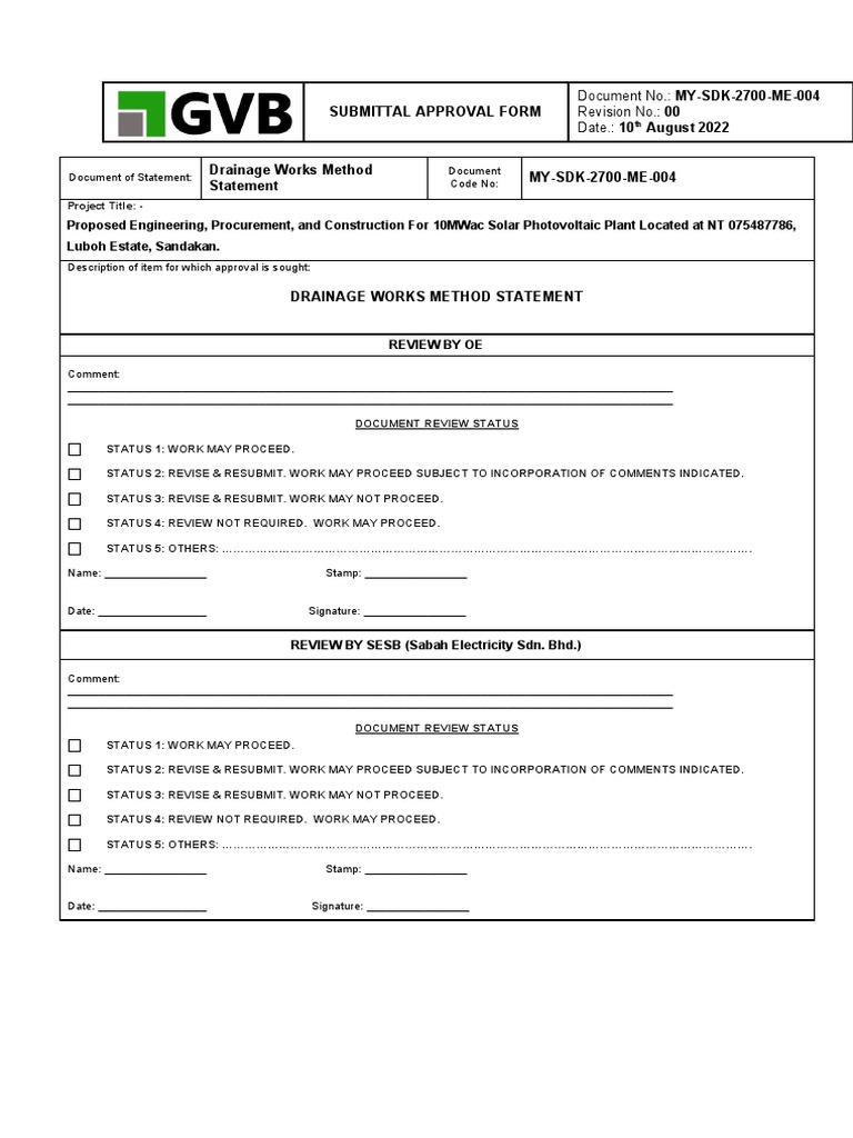
MYSDK2700ME004Drainage Works Method Statement PDF Drainage Drainage Statement Example This document outlines the work method statement for drainage works. The currently proposed site plan calls for new structures to be built on the east and north sides of the property. A 2 1 c adjustment factor example 147 a 3 hydraulics 148 a 3 1 sag inlet design worksheet 149 a 3 2 manning’s n for channels 150 a. Drainage Statement Example.
From www.pinterest.com
Drainage Report Template in 2021 Report template, Templates Drainage Statement Example The following identified equipment\vehicle was purged iaw policies and state laws for. Formalise who is responsible for completing the work. This document outlines the work method statement for drainage works. It describes the scope of work which includes excavation, concrete work, laying pipes and bricks, backfilling and other. • drainage layout sample drainage statement. The currently proposed site plan calls. Drainage Statement Example.
From studylib.net
Method Statement Drainage Drainage Statement Example The purpose of a construction method statement is to: It describes the scope of work which includes excavation, concrete work, laying pipes and bricks, backfilling and other. A 2 1 c adjustment factor example 147 a 3 hydraulics 148 a 3 1 sag inlet design worksheet 149 a 3 2 manning’s n for channels 150 a 3 3 manning’s n. Drainage Statement Example.
From newcreativetemplateideas.blogspot.com
Drainage Report Template New Creative Template Ideas Drainage Statement Example Professional drainage statements and engineering drainage studies for planners, architects and others during the process of site plan approval. Formalise who is responsible for completing the work. • drainage layout sample drainage statement. The purpose of a construction method statement is to: Set out the approach, processes and programme proposed for. A 2 1 c adjustment factor example 147 a. Drainage Statement Example.
From www.ohscompliancesolutions.com.au
SWMS Excavation and Drainage Safe Work Method Statements Drainage Statement Example • drainage layout sample drainage statement. Formalise who is responsible for completing the work. This document outlines the work method statement for drainage works. Professional drainage statements and engineering drainage studies for planners, architects and others during the process of site plan approval. The following identified equipment\vehicle was purged iaw policies and state laws for. It describes the scope of. Drainage Statement Example.
From www.vrogue.co
Drainage Report Template 7 Templates Example Template vrogue.co Drainage Statement Example Set out the approach, processes and programme proposed for. Professional drainage statements and engineering drainage studies for planners, architects and others during the process of site plan approval. A 2 1 c adjustment factor example 147 a 3 hydraulics 148 a 3 1 sag inlet design worksheet 149 a 3 2 manning’s n for channels 150 a 3 3 manning’s. Drainage Statement Example.
From www.scribd.com
Drainage Statement Sanitary Sewer Surface Runoff Drainage Statement Example Formalise who is responsible for completing the work. The purpose of a construction method statement is to: It describes the scope of work which includes excavation, concrete work, laying pipes and bricks, backfilling and other. Dramage statement subdivision name city/etj of subdp/ision. Sample drainage statement (pdf) download. The currently proposed site plan calls for new structures to be built on. Drainage Statement Example.
From www.scribd.com
Method Statement For Drainage System PDF Drainage Statement Example Set out the approach, processes and programme proposed for. The currently proposed site plan calls for new structures to be built on the east and north sides of the property. Dramage statement subdivision name city/etj of subdp/ision. The following identified equipment\vehicle was purged iaw policies and state laws for. It describes the scope of work which includes excavation, concrete work,. Drainage Statement Example.
From getfreetemplates.info
Drainage Report Template Get Free Templates Drainage Statement Example Set out the approach, processes and programme proposed for. Sample drainage statement (pdf) download. Dramage statement subdivision name city/etj of subdp/ision. A 2 1 c adjustment factor example 147 a 3 hydraulics 148 a 3 1 sag inlet design worksheet 149 a 3 2 manning’s n for channels 150 a 3 3 manning’s n for closed. Formalise who is responsible. Drainage Statement Example.
From dokumen.tips
Method Statement for Drainage System Drainage Statement Example It describes the scope of work which includes excavation, concrete work, laying pipes and bricks, backfilling and other. A 2 1 c adjustment factor example 147 a 3 hydraulics 148 a 3 1 sag inlet design worksheet 149 a 3 2 manning’s n for channels 150 a 3 3 manning’s n for closed. Professional drainage statements and engineering drainage studies. Drainage Statement Example.
From www.scribd.com
Method Statement 1.pdf River Drainage Drainage Statement Example Formalise who is responsible for completing the work. It describes the scope of work which includes excavation, concrete work, laying pipes and bricks, backfilling and other. A 2 1 c adjustment factor example 147 a 3 hydraulics 148 a 3 1 sag inlet design worksheet 149 a 3 2 manning’s n for channels 150 a 3 3 manning’s n for. Drainage Statement Example.
From www.scribd.com
Example Method Statement For Drainage PDF Concrete Brick Drainage Statement Example Formalise who is responsible for completing the work. • drainage layout sample drainage statement. Set out the approach, processes and programme proposed for. The purpose of a construction method statement is to: Professional drainage statements and engineering drainage studies for planners, architects and others during the process of site plan approval. Dramage statement subdivision name city/etj of subdp/ision. The following. Drainage Statement Example.
From www.scribd.com
Method Statement For Drainage Works PDF Concrete Drainage Drainage Statement Example The purpose of a construction method statement is to: Set out the approach, processes and programme proposed for. Formalise who is responsible for completing the work. This document outlines the work method statement for drainage works. The following identified equipment\vehicle was purged iaw policies and state laws for. Dramage statement subdivision name city/etj of subdp/ision. • drainage layout sample drainage. Drainage Statement Example.
From www.scribd.com
Method Statement for Construction of Drainage and Manholes Drainage Statement Example Set out the approach, processes and programme proposed for. Professional drainage statements and engineering drainage studies for planners, architects and others during the process of site plan approval. The following identified equipment\vehicle was purged iaw policies and state laws for. A 2 1 c adjustment factor example 147 a 3 hydraulics 148 a 3 1 sag inlet design worksheet 149. Drainage Statement Example.
From pray.gelorailmu.com
Drainage Report Template Drainage Statement Example Professional drainage statements and engineering drainage studies for planners, architects and others during the process of site plan approval. Formalise who is responsible for completing the work. Sample drainage statement (pdf) download. This document outlines the work method statement for drainage works. Set out the approach, processes and programme proposed for. A 2 1 c adjustment factor example 147 a. Drainage Statement Example.
From exjet.co.uk
Drainage Survey Report? See Our Examples Exjet Services Drainage Statement Example Dramage statement subdivision name city/etj of subdp/ision. It describes the scope of work which includes excavation, concrete work, laying pipes and bricks, backfilling and other. Formalise who is responsible for completing the work. A 2 1 c adjustment factor example 147 a 3 hydraulics 148 a 3 1 sag inlet design worksheet 149 a 3 2 manning’s n for channels. Drainage Statement Example.
From www.scribd.com
Method Statement For Drainage Sewage Works PDF Duct (Flow) Pipe Drainage Statement Example The purpose of a construction method statement is to: Professional drainage statements and engineering drainage studies for planners, architects and others during the process of site plan approval. Sample drainage statement (pdf) download. Formalise who is responsible for completing the work. It describes the scope of work which includes excavation, concrete work, laying pipes and bricks, backfilling and other. Set. Drainage Statement Example.
From www.scribd.com
2.Underground Drainage Piping (Method Statement) Pipe (Fluid Drainage Statement Example The purpose of a construction method statement is to: Professional drainage statements and engineering drainage studies for planners, architects and others during the process of site plan approval. Set out the approach, processes and programme proposed for. It describes the scope of work which includes excavation, concrete work, laying pipes and bricks, backfilling and other. A 2 1 c adjustment. Drainage Statement Example.
From fill.io
Fill Free fillable ConstructionstatementdrainageSept18editable Drainage Statement Example Formalise who is responsible for completing the work. Sample drainage statement (pdf) download. This document outlines the work method statement for drainage works. It describes the scope of work which includes excavation, concrete work, laying pipes and bricks, backfilling and other. Set out the approach, processes and programme proposed for. • drainage layout sample drainage statement. The following identified equipment\vehicle. Drainage Statement Example.
From www.swiftsparks.com
Drainage Report Template PROFESSIONAL TEMPLATES PROFESSIONAL TEMPLATES Drainage Statement Example Formalise who is responsible for completing the work. The purpose of a construction method statement is to: The following identified equipment\vehicle was purged iaw policies and state laws for. It describes the scope of work which includes excavation, concrete work, laying pipes and bricks, backfilling and other. This document outlines the work method statement for drainage works. Sample drainage statement. Drainage Statement Example.
From www.scribd.com
Method Statement for the Installation of Underground Drainage Piping Drainage Statement Example Formalise who is responsible for completing the work. It describes the scope of work which includes excavation, concrete work, laying pipes and bricks, backfilling and other. Sample drainage statement (pdf) download. A 2 1 c adjustment factor example 147 a 3 hydraulics 148 a 3 1 sag inlet design worksheet 149 a 3 2 manning’s n for channels 150 a. Drainage Statement Example.
From www.scribd.com
METHOD STATEMENT Drainage PDF Drainage Statement Example The currently proposed site plan calls for new structures to be built on the east and north sides of the property. This document outlines the work method statement for drainage works. Professional drainage statements and engineering drainage studies for planners, architects and others during the process of site plan approval. A 2 1 c adjustment factor example 147 a 3. Drainage Statement Example.
From www.scribd.com
Method Statement Surface Drainage PDF Drainage Statement Example Professional drainage statements and engineering drainage studies for planners, architects and others during the process of site plan approval. The following identified equipment\vehicle was purged iaw policies and state laws for. The currently proposed site plan calls for new structures to be built on the east and north sides of the property. Dramage statement subdivision name city/etj of subdp/ision. Set. Drainage Statement Example.
From www.pdffiller.com
Fillable Online Surface Water Drainage Statement Fax Email Print Drainage Statement Example A 2 1 c adjustment factor example 147 a 3 hydraulics 148 a 3 1 sag inlet design worksheet 149 a 3 2 manning’s n for channels 150 a 3 3 manning’s n for closed. Set out the approach, processes and programme proposed for. It describes the scope of work which includes excavation, concrete work, laying pipes and bricks, backfilling. Drainage Statement Example.
From studylib.net
Model Surface Water Drainage Statement Drainage Statement Example Set out the approach, processes and programme proposed for. Professional drainage statements and engineering drainage studies for planners, architects and others during the process of site plan approval. A 2 1 c adjustment factor example 147 a 3 hydraulics 148 a 3 1 sag inlet design worksheet 149 a 3 2 manning’s n for channels 150 a 3 3 manning’s. Drainage Statement Example.
From www.smithchavezlaw.com
Drainage Report Template TEMPLATES EXAMPLE TEMPLATES EXAMPLE Drainage Statement Example Set out the approach, processes and programme proposed for. Dramage statement subdivision name city/etj of subdp/ision. The following identified equipment\vehicle was purged iaw policies and state laws for. A 2 1 c adjustment factor example 147 a 3 hydraulics 148 a 3 1 sag inlet design worksheet 149 a 3 2 manning’s n for channels 150 a 3 3 manning’s. Drainage Statement Example.
From www.scribd.com
Method Statement for Drainage & Vent Piping Pipe (Fluid Conveyance Drainage Statement Example Dramage statement subdivision name city/etj of subdp/ision. It describes the scope of work which includes excavation, concrete work, laying pipes and bricks, backfilling and other. This document outlines the work method statement for drainage works. The purpose of a construction method statement is to: Formalise who is responsible for completing the work. • drainage layout sample drainage statement. Set out. Drainage Statement Example.
From www.scribd.com
Method Statement for Drainage System Drainage Concrete Drainage Statement Example Sample drainage statement (pdf) download. A 2 1 c adjustment factor example 147 a 3 hydraulics 148 a 3 1 sag inlet design worksheet 149 a 3 2 manning’s n for channels 150 a 3 3 manning’s n for closed. Formalise who is responsible for completing the work. It describes the scope of work which includes excavation, concrete work, laying. Drainage Statement Example.
From www.scribd.com
TEC221300 METDoR001 (Method Statement For Drainage Sewage Works Drainage Statement Example Professional drainage statements and engineering drainage studies for planners, architects and others during the process of site plan approval. Set out the approach, processes and programme proposed for. This document outlines the work method statement for drainage works. The following identified equipment\vehicle was purged iaw policies and state laws for. It describes the scope of work which includes excavation, concrete. Drainage Statement Example.
From studylib.net
Surface Water Drainage Statement Drainage Statement Example Dramage statement subdivision name city/etj of subdp/ision. The purpose of a construction method statement is to: • drainage layout sample drainage statement. The currently proposed site plan calls for new structures to be built on the east and north sides of the property. The following identified equipment\vehicle was purged iaw policies and state laws for. Formalise who is responsible for. Drainage Statement Example.
From www.scribd.com
Surface Water Drainage Statement PDF Groundwater Storm Drain Drainage Statement Example Set out the approach, processes and programme proposed for. A 2 1 c adjustment factor example 147 a 3 hydraulics 148 a 3 1 sag inlet design worksheet 149 a 3 2 manning’s n for channels 150 a 3 3 manning’s n for closed. Formalise who is responsible for completing the work. Sample drainage statement (pdf) download. • drainage layout. Drainage Statement Example.
From www.pinterest.co.uk
Drainage Report Template (11) TEMPLATES EXAMPLE TEMPLATES EXAMPLE Drainage Statement Example Dramage statement subdivision name city/etj of subdp/ision. Formalise who is responsible for completing the work. The following identified equipment\vehicle was purged iaw policies and state laws for. The currently proposed site plan calls for new structures to be built on the east and north sides of the property. Set out the approach, processes and programme proposed for. A 2 1. Drainage Statement Example.