Rutherford County Tn Land Disturbance Permit . A member of our administrative staff will email you. please note the state of tn requires permitting through tennessee department of environment and conservation (tdec) if. any construction activity involving clearing, grading or excavation over one (1) acre requires a rutherford county land. the following items should be submitted with the commercial building permit application for plans review. payment must be paid after approval of the land disturbance application. an inventory of actively permitted public and private construction sites that result in a total land disturbance that exceed the 1. any construction activities over 1 acre of land requires a rutherford county land disturbance permit. the department inspects land disturbances over an acre and the entire subdivision development process.
from www.permittingplus.org
any construction activities over 1 acre of land requires a rutherford county land disturbance permit. the department inspects land disturbances over an acre and the entire subdivision development process. please note the state of tn requires permitting through tennessee department of environment and conservation (tdec) if. A member of our administrative staff will email you. the following items should be submitted with the commercial building permit application for plans review. payment must be paid after approval of the land disturbance application. any construction activity involving clearing, grading or excavation over one (1) acre requires a rutherford county land. an inventory of actively permitted public and private construction sites that result in a total land disturbance that exceed the 1.
Land Disturbance Permits Permitting Plus
Rutherford County Tn Land Disturbance Permit any construction activities over 1 acre of land requires a rutherford county land disturbance permit. payment must be paid after approval of the land disturbance application. any construction activity involving clearing, grading or excavation over one (1) acre requires a rutherford county land. the following items should be submitted with the commercial building permit application for plans review. any construction activities over 1 acre of land requires a rutherford county land disturbance permit. an inventory of actively permitted public and private construction sites that result in a total land disturbance that exceed the 1. please note the state of tn requires permitting through tennessee department of environment and conservation (tdec) if. A member of our administrative staff will email you. the department inspects land disturbances over an acre and the entire subdivision development process.
From www.dochub.com
Tennessee land disturbance permit Fill out & sign online DocHub Rutherford County Tn Land Disturbance Permit A member of our administrative staff will email you. any construction activity involving clearing, grading or excavation over one (1) acre requires a rutherford county land. please note the state of tn requires permitting through tennessee department of environment and conservation (tdec) if. an inventory of actively permitted public and private construction sites that result in a. Rutherford County Tn Land Disturbance Permit.
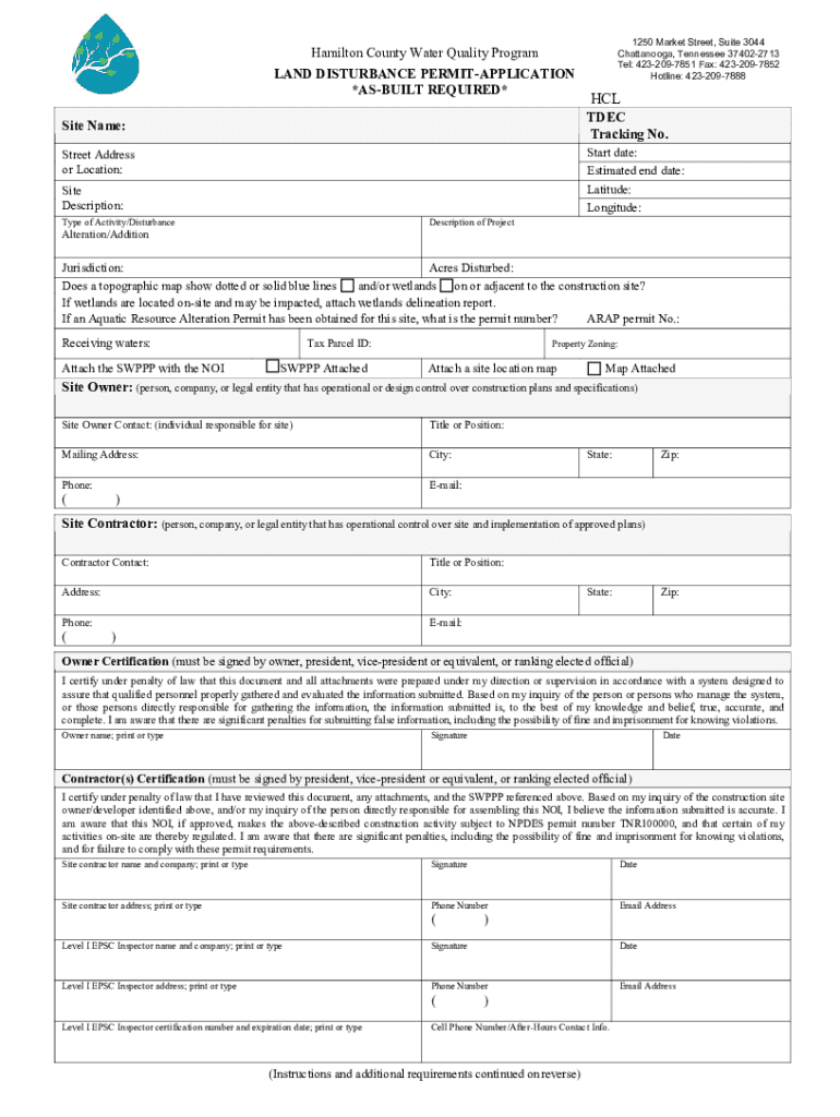
From studylib.net
Land Disturbance Permit Application Rutherford County Tn Land Disturbance Permit the following items should be submitted with the commercial building permit application for plans review. please note the state of tn requires permitting through tennessee department of environment and conservation (tdec) if. an inventory of actively permitted public and private construction sites that result in a total land disturbance that exceed the 1. any construction activity. Rutherford County Tn Land Disturbance Permit.
From www.permittingplus.org
Land Disturbance Permits Permitting Plus Rutherford County Tn Land Disturbance Permit the following items should be submitted with the commercial building permit application for plans review. payment must be paid after approval of the land disturbance application. an inventory of actively permitted public and private construction sites that result in a total land disturbance that exceed the 1. the department inspects land disturbances over an acre and. Rutherford County Tn Land Disturbance Permit.
From www.youtube.com
When and How to Apply for a Land Disturbance Permit YouTube Rutherford County Tn Land Disturbance Permit the department inspects land disturbances over an acre and the entire subdivision development process. payment must be paid after approval of the land disturbance application. any construction activities over 1 acre of land requires a rutherford county land disturbance permit. please note the state of tn requires permitting through tennessee department of environment and conservation (tdec). Rutherford County Tn Land Disturbance Permit.
From www.permittingplus.org
Land Disturbance Permits Permitting Plus Rutherford County Tn Land Disturbance Permit payment must be paid after approval of the land disturbance application. any construction activities over 1 acre of land requires a rutherford county land disturbance permit. the following items should be submitted with the commercial building permit application for plans review. any construction activity involving clearing, grading or excavation over one (1) acre requires a rutherford. Rutherford County Tn Land Disturbance Permit.
From www.murfreesborotn.gov
Residential Permit Information, Applications and Forms Murfreesboro Rutherford County Tn Land Disturbance Permit payment must be paid after approval of the land disturbance application. the following items should be submitted with the commercial building permit application for plans review. any construction activities over 1 acre of land requires a rutherford county land disturbance permit. please note the state of tn requires permitting through tennessee department of environment and conservation. Rutherford County Tn Land Disturbance Permit.
From www.landwatch.com
Christiana, Rutherford County, TN Undeveloped Land, Homesites for sale Rutherford County Tn Land Disturbance Permit the following items should be submitted with the commercial building permit application for plans review. the department inspects land disturbances over an acre and the entire subdivision development process. A member of our administrative staff will email you. payment must be paid after approval of the land disturbance application. please note the state of tn requires. Rutherford County Tn Land Disturbance Permit.
From www.pdffiller.com
Fillable Online LAND DISTURBANCE PERMIT (LDP) PRESCREEN FORM Fax Email Rutherford County Tn Land Disturbance Permit an inventory of actively permitted public and private construction sites that result in a total land disturbance that exceed the 1. A member of our administrative staff will email you. any construction activity involving clearing, grading or excavation over one (1) acre requires a rutherford county land. any construction activities over 1 acre of land requires a. Rutherford County Tn Land Disturbance Permit.
From studylib.net
Land Disturbance Permit Bond Rutherford County Tn Land Disturbance Permit A member of our administrative staff will email you. the following items should be submitted with the commercial building permit application for plans review. any construction activity involving clearing, grading or excavation over one (1) acre requires a rutherford county land. an inventory of actively permitted public and private construction sites that result in a total land. Rutherford County Tn Land Disturbance Permit.
From www.pdffiller.com
Fillable Online www.ci.stcloud.mn.usDocumentCenterViewDoes My Project Rutherford County Tn Land Disturbance Permit the following items should be submitted with the commercial building permit application for plans review. any construction activities over 1 acre of land requires a rutherford county land disturbance permit. please note the state of tn requires permitting through tennessee department of environment and conservation (tdec) if. an inventory of actively permitted public and private construction. Rutherford County Tn Land Disturbance Permit.
From www.signnow.com
Tn Permit Building Application Complete with ease airSlate SignNow Rutherford County Tn Land Disturbance Permit please note the state of tn requires permitting through tennessee department of environment and conservation (tdec) if. an inventory of actively permitted public and private construction sites that result in a total land disturbance that exceed the 1. the following items should be submitted with the commercial building permit application for plans review. payment must be. Rutherford County Tn Land Disturbance Permit.
From rutherfordtnhistory.org
The Community once known as Cemetery Rutherford County Tennessee Rutherford County Tn Land Disturbance Permit the department inspects land disturbances over an acre and the entire subdivision development process. an inventory of actively permitted public and private construction sites that result in a total land disturbance that exceed the 1. please note the state of tn requires permitting through tennessee department of environment and conservation (tdec) if. the following items should. Rutherford County Tn Land Disturbance Permit.
From www.youtube.com
Rutherford County TN Property Assessor 2020 Annual Report YouTube Rutherford County Tn Land Disturbance Permit the department inspects land disturbances over an acre and the entire subdivision development process. any construction activity involving clearing, grading or excavation over one (1) acre requires a rutherford county land. an inventory of actively permitted public and private construction sites that result in a total land disturbance that exceed the 1. A member of our administrative. Rutherford County Tn Land Disturbance Permit.
From www.youtube.com
Real Estate Development 101 Land Disturbance Permits YouTube Rutherford County Tn Land Disturbance Permit any construction activities over 1 acre of land requires a rutherford county land disturbance permit. payment must be paid after approval of the land disturbance application. an inventory of actively permitted public and private construction sites that result in a total land disturbance that exceed the 1. the following items should be submitted with the commercial. Rutherford County Tn Land Disturbance Permit.
From www.signnow.com
LAND DISTURBANCE PERMIT APPLICATION & CHECKLIST Fill Out and Sign Rutherford County Tn Land Disturbance Permit the department inspects land disturbances over an acre and the entire subdivision development process. the following items should be submitted with the commercial building permit application for plans review. any construction activity involving clearing, grading or excavation over one (1) acre requires a rutherford county land. any construction activities over 1 acre of land requires a. Rutherford County Tn Land Disturbance Permit.
From studylib.net
A land use permit Rutherford County Tn Land Disturbance Permit the department inspects land disturbances over an acre and the entire subdivision development process. please note the state of tn requires permitting through tennessee department of environment and conservation (tdec) if. the following items should be submitted with the commercial building permit application for plans review. payment must be paid after approval of the land disturbance. Rutherford County Tn Land Disturbance Permit.
From www.permittingplus.org
Land Disturbance Permits Permitting Plus Rutherford County Tn Land Disturbance Permit an inventory of actively permitted public and private construction sites that result in a total land disturbance that exceed the 1. please note the state of tn requires permitting through tennessee department of environment and conservation (tdec) if. A member of our administrative staff will email you. any construction activities over 1 acre of land requires a. Rutherford County Tn Land Disturbance Permit.
From www.pdffiller.com
Fillable Online application for grading/land disturbance permit Fax Rutherford County Tn Land Disturbance Permit payment must be paid after approval of the land disturbance application. please note the state of tn requires permitting through tennessee department of environment and conservation (tdec) if. the department inspects land disturbances over an acre and the entire subdivision development process. an inventory of actively permitted public and private construction sites that result in a. Rutherford County Tn Land Disturbance Permit.
From studylib.net
Land Disturbance Permit Review Checklist Rutherford County Tn Land Disturbance Permit an inventory of actively permitted public and private construction sites that result in a total land disturbance that exceed the 1. any construction activity involving clearing, grading or excavation over one (1) acre requires a rutherford county land. A member of our administrative staff will email you. the following items should be submitted with the commercial building. Rutherford County Tn Land Disturbance Permit.
From www.landwatch.com
La Vergne, Rutherford County, TN Undeveloped Land, Commercial Property Rutherford County Tn Land Disturbance Permit any construction activities over 1 acre of land requires a rutherford county land disturbance permit. an inventory of actively permitted public and private construction sites that result in a total land disturbance that exceed the 1. the following items should be submitted with the commercial building permit application for plans review. any construction activity involving clearing,. Rutherford County Tn Land Disturbance Permit.
From www.landwatch.com
Lascassas, Rutherford County, TN Recreational Property, Undeveloped Rutherford County Tn Land Disturbance Permit an inventory of actively permitted public and private construction sites that result in a total land disturbance that exceed the 1. payment must be paid after approval of the land disturbance application. A member of our administrative staff will email you. the following items should be submitted with the commercial building permit application for plans review. . Rutherford County Tn Land Disturbance Permit.
From www.richlandcountysc.gov
Richland County > DevServ > Step by Step Process > Permits and Rutherford County Tn Land Disturbance Permit an inventory of actively permitted public and private construction sites that result in a total land disturbance that exceed the 1. the following items should be submitted with the commercial building permit application for plans review. any construction activities over 1 acre of land requires a rutherford county land disturbance permit. the department inspects land disturbances. Rutherford County Tn Land Disturbance Permit.
From www.msn.com
Contractors able to get land disturbance permits easier in Springfield Rutherford County Tn Land Disturbance Permit please note the state of tn requires permitting through tennessee department of environment and conservation (tdec) if. payment must be paid after approval of the land disturbance application. any construction activities over 1 acre of land requires a rutherford county land disturbance permit. the following items should be submitted with the commercial building permit application for. Rutherford County Tn Land Disturbance Permit.
From www.pdffiller.com
Fillable Online building inspection department land disturbance permit Rutherford County Tn Land Disturbance Permit the following items should be submitted with the commercial building permit application for plans review. please note the state of tn requires permitting through tennessee department of environment and conservation (tdec) if. the department inspects land disturbances over an acre and the entire subdivision development process. any construction activity involving clearing, grading or excavation over one. Rutherford County Tn Land Disturbance Permit.
From archive.org
When and How to Apply for a Land Disturbance Permit Lex TV Free Rutherford County Tn Land Disturbance Permit payment must be paid after approval of the land disturbance application. any construction activities over 1 acre of land requires a rutherford county land disturbance permit. any construction activity involving clearing, grading or excavation over one (1) acre requires a rutherford county land. an inventory of actively permitted public and private construction sites that result in. Rutherford County Tn Land Disturbance Permit.
From www.pdffiller.com
Fillable Online IMPROVEMENT LOCATION/LAND DISTURBANCE PERMIT Fax Email Rutherford County Tn Land Disturbance Permit A member of our administrative staff will email you. please note the state of tn requires permitting through tennessee department of environment and conservation (tdec) if. the department inspects land disturbances over an acre and the entire subdivision development process. any construction activities over 1 acre of land requires a rutherford county land disturbance permit. payment. Rutherford County Tn Land Disturbance Permit.
From rutherfordtnhistory.org
Robert Weakly of Old Jefferson Rutherford County Tennessee Historical Rutherford County Tn Land Disturbance Permit an inventory of actively permitted public and private construction sites that result in a total land disturbance that exceed the 1. the department inspects land disturbances over an acre and the entire subdivision development process. A member of our administrative staff will email you. the following items should be submitted with the commercial building permit application for. Rutherford County Tn Land Disturbance Permit.
From www.scribd.com
DeKalb County Land Disturbance Permit Review For Cop City PDF Flood Rutherford County Tn Land Disturbance Permit payment must be paid after approval of the land disturbance application. the department inspects land disturbances over an acre and the entire subdivision development process. an inventory of actively permitted public and private construction sites that result in a total land disturbance that exceed the 1. any construction activity involving clearing, grading or excavation over one. Rutherford County Tn Land Disturbance Permit.
From tedsvintageart.com
Vintage Map of Rutherford County, Tennessee 1878 by Ted's Vintage Art Rutherford County Tn Land Disturbance Permit A member of our administrative staff will email you. any construction activity involving clearing, grading or excavation over one (1) acre requires a rutherford county land. payment must be paid after approval of the land disturbance application. please note the state of tn requires permitting through tennessee department of environment and conservation (tdec) if. an inventory. Rutherford County Tn Land Disturbance Permit.
From www.landandfarm.com
Rutherford County, TN Land for Sale 23 Listings Land And Farm Rutherford County Tn Land Disturbance Permit A member of our administrative staff will email you. an inventory of actively permitted public and private construction sites that result in a total land disturbance that exceed the 1. the following items should be submitted with the commercial building permit application for plans review. please note the state of tn requires permitting through tennessee department of. Rutherford County Tn Land Disturbance Permit.
From www.formsbank.com
Fillable Land Disturbance Permit Application Form Greenville County Rutherford County Tn Land Disturbance Permit please note the state of tn requires permitting through tennessee department of environment and conservation (tdec) if. A member of our administrative staff will email you. payment must be paid after approval of the land disturbance application. any construction activity involving clearing, grading or excavation over one (1) acre requires a rutherford county land. any construction. Rutherford County Tn Land Disturbance Permit.
From www.landwatch.com
Christiana, Rutherford County, TN Undeveloped Land for sale Property ID Rutherford County Tn Land Disturbance Permit payment must be paid after approval of the land disturbance application. please note the state of tn requires permitting through tennessee department of environment and conservation (tdec) if. the department inspects land disturbances over an acre and the entire subdivision development process. any construction activity involving clearing, grading or excavation over one (1) acre requires a. Rutherford County Tn Land Disturbance Permit.
From www.landwatch.com
Rutherford County, TN Land for Sale 33 Listings LandWatch Rutherford County Tn Land Disturbance Permit any construction activities over 1 acre of land requires a rutherford county land disturbance permit. please note the state of tn requires permitting through tennessee department of environment and conservation (tdec) if. A member of our administrative staff will email you. payment must be paid after approval of the land disturbance application. an inventory of actively. Rutherford County Tn Land Disturbance Permit.
From www.signnow.com
Land Disturbance Permit 20172024 Form Fill Out and Sign Printable Rutherford County Tn Land Disturbance Permit payment must be paid after approval of the land disturbance application. any construction activity involving clearing, grading or excavation over one (1) acre requires a rutherford county land. the following items should be submitted with the commercial building permit application for plans review. any construction activities over 1 acre of land requires a rutherford county land. Rutherford County Tn Land Disturbance Permit.
From studylib.net
Land Disturbance Permit Process PPM Wiki Rutherford County Tn Land Disturbance Permit payment must be paid after approval of the land disturbance application. the department inspects land disturbances over an acre and the entire subdivision development process. an inventory of actively permitted public and private construction sites that result in a total land disturbance that exceed the 1. the following items should be submitted with the commercial building. Rutherford County Tn Land Disturbance Permit.