Home Theater Blueprints . planning a home theater in a small room or large space? here’s a few common questions we get asked about layouts for home theater recliners and other media room furniture to. use our patented home theater designer to build the home theater of your dreams! this is an overview of my diy home theater build. I provided lots of details about wall, ceiling and riser construction processes to save money and enhance. We'll talk you through budget, and what setup to consider for the best dolby experience. audio advice has designed and installed over a thousand theaters and this.
from www.pinterest.com
audio advice has designed and installed over a thousand theaters and this. I provided lots of details about wall, ceiling and riser construction processes to save money and enhance. use our patented home theater designer to build the home theater of your dreams! this is an overview of my diy home theater build. here’s a few common questions we get asked about layouts for home theater recliners and other media room furniture to. We'll talk you through budget, and what setup to consider for the best dolby experience. planning a home theater in a small room or large space?
theatre seating plans Theater plan, Theater seating, Theatre
Home Theater Blueprints here’s a few common questions we get asked about layouts for home theater recliners and other media room furniture to. I provided lots of details about wall, ceiling and riser construction processes to save money and enhance. audio advice has designed and installed over a thousand theaters and this. planning a home theater in a small room or large space? this is an overview of my diy home theater build. use our patented home theater designer to build the home theater of your dreams! here’s a few common questions we get asked about layouts for home theater recliners and other media room furniture to. We'll talk you through budget, and what setup to consider for the best dolby experience.
From www.pinterest.com
Home Theatre Design Plans This Wallpapers Homes Design Inspiration With Home Theater Blueprints use our patented home theater designer to build the home theater of your dreams! here’s a few common questions we get asked about layouts for home theater recliners and other media room furniture to. this is an overview of my diy home theater build. We'll talk you through budget, and what setup to consider for the best. Home Theater Blueprints.
From in.pinterest.com
Cinematic Blueprint AutoCAD Plan for Home Theater Demo Room Autocad Home Theater Blueprints audio advice has designed and installed over a thousand theaters and this. use our patented home theater designer to build the home theater of your dreams! here’s a few common questions we get asked about layouts for home theater recliners and other media room furniture to. I provided lots of details about wall, ceiling and riser construction. Home Theater Blueprints.
From www.pinterest.fr
Gallery of How to Design Theater Seating, Shown Through 21 Detailed Home Theater Blueprints use our patented home theater designer to build the home theater of your dreams! We'll talk you through budget, and what setup to consider for the best dolby experience. I provided lots of details about wall, ceiling and riser construction processes to save money and enhance. this is an overview of my diy home theater build. audio. Home Theater Blueprints.
From wireblueprint.com
Optimizing Your Home Theater System Wiring 5.1 Configuration Home Theater Blueprints audio advice has designed and installed over a thousand theaters and this. use our patented home theater designer to build the home theater of your dreams! I provided lots of details about wall, ceiling and riser construction processes to save money and enhance. here’s a few common questions we get asked about layouts for home theater recliners. Home Theater Blueprints.
From themusicofancientgreece.weebly.com
Theatre The Music of Ancient Greece Home Theater Blueprints use our patented home theater designer to build the home theater of your dreams! audio advice has designed and installed over a thousand theaters and this. here’s a few common questions we get asked about layouts for home theater recliners and other media room furniture to. this is an overview of my diy home theater build.. Home Theater Blueprints.
From www.reddit.com
Blueprint drawing of potential Home Theater room in basement... Too big Home Theater Blueprints audio advice has designed and installed over a thousand theaters and this. this is an overview of my diy home theater build. here’s a few common questions we get asked about layouts for home theater recliners and other media room furniture to. We'll talk you through budget, and what setup to consider for the best dolby experience.. Home Theater Blueprints.
From www.blu-ray.com
a859057's Home Theater Gallery Home Theater Pictures (13 photos) Home Theater Blueprints We'll talk you through budget, and what setup to consider for the best dolby experience. planning a home theater in a small room or large space? audio advice has designed and installed over a thousand theaters and this. I provided lots of details about wall, ceiling and riser construction processes to save money and enhance. here’s a. Home Theater Blueprints.
From www.arch2o.com
Theater Design 7 Basic Rules for Designing a Good Theater Home Theater Blueprints I provided lots of details about wall, ceiling and riser construction processes to save money and enhance. We'll talk you through budget, and what setup to consider for the best dolby experience. audio advice has designed and installed over a thousand theaters and this. this is an overview of my diy home theater build. planning a home. Home Theater Blueprints.
From www.oscars.org
LINWOOD DUNN THEATER Academy of Motion Picture Arts and Home Theater Blueprints planning a home theater in a small room or large space? use our patented home theater designer to build the home theater of your dreams! this is an overview of my diy home theater build. I provided lots of details about wall, ceiling and riser construction processes to save money and enhance. We'll talk you through budget,. Home Theater Blueprints.
From homemade.ftempo.com
Home Plans Theater Room Homemade Ftempo Home Theater Blueprints here’s a few common questions we get asked about layouts for home theater recliners and other media room furniture to. use our patented home theater designer to build the home theater of your dreams! this is an overview of my diy home theater build. planning a home theater in a small room or large space? I. Home Theater Blueprints.
From www.pinterest.com
Dedicated Theatre Building Concept Doane College Lobby design Home Theater Blueprints I provided lots of details about wall, ceiling and riser construction processes to save money and enhance. this is an overview of my diy home theater build. audio advice has designed and installed over a thousand theaters and this. planning a home theater in a small room or large space? use our patented home theater designer. Home Theater Blueprints.
From senaterace2012.com
Stunning Floor Plan Theater 18 Photos Home Plans & Blueprints Home Theater Blueprints We'll talk you through budget, and what setup to consider for the best dolby experience. planning a home theater in a small room or large space? here’s a few common questions we get asked about layouts for home theater recliners and other media room furniture to. use our patented home theater designer to build the home theater. Home Theater Blueprints.
From br.pinterest.com
Pin on Necessary Evil ideas Theater plan, Floor plans, Cinema design Home Theater Blueprints I provided lots of details about wall, ceiling and riser construction processes to save money and enhance. this is an overview of my diy home theater build. planning a home theater in a small room or large space? here’s a few common questions we get asked about layouts for home theater recliners and other media room furniture. Home Theater Blueprints.
From www.archdaily.com.br
Galeria de Teatro Writers / Studio Gang Architects 7 Home Theater Blueprints I provided lots of details about wall, ceiling and riser construction processes to save money and enhance. planning a home theater in a small room or large space? here’s a few common questions we get asked about layouts for home theater recliners and other media room furniture to. use our patented home theater designer to build the. Home Theater Blueprints.
From augustexture.com
Famous Home Theater Room Ratio 2023 Home Theater Blueprints this is an overview of my diy home theater build. I provided lots of details about wall, ceiling and riser construction processes to save money and enhance. audio advice has designed and installed over a thousand theaters and this. We'll talk you through budget, and what setup to consider for the best dolby experience. use our patented. Home Theater Blueprints.
From www.pinterest.com
Home Theater Floor Plan in 2023 Home theater room design, At home Home Theater Blueprints We'll talk you through budget, and what setup to consider for the best dolby experience. audio advice has designed and installed over a thousand theaters and this. I provided lots of details about wall, ceiling and riser construction processes to save money and enhance. here’s a few common questions we get asked about layouts for home theater recliners. Home Theater Blueprints.
From www.pinterest.com
Gallery of How to Design Theater Seating, Shown Through 21 Detailed Home Theater Blueprints I provided lots of details about wall, ceiling and riser construction processes to save money and enhance. here’s a few common questions we get asked about layouts for home theater recliners and other media room furniture to. audio advice has designed and installed over a thousand theaters and this. planning a home theater in a small room. Home Theater Blueprints.
From wireblueprint.com
Optimizing Your Home Theater System Wiring 5.1 Configuration Home Theater Blueprints We'll talk you through budget, and what setup to consider for the best dolby experience. use our patented home theater designer to build the home theater of your dreams! I provided lots of details about wall, ceiling and riser construction processes to save money and enhance. planning a home theater in a small room or large space? . Home Theater Blueprints.
From circuitdiagramaged.z21.web.core.windows.net
Home Theatre Electrical Drawing Home Theater Blueprints here’s a few common questions we get asked about layouts for home theater recliners and other media room furniture to. I provided lots of details about wall, ceiling and riser construction processes to save money and enhance. We'll talk you through budget, and what setup to consider for the best dolby experience. audio advice has designed and installed. Home Theater Blueprints.
From circuitdiagramaged.z21.web.core.windows.net
Home Theatre Electrical Drawing Home Theater Blueprints this is an overview of my diy home theater build. here’s a few common questions we get asked about layouts for home theater recliners and other media room furniture to. audio advice has designed and installed over a thousand theaters and this. use our patented home theater designer to build the home theater of your dreams!. Home Theater Blueprints.
From www.archdaily.com.br
Galeria de Teatro Topfer em ZACH / Andersson Wise Architects 21 Home Theater Blueprints planning a home theater in a small room or large space? here’s a few common questions we get asked about layouts for home theater recliners and other media room furniture to. this is an overview of my diy home theater build. use our patented home theater designer to build the home theater of your dreams! We'll. Home Theater Blueprints.
From holly-kate-buckingham.weebly.com
The Globe Theater Shakespeare's World Home Theater Blueprints We'll talk you through budget, and what setup to consider for the best dolby experience. audio advice has designed and installed over a thousand theaters and this. use our patented home theater designer to build the home theater of your dreams! here’s a few common questions we get asked about layouts for home theater recliners and other. Home Theater Blueprints.
From wireblueprint.com
Optimizing Your Home Theater System Wiring 5.1 Configuration Home Theater Blueprints I provided lots of details about wall, ceiling and riser construction processes to save money and enhance. use our patented home theater designer to build the home theater of your dreams! audio advice has designed and installed over a thousand theaters and this. here’s a few common questions we get asked about layouts for home theater recliners. Home Theater Blueprints.
From infographicjournal.com
Blueprint for Your Home Theater System [Infographic] Home Theater Blueprints here’s a few common questions we get asked about layouts for home theater recliners and other media room furniture to. planning a home theater in a small room or large space? this is an overview of my diy home theater build. I provided lots of details about wall, ceiling and riser construction processes to save money and. Home Theater Blueprints.
From www.pinterest.com
theatre seating plans Theater plan, Theater seating, Theatre Home Theater Blueprints this is an overview of my diy home theater build. planning a home theater in a small room or large space? audio advice has designed and installed over a thousand theaters and this. I provided lots of details about wall, ceiling and riser construction processes to save money and enhance. We'll talk you through budget, and what. Home Theater Blueprints.
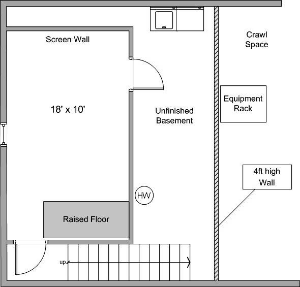
From www.avsforum.com
My home theatre blueprint critiques AVS Forum Home Theater Blueprints audio advice has designed and installed over a thousand theaters and this. I provided lots of details about wall, ceiling and riser construction processes to save money and enhance. planning a home theater in a small room or large space? here’s a few common questions we get asked about layouts for home theater recliners and other media. Home Theater Blueprints.
From www.monolithic.org
Now Playing The 21st Century Movie Theater Monolithic Dome Institute Home Theater Blueprints use our patented home theater designer to build the home theater of your dreams! planning a home theater in a small room or large space? We'll talk you through budget, and what setup to consider for the best dolby experience. here’s a few common questions we get asked about layouts for home theater recliners and other media. Home Theater Blueprints.
From www.monacoav.com
Los Angeles Custom Home Theater Design, Build & Installation Case Study Home Theater Blueprints this is an overview of my diy home theater build. use our patented home theater designer to build the home theater of your dreams! planning a home theater in a small room or large space? I provided lots of details about wall, ceiling and riser construction processes to save money and enhance. here’s a few common. Home Theater Blueprints.
From www.roomsketcher.com
Basement With Home Theater Home Theater Blueprints here’s a few common questions we get asked about layouts for home theater recliners and other media room furniture to. We'll talk you through budget, and what setup to consider for the best dolby experience. planning a home theater in a small room or large space? I provided lots of details about wall, ceiling and riser construction processes. Home Theater Blueprints.
From www.archdaily.com
How to Design Theater Seating, Shown Through 21 Detailed Example Home Theater Blueprints here’s a few common questions we get asked about layouts for home theater recliners and other media room furniture to. use our patented home theater designer to build the home theater of your dreams! this is an overview of my diy home theater build. We'll talk you through budget, and what setup to consider for the best. Home Theater Blueprints.
From myelectricwork.blogspot.com
Electric Work Home Electrical Wiring Blueprint and Layout Home Theater Blueprints here’s a few common questions we get asked about layouts for home theater recliners and other media room furniture to. I provided lots of details about wall, ceiling and riser construction processes to save money and enhance. We'll talk you through budget, and what setup to consider for the best dolby experience. use our patented home theater designer. Home Theater Blueprints.
From www.avsforum.com
My home theatre blueprint critiques AVS Forum Home Theater Blueprints audio advice has designed and installed over a thousand theaters and this. I provided lots of details about wall, ceiling and riser construction processes to save money and enhance. this is an overview of my diy home theater build. here’s a few common questions we get asked about layouts for home theater recliners and other media room. Home Theater Blueprints.
From www.pinterest.com
Examples Of Simple Inspiration For The Design Home Theater Plans Home Home Theater Blueprints We'll talk you through budget, and what setup to consider for the best dolby experience. here’s a few common questions we get asked about layouts for home theater recliners and other media room furniture to. planning a home theater in a small room or large space? use our patented home theater designer to build the home theater. Home Theater Blueprints.
From valenciatheaterseating.com
A Detailed HowTo on Designing Your Perfect Home Theater Home Theater Blueprints this is an overview of my diy home theater build. audio advice has designed and installed over a thousand theaters and this. We'll talk you through budget, and what setup to consider for the best dolby experience. here’s a few common questions we get asked about layouts for home theater recliners and other media room furniture to.. Home Theater Blueprints.
From www.archdaily.com
Gallery of Everyman Theatre / Haworth Tompkins 19 Home Theater Blueprints We'll talk you through budget, and what setup to consider for the best dolby experience. this is an overview of my diy home theater build. here’s a few common questions we get asked about layouts for home theater recliners and other media room furniture to. audio advice has designed and installed over a thousand theaters and this.. Home Theater Blueprints.