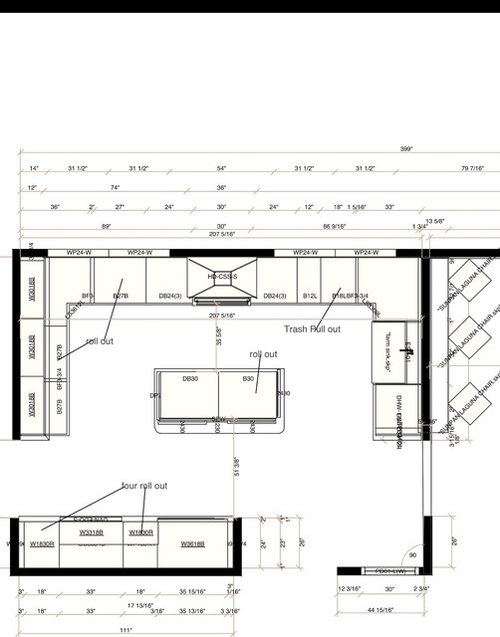
Prep Sink In Island Yes Or No . Here are some of the. The primary use of the secondary sink is for prep, and if they're integrated correctly, both cooks can be working without getting in each other's way. If you have space, you should certainly consider including a sink on your island. Should their island hold their primary kitchen sink or a smaller prep sink? The reason why many people cite sinks on islands is because of their usage and proximity to the stove and prep area. I need help determining if we should add a prep sink in the center island in our kitchen renovation. You may have come across these terms before and you can read more. Having the sink in the kitchen island can help to create the perfect working triangle or kitchen zone. While the benefits of a prep sink are numerous, it’s not always a good idea to install a prep sink in an island. You will naturally prep beside the sink, and the most convenient place to prep is between the sink and cooktop. New floor plan is below, with main sink (30in) under window. Like with many other kitchen design aspects, there isn’t a right or wrong answer. I highlighted the prep path and.
        
         
         
        from www.decorpad.com 
     
        
        I need help determining if we should add a prep sink in the center island in our kitchen renovation. Having the sink in the kitchen island can help to create the perfect working triangle or kitchen zone. Here are some of the. Like with many other kitchen design aspects, there isn’t a right or wrong answer. While the benefits of a prep sink are numerous, it’s not always a good idea to install a prep sink in an island. New floor plan is below, with main sink (30in) under window. You will naturally prep beside the sink, and the most convenient place to prep is between the sink and cooktop. The primary use of the secondary sink is for prep, and if they're integrated correctly, both cooks can be working without getting in each other's way. If you have space, you should certainly consider including a sink on your island. Should their island hold their primary kitchen sink or a smaller prep sink?
    
    	
            
	
		 
	 
         
    Island Prep Sink Traditional kitchen Jan Gleysteen Architects 
    Prep Sink In Island Yes Or No  Like with many other kitchen design aspects, there isn’t a right or wrong answer. Like with many other kitchen design aspects, there isn’t a right or wrong answer. I need help determining if we should add a prep sink in the center island in our kitchen renovation. I highlighted the prep path and. You will naturally prep beside the sink, and the most convenient place to prep is between the sink and cooktop. Should their island hold their primary kitchen sink or a smaller prep sink? New floor plan is below, with main sink (30in) under window. Here are some of the. While the benefits of a prep sink are numerous, it’s not always a good idea to install a prep sink in an island. The primary use of the secondary sink is for prep, and if they're integrated correctly, both cooks can be working without getting in each other's way. If you have space, you should certainly consider including a sink on your island. You may have come across these terms before and you can read more. The reason why many people cite sinks on islands is because of their usage and proximity to the stove and prep area. Having the sink in the kitchen island can help to create the perfect working triangle or kitchen zone.
            
	
		 
	 
         
 
    
         
        From www.houzz.fr 
                    Kitchen Island/Sink Size and Prep Space Prep Sink In Island Yes Or No  Like with many other kitchen design aspects, there isn’t a right or wrong answer. Having the sink in the kitchen island can help to create the perfect working triangle or kitchen zone. If you have space, you should certainly consider including a sink on your island. Should their island hold their primary kitchen sink or a smaller prep sink? The. Prep Sink In Island Yes Or No.
     
    
         
        From ipipeline.net 
                    Kitchen Island Bar Sink Things In The Kitchen Prep Sink In Island Yes Or No  If you have space, you should certainly consider including a sink on your island. New floor plan is below, with main sink (30in) under window. Having the sink in the kitchen island can help to create the perfect working triangle or kitchen zone. I highlighted the prep path and. Should their island hold their primary kitchen sink or a smaller. Prep Sink In Island Yes Or No.
     
    
         
        From jumriahmaddi.blogspot.com 
                    Placement Of Prep Sink In Kitchen Island Prep Sink In Island Yes Or No  Should their island hold their primary kitchen sink or a smaller prep sink? Like with many other kitchen design aspects, there isn’t a right or wrong answer. You may have come across these terms before and you can read more. You will naturally prep beside the sink, and the most convenient place to prep is between the sink and cooktop.. Prep Sink In Island Yes Or No.
     
    
         
        From www.decorpad.com 
                    Kitchen Island Prep Sink Design Ideas Prep Sink In Island Yes Or No  The primary use of the secondary sink is for prep, and if they're integrated correctly, both cooks can be working without getting in each other's way. Here are some of the. The reason why many people cite sinks on islands is because of their usage and proximity to the stove and prep area. I need help determining if we should. Prep Sink In Island Yes Or No.
     
    
         
        From www.decorpad.com 
                    Center Island with Rectangular Prep Sink Transitional Kitchen Prep Sink In Island Yes Or No  Like with many other kitchen design aspects, there isn’t a right or wrong answer. Should their island hold their primary kitchen sink or a smaller prep sink? If you have space, you should certainly consider including a sink on your island. You may have come across these terms before and you can read more. I highlighted the prep path and.. Prep Sink In Island Yes Or No.
     
    
         
        From jimmellersone013325.blogspot.com 
                    Kitchen Island Prep Sink Ideas / Where To Place Your Kitchen Sink Dean Prep Sink In Island Yes Or No  I need help determining if we should add a prep sink in the center island in our kitchen renovation. I highlighted the prep path and. Having the sink in the kitchen island can help to create the perfect working triangle or kitchen zone. The primary use of the secondary sink is for prep, and if they're integrated correctly, both cooks. Prep Sink In Island Yes Or No.
     
    
         
        From stagefeed15.gitlab.io 
                    Fantastic Prep Sink In Island Floating Table Prep Sink In Island Yes Or No  If you have space, you should certainly consider including a sink on your island. You may have come across these terms before and you can read more. The primary use of the secondary sink is for prep, and if they're integrated correctly, both cooks can be working without getting in each other's way. I need help determining if we should. Prep Sink In Island Yes Or No.
     
    
         
        From www.remodeling.hw.net 
                    Lenova Ledge Prep Sink Brings Sleek Style, Functionality Remodeling Prep Sink In Island Yes Or No  The primary use of the secondary sink is for prep, and if they're integrated correctly, both cooks can be working without getting in each other's way. While the benefits of a prep sink are numerous, it’s not always a good idea to install a prep sink in an island. Should their island hold their primary kitchen sink or a smaller. Prep Sink In Island Yes Or No.
     
    
         
        From www.houzz.com 
                    Prep sink island Traditional Kitchen St Louis by NEST Houzz Prep Sink In Island Yes Or No  If you have space, you should certainly consider including a sink on your island. Should their island hold their primary kitchen sink or a smaller prep sink? New floor plan is below, with main sink (30in) under window. I highlighted the prep path and. Like with many other kitchen design aspects, there isn’t a right or wrong answer. While the. Prep Sink In Island Yes Or No.
     
    
         
        From www.houzz.com 
                    Kitchen Island Prep Sink Ideas, Pictures, Remodel and Decor Prep Sink In Island Yes Or No  You will naturally prep beside the sink, and the most convenient place to prep is between the sink and cooktop. New floor plan is below, with main sink (30in) under window. Like with many other kitchen design aspects, there isn’t a right or wrong answer. Should their island hold their primary kitchen sink or a smaller prep sink? I highlighted. Prep Sink In Island Yes Or No.
     
    
         
        From www.houzz.com 
                    Prep Sink Houzz Prep Sink In Island Yes Or No  If you have space, you should certainly consider including a sink on your island. Should their island hold their primary kitchen sink or a smaller prep sink? I highlighted the prep path and. Like with many other kitchen design aspects, there isn’t a right or wrong answer. The primary use of the secondary sink is for prep, and if they're. Prep Sink In Island Yes Or No.
     
    
         
        From www.houzz.com 
                    How do you choose your island size? And prep sink location? Prep Sink In Island Yes Or No  I need help determining if we should add a prep sink in the center island in our kitchen renovation. New floor plan is below, with main sink (30in) under window. You will naturally prep beside the sink, and the most convenient place to prep is between the sink and cooktop. Here are some of the. Having the sink in the. Prep Sink In Island Yes Or No.
     
    
         
        From www.decorpad.com 
                    Island Prep Sink Traditional kitchen BHG Prep Sink In Island Yes Or No  I highlighted the prep path and. If you have space, you should certainly consider including a sink on your island. While the benefits of a prep sink are numerous, it’s not always a good idea to install a prep sink in an island. Having the sink in the kitchen island can help to create the perfect working triangle or kitchen. Prep Sink In Island Yes Or No.
     
    
         
        From streetmiddle16.pythonanywhere.com 
                    Best Island Prep Sink Size Kitchen Worktop Ideas Prep Sink In Island Yes Or No  The reason why many people cite sinks on islands is because of their usage and proximity to the stove and prep area. Should their island hold their primary kitchen sink or a smaller prep sink? You may have come across these terms before and you can read more. I highlighted the prep path and. If you have space, you should. Prep Sink In Island Yes Or No.
     
    
         
        From taylordevelopment9.gitlab.io 
                    Great Best Prep Sink Island With Seating Prep Sink In Island Yes Or No  If you have space, you should certainly consider including a sink on your island. Should their island hold their primary kitchen sink or a smaller prep sink? I need help determining if we should add a prep sink in the center island in our kitchen renovation. The reason why many people cite sinks on islands is because of their usage. Prep Sink In Island Yes Or No.
     
    
         
        From taylordevelopment9.gitlab.io 
                    Great Best Prep Sink Island With Seating Prep Sink In Island Yes Or No  Having the sink in the kitchen island can help to create the perfect working triangle or kitchen zone. You will naturally prep beside the sink, and the most convenient place to prep is between the sink and cooktop. Should their island hold their primary kitchen sink or a smaller prep sink? While the benefits of a prep sink are numerous,. Prep Sink In Island Yes Or No.
     
    
         
        From taylordevelopment9.gitlab.io 
                    Great Best Prep Sink Island With Seating Prep Sink In Island Yes Or No  The primary use of the secondary sink is for prep, and if they're integrated correctly, both cooks can be working without getting in each other's way. New floor plan is below, with main sink (30in) under window. Having the sink in the kitchen island can help to create the perfect working triangle or kitchen zone. Like with many other kitchen. Prep Sink In Island Yes Or No.
     
    
         
        From ipipeline.net 
                    Kitchen Island With Cooktop And Prep Sink Things In The Kitchen Prep Sink In Island Yes Or No  New floor plan is below, with main sink (30in) under window. Like with many other kitchen design aspects, there isn’t a right or wrong answer. Here are some of the. You may have come across these terms before and you can read more. While the benefits of a prep sink are numerous, it’s not always a good idea to install. Prep Sink In Island Yes Or No.
     
    
         
        From www.bowenremodeling.com 
                    Is a Kitchen Island Prep Sink Right For You? Bowen Remodeling & Design Prep Sink In Island Yes Or No  New floor plan is below, with main sink (30in) under window. I need help determining if we should add a prep sink in the center island in our kitchen renovation. The primary use of the secondary sink is for prep, and if they're integrated correctly, both cooks can be working without getting in each other's way. Here are some of. Prep Sink In Island Yes Or No.
     
    
         
        From bravermankitchens.co.uk 
                    prep sink in island Braverman Kitchens Prep Sink In Island Yes Or No  I need help determining if we should add a prep sink in the center island in our kitchen renovation. You will naturally prep beside the sink, and the most convenient place to prep is between the sink and cooktop. If you have space, you should certainly consider including a sink on your island. Having the sink in the kitchen island. Prep Sink In Island Yes Or No.
     
    
         
        From okftautumnmunoz.blogspot.com 
                    Prep Sink In Island AJL4 AUTUMN MUNOZ BLOG'S Prep Sink In Island Yes Or No  You may have come across these terms before and you can read more. Like with many other kitchen design aspects, there isn’t a right or wrong answer. The reason why many people cite sinks on islands is because of their usage and proximity to the stove and prep area. The primary use of the secondary sink is for prep, and. Prep Sink In Island Yes Or No.
     
    
         
        From decoomo.com 
                    Do You Need A Prep Sink In Your Kitchen? DECOOMO Prep Sink In Island Yes Or No  If you have space, you should certainly consider including a sink on your island. Here are some of the. I need help determining if we should add a prep sink in the center island in our kitchen renovation. I highlighted the prep path and. You may have come across these terms before and you can read more. The reason why. Prep Sink In Island Yes Or No.
     
    
         
        From www.bowenremodeling.com 
                    Should You Have a Kitchen Island Prep Sink Installed? Prep Sink In Island Yes Or No  Having the sink in the kitchen island can help to create the perfect working triangle or kitchen zone. The reason why many people cite sinks on islands is because of their usage and proximity to the stove and prep area. New floor plan is below, with main sink (30in) under window. You will naturally prep beside the sink, and the. Prep Sink In Island Yes Or No.
     
    
         
        From nativetrailshome.com 
                    5 Reasons to Love Kitchen Prep Sinks Native Trails Prep Sink In Island Yes Or No  While the benefits of a prep sink are numerous, it’s not always a good idea to install a prep sink in an island. You may have come across these terms before and you can read more. The reason why many people cite sinks on islands is because of their usage and proximity to the stove and prep area. The primary. Prep Sink In Island Yes Or No.
     
    
         
        From klajmgplz.blob.core.windows.net 
                    Best Sink For Island at Kevin Bobbitt blog Prep Sink In Island Yes Or No  You may have come across these terms before and you can read more. Here are some of the. While the benefits of a prep sink are numerous, it’s not always a good idea to install a prep sink in an island. The reason why many people cite sinks on islands is because of their usage and proximity to the stove. Prep Sink In Island Yes Or No.
     
    
         
        From www.youtube.com 
                    Add a Prep Sink to Kitchen Island YouTube Prep Sink In Island Yes Or No  Should their island hold their primary kitchen sink or a smaller prep sink? While the benefits of a prep sink are numerous, it’s not always a good idea to install a prep sink in an island. New floor plan is below, with main sink (30in) under window. I highlighted the prep path and. The reason why many people cite sinks. Prep Sink In Island Yes Or No.
     
    
         
        From jumriahmaddi.blogspot.com 
                    Placement Of Prep Sink In Kitchen Island Prep Sink In Island Yes Or No  I need help determining if we should add a prep sink in the center island in our kitchen renovation. Here are some of the. You may have come across these terms before and you can read more. Having the sink in the kitchen island can help to create the perfect working triangle or kitchen zone. Should their island hold their. Prep Sink In Island Yes Or No.
     
    
         
        From www.pinterest.com 
                    Pin by Debbie Ahmari on Townhouse Construction, Sarasota, FL Architect Prep Sink In Island Yes Or No  If you have space, you should certainly consider including a sink on your island. I need help determining if we should add a prep sink in the center island in our kitchen renovation. While the benefits of a prep sink are numerous, it’s not always a good idea to install a prep sink in an island. You will naturally prep. Prep Sink In Island Yes Or No.
     
    
         
        From www.houzz.com 
                    Layout + prep sink in island? Prep Sink In Island Yes Or No  I highlighted the prep path and. I need help determining if we should add a prep sink in the center island in our kitchen renovation. You may have come across these terms before and you can read more. While the benefits of a prep sink are numerous, it’s not always a good idea to install a prep sink in an. Prep Sink In Island Yes Or No.
     
    
         
        From kitchengallerytn.com 
                    The Case for Adding Prep Sink Convenience to Your Kitchen Island Prep Sink In Island Yes Or No  While the benefits of a prep sink are numerous, it’s not always a good idea to install a prep sink in an island. You will naturally prep beside the sink, and the most convenient place to prep is between the sink and cooktop. The primary use of the secondary sink is for prep, and if they're integrated correctly, both cooks. Prep Sink In Island Yes Or No.
     
    
         
        From www.pinterest.com 
                    island prep sink Kitchen remodel, Design, House design Prep Sink In Island Yes Or No  While the benefits of a prep sink are numerous, it’s not always a good idea to install a prep sink in an island. I highlighted the prep path and. The reason why many people cite sinks on islands is because of their usage and proximity to the stove and prep area. If you have space, you should certainly consider including. Prep Sink In Island Yes Or No.
     
    
         
        From remakehome.blogspot.com 
                    Download Image Prep Sink In Island Yes Or No  Having the sink in the kitchen island can help to create the perfect working triangle or kitchen zone. If you have space, you should certainly consider including a sink on your island. New floor plan is below, with main sink (30in) under window. While the benefits of a prep sink are numerous, it’s not always a good idea to install. Prep Sink In Island Yes Or No.
     
    
         
        From designingidea.com 
                    Kitchen Island with Sink (Design Guide) Prep Sink In Island Yes Or No  I highlighted the prep path and. Having the sink in the kitchen island can help to create the perfect working triangle or kitchen zone. If you have space, you should certainly consider including a sink on your island. While the benefits of a prep sink are numerous, it’s not always a good idea to install a prep sink in an. Prep Sink In Island Yes Or No.
     
    
         
        From www.vohngallery.com 
                    Prep Sink Islands Level Up Your Kitchen's Potential Vohn Gallery Prep Sink In Island Yes Or No  Should their island hold their primary kitchen sink or a smaller prep sink? Here are some of the. You will naturally prep beside the sink, and the most convenient place to prep is between the sink and cooktop. While the benefits of a prep sink are numerous, it’s not always a good idea to install a prep sink in an. Prep Sink In Island Yes Or No.
     
    
         
        From www.decorpad.com 
                    Island Prep Sink Traditional kitchen Jan Gleysteen Architects Prep Sink In Island Yes Or No  Like with many other kitchen design aspects, there isn’t a right or wrong answer. Here are some of the. You may have come across these terms before and you can read more. I highlighted the prep path and. While the benefits of a prep sink are numerous, it’s not always a good idea to install a prep sink in an. Prep Sink In Island Yes Or No.