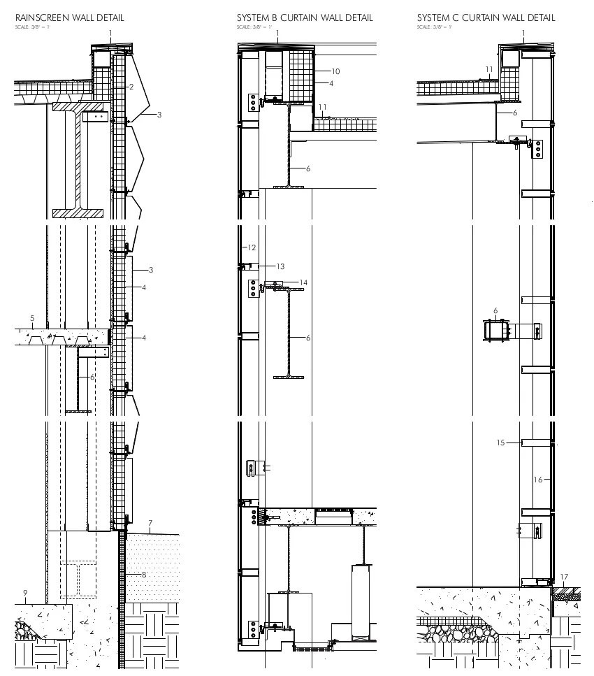
Curtain Wall Section Detail . They are bought to the site and assembled. Stick curtain wall system involves its components to be assembled piece by piece on the building at the site. Download free cad details of various curtain wall types and finishes, such as stucco, brick veneer, and spandrel panels. Curtain walls are today typically designed with an extruded aluminum structure, although a niche for special applications is represented by the steel. This drawing shows a complete set of construction details for a curtain wall, including sections, elevations and individual. Download cad block in dwg. See examples of curtain wall roof, head, window, and foundation. Curtain wall systems are factory pre casted systems. Presents cross section and detail with technical specifications. These are of two types based on the way each component is assembled. Filter by product, type, performance/features, dimensions and glazing and download technical information for our products, including revit/bim models, specs, cad details and supporting literature.
from www.mdpi.com
Curtain wall systems are factory pre casted systems. Presents cross section and detail with technical specifications. Filter by product, type, performance/features, dimensions and glazing and download technical information for our products, including revit/bim models, specs, cad details and supporting literature. This drawing shows a complete set of construction details for a curtain wall, including sections, elevations and individual. Download cad block in dwg. These are of two types based on the way each component is assembled. They are bought to the site and assembled. Curtain walls are today typically designed with an extruded aluminum structure, although a niche for special applications is represented by the steel. See examples of curtain wall roof, head, window, and foundation. Download free cad details of various curtain wall types and finishes, such as stucco, brick veneer, and spandrel panels.
Materials Free FullText Material Selection and Characterization for a Novel Frame
Curtain Wall Section Detail Curtain wall systems are factory pre casted systems. Curtain wall systems are factory pre casted systems. Download cad block in dwg. This drawing shows a complete set of construction details for a curtain wall, including sections, elevations and individual. They are bought to the site and assembled. See examples of curtain wall roof, head, window, and foundation. Download free cad details of various curtain wall types and finishes, such as stucco, brick veneer, and spandrel panels. Curtain walls are today typically designed with an extruded aluminum structure, although a niche for special applications is represented by the steel. Presents cross section and detail with technical specifications. Stick curtain wall system involves its components to be assembled piece by piece on the building at the site. These are of two types based on the way each component is assembled. Filter by product, type, performance/features, dimensions and glazing and download technical information for our products, including revit/bim models, specs, cad details and supporting literature.
From tropicalcyclocross.com
Curtain Wall Section Curtain Wall Section Detail Presents cross section and detail with technical specifications. Curtain walls are today typically designed with an extruded aluminum structure, although a niche for special applications is represented by the steel. These are of two types based on the way each component is assembled. Download cad block in dwg. Filter by product, type, performance/features, dimensions and glazing and download technical information. Curtain Wall Section Detail.
From www.stkittsvilla.com
Ce Center Sealing The Envelope Curtain Wall Section Detail This drawing shows a complete set of construction details for a curtain wall, including sections, elevations and individual. Filter by product, type, performance/features, dimensions and glazing and download technical information for our products, including revit/bim models, specs, cad details and supporting literature. Stick curtain wall system involves its components to be assembled piece by piece on the building at the. Curtain Wall Section Detail.
From www.vrogue.co
Curtain Wall Details Detail For Designs Cad vrogue.co Curtain Wall Section Detail See examples of curtain wall roof, head, window, and foundation. Stick curtain wall system involves its components to be assembled piece by piece on the building at the site. They are bought to the site and assembled. Presents cross section and detail with technical specifications. This drawing shows a complete set of construction details for a curtain wall, including sections,. Curtain Wall Section Detail.
From
Curtain Wall Section Detail Presents cross section and detail with technical specifications. Stick curtain wall system involves its components to be assembled piece by piece on the building at the site. Download cad block in dwg. This drawing shows a complete set of construction details for a curtain wall, including sections, elevations and individual. Curtain wall systems are factory pre casted systems. These are. Curtain Wall Section Detail.
From
Curtain Wall Section Detail Download free cad details of various curtain wall types and finishes, such as stucco, brick veneer, and spandrel panels. They are bought to the site and assembled. This drawing shows a complete set of construction details for a curtain wall, including sections, elevations and individual. Download cad block in dwg. See examples of curtain wall roof, head, window, and foundation.. Curtain Wall Section Detail.
From
Curtain Wall Section Detail Filter by product, type, performance/features, dimensions and glazing and download technical information for our products, including revit/bim models, specs, cad details and supporting literature. Stick curtain wall system involves its components to be assembled piece by piece on the building at the site. These are of two types based on the way each component is assembled. This drawing shows a. Curtain Wall Section Detail.
From
Curtain Wall Section Detail Presents cross section and detail with technical specifications. They are bought to the site and assembled. Curtain wall systems are factory pre casted systems. Curtain walls are today typically designed with an extruded aluminum structure, although a niche for special applications is represented by the steel. Stick curtain wall system involves its components to be assembled piece by piece on. Curtain Wall Section Detail.
From
Curtain Wall Section Detail Presents cross section and detail with technical specifications. Download cad block in dwg. Curtain wall systems are factory pre casted systems. These are of two types based on the way each component is assembled. Download free cad details of various curtain wall types and finishes, such as stucco, brick veneer, and spandrel panels. This drawing shows a complete set of. Curtain Wall Section Detail.
From
Curtain Wall Section Detail They are bought to the site and assembled. Download free cad details of various curtain wall types and finishes, such as stucco, brick veneer, and spandrel panels. Download cad block in dwg. Curtain wall systems are factory pre casted systems. Presents cross section and detail with technical specifications. Filter by product, type, performance/features, dimensions and glazing and download technical information. Curtain Wall Section Detail.
From www.pinterest.ca
steel curtain wall detail Google Search Shabby chic kitchen, Shabby chic living room, Shabby Curtain Wall Section Detail Stick curtain wall system involves its components to be assembled piece by piece on the building at the site. These are of two types based on the way each component is assembled. Download cad block in dwg. Curtain walls are today typically designed with an extruded aluminum structure, although a niche for special applications is represented by the steel. Filter. Curtain Wall Section Detail.
From openlab.citytech.cuny.edu
Curtain Wall Detail Section Skye Colon B.Tech III Research Page Curtain Wall Section Detail They are bought to the site and assembled. Curtain wall systems are factory pre casted systems. Presents cross section and detail with technical specifications. Filter by product, type, performance/features, dimensions and glazing and download technical information for our products, including revit/bim models, specs, cad details and supporting literature. Stick curtain wall system involves its components to be assembled piece by. Curtain Wall Section Detail.
From
Curtain Wall Section Detail Presents cross section and detail with technical specifications. Stick curtain wall system involves its components to be assembled piece by piece on the building at the site. See examples of curtain wall roof, head, window, and foundation. Filter by product, type, performance/features, dimensions and glazing and download technical information for our products, including revit/bim models, specs, cad details and supporting. Curtain Wall Section Detail.
From
Curtain Wall Section Detail They are bought to the site and assembled. Filter by product, type, performance/features, dimensions and glazing and download technical information for our products, including revit/bim models, specs, cad details and supporting literature. Presents cross section and detail with technical specifications. See examples of curtain wall roof, head, window, and foundation. This drawing shows a complete set of construction details for. Curtain Wall Section Detail.
From
Curtain Wall Section Detail Stick curtain wall system involves its components to be assembled piece by piece on the building at the site. Download cad block in dwg. See examples of curtain wall roof, head, window, and foundation. Presents cross section and detail with technical specifications. Download free cad details of various curtain wall types and finishes, such as stucco, brick veneer, and spandrel. Curtain Wall Section Detail.
From
Curtain Wall Section Detail This drawing shows a complete set of construction details for a curtain wall, including sections, elevations and individual. See examples of curtain wall roof, head, window, and foundation. Presents cross section and detail with technical specifications. Curtain walls are today typically designed with an extruded aluminum structure, although a niche for special applications is represented by the steel. Curtain wall. Curtain Wall Section Detail.
From
Curtain Wall Section Detail Curtain wall systems are factory pre casted systems. These are of two types based on the way each component is assembled. Filter by product, type, performance/features, dimensions and glazing and download technical information for our products, including revit/bim models, specs, cad details and supporting literature. Download cad block in dwg. Presents cross section and detail with technical specifications. Download free. Curtain Wall Section Detail.
From www.buildingenclosureonline.com
Demystifying the FlyBy Curtain Wall Parapet Building Enclosure Curtain Wall Section Detail See examples of curtain wall roof, head, window, and foundation. Download cad block in dwg. Presents cross section and detail with technical specifications. Download free cad details of various curtain wall types and finishes, such as stucco, brick veneer, and spandrel panels. This drawing shows a complete set of construction details for a curtain wall, including sections, elevations and individual.. Curtain Wall Section Detail.
From
Curtain Wall Section Detail Stick curtain wall system involves its components to be assembled piece by piece on the building at the site. These are of two types based on the way each component is assembled. Download cad block in dwg. See examples of curtain wall roof, head, window, and foundation. Presents cross section and detail with technical specifications. They are bought to the. Curtain Wall Section Detail.
From
Curtain Wall Section Detail Filter by product, type, performance/features, dimensions and glazing and download technical information for our products, including revit/bim models, specs, cad details and supporting literature. These are of two types based on the way each component is assembled. They are bought to the site and assembled. Download free cad details of various curtain wall types and finishes, such as stucco, brick. Curtain Wall Section Detail.
From
Curtain Wall Section Detail This drawing shows a complete set of construction details for a curtain wall, including sections, elevations and individual. Presents cross section and detail with technical specifications. These are of two types based on the way each component is assembled. Filter by product, type, performance/features, dimensions and glazing and download technical information for our products, including revit/bim models, specs, cad details. Curtain Wall Section Detail.
From quoteimg.com
Glass Curtain Wall Section Detail Curtain Wall Section Detail This drawing shows a complete set of construction details for a curtain wall, including sections, elevations and individual. They are bought to the site and assembled. See examples of curtain wall roof, head, window, and foundation. Filter by product, type, performance/features, dimensions and glazing and download technical information for our products, including revit/bim models, specs, cad details and supporting literature.. Curtain Wall Section Detail.
From
Curtain Wall Section Detail Download cad block in dwg. Download free cad details of various curtain wall types and finishes, such as stucco, brick veneer, and spandrel panels. These are of two types based on the way each component is assembled. They are bought to the site and assembled. Presents cross section and detail with technical specifications. This drawing shows a complete set of. Curtain Wall Section Detail.
From www.researchgate.net
Basic components of a typical curtain wall system [15] Download Scientific Diagram Curtain Wall Section Detail Presents cross section and detail with technical specifications. These are of two types based on the way each component is assembled. This drawing shows a complete set of construction details for a curtain wall, including sections, elevations and individual. Download free cad details of various curtain wall types and finishes, such as stucco, brick veneer, and spandrel panels. Curtain wall. Curtain Wall Section Detail.
From mavink.com
Curtain Wall Section Detail Curtain Wall Section Detail Presents cross section and detail with technical specifications. Stick curtain wall system involves its components to be assembled piece by piece on the building at the site. This drawing shows a complete set of construction details for a curtain wall, including sections, elevations and individual. See examples of curtain wall roof, head, window, and foundation. Download cad block in dwg.. Curtain Wall Section Detail.
From
Curtain Wall Section Detail Download cad block in dwg. Curtain walls are today typically designed with an extruded aluminum structure, although a niche for special applications is represented by the steel. This drawing shows a complete set of construction details for a curtain wall, including sections, elevations and individual. Curtain wall systems are factory pre casted systems. Download free cad details of various curtain. Curtain Wall Section Detail.
From
Curtain Wall Section Detail See examples of curtain wall roof, head, window, and foundation. Download free cad details of various curtain wall types and finishes, such as stucco, brick veneer, and spandrel panels. Presents cross section and detail with technical specifications. They are bought to the site and assembled. Download cad block in dwg. Filter by product, type, performance/features, dimensions and glazing and download. Curtain Wall Section Detail.
From
Curtain Wall Section Detail See examples of curtain wall roof, head, window, and foundation. This drawing shows a complete set of construction details for a curtain wall, including sections, elevations and individual. Curtain walls are today typically designed with an extruded aluminum structure, although a niche for special applications is represented by the steel. Download free cad details of various curtain wall types and. Curtain Wall Section Detail.
From
Curtain Wall Section Detail This drawing shows a complete set of construction details for a curtain wall, including sections, elevations and individual. Curtain walls are today typically designed with an extruded aluminum structure, although a niche for special applications is represented by the steel. See examples of curtain wall roof, head, window, and foundation. Download free cad details of various curtain wall types and. Curtain Wall Section Detail.
From
Curtain Wall Section Detail Download free cad details of various curtain wall types and finishes, such as stucco, brick veneer, and spandrel panels. See examples of curtain wall roof, head, window, and foundation. Stick curtain wall system involves its components to be assembled piece by piece on the building at the site. They are bought to the site and assembled. This drawing shows a. Curtain Wall Section Detail.
From www.pinterest.com.au
Curtain Wall Details Details Pinterest Walls, Detail and Facades Curtain Wall Section Detail This drawing shows a complete set of construction details for a curtain wall, including sections, elevations and individual. Curtain walls are today typically designed with an extruded aluminum structure, although a niche for special applications is represented by the steel. Stick curtain wall system involves its components to be assembled piece by piece on the building at the site. They. Curtain Wall Section Detail.
From
Curtain Wall Section Detail Filter by product, type, performance/features, dimensions and glazing and download technical information for our products, including revit/bim models, specs, cad details and supporting literature. Presents cross section and detail with technical specifications. See examples of curtain wall roof, head, window, and foundation. These are of two types based on the way each component is assembled. Download cad block in dwg.. Curtain Wall Section Detail.
From
Curtain Wall Section Detail Download cad block in dwg. Filter by product, type, performance/features, dimensions and glazing and download technical information for our products, including revit/bim models, specs, cad details and supporting literature. Stick curtain wall system involves its components to be assembled piece by piece on the building at the site. Presents cross section and detail with technical specifications. These are of two. Curtain Wall Section Detail.
From
Curtain Wall Section Detail These are of two types based on the way each component is assembled. Download cad block in dwg. Download free cad details of various curtain wall types and finishes, such as stucco, brick veneer, and spandrel panels. Filter by product, type, performance/features, dimensions and glazing and download technical information for our products, including revit/bim models, specs, cad details and supporting. Curtain Wall Section Detail.
From
Curtain Wall Section Detail Download cad block in dwg. Curtain wall systems are factory pre casted systems. They are bought to the site and assembled. Curtain walls are today typically designed with an extruded aluminum structure, although a niche for special applications is represented by the steel. These are of two types based on the way each component is assembled. Stick curtain wall system. Curtain Wall Section Detail.
From www.pinterest.se
Pin di Architecture details Curtain Wall Section Detail This drawing shows a complete set of construction details for a curtain wall, including sections, elevations and individual. Curtain wall systems are factory pre casted systems. Download free cad details of various curtain wall types and finishes, such as stucco, brick veneer, and spandrel panels. Stick curtain wall system involves its components to be assembled piece by piece on the. Curtain Wall Section Detail.