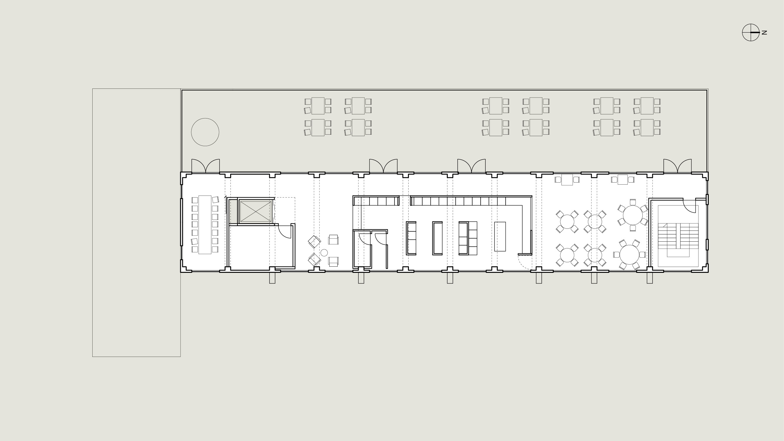
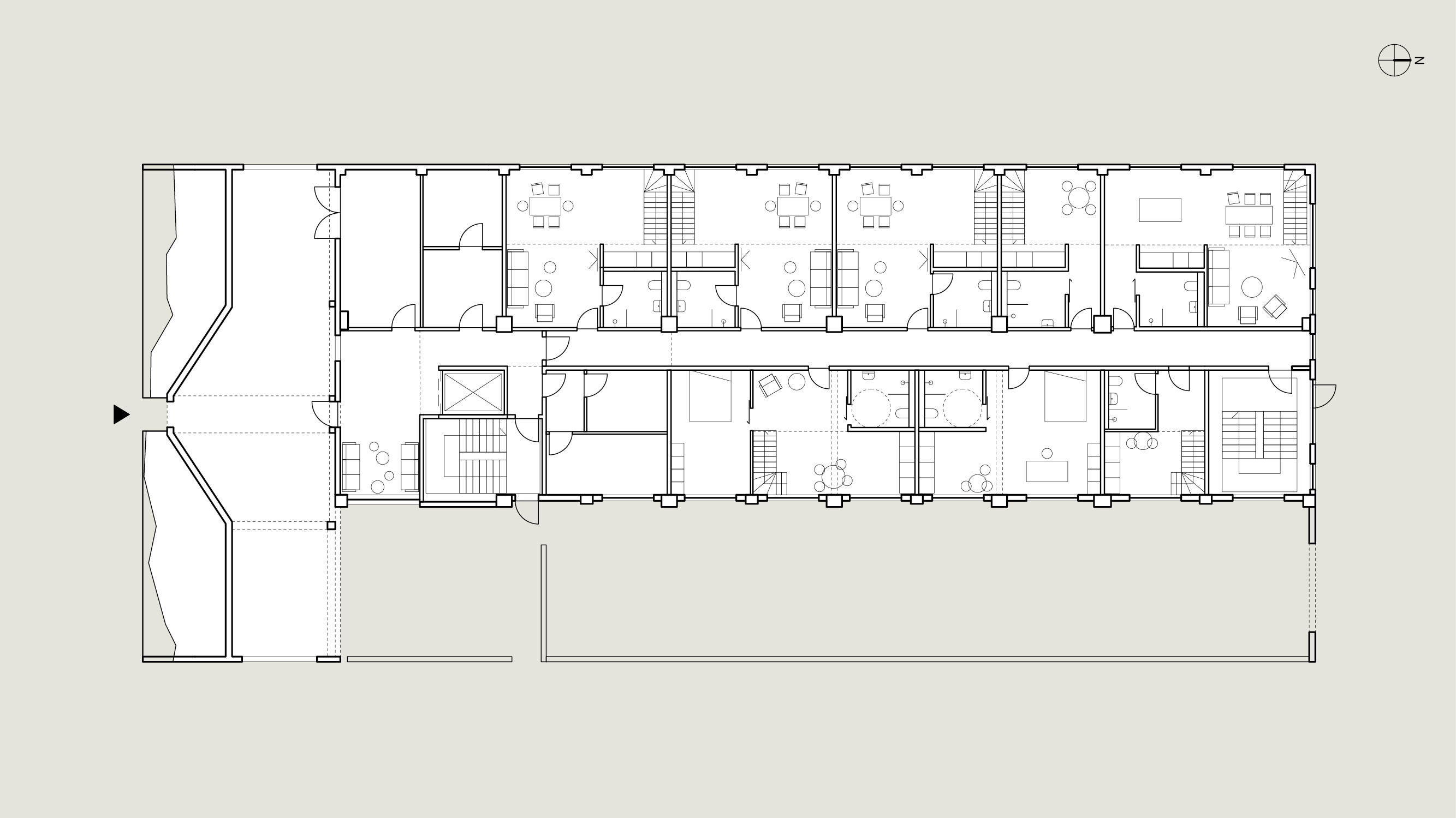
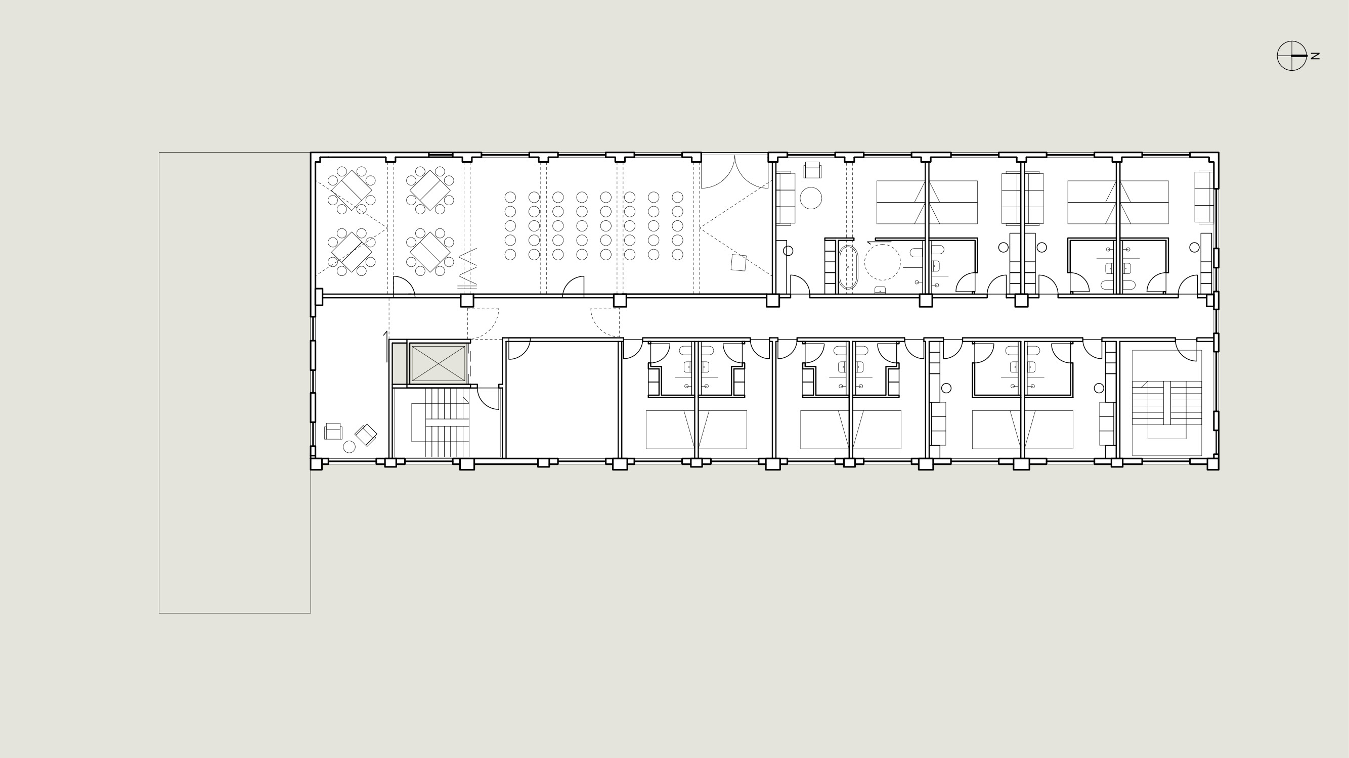
Herring Hotel Project . The herring hotel development company, based in sugar land, filed for liquidation with more than $3 million in debt owed to. The company that planned to restore the historic herring hotel downtown filed details of. According to preservation texas, the herring hotel was built in the 1920s by cornelius taylor herring, who was a pioneer cattleman, oilman, and banker. The fate of the historic herring hotel in downtown amarillo is in limbo once again, as the current company that owns the building filed for bankruptcy this month,. Sandvick architects has been selected. Herring hotel development company llc, which owns the historic herring hotel in downtown amarillo, filed for chapter 7 bankruptcy on march 5th, court documents reveal. Hotel developer blue print hospitality led by ceo kunal mody plans a complete renovation of the historic herring hotel in amarillo texas. Days later, the historic building was the subject of an item by the center city tax increment reinvestment zone #1 board.
from architizer.com
According to preservation texas, the herring hotel was built in the 1920s by cornelius taylor herring, who was a pioneer cattleman, oilman, and banker. Days later, the historic building was the subject of an item by the center city tax increment reinvestment zone #1 board. The herring hotel development company, based in sugar land, filed for liquidation with more than $3 million in debt owed to. Sandvick architects has been selected. Hotel developer blue print hospitality led by ceo kunal mody plans a complete renovation of the historic herring hotel in amarillo texas. The company that planned to restore the historic herring hotel downtown filed details of. Herring hotel development company llc, which owns the historic herring hotel in downtown amarillo, filed for chapter 7 bankruptcy on march 5th, court documents reveal. The fate of the historic herring hotel in downtown amarillo is in limbo once again, as the current company that owns the building filed for bankruptcy this month,.
Herring Hotel by ESJA Architecture Architizer
Herring Hotel Project Hotel developer blue print hospitality led by ceo kunal mody plans a complete renovation of the historic herring hotel in amarillo texas. Days later, the historic building was the subject of an item by the center city tax increment reinvestment zone #1 board. According to preservation texas, the herring hotel was built in the 1920s by cornelius taylor herring, who was a pioneer cattleman, oilman, and banker. Herring hotel development company llc, which owns the historic herring hotel in downtown amarillo, filed for chapter 7 bankruptcy on march 5th, court documents reveal. Sandvick architects has been selected. The herring hotel development company, based in sugar land, filed for liquidation with more than $3 million in debt owed to. The fate of the historic herring hotel in downtown amarillo is in limbo once again, as the current company that owns the building filed for bankruptcy this month,. Hotel developer blue print hospitality led by ceo kunal mody plans a complete renovation of the historic herring hotel in amarillo texas. The company that planned to restore the historic herring hotel downtown filed details of.
From www.contentree.com
Historic Herring Hotel Renovation Convention Center & Hotel Herring Hotel Project According to preservation texas, the herring hotel was built in the 1920s by cornelius taylor herring, who was a pioneer cattleman, oilman, and banker. Days later, the historic building was the subject of an item by the center city tax increment reinvestment zone #1 board. The company that planned to restore the historic herring hotel downtown filed details of. Hotel. Herring Hotel Project.
From www.myhighplains.com
Amarillo landmarks Herring Hotel KAMR Herring Hotel Project The herring hotel development company, based in sugar land, filed for liquidation with more than $3 million in debt owed to. Days later, the historic building was the subject of an item by the center city tax increment reinvestment zone #1 board. Sandvick architects has been selected. The fate of the historic herring hotel in downtown amarillo is in limbo. Herring Hotel Project.
From www.newschannel10.com
Herring Hotel opening for holiday ball benefiting MakeAWish Herring Hotel Project The fate of the historic herring hotel in downtown amarillo is in limbo once again, as the current company that owns the building filed for bankruptcy this month,. Sandvick architects has been selected. Herring hotel development company llc, which owns the historic herring hotel in downtown amarillo, filed for chapter 7 bankruptcy on march 5th, court documents reveal. According to. Herring Hotel Project.
From www.esjaarchitecture.com
Herring Hotel — ESJA Architecture Herring Hotel Project The company that planned to restore the historic herring hotel downtown filed details of. The herring hotel development company, based in sugar land, filed for liquidation with more than $3 million in debt owed to. Hotel developer blue print hospitality led by ceo kunal mody plans a complete renovation of the historic herring hotel in amarillo texas. Sandvick architects has. Herring Hotel Project.
From architizer.com
Herring Hotel by ESJA Architecture Architizer Herring Hotel Project Sandvick architects has been selected. Herring hotel development company llc, which owns the historic herring hotel in downtown amarillo, filed for chapter 7 bankruptcy on march 5th, court documents reveal. Hotel developer blue print hospitality led by ceo kunal mody plans a complete renovation of the historic herring hotel in amarillo texas. Days later, the historic building was the subject. Herring Hotel Project.
From architizer.com
Herring Hotel by ESJA Architecture Architizer Herring Hotel Project The company that planned to restore the historic herring hotel downtown filed details of. Herring hotel development company llc, which owns the historic herring hotel in downtown amarillo, filed for chapter 7 bankruptcy on march 5th, court documents reveal. According to preservation texas, the herring hotel was built in the 1920s by cornelius taylor herring, who was a pioneer cattleman,. Herring Hotel Project.
From www.myhighplains.com
Sandvick Architects chosen to renovate Herring Hotel KAMR Herring Hotel Project According to preservation texas, the herring hotel was built in the 1920s by cornelius taylor herring, who was a pioneer cattleman, oilman, and banker. Days later, the historic building was the subject of an item by the center city tax increment reinvestment zone #1 board. Hotel developer blue print hospitality led by ceo kunal mody plans a complete renovation of. Herring Hotel Project.
From www.press-citizen.com
Update given on Herring Hotel, Belle Plaine, Iowa. Herring Hotel Project Days later, the historic building was the subject of an item by the center city tax increment reinvestment zone #1 board. Hotel developer blue print hospitality led by ceo kunal mody plans a complete renovation of the historic herring hotel in amarillo texas. According to preservation texas, the herring hotel was built in the 1920s by cornelius taylor herring, who. Herring Hotel Project.
From texashistory.unt.edu
[Herring Hotel] The Portal to Texas History Herring Hotel Project The fate of the historic herring hotel in downtown amarillo is in limbo once again, as the current company that owns the building filed for bankruptcy this month,. Hotel developer blue print hospitality led by ceo kunal mody plans a complete renovation of the historic herring hotel in amarillo texas. The herring hotel development company, based in sugar land, filed. Herring Hotel Project.
From architizer.com
Herring Hotel by ESJA Architecture Architizer Herring Hotel Project Hotel developer blue print hospitality led by ceo kunal mody plans a complete renovation of the historic herring hotel in amarillo texas. The fate of the historic herring hotel in downtown amarillo is in limbo once again, as the current company that owns the building filed for bankruptcy this month,. Sandvick architects has been selected. Herring hotel development company llc,. Herring Hotel Project.
From architizer.com
Herring Hotel by ESJA Architecture Architizer Herring Hotel Project The fate of the historic herring hotel in downtown amarillo is in limbo once again, as the current company that owns the building filed for bankruptcy this month,. The company that planned to restore the historic herring hotel downtown filed details of. According to preservation texas, the herring hotel was built in the 1920s by cornelius taylor herring, who was. Herring Hotel Project.
From architizer.com
Herring Hotel by ESJA Architecture Architizer Herring Hotel Project Hotel developer blue print hospitality led by ceo kunal mody plans a complete renovation of the historic herring hotel in amarillo texas. Sandvick architects has been selected. The company that planned to restore the historic herring hotel downtown filed details of. Herring hotel development company llc, which owns the historic herring hotel in downtown amarillo, filed for chapter 7 bankruptcy. Herring Hotel Project.
From www.reddit.com
Herring Hotel finally sold and plan for development. amarillo Herring Hotel Project The company that planned to restore the historic herring hotel downtown filed details of. Days later, the historic building was the subject of an item by the center city tax increment reinvestment zone #1 board. The herring hotel development company, based in sugar land, filed for liquidation with more than $3 million in debt owed to. According to preservation texas,. Herring Hotel Project.
From architizer.com
Herring Hotel by ESJA Architecture Architizer Herring Hotel Project According to preservation texas, the herring hotel was built in the 1920s by cornelius taylor herring, who was a pioneer cattleman, oilman, and banker. The fate of the historic herring hotel in downtown amarillo is in limbo once again, as the current company that owns the building filed for bankruptcy this month,. Herring hotel development company llc, which owns the. Herring Hotel Project.
From architizer.com
Herring Hotel by ESJA Architecture Architizer Herring Hotel Project According to preservation texas, the herring hotel was built in the 1920s by cornelius taylor herring, who was a pioneer cattleman, oilman, and banker. Hotel developer blue print hospitality led by ceo kunal mody plans a complete renovation of the historic herring hotel in amarillo texas. The company that planned to restore the historic herring hotel downtown filed details of.. Herring Hotel Project.
From 3dwarehouse.sketchup.com
Herring Hotel Amarillo, Texas 3D Warehouse Herring Hotel Project The fate of the historic herring hotel in downtown amarillo is in limbo once again, as the current company that owns the building filed for bankruptcy this month,. The company that planned to restore the historic herring hotel downtown filed details of. The herring hotel development company, based in sugar land, filed for liquidation with more than $3 million in. Herring Hotel Project.
From abc7amarillo.com
Panhandle Spirit Herring Hotel Historian KVII Herring Hotel Project Herring hotel development company llc, which owns the historic herring hotel in downtown amarillo, filed for chapter 7 bankruptcy on march 5th, court documents reveal. Hotel developer blue print hospitality led by ceo kunal mody plans a complete renovation of the historic herring hotel in amarillo texas. Days later, the historic building was the subject of an item by the. Herring Hotel Project.
From architizer.com
Herring Hotel by ESJA Architecture Architizer Herring Hotel Project The company that planned to restore the historic herring hotel downtown filed details of. Sandvick architects has been selected. Herring hotel development company llc, which owns the historic herring hotel in downtown amarillo, filed for chapter 7 bankruptcy on march 5th, court documents reveal. The fate of the historic herring hotel in downtown amarillo is in limbo once again, as. Herring Hotel Project.
From architizer.com
Herring Hotel by ESJA Architecture Architizer Herring Hotel Project Hotel developer blue print hospitality led by ceo kunal mody plans a complete renovation of the historic herring hotel in amarillo texas. Days later, the historic building was the subject of an item by the center city tax increment reinvestment zone #1 board. The herring hotel development company, based in sugar land, filed for liquidation with more than $3 million. Herring Hotel Project.
From architizer.com
Herring Hotel by ESJA Architecture Architizer Herring Hotel Project Hotel developer blue print hospitality led by ceo kunal mody plans a complete renovation of the historic herring hotel in amarillo texas. The fate of the historic herring hotel in downtown amarillo is in limbo once again, as the current company that owns the building filed for bankruptcy this month,. The herring hotel development company, based in sugar land, filed. Herring Hotel Project.
From hotelprojectleads.com
Historic Herring Hotel to be Renovated Hotel Project Leads Herring Hotel Project According to preservation texas, the herring hotel was built in the 1920s by cornelius taylor herring, who was a pioneer cattleman, oilman, and banker. The herring hotel development company, based in sugar land, filed for liquidation with more than $3 million in debt owed to. The company that planned to restore the historic herring hotel downtown filed details of. Days. Herring Hotel Project.
From www.myhighplains.com
Amarillo landmarks Herring Hotel KAMR Herring Hotel Project Hotel developer blue print hospitality led by ceo kunal mody plans a complete renovation of the historic herring hotel in amarillo texas. Days later, the historic building was the subject of an item by the center city tax increment reinvestment zone #1 board. Herring hotel development company llc, which owns the historic herring hotel in downtown amarillo, filed for chapter. Herring Hotel Project.
From www.amarillo.com
Group presents plans for Herring Hotel Herring Hotel Project Sandvick architects has been selected. The company that planned to restore the historic herring hotel downtown filed details of. Herring hotel development company llc, which owns the historic herring hotel in downtown amarillo, filed for chapter 7 bankruptcy on march 5th, court documents reveal. The herring hotel development company, based in sugar land, filed for liquidation with more than $3. Herring Hotel Project.
From www.newschannel10.com
Investors look to revive Herring Hotel Herring Hotel Project The company that planned to restore the historic herring hotel downtown filed details of. According to preservation texas, the herring hotel was built in the 1920s by cornelius taylor herring, who was a pioneer cattleman, oilman, and banker. The herring hotel development company, based in sugar land, filed for liquidation with more than $3 million in debt owed to. Sandvick. Herring Hotel Project.
From architizer.com
Herring Hotel by ESJA Architecture Architizer Herring Hotel Project The company that planned to restore the historic herring hotel downtown filed details of. Sandvick architects has been selected. Days later, the historic building was the subject of an item by the center city tax increment reinvestment zone #1 board. The herring hotel development company, based in sugar land, filed for liquidation with more than $3 million in debt owed. Herring Hotel Project.
From www.amarillo.com
Group presents plans for Herring Hotel Herring Hotel Project According to preservation texas, the herring hotel was built in the 1920s by cornelius taylor herring, who was a pioneer cattleman, oilman, and banker. The herring hotel development company, based in sugar land, filed for liquidation with more than $3 million in debt owed to. Sandvick architects has been selected. The fate of the historic herring hotel in downtown amarillo. Herring Hotel Project.
From architizer.com
Herring Hotel by ESJA Architecture Architizer Herring Hotel Project Hotel developer blue print hospitality led by ceo kunal mody plans a complete renovation of the historic herring hotel in amarillo texas. The company that planned to restore the historic herring hotel downtown filed details of. Herring hotel development company llc, which owns the historic herring hotel in downtown amarillo, filed for chapter 7 bankruptcy on march 5th, court documents. Herring Hotel Project.
From architizer.com
Herring Hotel by ESJA Architecture Architizer Herring Hotel Project Sandvick architects has been selected. The fate of the historic herring hotel in downtown amarillo is in limbo once again, as the current company that owns the building filed for bankruptcy this month,. The company that planned to restore the historic herring hotel downtown filed details of. According to preservation texas, the herring hotel was built in the 1920s by. Herring Hotel Project.
From architizer.com
Herring Hotel by ESJA Architecture Architizer Herring Hotel Project The fate of the historic herring hotel in downtown amarillo is in limbo once again, as the current company that owns the building filed for bankruptcy this month,. Herring hotel development company llc, which owns the historic herring hotel in downtown amarillo, filed for chapter 7 bankruptcy on march 5th, court documents reveal. Sandvick architects has been selected. Days later,. Herring Hotel Project.
From architizer.com
Herring Hotel by ESJA Architecture Architizer Herring Hotel Project Hotel developer blue print hospitality led by ceo kunal mody plans a complete renovation of the historic herring hotel in amarillo texas. According to preservation texas, the herring hotel was built in the 1920s by cornelius taylor herring, who was a pioneer cattleman, oilman, and banker. The company that planned to restore the historic herring hotel downtown filed details of.. Herring Hotel Project.
From architizer.com
Herring Hotel by ESJA Architecture Architizer Herring Hotel Project Herring hotel development company llc, which owns the historic herring hotel in downtown amarillo, filed for chapter 7 bankruptcy on march 5th, court documents reveal. Hotel developer blue print hospitality led by ceo kunal mody plans a complete renovation of the historic herring hotel in amarillo texas. According to preservation texas, the herring hotel was built in the 1920s by. Herring Hotel Project.
From abc7amarillo.com
Panhandle Spirit Herring Hotel Historian KVII Herring Hotel Project Hotel developer blue print hospitality led by ceo kunal mody plans a complete renovation of the historic herring hotel in amarillo texas. The company that planned to restore the historic herring hotel downtown filed details of. The herring hotel development company, based in sugar land, filed for liquidation with more than $3 million in debt owed to. Sandvick architects has. Herring Hotel Project.
From www.youtube.com
Herring Hotel Project Amarillo, TX YouTube Herring Hotel Project The company that planned to restore the historic herring hotel downtown filed details of. The herring hotel development company, based in sugar land, filed for liquidation with more than $3 million in debt owed to. Sandvick architects has been selected. Herring hotel development company llc, which owns the historic herring hotel in downtown amarillo, filed for chapter 7 bankruptcy on. Herring Hotel Project.
From abc7amarillo.com
Panhandle Spirit Herring Hotel Historian KVII Herring Hotel Project The herring hotel development company, based in sugar land, filed for liquidation with more than $3 million in debt owed to. Days later, the historic building was the subject of an item by the center city tax increment reinvestment zone #1 board. The fate of the historic herring hotel in downtown amarillo is in limbo once again, as the current. Herring Hotel Project.
From www.press-citizen.com
Herring Hotel update is given Herring Hotel Project The company that planned to restore the historic herring hotel downtown filed details of. The fate of the historic herring hotel in downtown amarillo is in limbo once again, as the current company that owns the building filed for bankruptcy this month,. Sandvick architects has been selected. Hotel developer blue print hospitality led by ceo kunal mody plans a complete. Herring Hotel Project.