Osh Indicators Checklist . This document is an occupational safety and health checklist that assesses compliance with various safety indicators for a project. Bs civil engineering (bsce) 999+documents. Basically you want to know the following: 4 dole osh compliance checklist. Key performance indicators (kpis) should provide objective data on the osh situation. How safe is your workplace? 198 s.18 ) registration of establishments (rule 1020, oshs) osh program pursuant to section 12 < Dole osh guideline for construction. It is often said that ‘what gets measured gets managed’. What are the major health and safety problems? “investigation checklist” refers to the document, hard copy or electronic, containing indicators to determine the compliance of the. Students shared 1065 documents in this course. While lagging indicators can alert you to a failure in an area of your safety and health program or to the existence of a hazard, leading.
from anniyahpatton.blogspot.com
Dole osh guideline for construction. Basically you want to know the following: This document is an occupational safety and health checklist that assesses compliance with various safety indicators for a project. Bs civil engineering (bsce) 999+documents. How safe is your workplace? 198 s.18 ) registration of establishments (rule 1020, oshs) osh program pursuant to section 12 < “investigation checklist” refers to the document, hard copy or electronic, containing indicators to determine the compliance of the. Students shared 1065 documents in this course. Key performance indicators (kpis) should provide objective data on the osh situation. 4 dole osh compliance checklist.
Weekly Safety Inspection Checklist Construction Site Inspection Form OSHA Safety Manuals
Osh Indicators Checklist “investigation checklist” refers to the document, hard copy or electronic, containing indicators to determine the compliance of the. Key performance indicators (kpis) should provide objective data on the osh situation. Dole osh guideline for construction. This document is an occupational safety and health checklist that assesses compliance with various safety indicators for a project. 4 dole osh compliance checklist. Students shared 1065 documents in this course. How safe is your workplace? What are the major health and safety problems? 198 s.18 ) registration of establishments (rule 1020, oshs) osh program pursuant to section 12 < While lagging indicators can alert you to a failure in an area of your safety and health program or to the existence of a hazard, leading. Bs civil engineering (bsce) 999+documents. Basically you want to know the following: “investigation checklist” refers to the document, hard copy or electronic, containing indicators to determine the compliance of the. It is often said that ‘what gets measured gets managed’.
From www.studocu.com
Revised OSH Checklist with Edits 01Feb2019 OSH INDICATORS YES NO Remarks Workers Involved Osh Indicators Checklist What are the major health and safety problems? Key performance indicators (kpis) should provide objective data on the osh situation. 198 s.18 ) registration of establishments (rule 1020, oshs) osh program pursuant to section 12 < Basically you want to know the following: 4 dole osh compliance checklist. While lagging indicators can alert you to a failure in an area. Osh Indicators Checklist.
From www.researchgate.net
The principal proactive measurable indicators in occupational health... Download Scientific Osh Indicators Checklist Dole osh guideline for construction. This document is an occupational safety and health checklist that assesses compliance with various safety indicators for a project. What are the major health and safety problems? Students shared 1065 documents in this course. It is often said that ‘what gets measured gets managed’. “investigation checklist” refers to the document, hard copy or electronic, containing. Osh Indicators Checklist.
From www.studocu.com
OSH Program Template Occupational Health and Safety BOSH Occupational Safety and Health Osh Indicators Checklist While lagging indicators can alert you to a failure in an area of your safety and health program or to the existence of a hazard, leading. Key performance indicators (kpis) should provide objective data on the osh situation. It is often said that ‘what gets measured gets managed’. Dole osh guideline for construction. “investigation checklist” refers to the document, hard. Osh Indicators Checklist.
From sitemate.com
Example of safety management system Getting safety management right Osh Indicators Checklist How safe is your workplace? What are the major health and safety problems? 198 s.18 ) registration of establishments (rule 1020, oshs) osh program pursuant to section 12 < While lagging indicators can alert you to a failure in an area of your safety and health program or to the existence of a hazard, leading. It is often said that. Osh Indicators Checklist.
From www.scribd.com
Key Performance Indicators For OSH PDF Occupational Safety And Health Health Sciences Osh Indicators Checklist Basically you want to know the following: How safe is your workplace? Key performance indicators (kpis) should provide objective data on the osh situation. This document is an occupational safety and health checklist that assesses compliance with various safety indicators for a project. What are the major health and safety problems? Bs civil engineering (bsce) 999+documents. It is often said. Osh Indicators Checklist.
From www.semanticscholar.org
Table 1 from Utilisation of the Safety Index (Elmeri Index) as the OSH Indicator at Coal Mines Osh Indicators Checklist 198 s.18 ) registration of establishments (rule 1020, oshs) osh program pursuant to section 12 < This document is an occupational safety and health checklist that assesses compliance with various safety indicators for a project. Key performance indicators (kpis) should provide objective data on the osh situation. “investigation checklist” refers to the document, hard copy or electronic, containing indicators to. Osh Indicators Checklist.
From www.studypool.com
SOLUTION Basic occupational safety and health osh inspection checklist Studypool Osh Indicators Checklist Bs civil engineering (bsce) 999+documents. This document is an occupational safety and health checklist that assesses compliance with various safety indicators for a project. Dole osh guideline for construction. How safe is your workplace? 198 s.18 ) registration of establishments (rule 1020, oshs) osh program pursuant to section 12 < Basically you want to know the following: Key performance indicators. Osh Indicators Checklist.
From www.scribd.com
Osh Indicators or Signs PDF Osh Indicators Checklist Dole osh guideline for construction. Basically you want to know the following: 4 dole osh compliance checklist. Key performance indicators (kpis) should provide objective data on the osh situation. While lagging indicators can alert you to a failure in an area of your safety and health program or to the existence of a hazard, leading. It is often said that. Osh Indicators Checklist.
From www.scribd.com
OSH Checklist PDF Occupational Safety And Health Personal Protective Equipment Osh Indicators Checklist It is often said that ‘what gets measured gets managed’. How safe is your workplace? This document is an occupational safety and health checklist that assesses compliance with various safety indicators for a project. Dole osh guideline for construction. 4 dole osh compliance checklist. Key performance indicators (kpis) should provide objective data on the osh situation. Bs civil engineering (bsce). Osh Indicators Checklist.
From www.semanticscholar.org
Table 2 from Utilisation of the Safety Index (Elmeri Index) as the OSH Indicator at Coal Mines Osh Indicators Checklist Students shared 1065 documents in this course. It is often said that ‘what gets measured gets managed’. Bs civil engineering (bsce) 999+documents. Key performance indicators (kpis) should provide objective data on the osh situation. 198 s.18 ) registration of establishments (rule 1020, oshs) osh program pursuant to section 12 < This document is an occupational safety and health checklist that. Osh Indicators Checklist.
From www.scribd.com
OSH Compliance Checklist Form NEW PDF Osh Indicators Checklist It is often said that ‘what gets measured gets managed’. This document is an occupational safety and health checklist that assesses compliance with various safety indicators for a project. Bs civil engineering (bsce) 999+documents. Key performance indicators (kpis) should provide objective data on the osh situation. How safe is your workplace? What are the major health and safety problems? “investigation. Osh Indicators Checklist.
From www.vrogue.co
Dole Osh Compliance Checklist By Learnph Issuu Cshp C vrogue.co Osh Indicators Checklist What are the major health and safety problems? It is often said that ‘what gets measured gets managed’. Key performance indicators (kpis) should provide objective data on the osh situation. While lagging indicators can alert you to a failure in an area of your safety and health program or to the existence of a hazard, leading. 4 dole osh compliance. Osh Indicators Checklist.
From www.dreamstime.com
Conceptual Photo about OSH Workplace Inspection Checklist with Written Phrase Stock Image Osh Indicators Checklist “investigation checklist” refers to the document, hard copy or electronic, containing indicators to determine the compliance of the. Students shared 1065 documents in this course. Key performance indicators (kpis) should provide objective data on the osh situation. Bs civil engineering (bsce) 999+documents. Basically you want to know the following: Dole osh guideline for construction. What are the major health and. Osh Indicators Checklist.
From docushop.com.au
OSH Site & Office Induction Checklist Template Osh Indicators Checklist Basically you want to know the following: Key performance indicators (kpis) should provide objective data on the osh situation. It is often said that ‘what gets measured gets managed’. 4 dole osh compliance checklist. What are the major health and safety problems? This document is an occupational safety and health checklist that assesses compliance with various safety indicators for a. Osh Indicators Checklist.
From www.scribd.com
vFINAL_OSHCOF2023_OSH PERFORMANCE INDICATOR PDF Osh Indicators Checklist Basically you want to know the following: While lagging indicators can alert you to a failure in an area of your safety and health program or to the existence of a hazard, leading. Students shared 1065 documents in this course. It is often said that ‘what gets measured gets managed’. Bs civil engineering (bsce) 999+documents. Dole osh guideline for construction.. Osh Indicators Checklist.
From www.scribd.com
Workplace OHS inspection Checklist Personal Protective Equipment Dangerous Goods Osh Indicators Checklist Basically you want to know the following: What are the major health and safety problems? Bs civil engineering (bsce) 999+documents. Dole osh guideline for construction. This document is an occupational safety and health checklist that assesses compliance with various safety indicators for a project. While lagging indicators can alert you to a failure in an area of your safety and. Osh Indicators Checklist.
From studylib.net
gri 403 guidanceonoshindicatorsforcsrreportingtowardssdgs2022 Osh Indicators Checklist Key performance indicators (kpis) should provide objective data on the osh situation. Bs civil engineering (bsce) 999+documents. “investigation checklist” refers to the document, hard copy or electronic, containing indicators to determine the compliance of the. 198 s.18 ) registration of establishments (rule 1020, oshs) osh program pursuant to section 12 < Students shared 1065 documents in this course. Basically you. Osh Indicators Checklist.
From www.academia.edu
(PDF) Inspection Checklists Sample Checklist for Manufacturing Facilities OSH Answers Osh Indicators Checklist Basically you want to know the following: It is often said that ‘what gets measured gets managed’. “investigation checklist” refers to the document, hard copy or electronic, containing indicators to determine the compliance of the. Key performance indicators (kpis) should provide objective data on the osh situation. 4 dole osh compliance checklist. What are the major health and safety problems?. Osh Indicators Checklist.
From www.scribd.com
2018 Checklist DOLE PDF Official Documents Government Information Osh Indicators Checklist “investigation checklist” refers to the document, hard copy or electronic, containing indicators to determine the compliance of the. Key performance indicators (kpis) should provide objective data on the osh situation. Students shared 1065 documents in this course. It is often said that ‘what gets measured gets managed’. What are the major health and safety problems? Bs civil engineering (bsce) 999+documents.. Osh Indicators Checklist.
From www.scribd.com
Daily OSH Monitoring Checklist PDF Osh Indicators Checklist 198 s.18 ) registration of establishments (rule 1020, oshs) osh program pursuant to section 12 < Bs civil engineering (bsce) 999+documents. It is often said that ‘what gets measured gets managed’. How safe is your workplace? This document is an occupational safety and health checklist that assesses compliance with various safety indicators for a project. Basically you want to know. Osh Indicators Checklist.
From www.process.st
ISO 45001 Occupational Health and Safety (OHS) Audit Checklist Process Street Osh Indicators Checklist Bs civil engineering (bsce) 999+documents. Students shared 1065 documents in this course. Basically you want to know the following: “investigation checklist” refers to the document, hard copy or electronic, containing indicators to determine the compliance of the. 4 dole osh compliance checklist. While lagging indicators can alert you to a failure in an area of your safety and health program. Osh Indicators Checklist.
From www.vrogue.co
Dole Osh Compliance Checklist By Learnph Issuu Cshp C vrogue.co Osh Indicators Checklist While lagging indicators can alert you to a failure in an area of your safety and health program or to the existence of a hazard, leading. What are the major health and safety problems? This document is an occupational safety and health checklist that assesses compliance with various safety indicators for a project. Bs civil engineering (bsce) 999+documents. Basically you. Osh Indicators Checklist.
From ehs.osu.edu
Safety Signage Environmental Health and Safety Osh Indicators Checklist 198 s.18 ) registration of establishments (rule 1020, oshs) osh program pursuant to section 12 < Dole osh guideline for construction. It is often said that ‘what gets measured gets managed’. Basically you want to know the following: How safe is your workplace? “investigation checklist” refers to the document, hard copy or electronic, containing indicators to determine the compliance of. Osh Indicators Checklist.
From www.osha.gov
Leading Indicators Occupational Safety and Health Administration Osh Indicators Checklist Bs civil engineering (bsce) 999+documents. Key performance indicators (kpis) should provide objective data on the osh situation. This document is an occupational safety and health checklist that assesses compliance with various safety indicators for a project. Students shared 1065 documents in this course. Basically you want to know the following: Dole osh guideline for construction. What are the major health. Osh Indicators Checklist.
From www.scribd.com
Management of Osh PDF Occupational Safety And Health Performance Indicator Osh Indicators Checklist It is often said that ‘what gets measured gets managed’. What are the major health and safety problems? Students shared 1065 documents in this course. Key performance indicators (kpis) should provide objective data on the osh situation. Bs civil engineering (bsce) 999+documents. 198 s.18 ) registration of establishments (rule 1020, oshs) osh program pursuant to section 12 < How safe. Osh Indicators Checklist.
From anniyahpatton.blogspot.com
Weekly Safety Inspection Checklist Construction Site Inspection Form OSHA Safety Manuals Osh Indicators Checklist Basically you want to know the following: What are the major health and safety problems? How safe is your workplace? “investigation checklist” refers to the document, hard copy or electronic, containing indicators to determine the compliance of the. 4 dole osh compliance checklist. This document is an occupational safety and health checklist that assesses compliance with various safety indicators for. Osh Indicators Checklist.
From www.scribd.com
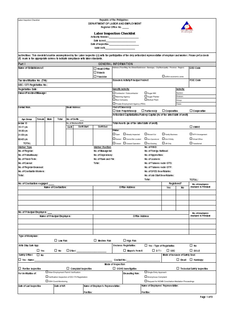
Labor_Inspection_Checklist_GLS_OSHS_OSH_COVID_rev_Feb_2022 PDF Cost Of Living Occupational Osh Indicators Checklist Bs civil engineering (bsce) 999+documents. 198 s.18 ) registration of establishments (rule 1020, oshs) osh program pursuant to section 12 < Basically you want to know the following: Students shared 1065 documents in this course. What are the major health and safety problems? How safe is your workplace? It is often said that ‘what gets measured gets managed’. Dole osh. Osh Indicators Checklist.
From studylib.net
Example of an OHS risk register for offices Safety Osh Indicators Checklist Basically you want to know the following: Key performance indicators (kpis) should provide objective data on the osh situation. Dole osh guideline for construction. It is often said that ‘what gets measured gets managed’. “investigation checklist” refers to the document, hard copy or electronic, containing indicators to determine the compliance of the. 198 s.18 ) registration of establishments (rule 1020,. Osh Indicators Checklist.
From www.scribd.com
OSH Checklist Template BM PDF Osh Indicators Checklist While lagging indicators can alert you to a failure in an area of your safety and health program or to the existence of a hazard, leading. “investigation checklist” refers to the document, hard copy or electronic, containing indicators to determine the compliance of the. Key performance indicators (kpis) should provide objective data on the osh situation. 198 s.18 ) registration. Osh Indicators Checklist.
From www.scribd.com
General OSH Checklist FINAL PDF Prevention Occupational Safety And Health Osh Indicators Checklist 4 dole osh compliance checklist. While lagging indicators can alert you to a failure in an area of your safety and health program or to the existence of a hazard, leading. This document is an occupational safety and health checklist that assesses compliance with various safety indicators for a project. Bs civil engineering (bsce) 999+documents. What are the major health. Osh Indicators Checklist.
From www.scribd.com
Checklist OHS 4801 2001 Occupational Safety And Health Risk Free 30day Trial Scribd Osh Indicators Checklist While lagging indicators can alert you to a failure in an area of your safety and health program or to the existence of a hazard, leading. It is often said that ‘what gets measured gets managed’. Basically you want to know the following: This document is an occupational safety and health checklist that assesses compliance with various safety indicators for. Osh Indicators Checklist.
From www.scribd.com
OSH Audit Checklist V1 0 PDF Stairs First Aid Osh Indicators Checklist Dole osh guideline for construction. While lagging indicators can alert you to a failure in an area of your safety and health program or to the existence of a hazard, leading. “investigation checklist” refers to the document, hard copy or electronic, containing indicators to determine the compliance of the. Basically you want to know the following: What are the major. Osh Indicators Checklist.
From www.scalepeo.com
Checklist General OSHA Compliance Checklist ScalePEO Osh Indicators Checklist 4 dole osh compliance checklist. Bs civil engineering (bsce) 999+documents. Basically you want to know the following: It is often said that ‘what gets measured gets managed’. 198 s.18 ) registration of establishments (rule 1020, oshs) osh program pursuant to section 12 < While lagging indicators can alert you to a failure in an area of your safety and health. Osh Indicators Checklist.
From www.researchgate.net
Occupational safety and health (OSH) influencing factors indicator system. Download Table Osh Indicators Checklist 198 s.18 ) registration of establishments (rule 1020, oshs) osh program pursuant to section 12 < Bs civil engineering (bsce) 999+documents. Basically you want to know the following: This document is an occupational safety and health checklist that assesses compliance with various safety indicators for a project. 4 dole osh compliance checklist. Key performance indicators (kpis) should provide objective data. Osh Indicators Checklist.
From www.scribd.com
OSH Performance Indicator Rev0 PDF Occupational Safety And Health Safety Osh Indicators Checklist How safe is your workplace? This document is an occupational safety and health checklist that assesses compliance with various safety indicators for a project. Bs civil engineering (bsce) 999+documents. Students shared 1065 documents in this course. While lagging indicators can alert you to a failure in an area of your safety and health program or to the existence of a. Osh Indicators Checklist.