Roofing Shop Drawings . Our focus is getting you approved with drawings you’ll be proud to submit. One of the primary purposes of shop drawings in roofing projects is to ensure proper alignment and integration of roofing materials. Commercial roofing shop drawings are offered for all major flat roofing and metal roofing systems as well as metal siding systems including. Shop drawings are essential documents in the construction process, especially for metal roof components and assemblies. Shop drawings must show the relationship between the roof panel, panel clips/rib, flashings, fasteners, underlayment, caulking, penetrations. Innerwall has expertise in metal roofing, metal wall panels, fiber cement, acm,. Metal roofing shop drawings and more. We provide project documents, consulting, sub. Interactive details are pdf files that allow the user to create and edit. Whether you are in need of shop drawings or you need help designing a roof system, we can help. They play a vital role in communication, quality control, compliance, project coordination, and conflict resolution. Cad details ready made for your project! Download the catalog for solutions to every commercial roofing need. Shop drawings are highly detailed and specialized plans that provide precise instructions for creating components in construction or manufacturing projects.
from bilag.xxl.no
Commercial roofing shop drawings are offered for all major flat roofing and metal roofing systems as well as metal siding systems including. They play a vital role in communication, quality control, compliance, project coordination, and conflict resolution. Interactive details are pdf files that allow the user to create and edit. Shop drawings must show the relationship between the roof panel, panel clips/rib, flashings, fasteners, underlayment, caulking, penetrations. One of the primary purposes of shop drawings in roofing projects is to ensure proper alignment and integration of roofing materials. Cad details ready made for your project! Innerwall has expertise in metal roofing, metal wall panels, fiber cement, acm,. Shop drawings are essential documents in the construction process, especially for metal roof components and assemblies. Whether you are in need of shop drawings or you need help designing a roof system, we can help. Our focus is getting you approved with drawings you’ll be proud to submit.
Roofing Shop Drawings
Roofing Shop Drawings Shop drawings must show the relationship between the roof panel, panel clips/rib, flashings, fasteners, underlayment, caulking, penetrations. Cad details ready made for your project! Shop drawings must show the relationship between the roof panel, panel clips/rib, flashings, fasteners, underlayment, caulking, penetrations. Download the catalog for solutions to every commercial roofing need. Interactive details are pdf files that allow the user to create and edit. Shop drawings are highly detailed and specialized plans that provide precise instructions for creating components in construction or manufacturing projects. Commercial roofing shop drawings are offered for all major flat roofing and metal roofing systems as well as metal siding systems including. Innerwall has expertise in metal roofing, metal wall panels, fiber cement, acm,. One of the primary purposes of shop drawings in roofing projects is to ensure proper alignment and integration of roofing materials. Whether you are in need of shop drawings or you need help designing a roof system, we can help. They play a vital role in communication, quality control, compliance, project coordination, and conflict resolution. Our focus is getting you approved with drawings you’ll be proud to submit. Shop drawings are essential documents in the construction process, especially for metal roof components and assemblies. We provide project documents, consulting, sub. Metal roofing shop drawings and more.
From imagetou.com
Roof Truss Shop Drawings Image to u Roofing Shop Drawings Whether you are in need of shop drawings or you need help designing a roof system, we can help. One of the primary purposes of shop drawings in roofing projects is to ensure proper alignment and integration of roofing materials. Metal roofing shop drawings and more. They play a vital role in communication, quality control, compliance, project coordination, and conflict. Roofing Shop Drawings.
From getdrawings.com
Roofing Drawing at GetDrawings Free download Roofing Shop Drawings Our focus is getting you approved with drawings you’ll be proud to submit. They play a vital role in communication, quality control, compliance, project coordination, and conflict resolution. Interactive details are pdf files that allow the user to create and edit. Innerwall has expertise in metal roofing, metal wall panels, fiber cement, acm,. Metal roofing shop drawings and more. Cad. Roofing Shop Drawings.
From www.dimensions.com
Roofing Metal, Standing Seam Dimensions & Drawings Roofing Shop Drawings Cad details ready made for your project! Interactive details are pdf files that allow the user to create and edit. Shop drawings are essential documents in the construction process, especially for metal roof components and assemblies. Download the catalog for solutions to every commercial roofing need. Whether you are in need of shop drawings or you need help designing a. Roofing Shop Drawings.
From innerwallcompany.com
Metal Roof Shop Drawings Standing Seam, ACM, Fiber Cement Roofing Shop Drawings One of the primary purposes of shop drawings in roofing projects is to ensure proper alignment and integration of roofing materials. Whether you are in need of shop drawings or you need help designing a roof system, we can help. Shop drawings are highly detailed and specialized plans that provide precise instructions for creating components in construction or manufacturing projects.. Roofing Shop Drawings.
From www.scribd.com
Roof Slab Drawing PDF PDF Architectural Elements Concrete Roofing Shop Drawings One of the primary purposes of shop drawings in roofing projects is to ensure proper alignment and integration of roofing materials. They play a vital role in communication, quality control, compliance, project coordination, and conflict resolution. Whether you are in need of shop drawings or you need help designing a roof system, we can help. We provide project documents, consulting,. Roofing Shop Drawings.
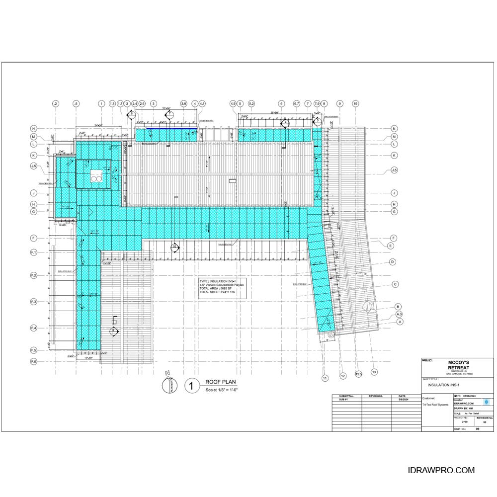
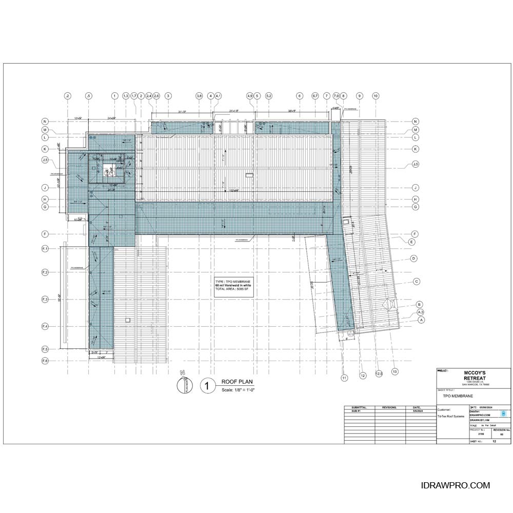
From www.idrawpro.com
Roofing and associated flashings shop drawings Roofing Shop Drawings Shop drawings are highly detailed and specialized plans that provide precise instructions for creating components in construction or manufacturing projects. One of the primary purposes of shop drawings in roofing projects is to ensure proper alignment and integration of roofing materials. Metal roofing shop drawings and more. Interactive details are pdf files that allow the user to create and edit.. Roofing Shop Drawings.
From www.mulehide.com
Roofing Products Roofing Shop Drawings Whether you are in need of shop drawings or you need help designing a roof system, we can help. Metal roofing shop drawings and more. Shop drawings are highly detailed and specialized plans that provide precise instructions for creating components in construction or manufacturing projects. Download the catalog for solutions to every commercial roofing need. Interactive details are pdf files. Roofing Shop Drawings.
From www.idrawpro.com
Roofing and associated flashings shop drawings Roofing Shop Drawings Shop drawings must show the relationship between the roof panel, panel clips/rib, flashings, fasteners, underlayment, caulking, penetrations. Shop drawings are essential documents in the construction process, especially for metal roof components and assemblies. Our focus is getting you approved with drawings you’ll be proud to submit. Innerwall has expertise in metal roofing, metal wall panels, fiber cement, acm,. They play. Roofing Shop Drawings.
From cosmeretech.com
Shop Drawings vs AsBuilt Drawings! Roofing Shop Drawings Download the catalog for solutions to every commercial roofing need. Innerwall has expertise in metal roofing, metal wall panels, fiber cement, acm,. They play a vital role in communication, quality control, compliance, project coordination, and conflict resolution. Our focus is getting you approved with drawings you’ll be proud to submit. Interactive details are pdf files that allow the user to. Roofing Shop Drawings.
From www.roofingdrawings.com
SAMPLE DRAWINGS — Commercial Roofing Shop Drawings Roofing Shop Drawings Commercial roofing shop drawings are offered for all major flat roofing and metal roofing systems as well as metal siding systems including. Interactive details are pdf files that allow the user to create and edit. Shop drawings are essential documents in the construction process, especially for metal roof components and assemblies. Whether you are in need of shop drawings or. Roofing Shop Drawings.
From www.roofingdrawings.com
SAMPLE DRAWINGS — Commercial Roofing Shop Drawings Roofing Shop Drawings Commercial roofing shop drawings are offered for all major flat roofing and metal roofing systems as well as metal siding systems including. Our focus is getting you approved with drawings you’ll be proud to submit. Shop drawings must show the relationship between the roof panel, panel clips/rib, flashings, fasteners, underlayment, caulking, penetrations. Innerwall has expertise in metal roofing, metal wall. Roofing Shop Drawings.
From www.vermonttimberworks.com
Sample Shop Drawings Vermont Timber Works Roofing Shop Drawings Shop drawings are highly detailed and specialized plans that provide precise instructions for creating components in construction or manufacturing projects. Whether you are in need of shop drawings or you need help designing a roof system, we can help. One of the primary purposes of shop drawings in roofing projects is to ensure proper alignment and integration of roofing materials.. Roofing Shop Drawings.
From getdrawings.com
Roofing Drawing at GetDrawings Free download Roofing Shop Drawings Whether you are in need of shop drawings or you need help designing a roof system, we can help. Download the catalog for solutions to every commercial roofing need. Cad details ready made for your project! They play a vital role in communication, quality control, compliance, project coordination, and conflict resolution. Shop drawings are highly detailed and specialized plans that. Roofing Shop Drawings.
From www.roofingdrawings.com
SAMPLE DRAWINGS — Commercial Roofing Shop Drawings Roofing Shop Drawings One of the primary purposes of shop drawings in roofing projects is to ensure proper alignment and integration of roofing materials. Metal roofing shop drawings and more. Our focus is getting you approved with drawings you’ll be proud to submit. Whether you are in need of shop drawings or you need help designing a roof system, we can help. Shop. Roofing Shop Drawings.
From www.idrawpro.com
Roofing and associated flashings shop drawings Roofing Shop Drawings They play a vital role in communication, quality control, compliance, project coordination, and conflict resolution. Shop drawings are highly detailed and specialized plans that provide precise instructions for creating components in construction or manufacturing projects. Interactive details are pdf files that allow the user to create and edit. Cad details ready made for your project! Shop drawings must show the. Roofing Shop Drawings.
From www.idrawpro.com
Roofing and associated flashings shop drawings Roofing Shop Drawings One of the primary purposes of shop drawings in roofing projects is to ensure proper alignment and integration of roofing materials. Our focus is getting you approved with drawings you’ll be proud to submit. Metal roofing shop drawings and more. They play a vital role in communication, quality control, compliance, project coordination, and conflict resolution. Shop drawings must show the. Roofing Shop Drawings.
From www.roofingdrawings.com
SAMPLE DRAWINGS — Commercial Roofing Shop Drawings Roofing Shop Drawings Download the catalog for solutions to every commercial roofing need. Commercial roofing shop drawings are offered for all major flat roofing and metal roofing systems as well as metal siding systems including. Innerwall has expertise in metal roofing, metal wall panels, fiber cement, acm,. Our focus is getting you approved with drawings you’ll be proud to submit. Whether you are. Roofing Shop Drawings.
From www.idrawpro.com
Roofing and associated flashings shop drawings Roofing Shop Drawings Cad details ready made for your project! We provide project documents, consulting, sub. Innerwall has expertise in metal roofing, metal wall panels, fiber cement, acm,. Whether you are in need of shop drawings or you need help designing a roof system, we can help. Shop drawings are highly detailed and specialized plans that provide precise instructions for creating components in. Roofing Shop Drawings.
From www.roofdraftllc.com
Roof Shop Drawings RoofDraft United States Roofing Shop Drawings Download the catalog for solutions to every commercial roofing need. Shop drawings are essential documents in the construction process, especially for metal roof components and assemblies. Whether you are in need of shop drawings or you need help designing a roof system, we can help. Innerwall has expertise in metal roofing, metal wall panels, fiber cement, acm,. Cad details ready. Roofing Shop Drawings.
From bilag.xxl.no
Roofing Shop Drawings Roofing Shop Drawings Shop drawings must show the relationship between the roof panel, panel clips/rib, flashings, fasteners, underlayment, caulking, penetrations. One of the primary purposes of shop drawings in roofing projects is to ensure proper alignment and integration of roofing materials. Interactive details are pdf files that allow the user to create and edit. Whether you are in need of shop drawings or. Roofing Shop Drawings.
From www.roofdraftllc.com
Roof Shop Drawings RoofDraft United States Roofing Shop Drawings Commercial roofing shop drawings are offered for all major flat roofing and metal roofing systems as well as metal siding systems including. Shop drawings are essential documents in the construction process, especially for metal roof components and assemblies. One of the primary purposes of shop drawings in roofing projects is to ensure proper alignment and integration of roofing materials. Whether. Roofing Shop Drawings.
From ar.inspiredpencil.com
Roof Detail Drawings Roofing Shop Drawings Interactive details are pdf files that allow the user to create and edit. Innerwall has expertise in metal roofing, metal wall panels, fiber cement, acm,. They play a vital role in communication, quality control, compliance, project coordination, and conflict resolution. Metal roofing shop drawings and more. Whether you are in need of shop drawings or you need help designing a. Roofing Shop Drawings.
From www.roofingdrawings.com
SAMPLE DRAWINGS — Commercial Roofing Shop Drawings Roofing Shop Drawings One of the primary purposes of shop drawings in roofing projects is to ensure proper alignment and integration of roofing materials. They play a vital role in communication, quality control, compliance, project coordination, and conflict resolution. Cad details ready made for your project! We provide project documents, consulting, sub. Commercial roofing shop drawings are offered for all major flat roofing. Roofing Shop Drawings.
From dannytrejochesttattoomeaning.blogspot.com
how to draw roof tiles dannytrejochesttattoomeaning Roofing Shop Drawings Cad details ready made for your project! Commercial roofing shop drawings are offered for all major flat roofing and metal roofing systems as well as metal siding systems including. Shop drawings must show the relationship between the roof panel, panel clips/rib, flashings, fasteners, underlayment, caulking, penetrations. Innerwall has expertise in metal roofing, metal wall panels, fiber cement, acm,. Metal roofing. Roofing Shop Drawings.
From cadbull.com
2d cad drawing roof construction detail Cadbull Roofing Shop Drawings Shop drawings are highly detailed and specialized plans that provide precise instructions for creating components in construction or manufacturing projects. Innerwall has expertise in metal roofing, metal wall panels, fiber cement, acm,. Our focus is getting you approved with drawings you’ll be proud to submit. Cad details ready made for your project! Download the catalog for solutions to every commercial. Roofing Shop Drawings.
From imagetou.com
Roof Truss Shop Drawings Image to u Roofing Shop Drawings Shop drawings must show the relationship between the roof panel, panel clips/rib, flashings, fasteners, underlayment, caulking, penetrations. Download the catalog for solutions to every commercial roofing need. One of the primary purposes of shop drawings in roofing projects is to ensure proper alignment and integration of roofing materials. Innerwall has expertise in metal roofing, metal wall panels, fiber cement, acm,.. Roofing Shop Drawings.
From www.roofingdrawings.com
SAMPLE DRAWINGS — Commercial Roofing Shop Drawings Roofing Shop Drawings Innerwall has expertise in metal roofing, metal wall panels, fiber cement, acm,. Our focus is getting you approved with drawings you’ll be proud to submit. One of the primary purposes of shop drawings in roofing projects is to ensure proper alignment and integration of roofing materials. Interactive details are pdf files that allow the user to create and edit. We. Roofing Shop Drawings.
From cadbull.com
A roof detail of 14x19m work shop plan is given in this Autocad drawing Roofing Shop Drawings Commercial roofing shop drawings are offered for all major flat roofing and metal roofing systems as well as metal siding systems including. Cad details ready made for your project! We provide project documents, consulting, sub. Interactive details are pdf files that allow the user to create and edit. Download the catalog for solutions to every commercial roofing need. Innerwall has. Roofing Shop Drawings.
From www.metalroofingsystems.com
Metal Roofing Services Metal Roofing Systems, Inc. Roofing Shop Drawings Cad details ready made for your project! One of the primary purposes of shop drawings in roofing projects is to ensure proper alignment and integration of roofing materials. Interactive details are pdf files that allow the user to create and edit. Download the catalog for solutions to every commercial roofing need. Shop drawings must show the relationship between the roof. Roofing Shop Drawings.
From getdrawings.com
Roofing Drawing at GetDrawings Free download Roofing Shop Drawings Shop drawings are highly detailed and specialized plans that provide precise instructions for creating components in construction or manufacturing projects. Our focus is getting you approved with drawings you’ll be proud to submit. Shop drawings must show the relationship between the roof panel, panel clips/rib, flashings, fasteners, underlayment, caulking, penetrations. Whether you are in need of shop drawings or you. Roofing Shop Drawings.
From www.idrawpro.com
Roofing and associated flashings shop drawings Roofing Shop Drawings Whether you are in need of shop drawings or you need help designing a roof system, we can help. Commercial roofing shop drawings are offered for all major flat roofing and metal roofing systems as well as metal siding systems including. Cad details ready made for your project! Download the catalog for solutions to every commercial roofing need. They play. Roofing Shop Drawings.
From www.idrawpro.com
Roofing and associated flashings shop drawings Roofing Shop Drawings Whether you are in need of shop drawings or you need help designing a roof system, we can help. Download the catalog for solutions to every commercial roofing need. They play a vital role in communication, quality control, compliance, project coordination, and conflict resolution. Shop drawings are highly detailed and specialized plans that provide precise instructions for creating components in. Roofing Shop Drawings.
From innerwallcompany.com
Metal Roofing Shop Drawings Hire Us For Standing Seam, ACM, More Roofing Shop Drawings We provide project documents, consulting, sub. Whether you are in need of shop drawings or you need help designing a roof system, we can help. Download the catalog for solutions to every commercial roofing need. Cad details ready made for your project! Innerwall has expertise in metal roofing, metal wall panels, fiber cement, acm,. Shop drawings must show the relationship. Roofing Shop Drawings.
From www.scribd.com
Shop Drawing Roof Type S PDF Building Technology Building Engineering Roofing Shop Drawings Download the catalog for solutions to every commercial roofing need. Commercial roofing shop drawings are offered for all major flat roofing and metal roofing systems as well as metal siding systems including. Interactive details are pdf files that allow the user to create and edit. Our focus is getting you approved with drawings you’ll be proud to submit. Innerwall has. Roofing Shop Drawings.
From odonnellmetaldeck.com
Metal Deck Shop Drawings O'Donnell Metal Deck Roofing Shop Drawings We provide project documents, consulting, sub. Innerwall has expertise in metal roofing, metal wall panels, fiber cement, acm,. Shop drawings are essential documents in the construction process, especially for metal roof components and assemblies. Our focus is getting you approved with drawings you’ll be proud to submit. Metal roofing shop drawings and more. Shop drawings are highly detailed and specialized. Roofing Shop Drawings.