How To Fill In A Hazardous Waste Consignment Note . You will start by completing sections a and b on the top sheet. Produces a new consignment note. Download a consignment note form. Read the consignment notes guidance. how to fill in a hwcn. please read the detailed guidance for what information the consignment note must contain, who has to complete each part. fill in a consignment note. hazardous waste and toxic industrial waste are to be stored in appropriate containers with secondary containment and. As stated above the hazardous waste consignment note needs to be filled out in order, by the right person at the right. you may only accept the hazardous waste if the producer or carrier of the hazardous waste: A carbon copy will be. we would like to show you a description here but the site won’t allow us.
from chuckit.co.uk
fill in a consignment note. You will start by completing sections a and b on the top sheet. you may only accept the hazardous waste if the producer or carrier of the hazardous waste: please read the detailed guidance for what information the consignment note must contain, who has to complete each part. hazardous waste and toxic industrial waste are to be stored in appropriate containers with secondary containment and. Download a consignment note form. we would like to show you a description here but the site won’t allow us. A carbon copy will be. how to fill in a hwcn. Read the consignment notes guidance.
Waste Transfer Note
How To Fill In A Hazardous Waste Consignment Note Read the consignment notes guidance. you may only accept the hazardous waste if the producer or carrier of the hazardous waste: Download a consignment note form. Read the consignment notes guidance. As stated above the hazardous waste consignment note needs to be filled out in order, by the right person at the right. Produces a new consignment note. please read the detailed guidance for what information the consignment note must contain, who has to complete each part. how to fill in a hwcn. fill in a consignment note. we would like to show you a description here but the site won’t allow us. You will start by completing sections a and b on the top sheet. A carbon copy will be. hazardous waste and toxic industrial waste are to be stored in appropriate containers with secondary containment and.
From www.yumpu.com
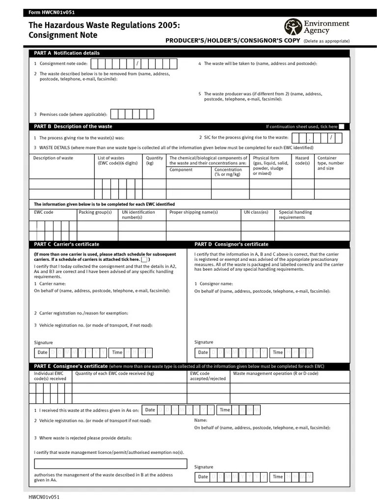
The Hazardous Waste Regulations 2005 Multiple Collection Consignment Note How To Fill In A Hazardous Waste Consignment Note A carbon copy will be. You will start by completing sections a and b on the top sheet. you may only accept the hazardous waste if the producer or carrier of the hazardous waste: Read the consignment notes guidance. Produces a new consignment note. fill in a consignment note. we would like to show you a description. How To Fill In A Hazardous Waste Consignment Note.
From dsposal.uk
What is a hazardous waste consignment note? Dsposal How To Fill In A Hazardous Waste Consignment Note Read the consignment notes guidance. fill in a consignment note. You will start by completing sections a and b on the top sheet. we would like to show you a description here but the site won’t allow us. you may only accept the hazardous waste if the producer or carrier of the hazardous waste: Download a consignment. How To Fill In A Hazardous Waste Consignment Note.
From www.vrogue.co
How To Identify Hazardous Waste In Your Home vrogue.co How To Fill In A Hazardous Waste Consignment Note we would like to show you a description here but the site won’t allow us. please read the detailed guidance for what information the consignment note must contain, who has to complete each part. Download a consignment note form. Produces a new consignment note. You will start by completing sections a and b on the top sheet. . How To Fill In A Hazardous Waste Consignment Note.
From oilsalvage.com
Why you need a consignment note Oil Salvage How To Fill In A Hazardous Waste Consignment Note hazardous waste and toxic industrial waste are to be stored in appropriate containers with secondary containment and. fill in a consignment note. As stated above the hazardous waste consignment note needs to be filled out in order, by the right person at the right. You will start by completing sections a and b on the top sheet. Download. How To Fill In A Hazardous Waste Consignment Note.
From www.scribd.com
Consignment Note For Scheduled Waste PDF Waste Economies How To Fill In A Hazardous Waste Consignment Note we would like to show you a description here but the site won’t allow us. A carbon copy will be. how to fill in a hwcn. You will start by completing sections a and b on the top sheet. fill in a consignment note. you may only accept the hazardous waste if the producer or carrier. How To Fill In A Hazardous Waste Consignment Note.
From www.sampletemplates.com
FREE 8+ Consignment Note Samples in MS Word PDF How To Fill In A Hazardous Waste Consignment Note we would like to show you a description here but the site won’t allow us. You will start by completing sections a and b on the top sheet. how to fill in a hwcn. fill in a consignment note. please read the detailed guidance for what information the consignment note must contain, who has to complete. How To Fill In A Hazardous Waste Consignment Note.
From www.youtube.com
Hazardous Waste Consignment Notes England and Wales YouTube How To Fill In A Hazardous Waste Consignment Note A carbon copy will be. hazardous waste and toxic industrial waste are to be stored in appropriate containers with secondary containment and. we would like to show you a description here but the site won’t allow us. Read the consignment notes guidance. Download a consignment note form. Produces a new consignment note. you may only accept the. How To Fill In A Hazardous Waste Consignment Note.
From www.slideserve.com
PPT Hazardous Waste Recovered Refrigerants PowerPoint Presentation How To Fill In A Hazardous Waste Consignment Note please read the detailed guidance for what information the consignment note must contain, who has to complete each part. Produces a new consignment note. Download a consignment note form. fill in a consignment note. Read the consignment notes guidance. You will start by completing sections a and b on the top sheet. we would like to show. How To Fill In A Hazardous Waste Consignment Note.
From www.wastenotes.co.uk
Hazardous Waste Consignment Notes How To Fill In A Hazardous Waste Consignment Note fill in a consignment note. we would like to show you a description here but the site won’t allow us. hazardous waste and toxic industrial waste are to be stored in appropriate containers with secondary containment and. Read the consignment notes guidance. A carbon copy will be. You will start by completing sections a and b on. How To Fill In A Hazardous Waste Consignment Note.
From tradeprintinguk.com
Hazardous Waste Consignment Books £95 printed NCR triplicate Books How To Fill In A Hazardous Waste Consignment Note As stated above the hazardous waste consignment note needs to be filled out in order, by the right person at the right. how to fill in a hwcn. you may only accept the hazardous waste if the producer or carrier of the hazardous waste: hazardous waste and toxic industrial waste are to be stored in appropriate containers. How To Fill In A Hazardous Waste Consignment Note.
From ehs.cornell.edu
Chapter 8 Hazardous Waste Disposal Procedures Environment, Health How To Fill In A Hazardous Waste Consignment Note please read the detailed guidance for what information the consignment note must contain, who has to complete each part. Download a consignment note form. As stated above the hazardous waste consignment note needs to be filled out in order, by the right person at the right. You will start by completing sections a and b on the top sheet.. How To Fill In A Hazardous Waste Consignment Note.
From methodstatementhq.com
Hazardous Waste Consignment Note Method Statement HQ How To Fill In A Hazardous Waste Consignment Note fill in a consignment note. please read the detailed guidance for what information the consignment note must contain, who has to complete each part. Download a consignment note form. hazardous waste and toxic industrial waste are to be stored in appropriate containers with secondary containment and. As stated above the hazardous waste consignment note needs to be. How To Fill In A Hazardous Waste Consignment Note.
From www.slideserve.com
PPT The Hazardous Waste (England and Wales) Regulations 2005 How To Fill In A Hazardous Waste Consignment Note As stated above the hazardous waste consignment note needs to be filled out in order, by the right person at the right. we would like to show you a description here but the site won’t allow us. Read the consignment notes guidance. You will start by completing sections a and b on the top sheet. Download a consignment note. How To Fill In A Hazardous Waste Consignment Note.
From www.vrogue.co
Hazardous Waste Consignment Note Fill Out And Sign Pr vrogue.co How To Fill In A Hazardous Waste Consignment Note Read the consignment notes guidance. You will start by completing sections a and b on the top sheet. Download a consignment note form. Produces a new consignment note. we would like to show you a description here but the site won’t allow us. hazardous waste and toxic industrial waste are to be stored in appropriate containers with secondary. How To Fill In A Hazardous Waste Consignment Note.
From fhl.uw.edu
Hazardous Waste Procedures Friday Harbor Laboratories How To Fill In A Hazardous Waste Consignment Note fill in a consignment note. Read the consignment notes guidance. how to fill in a hwcn. Produces a new consignment note. Download a consignment note form. hazardous waste and toxic industrial waste are to be stored in appropriate containers with secondary containment and. A carbon copy will be. we would like to show you a description. How To Fill In A Hazardous Waste Consignment Note.
From chuckit.co.uk
Waste Transfer Note How To Fill In A Hazardous Waste Consignment Note Download a consignment note form. we would like to show you a description here but the site won’t allow us. Read the consignment notes guidance. fill in a consignment note. how to fill in a hwcn. hazardous waste and toxic industrial waste are to be stored in appropriate containers with secondary containment and. As stated above. How To Fill In A Hazardous Waste Consignment Note.
From www.youtube.com
How to complete hazardous waste consignment notes YouTube How To Fill In A Hazardous Waste Consignment Note Produces a new consignment note. Read the consignment notes guidance. A carbon copy will be. you may only accept the hazardous waste if the producer or carrier of the hazardous waste: Download a consignment note form. You will start by completing sections a and b on the top sheet. As stated above the hazardous waste consignment note needs to. How To Fill In A Hazardous Waste Consignment Note.
From dsposal.uk
What is a Waste Transfer Note? Dsposal How To Fill In A Hazardous Waste Consignment Note please read the detailed guidance for what information the consignment note must contain, who has to complete each part. A carbon copy will be. Download a consignment note form. you may only accept the hazardous waste if the producer or carrier of the hazardous waste: Produces a new consignment note. You will start by completing sections a and. How To Fill In A Hazardous Waste Consignment Note.
From tardishire.co.uk
What is a Waste Declaration Form? Waste Transfer Note Tardis Hire How To Fill In A Hazardous Waste Consignment Note You will start by completing sections a and b on the top sheet. fill in a consignment note. you may only accept the hazardous waste if the producer or carrier of the hazardous waste: hazardous waste and toxic industrial waste are to be stored in appropriate containers with secondary containment and. A carbon copy will be. Produces. How To Fill In A Hazardous Waste Consignment Note.
From dsposal.uk
What is a hazardous waste consignment note? Dsposal How To Fill In A Hazardous Waste Consignment Note hazardous waste and toxic industrial waste are to be stored in appropriate containers with secondary containment and. A carbon copy will be. please read the detailed guidance for what information the consignment note must contain, who has to complete each part. fill in a consignment note. Read the consignment notes guidance. how to fill in a. How To Fill In A Hazardous Waste Consignment Note.
From dsposal.uk
What is a hazardous waste consignment note? Dsposal How To Fill In A Hazardous Waste Consignment Note A carbon copy will be. please read the detailed guidance for what information the consignment note must contain, who has to complete each part. You will start by completing sections a and b on the top sheet. we would like to show you a description here but the site won’t allow us. As stated above the hazardous waste. How To Fill In A Hazardous Waste Consignment Note.
From www.amazon.co.uk
Ocean Pads Hazardous Waste Consignment Note Pad HWCN01v112, A4, 3Parts How To Fill In A Hazardous Waste Consignment Note Produces a new consignment note. As stated above the hazardous waste consignment note needs to be filled out in order, by the right person at the right. fill in a consignment note. please read the detailed guidance for what information the consignment note must contain, who has to complete each part. we would like to show you. How To Fill In A Hazardous Waste Consignment Note.
From filecloudsmith274.weebly.com
Waste Consignment Note Template free download programs filecloudsmith How To Fill In A Hazardous Waste Consignment Note you may only accept the hazardous waste if the producer or carrier of the hazardous waste: we would like to show you a description here but the site won’t allow us. please read the detailed guidance for what information the consignment note must contain, who has to complete each part. You will start by completing sections a. How To Fill In A Hazardous Waste Consignment Note.
From www.onestopwaste.com
Hazardous Waste Paperchase One Stop Waste Solutions One Stop Waste How To Fill In A Hazardous Waste Consignment Note Download a consignment note form. you may only accept the hazardous waste if the producer or carrier of the hazardous waste: You will start by completing sections a and b on the top sheet. As stated above the hazardous waste consignment note needs to be filled out in order, by the right person at the right. Read the consignment. How To Fill In A Hazardous Waste Consignment Note.
From www.youtube.com
How to complete a hazardous waste consignment note. YouTube How To Fill In A Hazardous Waste Consignment Note As stated above the hazardous waste consignment note needs to be filled out in order, by the right person at the right. Read the consignment notes guidance. Download a consignment note form. Produces a new consignment note. You will start by completing sections a and b on the top sheet. we would like to show you a description here. How To Fill In A Hazardous Waste Consignment Note.
From www.oceanpads.co.uk
Environment Agency Hazardous Waste Consignment Note HWCN01v112 (70208 How To Fill In A Hazardous Waste Consignment Note we would like to show you a description here but the site won’t allow us. you may only accept the hazardous waste if the producer or carrier of the hazardous waste: Download a consignment note form. Produces a new consignment note. please read the detailed guidance for what information the consignment note must contain, who has to. How To Fill In A Hazardous Waste Consignment Note.
From dsposal.uk
What is a hazardous waste consignment note? Dsposal How To Fill In A Hazardous Waste Consignment Note you may only accept the hazardous waste if the producer or carrier of the hazardous waste: Read the consignment notes guidance. how to fill in a hwcn. You will start by completing sections a and b on the top sheet. A carbon copy will be. please read the detailed guidance for what information the consignment note must. How To Fill In A Hazardous Waste Consignment Note.
From www.scribd.com
Hazardous Consignment Note Blank PDF Hazardous Waste Email How To Fill In A Hazardous Waste Consignment Note how to fill in a hwcn. As stated above the hazardous waste consignment note needs to be filled out in order, by the right person at the right. Produces a new consignment note. we would like to show you a description here but the site won’t allow us. please read the detailed guidance for what information the. How To Fill In A Hazardous Waste Consignment Note.
From www.vrogue.co
Hazardous Waste Consignment Note Fill Out And Sign Pr vrogue.co How To Fill In A Hazardous Waste Consignment Note you may only accept the hazardous waste if the producer or carrier of the hazardous waste: Read the consignment notes guidance. please read the detailed guidance for what information the consignment note must contain, who has to complete each part. we would like to show you a description here but the site won’t allow us. Download a. How To Fill In A Hazardous Waste Consignment Note.
From www.yumpu.com
The Hazardous Waste Regulations 2005 Multiple Collection Consignment Note How To Fill In A Hazardous Waste Consignment Note you may only accept the hazardous waste if the producer or carrier of the hazardous waste: As stated above the hazardous waste consignment note needs to be filled out in order, by the right person at the right. hazardous waste and toxic industrial waste are to be stored in appropriate containers with secondary containment and. how to. How To Fill In A Hazardous Waste Consignment Note.
From dsposal.uk
What is a hazardous waste consignment note? Dsposal How To Fill In A Hazardous Waste Consignment Note fill in a consignment note. You will start by completing sections a and b on the top sheet. hazardous waste and toxic industrial waste are to be stored in appropriate containers with secondary containment and. Download a consignment note form. how to fill in a hwcn. As stated above the hazardous waste consignment note needs to be. How To Fill In A Hazardous Waste Consignment Note.
From support.powerednow.com
Hazardous Waste Consignment Note (HWCN) How To Fill In A Hazardous Waste Consignment Note please read the detailed guidance for what information the consignment note must contain, who has to complete each part. how to fill in a hwcn. fill in a consignment note. A carbon copy will be. you may only accept the hazardous waste if the producer or carrier of the hazardous waste: As stated above the hazardous. How To Fill In A Hazardous Waste Consignment Note.
From emsllcusa.com
Keeping Track of Your Chemical Waste Inventory Environmental How To Fill In A Hazardous Waste Consignment Note You will start by completing sections a and b on the top sheet. Read the consignment notes guidance. hazardous waste and toxic industrial waste are to be stored in appropriate containers with secondary containment and. A carbon copy will be. Produces a new consignment note. please read the detailed guidance for what information the consignment note must contain,. How To Fill In A Hazardous Waste Consignment Note.
From www.em-solutions.co.uk
Hazardous Waste Consignment Notes EMS How To Fill In A Hazardous Waste Consignment Note Read the consignment notes guidance. please read the detailed guidance for what information the consignment note must contain, who has to complete each part. As stated above the hazardous waste consignment note needs to be filled out in order, by the right person at the right. fill in a consignment note. You will start by completing sections a. How To Fill In A Hazardous Waste Consignment Note.
From kspprints.com
Hazardous Waste Label for Proper Handling of Your Container How To Fill In A Hazardous Waste Consignment Note fill in a consignment note. you may only accept the hazardous waste if the producer or carrier of the hazardous waste: how to fill in a hwcn. Read the consignment notes guidance. Download a consignment note form. Produces a new consignment note. A carbon copy will be. You will start by completing sections a and b on. How To Fill In A Hazardous Waste Consignment Note.