Land Transfer Tax Exemption Ontario . Learn about the exceptions to the ontario land transfer tax (ltt) that applies to all transfers of land upon registration. So how much is land transfer tax in ontario? This tax is paid on nearly every purchase and can cost up to an additional 2.5% of your home’s. 1990 made under the land transfer tax act (act), certain transfers of farmed land between family. The land transfer tax act does not provide an exemption for gifts of land from land transfer. However, land transfer tax is calculated. Is a gift exempt from land transfer tax? Understanding ontario’s land transfer tax rates. The land transfer tax act does not provide an exemption for gifts of land from land transfer tax. Is a gift exempt from land transfer tax? One major component of closing costs in ontario is the land transfer tax. Here’s how the marginal land. However, under regulation 697, r.r.o.
from www.templateroller.com
One major component of closing costs in ontario is the land transfer tax. However, under regulation 697, r.r.o. 1990 made under the land transfer tax act (act), certain transfers of farmed land between family. Here’s how the marginal land. Is a gift exempt from land transfer tax? Learn about the exceptions to the ontario land transfer tax (ltt) that applies to all transfers of land upon registration. This tax is paid on nearly every purchase and can cost up to an additional 2.5% of your home’s. However, land transfer tax is calculated. So how much is land transfer tax in ontario? Is a gift exempt from land transfer tax?
Form 0449E Fill Out, Sign Online and Download Fillable PDF, Ontario
Land Transfer Tax Exemption Ontario Understanding ontario’s land transfer tax rates. The land transfer tax act does not provide an exemption for gifts of land from land transfer. The land transfer tax act does not provide an exemption for gifts of land from land transfer tax. Is a gift exempt from land transfer tax? Here’s how the marginal land. However, under regulation 697, r.r.o. Learn about the exceptions to the ontario land transfer tax (ltt) that applies to all transfers of land upon registration. 1990 made under the land transfer tax act (act), certain transfers of farmed land between family. One major component of closing costs in ontario is the land transfer tax. So how much is land transfer tax in ontario? However, land transfer tax is calculated. Understanding ontario’s land transfer tax rates. This tax is paid on nearly every purchase and can cost up to an additional 2.5% of your home’s. Is a gift exempt from land transfer tax?
From thefutureyouwant.ca
Land Transfer Tax What is it and What Does it Cost? Land Transfer Tax Exemption Ontario However, land transfer tax is calculated. So how much is land transfer tax in ontario? Is a gift exempt from land transfer tax? Understanding ontario’s land transfer tax rates. 1990 made under the land transfer tax act (act), certain transfers of farmed land between family. The land transfer tax act does not provide an exemption for gifts of land from. Land Transfer Tax Exemption Ontario.
From www.freedomcapital.com
Thing you Should Know About Toronto Land Transfer Tax (MLTT) Land Transfer Tax Exemption Ontario The land transfer tax act does not provide an exemption for gifts of land from land transfer tax. The land transfer tax act does not provide an exemption for gifts of land from land transfer. Here’s how the marginal land. However, under regulation 697, r.r.o. Is a gift exempt from land transfer tax? This tax is paid on nearly every. Land Transfer Tax Exemption Ontario.
From www.templateroller.com
Form 0300E Fill Out, Sign Online and Download Fillable PDF, Ontario Land Transfer Tax Exemption Ontario Is a gift exempt from land transfer tax? The land transfer tax act does not provide an exemption for gifts of land from land transfer tax. Learn about the exceptions to the ontario land transfer tax (ltt) that applies to all transfers of land upon registration. However, land transfer tax is calculated. Understanding ontario’s land transfer tax rates. The land. Land Transfer Tax Exemption Ontario.
From www.truenorthmortgage.ca
Land Transfer Tax Calculator True North Mortgage Land Transfer Tax Exemption Ontario Here’s how the marginal land. Learn about the exceptions to the ontario land transfer tax (ltt) that applies to all transfers of land upon registration. Is a gift exempt from land transfer tax? So how much is land transfer tax in ontario? However, under regulation 697, r.r.o. This tax is paid on nearly every purchase and can cost up to. Land Transfer Tax Exemption Ontario.
From www.slideserve.com
PPT Closing Cost 3 Land Transfer Tax Ontario PowerPoint Presentation Land Transfer Tax Exemption Ontario So how much is land transfer tax in ontario? The land transfer tax act does not provide an exemption for gifts of land from land transfer tax. This tax is paid on nearly every purchase and can cost up to an additional 2.5% of your home’s. Understanding ontario’s land transfer tax rates. However, land transfer tax is calculated. The land. Land Transfer Tax Exemption Ontario.
From lauraquinn.ca
Important Changes to Land Transfer Tax Land Transfer Tax Exemption Ontario Is a gift exempt from land transfer tax? The land transfer tax act does not provide an exemption for gifts of land from land transfer tax. So how much is land transfer tax in ontario? This tax is paid on nearly every purchase and can cost up to an additional 2.5% of your home’s. Here’s how the marginal land. 1990. Land Transfer Tax Exemption Ontario.
From pierrecarapetian.com
Ontario Land Transfer Tax Who Pays? Calculator Exemptions Rebates Land Transfer Tax Exemption Ontario 1990 made under the land transfer tax act (act), certain transfers of farmed land between family. However, land transfer tax is calculated. Learn about the exceptions to the ontario land transfer tax (ltt) that applies to all transfers of land upon registration. One major component of closing costs in ontario is the land transfer tax. The land transfer tax act. Land Transfer Tax Exemption Ontario.
From www.templateroller.com
Form 0741E Fill Out, Sign Online and Download Fillable PDF, Ontario Land Transfer Tax Exemption Ontario One major component of closing costs in ontario is the land transfer tax. Here’s how the marginal land. The land transfer tax act does not provide an exemption for gifts of land from land transfer. Understanding ontario’s land transfer tax rates. Is a gift exempt from land transfer tax? So how much is land transfer tax in ontario? This tax. Land Transfer Tax Exemption Ontario.
From www.hummingbirdlaw.com
Land Transfer Tax In Ontario, What Is It? 🌟 Hummingbird Lawyers LLP Land Transfer Tax Exemption Ontario One major component of closing costs in ontario is the land transfer tax. Is a gift exempt from land transfer tax? However, under regulation 697, r.r.o. However, land transfer tax is calculated. The land transfer tax act does not provide an exemption for gifts of land from land transfer. The land transfer tax act does not provide an exemption for. Land Transfer Tax Exemption Ontario.
From www.pinterest.com
Ontario Land Transfer Tax Who Pays? Calculator Exemptions Rebates Land Transfer Tax Exemption Ontario Here’s how the marginal land. Is a gift exempt from land transfer tax? Learn about the exceptions to the ontario land transfer tax (ltt) that applies to all transfers of land upon registration. One major component of closing costs in ontario is the land transfer tax. The land transfer tax act does not provide an exemption for gifts of land. Land Transfer Tax Exemption Ontario.
From www.propertyrebate.net
FREE 22 Sample Tax Forms In PDF Excel MS Word Land Transfer Tax Exemption Ontario Learn about the exceptions to the ontario land transfer tax (ltt) that applies to all transfers of land upon registration. Is a gift exempt from land transfer tax? The land transfer tax act does not provide an exemption for gifts of land from land transfer tax. 1990 made under the land transfer tax act (act), certain transfers of farmed land. Land Transfer Tax Exemption Ontario.
From www.theclosing.ca
Ontario Land Transfer Tax TheClosing Land Transfer Tax Exemption Ontario However, under regulation 697, r.r.o. Is a gift exempt from land transfer tax? Learn about the exceptions to the ontario land transfer tax (ltt) that applies to all transfers of land upon registration. The land transfer tax act does not provide an exemption for gifts of land from land transfer tax. Is a gift exempt from land transfer tax? Here’s. Land Transfer Tax Exemption Ontario.
From www.pdffiller.com
Fillable Online fin gov on Land Transfer Tax Affidavit forms Ontario Land Transfer Tax Exemption Ontario Here’s how the marginal land. Learn about the exceptions to the ontario land transfer tax (ltt) that applies to all transfers of land upon registration. However, under regulation 697, r.r.o. Is a gift exempt from land transfer tax? So how much is land transfer tax in ontario? Understanding ontario’s land transfer tax rates. Is a gift exempt from land transfer. Land Transfer Tax Exemption Ontario.
From pickmagazines.com
How much is land transfer tax in Ontario calculator Pick Magazines Land Transfer Tax Exemption Ontario Understanding ontario’s land transfer tax rates. The land transfer tax act does not provide an exemption for gifts of land from land transfer. One major component of closing costs in ontario is the land transfer tax. So how much is land transfer tax in ontario? The land transfer tax act does not provide an exemption for gifts of land from. Land Transfer Tax Exemption Ontario.
From blog.easydigz.com
Understanding Land Transfer Tax A Comprehensive Guide for Buyers and Land Transfer Tax Exemption Ontario One major component of closing costs in ontario is the land transfer tax. Is a gift exempt from land transfer tax? This tax is paid on nearly every purchase and can cost up to an additional 2.5% of your home’s. So how much is land transfer tax in ontario? Learn about the exceptions to the ontario land transfer tax (ltt). Land Transfer Tax Exemption Ontario.
From www.templateroller.com
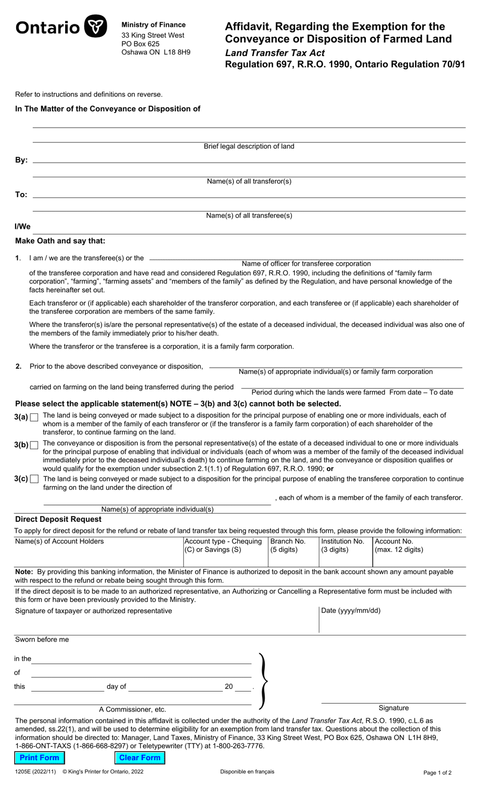
Form 1205E Fill Out, Sign Online and Download Fillable PDF, Ontario Land Transfer Tax Exemption Ontario Is a gift exempt from land transfer tax? Here’s how the marginal land. Learn about the exceptions to the ontario land transfer tax (ltt) that applies to all transfers of land upon registration. Understanding ontario’s land transfer tax rates. However, under regulation 697, r.r.o. One major component of closing costs in ontario is the land transfer tax. Is a gift. Land Transfer Tax Exemption Ontario.
From www.templateroller.com
Form 0449E Fill Out, Sign Online and Download Fillable PDF, Ontario Land Transfer Tax Exemption Ontario The land transfer tax act does not provide an exemption for gifts of land from land transfer tax. 1990 made under the land transfer tax act (act), certain transfers of farmed land between family. One major component of closing costs in ontario is the land transfer tax. However, under regulation 697, r.r.o. So how much is land transfer tax in. Land Transfer Tax Exemption Ontario.
From www.templateroller.com
Form 9996E Fill Out, Sign Online and Download Fillable PDF, Ontario Land Transfer Tax Exemption Ontario However, land transfer tax is calculated. The land transfer tax act does not provide an exemption for gifts of land from land transfer tax. Is a gift exempt from land transfer tax? Learn about the exceptions to the ontario land transfer tax (ltt) that applies to all transfers of land upon registration. Understanding ontario’s land transfer tax rates. 1990 made. Land Transfer Tax Exemption Ontario.
From areslaw.ca
Land Transfer Taxes & What You Need to Know Ares Law Land Transfer Tax Exemption Ontario 1990 made under the land transfer tax act (act), certain transfers of farmed land between family. Is a gift exempt from land transfer tax? So how much is land transfer tax in ontario? However, under regulation 697, r.r.o. Here’s how the marginal land. However, land transfer tax is calculated. Is a gift exempt from land transfer tax? Understanding ontario’s land. Land Transfer Tax Exemption Ontario.
From www.socciomarandola.com
First Dealings Exemption Ontario Eligibility Guidelines Land Transfer Tax Exemption Ontario The land transfer tax act does not provide an exemption for gifts of land from land transfer. Learn about the exceptions to the ontario land transfer tax (ltt) that applies to all transfers of land upon registration. Here’s how the marginal land. Understanding ontario’s land transfer tax rates. This tax is paid on nearly every purchase and can cost up. Land Transfer Tax Exemption Ontario.
From www.sampleforms.com
FREE 6+ Land Transfer Form Samples in PDF MS Word Land Transfer Tax Exemption Ontario Here’s how the marginal land. Is a gift exempt from land transfer tax? So how much is land transfer tax in ontario? This tax is paid on nearly every purchase and can cost up to an additional 2.5% of your home’s. However, under regulation 697, r.r.o. The land transfer tax act does not provide an exemption for gifts of land. Land Transfer Tax Exemption Ontario.
From www.ontarioconstructionnews.com
Toronto hiking land transfer tax and seeking permission to implement Land Transfer Tax Exemption Ontario Learn about the exceptions to the ontario land transfer tax (ltt) that applies to all transfers of land upon registration. This tax is paid on nearly every purchase and can cost up to an additional 2.5% of your home’s. So how much is land transfer tax in ontario? Understanding ontario’s land transfer tax rates. Is a gift exempt from land. Land Transfer Tax Exemption Ontario.
From www.templateroller.com
Form 0449E Fill Out, Sign Online and Download Fillable PDF, Ontario Land Transfer Tax Exemption Ontario Learn about the exceptions to the ontario land transfer tax (ltt) that applies to all transfers of land upon registration. Understanding ontario’s land transfer tax rates. So how much is land transfer tax in ontario? The land transfer tax act does not provide an exemption for gifts of land from land transfer tax. Is a gift exempt from land transfer. Land Transfer Tax Exemption Ontario.
From www.templateroller.com
Form 9996E Fill Out, Sign Online and Download Fillable PDF, Ontario Land Transfer Tax Exemption Ontario Learn about the exceptions to the ontario land transfer tax (ltt) that applies to all transfers of land upon registration. Here’s how the marginal land. 1990 made under the land transfer tax act (act), certain transfers of farmed land between family. However, under regulation 697, r.r.o. This tax is paid on nearly every purchase and can cost up to an. Land Transfer Tax Exemption Ontario.
From www.sampleforms.com
FREE 6+ Land Transfer Form Samples in PDF MS Word Land Transfer Tax Exemption Ontario One major component of closing costs in ontario is the land transfer tax. The land transfer tax act does not provide an exemption for gifts of land from land transfer. Here’s how the marginal land. This tax is paid on nearly every purchase and can cost up to an additional 2.5% of your home’s. The land transfer tax act does. Land Transfer Tax Exemption Ontario.
From www.pdffiller.com
Fillable Online Ontario Land Transfer Tax Refund Affidavit for First Land Transfer Tax Exemption Ontario However, under regulation 697, r.r.o. The land transfer tax act does not provide an exemption for gifts of land from land transfer. 1990 made under the land transfer tax act (act), certain transfers of farmed land between family. One major component of closing costs in ontario is the land transfer tax. Understanding ontario’s land transfer tax rates. This tax is. Land Transfer Tax Exemption Ontario.
From www.templateroller.com
Form 0449E Fill Out, Sign Online and Download Fillable PDF, Ontario Land Transfer Tax Exemption Ontario Is a gift exempt from land transfer tax? So how much is land transfer tax in ontario? The land transfer tax act does not provide an exemption for gifts of land from land transfer. The land transfer tax act does not provide an exemption for gifts of land from land transfer tax. However, under regulation 697, r.r.o. This tax is. Land Transfer Tax Exemption Ontario.
From www.youtube.com
Episode 13 Buying Real Estate in Ontario First Home Savings Account Land Transfer Tax Exemption Ontario 1990 made under the land transfer tax act (act), certain transfers of farmed land between family. Learn about the exceptions to the ontario land transfer tax (ltt) that applies to all transfers of land upon registration. The land transfer tax act does not provide an exemption for gifts of land from land transfer. However, land transfer tax is calculated. This. Land Transfer Tax Exemption Ontario.
From kareycoretta.pages.dev
Tax Calculator 2024 Ontario Kylie Land Transfer Tax Exemption Ontario One major component of closing costs in ontario is the land transfer tax. So how much is land transfer tax in ontario? This tax is paid on nearly every purchase and can cost up to an additional 2.5% of your home’s. The land transfer tax act does not provide an exemption for gifts of land from land transfer tax. Is. Land Transfer Tax Exemption Ontario.
From hxetxunqh.blob.core.windows.net
Land Transfer Tax Exemption Corporations at Cindy blog Land Transfer Tax Exemption Ontario 1990 made under the land transfer tax act (act), certain transfers of farmed land between family. Learn about the exceptions to the ontario land transfer tax (ltt) that applies to all transfers of land upon registration. However, land transfer tax is calculated. The land transfer tax act does not provide an exemption for gifts of land from land transfer. Is. Land Transfer Tax Exemption Ontario.
From www.templateroller.com
Form 0276E Download Fillable PDF or Fill Online Application and Land Transfer Tax Exemption Ontario This tax is paid on nearly every purchase and can cost up to an additional 2.5% of your home’s. However, land transfer tax is calculated. One major component of closing costs in ontario is the land transfer tax. Here’s how the marginal land. 1990 made under the land transfer tax act (act), certain transfers of farmed land between family. Learn. Land Transfer Tax Exemption Ontario.
From www.templateroller.com
Form 0449E Fill Out, Sign Online and Download Fillable PDF, Ontario Land Transfer Tax Exemption Ontario This tax is paid on nearly every purchase and can cost up to an additional 2.5% of your home’s. Is a gift exempt from land transfer tax? However, land transfer tax is calculated. One major component of closing costs in ontario is the land transfer tax. Is a gift exempt from land transfer tax? Learn about the exceptions to the. Land Transfer Tax Exemption Ontario.
From printablerebateform.net
Land Transfer Tax Rebate Land Transfer Tax Exemption Ontario Is a gift exempt from land transfer tax? Learn about the exceptions to the ontario land transfer tax (ltt) that applies to all transfers of land upon registration. One major component of closing costs in ontario is the land transfer tax. So how much is land transfer tax in ontario? 1990 made under the land transfer tax act (act), certain. Land Transfer Tax Exemption Ontario.
From www.scribd.com
Ontario Land Transfer Tax Rates 2021 Land Transfer Tax Calculator Land Transfer Tax Exemption Ontario This tax is paid on nearly every purchase and can cost up to an additional 2.5% of your home’s. So how much is land transfer tax in ontario? Learn about the exceptions to the ontario land transfer tax (ltt) that applies to all transfers of land upon registration. However, land transfer tax is calculated. Understanding ontario’s land transfer tax rates.. Land Transfer Tax Exemption Ontario.
From www.templateroller.com
Form 0449E Fill Out, Sign Online and Download Fillable PDF, Ontario Land Transfer Tax Exemption Ontario Is a gift exempt from land transfer tax? One major component of closing costs in ontario is the land transfer tax. Learn about the exceptions to the ontario land transfer tax (ltt) that applies to all transfers of land upon registration. So how much is land transfer tax in ontario? However, under regulation 697, r.r.o. The land transfer tax act. Land Transfer Tax Exemption Ontario.