New York City Property Tax Exemption Application . This includes applications for the senior citizen homeowners’. Apply by march 15 for your benefit to begin in july of the same year. Use the links below to check the status of your property tax exemption application. If you’re a new homeowner or are not receiving a star benefit on your current home, register as soon as your home becomes your primary residence. You can submit an application to remove a previously granted. If you are attempting to renew your existing sche benefit, please return to the. If you own property outside of new york city and wish to apply for an exemption on that property, you should contact your local county assessor to determine what documentation you need to. After you register, as long as. How can i remove property tax exemptions from my property in new york city? Sche lowers the property taxes of eligible seniors. How to apply for your sche benefit. You must apply or renew by march 15 to receive the benefit in the following tax year, which begins.
from www.templateroller.com
Use the links below to check the status of your property tax exemption application. How can i remove property tax exemptions from my property in new york city? If you are attempting to renew your existing sche benefit, please return to the. How to apply for your sche benefit. You can submit an application to remove a previously granted. Apply by march 15 for your benefit to begin in july of the same year. After you register, as long as. Sche lowers the property taxes of eligible seniors. You must apply or renew by march 15 to receive the benefit in the following tax year, which begins. If you’re a new homeowner or are not receiving a star benefit on your current home, register as soon as your home becomes your primary residence.
New York City Senior Citizen Homeowners' Exemption Renewal Application
New York City Property Tax Exemption Application If you own property outside of new york city and wish to apply for an exemption on that property, you should contact your local county assessor to determine what documentation you need to. If you’re a new homeowner or are not receiving a star benefit on your current home, register as soon as your home becomes your primary residence. After you register, as long as. If you are attempting to renew your existing sche benefit, please return to the. Sche lowers the property taxes of eligible seniors. If you own property outside of new york city and wish to apply for an exemption on that property, you should contact your local county assessor to determine what documentation you need to. You must apply or renew by march 15 to receive the benefit in the following tax year, which begins. You can submit an application to remove a previously granted. Use the links below to check the status of your property tax exemption application. How can i remove property tax exemptions from my property in new york city? This includes applications for the senior citizen homeowners’. How to apply for your sche benefit. Apply by march 15 for your benefit to begin in july of the same year.
From www.templateroller.com
New York City Real Estate Tax Automatic Payment (Auto Pay) Application New York City Property Tax Exemption Application You can submit an application to remove a previously granted. Sche lowers the property taxes of eligible seniors. If you own property outside of new york city and wish to apply for an exemption on that property, you should contact your local county assessor to determine what documentation you need to. You must apply or renew by march 15 to. New York City Property Tax Exemption Application.
From www.templateroller.com
Form RP485A Download Fillable PDF or Fill Online Application for Real New York City Property Tax Exemption Application Use the links below to check the status of your property tax exemption application. How can i remove property tax exemptions from my property in new york city? You can submit an application to remove a previously granted. If you are attempting to renew your existing sche benefit, please return to the. You must apply or renew by march 15. New York City Property Tax Exemption Application.
From www.templateroller.com
New York City Cooperative Property Tax Abatement Initial Application New York City Property Tax Exemption Application After you register, as long as. If you are attempting to renew your existing sche benefit, please return to the. You can submit an application to remove a previously granted. How can i remove property tax exemptions from my property in new york city? If you own property outside of new york city and wish to apply for an exemption. New York City Property Tax Exemption Application.
From www.templateroller.com
New York City Lien Sale Property Exemption Application Download New York City Property Tax Exemption Application How can i remove property tax exemptions from my property in new york city? Use the links below to check the status of your property tax exemption application. Apply by march 15 for your benefit to begin in july of the same year. How to apply for your sche benefit. If you own property outside of new york city and. New York City Property Tax Exemption Application.
From www.uslegalforms.com
Yonkers New York City Veterans Property Tax Exemption Form US Legal Forms New York City Property Tax Exemption Application After you register, as long as. Apply by march 15 for your benefit to begin in july of the same year. You can submit an application to remove a previously granted. You must apply or renew by march 15 to receive the benefit in the following tax year, which begins. If you are attempting to renew your existing sche benefit,. New York City Property Tax Exemption Application.
From www.formsbank.com
Senior Citizen Property Tax Exemption Application Instructions New New York City Property Tax Exemption Application If you’re a new homeowner or are not receiving a star benefit on your current home, register as soon as your home becomes your primary residence. You can submit an application to remove a previously granted. How to apply for your sche benefit. You must apply or renew by march 15 to receive the benefit in the following tax year,. New York City Property Tax Exemption Application.
From www.exemptform.com
New York State Tax Exempt Form New York City Property Tax Exemption Application If you own property outside of new york city and wish to apply for an exemption on that property, you should contact your local county assessor to determine what documentation you need to. You can submit an application to remove a previously granted. If you’re a new homeowner or are not receiving a star benefit on your current home, register. New York City Property Tax Exemption Application.
From www.uslegalforms.com
New York City Senior Citizen Property Tax Exemption Application Nys New York City Property Tax Exemption Application How to apply for your sche benefit. Sche lowers the property taxes of eligible seniors. If you’re a new homeowner or are not receiving a star benefit on your current home, register as soon as your home becomes your primary residence. This includes applications for the senior citizen homeowners’. If you own property outside of new york city and wish. New York City Property Tax Exemption Application.
From www.formsbank.com
Partial Property Tax Exemption Application For Clergy Form Nyc New York City Property Tax Exemption Application After you register, as long as. You can submit an application to remove a previously granted. Use the links below to check the status of your property tax exemption application. If you are attempting to renew your existing sche benefit, please return to the. You must apply or renew by march 15 to receive the benefit in the following tax. New York City Property Tax Exemption Application.
From leiaqclaribel.pages.dev
Tax Exempt Form 2024 Nys Adan Jolene New York City Property Tax Exemption Application This includes applications for the senior citizen homeowners’. If you are attempting to renew your existing sche benefit, please return to the. How to apply for your sche benefit. You must apply or renew by march 15 to receive the benefit in the following tax year, which begins. Sche lowers the property taxes of eligible seniors. How can i remove. New York City Property Tax Exemption Application.
From www.uslegalforms.com
New York City Senior Citizen Property Tax Exemption Application Nys New York City Property Tax Exemption Application This includes applications for the senior citizen homeowners’. You must apply or renew by march 15 to receive the benefit in the following tax year, which begins. How to apply for your sche benefit. Apply by march 15 for your benefit to begin in july of the same year. Use the links below to check the status of your property. New York City Property Tax Exemption Application.
From www.templateroller.com
New York City Senior Citizen Homeowners' Exemption Initial Application New York City Property Tax Exemption Application This includes applications for the senior citizen homeowners’. You must apply or renew by march 15 to receive the benefit in the following tax year, which begins. Use the links below to check the status of your property tax exemption application. After you register, as long as. If you are attempting to renew your existing sche benefit, please return to. New York City Property Tax Exemption Application.
From www.templateroller.com
2021 New York City Condominium Property Tax Abatement Initial New York City Property Tax Exemption Application You must apply or renew by march 15 to receive the benefit in the following tax year, which begins. If you’re a new homeowner or are not receiving a star benefit on your current home, register as soon as your home becomes your primary residence. Apply by march 15 for your benefit to begin in july of the same year.. New York City Property Tax Exemption Application.
From www.signnow.com
Request to Remove Property Tax Exemption Form Fill Out and Sign New York City Property Tax Exemption Application Apply by march 15 for your benefit to begin in july of the same year. You can submit an application to remove a previously granted. If you own property outside of new york city and wish to apply for an exemption on that property, you should contact your local county assessor to determine what documentation you need to. You must. New York City Property Tax Exemption Application.
From www.templateroller.com
New York City Property Tax Payment Agreement Application Fill Out New York City Property Tax Exemption Application This includes applications for the senior citizen homeowners’. How to apply for your sche benefit. After you register, as long as. Use the links below to check the status of your property tax exemption application. If you are attempting to renew your existing sche benefit, please return to the. Sche lowers the property taxes of eligible seniors. If you own. New York City Property Tax Exemption Application.
From www.formsbank.com
Fillable Application For Property Tax Exemption printable pdf download New York City Property Tax Exemption Application You must apply or renew by march 15 to receive the benefit in the following tax year, which begins. If you’re a new homeowner or are not receiving a star benefit on your current home, register as soon as your home becomes your primary residence. Apply by march 15 for your benefit to begin in july of the same year.. New York City Property Tax Exemption Application.
From www.uslegalforms.com
Yonkers New York City Veterans Property Tax Exemption Form US Legal Forms New York City Property Tax Exemption Application How to apply for your sche benefit. Apply by march 15 for your benefit to begin in july of the same year. You can submit an application to remove a previously granted. This includes applications for the senior citizen homeowners’. How can i remove property tax exemptions from my property in new york city? If you are attempting to renew. New York City Property Tax Exemption Application.
From www.templateroller.com
New York City Property Tax Payment Agreement Request Download Fillable New York City Property Tax Exemption Application If you’re a new homeowner or are not receiving a star benefit on your current home, register as soon as your home becomes your primary residence. You must apply or renew by march 15 to receive the benefit in the following tax year, which begins. If you are attempting to renew your existing sche benefit, please return to the. Use. New York City Property Tax Exemption Application.
From www.templateroller.com
New York City Senior Citizen Homeowners' Exemption Renewal Application New York City Property Tax Exemption Application After you register, as long as. This includes applications for the senior citizen homeowners’. Apply by march 15 for your benefit to begin in july of the same year. How to apply for your sche benefit. How can i remove property tax exemptions from my property in new york city? Use the links below to check the status of your. New York City Property Tax Exemption Application.
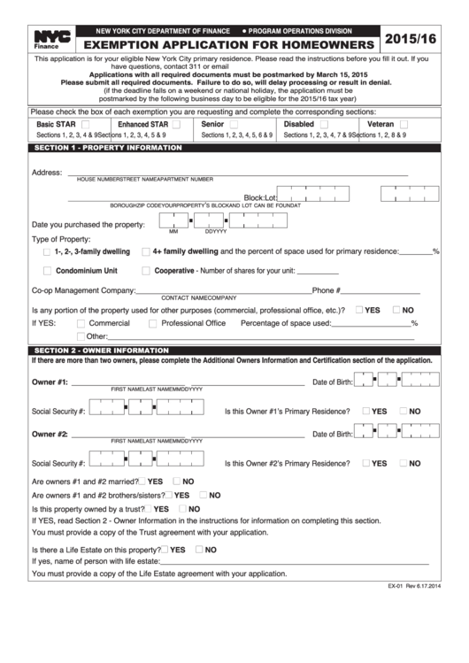
From www.formsbank.com
2015/16 Exemption Application For Homeowners New York City Department New York City Property Tax Exemption Application How to apply for your sche benefit. You must apply or renew by march 15 to receive the benefit in the following tax year, which begins. You can submit an application to remove a previously granted. After you register, as long as. How can i remove property tax exemptions from my property in new york city? Apply by march 15. New York City Property Tax Exemption Application.
From www.formsbank.com
Top 21 Property Tax Exemption Form Templates free to download in PDF format New York City Property Tax Exemption Application How can i remove property tax exemptions from my property in new york city? If you own property outside of new york city and wish to apply for an exemption on that property, you should contact your local county assessor to determine what documentation you need to. You can submit an application to remove a previously granted. After you register,. New York City Property Tax Exemption Application.
From www.templateroller.com
New York City Cooperative Property Tax Abatement Initial Application New York City Property Tax Exemption Application How can i remove property tax exemptions from my property in new york city? Apply by march 15 for your benefit to begin in july of the same year. If you are attempting to renew your existing sche benefit, please return to the. How to apply for your sche benefit. You must apply or renew by march 15 to receive. New York City Property Tax Exemption Application.
From www.templateroller.com
Form EXC0728 Download Printable PDF or Fill Online Request to Remove New York City Property Tax Exemption Application Sche lowers the property taxes of eligible seniors. You can submit an application to remove a previously granted. If you own property outside of new york city and wish to apply for an exemption on that property, you should contact your local county assessor to determine what documentation you need to. How can i remove property tax exemptions from my. New York City Property Tax Exemption Application.
From www.pdffiller.com
Nyc Property Tax Exemption Renewal Fill Online, Printable, Fillable New York City Property Tax Exemption Application Sche lowers the property taxes of eligible seniors. How can i remove property tax exemptions from my property in new york city? If you are attempting to renew your existing sche benefit, please return to the. If you own property outside of new york city and wish to apply for an exemption on that property, you should contact your local. New York City Property Tax Exemption Application.
From www.uslegalforms.com
New York City Senior Citizen Property Tax Exemption Application Nys New York City Property Tax Exemption Application This includes applications for the senior citizen homeowners’. After you register, as long as. How to apply for your sche benefit. You must apply or renew by march 15 to receive the benefit in the following tax year, which begins. If you’re a new homeowner or are not receiving a star benefit on your current home, register as soon as. New York City Property Tax Exemption Application.
From exyekzizn.blob.core.windows.net
New York City Property Tax Phone Number at Melinda Felix blog New York City Property Tax Exemption Application Sche lowers the property taxes of eligible seniors. How to apply for your sche benefit. You must apply or renew by march 15 to receive the benefit in the following tax year, which begins. Use the links below to check the status of your property tax exemption application. If you are attempting to renew your existing sche benefit, please return. New York City Property Tax Exemption Application.
From www.templateroller.com
Form REF01 Download Printable PDF or Fill Online Property Tax Refund New York City Property Tax Exemption Application If you own property outside of new york city and wish to apply for an exemption on that property, you should contact your local county assessor to determine what documentation you need to. This includes applications for the senior citizen homeowners’. Sche lowers the property taxes of eligible seniors. If you’re a new homeowner or are not receiving a star. New York City Property Tax Exemption Application.
From abzlocal.mx
Total 40+ imagen senior citizen property tax exemption Abzlocal.mx New York City Property Tax Exemption Application If you are attempting to renew your existing sche benefit, please return to the. If you’re a new homeowner or are not receiving a star benefit on your current home, register as soon as your home becomes your primary residence. How to apply for your sche benefit. Apply by march 15 for your benefit to begin in july of the. New York City Property Tax Exemption Application.
From www.tax.ny.gov
Property tax bill examples New York City Property Tax Exemption Application If you are attempting to renew your existing sche benefit, please return to the. If you own property outside of new york city and wish to apply for an exemption on that property, you should contact your local county assessor to determine what documentation you need to. Use the links below to check the status of your property tax exemption. New York City Property Tax Exemption Application.
From www.pdffiller.com
Fillable Online Property tax exemptions Government of New York Fax New York City Property Tax Exemption Application If you own property outside of new york city and wish to apply for an exemption on that property, you should contact your local county assessor to determine what documentation you need to. You must apply or renew by march 15 to receive the benefit in the following tax year, which begins. This includes applications for the senior citizen homeowners’.. New York City Property Tax Exemption Application.
From www.templateroller.com
Download Instructions for Form RP467 Application for Partial Tax New York City Property Tax Exemption Application How can i remove property tax exemptions from my property in new york city? You can submit an application to remove a previously granted. Sche lowers the property taxes of eligible seniors. If you’re a new homeowner or are not receiving a star benefit on your current home, register as soon as your home becomes your primary residence. This includes. New York City Property Tax Exemption Application.
From www.charlescitypress.com
Senior homeowners urged to apply for new property tax exemption before New York City Property Tax Exemption Application If you own property outside of new york city and wish to apply for an exemption on that property, you should contact your local county assessor to determine what documentation you need to. If you are attempting to renew your existing sche benefit, please return to the. If you’re a new homeowner or are not receiving a star benefit on. New York City Property Tax Exemption Application.
From www.templateroller.com
New York City Disabled Homeowners' Exemption Initial Application Fill New York City Property Tax Exemption Application Use the links below to check the status of your property tax exemption application. Sche lowers the property taxes of eligible seniors. You can submit an application to remove a previously granted. How can i remove property tax exemptions from my property in new york city? If you own property outside of new york city and wish to apply for. New York City Property Tax Exemption Application.
From www.templateroller.com
2021 New York City Condominium Property Tax Abatement Initial New York City Property Tax Exemption Application If you are attempting to renew your existing sche benefit, please return to the. Apply by march 15 for your benefit to begin in july of the same year. After you register, as long as. Sche lowers the property taxes of eligible seniors. You can submit an application to remove a previously granted. How to apply for your sche benefit.. New York City Property Tax Exemption Application.
From www.tax.ny.gov
Exemptions from Real Property Taxation in New York State 2022 County New York City Property Tax Exemption Application If you’re a new homeowner or are not receiving a star benefit on your current home, register as soon as your home becomes your primary residence. If you are attempting to renew your existing sche benefit, please return to the. How to apply for your sche benefit. After you register, as long as. This includes applications for the senior citizen. New York City Property Tax Exemption Application.