Idaho Property Disclosure Law . This standard form allows sellers to be as transparent as possible with. Idaho requires sellers to disclose basic information, like how long you've owned the property, plus detailed specifics about the property. Title 55 property in general. Download entire chapter (pdf) how current is this law? Property and ownership — general provisions. Chapter 25 property condition disclosure act.
from www.signnow.com
Idaho requires sellers to disclose basic information, like how long you've owned the property, plus detailed specifics about the property. Property and ownership — general provisions. Chapter 25 property condition disclosure act. Title 55 property in general. This standard form allows sellers to be as transparent as possible with. Download entire chapter (pdf) how current is this law?
Idaho Real Estate Forms Complete with ease airSlate SignNow
Idaho Property Disclosure Law Download entire chapter (pdf) how current is this law? This standard form allows sellers to be as transparent as possible with. Download entire chapter (pdf) how current is this law? Title 55 property in general. Idaho requires sellers to disclose basic information, like how long you've owned the property, plus detailed specifics about the property. Chapter 25 property condition disclosure act. Property and ownership — general provisions.
From eforms.com
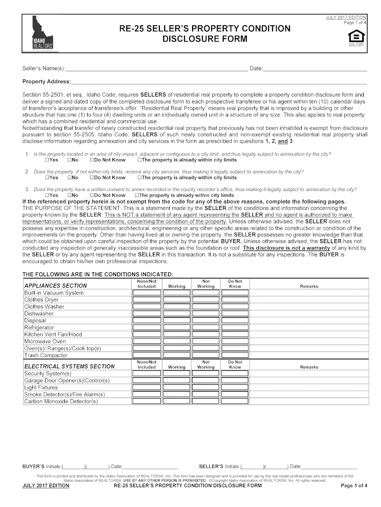
Free Property Disclosure Statement PDF Word eForms Idaho Property Disclosure Law Idaho requires sellers to disclose basic information, like how long you've owned the property, plus detailed specifics about the property. Title 55 property in general. Chapter 25 property condition disclosure act. Download entire chapter (pdf) how current is this law? Property and ownership — general provisions. This standard form allows sellers to be as transparent as possible with. Idaho Property Disclosure Law.
From www.uslegalforms.com
Mississippi Real Estate Disclosure Law Withholding US Legal Forms Idaho Property Disclosure Law Download entire chapter (pdf) how current is this law? Property and ownership — general provisions. Chapter 25 property condition disclosure act. Title 55 property in general. Idaho requires sellers to disclose basic information, like how long you've owned the property, plus detailed specifics about the property. This standard form allows sellers to be as transparent as possible with. Idaho Property Disclosure Law.
From esign.com
Free Property Disclosure Statement PDF Word Idaho Property Disclosure Law Chapter 25 property condition disclosure act. This standard form allows sellers to be as transparent as possible with. Property and ownership — general provisions. Idaho requires sellers to disclose basic information, like how long you've owned the property, plus detailed specifics about the property. Download entire chapter (pdf) how current is this law? Title 55 property in general. Idaho Property Disclosure Law.
From www.repairerdrivennews.com
Idaho looking to update decadesold nonOEM parts disclosure law Idaho Property Disclosure Law Property and ownership — general provisions. Chapter 25 property condition disclosure act. Idaho requires sellers to disclose basic information, like how long you've owned the property, plus detailed specifics about the property. Download entire chapter (pdf) how current is this law? This standard form allows sellers to be as transparent as possible with. Title 55 property in general. Idaho Property Disclosure Law.
From www.uslegalforms.com
Property Disclosure Statement Fill and Sign Printable Template Online Idaho Property Disclosure Law Property and ownership — general provisions. This standard form allows sellers to be as transparent as possible with. Download entire chapter (pdf) how current is this law? Chapter 25 property condition disclosure act. Title 55 property in general. Idaho requires sellers to disclose basic information, like how long you've owned the property, plus detailed specifics about the property. Idaho Property Disclosure Law.
From www.pdffiller.com
Fillable Online Idaho Residential Real Estate Sales Disclosure Idaho Property Disclosure Law Title 55 property in general. Chapter 25 property condition disclosure act. Property and ownership — general provisions. Idaho requires sellers to disclose basic information, like how long you've owned the property, plus detailed specifics about the property. This standard form allows sellers to be as transparent as possible with. Download entire chapter (pdf) how current is this law? Idaho Property Disclosure Law.
From www.uslegalforms.com
Idaho Residential Real Estate Sales Disclosure Statement Real Estate Idaho Property Disclosure Law Download entire chapter (pdf) how current is this law? Title 55 property in general. Chapter 25 property condition disclosure act. This standard form allows sellers to be as transparent as possible with. Idaho requires sellers to disclose basic information, like how long you've owned the property, plus detailed specifics about the property. Property and ownership — general provisions. Idaho Property Disclosure Law.
From www.eastidahorealestate.com
Idaho Agency Disclosure Idaho Property Disclosure Law Download entire chapter (pdf) how current is this law? Property and ownership — general provisions. Chapter 25 property condition disclosure act. This standard form allows sellers to be as transparent as possible with. Idaho requires sellers to disclose basic information, like how long you've owned the property, plus detailed specifics about the property. Title 55 property in general. Idaho Property Disclosure Law.
From gottlieblawaz.com
Understanding Real Estate Disclosure Laws in Arizona When Selling a Idaho Property Disclosure Law Chapter 25 property condition disclosure act. This standard form allows sellers to be as transparent as possible with. Download entire chapter (pdf) how current is this law? Idaho requires sellers to disclose basic information, like how long you've owned the property, plus detailed specifics about the property. Property and ownership — general provisions. Title 55 property in general. Idaho Property Disclosure Law.
From www.propstream.com
What Are Disclosure and NonDisclosure States? Idaho Property Disclosure Law Chapter 25 property condition disclosure act. Idaho requires sellers to disclose basic information, like how long you've owned the property, plus detailed specifics about the property. This standard form allows sellers to be as transparent as possible with. Download entire chapter (pdf) how current is this law? Property and ownership — general provisions. Title 55 property in general. Idaho Property Disclosure Law.
From www.dochub.com
Idaho agency disclosure brochure Fill out & sign online DocHub Idaho Property Disclosure Law Download entire chapter (pdf) how current is this law? Title 55 property in general. Chapter 25 property condition disclosure act. Idaho requires sellers to disclose basic information, like how long you've owned the property, plus detailed specifics about the property. Property and ownership — general provisions. This standard form allows sellers to be as transparent as possible with. Idaho Property Disclosure Law.
From www.signnow.com
Idaho Real Estate Forms Complete with ease airSlate SignNow Idaho Property Disclosure Law Title 55 property in general. Property and ownership — general provisions. Chapter 25 property condition disclosure act. Idaho requires sellers to disclose basic information, like how long you've owned the property, plus detailed specifics about the property. This standard form allows sellers to be as transparent as possible with. Download entire chapter (pdf) how current is this law? Idaho Property Disclosure Law.
From www.houzeo.com
Seller Disclosure Requirements in Idaho Idaho Property Disclosure Law Property and ownership — general provisions. Idaho requires sellers to disclose basic information, like how long you've owned the property, plus detailed specifics about the property. Title 55 property in general. This standard form allows sellers to be as transparent as possible with. Download entire chapter (pdf) how current is this law? Chapter 25 property condition disclosure act. Idaho Property Disclosure Law.
From www.pdffiller.com
Disclosures Law Fill Online, Printable, Fillable, Blank pdfFiller Idaho Property Disclosure Law Title 55 property in general. Property and ownership — general provisions. This standard form allows sellers to be as transparent as possible with. Idaho requires sellers to disclose basic information, like how long you've owned the property, plus detailed specifics about the property. Download entire chapter (pdf) how current is this law? Chapter 25 property condition disclosure act. Idaho Property Disclosure Law.
From freeforms.com
Free Idaho Real Estate Purchase Agreement Template PDF WORD Idaho Property Disclosure Law This standard form allows sellers to be as transparent as possible with. Download entire chapter (pdf) how current is this law? Idaho requires sellers to disclose basic information, like how long you've owned the property, plus detailed specifics about the property. Title 55 property in general. Chapter 25 property condition disclosure act. Property and ownership — general provisions. Idaho Property Disclosure Law.
From www.signnow.com
Idaho Disclosure Complete with ease airSlate SignNow Idaho Property Disclosure Law Property and ownership — general provisions. Chapter 25 property condition disclosure act. This standard form allows sellers to be as transparent as possible with. Title 55 property in general. Idaho requires sellers to disclose basic information, like how long you've owned the property, plus detailed specifics about the property. Download entire chapter (pdf) how current is this law? Idaho Property Disclosure Law.
From www.orhp.com
Disclosure Law 4 Things Your Sellers Need to Know Idaho Property Disclosure Law Idaho requires sellers to disclose basic information, like how long you've owned the property, plus detailed specifics about the property. Chapter 25 property condition disclosure act. This standard form allows sellers to be as transparent as possible with. Property and ownership — general provisions. Title 55 property in general. Download entire chapter (pdf) how current is this law? Idaho Property Disclosure Law.
From www.houzeo.com
Seller Disclosure Requirements in Idaho Houzeo Blog Idaho Property Disclosure Law Download entire chapter (pdf) how current is this law? Chapter 25 property condition disclosure act. Idaho requires sellers to disclose basic information, like how long you've owned the property, plus detailed specifics about the property. Property and ownership — general provisions. This standard form allows sellers to be as transparent as possible with. Title 55 property in general. Idaho Property Disclosure Law.
From www.uslegalforms.com
Idaho Property Disclosure Form 20202021 Fill and Sign Printable Idaho Property Disclosure Law Property and ownership — general provisions. Chapter 25 property condition disclosure act. This standard form allows sellers to be as transparent as possible with. Download entire chapter (pdf) how current is this law? Idaho requires sellers to disclose basic information, like how long you've owned the property, plus detailed specifics about the property. Title 55 property in general. Idaho Property Disclosure Law.
From prosperopedia.com
What Are Real Estate Disclosure Laws? Idaho Property Disclosure Law Title 55 property in general. Download entire chapter (pdf) how current is this law? Chapter 25 property condition disclosure act. This standard form allows sellers to be as transparent as possible with. Idaho requires sellers to disclose basic information, like how long you've owned the property, plus detailed specifics about the property. Property and ownership — general provisions. Idaho Property Disclosure Law.
From eforms.com
Free Idaho Residential Purchase Agreement Template PDF Word eForms Idaho Property Disclosure Law This standard form allows sellers to be as transparent as possible with. Title 55 property in general. Idaho requires sellers to disclose basic information, like how long you've owned the property, plus detailed specifics about the property. Chapter 25 property condition disclosure act. Download entire chapter (pdf) how current is this law? Property and ownership — general provisions. Idaho Property Disclosure Law.
From www.levelset.com
Idaho Residential Disclosure Notice Form Free Template Idaho Property Disclosure Law Chapter 25 property condition disclosure act. Download entire chapter (pdf) how current is this law? Title 55 property in general. Idaho requires sellers to disclose basic information, like how long you've owned the property, plus detailed specifics about the property. Property and ownership — general provisions. This standard form allows sellers to be as transparent as possible with. Idaho Property Disclosure Law.
From www.uslegalforms.com
Idaho Residential Real Estate Sales Disclosure Statement Disclosure Idaho Property Disclosure Law Download entire chapter (pdf) how current is this law? Title 55 property in general. This standard form allows sellers to be as transparent as possible with. Chapter 25 property condition disclosure act. Idaho requires sellers to disclose basic information, like how long you've owned the property, plus detailed specifics about the property. Property and ownership — general provisions. Idaho Property Disclosure Law.
From www.templateroller.com
Form IDAN2020 Fill Out, Sign Online and Download Fillable PDF Idaho Property Disclosure Law This standard form allows sellers to be as transparent as possible with. Chapter 25 property condition disclosure act. Download entire chapter (pdf) how current is this law? Title 55 property in general. Idaho requires sellers to disclose basic information, like how long you've owned the property, plus detailed specifics about the property. Property and ownership — general provisions. Idaho Property Disclosure Law.
From www.idahorealhomes.com
Property Disclosures Idaho Real Homes LLC Idaho Property Disclosure Law Property and ownership — general provisions. Idaho requires sellers to disclose basic information, like how long you've owned the property, plus detailed specifics about the property. Title 55 property in general. Download entire chapter (pdf) how current is this law? Chapter 25 property condition disclosure act. This standard form allows sellers to be as transparent as possible with. Idaho Property Disclosure Law.
From esign.com
Free Idaho Property Disclosure Statement PDF Idaho Property Disclosure Law Idaho requires sellers to disclose basic information, like how long you've owned the property, plus detailed specifics about the property. Property and ownership — general provisions. Title 55 property in general. This standard form allows sellers to be as transparent as possible with. Download entire chapter (pdf) how current is this law? Chapter 25 property condition disclosure act. Idaho Property Disclosure Law.
From www.templateroller.com
Idaho Property Disclosure Statement Form Fill Out, Sign Online and Idaho Property Disclosure Law Download entire chapter (pdf) how current is this law? Title 55 property in general. Chapter 25 property condition disclosure act. Property and ownership — general provisions. Idaho requires sellers to disclose basic information, like how long you've owned the property, plus detailed specifics about the property. This standard form allows sellers to be as transparent as possible with. Idaho Property Disclosure Law.
From www.uslegalforms.com
Seller's Disclosure Statement for Vacant Land Land Disclosure US Idaho Property Disclosure Law Title 55 property in general. Chapter 25 property condition disclosure act. Idaho requires sellers to disclose basic information, like how long you've owned the property, plus detailed specifics about the property. Property and ownership — general provisions. This standard form allows sellers to be as transparent as possible with. Download entire chapter (pdf) how current is this law? Idaho Property Disclosure Law.
From www.buildidaho.com
What You Need to Know About Real Estate Disclosures in Idaho Idaho Property Disclosure Law Idaho requires sellers to disclose basic information, like how long you've owned the property, plus detailed specifics about the property. This standard form allows sellers to be as transparent as possible with. Property and ownership — general provisions. Title 55 property in general. Chapter 25 property condition disclosure act. Download entire chapter (pdf) how current is this law? Idaho Property Disclosure Law.
From idahocapitalsun.com
As tax gap widens, Idaho 1 of 10 states with no obligation to disclose Idaho Property Disclosure Law Property and ownership — general provisions. This standard form allows sellers to be as transparent as possible with. Title 55 property in general. Download entire chapter (pdf) how current is this law? Idaho requires sellers to disclose basic information, like how long you've owned the property, plus detailed specifics about the property. Chapter 25 property condition disclosure act. Idaho Property Disclosure Law.
From buildingbetteragents.com
Protect Your Client And Yourself Understand Real Estate Disclosure Idaho Property Disclosure Law This standard form allows sellers to be as transparent as possible with. Title 55 property in general. Chapter 25 property condition disclosure act. Idaho requires sellers to disclose basic information, like how long you've owned the property, plus detailed specifics about the property. Download entire chapter (pdf) how current is this law? Property and ownership — general provisions. Idaho Property Disclosure Law.
From www.uslegalforms.com
Real Estate Disclosure Form 20202022 Fill and Sign Printable Idaho Property Disclosure Law This standard form allows sellers to be as transparent as possible with. Title 55 property in general. Property and ownership — general provisions. Download entire chapter (pdf) how current is this law? Idaho requires sellers to disclose basic information, like how long you've owned the property, plus detailed specifics about the property. Chapter 25 property condition disclosure act. Idaho Property Disclosure Law.
From www.youtube.com
Idaho Contractors Disclosure Requirements YouTube Idaho Property Disclosure Law This standard form allows sellers to be as transparent as possible with. Title 55 property in general. Idaho requires sellers to disclose basic information, like how long you've owned the property, plus detailed specifics about the property. Download entire chapter (pdf) how current is this law? Property and ownership — general provisions. Chapter 25 property condition disclosure act. Idaho Property Disclosure Law.
From www.formsbank.com
General Contractor Residential Property Disclosure printable pdf download Idaho Property Disclosure Law This standard form allows sellers to be as transparent as possible with. Chapter 25 property condition disclosure act. Download entire chapter (pdf) how current is this law? Property and ownership — general provisions. Title 55 property in general. Idaho requires sellers to disclose basic information, like how long you've owned the property, plus detailed specifics about the property. Idaho Property Disclosure Law.
From www.propertiesinjuneau.com
Residential Property Disclosures Latitude 58 Real Estate Group Idaho Property Disclosure Law Idaho requires sellers to disclose basic information, like how long you've owned the property, plus detailed specifics about the property. This standard form allows sellers to be as transparent as possible with. Title 55 property in general. Chapter 25 property condition disclosure act. Download entire chapter (pdf) how current is this law? Property and ownership — general provisions. Idaho Property Disclosure Law.