Reinforcement Inspection Checklist . The construction practices committee of the masonry society has prepared this checklist for use during the preconstruction, construction,. The reinforcement inspection checklist verifies that reinforcement steel is installed correctly according to approved drawings and specifications. Reasonable knowledge of the building code. Astm standard reinforcing bars 9 5. Written for apprentices, journeymen ironworkers, and inspectors, placing reinforcing bars provides the most accepted and current practices in placing reinforcing bars in structures and pavement. Identi˜cation marks — astm standard reinforcing bars 12 6. This manual is intended to guide, assist, and instruct concrete inspectors and others engaged in concrete construction and testing, including field engineers, construction superintendents,. Inspection of reinforcing bars 8 4. 3.6 general contract bonds and insurance. Project specifications and drawings, and be familiar with them. It checks that bar sizes, spacers,.
from www.files.construction
It checks that bar sizes, spacers,. The construction practices committee of the masonry society has prepared this checklist for use during the preconstruction, construction,. This manual is intended to guide, assist, and instruct concrete inspectors and others engaged in concrete construction and testing, including field engineers, construction superintendents,. Inspection of reinforcing bars 8 4. Written for apprentices, journeymen ironworkers, and inspectors, placing reinforcing bars provides the most accepted and current practices in placing reinforcing bars in structures and pavement. The reinforcement inspection checklist verifies that reinforcement steel is installed correctly according to approved drawings and specifications. 3.6 general contract bonds and insurance. Identi˜cation marks — astm standard reinforcing bars 12 6. Project specifications and drawings, and be familiar with them. Reasonable knowledge of the building code.
Reinforcement Inspection Request Form Construction Documents And
Reinforcement Inspection Checklist The reinforcement inspection checklist verifies that reinforcement steel is installed correctly according to approved drawings and specifications. Reasonable knowledge of the building code. Project specifications and drawings, and be familiar with them. The reinforcement inspection checklist verifies that reinforcement steel is installed correctly according to approved drawings and specifications. This manual is intended to guide, assist, and instruct concrete inspectors and others engaged in concrete construction and testing, including field engineers, construction superintendents,. Astm standard reinforcing bars 9 5. Identi˜cation marks — astm standard reinforcing bars 12 6. 3.6 general contract bonds and insurance. Inspection of reinforcing bars 8 4. The construction practices committee of the masonry society has prepared this checklist for use during the preconstruction, construction,. It checks that bar sizes, spacers,. Written for apprentices, journeymen ironworkers, and inspectors, placing reinforcing bars provides the most accepted and current practices in placing reinforcing bars in structures and pavement.
From www.etsy.com
Rebar Inspection Checklist, Reinforcement Checklist, Quality Control Reinforcement Inspection Checklist The reinforcement inspection checklist verifies that reinforcement steel is installed correctly according to approved drawings and specifications. 3.6 general contract bonds and insurance. It checks that bar sizes, spacers,. This manual is intended to guide, assist, and instruct concrete inspectors and others engaged in concrete construction and testing, including field engineers, construction superintendents,. Astm standard reinforcing bars 9 5. Written. Reinforcement Inspection Checklist.
From www.scribd.com
Reinforcement Inspection Record Girder Production Economic Sectors Reinforcement Inspection Checklist The construction practices committee of the masonry society has prepared this checklist for use during the preconstruction, construction,. This manual is intended to guide, assist, and instruct concrete inspectors and others engaged in concrete construction and testing, including field engineers, construction superintendents,. It checks that bar sizes, spacers,. Reasonable knowledge of the building code. Astm standard reinforcing bars 9 5.. Reinforcement Inspection Checklist.
From www.scribd.com
Checklist For Reinforcement PDF Reinforcement Inspection Checklist Reasonable knowledge of the building code. Project specifications and drawings, and be familiar with them. Written for apprentices, journeymen ironworkers, and inspectors, placing reinforcing bars provides the most accepted and current practices in placing reinforcing bars in structures and pavement. The reinforcement inspection checklist verifies that reinforcement steel is installed correctly according to approved drawings and specifications. This manual is. Reinforcement Inspection Checklist.
From www.ccrl.us
PreInspection Checklists Reinforcement Inspection Checklist Inspection of reinforcing bars 8 4. Reasonable knowledge of the building code. The reinforcement inspection checklist verifies that reinforcement steel is installed correctly according to approved drawings and specifications. This manual is intended to guide, assist, and instruct concrete inspectors and others engaged in concrete construction and testing, including field engineers, construction superintendents,. It checks that bar sizes, spacers,. The. Reinforcement Inspection Checklist.
From www.scribd.com
Reinforcement Inspection Checklist Location Dated Contractors Reinforcement Inspection Checklist Identi˜cation marks — astm standard reinforcing bars 12 6. The reinforcement inspection checklist verifies that reinforcement steel is installed correctly according to approved drawings and specifications. Inspection of reinforcing bars 8 4. This manual is intended to guide, assist, and instruct concrete inspectors and others engaged in concrete construction and testing, including field engineers, construction superintendents,. It checks that bar. Reinforcement Inspection Checklist.
From www.scribd.com
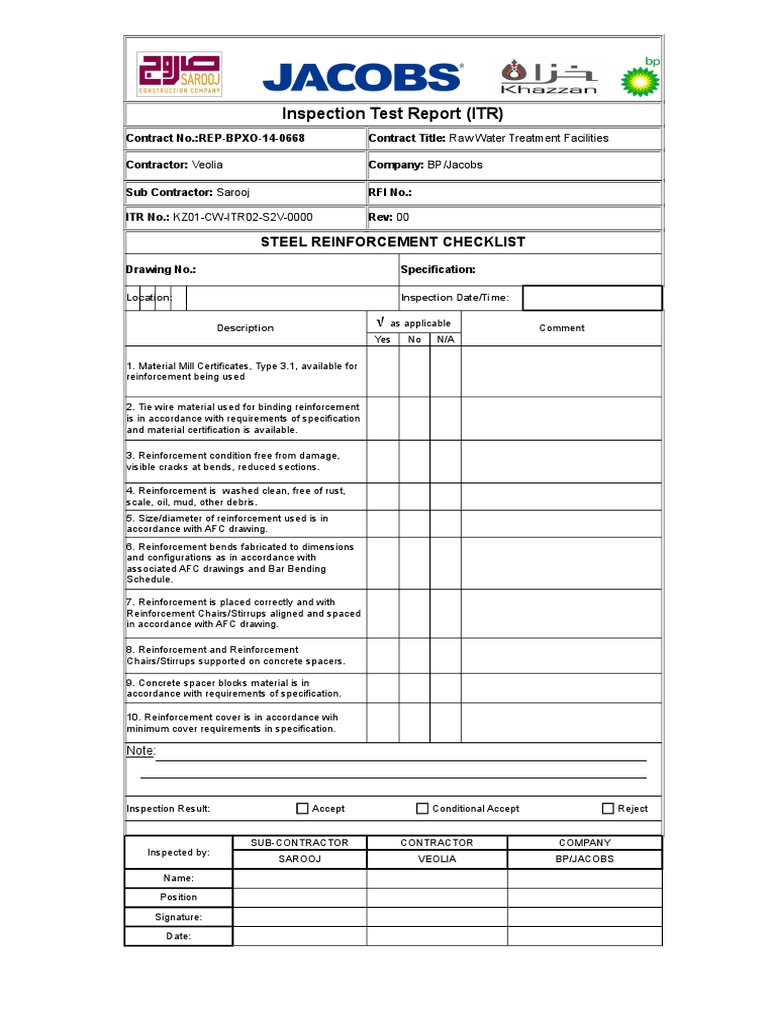
Inspection Test Report (ITR) Steel Reinforcement Checklist PDF Reinforcement Inspection Checklist Project specifications and drawings, and be familiar with them. Astm standard reinforcing bars 9 5. The construction practices committee of the masonry society has prepared this checklist for use during the preconstruction, construction,. 3.6 general contract bonds and insurance. The reinforcement inspection checklist verifies that reinforcement steel is installed correctly according to approved drawings and specifications. Identi˜cation marks — astm. Reinforcement Inspection Checklist.
From www.files.construction
Reinforcement Inspection Request Form Construction Documents And Reinforcement Inspection Checklist The construction practices committee of the masonry society has prepared this checklist for use during the preconstruction, construction,. Identi˜cation marks — astm standard reinforcing bars 12 6. Inspection of reinforcing bars 8 4. Astm standard reinforcing bars 9 5. This manual is intended to guide, assist, and instruct concrete inspectors and others engaged in concrete construction and testing, including field. Reinforcement Inspection Checklist.
From www.etsy.com
Rebar Inspection Checklist, Reinforcement Checklist, Quality Control Reinforcement Inspection Checklist Astm standard reinforcing bars 9 5. 3.6 general contract bonds and insurance. It checks that bar sizes, spacers,. Reasonable knowledge of the building code. Identi˜cation marks — astm standard reinforcing bars 12 6. Written for apprentices, journeymen ironworkers, and inspectors, placing reinforcing bars provides the most accepted and current practices in placing reinforcing bars in structures and pavement. The reinforcement. Reinforcement Inspection Checklist.
From jtechdigi.com
Checklist for Reinforcement JtechDigi Reinforcement Inspection Checklist Astm standard reinforcing bars 9 5. The reinforcement inspection checklist verifies that reinforcement steel is installed correctly according to approved drawings and specifications. Identi˜cation marks — astm standard reinforcing bars 12 6. 3.6 general contract bonds and insurance. Written for apprentices, journeymen ironworkers, and inspectors, placing reinforcing bars provides the most accepted and current practices in placing reinforcing bars in. Reinforcement Inspection Checklist.
From www.scribd.com
Reinforcement Inspection Checklist 012 SILQAQC005 PDF Reinforcement Inspection Checklist It checks that bar sizes, spacers,. The reinforcement inspection checklist verifies that reinforcement steel is installed correctly according to approved drawings and specifications. Written for apprentices, journeymen ironworkers, and inspectors, placing reinforcing bars provides the most accepted and current practices in placing reinforcing bars in structures and pavement. Astm standard reinforcing bars 9 5. Project specifications and drawings, and be. Reinforcement Inspection Checklist.
From www.onlinecivilforum.com
Checklist for Reinforcement Excel Sheet Reinforcement Inspection Checklist The reinforcement inspection checklist verifies that reinforcement steel is installed correctly according to approved drawings and specifications. Astm standard reinforcing bars 9 5. The construction practices committee of the masonry society has prepared this checklist for use during the preconstruction, construction,. Identi˜cation marks — astm standard reinforcing bars 12 6. Inspection of reinforcing bars 8 4. It checks that bar. Reinforcement Inspection Checklist.
From www.etsy.com
Rebar Inspection Checklist, Reinforcement Checklist, Quality Control Reinforcement Inspection Checklist Inspection of reinforcing bars 8 4. The construction practices committee of the masonry society has prepared this checklist for use during the preconstruction, construction,. Reasonable knowledge of the building code. This manual is intended to guide, assist, and instruct concrete inspectors and others engaged in concrete construction and testing, including field engineers, construction superintendents,. It checks that bar sizes, spacers,.. Reinforcement Inspection Checklist.
From www.vrogue.co
Reinforced Concrete Inspection Checklist vrogue.co Reinforcement Inspection Checklist Inspection of reinforcing bars 8 4. Written for apprentices, journeymen ironworkers, and inspectors, placing reinforcing bars provides the most accepted and current practices in placing reinforcing bars in structures and pavement. This manual is intended to guide, assist, and instruct concrete inspectors and others engaged in concrete construction and testing, including field engineers, construction superintendents,. Project specifications and drawings, and. Reinforcement Inspection Checklist.
From www.youtube.com
Reinforcement Check List Steel Bar Check List Inspection CheckList Reinforcement Inspection Checklist Written for apprentices, journeymen ironworkers, and inspectors, placing reinforcing bars provides the most accepted and current practices in placing reinforcing bars in structures and pavement. Identi˜cation marks — astm standard reinforcing bars 12 6. Astm standard reinforcing bars 9 5. It checks that bar sizes, spacers,. The construction practices committee of the masonry society has prepared this checklist for use. Reinforcement Inspection Checklist.
From www.scribd.com
Reinforced Concrete Inspection Checklist 2015 Concrete Civil Reinforcement Inspection Checklist 3.6 general contract bonds and insurance. It checks that bar sizes, spacers,. The reinforcement inspection checklist verifies that reinforcement steel is installed correctly according to approved drawings and specifications. The construction practices committee of the masonry society has prepared this checklist for use during the preconstruction, construction,. Inspection of reinforcing bars 8 4. This manual is intended to guide, assist,. Reinforcement Inspection Checklist.
From www.studocu.com
FIC Reinforcement FIC formwork Field Inspection Checklist CHECK Reinforcement Inspection Checklist Reasonable knowledge of the building code. Written for apprentices, journeymen ironworkers, and inspectors, placing reinforcing bars provides the most accepted and current practices in placing reinforcing bars in structures and pavement. Identi˜cation marks — astm standard reinforcing bars 12 6. Inspection of reinforcing bars 8 4. The construction practices committee of the masonry society has prepared this checklist for use. Reinforcement Inspection Checklist.
From thecivilengineerings.com
Checklist for Slab Reinforcement While Casting Reinforcement Inspection Checklist It checks that bar sizes, spacers,. Written for apprentices, journeymen ironworkers, and inspectors, placing reinforcing bars provides the most accepted and current practices in placing reinforcing bars in structures and pavement. The reinforcement inspection checklist verifies that reinforcement steel is installed correctly according to approved drawings and specifications. Inspection of reinforcing bars 8 4. This manual is intended to guide,. Reinforcement Inspection Checklist.
From www.manula.com
1.7.14 Concrete Reinforcement Inspection Checklist Collin's Template 1 Reinforcement Inspection Checklist 3.6 general contract bonds and insurance. The construction practices committee of the masonry society has prepared this checklist for use during the preconstruction, construction,. It checks that bar sizes, spacers,. Project specifications and drawings, and be familiar with them. The reinforcement inspection checklist verifies that reinforcement steel is installed correctly according to approved drawings and specifications. This manual is intended. Reinforcement Inspection Checklist.
From www.yumpu.com
BUILDING INSPECTION REPORT FORM Reinforcement Inspection Checklist It checks that bar sizes, spacers,. Reasonable knowledge of the building code. Project specifications and drawings, and be familiar with them. Inspection of reinforcing bars 8 4. Astm standard reinforcing bars 9 5. This manual is intended to guide, assist, and instruct concrete inspectors and others engaged in concrete construction and testing, including field engineers, construction superintendents,. Identi˜cation marks —. Reinforcement Inspection Checklist.
From www.scribd.com
Checklist For Rebar PDF Composite Material Building Reinforcement Inspection Checklist Written for apprentices, journeymen ironworkers, and inspectors, placing reinforcing bars provides the most accepted and current practices in placing reinforcing bars in structures and pavement. It checks that bar sizes, spacers,. 3.6 general contract bonds and insurance. The construction practices committee of the masonry society has prepared this checklist for use during the preconstruction, construction,. Project specifications and drawings, and. Reinforcement Inspection Checklist.
From www.vrogue.co
1 7 14 Concrete Reinforcement Inspection Checklist Co vrogue.co Reinforcement Inspection Checklist Inspection of reinforcing bars 8 4. 3.6 general contract bonds and insurance. Astm standard reinforcing bars 9 5. Reasonable knowledge of the building code. It checks that bar sizes, spacers,. Project specifications and drawings, and be familiar with them. Written for apprentices, journeymen ironworkers, and inspectors, placing reinforcing bars provides the most accepted and current practices in placing reinforcing bars. Reinforcement Inspection Checklist.
From www.scribd.com
Reinforcing Steel/Form Inspection Report Client Date Shop Stamped Reinforcement Inspection Checklist Astm standard reinforcing bars 9 5. Reasonable knowledge of the building code. It checks that bar sizes, spacers,. The reinforcement inspection checklist verifies that reinforcement steel is installed correctly according to approved drawings and specifications. Identi˜cation marks — astm standard reinforcing bars 12 6. Inspection of reinforcing bars 8 4. This manual is intended to guide, assist, and instruct concrete. Reinforcement Inspection Checklist.
From www.onlinecivilforum.com
Checklist for Reinforcement Excel Sheet Reinforcement Inspection Checklist Inspection of reinforcing bars 8 4. Written for apprentices, journeymen ironworkers, and inspectors, placing reinforcing bars provides the most accepted and current practices in placing reinforcing bars in structures and pavement. Project specifications and drawings, and be familiar with them. Reasonable knowledge of the building code. It checks that bar sizes, spacers,. Astm standard reinforcing bars 9 5. The construction. Reinforcement Inspection Checklist.
From www.manula.com
1.7.15 Concrete Placement Inspection Checklist Collin's Template 1 Reinforcement Inspection Checklist Inspection of reinforcing bars 8 4. The reinforcement inspection checklist verifies that reinforcement steel is installed correctly according to approved drawings and specifications. 3.6 general contract bonds and insurance. Written for apprentices, journeymen ironworkers, and inspectors, placing reinforcing bars provides the most accepted and current practices in placing reinforcing bars in structures and pavement. Identi˜cation marks — astm standard reinforcing. Reinforcement Inspection Checklist.
From www.etsy.com
Rebar Inspection Checklist, Reinforcement Checklist, Quality Control Reinforcement Inspection Checklist Inspection of reinforcing bars 8 4. The construction practices committee of the masonry society has prepared this checklist for use during the preconstruction, construction,. 3.6 general contract bonds and insurance. It checks that bar sizes, spacers,. Reasonable knowledge of the building code. Identi˜cation marks — astm standard reinforcing bars 12 6. Project specifications and drawings, and be familiar with them.. Reinforcement Inspection Checklist.
From www.etsy.com
Rebar Inspection Checklist, Reinforcement Checklist, Quality Control Reinforcement Inspection Checklist Identi˜cation marks — astm standard reinforcing bars 12 6. 3.6 general contract bonds and insurance. It checks that bar sizes, spacers,. Project specifications and drawings, and be familiar with them. Reasonable knowledge of the building code. Inspection of reinforcing bars 8 4. This manual is intended to guide, assist, and instruct concrete inspectors and others engaged in concrete construction and. Reinforcement Inspection Checklist.
From www.vrogue.co
1 7 14 Concrete Reinforcement Inspection Checklist Co vrogue.co Reinforcement Inspection Checklist 3.6 general contract bonds and insurance. It checks that bar sizes, spacers,. Written for apprentices, journeymen ironworkers, and inspectors, placing reinforcing bars provides the most accepted and current practices in placing reinforcing bars in structures and pavement. Project specifications and drawings, and be familiar with them. This manual is intended to guide, assist, and instruct concrete inspectors and others engaged. Reinforcement Inspection Checklist.
From www.scribd.com
Ldic RebarInspectionChecklist PDF Concrete Building Engineering Reinforcement Inspection Checklist Identi˜cation marks — astm standard reinforcing bars 12 6. Astm standard reinforcing bars 9 5. This manual is intended to guide, assist, and instruct concrete inspectors and others engaged in concrete construction and testing, including field engineers, construction superintendents,. 3.6 general contract bonds and insurance. It checks that bar sizes, spacers,. Reasonable knowledge of the building code. The construction practices. Reinforcement Inspection Checklist.
From www.etsy.com
Rebar Inspection Checklist, Reinforcement Checklist, Quality Control Reinforcement Inspection Checklist Identi˜cation marks — astm standard reinforcing bars 12 6. Astm standard reinforcing bars 9 5. It checks that bar sizes, spacers,. Inspection of reinforcing bars 8 4. Reasonable knowledge of the building code. This manual is intended to guide, assist, and instruct concrete inspectors and others engaged in concrete construction and testing, including field engineers, construction superintendents,. 3.6 general contract. Reinforcement Inspection Checklist.
From www.scribd.com
Inspection Checklist LC Formwork Rebar Pouring Concrete PDF Reinforcement Inspection Checklist Inspection of reinforcing bars 8 4. This manual is intended to guide, assist, and instruct concrete inspectors and others engaged in concrete construction and testing, including field engineers, construction superintendents,. Written for apprentices, journeymen ironworkers, and inspectors, placing reinforcing bars provides the most accepted and current practices in placing reinforcing bars in structures and pavement. The reinforcement inspection checklist verifies. Reinforcement Inspection Checklist.
From www.vrogue.co
1 7 14 Concrete Reinforcement Inspection Checklist Co vrogue.co Reinforcement Inspection Checklist The reinforcement inspection checklist verifies that reinforcement steel is installed correctly according to approved drawings and specifications. Inspection of reinforcing bars 8 4. It checks that bar sizes, spacers,. Project specifications and drawings, and be familiar with them. The construction practices committee of the masonry society has prepared this checklist for use during the preconstruction, construction,. Reasonable knowledge of the. Reinforcement Inspection Checklist.
From www.scribd.com
Dasarathi Naik and Engineers PVT Ltd. Check List For Reinforcement PDF Reinforcement Inspection Checklist It checks that bar sizes, spacers,. 3.6 general contract bonds and insurance. Written for apprentices, journeymen ironworkers, and inspectors, placing reinforcing bars provides the most accepted and current practices in placing reinforcing bars in structures and pavement. This manual is intended to guide, assist, and instruct concrete inspectors and others engaged in concrete construction and testing, including field engineers, construction. Reinforcement Inspection Checklist.
From safetyculture.com
Free Final Inspection Checklist PDF SafetyCulture Reinforcement Inspection Checklist The construction practices committee of the masonry society has prepared this checklist for use during the preconstruction, construction,. Astm standard reinforcing bars 9 5. Written for apprentices, journeymen ironworkers, and inspectors, placing reinforcing bars provides the most accepted and current practices in placing reinforcing bars in structures and pavement. Identi˜cation marks — astm standard reinforcing bars 12 6. Reasonable knowledge. Reinforcement Inspection Checklist.
From www.youtube.com
Ultimate Guide of Pier Cap Reinforcement Inspection Checklist Bridge Reinforcement Inspection Checklist Project specifications and drawings, and be familiar with them. Identi˜cation marks — astm standard reinforcing bars 12 6. Inspection of reinforcing bars 8 4. Written for apprentices, journeymen ironworkers, and inspectors, placing reinforcing bars provides the most accepted and current practices in placing reinforcing bars in structures and pavement. Astm standard reinforcing bars 9 5. Reasonable knowledge of the building. Reinforcement Inspection Checklist.
From www.etsy.com
Rebar Inspection Checklist, Reinforcement Checklist, Quality Control Reinforcement Inspection Checklist The reinforcement inspection checklist verifies that reinforcement steel is installed correctly according to approved drawings and specifications. This manual is intended to guide, assist, and instruct concrete inspectors and others engaged in concrete construction and testing, including field engineers, construction superintendents,. Inspection of reinforcing bars 8 4. Astm standard reinforcing bars 9 5. Written for apprentices, journeymen ironworkers, and inspectors,. Reinforcement Inspection Checklist.