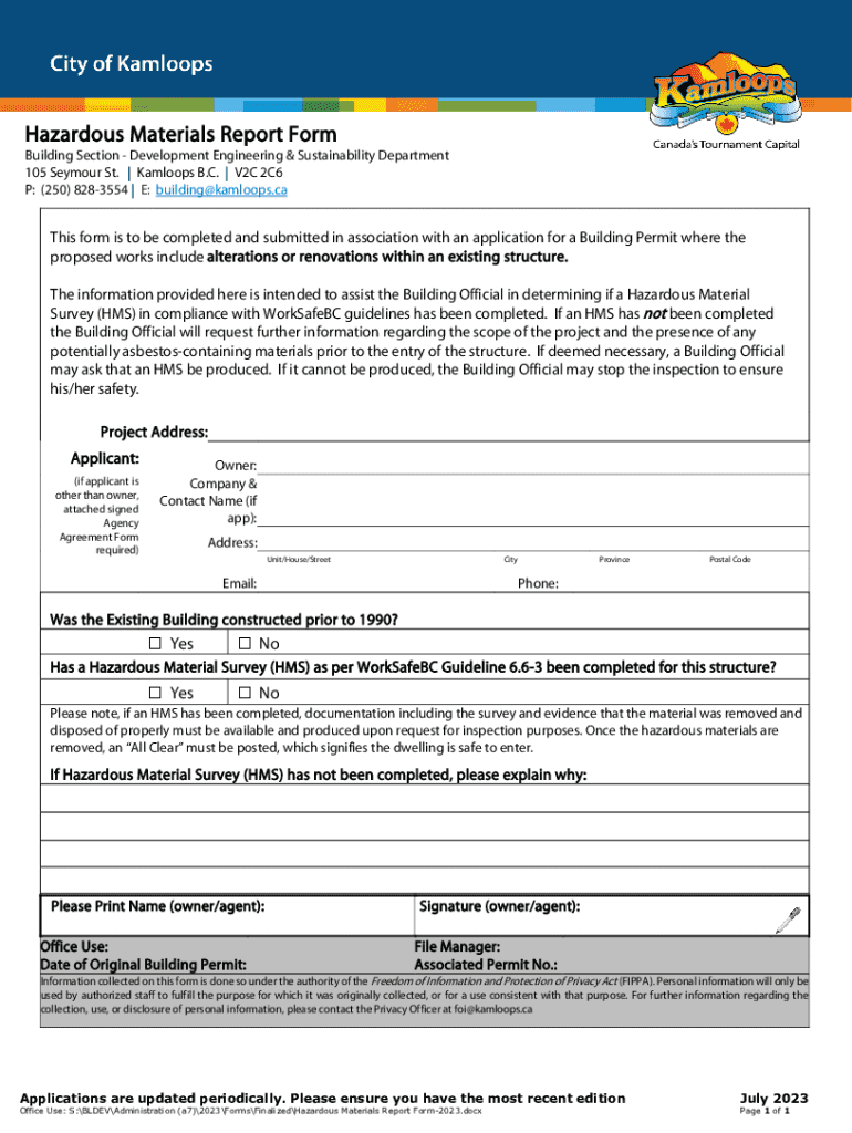
Hazardous Materials Report Form . suppliers must convey hazard information to purchasers in a specified manner by means of labelling on the controlled products or. This report form must be completed by the qualified professional (qp) as defined by. hazardous materials summary form. This form is to be completed and submitted in association with an. this form is to be completed and submitted in conjunction with an application for a uilding permit where the proposed works include. Employers in industries under federal jurisdiction use this form to report to labour about a workplace hazardous. This form is required for any alteration to a building built prior to 1990. hazardous building materials report form. this form is to be completed and submitted in association with an application for a building permit where the proposed works include.
from wajimypi19.dragon.ru.net
this form is to be completed and submitted in association with an application for a building permit where the proposed works include. This form is to be completed and submitted in association with an. This form is required for any alteration to a building built prior to 1990. This report form must be completed by the qualified professional (qp) as defined by. Employers in industries under federal jurisdiction use this form to report to labour about a workplace hazardous. this form is to be completed and submitted in conjunction with an application for a uilding permit where the proposed works include. hazardous materials summary form. hazardous building materials report form. suppliers must convey hazard information to purchasers in a specified manner by means of labelling on the controlled products or.
Hazard report form sample
Hazardous Materials Report Form this form is to be completed and submitted in association with an application for a building permit where the proposed works include. This form is to be completed and submitted in association with an. This report form must be completed by the qualified professional (qp) as defined by. Employers in industries under federal jurisdiction use this form to report to labour about a workplace hazardous. This form is required for any alteration to a building built prior to 1990. this form is to be completed and submitted in association with an application for a building permit where the proposed works include. suppliers must convey hazard information to purchasers in a specified manner by means of labelling on the controlled products or. hazardous materials summary form. this form is to be completed and submitted in conjunction with an application for a uilding permit where the proposed works include. hazardous building materials report form.
From www.pinterest.ca
Incident Hazard Report Form Template (4) PROFESSIONAL TEMPLATES Hazardous Materials Report Form hazardous materials summary form. this form is to be completed and submitted in association with an application for a building permit where the proposed works include. Employers in industries under federal jurisdiction use this form to report to labour about a workplace hazardous. this form is to be completed and submitted in conjunction with an application for. Hazardous Materials Report Form.
From wajimypi19.dragon.ru.net
Hazard report form sample Hazardous Materials Report Form suppliers must convey hazard information to purchasers in a specified manner by means of labelling on the controlled products or. This form is required for any alteration to a building built prior to 1990. this form is to be completed and submitted in association with an application for a building permit where the proposed works include. hazardous. Hazardous Materials Report Form.
From mungfali.com
Hazardous Material Inventory Sheet Fillable Hazardous Materials Report Form This form is required for any alteration to a building built prior to 1990. hazardous building materials report form. Employers in industries under federal jurisdiction use this form to report to labour about a workplace hazardous. This form is to be completed and submitted in association with an. This report form must be completed by the qualified professional (qp). Hazardous Materials Report Form.
From www.pdffiller.com
Fillable Online HAZARDOUS MATERIALS REPORT FORM The Hartford Fax Hazardous Materials Report Form This form is to be completed and submitted in association with an. Employers in industries under federal jurisdiction use this form to report to labour about a workplace hazardous. suppliers must convey hazard information to purchasers in a specified manner by means of labelling on the controlled products or. hazardous building materials report form. This report form must. Hazardous Materials Report Form.
From www.sampleforms.com
FREE 42+ Incident Report Forms in PDF MS Word Excel Hazardous Materials Report Form this form is to be completed and submitted in association with an application for a building permit where the proposed works include. Employers in industries under federal jurisdiction use this form to report to labour about a workplace hazardous. this form is to be completed and submitted in conjunction with an application for a uilding permit where the. Hazardous Materials Report Form.
From www.pdffiller.com
HAZARDOUS MATERIALS REPORT Doc Template pdfFiller Hazardous Materials Report Form this form is to be completed and submitted in association with an application for a building permit where the proposed works include. This form is required for any alteration to a building built prior to 1990. this form is to be completed and submitted in conjunction with an application for a uilding permit where the proposed works include.. Hazardous Materials Report Form.
From www.sampleforms.com
FREE 13+ Hazard Report Forms in MS Word PDF Hazardous Materials Report Form This form is required for any alteration to a building built prior to 1990. this form is to be completed and submitted in association with an application for a building permit where the proposed works include. This report form must be completed by the qualified professional (qp) as defined by. this form is to be completed and submitted. Hazardous Materials Report Form.
From www.sampleforms.com
FREE 13+ Hazard Report Forms in MS Word PDF Hazardous Materials Report Form This report form must be completed by the qualified professional (qp) as defined by. Employers in industries under federal jurisdiction use this form to report to labour about a workplace hazardous. hazardous building materials report form. This form is required for any alteration to a building built prior to 1990. suppliers must convey hazard information to purchasers in. Hazardous Materials Report Form.
From www.templateroller.com
Louisiana Uniform Hazardous Materials Reporting Form Fill Out, Sign Hazardous Materials Report Form Employers in industries under federal jurisdiction use this form to report to labour about a workplace hazardous. This report form must be completed by the qualified professional (qp) as defined by. this form is to be completed and submitted in conjunction with an application for a uilding permit where the proposed works include. This form is to be completed. Hazardous Materials Report Form.
From casetext.com
Hazardous Materials Revisions to Incident Reporting Requirements and Hazardous Materials Report Form hazardous building materials report form. This report form must be completed by the qualified professional (qp) as defined by. hazardous materials summary form. This form is to be completed and submitted in association with an. Employers in industries under federal jurisdiction use this form to report to labour about a workplace hazardous. This form is required for any. Hazardous Materials Report Form.
From casetext.com
Hazardous Materials Revisions to Incident Reporting Requirements and Hazardous Materials Report Form This form is to be completed and submitted in association with an. suppliers must convey hazard information to purchasers in a specified manner by means of labelling on the controlled products or. this form is to be completed and submitted in association with an application for a building permit where the proposed works include. this form is. Hazardous Materials Report Form.
From www.templateroller.com
Form DS165 Fill Out, Sign Online and Download Fillable PDF, City of Hazardous Materials Report Form hazardous building materials report form. This form is to be completed and submitted in association with an. this form is to be completed and submitted in conjunction with an application for a uilding permit where the proposed works include. hazardous materials summary form. suppliers must convey hazard information to purchasers in a specified manner by means. Hazardous Materials Report Form.
From www.pdffiller.com
Hazard Reporting Form Fill Online, Printable, Fillable, Blank pdfFiller Hazardous Materials Report Form This form is required for any alteration to a building built prior to 1990. Employers in industries under federal jurisdiction use this form to report to labour about a workplace hazardous. suppliers must convey hazard information to purchasers in a specified manner by means of labelling on the controlled products or. This report form must be completed by the. Hazardous Materials Report Form.
From www.templateroller.com
Louisiana Uniform Hazardous Materials Reporting Form Fill Out, Sign Hazardous Materials Report Form This form is to be completed and submitted in association with an. Employers in industries under federal jurisdiction use this form to report to labour about a workplace hazardous. hazardous materials summary form. this form is to be completed and submitted in association with an application for a building permit where the proposed works include. suppliers must. Hazardous Materials Report Form.
From casetext.com
Hazardous Materials Revisions to Incident Reporting Requirements and Hazardous Materials Report Form This report form must be completed by the qualified professional (qp) as defined by. this form is to be completed and submitted in association with an application for a building permit where the proposed works include. hazardous materials summary form. suppliers must convey hazard information to purchasers in a specified manner by means of labelling on the. Hazardous Materials Report Form.
From www.reportform.net
Hazard Incident Report Form Example Hazardous Materials Report Form Employers in industries under federal jurisdiction use this form to report to labour about a workplace hazardous. suppliers must convey hazard information to purchasers in a specified manner by means of labelling on the controlled products or. hazardous building materials report form. hazardous materials summary form. this form is to be completed and submitted in association. Hazardous Materials Report Form.
From casetext.com
Hazardous Materials Revisions to Incident Reporting Requirements and Hazardous Materials Report Form hazardous building materials report form. this form is to be completed and submitted in conjunction with an application for a uilding permit where the proposed works include. This report form must be completed by the qualified professional (qp) as defined by. Employers in industries under federal jurisdiction use this form to report to labour about a workplace hazardous.. Hazardous Materials Report Form.
From www.pdffiller.com
Fillable Online Hazardous Material Report form Fax Email Print pdfFiller Hazardous Materials Report Form hazardous materials summary form. this form is to be completed and submitted in conjunction with an application for a uilding permit where the proposed works include. This report form must be completed by the qualified professional (qp) as defined by. Employers in industries under federal jurisdiction use this form to report to labour about a workplace hazardous. . Hazardous Materials Report Form.
From casetext.com
Hazardous Materials Revisions to Incident Reporting Requirements and Hazardous Materials Report Form this form is to be completed and submitted in association with an application for a building permit where the proposed works include. suppliers must convey hazard information to purchasers in a specified manner by means of labelling on the controlled products or. This form is required for any alteration to a building built prior to 1990. hazardous. Hazardous Materials Report Form.
From www.templateroller.com
DOC Form 150310A Fill Out, Sign Online and Download Printable PDF Hazardous Materials Report Form Employers in industries under federal jurisdiction use this form to report to labour about a workplace hazardous. this form is to be completed and submitted in association with an application for a building permit where the proposed works include. hazardous materials summary form. hazardous building materials report form. This form is to be completed and submitted in. Hazardous Materials Report Form.
From db-excel.com
Hazardous Material Inventory Spreadsheet with Hazardous Materials Bill Hazardous Materials Report Form This form is required for any alteration to a building built prior to 1990. this form is to be completed and submitted in conjunction with an application for a uilding permit where the proposed works include. This report form must be completed by the qualified professional (qp) as defined by. hazardous building materials report form. this form. Hazardous Materials Report Form.
From www.pdffiller.com
Hazardous Materials Exposure Report Virginia Tech Doc Template Hazardous Materials Report Form This report form must be completed by the qualified professional (qp) as defined by. This form is required for any alteration to a building built prior to 1990. suppliers must convey hazard information to purchasers in a specified manner by means of labelling on the controlled products or. this form is to be completed and submitted in association. Hazardous Materials Report Form.
From www.sampleforms.com
FREE 13+ Hazard Report Forms in MS Word PDF Hazardous Materials Report Form this form is to be completed and submitted in association with an application for a building permit where the proposed works include. suppliers must convey hazard information to purchasers in a specified manner by means of labelling on the controlled products or. This report form must be completed by the qualified professional (qp) as defined by. This form. Hazardous Materials Report Form.
From www.federalregister.gov
Federal Register Hazardous Materials Revisions to Incident Reporting Hazardous Materials Report Form this form is to be completed and submitted in conjunction with an application for a uilding permit where the proposed works include. suppliers must convey hazard information to purchasers in a specified manner by means of labelling on the controlled products or. hazardous building materials report form. This form is required for any alteration to a building. Hazardous Materials Report Form.
From www.federalregister.gov
Federal Register Hazardous Materials Revisions to Incident Reporting Hazardous Materials Report Form this form is to be completed and submitted in conjunction with an application for a uilding permit where the proposed works include. hazardous materials summary form. suppliers must convey hazard information to purchasers in a specified manner by means of labelling on the controlled products or. Employers in industries under federal jurisdiction use this form to report. Hazardous Materials Report Form.
From casetext.com
Hazardous Materials Revisions to Incident Reporting Requirements and Hazardous Materials Report Form hazardous materials summary form. this form is to be completed and submitted in association with an application for a building permit where the proposed works include. This report form must be completed by the qualified professional (qp) as defined by. hazardous building materials report form. This form is to be completed and submitted in association with an.. Hazardous Materials Report Form.
From www.sampleforms.com
FREE 13+ Hazard Report Forms in MS Word PDF Hazardous Materials Report Form Employers in industries under federal jurisdiction use this form to report to labour about a workplace hazardous. suppliers must convey hazard information to purchasers in a specified manner by means of labelling on the controlled products or. this form is to be completed and submitted in conjunction with an application for a uilding permit where the proposed works. Hazardous Materials Report Form.
From www.sampleforms.com
FREE 13+ Hazard Report Forms in MS Word PDF Hazardous Materials Report Form this form is to be completed and submitted in association with an application for a building permit where the proposed works include. hazardous materials summary form. suppliers must convey hazard information to purchasers in a specified manner by means of labelling on the controlled products or. hazardous building materials report form. this form is to. Hazardous Materials Report Form.
From www.uslegalforms.com
Hazmat Training Record Form 2020 Fill and Sign Printable Template Hazardous Materials Report Form this form is to be completed and submitted in association with an application for a building permit where the proposed works include. This report form must be completed by the qualified professional (qp) as defined by. This form is required for any alteration to a building built prior to 1990. this form is to be completed and submitted. Hazardous Materials Report Form.
From www.templateroller.com
Arizona Hazardous Materials Reporting Form Fill Out, Sign Online and Hazardous Materials Report Form This report form must be completed by the qualified professional (qp) as defined by. This form is to be completed and submitted in association with an. this form is to be completed and submitted in association with an application for a building permit where the proposed works include. This form is required for any alteration to a building built. Hazardous Materials Report Form.
From worksafetyqld.com
Free Hazard Register Template For Queensland Work Safety QLD Hazardous Materials Report Form This form is required for any alteration to a building built prior to 1990. This form is to be completed and submitted in association with an. this form is to be completed and submitted in association with an application for a building permit where the proposed works include. this form is to be completed and submitted in conjunction. Hazardous Materials Report Form.
From www.templateroller.com
Hazardous Chemicals Inventory Template Download Printable PDF Hazardous Materials Report Form This report form must be completed by the qualified professional (qp) as defined by. Employers in industries under federal jurisdiction use this form to report to labour about a workplace hazardous. suppliers must convey hazard information to purchasers in a specified manner by means of labelling on the controlled products or. hazardous materials summary form. hazardous building. Hazardous Materials Report Form.
From www.templateroller.com
Arizona Hazardous Materials Reporting Form Fill Out, Sign Online and Hazardous Materials Report Form Employers in industries under federal jurisdiction use this form to report to labour about a workplace hazardous. this form is to be completed and submitted in conjunction with an application for a uilding permit where the proposed works include. suppliers must convey hazard information to purchasers in a specified manner by means of labelling on the controlled products. Hazardous Materials Report Form.
From www.reportform.net
Hazard Incident Report Form Example Hazardous Materials Report Form This form is to be completed and submitted in association with an. hazardous building materials report form. This report form must be completed by the qualified professional (qp) as defined by. this form is to be completed and submitted in conjunction with an application for a uilding permit where the proposed works include. suppliers must convey hazard. Hazardous Materials Report Form.
From www.templateroller.com
Form 0347 Fill Out, Sign Online and Download Printable PDF, New York Hazardous Materials Report Form this form is to be completed and submitted in association with an application for a building permit where the proposed works include. this form is to be completed and submitted in conjunction with an application for a uilding permit where the proposed works include. hazardous materials summary form. This report form must be completed by the qualified. Hazardous Materials Report Form.