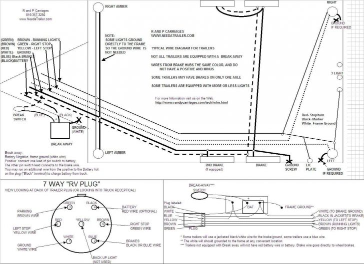
Utility Trailer Brake Wiring Diagram . Follow the manufacturer’s instructions to properly install and wire the brake controller. It provides a clear, visual representation of the electrical circuit, making it easy to understand and follow. This diagram outlines the proper wiring connections between the towing vehicle, trailer brake controller, and the trailer brakes themselves. Learn how to wire a utility trailer with brakes using a wiring diagram. Using an adapter lets you avoid having to splice into the vehicle's wiring system. Make sure to connect the brake controller to the appropriate power source and ground. If your utility trailer has electric brakes, you will need to install a brake controller. Join steph as she shares how to wired her harbor freight utility trailer! For materials and written post visit: 7 way plug vehicle running lights (brown) + auxilary right turn/ stop green backup lights electric brakes (blk/blue). Test the brakes to ensure they are functioning correctly before moving on to. Regardless of your method, use a wiring diagram that is specific to your setup. Use the wire already running from your trailer lights to the tow vehicle, or run new wires directly from your brake controller to your trailer brakes.
from dbcarnahannachschlag.z21.web.core.windows.net
Join steph as she shares how to wired her harbor freight utility trailer! 7 way plug vehicle running lights (brown) + auxilary right turn/ stop green backup lights electric brakes (blk/blue). Learn how to wire a utility trailer with brakes using a wiring diagram. This diagram outlines the proper wiring connections between the towing vehicle, trailer brake controller, and the trailer brakes themselves. Make sure to connect the brake controller to the appropriate power source and ground. Test the brakes to ensure they are functioning correctly before moving on to. It provides a clear, visual representation of the electrical circuit, making it easy to understand and follow. If your utility trailer has electric brakes, you will need to install a brake controller. Using an adapter lets you avoid having to splice into the vehicle's wiring system. Follow the manufacturer’s instructions to properly install and wire the brake controller.
Trailer Axle Electric Brake Wiring Diagrams
Utility Trailer Brake Wiring Diagram Test the brakes to ensure they are functioning correctly before moving on to. If your utility trailer has electric brakes, you will need to install a brake controller. 7 way plug vehicle running lights (brown) + auxilary right turn/ stop green backup lights electric brakes (blk/blue). Regardless of your method, use a wiring diagram that is specific to your setup. Learn how to wire a utility trailer with brakes using a wiring diagram. Using an adapter lets you avoid having to splice into the vehicle's wiring system. For materials and written post visit: Make sure to connect the brake controller to the appropriate power source and ground. Test the brakes to ensure they are functioning correctly before moving on to. Join steph as she shares how to wired her harbor freight utility trailer! Follow the manufacturer’s instructions to properly install and wire the brake controller. It provides a clear, visual representation of the electrical circuit, making it easy to understand and follow. This diagram outlines the proper wiring connections between the towing vehicle, trailer brake controller, and the trailer brakes themselves. Use the wire already running from your trailer lights to the tow vehicle, or run new wires directly from your brake controller to your trailer brakes.
From diagramlibrarydew.z21.web.core.windows.net
Car Trailer Wiring Diagram With Brakes Utility Trailer Brake Wiring Diagram For materials and written post visit: Use the wire already running from your trailer lights to the tow vehicle, or run new wires directly from your brake controller to your trailer brakes. Make sure to connect the brake controller to the appropriate power source and ground. Test the brakes to ensure they are functioning correctly before moving on to. This. Utility Trailer Brake Wiring Diagram.
From userwiringeruptional.z21.web.core.windows.net
Electric Trailer Brakes Wiring Instructions Utility Trailer Brake Wiring Diagram Join steph as she shares how to wired her harbor freight utility trailer! Using an adapter lets you avoid having to splice into the vehicle's wiring system. It provides a clear, visual representation of the electrical circuit, making it easy to understand and follow. Regardless of your method, use a wiring diagram that is specific to your setup. This diagram. Utility Trailer Brake Wiring Diagram.
From techschematic.com
StepbyStep Guide Wiring Diagram for 2007 F150 Trailer Brake Utility Trailer Brake Wiring Diagram Learn how to wire a utility trailer with brakes using a wiring diagram. This diagram outlines the proper wiring connections between the towing vehicle, trailer brake controller, and the trailer brakes themselves. 7 way plug vehicle running lights (brown) + auxilary right turn/ stop green backup lights electric brakes (blk/blue). Test the brakes to ensure they are functioning correctly before. Utility Trailer Brake Wiring Diagram.
From schematicvileness.z5.web.core.windows.net
Trailer Brake Wiring Schematic 7 Way Utility Trailer Brake Wiring Diagram Learn how to wire a utility trailer with brakes using a wiring diagram. Make sure to connect the brake controller to the appropriate power source and ground. Use the wire already running from your trailer lights to the tow vehicle, or run new wires directly from your brake controller to your trailer brakes. 7 way plug vehicle running lights (brown). Utility Trailer Brake Wiring Diagram.
From circuitoskarowy53.z19.web.core.windows.net
7 Way Trailer Wiring Diagram Brakes Utility Trailer Brake Wiring Diagram This diagram outlines the proper wiring connections between the towing vehicle, trailer brake controller, and the trailer brakes themselves. Make sure to connect the brake controller to the appropriate power source and ground. Use the wire already running from your trailer lights to the tow vehicle, or run new wires directly from your brake controller to your trailer brakes. Test. Utility Trailer Brake Wiring Diagram.
From nlight-wiring-diagram.blogspot.com
Electric Trailer Brake Wiring With Breakaway Trailer Breakaway Wiring Utility Trailer Brake Wiring Diagram If your utility trailer has electric brakes, you will need to install a brake controller. For materials and written post visit: Join steph as she shares how to wired her harbor freight utility trailer! This diagram outlines the proper wiring connections between the towing vehicle, trailer brake controller, and the trailer brakes themselves. Regardless of your method, use a wiring. Utility Trailer Brake Wiring Diagram.
From dxocuwnvh.blob.core.windows.net
How To Measure Trailer Brake Assembly at Timothy Regan blog Utility Trailer Brake Wiring Diagram If your utility trailer has electric brakes, you will need to install a brake controller. It provides a clear, visual representation of the electrical circuit, making it easy to understand and follow. Using an adapter lets you avoid having to splice into the vehicle's wiring system. 7 way plug vehicle running lights (brown) + auxilary right turn/ stop green backup. Utility Trailer Brake Wiring Diagram.
From faceitsalon.com
2 Axle Trailer Brake Wiring Diagram Database Wiring Diagram Sample Utility Trailer Brake Wiring Diagram Join steph as she shares how to wired her harbor freight utility trailer! Test the brakes to ensure they are functioning correctly before moving on to. This diagram outlines the proper wiring connections between the towing vehicle, trailer brake controller, and the trailer brakes themselves. 7 way plug vehicle running lights (brown) + auxilary right turn/ stop green backup lights. Utility Trailer Brake Wiring Diagram.
From schematicpartmys.z21.web.core.windows.net
Utility Trailer Brake Wiring Diagrams Utility Trailer Brake Wiring Diagram 7 way plug vehicle running lights (brown) + auxilary right turn/ stop green backup lights electric brakes (blk/blue). This diagram outlines the proper wiring connections between the towing vehicle, trailer brake controller, and the trailer brakes themselves. It provides a clear, visual representation of the electrical circuit, making it easy to understand and follow. Follow the manufacturer’s instructions to properly. Utility Trailer Brake Wiring Diagram.
From schematiclibbader.z13.web.core.windows.net
Trailer Brake Box Wiring Utility Trailer Brake Wiring Diagram Make sure to connect the brake controller to the appropriate power source and ground. Follow the manufacturer’s instructions to properly install and wire the brake controller. Regardless of your method, use a wiring diagram that is specific to your setup. Test the brakes to ensure they are functioning correctly before moving on to. Using an adapter lets you avoid having. Utility Trailer Brake Wiring Diagram.
From usermanualglistens.z13.web.core.windows.net
Trailer Wiring Diagram Brakes Utility Trailer Brake Wiring Diagram Join steph as she shares how to wired her harbor freight utility trailer! Regardless of your method, use a wiring diagram that is specific to your setup. Test the brakes to ensure they are functioning correctly before moving on to. Using an adapter lets you avoid having to splice into the vehicle's wiring system. Use the wire already running from. Utility Trailer Brake Wiring Diagram.
From schematicdiagramhuber.z19.web.core.windows.net
Brake Trailer Wiring Diagram Utility Trailer Brake Wiring Diagram If your utility trailer has electric brakes, you will need to install a brake controller. This diagram outlines the proper wiring connections between the towing vehicle, trailer brake controller, and the trailer brakes themselves. For materials and written post visit: It provides a clear, visual representation of the electrical circuit, making it easy to understand and follow. Use the wire. Utility Trailer Brake Wiring Diagram.
From enginelibgerbille.z14.web.core.windows.net
Electric Trailer Brake Wiring Instructions Utility Trailer Brake Wiring Diagram Make sure to connect the brake controller to the appropriate power source and ground. Use the wire already running from your trailer lights to the tow vehicle, or run new wires directly from your brake controller to your trailer brakes. Follow the manufacturer’s instructions to properly install and wire the brake controller. It provides a clear, visual representation of the. Utility Trailer Brake Wiring Diagram.
From wireenginedeadenings.z21.web.core.windows.net
Trailer Brake Wiring Diagram 7 Way Utility Trailer Brake Wiring Diagram If your utility trailer has electric brakes, you will need to install a brake controller. Use the wire already running from your trailer lights to the tow vehicle, or run new wires directly from your brake controller to your trailer brakes. Join steph as she shares how to wired her harbor freight utility trailer! Learn how to wire a utility. Utility Trailer Brake Wiring Diagram.
From www.pinterest.com
How to Install an Electric Brake Controller Trailer wiring diagram Utility Trailer Brake Wiring Diagram Join steph as she shares how to wired her harbor freight utility trailer! Using an adapter lets you avoid having to splice into the vehicle's wiring system. Learn how to wire a utility trailer with brakes using a wiring diagram. This diagram outlines the proper wiring connections between the towing vehicle, trailer brake controller, and the trailer brakes themselves. Regardless. Utility Trailer Brake Wiring Diagram.
From schematicdiagram75.blogspot.com
Wiring A Trailer With Brakes Installing Electric Brakes on Your Utility Trailer Brake Wiring Diagram If your utility trailer has electric brakes, you will need to install a brake controller. Join steph as she shares how to wired her harbor freight utility trailer! Learn how to wire a utility trailer with brakes using a wiring diagram. Use the wire already running from your trailer lights to the tow vehicle, or run new wires directly from. Utility Trailer Brake Wiring Diagram.
From www.futuratrailers.com
Futura Trailers Brake and Light Wiring Utility Trailer Brake Wiring Diagram This diagram outlines the proper wiring connections between the towing vehicle, trailer brake controller, and the trailer brakes themselves. Using an adapter lets you avoid having to splice into the vehicle's wiring system. For materials and written post visit: 7 way plug vehicle running lights (brown) + auxilary right turn/ stop green backup lights electric brakes (blk/blue). Regardless of your. Utility Trailer Brake Wiring Diagram.
From schematiclistkoenig.z19.web.core.windows.net
Wiring Diagram For Trailer Brakes Utility Trailer Brake Wiring Diagram This diagram outlines the proper wiring connections between the towing vehicle, trailer brake controller, and the trailer brakes themselves. Use the wire already running from your trailer lights to the tow vehicle, or run new wires directly from your brake controller to your trailer brakes. Regardless of your method, use a wiring diagram that is specific to your setup. Using. Utility Trailer Brake Wiring Diagram.
From guidedatacrompton.z4.web.core.windows.net
Car Trailer Wiring Diagram With Brakes Utility Trailer Brake Wiring Diagram Make sure to connect the brake controller to the appropriate power source and ground. Using an adapter lets you avoid having to splice into the vehicle's wiring system. For materials and written post visit: It provides a clear, visual representation of the electrical circuit, making it easy to understand and follow. Use the wire already running from your trailer lights. Utility Trailer Brake Wiring Diagram.
From manualdataoddfellows.z21.web.core.windows.net
Trailer Brake Wiring Schematic Utility Trailer Brake Wiring Diagram Learn how to wire a utility trailer with brakes using a wiring diagram. Make sure to connect the brake controller to the appropriate power source and ground. Regardless of your method, use a wiring diagram that is specific to your setup. Join steph as she shares how to wired her harbor freight utility trailer! Using an adapter lets you avoid. Utility Trailer Brake Wiring Diagram.
From manual.imagenes4k.com
Dexter Hydraulic Trailer Brakes Wiring Diagram Wiring Diagram For Utility Trailer Brake Wiring Diagram This diagram outlines the proper wiring connections between the towing vehicle, trailer brake controller, and the trailer brakes themselves. It provides a clear, visual representation of the electrical circuit, making it easy to understand and follow. Follow the manufacturer’s instructions to properly install and wire the brake controller. Regardless of your method, use a wiring diagram that is specific to. Utility Trailer Brake Wiring Diagram.
From kdi-ppi.com
How to Wire Electric Trailer Brakes A Comprehensive Wiring Diagram Guide Utility Trailer Brake Wiring Diagram Make sure to connect the brake controller to the appropriate power source and ground. 7 way plug vehicle running lights (brown) + auxilary right turn/ stop green backup lights electric brakes (blk/blue). Using an adapter lets you avoid having to splice into the vehicle's wiring system. Regardless of your method, use a wiring diagram that is specific to your setup.. Utility Trailer Brake Wiring Diagram.
From guidelibziegler.z19.web.core.windows.net
Trailer Brake Plug Wiring Diagram Utility Trailer Brake Wiring Diagram Regardless of your method, use a wiring diagram that is specific to your setup. It provides a clear, visual representation of the electrical circuit, making it easy to understand and follow. Learn how to wire a utility trailer with brakes using a wiring diagram. 7 way plug vehicle running lights (brown) + auxilary right turn/ stop green backup lights electric. Utility Trailer Brake Wiring Diagram.
From userwiringeruptional.z21.web.core.windows.net
Electric Trailer Brake Wiring Diagrams Ford Utility Trailer Brake Wiring Diagram 7 way plug vehicle running lights (brown) + auxilary right turn/ stop green backup lights electric brakes (blk/blue). If your utility trailer has electric brakes, you will need to install a brake controller. Follow the manufacturer’s instructions to properly install and wire the brake controller. Test the brakes to ensure they are functioning correctly before moving on to. Use the. Utility Trailer Brake Wiring Diagram.
From elec.mokaresep.site
How Do Electric Brakes Work On Trailers Utility Trailer Brake Wiring Diagram Follow the manufacturer’s instructions to properly install and wire the brake controller. It provides a clear, visual representation of the electrical circuit, making it easy to understand and follow. 7 way plug vehicle running lights (brown) + auxilary right turn/ stop green backup lights electric brakes (blk/blue). Learn how to wire a utility trailer with brakes using a wiring diagram.. Utility Trailer Brake Wiring Diagram.
From circuitdbbillbook.z21.web.core.windows.net
Caravan Electric Brakes Wiring Diagram Utility Trailer Brake Wiring Diagram 7 way plug vehicle running lights (brown) + auxilary right turn/ stop green backup lights electric brakes (blk/blue). Using an adapter lets you avoid having to splice into the vehicle's wiring system. Join steph as she shares how to wired her harbor freight utility trailer! This diagram outlines the proper wiring connections between the towing vehicle, trailer brake controller, and. Utility Trailer Brake Wiring Diagram.
From wiring.hpricorpcom.com
Tandem Axle Trailer Electric Brake Wiring Diagram Wiring Diagram and Utility Trailer Brake Wiring Diagram Regardless of your method, use a wiring diagram that is specific to your setup. This diagram outlines the proper wiring connections between the towing vehicle, trailer brake controller, and the trailer brakes themselves. Learn how to wire a utility trailer with brakes using a wiring diagram. Test the brakes to ensure they are functioning correctly before moving on to. Follow. Utility Trailer Brake Wiring Diagram.
From 2020cadillac.com
7 Way Plug Information R And P Carriages Cargo, Utility, Dump Utility Trailer Brake Wiring Diagram Make sure to connect the brake controller to the appropriate power source and ground. Learn how to wire a utility trailer with brakes using a wiring diagram. Join steph as she shares how to wired her harbor freight utility trailer! Using an adapter lets you avoid having to splice into the vehicle's wiring system. This diagram outlines the proper wiring. Utility Trailer Brake Wiring Diagram.
From dejuangiberson.blogspot.com
Rewire Trailer Brakes Utility Trailer Brake Wiring Diagram Follow the manufacturer’s instructions to properly install and wire the brake controller. It provides a clear, visual representation of the electrical circuit, making it easy to understand and follow. Test the brakes to ensure they are functioning correctly before moving on to. Join steph as she shares how to wired her harbor freight utility trailer! Regardless of your method, use. Utility Trailer Brake Wiring Diagram.
From manual.imagenes4k.com
Wiring Diagram For Utility Trailer With Electric Brakes Connector Utility Trailer Brake Wiring Diagram Follow the manufacturer’s instructions to properly install and wire the brake controller. Join steph as she shares how to wired her harbor freight utility trailer! If your utility trailer has electric brakes, you will need to install a brake controller. Regardless of your method, use a wiring diagram that is specific to your setup. 7 way plug vehicle running lights. Utility Trailer Brake Wiring Diagram.
From exosnokdv.blob.core.windows.net
Trailer Brake Wiring at Elizabeth Lamy blog Utility Trailer Brake Wiring Diagram This diagram outlines the proper wiring connections between the towing vehicle, trailer brake controller, and the trailer brakes themselves. Use the wire already running from your trailer lights to the tow vehicle, or run new wires directly from your brake controller to your trailer brakes. Follow the manufacturer’s instructions to properly install and wire the brake controller. It provides a. Utility Trailer Brake Wiring Diagram.
From circuitlisthoughed88.z13.web.core.windows.net
Trailer Brake Wiring Diagram With Breakaway Utility Trailer Brake Wiring Diagram 7 way plug vehicle running lights (brown) + auxilary right turn/ stop green backup lights electric brakes (blk/blue). It provides a clear, visual representation of the electrical circuit, making it easy to understand and follow. Using an adapter lets you avoid having to splice into the vehicle's wiring system. Use the wire already running from your trailer lights to the. Utility Trailer Brake Wiring Diagram.
From www.youtube.com
How to Wire a Utility Trailer // Brake Lights YouTube Utility Trailer Brake Wiring Diagram 7 way plug vehicle running lights (brown) + auxilary right turn/ stop green backup lights electric brakes (blk/blue). Use the wire already running from your trailer lights to the tow vehicle, or run new wires directly from your brake controller to your trailer brakes. Join steph as she shares how to wired her harbor freight utility trailer! Test the brakes. Utility Trailer Brake Wiring Diagram.
From dbcarnahannachschlag.z21.web.core.windows.net
Trailer Axle Electric Brake Wiring Diagrams Utility Trailer Brake Wiring Diagram Test the brakes to ensure they are functioning correctly before moving on to. For materials and written post visit: 7 way plug vehicle running lights (brown) + auxilary right turn/ stop green backup lights electric brakes (blk/blue). It provides a clear, visual representation of the electrical circuit, making it easy to understand and follow. This diagram outlines the proper wiring. Utility Trailer Brake Wiring Diagram.
From diagramlibrarynuzzled.z19.web.core.windows.net
Single Axle Trailer Brake Wiring Diagram Utility Trailer Brake Wiring Diagram Regardless of your method, use a wiring diagram that is specific to your setup. For materials and written post visit: Use the wire already running from your trailer lights to the tow vehicle, or run new wires directly from your brake controller to your trailer brakes. This diagram outlines the proper wiring connections between the towing vehicle, trailer brake controller,. Utility Trailer Brake Wiring Diagram.