Avonlea At Tributary . Minutes from san diego`s major employers! Avonlea tributary apartments has rental units. Avonlea tributary has rental units ranging from 741. Find your new home at avonlea tributary located at 2580. See all available apartments for rent at avonlea tributary in lithia springs, ga. View all avonlea tributary apartments here. 2580 summer lake rd, lithia springs, ga 30122. View the available apartments for rent at avonlea tributary apartments in lithia springs, ga. Find apartments for rent at avonlea tributary from $1,365 at 2580 summer lake rd in lithia springs, ga. Avonlea tributary is the perfect place to live for those who are looking for a comfortable, luxurious, and active lifestyle. 2580 summer lake road, lithia springs, ga 30122. 2580 summer lake road, lithia springs, ga 30122. Come to a home you deserve located in lithia springs, ga.
from stabilityengineering.com
Find your new home at avonlea tributary located at 2580. View the available apartments for rent at avonlea tributary apartments in lithia springs, ga. 2580 summer lake road, lithia springs, ga 30122. Minutes from san diego`s major employers! Find apartments for rent at avonlea tributary from $1,365 at 2580 summer lake rd in lithia springs, ga. 2580 summer lake road, lithia springs, ga 30122. See all available apartments for rent at avonlea tributary in lithia springs, ga. Avonlea tributary has rental units ranging from 741. Avonlea tributary apartments has rental units. Avonlea tributary is the perfect place to live for those who are looking for a comfortable, luxurious, and active lifestyle.
Avonlea Tributary Clubhouse Stability Engineering Structural
Avonlea At Tributary Avonlea tributary apartments has rental units. Find apartments for rent at avonlea tributary from $1,365 at 2580 summer lake rd in lithia springs, ga. Avonlea tributary apartments has rental units. See all available apartments for rent at avonlea tributary in lithia springs, ga. 2580 summer lake road, lithia springs, ga 30122. Come to a home you deserve located in lithia springs, ga. Minutes from san diego`s major employers! View the available apartments for rent at avonlea tributary apartments in lithia springs, ga. Find your new home at avonlea tributary located at 2580. View all avonlea tributary apartments here. Avonlea tributary is the perfect place to live for those who are looking for a comfortable, luxurious, and active lifestyle. Avonlea tributary has rental units ranging from 741. 2580 summer lake road, lithia springs, ga 30122. 2580 summer lake rd, lithia springs, ga 30122.
From www.apartmentguide.com
Avonlea Tributary Apartments Lithia Springs, GA 30122 Avonlea At Tributary 2580 summer lake rd, lithia springs, ga 30122. View the available apartments for rent at avonlea tributary apartments in lithia springs, ga. Avonlea tributary apartments has rental units. Come to a home you deserve located in lithia springs, ga. See all available apartments for rent at avonlea tributary in lithia springs, ga. View all avonlea tributary apartments here. Find your. Avonlea At Tributary.
From www.dreamstime.com
Avonlea Was the Fictitious Cavendish. Editorial Image Image of Avonlea At Tributary 2580 summer lake rd, lithia springs, ga 30122. See all available apartments for rent at avonlea tributary in lithia springs, ga. Find apartments for rent at avonlea tributary from $1,365 at 2580 summer lake rd in lithia springs, ga. Come to a home you deserve located in lithia springs, ga. Find your new home at avonlea tributary located at 2580.. Avonlea At Tributary.
From www.apartments.com
Avonlea Tributary Apartments in Lithia Springs, GA Avonlea At Tributary View all avonlea tributary apartments here. Avonlea tributary has rental units ranging from 741. Avonlea tributary is the perfect place to live for those who are looking for a comfortable, luxurious, and active lifestyle. Come to a home you deserve located in lithia springs, ga. View the available apartments for rent at avonlea tributary apartments in lithia springs, ga. 2580. Avonlea At Tributary.
From stabilityengineering.com
Avonlea Tributary Clubhouse Stability Engineering Structural Avonlea At Tributary See all available apartments for rent at avonlea tributary in lithia springs, ga. 2580 summer lake road, lithia springs, ga 30122. 2580 summer lake rd, lithia springs, ga 30122. Avonlea tributary apartments has rental units. View the available apartments for rent at avonlea tributary apartments in lithia springs, ga. 2580 summer lake road, lithia springs, ga 30122. Come to a. Avonlea At Tributary.
From www.apartmentguide.com
Avonlea Tributary Apartments Lithia Springs, GA 30122 Avonlea At Tributary 2580 summer lake road, lithia springs, ga 30122. 2580 summer lake road, lithia springs, ga 30122. View all avonlea tributary apartments here. Come to a home you deserve located in lithia springs, ga. Find your new home at avonlea tributary located at 2580. See all available apartments for rent at avonlea tributary in lithia springs, ga. Avonlea tributary is the. Avonlea At Tributary.
From stabilityengineering.com
Avonlea Tributary Clubhouse Stability Engineering Structural Avonlea At Tributary Minutes from san diego`s major employers! See all available apartments for rent at avonlea tributary in lithia springs, ga. Come to a home you deserve located in lithia springs, ga. Find apartments for rent at avonlea tributary from $1,365 at 2580 summer lake rd in lithia springs, ga. View the available apartments for rent at avonlea tributary apartments in lithia. Avonlea At Tributary.
From www.rent.com
Avonlea Tributary 2580 Summer Lake Rd Lithia Springs, GA Apartments Avonlea At Tributary View the available apartments for rent at avonlea tributary apartments in lithia springs, ga. Avonlea tributary has rental units ranging from 741. View all avonlea tributary apartments here. Find your new home at avonlea tributary located at 2580. 2580 summer lake road, lithia springs, ga 30122. 2580 summer lake road, lithia springs, ga 30122. Find apartments for rent at avonlea. Avonlea At Tributary.
From patch.com
Avonlea Tributary Now in Lithia Springs Douglasville, GA Patch Avonlea At Tributary Avonlea tributary is the perfect place to live for those who are looking for a comfortable, luxurious, and active lifestyle. 2580 summer lake rd, lithia springs, ga 30122. View the available apartments for rent at avonlea tributary apartments in lithia springs, ga. Find your new home at avonlea tributary located at 2580. Avonlea tributary has rental units ranging from 741.. Avonlea At Tributary.
From www.apartmentguide.com
Avonlea Tributary Lithia Springs, GA 30122 Avonlea At Tributary Minutes from san diego`s major employers! See all available apartments for rent at avonlea tributary in lithia springs, ga. View all avonlea tributary apartments here. Find your new home at avonlea tributary located at 2580. View the available apartments for rent at avonlea tributary apartments in lithia springs, ga. Find apartments for rent at avonlea tributary from $1,365 at 2580. Avonlea At Tributary.
From www.tvinsider.com
Road to Avonlea Movie Where To Watch Avonlea At Tributary Avonlea tributary is the perfect place to live for those who are looking for a comfortable, luxurious, and active lifestyle. 2580 summer lake road, lithia springs, ga 30122. Avonlea tributary has rental units ranging from 741. 2580 summer lake road, lithia springs, ga 30122. Minutes from san diego`s major employers! See all available apartments for rent at avonlea tributary in. Avonlea At Tributary.
From www.apartmentguide.com
Avonlea Tributary Apartments Lithia Springs, GA 30122 Avonlea At Tributary View all avonlea tributary apartments here. 2580 summer lake rd, lithia springs, ga 30122. Find apartments for rent at avonlea tributary from $1,365 at 2580 summer lake rd in lithia springs, ga. 2580 summer lake road, lithia springs, ga 30122. Find your new home at avonlea tributary located at 2580. Come to a home you deserve located in lithia springs,. Avonlea At Tributary.
From stabilityengineering.com
Avonlea Tributary Clubhouse Stability Engineering Structural Avonlea At Tributary Find apartments for rent at avonlea tributary from $1,365 at 2580 summer lake rd in lithia springs, ga. See all available apartments for rent at avonlea tributary in lithia springs, ga. Come to a home you deserve located in lithia springs, ga. 2580 summer lake road, lithia springs, ga 30122. Minutes from san diego`s major employers! View the available apartments. Avonlea At Tributary.
From www.apartmentguide.com
Avonlea Tributary Lithia Springs, GA 30122 Avonlea At Tributary See all available apartments for rent at avonlea tributary in lithia springs, ga. Find apartments for rent at avonlea tributary from $1,365 at 2580 summer lake rd in lithia springs, ga. View all avonlea tributary apartments here. 2580 summer lake road, lithia springs, ga 30122. Find your new home at avonlea tributary located at 2580. 2580 summer lake rd, lithia. Avonlea At Tributary.
From www.rent.com
Avonlea Tributary 2580 Summer Lake Rd Lithia Springs, GA Apartments Avonlea At Tributary Avonlea tributary is the perfect place to live for those who are looking for a comfortable, luxurious, and active lifestyle. Avonlea tributary apartments has rental units. See all available apartments for rent at avonlea tributary in lithia springs, ga. Find your new home at avonlea tributary located at 2580. Minutes from san diego`s major employers! View the available apartments for. Avonlea At Tributary.
From www.apartmentguide.com
Avonlea Tributary Lithia Springs, GA 30122 Avonlea At Tributary View the available apartments for rent at avonlea tributary apartments in lithia springs, ga. See all available apartments for rent at avonlea tributary in lithia springs, ga. 2580 summer lake road, lithia springs, ga 30122. Avonlea tributary is the perfect place to live for those who are looking for a comfortable, luxurious, and active lifestyle. Avonlea tributary has rental units. Avonlea At Tributary.
From stabilityengineering.com
Avonlea Tributary Clubhouse Stability Engineering Structural Avonlea At Tributary Find your new home at avonlea tributary located at 2580. Find apartments for rent at avonlea tributary from $1,365 at 2580 summer lake rd in lithia springs, ga. Avonlea tributary is the perfect place to live for those who are looking for a comfortable, luxurious, and active lifestyle. Avonlea tributary apartments has rental units. Minutes from san diego`s major employers!. Avonlea At Tributary.
From www.rent.com
Avonlea Tributary 2580 Summer Lake Rd Lithia Springs, GA Apartments Avonlea At Tributary Find apartments for rent at avonlea tributary from $1,365 at 2580 summer lake rd in lithia springs, ga. 2580 summer lake road, lithia springs, ga 30122. Find your new home at avonlea tributary located at 2580. 2580 summer lake road, lithia springs, ga 30122. Avonlea tributary has rental units ranging from 741. Come to a home you deserve located in. Avonlea At Tributary.
From www.rent.com
Avonlea Tributary 2580 Summer Lake Rd Lithia Springs, GA Apartments Avonlea At Tributary 2580 summer lake road, lithia springs, ga 30122. Come to a home you deserve located in lithia springs, ga. View all avonlea tributary apartments here. 2580 summer lake road, lithia springs, ga 30122. Avonlea tributary is the perfect place to live for those who are looking for a comfortable, luxurious, and active lifestyle. Avonlea tributary has rental units ranging from. Avonlea At Tributary.
From www.apartmentguide.com
Avonlea Tributary Apartments Lithia Springs, GA 30122 Avonlea At Tributary Come to a home you deserve located in lithia springs, ga. See all available apartments for rent at avonlea tributary in lithia springs, ga. Avonlea tributary is the perfect place to live for those who are looking for a comfortable, luxurious, and active lifestyle. Find apartments for rent at avonlea tributary from $1,365 at 2580 summer lake rd in lithia. Avonlea At Tributary.
From www.apartmentguide.com
Avonlea Tributary Apartments Lithia Springs, GA 30122 Avonlea At Tributary Avonlea tributary has rental units ranging from 741. View the available apartments for rent at avonlea tributary apartments in lithia springs, ga. 2580 summer lake road, lithia springs, ga 30122. Come to a home you deserve located in lithia springs, ga. See all available apartments for rent at avonlea tributary in lithia springs, ga. Find apartments for rent at avonlea. Avonlea At Tributary.
From www.youtube.com
Avonlea Tributary Apartments YouTube Avonlea At Tributary View all avonlea tributary apartments here. See all available apartments for rent at avonlea tributary in lithia springs, ga. Avonlea tributary is the perfect place to live for those who are looking for a comfortable, luxurious, and active lifestyle. Avonlea tributary has rental units ranging from 741. View the available apartments for rent at avonlea tributary apartments in lithia springs,. Avonlea At Tributary.
From www.apartments.com
Avonlea Tributary Rentals Lithia Springs, GA Avonlea At Tributary Find your new home at avonlea tributary located at 2580. Minutes from san diego`s major employers! See all available apartments for rent at avonlea tributary in lithia springs, ga. Find apartments for rent at avonlea tributary from $1,365 at 2580 summer lake rd in lithia springs, ga. Avonlea tributary is the perfect place to live for those who are looking. Avonlea At Tributary.
From www.rent.com
Avonlea Tributary 2580 Summer Lake Rd Lithia Springs, GA Apartments Avonlea At Tributary Find your new home at avonlea tributary located at 2580. 2580 summer lake road, lithia springs, ga 30122. View the available apartments for rent at avonlea tributary apartments in lithia springs, ga. Avonlea tributary has rental units ranging from 741. Find apartments for rent at avonlea tributary from $1,365 at 2580 summer lake rd in lithia springs, ga. Come to. Avonlea At Tributary.
From www.apartmentguide.com
Avonlea Tributary Apartments Lithia Springs, GA 30122 Avonlea At Tributary View the available apartments for rent at avonlea tributary apartments in lithia springs, ga. Come to a home you deserve located in lithia springs, ga. Avonlea tributary is the perfect place to live for those who are looking for a comfortable, luxurious, and active lifestyle. 2580 summer lake road, lithia springs, ga 30122. 2580 summer lake rd, lithia springs, ga. Avonlea At Tributary.
From www.rent.com
Avonlea Tributary 2580 Summer Lake Rd Lithia Springs, GA Apartments Avonlea At Tributary See all available apartments for rent at avonlea tributary in lithia springs, ga. Avonlea tributary has rental units ranging from 741. Avonlea tributary apartments has rental units. View all avonlea tributary apartments here. Come to a home you deserve located in lithia springs, ga. 2580 summer lake rd, lithia springs, ga 30122. Find apartments for rent at avonlea tributary from. Avonlea At Tributary.
From www.rent.com
Avonlea Tributary 2580 Summer Lake Rd Lithia Springs, GA Apartments Avonlea At Tributary Avonlea tributary apartments has rental units. Find your new home at avonlea tributary located at 2580. View all avonlea tributary apartments here. Come to a home you deserve located in lithia springs, ga. Avonlea tributary has rental units ranging from 741. 2580 summer lake road, lithia springs, ga 30122. 2580 summer lake road, lithia springs, ga 30122. 2580 summer lake. Avonlea At Tributary.
From www.gonewiththefamily.com
OldFashioned Fun at Avonlea Village Gone With The Family Avonlea At Tributary Avonlea tributary apartments has rental units. See all available apartments for rent at avonlea tributary in lithia springs, ga. 2580 summer lake road, lithia springs, ga 30122. Minutes from san diego`s major employers! Avonlea tributary has rental units ranging from 741. View all avonlea tributary apartments here. Avonlea tributary is the perfect place to live for those who are looking. Avonlea At Tributary.
From stabilityengineering.com
Avonlea Tributary Clubhouse Stability Engineering Structural Avonlea At Tributary Find apartments for rent at avonlea tributary from $1,365 at 2580 summer lake rd in lithia springs, ga. 2580 summer lake road, lithia springs, ga 30122. Come to a home you deserve located in lithia springs, ga. View the available apartments for rent at avonlea tributary apartments in lithia springs, ga. View all avonlea tributary apartments here. Avonlea tributary has. Avonlea At Tributary.
From www.facebook.com
Avonlea Tributary Apartment Community Lithia Springs GA Avonlea At Tributary See all available apartments for rent at avonlea tributary in lithia springs, ga. Minutes from san diego`s major employers! Avonlea tributary has rental units ranging from 741. View the available apartments for rent at avonlea tributary apartments in lithia springs, ga. 2580 summer lake road, lithia springs, ga 30122. View all avonlea tributary apartments here. 2580 summer lake road, lithia. Avonlea At Tributary.
From www.yelp.com
AVONLEA TRIBUTARY APARTMENTS Updated September 2024 13 Photos Avonlea At Tributary Avonlea tributary is the perfect place to live for those who are looking for a comfortable, luxurious, and active lifestyle. See all available apartments for rent at avonlea tributary in lithia springs, ga. 2580 summer lake road, lithia springs, ga 30122. 2580 summer lake rd, lithia springs, ga 30122. Find your new home at avonlea tributary located at 2580. Find. Avonlea At Tributary.
From www.rent.com
Avonlea Tributary 2580 Summer Lake Rd Lithia Springs, GA Apartments Avonlea At Tributary Avonlea tributary apartments has rental units. 2580 summer lake road, lithia springs, ga 30122. Find apartments for rent at avonlea tributary from $1,365 at 2580 summer lake rd in lithia springs, ga. 2580 summer lake road, lithia springs, ga 30122. Avonlea tributary is the perfect place to live for those who are looking for a comfortable, luxurious, and active lifestyle.. Avonlea At Tributary.
From www.readingtoknow.com
Book Review of Road to Avonlea at Reading to Know Avonlea At Tributary Minutes from san diego`s major employers! Find apartments for rent at avonlea tributary from $1,365 at 2580 summer lake rd in lithia springs, ga. See all available apartments for rent at avonlea tributary in lithia springs, ga. Find your new home at avonlea tributary located at 2580. View the available apartments for rent at avonlea tributary apartments in lithia springs,. Avonlea At Tributary.
From www.apartmentguide.com
Avonlea Tributary Lithia Springs, GA 30122 Avonlea At Tributary Find apartments for rent at avonlea tributary from $1,365 at 2580 summer lake rd in lithia springs, ga. Find your new home at avonlea tributary located at 2580. 2580 summer lake rd, lithia springs, ga 30122. View the available apartments for rent at avonlea tributary apartments in lithia springs, ga. Come to a home you deserve located in lithia springs,. Avonlea At Tributary.
From cavendishbeachpei.com
Avonlea Village Cavendish Beach Avonlea At Tributary Find your new home at avonlea tributary located at 2580. 2580 summer lake rd, lithia springs, ga 30122. 2580 summer lake road, lithia springs, ga 30122. Find apartments for rent at avonlea tributary from $1,365 at 2580 summer lake rd in lithia springs, ga. Avonlea tributary has rental units ranging from 741. Minutes from san diego`s major employers! View all. Avonlea At Tributary.
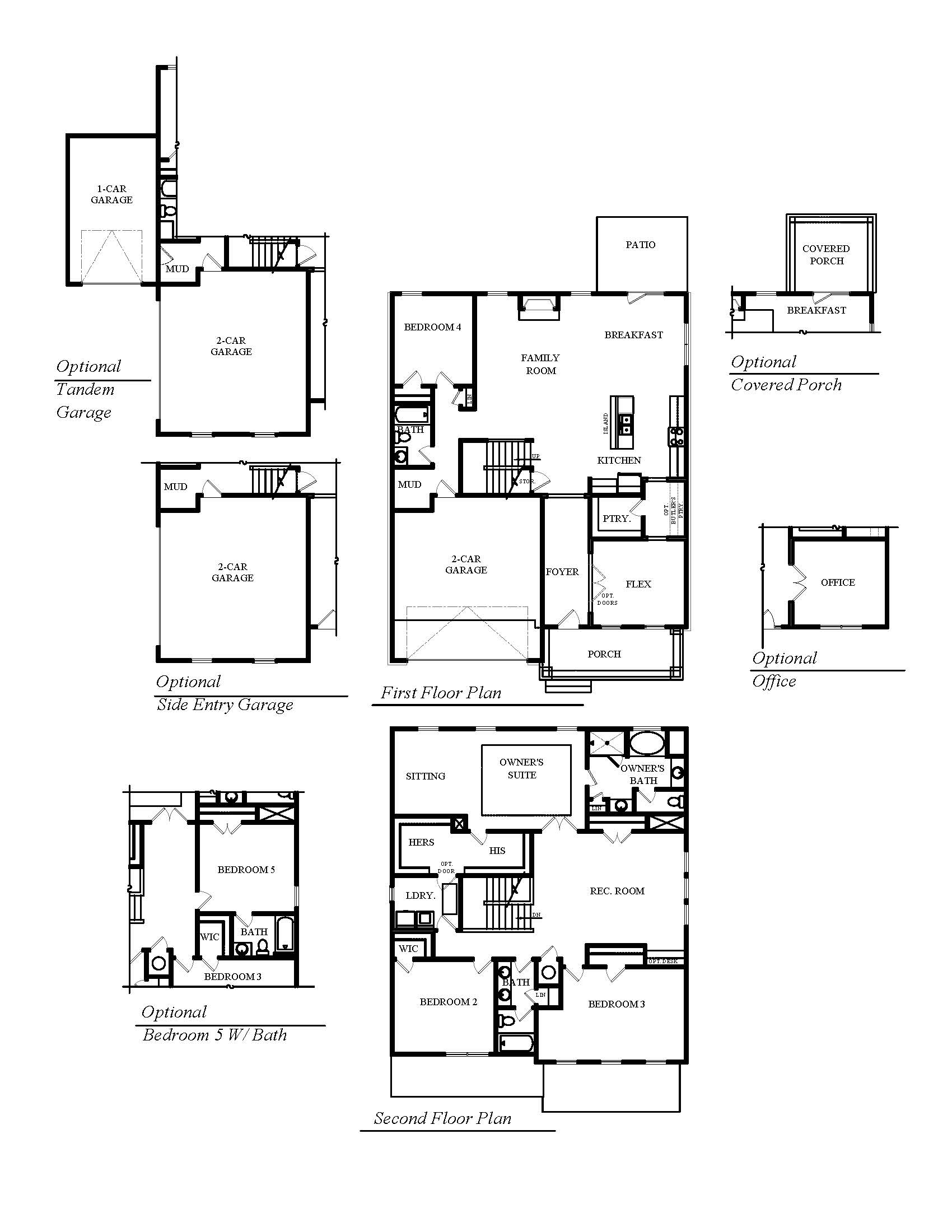
From www.drhorton.com
Floor Plan in Tributary Village Douglasville, GA D.R. Horton Avonlea At Tributary See all available apartments for rent at avonlea tributary in lithia springs, ga. Come to a home you deserve located in lithia springs, ga. Avonlea tributary apartments has rental units. 2580 summer lake rd, lithia springs, ga 30122. View the available apartments for rent at avonlea tributary apartments in lithia springs, ga. 2580 summer lake road, lithia springs, ga 30122.. Avonlea At Tributary.