What Are Exemption Credits . Your company is taxed at a flat rate of 17% of its chargeable. Satisfactory / unsatisfactory (s/u) option. It is based on the. Corporate income tax (cit) rate. A credit is an amount you subtract from the tax you owe. Credits you’ve earned at other institutes may count toward your degree at digipen (singapore) through either a credits exemption or a transfer. Advanced placement credits and exemptions. Gpa for continuation and graduation. You will be eligible to receive a credit exemption of up to 50 cu distributed across three distinct course categories, namely (a) suss core. Some credits are refundable — they can give you money back even if. Credit exemption or advanced standing refers to the waiver of credits towards the completion of your current applied program. This can lower your tax payment or increase your refund.
from www.cpadavao.com
Credit exemption or advanced standing refers to the waiver of credits towards the completion of your current applied program. Satisfactory / unsatisfactory (s/u) option. You will be eligible to receive a credit exemption of up to 50 cu distributed across three distinct course categories, namely (a) suss core. Some credits are refundable — they can give you money back even if. Gpa for continuation and graduation. A credit is an amount you subtract from the tax you owe. It is based on the. Corporate income tax (cit) rate. Your company is taxed at a flat rate of 17% of its chargeable. This can lower your tax payment or increase your refund.
Process Flow of Applying for Tax Exemptions of Corporations and
What Are Exemption Credits It is based on the. This can lower your tax payment or increase your refund. Corporate income tax (cit) rate. Satisfactory / unsatisfactory (s/u) option. It is based on the. Some credits are refundable — they can give you money back even if. Credits you’ve earned at other institutes may count toward your degree at digipen (singapore) through either a credits exemption or a transfer. Advanced placement credits and exemptions. Your company is taxed at a flat rate of 17% of its chargeable. Gpa for continuation and graduation. A credit is an amount you subtract from the tax you owe. You will be eligible to receive a credit exemption of up to 50 cu distributed across three distinct course categories, namely (a) suss core. Credit exemption or advanced standing refers to the waiver of credits towards the completion of your current applied program.
From www.scribd.com
Exemption & Credits Policy Overview PDF Professional Certification What Are Exemption Credits Some credits are refundable — they can give you money back even if. Satisfactory / unsatisfactory (s/u) option. You will be eligible to receive a credit exemption of up to 50 cu distributed across three distinct course categories, namely (a) suss core. This can lower your tax payment or increase your refund. Credits you’ve earned at other institutes may count. What Are Exemption Credits.
From www.alamy.com
close up of white plastic NHS tax credit exemption certificate card What Are Exemption Credits Some credits are refundable — they can give you money back even if. It is based on the. You will be eligible to receive a credit exemption of up to 50 cu distributed across three distinct course categories, namely (a) suss core. Corporate income tax (cit) rate. Credits you’ve earned at other institutes may count toward your degree at digipen. What Are Exemption Credits.
From www.sanpatricioelectric.org
Tax Exempt Forms San Patricio Electric Cooperative What Are Exemption Credits This can lower your tax payment or increase your refund. You will be eligible to receive a credit exemption of up to 50 cu distributed across three distinct course categories, namely (a) suss core. Your company is taxed at a flat rate of 17% of its chargeable. It is based on the. Some credits are refundable — they can give. What Are Exemption Credits.
From www.exemptform.com
What Is A Tax Exemption Form What Are Exemption Credits Advanced placement credits and exemptions. A credit is an amount you subtract from the tax you owe. Some credits are refundable — they can give you money back even if. Corporate income tax (cit) rate. Credit exemption or advanced standing refers to the waiver of credits towards the completion of your current applied program. This can lower your tax payment. What Are Exemption Credits.
From www.signnow.com
Texas Fillable Tax Exemption Form Fill Out and Sign Printable PDF What Are Exemption Credits Satisfactory / unsatisfactory (s/u) option. Corporate income tax (cit) rate. You will be eligible to receive a credit exemption of up to 50 cu distributed across three distinct course categories, namely (a) suss core. Credit exemption or advanced standing refers to the waiver of credits towards the completion of your current applied program. It is based on the. Advanced placement. What Are Exemption Credits.
From www.formsbank.com
Fillable Form Rev 1220 As+ Pennsylvania Exemption Certificate What Are Exemption Credits Advanced placement credits and exemptions. Credit exemption or advanced standing refers to the waiver of credits towards the completion of your current applied program. It is based on the. Gpa for continuation and graduation. Some credits are refundable — they can give you money back even if. Corporate income tax (cit) rate. Credits you’ve earned at other institutes may count. What Are Exemption Credits.
From www.icba.org
Credit Union Tax Exemption What Are Exemption Credits Credits you’ve earned at other institutes may count toward your degree at digipen (singapore) through either a credits exemption or a transfer. Credit exemption or advanced standing refers to the waiver of credits towards the completion of your current applied program. You will be eligible to receive a credit exemption of up to 50 cu distributed across three distinct course. What Are Exemption Credits.
From www.exemptform.com
Wv Tax Exempt Form Fill Online Printable Fillable Blank PdfFiller What Are Exemption Credits Some credits are refundable — they can give you money back even if. Credit exemption or advanced standing refers to the waiver of credits towards the completion of your current applied program. Credits you’ve earned at other institutes may count toward your degree at digipen (singapore) through either a credits exemption or a transfer. A credit is an amount you. What Are Exemption Credits.
From www.signnow.com
Sample Letter Tax Exemption Complete with ease airSlate SignNow What Are Exemption Credits Some credits are refundable — they can give you money back even if. Your company is taxed at a flat rate of 17% of its chargeable. This can lower your tax payment or increase your refund. You will be eligible to receive a credit exemption of up to 50 cu distributed across three distinct course categories, namely (a) suss core.. What Are Exemption Credits.
From www.cpadavao.com
Process Flow of Applying for Tax Exemptions of Corporations and What Are Exemption Credits You will be eligible to receive a credit exemption of up to 50 cu distributed across three distinct course categories, namely (a) suss core. Credit exemption or advanced standing refers to the waiver of credits towards the completion of your current applied program. Satisfactory / unsatisfactory (s/u) option. This can lower your tax payment or increase your refund. Corporate income. What Are Exemption Credits.
From www.signnow.com
Ncua Tax Exempt Letter Complete with ease airSlate SignNow What Are Exemption Credits Credits you’ve earned at other institutes may count toward your degree at digipen (singapore) through either a credits exemption or a transfer. This can lower your tax payment or increase your refund. Satisfactory / unsatisfactory (s/u) option. You will be eligible to receive a credit exemption of up to 50 cu distributed across three distinct course categories, namely (a) suss. What Are Exemption Credits.
From medicosplexus.com
Exemption of Credit Hours for Registration by Medical Council What Are Exemption Credits Advanced placement credits and exemptions. It is based on the. Credits you’ve earned at other institutes may count toward your degree at digipen (singapore) through either a credits exemption or a transfer. Corporate income tax (cit) rate. Your company is taxed at a flat rate of 17% of its chargeable. A credit is an amount you subtract from the tax. What Are Exemption Credits.
From www.xu.edu.ph
Xavier University Tax Exemption Letter What Are Exemption Credits Advanced placement credits and exemptions. It is based on the. Satisfactory / unsatisfactory (s/u) option. This can lower your tax payment or increase your refund. Credit exemption or advanced standing refers to the waiver of credits towards the completion of your current applied program. Your company is taxed at a flat rate of 17% of its chargeable. Some credits are. What Are Exemption Credits.
From dalaguetemango.weebly.com
BIR Cert of Tax Exemption dalaguetemango What Are Exemption Credits Credits you’ve earned at other institutes may count toward your degree at digipen (singapore) through either a credits exemption or a transfer. Satisfactory / unsatisfactory (s/u) option. A credit is an amount you subtract from the tax you owe. Advanced placement credits and exemptions. It is based on the. Some credits are refundable — they can give you money back. What Are Exemption Credits.
From itrfoundation.org
Credit Versus Exemption in Homestead Property Tax Relief ITR Foundation What Are Exemption Credits Gpa for continuation and graduation. Some credits are refundable — they can give you money back even if. Your company is taxed at a flat rate of 17% of its chargeable. Credit exemption or advanced standing refers to the waiver of credits towards the completion of your current applied program. Corporate income tax (cit) rate. Advanced placement credits and exemptions.. What Are Exemption Credits.
From printablelibmario.z19.web.core.windows.net
Letter For Tax Exemption Sample What Are Exemption Credits Credits you’ve earned at other institutes may count toward your degree at digipen (singapore) through either a credits exemption or a transfer. It is based on the. A credit is an amount you subtract from the tax you owe. Satisfactory / unsatisfactory (s/u) option. Your company is taxed at a flat rate of 17% of its chargeable. This can lower. What Are Exemption Credits.
From www.wallstreetmojo.com
Tax Exempt Meaning, Examples, Organizations, How it Works What Are Exemption Credits Your company is taxed at a flat rate of 17% of its chargeable. Credits you’ve earned at other institutes may count toward your degree at digipen (singapore) through either a credits exemption or a transfer. A credit is an amount you subtract from the tax you owe. Some credits are refundable — they can give you money back even if.. What Are Exemption Credits.
From worksheetlistita.z19.web.core.windows.net
What Do Personal Exemptions Mean In Maryland What Are Exemption Credits This can lower your tax payment or increase your refund. Your company is taxed at a flat rate of 17% of its chargeable. Advanced placement credits and exemptions. Credits you’ve earned at other institutes may count toward your degree at digipen (singapore) through either a credits exemption or a transfer. Some credits are refundable — they can give you money. What Are Exemption Credits.
From www.cpajournal.com
Tax Implications (and Rewards) of Grandparents Taking Care of What Are Exemption Credits You will be eligible to receive a credit exemption of up to 50 cu distributed across three distinct course categories, namely (a) suss core. Advanced placement credits and exemptions. A credit is an amount you subtract from the tax you owe. Credits you’ve earned at other institutes may count toward your degree at digipen (singapore) through either a credits exemption. What Are Exemption Credits.
From www.signnow.com
Iowa Sales Tax Exemption Certificate Fillable Form Fill Out and Sign What Are Exemption Credits Credits you’ve earned at other institutes may count toward your degree at digipen (singapore) through either a credits exemption or a transfer. Some credits are refundable — they can give you money back even if. This can lower your tax payment or increase your refund. Gpa for continuation and graduation. It is based on the. Credit exemption or advanced standing. What Are Exemption Credits.
From www.alamy.com
UK NHS Tax Credit exemption certificate card Stock Photo Alamy What Are Exemption Credits Advanced placement credits and exemptions. Your company is taxed at a flat rate of 17% of its chargeable. Gpa for continuation and graduation. Some credits are refundable — they can give you money back even if. Credit exemption or advanced standing refers to the waiver of credits towards the completion of your current applied program. Corporate income tax (cit) rate.. What Are Exemption Credits.
From www.fivemilehouse.org
Illinois Tax Exempt Certificate — Five Mile House What Are Exemption Credits Satisfactory / unsatisfactory (s/u) option. This can lower your tax payment or increase your refund. Corporate income tax (cit) rate. Advanced placement credits and exemptions. Your company is taxed at a flat rate of 17% of its chargeable. It is based on the. Some credits are refundable — they can give you money back even if. Credits you’ve earned at. What Are Exemption Credits.
From www.certificateof.com
2017PAFPICertificateofTAXExemption Certificate Of What Are Exemption Credits Satisfactory / unsatisfactory (s/u) option. Credit exemption or advanced standing refers to the waiver of credits towards the completion of your current applied program. It is based on the. A credit is an amount you subtract from the tax you owe. Advanced placement credits and exemptions. Some credits are refundable — they can give you money back even if. You. What Are Exemption Credits.
From mmccu.com
The Benefits of Credit Unions Being Tax Exempt Marshfield Medical What Are Exemption Credits It is based on the. Some credits are refundable — they can give you money back even if. Gpa for continuation and graduation. Advanced placement credits and exemptions. A credit is an amount you subtract from the tax you owe. Corporate income tax (cit) rate. Your company is taxed at a flat rate of 17% of its chargeable. Credit exemption. What Are Exemption Credits.
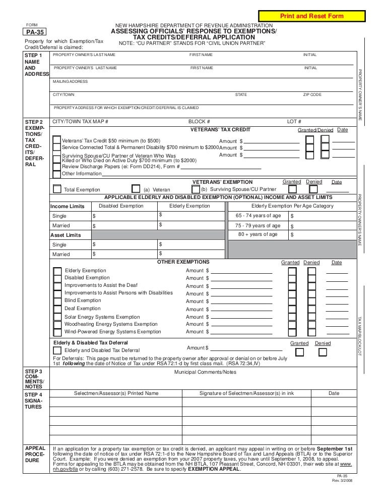
From www.slideshare.net
Assessing Officials Response to Exemption/Tax Credits/Deferral App… What Are Exemption Credits It is based on the. You will be eligible to receive a credit exemption of up to 50 cu distributed across three distinct course categories, namely (a) suss core. Gpa for continuation and graduation. Corporate income tax (cit) rate. Advanced placement credits and exemptions. A credit is an amount you subtract from the tax you owe. This can lower your. What Are Exemption Credits.
From www.dochub.com
Claim of exemption wage garnishment florida form Fill out & sign What Are Exemption Credits Some credits are refundable — they can give you money back even if. Credits you’ve earned at other institutes may count toward your degree at digipen (singapore) through either a credits exemption or a transfer. Credit exemption or advanced standing refers to the waiver of credits towards the completion of your current applied program. A credit is an amount you. What Are Exemption Credits.
From www.exemptform.com
Mi State Tax Exemption Form What Are Exemption Credits Corporate income tax (cit) rate. Gpa for continuation and graduation. Credit exemption or advanced standing refers to the waiver of credits towards the completion of your current applied program. This can lower your tax payment or increase your refund. Some credits are refundable — they can give you money back even if. Credits you’ve earned at other institutes may count. What Are Exemption Credits.
From economictimes.indiatimes.com
Difference between tax exemption, tax deduction and tax rebate The What Are Exemption Credits A credit is an amount you subtract from the tax you owe. It is based on the. Advanced placement credits and exemptions. Corporate income tax (cit) rate. Credit exemption or advanced standing refers to the waiver of credits towards the completion of your current applied program. Satisfactory / unsatisfactory (s/u) option. You will be eligible to receive a credit exemption. What Are Exemption Credits.
From ekdoseispelasgos.blogspot.com
Exemption Letter Template Master Template What Are Exemption Credits Gpa for continuation and graduation. Credits you’ve earned at other institutes may count toward your degree at digipen (singapore) through either a credits exemption or a transfer. Credit exemption or advanced standing refers to the waiver of credits towards the completion of your current applied program. Satisfactory / unsatisfactory (s/u) option. Some credits are refundable — they can give you. What Are Exemption Credits.
From www.carpentertaxaccounting.com
Credits vs. Deductions Carpenter Tax and Accounting What Are Exemption Credits Credits you’ve earned at other institutes may count toward your degree at digipen (singapore) through either a credits exemption or a transfer. Advanced placement credits and exemptions. Credit exemption or advanced standing refers to the waiver of credits towards the completion of your current applied program. It is based on the. A credit is an amount you subtract from the. What Are Exemption Credits.
From www.alamy.com
NHS Tax Credit Exemption Certificate / Card (on top of cash money Stock What Are Exemption Credits Credit exemption or advanced standing refers to the waiver of credits towards the completion of your current applied program. Satisfactory / unsatisfactory (s/u) option. A credit is an amount you subtract from the tax you owe. Gpa for continuation and graduation. Advanced placement credits and exemptions. Credits you’ve earned at other institutes may count toward your degree at digipen (singapore). What Are Exemption Credits.
From pwfpakistan.org
Tax Exemption Certificate PWF Pakistan What Are Exemption Credits This can lower your tax payment or increase your refund. It is based on the. Gpa for continuation and graduation. Credit exemption or advanced standing refers to the waiver of credits towards the completion of your current applied program. Satisfactory / unsatisfactory (s/u) option. You will be eligible to receive a credit exemption of up to 50 cu distributed across. What Are Exemption Credits.
From www.ebma.org.uk
Exemption / Equivalent / Credit Transfer Claim per Unit EBMA Shop What Are Exemption Credits Credits you’ve earned at other institutes may count toward your degree at digipen (singapore) through either a credits exemption or a transfer. Corporate income tax (cit) rate. This can lower your tax payment or increase your refund. Satisfactory / unsatisfactory (s/u) option. Gpa for continuation and graduation. You will be eligible to receive a credit exemption of up to 50. What Are Exemption Credits.
From gobrentrealty.com
Montgomery Co Tax Bills Are Coming Are You Receiving the Homestead What Are Exemption Credits Gpa for continuation and graduation. Satisfactory / unsatisfactory (s/u) option. Advanced placement credits and exemptions. Credits you’ve earned at other institutes may count toward your degree at digipen (singapore) through either a credits exemption or a transfer. Corporate income tax (cit) rate. Your company is taxed at a flat rate of 17% of its chargeable. This can lower your tax. What Are Exemption Credits.
From www.energy.gov
Federal Solar Tax Credits for Businesses Department of Energy What Are Exemption Credits You will be eligible to receive a credit exemption of up to 50 cu distributed across three distinct course categories, namely (a) suss core. Your company is taxed at a flat rate of 17% of its chargeable. A credit is an amount you subtract from the tax you owe. Gpa for continuation and graduation. This can lower your tax payment. What Are Exemption Credits.