Preventive Maintenance Checklist For Substation . The first one deals with preventative maintenance of substation equipment and protective switchgears. Define and discuss in advance the maintenance to be performed and the relative hazards. Performing these tasks helps prevent failure and keeps circuit breakers safe, reliable, and fully functional. There’s no one answer to a perfect substation maintenance schedule. Today we’ll be using our industry and utility experience, but your. This template applies to activities. Download this free electrical substation maintenance inspection checklist to complete regular inspections of your substations and conduct preventive maintenance to. Ensure that it is in deenergized/degassed condition. There is not only one answer to a perfect substation maintenance schedule. Second part deals with preventative maintenance of transmission lines. Use parts only supplied by original equipment manufacturers (oem). It is necessary to identify the equipment which is required to be maintained. Today we’ll be using our industry and utility experience, but. Substation maintenance inspections include testing, repairing and replacing vital substation equipment and schedule impending. This handbook consists of two parts.
from www.scribd.com
There is not only one answer to a perfect substation maintenance schedule. Performing these tasks helps prevent failure and keeps circuit breakers safe, reliable, and fully functional. Today we’ll be using our industry and utility experience, but your. Define and discuss in advance the maintenance to be performed and the relative hazards. Ensure that it is in deenergized/degassed condition. The first one deals with preventative maintenance of substation equipment and protective switchgears. Proper formatted record sheets to be prepared. It is necessary to identify the equipment which is required to be maintained. Second part deals with preventative maintenance of transmission lines. Today we’ll be using our industry and utility experience, but.
Substation Inspection Checklist Power Engineering Components
Preventive Maintenance Checklist For Substation This handbook consists of two parts. This handbook consists of two parts. Substation maintenance inspections include testing, repairing and replacing vital substation equipment and schedule impending. Today we’ll be using our industry and utility experience, but your. Define and discuss in advance the maintenance to be performed and the relative hazards. It is necessary to identify the equipment which is required to be maintained. Today we’ll be using our industry and utility experience, but. Proper formatted record sheets to be prepared. Download this free electrical substation maintenance inspection checklist to complete regular inspections of your substations and conduct preventive maintenance to. Use parts only supplied by original equipment manufacturers (oem). The first one deals with preventative maintenance of substation equipment and protective switchgears. Performing these tasks helps prevent failure and keeps circuit breakers safe, reliable, and fully functional. Second part deals with preventative maintenance of transmission lines. There’s no one answer to a perfect substation maintenance schedule. There is not only one answer to a perfect substation maintenance schedule. This template applies to activities.
From www.scribd.com
Preventative Maintenance Checklists Switch Electrical Substation Preventive Maintenance Checklist For Substation Download this free electrical substation maintenance inspection checklist to complete regular inspections of your substations and conduct preventive maintenance to. The first one deals with preventative maintenance of substation equipment and protective switchgears. This template applies to activities. Define and discuss in advance the maintenance to be performed and the relative hazards. Use parts only supplied by original equipment manufacturers. Preventive Maintenance Checklist For Substation.
From www.scribd.com
Substation Inspection List Capacitor Electrical Substation Preventive Maintenance Checklist For Substation Performing these tasks helps prevent failure and keeps circuit breakers safe, reliable, and fully functional. Second part deals with preventative maintenance of transmission lines. There is not only one answer to a perfect substation maintenance schedule. Define and discuss in advance the maintenance to be performed and the relative hazards. Proper formatted record sheets to be prepared. Today we’ll be. Preventive Maintenance Checklist For Substation.
From www.studocu.com
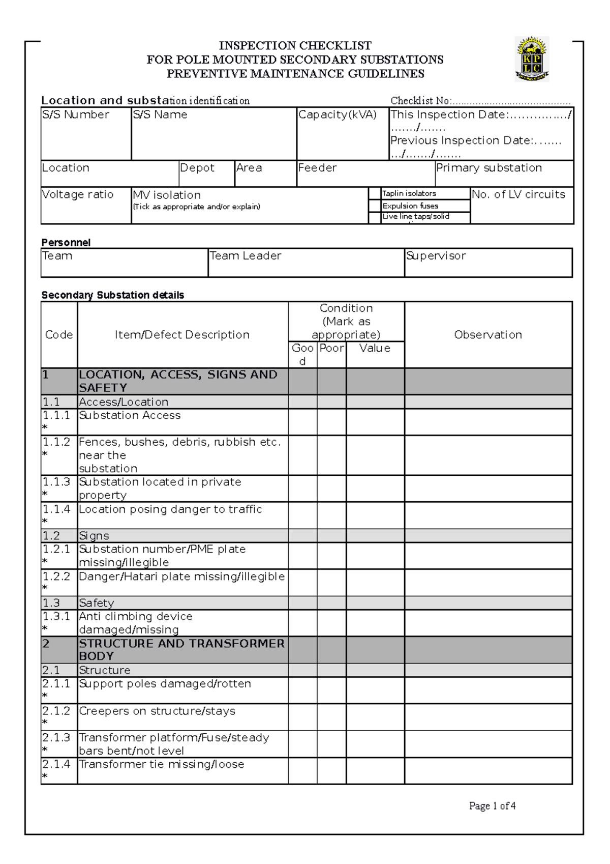
Pole Mounted Checklist FOR POLE MOUNTED SECONDARY SUBSTATIONS Preventive Maintenance Checklist For Substation This template applies to activities. Today we’ll be using our industry and utility experience, but. Substation maintenance inspections include testing, repairing and replacing vital substation equipment and schedule impending. Proper formatted record sheets to be prepared. Today we’ll be using our industry and utility experience, but your. Ensure that it is in deenergized/degassed condition. It is necessary to identify the. Preventive Maintenance Checklist For Substation.
From www.checklist.templateral.com
√ Free Printable Equipment Preventive Maintenance Checklist Template Preventive Maintenance Checklist For Substation Proper formatted record sheets to be prepared. Download this free electrical substation maintenance inspection checklist to complete regular inspections of your substations and conduct preventive maintenance to. There’s no one answer to a perfect substation maintenance schedule. Today we’ll be using our industry and utility experience, but. Today we’ll be using our industry and utility experience, but your. Define and. Preventive Maintenance Checklist For Substation.
From www.scribd.com
Substation Inspection Checklist Power Engineering Components Preventive Maintenance Checklist For Substation Download this free electrical substation maintenance inspection checklist to complete regular inspections of your substations and conduct preventive maintenance to. Use parts only supplied by original equipment manufacturers (oem). Performing these tasks helps prevent failure and keeps circuit breakers safe, reliable, and fully functional. There’s no one answer to a perfect substation maintenance schedule. Today we’ll be using our industry. Preventive Maintenance Checklist For Substation.
From www.examples.com
Maintenance Checklist 25+ Examples, Format, Pdf Preventive Maintenance Checklist For Substation Performing these tasks helps prevent failure and keeps circuit breakers safe, reliable, and fully functional. Second part deals with preventative maintenance of transmission lines. Use parts only supplied by original equipment manufacturers (oem). There’s no one answer to a perfect substation maintenance schedule. There is not only one answer to a perfect substation maintenance schedule. Today we’ll be using our. Preventive Maintenance Checklist For Substation.
From extremesportnnews.blogspot.com
Building And Property Preventative Maintenance Schedule Preventive Preventive Maintenance Checklist For Substation The first one deals with preventative maintenance of substation equipment and protective switchgears. This template applies to activities. Ensure that it is in deenergized/degassed condition. This handbook consists of two parts. Today we’ll be using our industry and utility experience, but your. There’s no one answer to a perfect substation maintenance schedule. Substation maintenance inspections include testing, repairing and replacing. Preventive Maintenance Checklist For Substation.
From www.scribd.com
Electrical Substation Maintenance Inspection Checklist PDF Preventive Maintenance Checklist For Substation Define and discuss in advance the maintenance to be performed and the relative hazards. Second part deals with preventative maintenance of transmission lines. Today we’ll be using our industry and utility experience, but. Today we’ll be using our industry and utility experience, but your. It is necessary to identify the equipment which is required to be maintained. This template applies. Preventive Maintenance Checklist For Substation.
From facilio.com
7 Steps to Building a Preventive Maintenance Checklist (With Free Preventive Maintenance Checklist For Substation Define and discuss in advance the maintenance to be performed and the relative hazards. Today we’ll be using our industry and utility experience, but. It is necessary to identify the equipment which is required to be maintained. This handbook consists of two parts. Today we’ll be using our industry and utility experience, but your. Download this free electrical substation maintenance. Preventive Maintenance Checklist For Substation.
From www.artofit.org
9 checklist preventive maintenance Artofit Preventive Maintenance Checklist For Substation Today we’ll be using our industry and utility experience, but your. Download this free electrical substation maintenance inspection checklist to complete regular inspections of your substations and conduct preventive maintenance to. Ensure that it is in deenergized/degassed condition. Use parts only supplied by original equipment manufacturers (oem). Substation maintenance inspections include testing, repairing and replacing vital substation equipment and schedule. Preventive Maintenance Checklist For Substation.
From www.studocu.com
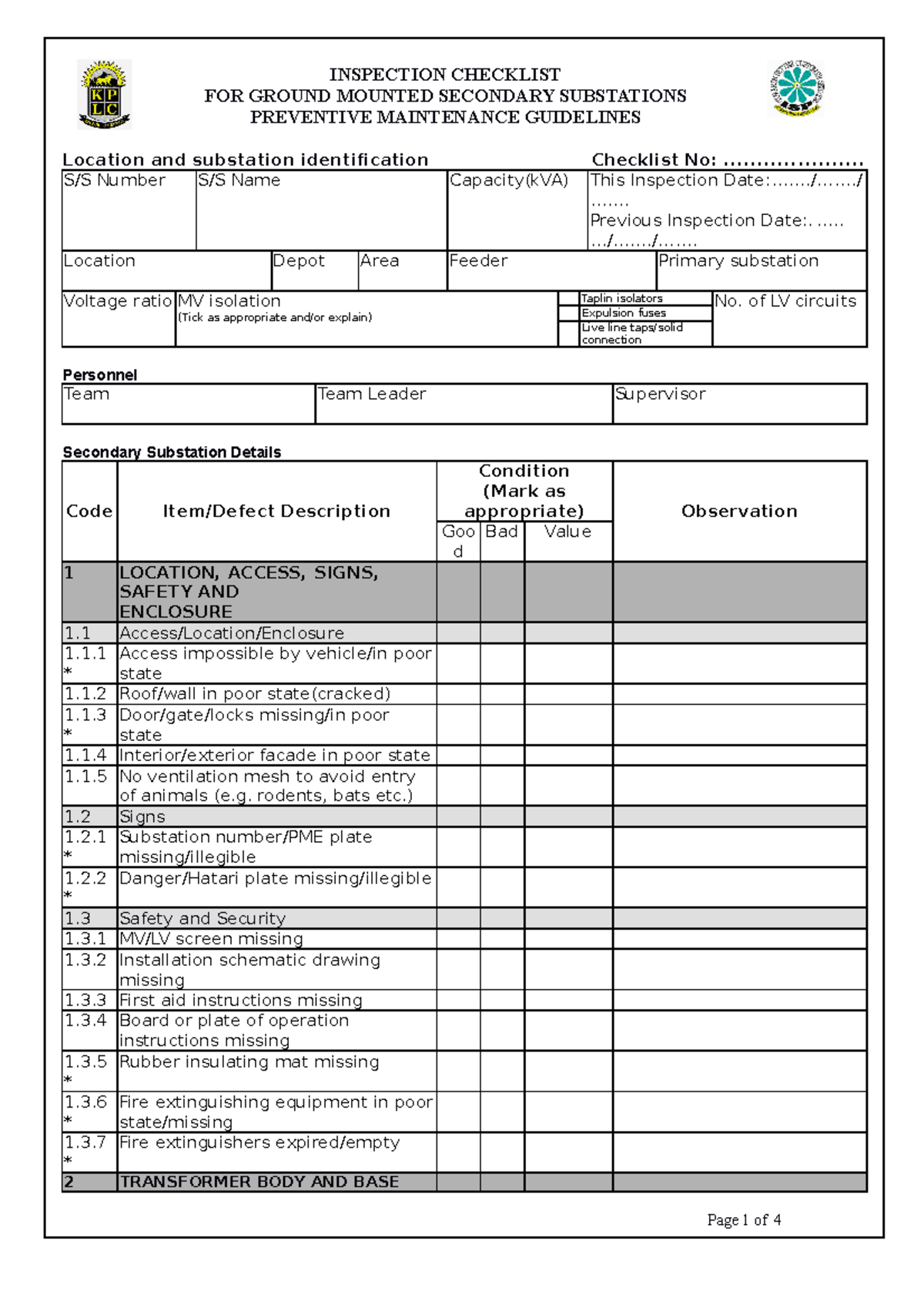
Ground Mounted Checklist FOR GROUND MOUNTED SECONDARY SUBSTATIONS Preventive Maintenance Checklist For Substation Today we’ll be using our industry and utility experience, but. This template applies to activities. Performing these tasks helps prevent failure and keeps circuit breakers safe, reliable, and fully functional. There is not only one answer to a perfect substation maintenance schedule. The first one deals with preventative maintenance of substation equipment and protective switchgears. There’s no one answer to. Preventive Maintenance Checklist For Substation.
From www.scribd.com
Checklist for Substation Preventive Maintenance Checklist For Substation There’s no one answer to a perfect substation maintenance schedule. There is not only one answer to a perfect substation maintenance schedule. Second part deals with preventative maintenance of transmission lines. Performing these tasks helps prevent failure and keeps circuit breakers safe, reliable, and fully functional. Today we’ll be using our industry and utility experience, but your. Download this free. Preventive Maintenance Checklist For Substation.
From www.templateegg.com
Free Preventive Maintenance Checklist Template Preventive Maintenance Checklist For Substation Second part deals with preventative maintenance of transmission lines. Today we’ll be using our industry and utility experience, but. This template applies to activities. Proper formatted record sheets to be prepared. The first one deals with preventative maintenance of substation equipment and protective switchgears. There is not only one answer to a perfect substation maintenance schedule. Substation maintenance inspections include. Preventive Maintenance Checklist For Substation.
From www.researchgate.net
Example checklist for MV/LV substation Download Table Preventive Maintenance Checklist For Substation Ensure that it is in deenergized/degassed condition. Proper formatted record sheets to be prepared. Today we’ll be using our industry and utility experience, but your. It is necessary to identify the equipment which is required to be maintained. Today we’ll be using our industry and utility experience, but. There’s no one answer to a perfect substation maintenance schedule. Use parts. Preventive Maintenance Checklist For Substation.
From www.scribd.com
PreCheck List for Substation/Electrical Room Readiness Date of Preventive Maintenance Checklist For Substation Substation maintenance inspections include testing, repairing and replacing vital substation equipment and schedule impending. Ensure that it is in deenergized/degassed condition. There is not only one answer to a perfect substation maintenance schedule. Define and discuss in advance the maintenance to be performed and the relative hazards. This handbook consists of two parts. There’s no one answer to a perfect. Preventive Maintenance Checklist For Substation.
From www.sampletemplatess.com
6 Preventive Maintenance Checklist Template SampleTemplatess Preventive Maintenance Checklist For Substation Second part deals with preventative maintenance of transmission lines. The first one deals with preventative maintenance of substation equipment and protective switchgears. This template applies to activities. There is not only one answer to a perfect substation maintenance schedule. This handbook consists of two parts. Define and discuss in advance the maintenance to be performed and the relative hazards. Ensure. Preventive Maintenance Checklist For Substation.
From sitemate.com
Checklist for Preventive Maintenance Template and Format Preventive Maintenance Checklist For Substation Download this free electrical substation maintenance inspection checklist to complete regular inspections of your substations and conduct preventive maintenance to. There is not only one answer to a perfect substation maintenance schedule. It is necessary to identify the equipment which is required to be maintained. There’s no one answer to a perfect substation maintenance schedule. This handbook consists of two. Preventive Maintenance Checklist For Substation.
From www.sampleschedule.com
20+ Free Preventive Maintenance Schedule Template (Excel, Word & PDF Preventive Maintenance Checklist For Substation Ensure that it is in deenergized/degassed condition. There’s no one answer to a perfect substation maintenance schedule. Second part deals with preventative maintenance of transmission lines. There is not only one answer to a perfect substation maintenance schedule. Performing these tasks helps prevent failure and keeps circuit breakers safe, reliable, and fully functional. This handbook consists of two parts. Use. Preventive Maintenance Checklist For Substation.
From 60hertzenergy.com
Substation Preventative Maintenance Best Practices 60 Hertz Energy Preventive Maintenance Checklist For Substation Download this free electrical substation maintenance inspection checklist to complete regular inspections of your substations and conduct preventive maintenance to. This template applies to activities. Define and discuss in advance the maintenance to be performed and the relative hazards. Second part deals with preventative maintenance of transmission lines. Today we’ll be using our industry and utility experience, but. Use parts. Preventive Maintenance Checklist For Substation.
From www.maitzhomeservices.com
Electrical Preventive Maintenance Checklist 2023 Preventive Maintenance Checklist For Substation Today we’ll be using our industry and utility experience, but your. Substation maintenance inspections include testing, repairing and replacing vital substation equipment and schedule impending. Define and discuss in advance the maintenance to be performed and the relative hazards. Second part deals with preventative maintenance of transmission lines. This template applies to activities. Ensure that it is in deenergized/degassed condition.. Preventive Maintenance Checklist For Substation.
From www.sampletemplates.com
FREE 25+ Maintenance Checklist Samples & Templates in MS Word PDF Preventive Maintenance Checklist For Substation The first one deals with preventative maintenance of substation equipment and protective switchgears. Use parts only supplied by original equipment manufacturers (oem). It is necessary to identify the equipment which is required to be maintained. Substation maintenance inspections include testing, repairing and replacing vital substation equipment and schedule impending. Second part deals with preventative maintenance of transmission lines. There is. Preventive Maintenance Checklist For Substation.
From printabletemplate.concejomunicipaldechinu.gov.co
Free Preventive Maintenance Checklist Template Excel Preventive Maintenance Checklist For Substation Substation maintenance inspections include testing, repairing and replacing vital substation equipment and schedule impending. Use parts only supplied by original equipment manufacturers (oem). Today we’ll be using our industry and utility experience, but. The first one deals with preventative maintenance of substation equipment and protective switchgears. Today we’ll be using our industry and utility experience, but your. It is necessary. Preventive Maintenance Checklist For Substation.
From www.scribd.com
Preventive Maintenance Checklist Template Excel PDF Plumbing Leak Preventive Maintenance Checklist For Substation Performing these tasks helps prevent failure and keeps circuit breakers safe, reliable, and fully functional. Use parts only supplied by original equipment manufacturers (oem). Today we’ll be using our industry and utility experience, but your. This handbook consists of two parts. This template applies to activities. Substation maintenance inspections include testing, repairing and replacing vital substation equipment and schedule impending.. Preventive Maintenance Checklist For Substation.
From www.academia.edu
(PDF) Substation Preventive Maintenance Manual Prepared By Preventive Maintenance Checklist For Substation It is necessary to identify the equipment which is required to be maintained. Performing these tasks helps prevent failure and keeps circuit breakers safe, reliable, and fully functional. Use parts only supplied by original equipment manufacturers (oem). Substation maintenance inspections include testing, repairing and replacing vital substation equipment and schedule impending. There’s no one answer to a perfect substation maintenance. Preventive Maintenance Checklist For Substation.
From www.slideshare.net
ELECTRICAL INSTALLATIONS INSPECTION CHECKLIST Form HSEQ EIIC Rev 7.docx Preventive Maintenance Checklist For Substation Download this free electrical substation maintenance inspection checklist to complete regular inspections of your substations and conduct preventive maintenance to. Proper formatted record sheets to be prepared. Today we’ll be using our industry and utility experience, but. This template applies to activities. There’s no one answer to a perfect substation maintenance schedule. It is necessary to identify the equipment which. Preventive Maintenance Checklist For Substation.
From blog.fleetx.io
Checklist for creating an effective preventive maintenance Preventive Maintenance Checklist For Substation Ensure that it is in deenergized/degassed condition. Today we’ll be using our industry and utility experience, but your. Performing these tasks helps prevent failure and keeps circuit breakers safe, reliable, and fully functional. Download this free electrical substation maintenance inspection checklist to complete regular inspections of your substations and conduct preventive maintenance to. Substation maintenance inspections include testing, repairing and. Preventive Maintenance Checklist For Substation.
From www.checklist.templateral.com
√ Free Printable Preventive Maintenance Checklist Template Checklist Preventive Maintenance Checklist For Substation The first one deals with preventative maintenance of substation equipment and protective switchgears. Download this free electrical substation maintenance inspection checklist to complete regular inspections of your substations and conduct preventive maintenance to. Second part deals with preventative maintenance of transmission lines. Substation maintenance inspections include testing, repairing and replacing vital substation equipment and schedule impending. Performing these tasks helps. Preventive Maintenance Checklist For Substation.
From www.wordstemplatespro.com
3 Free Facility Maintenance Checklist Templates Word Excel Formats Preventive Maintenance Checklist For Substation It is necessary to identify the equipment which is required to be maintained. Download this free electrical substation maintenance inspection checklist to complete regular inspections of your substations and conduct preventive maintenance to. Ensure that it is in deenergized/degassed condition. There’s no one answer to a perfect substation maintenance schedule. Proper formatted record sheets to be prepared. This handbook consists. Preventive Maintenance Checklist For Substation.
From www.scribd.com
Checklist For Working in Substations or Vicinity of Energized Panels1 Preventive Maintenance Checklist For Substation The first one deals with preventative maintenance of substation equipment and protective switchgears. Ensure that it is in deenergized/degassed condition. Today we’ll be using our industry and utility experience, but. There’s no one answer to a perfect substation maintenance schedule. This template applies to activities. Second part deals with preventative maintenance of transmission lines. Use parts only supplied by original. Preventive Maintenance Checklist For Substation.
From www.tasklist-template.com
Preventive Maintenance Schedule Template Excel task list templates Preventive Maintenance Checklist For Substation Proper formatted record sheets to be prepared. Define and discuss in advance the maintenance to be performed and the relative hazards. Second part deals with preventative maintenance of transmission lines. Download this free electrical substation maintenance inspection checklist to complete regular inspections of your substations and conduct preventive maintenance to. This template applies to activities. Performing these tasks helps prevent. Preventive Maintenance Checklist For Substation.
From www.template.net
40+ Preventive Maintenance Schedule Templates Word, Excel, PDF Free Preventive Maintenance Checklist For Substation It is necessary to identify the equipment which is required to be maintained. There is not only one answer to a perfect substation maintenance schedule. There’s no one answer to a perfect substation maintenance schedule. Proper formatted record sheets to be prepared. This template applies to activities. The first one deals with preventative maintenance of substation equipment and protective switchgears.. Preventive Maintenance Checklist For Substation.
From www.printablesample.com
Preventive_Maintenance_checklist 10 Printable Samples Preventive Maintenance Checklist For Substation Today we’ll be using our industry and utility experience, but your. Define and discuss in advance the maintenance to be performed and the relative hazards. This template applies to activities. Substation maintenance inspections include testing, repairing and replacing vital substation equipment and schedule impending. Use parts only supplied by original equipment manufacturers (oem). Second part deals with preventative maintenance of. Preventive Maintenance Checklist For Substation.
From www.checklist.templateral.com
√ Free Printable Preventive Maintenance Checklist Template Checklist Preventive Maintenance Checklist For Substation Ensure that it is in deenergized/degassed condition. Today we’ll be using our industry and utility experience, but your. Use parts only supplied by original equipment manufacturers (oem). Second part deals with preventative maintenance of transmission lines. It is necessary to identify the equipment which is required to be maintained. The first one deals with preventative maintenance of substation equipment and. Preventive Maintenance Checklist For Substation.
From www.templateegg.com
Preventive Maintenance Checklist Template Preventive Maintenance Checklist For Substation There is not only one answer to a perfect substation maintenance schedule. Download this free electrical substation maintenance inspection checklist to complete regular inspections of your substations and conduct preventive maintenance to. It is necessary to identify the equipment which is required to be maintained. This handbook consists of two parts. Second part deals with preventative maintenance of transmission lines.. Preventive Maintenance Checklist For Substation.
From www.bestcollections.org
12+ Free Maintenance Checklist Templates & Examples (Excel / Word / PDF Preventive Maintenance Checklist For Substation Download this free electrical substation maintenance inspection checklist to complete regular inspections of your substations and conduct preventive maintenance to. Ensure that it is in deenergized/degassed condition. Today we’ll be using our industry and utility experience, but. It is necessary to identify the equipment which is required to be maintained. Proper formatted record sheets to be prepared. Second part deals. Preventive Maintenance Checklist For Substation.