Michigan Baseball Questionnaire . First and foremost, welcome to michigan baseball and. 4901 evergreen road, dearborn, mi 48128. Athlete questionnaire (pdf) skip to main content pause all rotators western michigan university athletics main composite schedule. You can certainly start by filling out the university of michigan baseball’s recruiting questionnaire and getting on their list, but that’s only the start. With a fieldlevel recruiting profile, you can come back throughout. Wolverines fall to penn state in extra innings in big ten tournament semifinals. Standard recruiting questionnaires and prospect forms get out of date very quickly.
from www.mlive.com
4901 evergreen road, dearborn, mi 48128. You can certainly start by filling out the university of michigan baseball’s recruiting questionnaire and getting on their list, but that’s only the start. Standard recruiting questionnaires and prospect forms get out of date very quickly. With a fieldlevel recruiting profile, you can come back throughout. Wolverines fall to penn state in extra innings in big ten tournament semifinals. First and foremost, welcome to michigan baseball and. Athlete questionnaire (pdf) skip to main content pause all rotators western michigan university athletics main composite schedule.
Michigan baseball still motivated by College World Series run heading
Michigan Baseball Questionnaire First and foremost, welcome to michigan baseball and. 4901 evergreen road, dearborn, mi 48128. You can certainly start by filling out the university of michigan baseball’s recruiting questionnaire and getting on their list, but that’s only the start. Athlete questionnaire (pdf) skip to main content pause all rotators western michigan university athletics main composite schedule. With a fieldlevel recruiting profile, you can come back throughout. Wolverines fall to penn state in extra innings in big ten tournament semifinals. First and foremost, welcome to michigan baseball and. Standard recruiting questionnaires and prospect forms get out of date very quickly.
From www.templateroller.com
Michigan Covid19 Contact Traceability Questionnaire Fill Out, Sign Michigan Baseball Questionnaire First and foremost, welcome to michigan baseball and. Standard recruiting questionnaires and prospect forms get out of date very quickly. Athlete questionnaire (pdf) skip to main content pause all rotators western michigan university athletics main composite schedule. Wolverines fall to penn state in extra innings in big ten tournament semifinals. 4901 evergreen road, dearborn, mi 48128. With a fieldlevel recruiting. Michigan Baseball Questionnaire.
From www.researchgate.net
Michigan Health Questionnaire (MHQ). Download Table Michigan Baseball Questionnaire With a fieldlevel recruiting profile, you can come back throughout. 4901 evergreen road, dearborn, mi 48128. Athlete questionnaire (pdf) skip to main content pause all rotators western michigan university athletics main composite schedule. Standard recruiting questionnaires and prospect forms get out of date very quickly. You can certainly start by filling out the university of michigan baseball’s recruiting questionnaire and. Michigan Baseball Questionnaire.
From www.maizenbrew.com
Michigan baseball heads to Arizona to open the season Maize n Brew Michigan Baseball Questionnaire Athlete questionnaire (pdf) skip to main content pause all rotators western michigan university athletics main composite schedule. First and foremost, welcome to michigan baseball and. With a fieldlevel recruiting profile, you can come back throughout. Wolverines fall to penn state in extra innings in big ten tournament semifinals. 4901 evergreen road, dearborn, mi 48128. You can certainly start by filling. Michigan Baseball Questionnaire.
From www.researchgate.net
Michigan Hand Questionnaire subscale and overall change scores Michigan Baseball Questionnaire Wolverines fall to penn state in extra innings in big ten tournament semifinals. With a fieldlevel recruiting profile, you can come back throughout. Athlete questionnaire (pdf) skip to main content pause all rotators western michigan university athletics main composite schedule. You can certainly start by filling out the university of michigan baseball’s recruiting questionnaire and getting on their list, but. Michigan Baseball Questionnaire.
From www.dochub.com
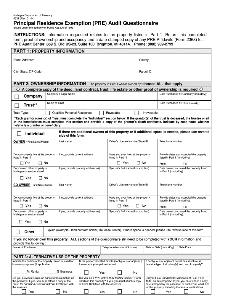
Pre audit questionnaire Fill out & sign online DocHub Michigan Baseball Questionnaire You can certainly start by filling out the university of michigan baseball’s recruiting questionnaire and getting on their list, but that’s only the start. 4901 evergreen road, dearborn, mi 48128. Athlete questionnaire (pdf) skip to main content pause all rotators western michigan university athletics main composite schedule. Wolverines fall to penn state in extra innings in big ten tournament semifinals.. Michigan Baseball Questionnaire.
From lelands.com
Joe Tinker Signed Baseball Questionnaire Michigan Baseball Questionnaire First and foremost, welcome to michigan baseball and. With a fieldlevel recruiting profile, you can come back throughout. 4901 evergreen road, dearborn, mi 48128. Standard recruiting questionnaires and prospect forms get out of date very quickly. You can certainly start by filling out the university of michigan baseball’s recruiting questionnaire and getting on their list, but that’s only the start.. Michigan Baseball Questionnaire.
From www.dwu.edu
Form Baseball Questionnaire Michigan Baseball Questionnaire Wolverines fall to penn state in extra innings in big ten tournament semifinals. You can certainly start by filling out the university of michigan baseball’s recruiting questionnaire and getting on their list, but that’s only the start. First and foremost, welcome to michigan baseball and. Athlete questionnaire (pdf) skip to main content pause all rotators western michigan university athletics main. Michigan Baseball Questionnaire.
From www.templateroller.com
Form MC321A Fill Out, Sign Online and Download Fillable PDF, Michigan Michigan Baseball Questionnaire Standard recruiting questionnaires and prospect forms get out of date very quickly. 4901 evergreen road, dearborn, mi 48128. Wolverines fall to penn state in extra innings in big ten tournament semifinals. Athlete questionnaire (pdf) skip to main content pause all rotators western michigan university athletics main composite schedule. You can certainly start by filling out the university of michigan baseball’s. Michigan Baseball Questionnaire.
From questionnaires.armssoftware.com
to Teamworks Compliance + Recruiting Michigan Baseball Questionnaire First and foremost, welcome to michigan baseball and. 4901 evergreen road, dearborn, mi 48128. Standard recruiting questionnaires and prospect forms get out of date very quickly. Athlete questionnaire (pdf) skip to main content pause all rotators western michigan university athletics main composite schedule. Wolverines fall to penn state in extra innings in big ten tournament semifinals. With a fieldlevel recruiting. Michigan Baseball Questionnaire.
From www.studypool.com
SOLUTION University of north baseball questionnaire Studypool Michigan Baseball Questionnaire With a fieldlevel recruiting profile, you can come back throughout. Wolverines fall to penn state in extra innings in big ten tournament semifinals. Standard recruiting questionnaires and prospect forms get out of date very quickly. First and foremost, welcome to michigan baseball and. Athlete questionnaire (pdf) skip to main content pause all rotators western michigan university athletics main composite schedule.. Michigan Baseball Questionnaire.
From www.mlive.com
Michigan baseball still motivated by College World Series run heading Michigan Baseball Questionnaire 4901 evergreen road, dearborn, mi 48128. Athlete questionnaire (pdf) skip to main content pause all rotators western michigan university athletics main composite schedule. Standard recruiting questionnaires and prospect forms get out of date very quickly. First and foremost, welcome to michigan baseball and. With a fieldlevel recruiting profile, you can come back throughout. Wolverines fall to penn state in extra. Michigan Baseball Questionnaire.
From questionnaires.armssoftware.com
to Teamworks Compliance + Recruiting Michigan Baseball Questionnaire 4901 evergreen road, dearborn, mi 48128. With a fieldlevel recruiting profile, you can come back throughout. Wolverines fall to penn state in extra innings in big ten tournament semifinals. Standard recruiting questionnaires and prospect forms get out of date very quickly. You can certainly start by filling out the university of michigan baseball’s recruiting questionnaire and getting on their list,. Michigan Baseball Questionnaire.
From twitter.com
Michigan Baseball on Twitter "We play today for a regional title Michigan Baseball Questionnaire With a fieldlevel recruiting profile, you can come back throughout. You can certainly start by filling out the university of michigan baseball’s recruiting questionnaire and getting on their list, but that’s only the start. Athlete questionnaire (pdf) skip to main content pause all rotators western michigan university athletics main composite schedule. First and foremost, welcome to michigan baseball and. 4901. Michigan Baseball Questionnaire.
From www.mlive.com
Michigan baseball gets NCAA Tournament bid, opens vs. Creighton Michigan Baseball Questionnaire Athlete questionnaire (pdf) skip to main content pause all rotators western michigan university athletics main composite schedule. 4901 evergreen road, dearborn, mi 48128. Wolverines fall to penn state in extra innings in big ten tournament semifinals. You can certainly start by filling out the university of michigan baseball’s recruiting questionnaire and getting on their list, but that’s only the start.. Michigan Baseball Questionnaire.
From www.formsbank.com
Belgrade Youth Baseball Coach Evaluation Questionnaire printable pdf Michigan Baseball Questionnaire 4901 evergreen road, dearborn, mi 48128. First and foremost, welcome to michigan baseball and. Wolverines fall to penn state in extra innings in big ten tournament semifinals. Standard recruiting questionnaires and prospect forms get out of date very quickly. Athlete questionnaire (pdf) skip to main content pause all rotators western michigan university athletics main composite schedule. With a fieldlevel recruiting. Michigan Baseball Questionnaire.
From www.ncaa.com
Michigan baseball and Kenny Chesney The secret to a thrilling College Michigan Baseball Questionnaire You can certainly start by filling out the university of michigan baseball’s recruiting questionnaire and getting on their list, but that’s only the start. 4901 evergreen road, dearborn, mi 48128. With a fieldlevel recruiting profile, you can come back throughout. Wolverines fall to penn state in extra innings in big ten tournament semifinals. Standard recruiting questionnaires and prospect forms get. Michigan Baseball Questionnaire.
From twitter.com
Michigan Baseball on Twitter "T1 Jimmy Obertop puts Michigan on the Michigan Baseball Questionnaire Standard recruiting questionnaires and prospect forms get out of date very quickly. 4901 evergreen road, dearborn, mi 48128. Wolverines fall to penn state in extra innings in big ten tournament semifinals. First and foremost, welcome to michigan baseball and. You can certainly start by filling out the university of michigan baseball’s recruiting questionnaire and getting on their list, but that’s. Michigan Baseball Questionnaire.
From triviaquestions-answers.com
Baseball Trivia With Answers Printable Trivia Questions and Answer Michigan Baseball Questionnaire First and foremost, welcome to michigan baseball and. Athlete questionnaire (pdf) skip to main content pause all rotators western michigan university athletics main composite schedule. You can certainly start by filling out the university of michigan baseball’s recruiting questionnaire and getting on their list, but that’s only the start. Wolverines fall to penn state in extra innings in big ten. Michigan Baseball Questionnaire.
From www.freep.com
Michigan baseball tops UCLA, 42, advances to College World Series Michigan Baseball Questionnaire You can certainly start by filling out the university of michigan baseball’s recruiting questionnaire and getting on their list, but that’s only the start. Athlete questionnaire (pdf) skip to main content pause all rotators western michigan university athletics main composite schedule. With a fieldlevel recruiting profile, you can come back throughout. Standard recruiting questionnaires and prospect forms get out of. Michigan Baseball Questionnaire.
From lizbethzcristy.pages.dev
University Of Michigan Baseball Schedule 2024 Teri Abigael Michigan Baseball Questionnaire Wolverines fall to penn state in extra innings in big ten tournament semifinals. Standard recruiting questionnaires and prospect forms get out of date very quickly. You can certainly start by filling out the university of michigan baseball’s recruiting questionnaire and getting on their list, but that’s only the start. 4901 evergreen road, dearborn, mi 48128. First and foremost, welcome to. Michigan Baseball Questionnaire.
From www.maizenbrew.com
Recap Michigan Baseball drops series opener vs. UConn on Friday Michigan Baseball Questionnaire Athlete questionnaire (pdf) skip to main content pause all rotators western michigan university athletics main composite schedule. Wolverines fall to penn state in extra innings in big ten tournament semifinals. With a fieldlevel recruiting profile, you can come back throughout. Standard recruiting questionnaires and prospect forms get out of date very quickly. 4901 evergreen road, dearborn, mi 48128. First and. Michigan Baseball Questionnaire.
From davida.davivienda.com
Printable Youth Baseball Tryout Evaluation Forms Printable Word Searches Michigan Baseball Questionnaire Wolverines fall to penn state in extra innings in big ten tournament semifinals. Standard recruiting questionnaires and prospect forms get out of date very quickly. With a fieldlevel recruiting profile, you can come back throughout. First and foremost, welcome to michigan baseball and. You can certainly start by filling out the university of michigan baseball’s recruiting questionnaire and getting on. Michigan Baseball Questionnaire.
From www.pinterest.com
Pin on Michigan Sports Michigan Baseball Questionnaire 4901 evergreen road, dearborn, mi 48128. Standard recruiting questionnaires and prospect forms get out of date very quickly. You can certainly start by filling out the university of michigan baseball’s recruiting questionnaire and getting on their list, but that’s only the start. Wolverines fall to penn state in extra innings in big ten tournament semifinals. Athlete questionnaire (pdf) skip to. Michigan Baseball Questionnaire.
From twitter.com
Michigan Baseball on Twitter "The matchup is set. We'll be live at 4 Michigan Baseball Questionnaire With a fieldlevel recruiting profile, you can come back throughout. First and foremost, welcome to michigan baseball and. Wolverines fall to penn state in extra innings in big ten tournament semifinals. You can certainly start by filling out the university of michigan baseball’s recruiting questionnaire and getting on their list, but that’s only the start. 4901 evergreen road, dearborn, mi. Michigan Baseball Questionnaire.
From www.pinterest.com
Pin on Michigan Sports Michigan Baseball Questionnaire First and foremost, welcome to michigan baseball and. Athlete questionnaire (pdf) skip to main content pause all rotators western michigan university athletics main composite schedule. Wolverines fall to penn state in extra innings in big ten tournament semifinals. 4901 evergreen road, dearborn, mi 48128. With a fieldlevel recruiting profile, you can come back throughout. Standard recruiting questionnaires and prospect forms. Michigan Baseball Questionnaire.
From www.mlive.com
Michigan baseball tops Illinois to stay alive in Big Ten Tournament Michigan Baseball Questionnaire Athlete questionnaire (pdf) skip to main content pause all rotators western michigan university athletics main composite schedule. You can certainly start by filling out the university of michigan baseball’s recruiting questionnaire and getting on their list, but that’s only the start. First and foremost, welcome to michigan baseball and. With a fieldlevel recruiting profile, you can come back throughout. Standard. Michigan Baseball Questionnaire.
From www.glowacademyny.com
Academy Baseball Michigan Baseball Questionnaire Wolverines fall to penn state in extra innings in big ten tournament semifinals. First and foremost, welcome to michigan baseball and. 4901 evergreen road, dearborn, mi 48128. Standard recruiting questionnaires and prospect forms get out of date very quickly. You can certainly start by filling out the university of michigan baseball’s recruiting questionnaire and getting on their list, but that’s. Michigan Baseball Questionnaire.
From www.maizenbrew.com
This Week in Michigan Baseball The Boys are Back Maize n Brew Michigan Baseball Questionnaire Standard recruiting questionnaires and prospect forms get out of date very quickly. Wolverines fall to penn state in extra innings in big ten tournament semifinals. 4901 evergreen road, dearborn, mi 48128. Athlete questionnaire (pdf) skip to main content pause all rotators western michigan university athletics main composite schedule. First and foremost, welcome to michigan baseball and. You can certainly start. Michigan Baseball Questionnaire.
From www.nike.com
Michigan Men's Nike College FullButton Baseball Jersey. Michigan Baseball Questionnaire Athlete questionnaire (pdf) skip to main content pause all rotators western michigan university athletics main composite schedule. First and foremost, welcome to michigan baseball and. Standard recruiting questionnaires and prospect forms get out of date very quickly. With a fieldlevel recruiting profile, you can come back throughout. 4901 evergreen road, dearborn, mi 48128. Wolverines fall to penn state in extra. Michigan Baseball Questionnaire.
From www.freep.com
Michigan baseball honors past during College World Series run Michigan Baseball Questionnaire Wolverines fall to penn state in extra innings in big ten tournament semifinals. Athlete questionnaire (pdf) skip to main content pause all rotators western michigan university athletics main composite schedule. 4901 evergreen road, dearborn, mi 48128. Standard recruiting questionnaires and prospect forms get out of date very quickly. First and foremost, welcome to michigan baseball and. You can certainly start. Michigan Baseball Questionnaire.
From hillarywmira.pages.dev
Pirates Baseball Schedule 2024 Schedule Vinni Jessalin Michigan Baseball Questionnaire Athlete questionnaire (pdf) skip to main content pause all rotators western michigan university athletics main composite schedule. With a fieldlevel recruiting profile, you can come back throughout. First and foremost, welcome to michigan baseball and. You can certainly start by filling out the university of michigan baseball’s recruiting questionnaire and getting on their list, but that’s only the start. Standard. Michigan Baseball Questionnaire.
From www.maizenbrew.com
Michigan baseball team hosts Ohio State for 2nd straight rivalry Michigan Baseball Questionnaire With a fieldlevel recruiting profile, you can come back throughout. Standard recruiting questionnaires and prospect forms get out of date very quickly. You can certainly start by filling out the university of michigan baseball’s recruiting questionnaire and getting on their list, but that’s only the start. First and foremost, welcome to michigan baseball and. Athlete questionnaire (pdf) skip to main. Michigan Baseball Questionnaire.
From www.mlive.com
Michigan ranks No. 15 in Baseball America preseason poll Michigan Baseball Questionnaire Wolverines fall to penn state in extra innings in big ten tournament semifinals. First and foremost, welcome to michigan baseball and. Standard recruiting questionnaires and prospect forms get out of date very quickly. With a fieldlevel recruiting profile, you can come back throughout. You can certainly start by filling out the university of michigan baseball’s recruiting questionnaire and getting on. Michigan Baseball Questionnaire.
From twitter.com
Michigan Baseball on Twitter "Michigan's starting lineup on a Michigan Baseball Questionnaire With a fieldlevel recruiting profile, you can come back throughout. Wolverines fall to penn state in extra innings in big ten tournament semifinals. Standard recruiting questionnaires and prospect forms get out of date very quickly. First and foremost, welcome to michigan baseball and. You can certainly start by filling out the university of michigan baseball’s recruiting questionnaire and getting on. Michigan Baseball Questionnaire.
From www.michiganbaseballrecruits.com
Michigan Baseball Recruits College baseball recruiting Michigan Baseball Questionnaire Wolverines fall to penn state in extra innings in big ten tournament semifinals. With a fieldlevel recruiting profile, you can come back throughout. You can certainly start by filling out the university of michigan baseball’s recruiting questionnaire and getting on their list, but that’s only the start. Standard recruiting questionnaires and prospect forms get out of date very quickly. 4901. Michigan Baseball Questionnaire.