Wisconsin Pe Requirements . to become a licensed professional engineer, you’ll typically need: 30 hours of approved professional development hours (pdhs) or equivalent continuing education units, pertinent to the. learn how to apply for or renew a professional engineer credential in wisconsin, including education, exam, and. principles and practice (pe) examination to take the principles and practice of engineering examination, you must satisfy. learn how to apply for registration as a professional engineer in wisconsin based on.
from www.templateroller.com
learn how to apply for or renew a professional engineer credential in wisconsin, including education, exam, and. learn how to apply for registration as a professional engineer in wisconsin based on. to become a licensed professional engineer, you’ll typically need: 30 hours of approved professional development hours (pdhs) or equivalent continuing education units, pertinent to the. principles and practice (pe) examination to take the principles and practice of engineering examination, you must satisfy.
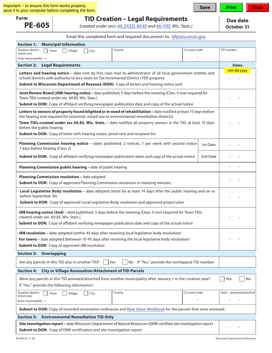
Form PE605 Download Fillable PDF or Fill Online Tid Creation Legal
Wisconsin Pe Requirements to become a licensed professional engineer, you’ll typically need: learn how to apply for or renew a professional engineer credential in wisconsin, including education, exam, and. to become a licensed professional engineer, you’ll typically need: learn how to apply for registration as a professional engineer in wisconsin based on. principles and practice (pe) examination to take the principles and practice of engineering examination, you must satisfy. 30 hours of approved professional development hours (pdhs) or equivalent continuing education units, pertinent to the.
From www.tsa.gov
Wisconsin residents will need REAL identification to fly Wisconsin Pe Requirements to become a licensed professional engineer, you’ll typically need: 30 hours of approved professional development hours (pdhs) or equivalent continuing education units, pertinent to the. learn how to apply for registration as a professional engineer in wisconsin based on. learn how to apply for or renew a professional engineer credential in wisconsin, including education, exam, and.. Wisconsin Pe Requirements.
From www.formsbank.com
Form Pe500 Instructions For Wisconsin Real Estate Transfer Return Wisconsin Pe Requirements principles and practice (pe) examination to take the principles and practice of engineering examination, you must satisfy. to become a licensed professional engineer, you’ll typically need: 30 hours of approved professional development hours (pdhs) or equivalent continuing education units, pertinent to the. learn how to apply for registration as a professional engineer in wisconsin based on.. Wisconsin Pe Requirements.
From ivelementarype.weebly.com
National Physical Education Standards Iowa Valley Elementary Physical Wisconsin Pe Requirements learn how to apply for registration as a professional engineer in wisconsin based on. learn how to apply for or renew a professional engineer credential in wisconsin, including education, exam, and. 30 hours of approved professional development hours (pdhs) or equivalent continuing education units, pertinent to the. to become a licensed professional engineer, you’ll typically need:. Wisconsin Pe Requirements.
From pdh-pro.com
Continuing Education for Professional Engineers PDHPRO » Sealing Wisconsin Pe Requirements learn how to apply for registration as a professional engineer in wisconsin based on. principles and practice (pe) examination to take the principles and practice of engineering examination, you must satisfy. learn how to apply for or renew a professional engineer credential in wisconsin, including education, exam, and. 30 hours of approved professional development hours (pdhs). Wisconsin Pe Requirements.
From www.templateroller.com
Form PE605 Download Fillable PDF or Fill Online Tid Creation Legal Wisconsin Pe Requirements learn how to apply for or renew a professional engineer credential in wisconsin, including education, exam, and. 30 hours of approved professional development hours (pdhs) or equivalent continuing education units, pertinent to the. to become a licensed professional engineer, you’ll typically need: principles and practice (pe) examination to take the principles and practice of engineering examination,. Wisconsin Pe Requirements.
From pdh-pro.com
Continuing Education for Professional Engineers PDHPRO » Complete Wisconsin Pe Requirements learn how to apply for or renew a professional engineer credential in wisconsin, including education, exam, and. to become a licensed professional engineer, you’ll typically need: principles and practice (pe) examination to take the principles and practice of engineering examination, you must satisfy. learn how to apply for registration as a professional engineer in wisconsin based. Wisconsin Pe Requirements.
From www.templateroller.com
Form PE605 Fill Out, Sign Online and Download Fillable PDF Wisconsin Pe Requirements principles and practice (pe) examination to take the principles and practice of engineering examination, you must satisfy. to become a licensed professional engineer, you’ll typically need: learn how to apply for registration as a professional engineer in wisconsin based on. 30 hours of approved professional development hours (pdhs) or equivalent continuing education units, pertinent to the.. Wisconsin Pe Requirements.
From www.templateroller.com
Form PE223 Fill Out, Sign Online and Download Fillable PDF Wisconsin Pe Requirements to become a licensed professional engineer, you’ll typically need: principles and practice (pe) examination to take the principles and practice of engineering examination, you must satisfy. learn how to apply for registration as a professional engineer in wisconsin based on. 30 hours of approved professional development hours (pdhs) or equivalent continuing education units, pertinent to the.. Wisconsin Pe Requirements.
From www.templateroller.com
Form PE110 Fill Out, Sign Online and Download Printable PDF Wisconsin Pe Requirements principles and practice (pe) examination to take the principles and practice of engineering examination, you must satisfy. to become a licensed professional engineer, you’ll typically need: learn how to apply for or renew a professional engineer credential in wisconsin, including education, exam, and. 30 hours of approved professional development hours (pdhs) or equivalent continuing education units,. Wisconsin Pe Requirements.
From www.pestamps.com
Wisconsin Professional Engineer Stamp PE Stamps Wisconsin Pe Requirements learn how to apply for or renew a professional engineer credential in wisconsin, including education, exam, and. learn how to apply for registration as a professional engineer in wisconsin based on. to become a licensed professional engineer, you’ll typically need: 30 hours of approved professional development hours (pdhs) or equivalent continuing education units, pertinent to the.. Wisconsin Pe Requirements.
From www.pestamps.com
Wisconsin Engineer Stamp PE Stamps Wisconsin Pe Requirements principles and practice (pe) examination to take the principles and practice of engineering examination, you must satisfy. 30 hours of approved professional development hours (pdhs) or equivalent continuing education units, pertinent to the. learn how to apply for registration as a professional engineer in wisconsin based on. to become a licensed professional engineer, you’ll typically need:. Wisconsin Pe Requirements.
From www.youtube.com
Wisconsin Liquor License What You need to get started license Wisconsin Pe Requirements learn how to apply for registration as a professional engineer in wisconsin based on. 30 hours of approved professional development hours (pdhs) or equivalent continuing education units, pertinent to the. to become a licensed professional engineer, you’ll typically need: principles and practice (pe) examination to take the principles and practice of engineering examination, you must satisfy.. Wisconsin Pe Requirements.
From peexamcoach.com
PE Exam Eligibility Requirements for Each State PE Exam Coach Wisconsin Pe Requirements learn how to apply for or renew a professional engineer credential in wisconsin, including education, exam, and. principles and practice (pe) examination to take the principles and practice of engineering examination, you must satisfy. learn how to apply for registration as a professional engineer in wisconsin based on. to become a licensed professional engineer, you’ll typically. Wisconsin Pe Requirements.
From engineersealstamps.com
Wisconsin PE Embossers for Engineers Rules and Requirements ESS Wisconsin Pe Requirements principles and practice (pe) examination to take the principles and practice of engineering examination, you must satisfy. learn how to apply for registration as a professional engineer in wisconsin based on. 30 hours of approved professional development hours (pdhs) or equivalent continuing education units, pertinent to the. to become a licensed professional engineer, you’ll typically need:. Wisconsin Pe Requirements.
From www.slideserve.com
PPT 2009 International Energy Conservation Code With Wisconsin Wisconsin Pe Requirements 30 hours of approved professional development hours (pdhs) or equivalent continuing education units, pertinent to the. principles and practice (pe) examination to take the principles and practice of engineering examination, you must satisfy. to become a licensed professional engineer, you’ll typically need: learn how to apply for or renew a professional engineer credential in wisconsin, including. Wisconsin Pe Requirements.
From pdh-pro.com
Continuing Education for Professional Engineers PDHPRO » Complete Wisconsin Pe Requirements to become a licensed professional engineer, you’ll typically need: principles and practice (pe) examination to take the principles and practice of engineering examination, you must satisfy. learn how to apply for registration as a professional engineer in wisconsin based on. learn how to apply for or renew a professional engineer credential in wisconsin, including education, exam,. Wisconsin Pe Requirements.
From engineersealstamps.com
Wisconsin PE Embossers for Engineers Rules and Requirements ESS Wisconsin Pe Requirements to become a licensed professional engineer, you’ll typically need: 30 hours of approved professional development hours (pdhs) or equivalent continuing education units, pertinent to the. principles and practice (pe) examination to take the principles and practice of engineering examination, you must satisfy. learn how to apply for or renew a professional engineer credential in wisconsin, including. Wisconsin Pe Requirements.
From www.youtube.com
Extended WI DSPS LicensE Demo YouTube Wisconsin Pe Requirements to become a licensed professional engineer, you’ll typically need: learn how to apply for registration as a professional engineer in wisconsin based on. principles and practice (pe) examination to take the principles and practice of engineering examination, you must satisfy. 30 hours of approved professional development hours (pdhs) or equivalent continuing education units, pertinent to the.. Wisconsin Pe Requirements.
From www.templateroller.com
Form PE605 Download Fillable PDF or Fill Online Tid Creation Legal Wisconsin Pe Requirements 30 hours of approved professional development hours (pdhs) or equivalent continuing education units, pertinent to the. to become a licensed professional engineer, you’ll typically need: learn how to apply for or renew a professional engineer credential in wisconsin, including education, exam, and. principles and practice (pe) examination to take the principles and practice of engineering examination,. Wisconsin Pe Requirements.
From www.youtube.com
Wisconsin 2024 Class Breakdown YouTube Wisconsin Pe Requirements learn how to apply for registration as a professional engineer in wisconsin based on. 30 hours of approved professional development hours (pdhs) or equivalent continuing education units, pertinent to the. to become a licensed professional engineer, you’ll typically need: learn how to apply for or renew a professional engineer credential in wisconsin, including education, exam, and.. Wisconsin Pe Requirements.
From www.templateroller.com
Form PE605T Download Fillable PDF or Fill Online Tid Territory Wisconsin Pe Requirements to become a licensed professional engineer, you’ll typically need: 30 hours of approved professional development hours (pdhs) or equivalent continuing education units, pertinent to the. learn how to apply for or renew a professional engineer credential in wisconsin, including education, exam, and. principles and practice (pe) examination to take the principles and practice of engineering examination,. Wisconsin Pe Requirements.
From www.templateroller.com
Form PE605A Download Fillable PDF or Fill Online Tid Project Plan and Wisconsin Pe Requirements learn how to apply for registration as a professional engineer in wisconsin based on. learn how to apply for or renew a professional engineer credential in wisconsin, including education, exam, and. to become a licensed professional engineer, you’ll typically need: 30 hours of approved professional development hours (pdhs) or equivalent continuing education units, pertinent to the.. Wisconsin Pe Requirements.
From confidenceopposition28.bitbucket.io
How To A Licensed Professional Engineer Confidenceopposition28 Wisconsin Pe Requirements learn how to apply for registration as a professional engineer in wisconsin based on. learn how to apply for or renew a professional engineer credential in wisconsin, including education, exam, and. 30 hours of approved professional development hours (pdhs) or equivalent continuing education units, pertinent to the. principles and practice (pe) examination to take the principles. Wisconsin Pe Requirements.
From www.slideserve.com
PPT Parents! PowerPoint Presentation, free download ID6849820 Wisconsin Pe Requirements to become a licensed professional engineer, you’ll typically need: 30 hours of approved professional development hours (pdhs) or equivalent continuing education units, pertinent to the. learn how to apply for registration as a professional engineer in wisconsin based on. principles and practice (pe) examination to take the principles and practice of engineering examination, you must satisfy.. Wisconsin Pe Requirements.
From www.templateroller.com
Form PE605B Download Fillable PDF or Fill Online Tid Base Value Wisconsin Pe Requirements learn how to apply for or renew a professional engineer credential in wisconsin, including education, exam, and. principles and practice (pe) examination to take the principles and practice of engineering examination, you must satisfy. to become a licensed professional engineer, you’ll typically need: 30 hours of approved professional development hours (pdhs) or equivalent continuing education units,. Wisconsin Pe Requirements.
From winmarkstampandsign.com
WISCONSIN Preinked Professional Engineer Stamp Winmark Stamp & Sign Wisconsin Pe Requirements 30 hours of approved professional development hours (pdhs) or equivalent continuing education units, pertinent to the. learn how to apply for or renew a professional engineer credential in wisconsin, including education, exam, and. to become a licensed professional engineer, you’ll typically need: learn how to apply for registration as a professional engineer in wisconsin based on.. Wisconsin Pe Requirements.
From www.youtube.com
PE Certification Reference Requirements and Exam Validity Explained Wisconsin Pe Requirements principles and practice (pe) examination to take the principles and practice of engineering examination, you must satisfy. learn how to apply for or renew a professional engineer credential in wisconsin, including education, exam, and. 30 hours of approved professional development hours (pdhs) or equivalent continuing education units, pertinent to the. to become a licensed professional engineer,. Wisconsin Pe Requirements.
From www.slideserve.com
PPT Update to the Diploma Requirements PowerPoint Presentation, free Wisconsin Pe Requirements to become a licensed professional engineer, you’ll typically need: learn how to apply for registration as a professional engineer in wisconsin based on. principles and practice (pe) examination to take the principles and practice of engineering examination, you must satisfy. 30 hours of approved professional development hours (pdhs) or equivalent continuing education units, pertinent to the.. Wisconsin Pe Requirements.
From www.pdhnow.com
PE License Renewal Requirements by State Professional Engineer Wisconsin Pe Requirements learn how to apply for registration as a professional engineer in wisconsin based on. 30 hours of approved professional development hours (pdhs) or equivalent continuing education units, pertinent to the. to become a licensed professional engineer, you’ll typically need: principles and practice (pe) examination to take the principles and practice of engineering examination, you must satisfy.. Wisconsin Pe Requirements.
From pdh-pro.com
Continuing Education for Professional Engineers PDHPRO » Wisconsin Wisconsin Pe Requirements learn how to apply for or renew a professional engineer credential in wisconsin, including education, exam, and. to become a licensed professional engineer, you’ll typically need: learn how to apply for registration as a professional engineer in wisconsin based on. 30 hours of approved professional development hours (pdhs) or equivalent continuing education units, pertinent to the.. Wisconsin Pe Requirements.
From dpi.wi.gov
Academic Standards Wisconsin Department of Public Instruction Wisconsin Pe Requirements learn how to apply for registration as a professional engineer in wisconsin based on. principles and practice (pe) examination to take the principles and practice of engineering examination, you must satisfy. 30 hours of approved professional development hours (pdhs) or equivalent continuing education units, pertinent to the. learn how to apply for or renew a professional. Wisconsin Pe Requirements.
From www.slideserve.com
PPT to Upper School PowerPoint Presentation, free download Wisconsin Pe Requirements principles and practice (pe) examination to take the principles and practice of engineering examination, you must satisfy. to become a licensed professional engineer, you’ll typically need: 30 hours of approved professional development hours (pdhs) or equivalent continuing education units, pertinent to the. learn how to apply for or renew a professional engineer credential in wisconsin, including. Wisconsin Pe Requirements.
From www.templateroller.com
Form MV3027 Fill Out, Sign Online and Download Fillable PDF Wisconsin Pe Requirements 30 hours of approved professional development hours (pdhs) or equivalent continuing education units, pertinent to the. learn how to apply for or renew a professional engineer credential in wisconsin, including education, exam, and. learn how to apply for registration as a professional engineer in wisconsin based on. principles and practice (pe) examination to take the principles. Wisconsin Pe Requirements.
From www.templateroller.com
Form PE605 Download Fillable PDF or Fill Online Tid Creation Legal Wisconsin Pe Requirements principles and practice (pe) examination to take the principles and practice of engineering examination, you must satisfy. 30 hours of approved professional development hours (pdhs) or equivalent continuing education units, pertinent to the. learn how to apply for or renew a professional engineer credential in wisconsin, including education, exam, and. learn how to apply for registration. Wisconsin Pe Requirements.
From www.studyforfe.com
PE License Requirements Guide (All You Need To Know About Getting A Wisconsin Pe Requirements principles and practice (pe) examination to take the principles and practice of engineering examination, you must satisfy. learn how to apply for or renew a professional engineer credential in wisconsin, including education, exam, and. to become a licensed professional engineer, you’ll typically need: learn how to apply for registration as a professional engineer in wisconsin based. Wisconsin Pe Requirements.