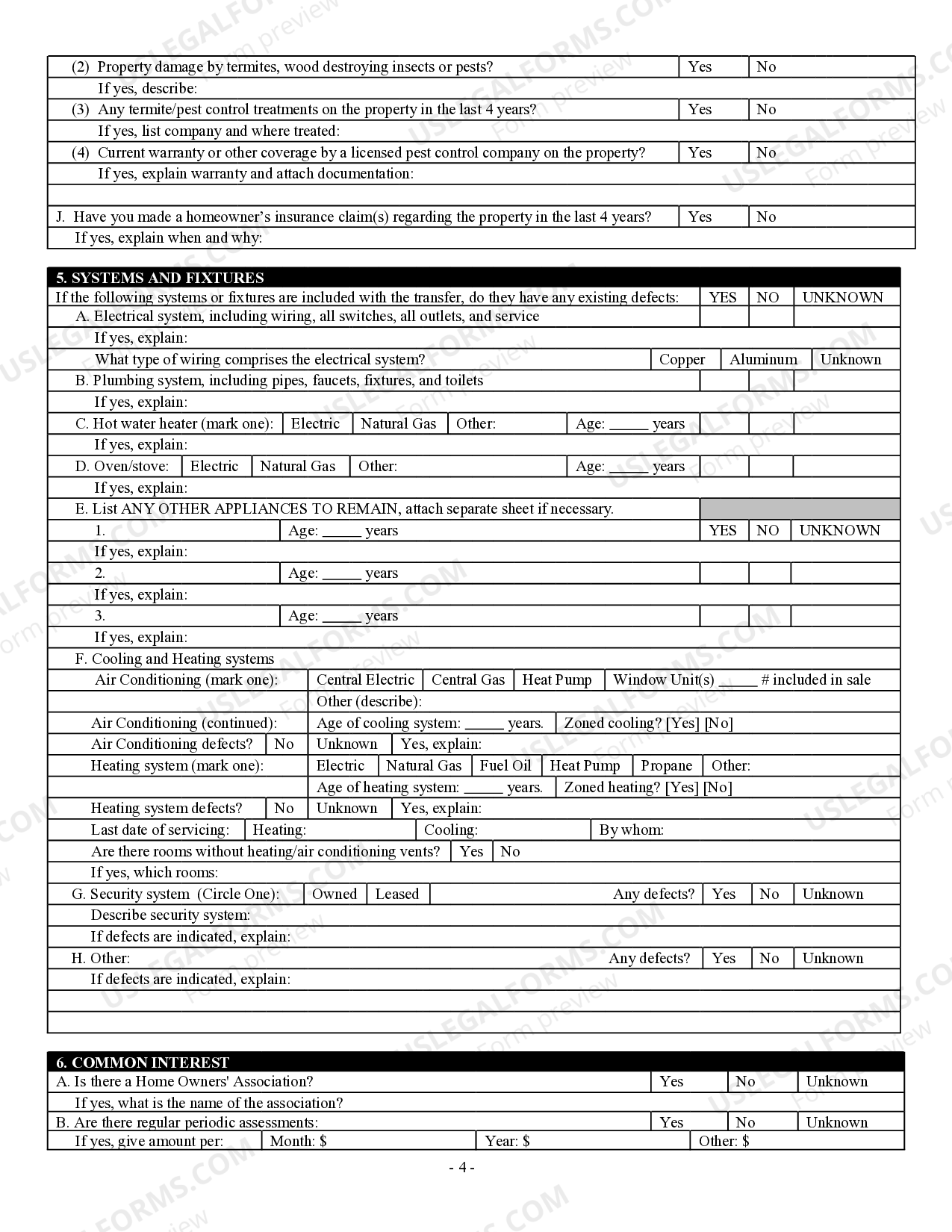
Seller Property Disclosure Form Arkansas . arkansas law requires sellers of residential real estate to provide a completed disclosure form to potential buyers. arkansas law requires real estate agents to clearly disclose to all parties in a real estate transaction which party (s) he or she is. arkansas has no law that requires you to give a formal disclosure statement to a potential buyer of your. this uniform disclosure statement may aid both purchasers and sellers to identify aspects of properties which may require. when listing property, realtors strongly encourage all sellers to complete the seller property disclosure form. (1) complete this form documentation. an arkansas property disclosure statement is a document used in a real estate transaction to provide.
from www.uslegalforms.com
arkansas has no law that requires you to give a formal disclosure statement to a potential buyer of your. (1) complete this form documentation. this uniform disclosure statement may aid both purchasers and sellers to identify aspects of properties which may require. arkansas law requires sellers of residential real estate to provide a completed disclosure form to potential buyers. when listing property, realtors strongly encourage all sellers to complete the seller property disclosure form. an arkansas property disclosure statement is a document used in a real estate transaction to provide. arkansas law requires real estate agents to clearly disclose to all parties in a real estate transaction which party (s) he or she is.
OR Seller’s Property Disclosure Statement Fill and Sign Printable Template Online US Legal Forms
Seller Property Disclosure Form Arkansas arkansas has no law that requires you to give a formal disclosure statement to a potential buyer of your. arkansas has no law that requires you to give a formal disclosure statement to a potential buyer of your. arkansas law requires sellers of residential real estate to provide a completed disclosure form to potential buyers. (1) complete this form documentation. when listing property, realtors strongly encourage all sellers to complete the seller property disclosure form. an arkansas property disclosure statement is a document used in a real estate transaction to provide. this uniform disclosure statement may aid both purchasers and sellers to identify aspects of properties which may require. arkansas law requires real estate agents to clearly disclose to all parties in a real estate transaction which party (s) he or she is.
From esign.com
Free Property Disclosure Statement PDF Word Seller Property Disclosure Form Arkansas arkansas law requires sellers of residential real estate to provide a completed disclosure form to potential buyers. arkansas has no law that requires you to give a formal disclosure statement to a potential buyer of your. (1) complete this form documentation. an arkansas property disclosure statement is a document used in a real estate transaction to provide.. Seller Property Disclosure Form Arkansas.
From www.printablerealestateform.com
Sample SELLER Property Disclosure Statement Template Form Seller Property Disclosure Form Arkansas when listing property, realtors strongly encourage all sellers to complete the seller property disclosure form. arkansas law requires sellers of residential real estate to provide a completed disclosure form to potential buyers. an arkansas property disclosure statement is a document used in a real estate transaction to provide. arkansas has no law that requires you to. Seller Property Disclosure Form Arkansas.
From www.uslegalforms.com
Arkansas Residential Real Estate Sales Disclosure Statement Real Estate Contracts US Legal Forms Seller Property Disclosure Form Arkansas arkansas law requires sellers of residential real estate to provide a completed disclosure form to potential buyers. arkansas has no law that requires you to give a formal disclosure statement to a potential buyer of your. this uniform disclosure statement may aid both purchasers and sellers to identify aspects of properties which may require. when listing. Seller Property Disclosure Form Arkansas.
From www.templateroller.com
Arkansas Mandatory Disclosure Form Fill Out, Sign Online and Download PDF Templateroller Seller Property Disclosure Form Arkansas arkansas law requires sellers of residential real estate to provide a completed disclosure form to potential buyers. when listing property, realtors strongly encourage all sellers to complete the seller property disclosure form. arkansas law requires real estate agents to clearly disclose to all parties in a real estate transaction which party (s) he or she is. . Seller Property Disclosure Form Arkansas.
From www.signnow.com
Arkansas Seller Property Disclosure Form Complete with ease airSlate SignNow Seller Property Disclosure Form Arkansas (1) complete this form documentation. an arkansas property disclosure statement is a document used in a real estate transaction to provide. arkansas has no law that requires you to give a formal disclosure statement to a potential buyer of your. arkansas law requires sellers of residential real estate to provide a completed disclosure form to potential buyers.. Seller Property Disclosure Form Arkansas.
From www.uslegalforms.com
DE Seller's Disclosure of Real Property Condition Report Fill and Sign Printable Template Seller Property Disclosure Form Arkansas arkansas has no law that requires you to give a formal disclosure statement to a potential buyer of your. this uniform disclosure statement may aid both purchasers and sellers to identify aspects of properties which may require. arkansas law requires real estate agents to clearly disclose to all parties in a real estate transaction which party (s). Seller Property Disclosure Form Arkansas.
From www.pdffiller.com
Fillable Online Arkansas Seller's Property Disclosure Form eForms Fax Email Print pdfFiller Seller Property Disclosure Form Arkansas (1) complete this form documentation. arkansas law requires real estate agents to clearly disclose to all parties in a real estate transaction which party (s) he or she is. arkansas has no law that requires you to give a formal disclosure statement to a potential buyer of your. this uniform disclosure statement may aid both purchasers and. Seller Property Disclosure Form Arkansas.
From legaltemplates.net
Free Property Disclosure Statement Form Legal Templates Seller Property Disclosure Form Arkansas (1) complete this form documentation. arkansas law requires real estate agents to clearly disclose to all parties in a real estate transaction which party (s) he or she is. when listing property, realtors strongly encourage all sellers to complete the seller property disclosure form. arkansas law requires sellers of residential real estate to provide a completed disclosure. Seller Property Disclosure Form Arkansas.
From www.templateroller.com
Arkansas Property Disclosure Statement Form Fill Out, Sign Online and Download PDF Seller Property Disclosure Form Arkansas when listing property, realtors strongly encourage all sellers to complete the seller property disclosure form. arkansas has no law that requires you to give a formal disclosure statement to a potential buyer of your. an arkansas property disclosure statement is a document used in a real estate transaction to provide. this uniform disclosure statement may aid. Seller Property Disclosure Form Arkansas.
From www.uslegalforms.com
Arkansas Seller's Disclosure Statement for Vacant Land Sellers Disclosure Form US Legal Forms Seller Property Disclosure Form Arkansas arkansas law requires real estate agents to clearly disclose to all parties in a real estate transaction which party (s) he or she is. when listing property, realtors strongly encourage all sellers to complete the seller property disclosure form. (1) complete this form documentation. arkansas law requires sellers of residential real estate to provide a completed disclosure. Seller Property Disclosure Form Arkansas.
From activerain.com
SELLER'S REAL PROPERTY DISCLOSURE FORM How To Fill Out This Form Seller Property Disclosure Form Arkansas this uniform disclosure statement may aid both purchasers and sellers to identify aspects of properties which may require. arkansas has no law that requires you to give a formal disclosure statement to a potential buyer of your. when listing property, realtors strongly encourage all sellers to complete the seller property disclosure form. arkansas law requires real. Seller Property Disclosure Form Arkansas.
From www.uslegalforms.com
Seller's Disclosure Statement for Vacant Land Land Disclosure US Legal Forms Seller Property Disclosure Form Arkansas arkansas has no law that requires you to give a formal disclosure statement to a potential buyer of your. this uniform disclosure statement may aid both purchasers and sellers to identify aspects of properties which may require. arkansas law requires real estate agents to clearly disclose to all parties in a real estate transaction which party (s). Seller Property Disclosure Form Arkansas.
From eforms.com
Free Arkansas Residential Purchase and Sale Agreement PDF Word eForms Seller Property Disclosure Form Arkansas arkansas law requires real estate agents to clearly disclose to all parties in a real estate transaction which party (s) he or she is. this uniform disclosure statement may aid both purchasers and sellers to identify aspects of properties which may require. arkansas has no law that requires you to give a formal disclosure statement to a. Seller Property Disclosure Form Arkansas.
From www.sampleforms.com
FREE 10+ Sample Real Estate Disclosure Forms in PDF MS Word Seller Property Disclosure Form Arkansas when listing property, realtors strongly encourage all sellers to complete the seller property disclosure form. this uniform disclosure statement may aid both purchasers and sellers to identify aspects of properties which may require. (1) complete this form documentation. arkansas law requires sellers of residential real estate to provide a completed disclosure form to potential buyers. arkansas. Seller Property Disclosure Form Arkansas.
From www.uslegalforms.com
OR Seller’s Property Disclosure Statement Fill and Sign Printable Template Online US Legal Forms Seller Property Disclosure Form Arkansas (1) complete this form documentation. when listing property, realtors strongly encourage all sellers to complete the seller property disclosure form. arkansas has no law that requires you to give a formal disclosure statement to a potential buyer of your. arkansas law requires real estate agents to clearly disclose to all parties in a real estate transaction which. Seller Property Disclosure Form Arkansas.
From www.formsbank.com
Seller'S Property Condition Disclosure Statement Form printable pdf download Seller Property Disclosure Form Arkansas an arkansas property disclosure statement is a document used in a real estate transaction to provide. (1) complete this form documentation. arkansas law requires real estate agents to clearly disclose to all parties in a real estate transaction which party (s) he or she is. arkansas law requires sellers of residential real estate to provide a completed. Seller Property Disclosure Form Arkansas.
From printableformsfree.com
Fillable Sellers Disclosure Statement Form 2091 Printable Forms Free Online Seller Property Disclosure Form Arkansas when listing property, realtors strongly encourage all sellers to complete the seller property disclosure form. arkansas law requires sellers of residential real estate to provide a completed disclosure form to potential buyers. this uniform disclosure statement may aid both purchasers and sellers to identify aspects of properties which may require. arkansas has no law that requires. Seller Property Disclosure Form Arkansas.
From formspal.com
Real Estate Seller Disclosure 17 PDF Form FormsPal Seller Property Disclosure Form Arkansas an arkansas property disclosure statement is a document used in a real estate transaction to provide. arkansas law requires sellers of residential real estate to provide a completed disclosure form to potential buyers. this uniform disclosure statement may aid both purchasers and sellers to identify aspects of properties which may require. arkansas law requires real estate. Seller Property Disclosure Form Arkansas.
From prosperopedia.com
What Are Real Estate Disclosure Laws? The Handbook of Prosperity, Success, and Happiness Seller Property Disclosure Form Arkansas arkansas law requires sellers of residential real estate to provide a completed disclosure form to potential buyers. (1) complete this form documentation. when listing property, realtors strongly encourage all sellers to complete the seller property disclosure form. this uniform disclosure statement may aid both purchasers and sellers to identify aspects of properties which may require. an. Seller Property Disclosure Form Arkansas.
From www.pdffiller.com
Fillable Online Fillable Online seller's property disclosure statement Fax Email Print pdfFiller Seller Property Disclosure Form Arkansas this uniform disclosure statement may aid both purchasers and sellers to identify aspects of properties which may require. an arkansas property disclosure statement is a document used in a real estate transaction to provide. when listing property, realtors strongly encourage all sellers to complete the seller property disclosure form. arkansas law requires sellers of residential real. Seller Property Disclosure Form Arkansas.
From www.uslegalforms.com
Arkansas Residential Real Estate Sales Disclosure Statement Real Estate Contracts US Legal Forms Seller Property Disclosure Form Arkansas (1) complete this form documentation. arkansas law requires real estate agents to clearly disclose to all parties in a real estate transaction which party (s) he or she is. an arkansas property disclosure statement is a document used in a real estate transaction to provide. this uniform disclosure statement may aid both purchasers and sellers to identify. Seller Property Disclosure Form Arkansas.
From esign.com
Free Property Disclosure Statement PDF Word Seller Property Disclosure Form Arkansas arkansas law requires sellers of residential real estate to provide a completed disclosure form to potential buyers. arkansas has no law that requires you to give a formal disclosure statement to a potential buyer of your. this uniform disclosure statement may aid both purchasers and sellers to identify aspects of properties which may require. when listing. Seller Property Disclosure Form Arkansas.
From www.pdffiller.com
Disclosures Law Fill Online, Printable, Fillable, Blank pdfFiller Seller Property Disclosure Form Arkansas an arkansas property disclosure statement is a document used in a real estate transaction to provide. arkansas law requires sellers of residential real estate to provide a completed disclosure form to potential buyers. when listing property, realtors strongly encourage all sellers to complete the seller property disclosure form. this uniform disclosure statement may aid both purchasers. Seller Property Disclosure Form Arkansas.
From seattlepropertylawyer.com
Form 17 Explained — Real Estate Lawyer Seller Property Disclosure Form Arkansas arkansas law requires real estate agents to clearly disclose to all parties in a real estate transaction which party (s) he or she is. (1) complete this form documentation. arkansas law requires sellers of residential real estate to provide a completed disclosure form to potential buyers. when listing property, realtors strongly encourage all sellers to complete the. Seller Property Disclosure Form Arkansas.
From www.uslegalforms.com
Arkansas Residential Real Estate Sales Disclosure Statement Real Estate Contracts US Legal Forms Seller Property Disclosure Form Arkansas arkansas law requires real estate agents to clearly disclose to all parties in a real estate transaction which party (s) he or she is. when listing property, realtors strongly encourage all sellers to complete the seller property disclosure form. arkansas law requires sellers of residential real estate to provide a completed disclosure form to potential buyers. (1). Seller Property Disclosure Form Arkansas.
From www.printablerealestateforms.com
Free Printable Sellers Disclosure Statement Form (WORD) Seller Property Disclosure Form Arkansas arkansas law requires real estate agents to clearly disclose to all parties in a real estate transaction which party (s) he or she is. this uniform disclosure statement may aid both purchasers and sellers to identify aspects of properties which may require. arkansas law requires sellers of residential real estate to provide a completed disclosure form to. Seller Property Disclosure Form Arkansas.
From freeforms.com
Free Property Disclosure Statement PDF WORD Seller Property Disclosure Form Arkansas (1) complete this form documentation. arkansas law requires real estate agents to clearly disclose to all parties in a real estate transaction which party (s) he or she is. an arkansas property disclosure statement is a document used in a real estate transaction to provide. when listing property, realtors strongly encourage all sellers to complete the seller. Seller Property Disclosure Form Arkansas.
From www.uslegalforms.com
Real Estate Disclosure Form 20202022 Fill and Sign Printable Template Online US Legal Forms Seller Property Disclosure Form Arkansas arkansas law requires real estate agents to clearly disclose to all parties in a real estate transaction which party (s) he or she is. (1) complete this form documentation. arkansas law requires sellers of residential real estate to provide a completed disclosure form to potential buyers. this uniform disclosure statement may aid both purchasers and sellers to. Seller Property Disclosure Form Arkansas.
From www.uslegalforms.com
Arkansas Residential Real Estate Sales Disclosure Statement Real Estate Contracts US Legal Forms Seller Property Disclosure Form Arkansas (1) complete this form documentation. arkansas law requires real estate agents to clearly disclose to all parties in a real estate transaction which party (s) he or she is. an arkansas property disclosure statement is a document used in a real estate transaction to provide. arkansas law requires sellers of residential real estate to provide a completed. Seller Property Disclosure Form Arkansas.
From eforms.com
Free Property Disclosure Statement PDF Word eForms Seller Property Disclosure Form Arkansas an arkansas property disclosure statement is a document used in a real estate transaction to provide. (1) complete this form documentation. when listing property, realtors strongly encourage all sellers to complete the seller property disclosure form. arkansas law requires real estate agents to clearly disclose to all parties in a real estate transaction which party (s) he. Seller Property Disclosure Form Arkansas.
From www.sampleforms.com
FREE 10+ Sample Real Estate Disclosure Forms in PDF MS Word Seller Property Disclosure Form Arkansas an arkansas property disclosure statement is a document used in a real estate transaction to provide. this uniform disclosure statement may aid both purchasers and sellers to identify aspects of properties which may require. arkansas law requires sellers of residential real estate to provide a completed disclosure form to potential buyers. when listing property, realtors strongly. Seller Property Disclosure Form Arkansas.
From freeforms.com
Free Arkansas Real Estate Purchase Agreement Template PDF WORD Seller Property Disclosure Form Arkansas this uniform disclosure statement may aid both purchasers and sellers to identify aspects of properties which may require. arkansas has no law that requires you to give a formal disclosure statement to a potential buyer of your. when listing property, realtors strongly encourage all sellers to complete the seller property disclosure form. an arkansas property disclosure. Seller Property Disclosure Form Arkansas.
From www.pdffiller.com
Real Estate Disclosure Form Fill Online, Printable, Fillable, Blank pdfFiller Seller Property Disclosure Form Arkansas arkansas has no law that requires you to give a formal disclosure statement to a potential buyer of your. this uniform disclosure statement may aid both purchasers and sellers to identify aspects of properties which may require. arkansas law requires real estate agents to clearly disclose to all parties in a real estate transaction which party (s). Seller Property Disclosure Form Arkansas.
From www.uslegalforms.com
Arkansas Residential Real Estate Sales Disclosure Statement Real Estate Contracts US Legal Forms Seller Property Disclosure Form Arkansas (1) complete this form documentation. arkansas law requires real estate agents to clearly disclose to all parties in a real estate transaction which party (s) he or she is. arkansas has no law that requires you to give a formal disclosure statement to a potential buyer of your. an arkansas property disclosure statement is a document used. Seller Property Disclosure Form Arkansas.
From www.wordtemplatesonline.net
Sellers Property Disclosure Statement Template Templates for Microsoft® Word Seller Property Disclosure Form Arkansas (1) complete this form documentation. arkansas law requires real estate agents to clearly disclose to all parties in a real estate transaction which party (s) he or she is. arkansas has no law that requires you to give a formal disclosure statement to a potential buyer of your. an arkansas property disclosure statement is a document used. Seller Property Disclosure Form Arkansas.