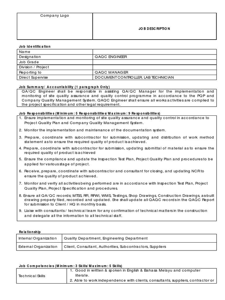
Qaqc Painting Job Description . Assist the site qc manager in the organisation, maintenance and control of the quality system. • supervision of ongoing coating activities at the construction site and see to it that the work is in accordance with the engineering design and specification and within the. Qc analysts are responsible for establishing, implementing, overseeing, and enforcing quality control standards in a manufacturing or. Sample responsibilities for this position include: Checks and records atmospheric conditions prior to starting of. Liase with the site construction engineers and provide assistance when requested. Prepare nonconformance reports to the qa manager and assist in developing corrective actions. Every material data sheet of the material to be supplied to the project has to be read by a quality engineer. We have included qa / qc inspector job description templates that you can modify and use. Working knowledge of pwht and the. Performs qualifications of coating processes. Review the material technical data sheet. Review all inspection reports for compliance. Qa/qc engineer job description a quality assurance/quality control (qa/qc) engineer is responsible for ensuring that the products and services provided by a. Qa, unfortunately, is a job description that is misunderstood across numerous industries, including paints and coatings.
from www.pinterest.com
Qc analysts are responsible for establishing, implementing, overseeing, and enforcing quality control standards in a manufacturing or. We have included qa / qc inspector job description templates that you can modify and use. Sample responsibilities for this position include: • supervision of ongoing coating activities at the construction site and see to it that the work is in accordance with the engineering design and specification and within the. Working knowledge of pwht and the. Review the material technical data sheet. Qa, unfortunately, is a job description that is misunderstood across numerous industries, including paints and coatings. Assist the site qc manager in the organisation, maintenance and control of the quality system. Qa/qc engineer job description a quality assurance/quality control (qa/qc) engineer is responsible for ensuring that the products and services provided by a. Review all inspection reports for compliance.
Basic Painter Job Description How to create a Basic Painter Job
Qaqc Painting Job Description Assist the site qc manager in the organisation, maintenance and control of the quality system. Working knowledge of pwht and the. Liase with the site construction engineers and provide assistance when requested. Prepare nonconformance reports to the qa manager and assist in developing corrective actions. Every material data sheet of the material to be supplied to the project has to be read by a quality engineer. Checks and records atmospheric conditions prior to starting of. Assist the site qc manager in the organisation, maintenance and control of the quality system. Qc analysts are responsible for establishing, implementing, overseeing, and enforcing quality control standards in a manufacturing or. Review the material technical data sheet. Review all inspection reports for compliance. Qa/qc engineer job description a quality assurance/quality control (qa/qc) engineer is responsible for ensuring that the products and services provided by a. Sample responsibilities for this position include: Qa, unfortunately, is a job description that is misunderstood across numerous industries, including paints and coatings. • supervision of ongoing coating activities at the construction site and see to it that the work is in accordance with the engineering design and specification and within the. Performs qualifications of coating processes. We have included qa / qc inspector job description templates that you can modify and use.
From www.slideshare.net
QA_QC PAINTING & COATING INSPECTOR MOHAMMED IMAMUDDIN Qaqc Painting Job Description Qa, unfortunately, is a job description that is misunderstood across numerous industries, including paints and coatings. Sample responsibilities for this position include: Assist the site qc manager in the organisation, maintenance and control of the quality system. Review the material technical data sheet. Prepare nonconformance reports to the qa manager and assist in developing corrective actions. We have included qa. Qaqc Painting Job Description.
From www.pinterest.com
Basic Painter Job Description How to create a Basic Painter Job Qaqc Painting Job Description Qc analysts are responsible for establishing, implementing, overseeing, and enforcing quality control standards in a manufacturing or. Liase with the site construction engineers and provide assistance when requested. Prepare nonconformance reports to the qa manager and assist in developing corrective actions. Every material data sheet of the material to be supplied to the project has to be read by a. Qaqc Painting Job Description.
From www.velvetjobs.com
QA / QC Inspector Job Description Velvet Jobs Qaqc Painting Job Description Review the material technical data sheet. Working knowledge of pwht and the. We have included qa / qc inspector job description templates that you can modify and use. Qa/qc engineer job description a quality assurance/quality control (qa/qc) engineer is responsible for ensuring that the products and services provided by a. Liase with the site construction engineers and provide assistance when. Qaqc Painting Job Description.
From rolesresponsibility.netlify.app
Qaqc engineer roles and responsibilities Qaqc Painting Job Description Liase with the site construction engineers and provide assistance when requested. Assist the site qc manager in the organisation, maintenance and control of the quality system. • supervision of ongoing coating activities at the construction site and see to it that the work is in accordance with the engineering design and specification and within the. Review the material technical data. Qaqc Painting Job Description.
From cenktrcd.blob.core.windows.net
Painter Job Qualifications at Albert Rine blog Qaqc Painting Job Description Qc analysts are responsible for establishing, implementing, overseeing, and enforcing quality control standards in a manufacturing or. Working knowledge of pwht and the. • supervision of ongoing coating activities at the construction site and see to it that the work is in accordance with the engineering design and specification and within the. Liase with the site construction engineers and provide. Qaqc Painting Job Description.
From www.velvetjobs.com
Painter Job Description Velvet Jobs Qaqc Painting Job Description Prepare nonconformance reports to the qa manager and assist in developing corrective actions. Every material data sheet of the material to be supplied to the project has to be read by a quality engineer. Qc analysts are responsible for establishing, implementing, overseeing, and enforcing quality control standards in a manufacturing or. Review the material technical data sheet. Assist the site. Qaqc Painting Job Description.
From www.slideshare.net
QA/QC Engineer Job Description Qaqc Painting Job Description Prepare nonconformance reports to the qa manager and assist in developing corrective actions. Sample responsibilities for this position include: Checks and records atmospheric conditions prior to starting of. Qa, unfortunately, is a job description that is misunderstood across numerous industries, including paints and coatings. Liase with the site construction engineers and provide assistance when requested. Qa/qc engineer job description a. Qaqc Painting Job Description.
From www.velvetjobs.com
QA / QC Inspector Job Description Velvet Jobs Qaqc Painting Job Description Prepare nonconformance reports to the qa manager and assist in developing corrective actions. Review the material technical data sheet. Review all inspection reports for compliance. Working knowledge of pwht and the. Qa/qc engineer job description a quality assurance/quality control (qa/qc) engineer is responsible for ensuring that the products and services provided by a. Sample responsibilities for this position include: Every. Qaqc Painting Job Description.
From www.scribd.com
CV Qaqc Painting and Coating PDF Quality Assurance Paint Qaqc Painting Job Description Checks and records atmospheric conditions prior to starting of. Sample responsibilities for this position include: Review the material technical data sheet. • supervision of ongoing coating activities at the construction site and see to it that the work is in accordance with the engineering design and specification and within the. We have included qa / qc inspector job description templates. Qaqc Painting Job Description.
From www.academia.edu
(DOC) Position QA/QC PAINTING &COATING INSPECTOR (SAUDI ARAMCO Qaqc Painting Job Description Sample responsibilities for this position include: Qa, unfortunately, is a job description that is misunderstood across numerous industries, including paints and coatings. Performs qualifications of coating processes. Review the material technical data sheet. Assist the site qc manager in the organisation, maintenance and control of the quality system. Working knowledge of pwht and the. We have included qa / qc. Qaqc Painting Job Description.
From rolesresponsibility.netlify.app
Qaqc engineer roles and responsibilities Qaqc Painting Job Description Sample responsibilities for this position include: Prepare nonconformance reports to the qa manager and assist in developing corrective actions. Checks and records atmospheric conditions prior to starting of. Every material data sheet of the material to be supplied to the project has to be read by a quality engineer. Review all inspection reports for compliance. Review the material technical data. Qaqc Painting Job Description.
From www.velvetjobs.com
QA / QC Job Description Velvet Jobs Qaqc Painting Job Description • supervision of ongoing coating activities at the construction site and see to it that the work is in accordance with the engineering design and specification and within the. Checks and records atmospheric conditions prior to starting of. Qa/qc engineer job description a quality assurance/quality control (qa/qc) engineer is responsible for ensuring that the products and services provided by a.. Qaqc Painting Job Description.
From www.velvetjobs.com
QA / QC Job Description Velvet Jobs Qaqc Painting Job Description Assist the site qc manager in the organisation, maintenance and control of the quality system. Review all inspection reports for compliance. Qa, unfortunately, is a job description that is misunderstood across numerous industries, including paints and coatings. Performs qualifications of coating processes. Qa/qc engineer job description a quality assurance/quality control (qa/qc) engineer is responsible for ensuring that the products and. Qaqc Painting Job Description.
From www.scribd.com
Job Description Senior QAQC Coordinator PDF Business Qaqc Painting Job Description Sample responsibilities for this position include: Qa/qc engineer job description a quality assurance/quality control (qa/qc) engineer is responsible for ensuring that the products and services provided by a. Review the material technical data sheet. Every material data sheet of the material to be supplied to the project has to be read by a quality engineer. Prepare nonconformance reports to the. Qaqc Painting Job Description.
From www.velvetjobs.com
QA / QC Job Description Velvet Jobs Qaqc Painting Job Description Every material data sheet of the material to be supplied to the project has to be read by a quality engineer. Sample responsibilities for this position include: Qa/qc engineer job description a quality assurance/quality control (qa/qc) engineer is responsible for ensuring that the products and services provided by a. Assist the site qc manager in the organisation, maintenance and control. Qaqc Painting Job Description.
From www.slideshare.net
RESUME OF QAQC INSPECTOR COATING/PAINTING AND INSULATION Qaqc Painting Job Description Checks and records atmospheric conditions prior to starting of. Liase with the site construction engineers and provide assistance when requested. Qa/qc engineer job description a quality assurance/quality control (qa/qc) engineer is responsible for ensuring that the products and services provided by a. Every material data sheet of the material to be supplied to the project has to be read by. Qaqc Painting Job Description.
From rolesresponsibility.netlify.app
Qaqc engineer roles and responsibilities Qaqc Painting Job Description Review the material technical data sheet. • supervision of ongoing coating activities at the construction site and see to it that the work is in accordance with the engineering design and specification and within the. We have included qa / qc inspector job description templates that you can modify and use. Liase with the site construction engineers and provide assistance. Qaqc Painting Job Description.
From www.slideshare.net
RESUME OF QAQC INSPECTOR COATING/PAINTING AND INSULATION Qaqc Painting Job Description Prepare nonconformance reports to the qa manager and assist in developing corrective actions. Liase with the site construction engineers and provide assistance when requested. Review all inspection reports for compliance. Working knowledge of pwht and the. Checks and records atmospheric conditions prior to starting of. We have included qa / qc inspector job description templates that you can modify and. Qaqc Painting Job Description.
From www.velvetjobs.com
QA / QC Inspector Job Description Velvet Jobs Qaqc Painting Job Description Qc analysts are responsible for establishing, implementing, overseeing, and enforcing quality control standards in a manufacturing or. Qa, unfortunately, is a job description that is misunderstood across numerous industries, including paints and coatings. Performs qualifications of coating processes. We have included qa / qc inspector job description templates that you can modify and use. Checks and records atmospheric conditions prior. Qaqc Painting Job Description.
From joinoilfield.com
QAQC Civil, Mechanical, Piping, Electrical, Instrument and Painting Qaqc Painting Job Description Review the material technical data sheet. Review all inspection reports for compliance. We have included qa / qc inspector job description templates that you can modify and use. Liase with the site construction engineers and provide assistance when requested. Qa, unfortunately, is a job description that is misunderstood across numerous industries, including paints and coatings. • supervision of ongoing coating. Qaqc Painting Job Description.
From www.slideshare.net
RESUME OF QAQC INSPECTOR COATING/PAINTING AND INSULATION Qaqc Painting Job Description Assist the site qc manager in the organisation, maintenance and control of the quality system. Checks and records atmospheric conditions prior to starting of. Liase with the site construction engineers and provide assistance when requested. Qa/qc engineer job description a quality assurance/quality control (qa/qc) engineer is responsible for ensuring that the products and services provided by a. • supervision of. Qaqc Painting Job Description.
From uaesalary.com
QA QC Engineer Job Description + TEMPLATE for 2024 Qaqc Painting Job Description • supervision of ongoing coating activities at the construction site and see to it that the work is in accordance with the engineering design and specification and within the. Qa/qc engineer job description a quality assurance/quality control (qa/qc) engineer is responsible for ensuring that the products and services provided by a. Checks and records atmospheric conditions prior to starting of.. Qaqc Painting Job Description.
From rolesresponsibility.netlify.app
Qaqc engineer roles and responsibilities Qaqc Painting Job Description Liase with the site construction engineers and provide assistance when requested. Review all inspection reports for compliance. Performs qualifications of coating processes. Checks and records atmospheric conditions prior to starting of. • supervision of ongoing coating activities at the construction site and see to it that the work is in accordance with the engineering design and specification and within the.. Qaqc Painting Job Description.
From www.velvetjobs.com
QA / QC Engineer Job Description Velvet Jobs Qaqc Painting Job Description Assist the site qc manager in the organisation, maintenance and control of the quality system. Review all inspection reports for compliance. Working knowledge of pwht and the. Review the material technical data sheet. Sample responsibilities for this position include: Qa/qc engineer job description a quality assurance/quality control (qa/qc) engineer is responsible for ensuring that the products and services provided by. Qaqc Painting Job Description.
From rolesresponsibility.netlify.app
Qaqc engineer roles and responsibilities Qaqc Painting Job Description Every material data sheet of the material to be supplied to the project has to be read by a quality engineer. Liase with the site construction engineers and provide assistance when requested. Working knowledge of pwht and the. Qc analysts are responsible for establishing, implementing, overseeing, and enforcing quality control standards in a manufacturing or. Sample responsibilities for this position. Qaqc Painting Job Description.
From issuu.com
Basic Job Responsibilities and Job Description of a House Painter in Qaqc Painting Job Description Qa/qc engineer job description a quality assurance/quality control (qa/qc) engineer is responsible for ensuring that the products and services provided by a. Every material data sheet of the material to be supplied to the project has to be read by a quality engineer. Review the material technical data sheet. Qc analysts are responsible for establishing, implementing, overseeing, and enforcing quality. Qaqc Painting Job Description.
From assets.velvetjobs.com
QA / QC Manager Job Description Velvet Jobs Qaqc Painting Job Description Performs qualifications of coating processes. Qa, unfortunately, is a job description that is misunderstood across numerous industries, including paints and coatings. Checks and records atmospheric conditions prior to starting of. Working knowledge of pwht and the. Sample responsibilities for this position include: Prepare nonconformance reports to the qa manager and assist in developing corrective actions. Review all inspection reports for. Qaqc Painting Job Description.
From www.slideshare.net
ResumeQA/QC PAINTING INSPECTOR PDF Qaqc Painting Job Description We have included qa / qc inspector job description templates that you can modify and use. Review all inspection reports for compliance. Every material data sheet of the material to be supplied to the project has to be read by a quality engineer. • supervision of ongoing coating activities at the construction site and see to it that the work. Qaqc Painting Job Description.
From getjobber.com
Painter Job Description Guide + Free Template Jobber Qaqc Painting Job Description Liase with the site construction engineers and provide assistance when requested. We have included qa / qc inspector job description templates that you can modify and use. Qc analysts are responsible for establishing, implementing, overseeing, and enforcing quality control standards in a manufacturing or. Working knowledge of pwht and the. Performs qualifications of coating processes. Checks and records atmospheric conditions. Qaqc Painting Job Description.
From www.slideshare.net
ResumeQA/QC PAINTING INSPECTOR Qaqc Painting Job Description • supervision of ongoing coating activities at the construction site and see to it that the work is in accordance with the engineering design and specification and within the. Checks and records atmospheric conditions prior to starting of. Review the material technical data sheet. Working knowledge of pwht and the. Qc analysts are responsible for establishing, implementing, overseeing, and enforcing. Qaqc Painting Job Description.
From www.scribd.com
Job Description For QAQC Engineer PDF Consultant Quality Assurance Qaqc Painting Job Description Working knowledge of pwht and the. Liase with the site construction engineers and provide assistance when requested. Qc analysts are responsible for establishing, implementing, overseeing, and enforcing quality control standards in a manufacturing or. We have included qa / qc inspector job description templates that you can modify and use. Assist the site qc manager in the organisation, maintenance and. Qaqc Painting Job Description.
From www.scribd.com
QAQC Engineer Job Description PDF Quality Assurance Quality Qaqc Painting Job Description Review all inspection reports for compliance. Qa, unfortunately, is a job description that is misunderstood across numerous industries, including paints and coatings. Checks and records atmospheric conditions prior to starting of. Assist the site qc manager in the organisation, maintenance and control of the quality system. Prepare nonconformance reports to the qa manager and assist in developing corrective actions. •. Qaqc Painting Job Description.
From www.scribd.com
Contractor Quality Control Plan for Painting Work Inspection and Test Qaqc Painting Job Description • supervision of ongoing coating activities at the construction site and see to it that the work is in accordance with the engineering design and specification and within the. Prepare nonconformance reports to the qa manager and assist in developing corrective actions. Every material data sheet of the material to be supplied to the project has to be read by. Qaqc Painting Job Description.
From rolesresponsibility.netlify.app
Qaqc engineer job description and responsibilities roles Qaqc Painting Job Description Every material data sheet of the material to be supplied to the project has to be read by a quality engineer. • supervision of ongoing coating activities at the construction site and see to it that the work is in accordance with the engineering design and specification and within the. Checks and records atmospheric conditions prior to starting of. Performs. Qaqc Painting Job Description.
From www.slideshare.net
QA_QC PAINTING & COATING INSPECTOR KHURRAM HAFEEZ Qaqc Painting Job Description Every material data sheet of the material to be supplied to the project has to be read by a quality engineer. Qa, unfortunately, is a job description that is misunderstood across numerous industries, including paints and coatings. Liase with the site construction engineers and provide assistance when requested. Qa/qc engineer job description a quality assurance/quality control (qa/qc) engineer is responsible. Qaqc Painting Job Description.