How Much Pipe Bedding Do I Need . Avoid small pea gravel as the spaces in between stone is smaller minimizing flow rates. Proper bedding ensures the pipe's structural integrity by distributing loads evenly and reducing the risk of damage due to soil. Enter the diameter and wall thickness of the pipe, along with the soil or material properties, into the pipe bedding calculator. If the trench width increases, the load that will be carried by the pipe will also increase. Proper soil support of the pipe is critical to the performance of both types of pipe, and proper inspection of pipe installation. As a general rule, trench width should not exceed the pipe diameter plus 60 cm (2 feet). This calculator is designed to help you estimate the material cost (pipe bedding, infill material and pipes) for installation pipes using different bedding designs. Using a pipe bedding calculator can help construction professionals and engineers determine the correct amount and type of.
from www.youtube.com
Avoid small pea gravel as the spaces in between stone is smaller minimizing flow rates. If the trench width increases, the load that will be carried by the pipe will also increase. This calculator is designed to help you estimate the material cost (pipe bedding, infill material and pipes) for installation pipes using different bedding designs. As a general rule, trench width should not exceed the pipe diameter plus 60 cm (2 feet). Proper soil support of the pipe is critical to the performance of both types of pipe, and proper inspection of pipe installation. Proper bedding ensures the pipe's structural integrity by distributing loads evenly and reducing the risk of damage due to soil. Enter the diameter and wall thickness of the pipe, along with the soil or material properties, into the pipe bedding calculator. Using a pipe bedding calculator can help construction professionals and engineers determine the correct amount and type of.
Pipe Bedding Solutions rocking 8" sewer main with bedding box YouTube
How Much Pipe Bedding Do I Need If the trench width increases, the load that will be carried by the pipe will also increase. As a general rule, trench width should not exceed the pipe diameter plus 60 cm (2 feet). Avoid small pea gravel as the spaces in between stone is smaller minimizing flow rates. Using a pipe bedding calculator can help construction professionals and engineers determine the correct amount and type of. Proper bedding ensures the pipe's structural integrity by distributing loads evenly and reducing the risk of damage due to soil. If the trench width increases, the load that will be carried by the pipe will also increase. This calculator is designed to help you estimate the material cost (pipe bedding, infill material and pipes) for installation pipes using different bedding designs. Enter the diameter and wall thickness of the pipe, along with the soil or material properties, into the pipe bedding calculator. Proper soil support of the pipe is critical to the performance of both types of pipe, and proper inspection of pipe installation.
From www.mannesmann-linepipe.com
Pipe trench and bedding Mannesmann Line Pipe GmbH How Much Pipe Bedding Do I Need Using a pipe bedding calculator can help construction professionals and engineers determine the correct amount and type of. Avoid small pea gravel as the spaces in between stone is smaller minimizing flow rates. Proper soil support of the pipe is critical to the performance of both types of pipe, and proper inspection of pipe installation. As a general rule, trench. How Much Pipe Bedding Do I Need.
From www.scribd.com
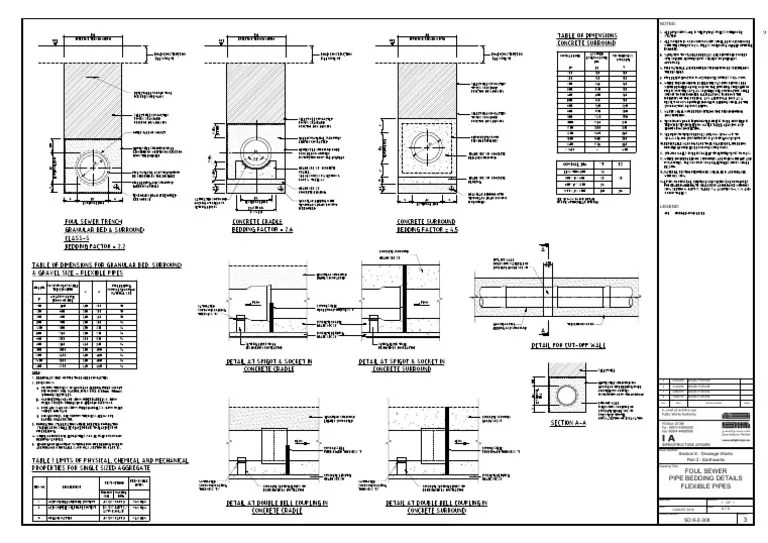
Pipe Bedding Details for Flexible Sewer Pipes PDF How Much Pipe Bedding Do I Need Avoid small pea gravel as the spaces in between stone is smaller minimizing flow rates. As a general rule, trench width should not exceed the pipe diameter plus 60 cm (2 feet). Using a pipe bedding calculator can help construction professionals and engineers determine the correct amount and type of. Proper bedding ensures the pipe's structural integrity by distributing loads. How Much Pipe Bedding Do I Need.
From www.highfield-group.co.uk
20mm Grit stone pipe bedding Highfield Group How Much Pipe Bedding Do I Need Avoid small pea gravel as the spaces in between stone is smaller minimizing flow rates. If the trench width increases, the load that will be carried by the pipe will also increase. This calculator is designed to help you estimate the material cost (pipe bedding, infill material and pipes) for installation pipes using different bedding designs. Enter the diameter and. How Much Pipe Bedding Do I Need.
From staginghb.com
Building Guidelines Part H Drainage Drainage systems How Much Pipe Bedding Do I Need As a general rule, trench width should not exceed the pipe diameter plus 60 cm (2 feet). If the trench width increases, the load that will be carried by the pipe will also increase. Proper soil support of the pipe is critical to the performance of both types of pipe, and proper inspection of pipe installation. Proper bedding ensures the. How Much Pipe Bedding Do I Need.
From birdiesandcupcakes.blogspot.com
Sewer Pipe Bedding How Much Pipe Bedding Do I Need If the trench width increases, the load that will be carried by the pipe will also increase. Avoid small pea gravel as the spaces in between stone is smaller minimizing flow rates. Using a pipe bedding calculator can help construction professionals and engineers determine the correct amount and type of. Enter the diameter and wall thickness of the pipe, along. How Much Pipe Bedding Do I Need.
From calculatorey.com
Pipe Bedding Calculator Calculatorey How Much Pipe Bedding Do I Need As a general rule, trench width should not exceed the pipe diameter plus 60 cm (2 feet). Proper bedding ensures the pipe's structural integrity by distributing loads evenly and reducing the risk of damage due to soil. Avoid small pea gravel as the spaces in between stone is smaller minimizing flow rates. This calculator is designed to help you estimate. How Much Pipe Bedding Do I Need.
From condronconcrete.ie
Bedding Details Condron Concrete How Much Pipe Bedding Do I Need This calculator is designed to help you estimate the material cost (pipe bedding, infill material and pipes) for installation pipes using different bedding designs. Proper bedding ensures the pipe's structural integrity by distributing loads evenly and reducing the risk of damage due to soil. Enter the diameter and wall thickness of the pipe, along with the soil or material properties,. How Much Pipe Bedding Do I Need.
From civilweb-spreadsheets.com
Pipe Bedding Factor Civil Spreadsheets How Much Pipe Bedding Do I Need Enter the diameter and wall thickness of the pipe, along with the soil or material properties, into the pipe bedding calculator. Proper bedding ensures the pipe's structural integrity by distributing loads evenly and reducing the risk of damage due to soil. If the trench width increases, the load that will be carried by the pipe will also increase. Avoid small. How Much Pipe Bedding Do I Need.
From civilweb-spreadsheets.com
Pipe Bedding Factor Civil Spreadsheets How Much Pipe Bedding Do I Need If the trench width increases, the load that will be carried by the pipe will also increase. This calculator is designed to help you estimate the material cost (pipe bedding, infill material and pipes) for installation pipes using different bedding designs. Proper bedding ensures the pipe's structural integrity by distributing loads evenly and reducing the risk of damage due to. How Much Pipe Bedding Do I Need.
From mcwaneductile.com
How Does Proper Bedding Allow a Pipe to “Sleep Well?" McWane Ductile How Much Pipe Bedding Do I Need Proper soil support of the pipe is critical to the performance of both types of pipe, and proper inspection of pipe installation. Using a pipe bedding calculator can help construction professionals and engineers determine the correct amount and type of. Proper bedding ensures the pipe's structural integrity by distributing loads evenly and reducing the risk of damage due to soil.. How Much Pipe Bedding Do I Need.
From buildingcriteria1.tpub.com
Figure C5. Flexible Pipe Bedding and Installation How Much Pipe Bedding Do I Need Using a pipe bedding calculator can help construction professionals and engineers determine the correct amount and type of. This calculator is designed to help you estimate the material cost (pipe bedding, infill material and pipes) for installation pipes using different bedding designs. Avoid small pea gravel as the spaces in between stone is smaller minimizing flow rates. If the trench. How Much Pipe Bedding Do I Need.
From www.eng-tips.com
Pipe Bedding Classes Structural engineering general discussion EngTips How Much Pipe Bedding Do I Need This calculator is designed to help you estimate the material cost (pipe bedding, infill material and pipes) for installation pipes using different bedding designs. Proper bedding ensures the pipe's structural integrity by distributing loads evenly and reducing the risk of damage due to soil. If the trench width increases, the load that will be carried by the pipe will also. How Much Pipe Bedding Do I Need.
From www.robinsonquarry.co.uk
10mm Pipe bedding Robinson Quarry Masters Limited How Much Pipe Bedding Do I Need Avoid small pea gravel as the spaces in between stone is smaller minimizing flow rates. This calculator is designed to help you estimate the material cost (pipe bedding, infill material and pipes) for installation pipes using different bedding designs. If the trench width increases, the load that will be carried by the pipe will also increase. Enter the diameter and. How Much Pipe Bedding Do I Need.
From www.eng-tips.com
Pipe Bedding Classes Structural engineering general discussion EngTips How Much Pipe Bedding Do I Need Proper bedding ensures the pipe's structural integrity by distributing loads evenly and reducing the risk of damage due to soil. As a general rule, trench width should not exceed the pipe diameter plus 60 cm (2 feet). This calculator is designed to help you estimate the material cost (pipe bedding, infill material and pipes) for installation pipes using different bedding. How Much Pipe Bedding Do I Need.
From www.dutil.com
Sewer Details Dalton Utilities How Much Pipe Bedding Do I Need If the trench width increases, the load that will be carried by the pipe will also increase. Avoid small pea gravel as the spaces in between stone is smaller minimizing flow rates. As a general rule, trench width should not exceed the pipe diameter plus 60 cm (2 feet). Enter the diameter and wall thickness of the pipe, along with. How Much Pipe Bedding Do I Need.
From www.yumpu.com
Requirements for Approval of Pipe Bedding Material and Fill Sand How Much Pipe Bedding Do I Need Avoid small pea gravel as the spaces in between stone is smaller minimizing flow rates. If the trench width increases, the load that will be carried by the pipe will also increase. As a general rule, trench width should not exceed the pipe diameter plus 60 cm (2 feet). Proper soil support of the pipe is critical to the performance. How Much Pipe Bedding Do I Need.
From www.planmarketplace.com
PVC Sanitary Sewer Pipe Bedding Detail Files, Plans and Details How Much Pipe Bedding Do I Need Using a pipe bedding calculator can help construction professionals and engineers determine the correct amount and type of. As a general rule, trench width should not exceed the pipe diameter plus 60 cm (2 feet). Enter the diameter and wall thickness of the pipe, along with the soil or material properties, into the pipe bedding calculator. Proper soil support of. How Much Pipe Bedding Do I Need.
From www.youtube.com
2019 PIPE BEDDING SOLUTIONS 12x3x2.5 For Sale YouTube How Much Pipe Bedding Do I Need Using a pipe bedding calculator can help construction professionals and engineers determine the correct amount and type of. As a general rule, trench width should not exceed the pipe diameter plus 60 cm (2 feet). Enter the diameter and wall thickness of the pipe, along with the soil or material properties, into the pipe bedding calculator. This calculator is designed. How Much Pipe Bedding Do I Need.
From www.scribd.com
Pipe Bedding 6pp_231015 Low Res Pipe (Fluid Conveyance) Building How Much Pipe Bedding Do I Need This calculator is designed to help you estimate the material cost (pipe bedding, infill material and pipes) for installation pipes using different bedding designs. As a general rule, trench width should not exceed the pipe diameter plus 60 cm (2 feet). Using a pipe bedding calculator can help construction professionals and engineers determine the correct amount and type of. Enter. How Much Pipe Bedding Do I Need.
From www.youtube.com
Pipe Bedding YouTube How Much Pipe Bedding Do I Need If the trench width increases, the load that will be carried by the pipe will also increase. As a general rule, trench width should not exceed the pipe diameter plus 60 cm (2 feet). Enter the diameter and wall thickness of the pipe, along with the soil or material properties, into the pipe bedding calculator. Using a pipe bedding calculator. How Much Pipe Bedding Do I Need.
From www.youtube.com
Pipe Laying 101 tamping down bedding to secure pipe to grade and line How Much Pipe Bedding Do I Need Proper soil support of the pipe is critical to the performance of both types of pipe, and proper inspection of pipe installation. As a general rule, trench width should not exceed the pipe diameter plus 60 cm (2 feet). Enter the diameter and wall thickness of the pipe, along with the soil or material properties, into the pipe bedding calculator.. How Much Pipe Bedding Do I Need.
From www.highfield-group.co.uk
10mm Gritstone / Pipe Bedding (Bulk Bag c. 800kg) Highfield Group How Much Pipe Bedding Do I Need Enter the diameter and wall thickness of the pipe, along with the soil or material properties, into the pipe bedding calculator. Proper bedding ensures the pipe's structural integrity by distributing loads evenly and reducing the risk of damage due to soil. Avoid small pea gravel as the spaces in between stone is smaller minimizing flow rates. This calculator is designed. How Much Pipe Bedding Do I Need.
From www.youtube.com
Pipe Bedding Solutions rocking 8" sewer main with bedding box YouTube How Much Pipe Bedding Do I Need Enter the diameter and wall thickness of the pipe, along with the soil or material properties, into the pipe bedding calculator. Avoid small pea gravel as the spaces in between stone is smaller minimizing flow rates. This calculator is designed to help you estimate the material cost (pipe bedding, infill material and pipes) for installation pipes using different bedding designs.. How Much Pipe Bedding Do I Need.
From calculatorshub.net
Pipe Bedding Calculator Online CalculatorsHub How Much Pipe Bedding Do I Need This calculator is designed to help you estimate the material cost (pipe bedding, infill material and pipes) for installation pipes using different bedding designs. Enter the diameter and wall thickness of the pipe, along with the soil or material properties, into the pipe bedding calculator. Proper soil support of the pipe is critical to the performance of both types of. How Much Pipe Bedding Do I Need.
From natural-stone-paving.co.uk
Recycled Pipe Bedding Natural Stone Paving How Much Pipe Bedding Do I Need Using a pipe bedding calculator can help construction professionals and engineers determine the correct amount and type of. As a general rule, trench width should not exceed the pipe diameter plus 60 cm (2 feet). If the trench width increases, the load that will be carried by the pipe will also increase. Proper soil support of the pipe is critical. How Much Pipe Bedding Do I Need.
From www.northwestaggregates.com
10mm Pipe Bedding Gravel Bulk Bag Concrete Pipe Bedding How Much Pipe Bedding Do I Need As a general rule, trench width should not exceed the pipe diameter plus 60 cm (2 feet). Proper bedding ensures the pipe's structural integrity by distributing loads evenly and reducing the risk of damage due to soil. Enter the diameter and wall thickness of the pipe, along with the soil or material properties, into the pipe bedding calculator. This calculator. How Much Pipe Bedding Do I Need.
From www.cadblocksfree.com
PIPE BEDDING Thousands of free CAD blocks How Much Pipe Bedding Do I Need As a general rule, trench width should not exceed the pipe diameter plus 60 cm (2 feet). Proper bedding ensures the pipe's structural integrity by distributing loads evenly and reducing the risk of damage due to soil. Avoid small pea gravel as the spaces in between stone is smaller minimizing flow rates. Enter the diameter and wall thickness of the. How Much Pipe Bedding Do I Need.
From www.texascrushedstoneco.com
Pipe Bedding Texas Crushed Stone Co. How Much Pipe Bedding Do I Need This calculator is designed to help you estimate the material cost (pipe bedding, infill material and pipes) for installation pipes using different bedding designs. Avoid small pea gravel as the spaces in between stone is smaller minimizing flow rates. As a general rule, trench width should not exceed the pipe diameter plus 60 cm (2 feet). Proper soil support of. How Much Pipe Bedding Do I Need.
From plumber.com.au
Know how to meet bedding regulations Master Plumbers Master Plumbers How Much Pipe Bedding Do I Need This calculator is designed to help you estimate the material cost (pipe bedding, infill material and pipes) for installation pipes using different bedding designs. Enter the diameter and wall thickness of the pipe, along with the soil or material properties, into the pipe bedding calculator. Proper bedding ensures the pipe's structural integrity by distributing loads evenly and reducing the risk. How Much Pipe Bedding Do I Need.
From www.youtube.com
Pipe Laying 101 More bedding brought around hunch and tamped down How Much Pipe Bedding Do I Need This calculator is designed to help you estimate the material cost (pipe bedding, infill material and pipes) for installation pipes using different bedding designs. If the trench width increases, the load that will be carried by the pipe will also increase. Proper soil support of the pipe is critical to the performance of both types of pipe, and proper inspection. How Much Pipe Bedding Do I Need.
From www.cadblocksfree.com
PIPE BEDDING DETAILS Thousands of free CAD blocks How Much Pipe Bedding Do I Need Avoid small pea gravel as the spaces in between stone is smaller minimizing flow rates. Using a pipe bedding calculator can help construction professionals and engineers determine the correct amount and type of. Enter the diameter and wall thickness of the pipe, along with the soil or material properties, into the pipe bedding calculator. Proper bedding ensures the pipe's structural. How Much Pipe Bedding Do I Need.
From civilweb-spreadsheets.com
Pipe Bedding Factor Civil Spreadsheets How Much Pipe Bedding Do I Need Proper soil support of the pipe is critical to the performance of both types of pipe, and proper inspection of pipe installation. As a general rule, trench width should not exceed the pipe diameter plus 60 cm (2 feet). Enter the diameter and wall thickness of the pipe, along with the soil or material properties, into the pipe bedding calculator.. How Much Pipe Bedding Do I Need.
From www.scribd.com
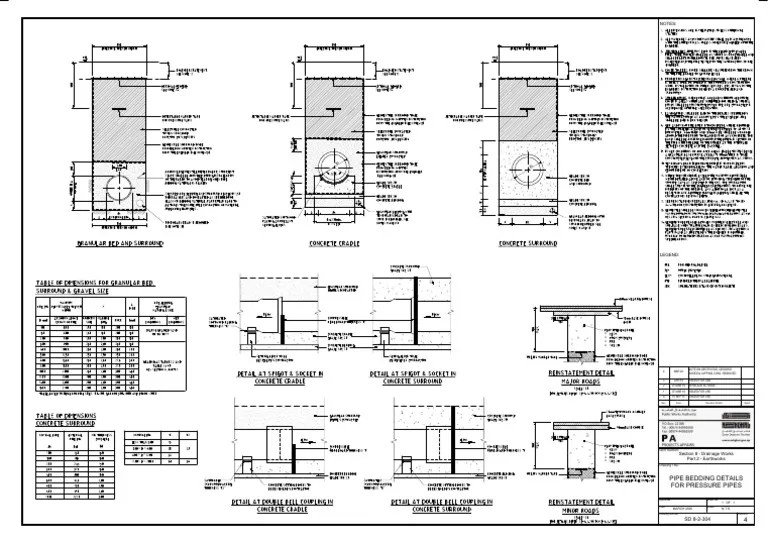
SD 82304 Pipe Bedding Details For Pressure Pipes Rev 4 PDF How Much Pipe Bedding Do I Need Proper soil support of the pipe is critical to the performance of both types of pipe, and proper inspection of pipe installation. If the trench width increases, the load that will be carried by the pipe will also increase. Enter the diameter and wall thickness of the pipe, along with the soil or material properties, into the pipe bedding calculator.. How Much Pipe Bedding Do I Need.
From www.onsiteinstaller.com
Keys to Watertight Septic Piping Cutting and… Onsite Installer How Much Pipe Bedding Do I Need Avoid small pea gravel as the spaces in between stone is smaller minimizing flow rates. Proper soil support of the pipe is critical to the performance of both types of pipe, and proper inspection of pipe installation. Proper bedding ensures the pipe's structural integrity by distributing loads evenly and reducing the risk of damage due to soil. If the trench. How Much Pipe Bedding Do I Need.
From www.oqgroup.co.uk
10/20mm Pipe Bedding Oxfordshire Quarry Group How Much Pipe Bedding Do I Need Using a pipe bedding calculator can help construction professionals and engineers determine the correct amount and type of. If the trench width increases, the load that will be carried by the pipe will also increase. Avoid small pea gravel as the spaces in between stone is smaller minimizing flow rates. As a general rule, trench width should not exceed the. How Much Pipe Bedding Do I Need.