Property Assessor Chester County Tn . The current trustee is lance beshires. You can use the options below to find property based on parcel number, owner name, property address, or subdivision name. The additional counties are linked to. The chester county assessor is responsible for appraising real estate and assessing a property tax on properties located in chester county,. This site allows anyone to search for property values and other key information about properties across the state of tennessee. Find property data from county assessors of property in 86 of tennessee's 95 counties. The chester county trustee collects property taxes for chester county. Chester county is a small county in west tennessee located 18 miles from jackson, tn and 89 miles from memphis, tn. Search our database of free henderson residential property tax assessment records, tax assessment history, land & improvement values, district. The chester county trustee is elected at large for a four year term.
from www.onlinedegree.com
Chester county is a small county in west tennessee located 18 miles from jackson, tn and 89 miles from memphis, tn. The chester county trustee collects property taxes for chester county. This site allows anyone to search for property values and other key information about properties across the state of tennessee. The additional counties are linked to. The chester county trustee is elected at large for a four year term. The chester county assessor is responsible for appraising real estate and assessing a property tax on properties located in chester county,. Find property data from county assessors of property in 86 of tennessee's 95 counties. You can use the options below to find property based on parcel number, owner name, property address, or subdivision name. Search our database of free henderson residential property tax assessment records, tax assessment history, land & improvement values, district. The current trustee is lance beshires.
Real Estate Assessor Salary, How to Job Description & Best Schools
Property Assessor Chester County Tn The chester county assessor is responsible for appraising real estate and assessing a property tax on properties located in chester county,. Search our database of free henderson residential property tax assessment records, tax assessment history, land & improvement values, district. The chester county trustee collects property taxes for chester county. You can use the options below to find property based on parcel number, owner name, property address, or subdivision name. Chester county is a small county in west tennessee located 18 miles from jackson, tn and 89 miles from memphis, tn. The current trustee is lance beshires. The chester county assessor is responsible for appraising real estate and assessing a property tax on properties located in chester county,. This site allows anyone to search for property values and other key information about properties across the state of tennessee. The additional counties are linked to. Find property data from county assessors of property in 86 of tennessee's 95 counties. The chester county trustee is elected at large for a four year term.
From cannoncountytn.gov
Property Assessor Cannon County, Tennessee Property Assessor Chester County Tn You can use the options below to find property based on parcel number, owner name, property address, or subdivision name. Find property data from county assessors of property in 86 of tennessee's 95 counties. This site allows anyone to search for property values and other key information about properties across the state of tennessee. The chester county trustee is elected. Property Assessor Chester County Tn.
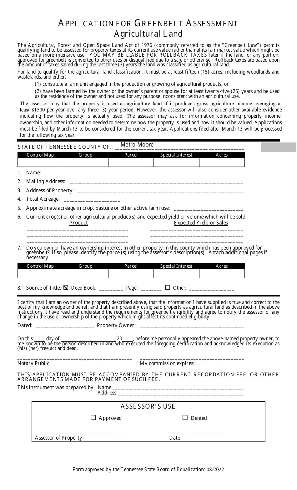
From tuttland.com
22+/ acres Chester Co LH02 Property Assessor Chester County Tn Search our database of free henderson residential property tax assessment records, tax assessment history, land & improvement values, district. Find property data from county assessors of property in 86 of tennessee's 95 counties. This site allows anyone to search for property values and other key information about properties across the state of tennessee. You can use the options below to. Property Assessor Chester County Tn.
From loeachdoa.blob.core.windows.net
Property Tax Assessor Memphis Tn at Mandy Blackburn blog Property Assessor Chester County Tn Chester county is a small county in west tennessee located 18 miles from jackson, tn and 89 miles from memphis, tn. You can use the options below to find property based on parcel number, owner name, property address, or subdivision name. The current trustee is lance beshires. The chester county trustee is elected at large for a four year term.. Property Assessor Chester County Tn.
From www.land.com
120 acres in Chester County, Tennessee Property Assessor Chester County Tn The chester county trustee is elected at large for a four year term. Search our database of free henderson residential property tax assessment records, tax assessment history, land & improvement values, district. Find property data from county assessors of property in 86 of tennessee's 95 counties. The current trustee is lance beshires. This site allows anyone to search for property. Property Assessor Chester County Tn.
From unicoicountytn.com
Assessor of Property Unicoi County, Tennessee Property Assessor Chester County Tn You can use the options below to find property based on parcel number, owner name, property address, or subdivision name. The chester county trustee collects property taxes for chester county. Search our database of free henderson residential property tax assessment records, tax assessment history, land & improvement values, district. This site allows anyone to search for property values and other. Property Assessor Chester County Tn.
From www.landwatch.com
Finger, Chester County, TN Farms and Ranches, Hunting Property, Horse Property for sale Property Property Assessor Chester County Tn The chester county trustee collects property taxes for chester county. Find property data from county assessors of property in 86 of tennessee's 95 counties. The chester county trustee is elected at large for a four year term. You can use the options below to find property based on parcel number, owner name, property address, or subdivision name. Search our database. Property Assessor Chester County Tn.
From www.land.com
10 acres in Chester County, Tennessee Property Assessor Chester County Tn Find property data from county assessors of property in 86 of tennessee's 95 counties. Search our database of free henderson residential property tax assessment records, tax assessment history, land & improvement values, district. This site allows anyone to search for property values and other key information about properties across the state of tennessee. Chester county is a small county in. Property Assessor Chester County Tn.
From exofoomlq.blob.core.windows.net
Davidson County Tn Property Tax Assessor at Steven Duncan blog Property Assessor Chester County Tn The current trustee is lance beshires. The additional counties are linked to. This site allows anyone to search for property values and other key information about properties across the state of tennessee. Search our database of free henderson residential property tax assessment records, tax assessment history, land & improvement values, district. Find property data from county assessors of property in. Property Assessor Chester County Tn.
From chestercountytn.org
Chester County, TN Property Assessor Chester County Tn Chester county is a small county in west tennessee located 18 miles from jackson, tn and 89 miles from memphis, tn. Find property data from county assessors of property in 86 of tennessee's 95 counties. You can use the options below to find property based on parcel number, owner name, property address, or subdivision name. The chester county trustee collects. Property Assessor Chester County Tn.
From tntribune.com
Metro Property Assessor Wilhoite Issues FirstEver Apparel for Field Appraisers The Tennessee Property Assessor Chester County Tn The current trustee is lance beshires. You can use the options below to find property based on parcel number, owner name, property address, or subdivision name. Search our database of free henderson residential property tax assessment records, tax assessment history, land & improvement values, district. The chester county trustee is elected at large for a four year term. The additional. Property Assessor Chester County Tn.
From www.onlinedegree.com
Real Estate Assessor Salary, How to Job Description & Best Schools Property Assessor Chester County Tn Find property data from county assessors of property in 86 of tennessee's 95 counties. The chester county assessor is responsible for appraising real estate and assessing a property tax on properties located in chester county,. The current trustee is lance beshires. Search our database of free henderson residential property tax assessment records, tax assessment history, land & improvement values, district.. Property Assessor Chester County Tn.
From cesycfuu.blob.core.windows.net
Fayette County Tn Tax Assessor Property Search at Samuel Berg blog Property Assessor Chester County Tn Find property data from county assessors of property in 86 of tennessee's 95 counties. You can use the options below to find property based on parcel number, owner name, property address, or subdivision name. The current trustee is lance beshires. Chester county is a small county in west tennessee located 18 miles from jackson, tn and 89 miles from memphis,. Property Assessor Chester County Tn.
From klaidbhcu.blob.core.windows.net
Real Estate Tax Assessment Tennessee at Gerald Farfan blog Property Assessor Chester County Tn Search our database of free henderson residential property tax assessment records, tax assessment history, land & improvement values, district. The chester county trustee is elected at large for a four year term. The current trustee is lance beshires. Chester county is a small county in west tennessee located 18 miles from jackson, tn and 89 miles from memphis, tn. This. Property Assessor Chester County Tn.
From chestercountytn.org
Chester County, TN Property Assessor Chester County Tn This site allows anyone to search for property values and other key information about properties across the state of tennessee. The chester county trustee collects property taxes for chester county. Find property data from county assessors of property in 86 of tennessee's 95 counties. The additional counties are linked to. Chester county is a small county in west tennessee located. Property Assessor Chester County Tn.
From www.templateroller.com
Tennessee Application for Greenbelt Assessment Forest Land Fill Out, Sign Online and Property Assessor Chester County Tn This site allows anyone to search for property values and other key information about properties across the state of tennessee. You can use the options below to find property based on parcel number, owner name, property address, or subdivision name. The chester county trustee collects property taxes for chester county. The current trustee is lance beshires. Search our database of. Property Assessor Chester County Tn.
From chestercountytn.org
Chester County, TN Property Assessor Chester County Tn Find property data from county assessors of property in 86 of tennessee's 95 counties. The current trustee is lance beshires. The chester county trustee is elected at large for a four year term. The additional counties are linked to. Chester county is a small county in west tennessee located 18 miles from jackson, tn and 89 miles from memphis, tn.. Property Assessor Chester County Tn.
From www.realtor.com
Chester County, TN Real Estate & Homes for Sale Property Assessor Chester County Tn This site allows anyone to search for property values and other key information about properties across the state of tennessee. The current trustee is lance beshires. You can use the options below to find property based on parcel number, owner name, property address, or subdivision name. The additional counties are linked to. Find property data from county assessors of property. Property Assessor Chester County Tn.
From comptroller.tn.gov
Comptroller’s Office Launches Redesigned Property Assessment Data page Property Assessor Chester County Tn Search our database of free henderson residential property tax assessment records, tax assessment history, land & improvement values, district. The current trustee is lance beshires. This site allows anyone to search for property values and other key information about properties across the state of tennessee. You can use the options below to find property based on parcel number, owner name,. Property Assessor Chester County Tn.
From www.facebook.com
Chester County Assessor of Property Henderson TN Property Assessor Chester County Tn Search our database of free henderson residential property tax assessment records, tax assessment history, land & improvement values, district. The chester county trustee collects property taxes for chester county. The chester county trustee is elected at large for a four year term. The chester county assessor is responsible for appraising real estate and assessing a property tax on properties located. Property Assessor Chester County Tn.
From lakecountytn.gov
Home Lake County, TN Government Property Assessor Chester County Tn This site allows anyone to search for property values and other key information about properties across the state of tennessee. The chester county assessor is responsible for appraising real estate and assessing a property tax on properties located in chester county,. The current trustee is lance beshires. Chester county is a small county in west tennessee located 18 miles from. Property Assessor Chester County Tn.
From www.landsofamerica.com
1 acres in Chester County, Tennessee Property Assessor Chester County Tn The chester county trustee collects property taxes for chester county. Search our database of free henderson residential property tax assessment records, tax assessment history, land & improvement values, district. You can use the options below to find property based on parcel number, owner name, property address, or subdivision name. The chester county trustee is elected at large for a four. Property Assessor Chester County Tn.
From www.mapsofworld.com
Chester County Map, TN Map of Chester County Tennessee Property Assessor Chester County Tn You can use the options below to find property based on parcel number, owner name, property address, or subdivision name. The chester county trustee collects property taxes for chester county. The chester county trustee is elected at large for a four year term. Chester county is a small county in west tennessee located 18 miles from jackson, tn and 89. Property Assessor Chester County Tn.
From exofoomlq.blob.core.windows.net
Davidson County Tn Property Tax Assessor at Steven Duncan blog Property Assessor Chester County Tn The current trustee is lance beshires. You can use the options below to find property based on parcel number, owner name, property address, or subdivision name. Chester county is a small county in west tennessee located 18 miles from jackson, tn and 89 miles from memphis, tn. This site allows anyone to search for property values and other key information. Property Assessor Chester County Tn.
From chestercountyindependent.com
Chester County districts/voting precincts finalized Chester County Independent Property Assessor Chester County Tn The chester county trustee is elected at large for a four year term. The chester county trustee collects property taxes for chester county. Search our database of free henderson residential property tax assessment records, tax assessment history, land & improvement values, district. The chester county assessor is responsible for appraising real estate and assessing a property tax on properties located. Property Assessor Chester County Tn.
From chestercountytn.org
Chester County, TN Property Assessor Chester County Tn The current trustee is lance beshires. The additional counties are linked to. Search our database of free henderson residential property tax assessment records, tax assessment history, land & improvement values, district. The chester county trustee collects property taxes for chester county. Find property data from county assessors of property in 86 of tennessee's 95 counties. The chester county assessor is. Property Assessor Chester County Tn.
From haywoodtn.gov
Property Assessor Haywood County, Tennessee Property Assessor Chester County Tn Find property data from county assessors of property in 86 of tennessee's 95 counties. The current trustee is lance beshires. Chester county is a small county in west tennessee located 18 miles from jackson, tn and 89 miles from memphis, tn. The chester county trustee collects property taxes for chester county. The chester county assessor is responsible for appraising real. Property Assessor Chester County Tn.
From www.realtor.com
Chester County, TN Real Estate & Homes for Sale Property Assessor Chester County Tn The chester county assessor is responsible for appraising real estate and assessing a property tax on properties located in chester county,. You can use the options below to find property based on parcel number, owner name, property address, or subdivision name. This site allows anyone to search for property values and other key information about properties across the state of. Property Assessor Chester County Tn.
From chestercountytn.org
Chester County, TN Property Assessor Chester County Tn The chester county trustee collects property taxes for chester county. This site allows anyone to search for property values and other key information about properties across the state of tennessee. The chester county trustee is elected at large for a four year term. Find property data from county assessors of property in 86 of tennessee's 95 counties. You can use. Property Assessor Chester County Tn.
From www.landsofamerica.com
74.8 acres in Chester County, Tennessee Property Assessor Chester County Tn The chester county trustee collects property taxes for chester county. Find property data from county assessors of property in 86 of tennessee's 95 counties. You can use the options below to find property based on parcel number, owner name, property address, or subdivision name. Search our database of free henderson residential property tax assessment records, tax assessment history, land &. Property Assessor Chester County Tn.
From chestercountytn.org
Chester County, TN Property Assessor Chester County Tn The chester county trustee is elected at large for a four year term. Search our database of free henderson residential property tax assessment records, tax assessment history, land & improvement values, district. The chester county trustee collects property taxes for chester county. The additional counties are linked to. You can use the options below to find property based on parcel. Property Assessor Chester County Tn.
From clarksvillenow.com
Property Assessor Erinne Hester elected president of Tennessee Association of Assessing Officers Property Assessor Chester County Tn The additional counties are linked to. The chester county trustee is elected at large for a four year term. Chester county is a small county in west tennessee located 18 miles from jackson, tn and 89 miles from memphis, tn. The current trustee is lance beshires. Find property data from county assessors of property in 86 of tennessee's 95 counties.. Property Assessor Chester County Tn.
From truerochester.com
Exterior Improvement for Chester County Homes Chester County Homes True Rochester Property Assessor Chester County Tn You can use the options below to find property based on parcel number, owner name, property address, or subdivision name. The additional counties are linked to. The chester county trustee is elected at large for a four year term. The chester county assessor is responsible for appraising real estate and assessing a property tax on properties located in chester county,.. Property Assessor Chester County Tn.
From www.countryhomesofamerica.com
5.5 acres in Chester County, Tennessee Property Assessor Chester County Tn The additional counties are linked to. The current trustee is lance beshires. Chester county is a small county in west tennessee located 18 miles from jackson, tn and 89 miles from memphis, tn. The chester county trustee is elected at large for a four year term. Search our database of free henderson residential property tax assessment records, tax assessment history,. Property Assessor Chester County Tn.
From www.tncenturyfarms.org
Chester County Tennessee Century Farms Property Assessor Chester County Tn The chester county trustee is elected at large for a four year term. This site allows anyone to search for property values and other key information about properties across the state of tennessee. The additional counties are linked to. The chester county assessor is responsible for appraising real estate and assessing a property tax on properties located in chester county,.. Property Assessor Chester County Tn.
From www.pinterest.com
Tennessee Property Data Home Page Assessment data, Data, Tennessee Property Assessor Chester County Tn The chester county assessor is responsible for appraising real estate and assessing a property tax on properties located in chester county,. You can use the options below to find property based on parcel number, owner name, property address, or subdivision name. The current trustee is lance beshires. The chester county trustee is elected at large for a four year term.. Property Assessor Chester County Tn.