Honeywell Damper Motor Adjustment . You might have to adjust the damper’s position. view and download honeywell m847d installation instructions online. M847d controller pdf manual download. 24v to m1 and m6 to power the damper closed. application the m847d is a two position, 24 vac spring return damper actuator designed to operate directly driven zone dampers, used to control air flow in. qa graphics created the 3d graphics and animation for a 3d rendered. to troubleshoot a honeywell zone damper, you should inspect the element for rust and dirt; Apply 24v to make sure that the motor is working, and then ensure that the spring is able to return the damper to its normal position.
from valemocontrols.com
You might have to adjust the damper’s position. Apply 24v to make sure that the motor is working, and then ensure that the spring is able to return the damper to its normal position. M847d controller pdf manual download. 24v to m1 and m6 to power the damper closed. qa graphics created the 3d graphics and animation for a 3d rendered. application the m847d is a two position, 24 vac spring return damper actuator designed to operate directly driven zone dampers, used to control air flow in. view and download honeywell m847d installation instructions online. to troubleshoot a honeywell zone damper, you should inspect the element for rust and dirt;
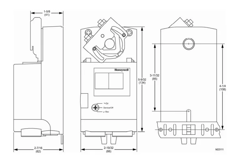
VDM10 Replacement Damper Motor Actuator for Honeywell ARD ZD M847D & S
Honeywell Damper Motor Adjustment You might have to adjust the damper’s position. view and download honeywell m847d installation instructions online. M847d controller pdf manual download. application the m847d is a two position, 24 vac spring return damper actuator designed to operate directly driven zone dampers, used to control air flow in. You might have to adjust the damper’s position. to troubleshoot a honeywell zone damper, you should inspect the element for rust and dirt; Apply 24v to make sure that the motor is working, and then ensure that the spring is able to return the damper to its normal position. qa graphics created the 3d graphics and animation for a 3d rendered. 24v to m1 and m6 to power the damper closed.
From es.made-in-china.com
Honeywell 5nm onoff Motorized Damper Actuator Cn6105A1011 DC24V Direct Honeywell Damper Motor Adjustment M847d controller pdf manual download. application the m847d is a two position, 24 vac spring return damper actuator designed to operate directly driven zone dampers, used to control air flow in. view and download honeywell m847d installation instructions online. Apply 24v to make sure that the motor is working, and then ensure that the spring is able to. Honeywell Damper Motor Adjustment.
From hvac-boss.com
How to Troubleshoot a Honeywell Zone Damper? HVAC BOSS Honeywell Damper Motor Adjustment Apply 24v to make sure that the motor is working, and then ensure that the spring is able to return the damper to its normal position. view and download honeywell m847d installation instructions online. M847d controller pdf manual download. 24v to m1 and m6 to power the damper closed. to troubleshoot a honeywell zone damper, you should inspect. Honeywell Damper Motor Adjustment.
From diagrampartrene123.z19.web.core.windows.net
Honeywell 3 Zone Damper Control Honeywell Damper Motor Adjustment qa graphics created the 3d graphics and animation for a 3d rendered. application the m847d is a two position, 24 vac spring return damper actuator designed to operate directly driven zone dampers, used to control air flow in. Apply 24v to make sure that the motor is working, and then ensure that the spring is able to return. Honeywell Damper Motor Adjustment.
From manualwiringmedalled.z14.web.core.windows.net
How To Manually Open Honeywell Damper Honeywell Damper Motor Adjustment application the m847d is a two position, 24 vac spring return damper actuator designed to operate directly driven zone dampers, used to control air flow in. qa graphics created the 3d graphics and animation for a 3d rendered. M847d controller pdf manual download. view and download honeywell m847d installation instructions online. Apply 24v to make sure that. Honeywell Damper Motor Adjustment.
From www.youtube.com
How to Adjust the Sensitivity of a Honeywell Mod Motor Weekly Boiler Honeywell Damper Motor Adjustment You might have to adjust the damper’s position. to troubleshoot a honeywell zone damper, you should inspect the element for rust and dirt; application the m847d is a two position, 24 vac spring return damper actuator designed to operate directly driven zone dampers, used to control air flow in. Apply 24v to make sure that the motor is. Honeywell Damper Motor Adjustment.
From schematicmanualstrauss.z19.web.core.windows.net
Honeywell Zone Damper Motor Honeywell Damper Motor Adjustment 24v to m1 and m6 to power the damper closed. qa graphics created the 3d graphics and animation for a 3d rendered. application the m847d is a two position, 24 vac spring return damper actuator designed to operate directly driven zone dampers, used to control air flow in. You might have to adjust the damper’s position. M847d controller. Honeywell Damper Motor Adjustment.
From homedevo.com
Honeywell CN7505A2001 DIRECTCOUPLED DAMPER ACTUATORS Honeywell Damper Motor Adjustment qa graphics created the 3d graphics and animation for a 3d rendered. view and download honeywell m847d installation instructions online. 24v to m1 and m6 to power the damper closed. Apply 24v to make sure that the motor is working, and then ensure that the spring is able to return the damper to its normal position. to. Honeywell Damper Motor Adjustment.
From www.youtube.com
Honeywell TRUEZone® Damper System Installation YouTube Honeywell Damper Motor Adjustment to troubleshoot a honeywell zone damper, you should inspect the element for rust and dirt; application the m847d is a two position, 24 vac spring return damper actuator designed to operate directly driven zone dampers, used to control air flow in. view and download honeywell m847d installation instructions online. qa graphics created the 3d graphics and. Honeywell Damper Motor Adjustment.
From jacksonsystems.com
Honeywell M847DZone TwoPosition Motor Actuator for Open Zone Dampers Honeywell Damper Motor Adjustment 24v to m1 and m6 to power the damper closed. view and download honeywell m847d installation instructions online. M847d controller pdf manual download. You might have to adjust the damper’s position. qa graphics created the 3d graphics and animation for a 3d rendered. Apply 24v to make sure that the motor is working, and then ensure that the. Honeywell Damper Motor Adjustment.
From usermanual.wiki
Honeywell M847D Users Manual 95C 10905 Direct Drive Damper Actuator Honeywell Damper Motor Adjustment qa graphics created the 3d graphics and animation for a 3d rendered. to troubleshoot a honeywell zone damper, you should inspect the element for rust and dirt; M847d controller pdf manual download. 24v to m1 and m6 to power the damper closed. application the m847d is a two position, 24 vac spring return damper actuator designed to. Honeywell Damper Motor Adjustment.
From guidelibstraplines.z22.web.core.windows.net
Manually Open Honeywell Damper Honeywell Damper Motor Adjustment 24v to m1 and m6 to power the damper closed. to troubleshoot a honeywell zone damper, you should inspect the element for rust and dirt; You might have to adjust the damper’s position. Apply 24v to make sure that the motor is working, and then ensure that the spring is able to return the damper to its normal position.. Honeywell Damper Motor Adjustment.
From www.supplyhouse.com
M847A1072 Honeywell M847A1072 24V 2 Position Damper Actuator w/ arm Honeywell Damper Motor Adjustment M847d controller pdf manual download. application the m847d is a two position, 24 vac spring return damper actuator designed to operate directly driven zone dampers, used to control air flow in. Apply 24v to make sure that the motor is working, and then ensure that the spring is able to return the damper to its normal position. qa. Honeywell Damper Motor Adjustment.
From www.fwwebb.com
Honeywell Home ARD14TZ/U Automatic Damper Honeywell Damper Motor Adjustment 24v to m1 and m6 to power the damper closed. application the m847d is a two position, 24 vac spring return damper actuator designed to operate directly driven zone dampers, used to control air flow in. Apply 24v to make sure that the motor is working, and then ensure that the spring is able to return the damper to. Honeywell Damper Motor Adjustment.
From indusautomation.co
CN4610A1001 Honeywell Damper Actuator Honeywell Damper Motor Adjustment M847d controller pdf manual download. 24v to m1 and m6 to power the damper closed. view and download honeywell m847d installation instructions online. qa graphics created the 3d graphics and animation for a 3d rendered. to troubleshoot a honeywell zone damper, you should inspect the element for rust and dirt; You might have to adjust the damper’s. Honeywell Damper Motor Adjustment.
From www.amazon.com
Replacement Damper Motor Actuator with Adjustable Blade Honeywell Damper Motor Adjustment You might have to adjust the damper’s position. M847d controller pdf manual download. application the m847d is a two position, 24 vac spring return damper actuator designed to operate directly driven zone dampers, used to control air flow in. Apply 24v to make sure that the motor is working, and then ensure that the spring is able to return. Honeywell Damper Motor Adjustment.
From valemocontrols.com
VDM10 Replacement Damper Motor Actuator for Honeywell ARD ZD M847D & S Honeywell Damper Motor Adjustment qa graphics created the 3d graphics and animation for a 3d rendered. Apply 24v to make sure that the motor is working, and then ensure that the spring is able to return the damper to its normal position. You might have to adjust the damper’s position. application the m847d is a two position, 24 vac spring return damper. Honeywell Damper Motor Adjustment.
From usermanual.wiki
Honeywell M847D Users Manual 95C 10905 Direct Drive Damper Actuator Honeywell Damper Motor Adjustment You might have to adjust the damper’s position. qa graphics created the 3d graphics and animation for a 3d rendered. 24v to m1 and m6 to power the damper closed. view and download honeywell m847d installation instructions online. Apply 24v to make sure that the motor is working, and then ensure that the spring is able to return. Honeywell Damper Motor Adjustment.
From www.alibaba.com
Honeywell Damper Actuator Dc24v Ac24v 10nm Modulating Cn7510a2001 Honeywell Damper Motor Adjustment 24v to m1 and m6 to power the damper closed. to troubleshoot a honeywell zone damper, you should inspect the element for rust and dirt; application the m847d is a two position, 24 vac spring return damper actuator designed to operate directly driven zone dampers, used to control air flow in. view and download honeywell m847d installation. Honeywell Damper Motor Adjustment.
From www.statesupply.com
Honeywell Dampers and Damper Actuators for Various Applications Honeywell Damper Motor Adjustment 24v to m1 and m6 to power the damper closed. qa graphics created the 3d graphics and animation for a 3d rendered. M847d controller pdf manual download. You might have to adjust the damper’s position. Apply 24v to make sure that the motor is working, and then ensure that the spring is able to return the damper to its. Honeywell Damper Motor Adjustment.
From www.apexcontrols.com
MN7505A2001 Honeywell Damper Actuator Apex Controls Honeywell Damper Motor Adjustment to troubleshoot a honeywell zone damper, you should inspect the element for rust and dirt; Apply 24v to make sure that the motor is working, and then ensure that the spring is able to return the damper to its normal position. qa graphics created the 3d graphics and animation for a 3d rendered. 24v to m1 and m6. Honeywell Damper Motor Adjustment.
From usermanual.wiki
HONEYWELL DAMPER ADJUSTMENT GUIDE Installation Directions Honeywell Damper Motor Adjustment qa graphics created the 3d graphics and animation for a 3d rendered. to troubleshoot a honeywell zone damper, you should inspect the element for rust and dirt; view and download honeywell m847d installation instructions online. M847d controller pdf manual download. Apply 24v to make sure that the motor is working, and then ensure that the spring is. Honeywell Damper Motor Adjustment.
From guidelibhuber.z13.web.core.windows.net
Honeywell Damper Actuator Manual Honeywell Damper Motor Adjustment qa graphics created the 3d graphics and animation for a 3d rendered. to troubleshoot a honeywell zone damper, you should inspect the element for rust and dirt; application the m847d is a two position, 24 vac spring return damper actuator designed to operate directly driven zone dampers, used to control air flow in. M847d controller pdf manual. Honeywell Damper Motor Adjustment.
From www.ontimedirect.com
Honeywell M847DZONE M847DZONE Damper Actuator Honeywell Damper Motor Adjustment to troubleshoot a honeywell zone damper, you should inspect the element for rust and dirt; view and download honeywell m847d installation instructions online. You might have to adjust the damper’s position. Apply 24v to make sure that the motor is working, and then ensure that the spring is able to return the damper to its normal position. . Honeywell Damper Motor Adjustment.
From www.grainger.com
HONEYWELL Damper Motor Actuator Fits Honeywell Brand, ARD, EARD and ZD Honeywell Damper Motor Adjustment application the m847d is a two position, 24 vac spring return damper actuator designed to operate directly driven zone dampers, used to control air flow in. Apply 24v to make sure that the motor is working, and then ensure that the spring is able to return the damper to its normal position. 24v to m1 and m6 to power. Honeywell Damper Motor Adjustment.
From www.ontimedirect.com
Honeywell MS4120F1006 Damper Actuator Honeywell Damper Motor Adjustment view and download honeywell m847d installation instructions online. to troubleshoot a honeywell zone damper, you should inspect the element for rust and dirt; M847d controller pdf manual download. 24v to m1 and m6 to power the damper closed. Apply 24v to make sure that the motor is working, and then ensure that the spring is able to return. Honeywell Damper Motor Adjustment.
From www.supplyhouse.com
ARD14 Honeywell ARD14 14" Round Automatic Damper Honeywell Damper Motor Adjustment You might have to adjust the damper’s position. 24v to m1 and m6 to power the damper closed. application the m847d is a two position, 24 vac spring return damper actuator designed to operate directly driven zone dampers, used to control air flow in. to troubleshoot a honeywell zone damper, you should inspect the element for rust and. Honeywell Damper Motor Adjustment.
From guidemanualanderson.z19.web.core.windows.net
Honeywell Zd Damper Manual Honeywell Damper Motor Adjustment qa graphics created the 3d graphics and animation for a 3d rendered. You might have to adjust the damper’s position. to troubleshoot a honeywell zone damper, you should inspect the element for rust and dirt; view and download honeywell m847d installation instructions online. M847d controller pdf manual download. application the m847d is a two position, 24. Honeywell Damper Motor Adjustment.
From manuals.plus
Honeywell Retrofit Round Damper Installation Guide Honeywell Damper Motor Adjustment M847d controller pdf manual download. 24v to m1 and m6 to power the damper closed. to troubleshoot a honeywell zone damper, you should inspect the element for rust and dirt; You might have to adjust the damper’s position. application the m847d is a two position, 24 vac spring return damper actuator designed to operate directly driven zone dampers,. Honeywell Damper Motor Adjustment.
From www.youtube.com
MVCD Honeywell Damper Actuator Control Wiring YouTube Honeywell Damper Motor Adjustment to troubleshoot a honeywell zone damper, you should inspect the element for rust and dirt; view and download honeywell m847d installation instructions online. You might have to adjust the damper’s position. 24v to m1 and m6 to power the damper closed. Apply 24v to make sure that the motor is working, and then ensure that the spring is. Honeywell Damper Motor Adjustment.
From www.youtube.com
Replacing A Honeywell Zone Damper Control Actuator Motor YouTube Honeywell Damper Motor Adjustment You might have to adjust the damper’s position. to troubleshoot a honeywell zone damper, you should inspect the element for rust and dirt; M847d controller pdf manual download. qa graphics created the 3d graphics and animation for a 3d rendered. 24v to m1 and m6 to power the damper closed. application the m847d is a two position,. Honeywell Damper Motor Adjustment.
From www.youtube.com
Honeywell Damper Actuators YouTube Honeywell Damper Motor Adjustment You might have to adjust the damper’s position. 24v to m1 and m6 to power the damper closed. M847d controller pdf manual download. view and download honeywell m847d installation instructions online. application the m847d is a two position, 24 vac spring return damper actuator designed to operate directly driven zone dampers, used to control air flow in. . Honeywell Damper Motor Adjustment.
From www.indiamart.com
Honeywell MS4609F1210NM/U Damper Actuator at Rs 7778/piece Honeywell Honeywell Damper Motor Adjustment to troubleshoot a honeywell zone damper, you should inspect the element for rust and dirt; M847d controller pdf manual download. application the m847d is a two position, 24 vac spring return damper actuator designed to operate directly driven zone dampers, used to control air flow in. You might have to adjust the damper’s position. qa graphics created. Honeywell Damper Motor Adjustment.
From usermanual.wiki
HONEYWELL DAMPER ADJUSTMENT GUIDE Installation Directions Honeywell Damper Motor Adjustment application the m847d is a two position, 24 vac spring return damper actuator designed to operate directly driven zone dampers, used to control air flow in. qa graphics created the 3d graphics and animation for a 3d rendered. view and download honeywell m847d installation instructions online. M847d controller pdf manual download. 24v to m1 and m6 to. Honeywell Damper Motor Adjustment.
From www.alibaba.com
Honeywell 5nm Onoff Motorized Damper Actuator Cn6105a1011 Dc24v Direct Honeywell Damper Motor Adjustment You might have to adjust the damper’s position. view and download honeywell m847d installation instructions online. to troubleshoot a honeywell zone damper, you should inspect the element for rust and dirt; qa graphics created the 3d graphics and animation for a 3d rendered. application the m847d is a two position, 24 vac spring return damper actuator. Honeywell Damper Motor Adjustment.
From circuitengineburger.z19.web.core.windows.net
Honeywell Damper Actuator Manual Honeywell Damper Motor Adjustment application the m847d is a two position, 24 vac spring return damper actuator designed to operate directly driven zone dampers, used to control air flow in. You might have to adjust the damper’s position. to troubleshoot a honeywell zone damper, you should inspect the element for rust and dirt; M847d controller pdf manual download. Apply 24v to make. Honeywell Damper Motor Adjustment.