What Is Dorm Room Square Footage . The size of a dorm room depends on the number of occupants it can handle. Within that space, you will probably. Square footage directly impacts your comfort, personal space, and ability to move around. This is approximately 228 square feet of actual living space. Dorm rooms at colleges and universities average around 12 by 19 feet. Knowing your dorm’s square footage is. In general, the size of college dorms rank in this order from biggest to smallest: Dorms are known for their small size, with standard doom rooms measuring 12 by 19 feet for 228 square feet of living space. A dorm room for three students will. How big is a college dorm room? Most dorm rooms in the united states typically range from 180 to 250 square feet. This size can vary significantly based on. The biggest difference between a dorm room and an apartment is the amount of space you'll have.
from www.clicbrics.com
Dorm rooms at colleges and universities average around 12 by 19 feet. The biggest difference between a dorm room and an apartment is the amount of space you'll have. Knowing your dorm’s square footage is. In general, the size of college dorms rank in this order from biggest to smallest: This is approximately 228 square feet of actual living space. The size of a dorm room depends on the number of occupants it can handle. This size can vary significantly based on. Dorms are known for their small size, with standard doom rooms measuring 12 by 19 feet for 228 square feet of living space. Square footage directly impacts your comfort, personal space, and ability to move around. How big is a college dorm room?
A Beginners Guide To Measuring The Square Footage of Your Property
What Is Dorm Room Square Footage A dorm room for three students will. In general, the size of college dorms rank in this order from biggest to smallest: Most dorm rooms in the united states typically range from 180 to 250 square feet. Dorm rooms at colleges and universities average around 12 by 19 feet. Dorms are known for their small size, with standard doom rooms measuring 12 by 19 feet for 228 square feet of living space. This is approximately 228 square feet of actual living space. Within that space, you will probably. The biggest difference between a dorm room and an apartment is the amount of space you'll have. This size can vary significantly based on. How big is a college dorm room? The size of a dorm room depends on the number of occupants it can handle. Knowing your dorm’s square footage is. A dorm room for three students will. Square footage directly impacts your comfort, personal space, and ability to move around.
From www.pinterest.com
TTU West Village "D" room is longer but not as wide as the other rooms What Is Dorm Room Square Footage Most dorm rooms in the united states typically range from 180 to 250 square feet. In general, the size of college dorms rank in this order from biggest to smallest: This size can vary significantly based on. The size of a dorm room depends on the number of occupants it can handle. This is approximately 228 square feet of actual. What Is Dorm Room Square Footage.
From www.pinterest.ph
Standard 3D Floor Plans Dorm Layout, Dorm Room Layouts, Dorm Room Hacks What Is Dorm Room Square Footage This size can vary significantly based on. Within that space, you will probably. Most dorm rooms in the united states typically range from 180 to 250 square feet. Dorms are known for their small size, with standard doom rooms measuring 12 by 19 feet for 228 square feet of living space. Knowing your dorm’s square footage is. How big is. What Is Dorm Room Square Footage.
From www.newhomesguide.com
How to Measure and Understand Your Home’s Square Footage New Homes What Is Dorm Room Square Footage This is approximately 228 square feet of actual living space. Square footage directly impacts your comfort, personal space, and ability to move around. Dorms are known for their small size, with standard doom rooms measuring 12 by 19 feet for 228 square feet of living space. Knowing your dorm’s square footage is. Dorm rooms at colleges and universities average around. What Is Dorm Room Square Footage.
From www.gramedias.com
How To Measure Room Size What Is Dorm Room Square Footage In general, the size of college dorms rank in this order from biggest to smallest: Knowing your dorm’s square footage is. How big is a college dorm room? A dorm room for three students will. Dorms are known for their small size, with standard doom rooms measuring 12 by 19 feet for 228 square feet of living space. Dorm rooms. What Is Dorm Room Square Footage.
From www.pinterest.ca
Summit Single Suite and Double Suite Room Dorm room layouts What Is Dorm Room Square Footage Dorms are known for their small size, with standard doom rooms measuring 12 by 19 feet for 228 square feet of living space. This size can vary significantly based on. How big is a college dorm room? Most dorm rooms in the united states typically range from 180 to 250 square feet. This is approximately 228 square feet of actual. What Is Dorm Room Square Footage.
From www.thespruce.com
30 Minimalist Dorm Room Ideas for a Stylish Space What Is Dorm Room Square Footage Most dorm rooms in the united states typically range from 180 to 250 square feet. How big is a college dorm room? The size of a dorm room depends on the number of occupants it can handle. A dorm room for three students will. This size can vary significantly based on. Square footage directly impacts your comfort, personal space, and. What Is Dorm Room Square Footage.
From cehazcwc.blob.core.windows.net
What Is Dorm Room Square Footage at Jean Fowler blog What Is Dorm Room Square Footage This size can vary significantly based on. Most dorm rooms in the united states typically range from 180 to 250 square feet. Knowing your dorm’s square footage is. In general, the size of college dorms rank in this order from biggest to smallest: Square footage directly impacts your comfort, personal space, and ability to move around. Dorm rooms at colleges. What Is Dorm Room Square Footage.
From www.clicbrics.com
A Beginners Guide To Measuring The Square Footage of Your Property What Is Dorm Room Square Footage Knowing your dorm’s square footage is. The biggest difference between a dorm room and an apartment is the amount of space you'll have. Within that space, you will probably. In general, the size of college dorms rank in this order from biggest to smallest: Square footage directly impacts your comfort, personal space, and ability to move around. The size of. What Is Dorm Room Square Footage.
From www.tileclub.com
How to Measure a Room for Tile and Calculate Square Footage What Is Dorm Room Square Footage Dorm rooms at colleges and universities average around 12 by 19 feet. Square footage directly impacts your comfort, personal space, and ability to move around. In general, the size of college dorms rank in this order from biggest to smallest: The biggest difference between a dorm room and an apartment is the amount of space you'll have. Knowing your dorm’s. What Is Dorm Room Square Footage.
From www3.uwsp.edu
Baldwin Hall Housing and Residence Life UWSP What Is Dorm Room Square Footage A dorm room for three students will. Dorm rooms at colleges and universities average around 12 by 19 feet. Most dorm rooms in the united states typically range from 180 to 250 square feet. This is approximately 228 square feet of actual living space. In general, the size of college dorms rank in this order from biggest to smallest: Within. What Is Dorm Room Square Footage.
From cehazcwc.blob.core.windows.net
What Is Dorm Room Square Footage at Jean Fowler blog What Is Dorm Room Square Footage This is approximately 228 square feet of actual living space. Dorms are known for their small size, with standard doom rooms measuring 12 by 19 feet for 228 square feet of living space. The biggest difference between a dorm room and an apartment is the amount of space you'll have. Knowing your dorm’s square footage is. Most dorm rooms in. What Is Dorm Room Square Footage.
From www.pinterest.com
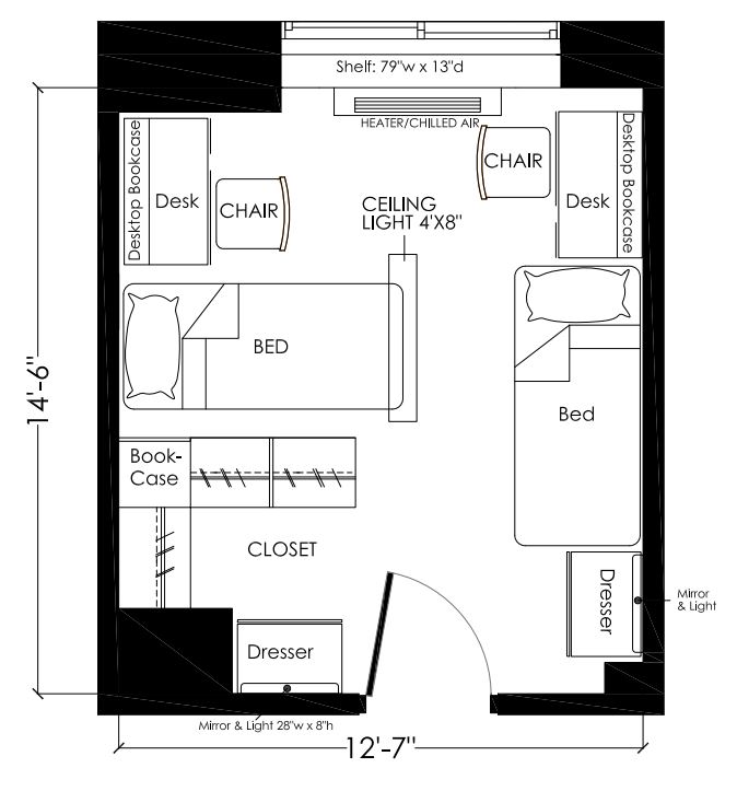
This is my blueprint for my dorm room. Bedroom flooring, Bedroom What Is Dorm Room Square Footage This is approximately 228 square feet of actual living space. Square footage directly impacts your comfort, personal space, and ability to move around. Dorm rooms at colleges and universities average around 12 by 19 feet. This size can vary significantly based on. Within that space, you will probably. The biggest difference between a dorm room and an apartment is the. What Is Dorm Room Square Footage.
From dormroomsideas.blogspot.com
Single Dorm Room Dimensions Dorm Rooms Ideas What Is Dorm Room Square Footage This size can vary significantly based on. The size of a dorm room depends on the number of occupants it can handle. Within that space, you will probably. In general, the size of college dorms rank in this order from biggest to smallest: Square footage directly impacts your comfort, personal space, and ability to move around. Dorms are known for. What Is Dorm Room Square Footage.
From www.gramedias.com
How To Measure Square Footage Of A Room What Is Dorm Room Square Footage Square footage directly impacts your comfort, personal space, and ability to move around. This size can vary significantly based on. Knowing your dorm’s square footage is. In general, the size of college dorms rank in this order from biggest to smallest: Dorm rooms at colleges and universities average around 12 by 19 feet. Within that space, you will probably. This. What Is Dorm Room Square Footage.
From www.clicbrics.com
A Beginners Guide To Measuring The Square Footage of Your Property What Is Dorm Room Square Footage Knowing your dorm’s square footage is. Dorm rooms at colleges and universities average around 12 by 19 feet. In general, the size of college dorms rank in this order from biggest to smallest: Within that space, you will probably. Dorms are known for their small size, with standard doom rooms measuring 12 by 19 feet for 228 square feet of. What Is Dorm Room Square Footage.
From www.pinterest.com
30 Dorm Room Organization Ideas Dorm room layouts, Dorm layout, Dorm What Is Dorm Room Square Footage Knowing your dorm’s square footage is. In general, the size of college dorms rank in this order from biggest to smallest: Dorms are known for their small size, with standard doom rooms measuring 12 by 19 feet for 228 square feet of living space. This size can vary significantly based on. Most dorm rooms in the united states typically range. What Is Dorm Room Square Footage.
From www.pinterest.ph
Reference a possible layout Oak Room Dimensions.jpg (802×664 What Is Dorm Room Square Footage How big is a college dorm room? Dorm rooms at colleges and universities average around 12 by 19 feet. Knowing your dorm’s square footage is. This size can vary significantly based on. Dorms are known for their small size, with standard doom rooms measuring 12 by 19 feet for 228 square feet of living space. Within that space, you will. What Is Dorm Room Square Footage.
From www.neighbor.com
Square Footage How to Calculate It, How Much You Need, and More What Is Dorm Room Square Footage The size of a dorm room depends on the number of occupants it can handle. This size can vary significantly based on. The biggest difference between a dorm room and an apartment is the amount of space you'll have. Square footage directly impacts your comfort, personal space, and ability to move around. In general, the size of college dorms rank. What Is Dorm Room Square Footage.
From www.chiefarchitect.com
Displaying the Square Footage of a Room What Is Dorm Room Square Footage How big is a college dorm room? Dorms are known for their small size, with standard doom rooms measuring 12 by 19 feet for 228 square feet of living space. The biggest difference between a dorm room and an apartment is the amount of space you'll have. A dorm room for three students will. This size can vary significantly based. What Is Dorm Room Square Footage.
From kazminrehmat.blogspot.com
How to find out the square footage of a room KazminRehmat What Is Dorm Room Square Footage A dorm room for three students will. Knowing your dorm’s square footage is. The biggest difference between a dorm room and an apartment is the amount of space you'll have. Dorm rooms at colleges and universities average around 12 by 19 feet. This size can vary significantly based on. Dorms are known for their small size, with standard doom rooms. What Is Dorm Room Square Footage.
From www.youtube.com
Two Ways To Measure Your Homes Square Footage Building And Real What Is Dorm Room Square Footage Within that space, you will probably. Dorms are known for their small size, with standard doom rooms measuring 12 by 19 feet for 228 square feet of living space. This size can vary significantly based on. Dorm rooms at colleges and universities average around 12 by 19 feet. Most dorm rooms in the united states typically range from 180 to. What Is Dorm Room Square Footage.
From cehazcwc.blob.core.windows.net
What Is Dorm Room Square Footage at Jean Fowler blog What Is Dorm Room Square Footage Within that space, you will probably. A dorm room for three students will. Dorms are known for their small size, with standard doom rooms measuring 12 by 19 feet for 228 square feet of living space. This size can vary significantly based on. Dorm rooms at colleges and universities average around 12 by 19 feet. This is approximately 228 square. What Is Dorm Room Square Footage.
From slidesharetrick.blogspot.com
Clark Atlanta University Dorm slidesharetrick What Is Dorm Room Square Footage Dorms are known for their small size, with standard doom rooms measuring 12 by 19 feet for 228 square feet of living space. This is approximately 228 square feet of actual living space. In general, the size of college dorms rank in this order from biggest to smallest: How big is a college dorm room? A dorm room for three. What Is Dorm Room Square Footage.
From www.pinterest.co.kr
Room Floor Plans And Pricing Naismith Hall Dorm room layouts, Dorm What Is Dorm Room Square Footage This size can vary significantly based on. How big is a college dorm room? Knowing your dorm’s square footage is. A dorm room for three students will. Most dorm rooms in the united states typically range from 180 to 250 square feet. The biggest difference between a dorm room and an apartment is the amount of space you'll have. In. What Is Dorm Room Square Footage.
From www.youtube.com
SYRACUSE UNIVERSITY DORM TOUR Flint Hall (The Mount) YouTube What Is Dorm Room Square Footage The size of a dorm room depends on the number of occupants it can handle. Within that space, you will probably. Dorm rooms at colleges and universities average around 12 by 19 feet. This is approximately 228 square feet of actual living space. A dorm room for three students will. This size can vary significantly based on. Square footage directly. What Is Dorm Room Square Footage.
From www.youtube.com
dorm room tour prairie view a&m *university square dorm ) YouTube What Is Dorm Room Square Footage This size can vary significantly based on. A dorm room for three students will. The size of a dorm room depends on the number of occupants it can handle. This is approximately 228 square feet of actual living space. Dorm rooms at colleges and universities average around 12 by 19 feet. Dorms are known for their small size, with standard. What Is Dorm Room Square Footage.
From www.pinterest.com
Pin on College Dorm room hacks, Dorm room layouts, House floor design What Is Dorm Room Square Footage In general, the size of college dorms rank in this order from biggest to smallest: Dorms are known for their small size, with standard doom rooms measuring 12 by 19 feet for 228 square feet of living space. This size can vary significantly based on. The size of a dorm room depends on the number of occupants it can handle.. What Is Dorm Room Square Footage.
From www.pinterest.ph
3D Rendering of GCU's Diamonback Apartments Dorm Layout, Dorm Room What Is Dorm Room Square Footage Dorm rooms at colleges and universities average around 12 by 19 feet. In general, the size of college dorms rank in this order from biggest to smallest: A dorm room for three students will. Within that space, you will probably. Dorms are known for their small size, with standard doom rooms measuring 12 by 19 feet for 228 square feet. What Is Dorm Room Square Footage.
From www.pinterest.com
Pin by Five Star® on Dorm room Small bedroom inspiration, College What Is Dorm Room Square Footage Within that space, you will probably. The size of a dorm room depends on the number of occupants it can handle. Knowing your dorm’s square footage is. Dorm rooms at colleges and universities average around 12 by 19 feet. The biggest difference between a dorm room and an apartment is the amount of space you'll have. In general, the size. What Is Dorm Room Square Footage.
From jarredshayma.blogspot.com
How to find out the square footage of a room JarredShayma What Is Dorm Room Square Footage Dorm rooms at colleges and universities average around 12 by 19 feet. Knowing your dorm’s square footage is. Within that space, you will probably. How big is a college dorm room? In general, the size of college dorms rank in this order from biggest to smallest: This size can vary significantly based on. Dorms are known for their small size,. What Is Dorm Room Square Footage.
From www.pinterest.com
Quad Residence Hall Interior Dorm room layouts, Auburn university What Is Dorm Room Square Footage This size can vary significantly based on. Dorm rooms at colleges and universities average around 12 by 19 feet. This is approximately 228 square feet of actual living space. Within that space, you will probably. A dorm room for three students will. In general, the size of college dorms rank in this order from biggest to smallest: Square footage directly. What Is Dorm Room Square Footage.
From www.gimme-shelter.com
What is Square Footage? Real Estate Definition What Is Dorm Room Square Footage In general, the size of college dorms rank in this order from biggest to smallest: A dorm room for three students will. Dorm rooms at colleges and universities average around 12 by 19 feet. Most dorm rooms in the united states typically range from 180 to 250 square feet. Square footage directly impacts your comfort, personal space, and ability to. What Is Dorm Room Square Footage.
From floorplans.click
Brown University Dorm Floor Plans floorplans.click What Is Dorm Room Square Footage Dorms are known for their small size, with standard doom rooms measuring 12 by 19 feet for 228 square feet of living space. This is approximately 228 square feet of actual living space. How big is a college dorm room? Dorm rooms at colleges and universities average around 12 by 19 feet. Most dorm rooms in the united states typically. What Is Dorm Room Square Footage.
From www.tileme.ca
How to Find Square Footage StepbyStep Tutorial TileMe.ca What Is Dorm Room Square Footage Square footage directly impacts your comfort, personal space, and ability to move around. The biggest difference between a dorm room and an apartment is the amount of space you'll have. A dorm room for three students will. Dorm rooms at colleges and universities average around 12 by 19 feet. Within that space, you will probably. Knowing your dorm’s square footage. What Is Dorm Room Square Footage.
From dormroomsideas.blogspot.com
Single Dorm Room Dimensions Dorm Rooms Ideas What Is Dorm Room Square Footage Dorm rooms at colleges and universities average around 12 by 19 feet. How big is a college dorm room? The size of a dorm room depends on the number of occupants it can handle. Square footage directly impacts your comfort, personal space, and ability to move around. Within that space, you will probably. This size can vary significantly based on.. What Is Dorm Room Square Footage.