Glass Partition Wall Dimensions . The maximum recommended height for single.  glass partition walls come in a variety of styles and sizes that allow for incredible customization in order to give the office a certain identity. Decide on the type of glass you want to use. Glass partitions are quite versatile and are designed to work in many different situations and scenarios.  measure the width and height of the area where you want to install the glass partition wall to determine the number of panels you’ll need. By considering your needs and consulting with professionals, you can select the perfect thickness to optimize performance, safety, and aesthetics for your space.  the glass partition lindner life 622 is the new benchmark disclosing maximum space transparency combined with unlimited.   the thickness of glass partition walls used in office partitions — laminated or tempered — typically ranges.  the maximum recommended module sizes are 1200mm x 2500mm. There are various options available, including tempered glass, laminated glass, and acoustic glass.   understanding glass partition thickness in inches is essential for creating functional and visually appealing glass partitions.
        
         
         
        from ar.inspiredpencil.com 
     
        
         the maximum recommended module sizes are 1200mm x 2500mm. By considering your needs and consulting with professionals, you can select the perfect thickness to optimize performance, safety, and aesthetics for your space.  glass partition walls come in a variety of styles and sizes that allow for incredible customization in order to give the office a certain identity. Decide on the type of glass you want to use. Glass partitions are quite versatile and are designed to work in many different situations and scenarios.  measure the width and height of the area where you want to install the glass partition wall to determine the number of panels you’ll need. The maximum recommended height for single.  the glass partition lindner life 622 is the new benchmark disclosing maximum space transparency combined with unlimited.   understanding glass partition thickness in inches is essential for creating functional and visually appealing glass partitions. There are various options available, including tempered glass, laminated glass, and acoustic glass.
    
    	
            
	
		 
	 
         
    Glass Partition Details 
    Glass Partition Wall Dimensions  By considering your needs and consulting with professionals, you can select the perfect thickness to optimize performance, safety, and aesthetics for your space. There are various options available, including tempered glass, laminated glass, and acoustic glass.   the thickness of glass partition walls used in office partitions — laminated or tempered — typically ranges. By considering your needs and consulting with professionals, you can select the perfect thickness to optimize performance, safety, and aesthetics for your space. Glass partitions are quite versatile and are designed to work in many different situations and scenarios.  glass partition walls come in a variety of styles and sizes that allow for incredible customization in order to give the office a certain identity. Decide on the type of glass you want to use.  the maximum recommended module sizes are 1200mm x 2500mm. The maximum recommended height for single.  measure the width and height of the area where you want to install the glass partition wall to determine the number of panels you’ll need.  the glass partition lindner life 622 is the new benchmark disclosing maximum space transparency combined with unlimited.   understanding glass partition thickness in inches is essential for creating functional and visually appealing glass partitions.
            
	
		 
	 
         
 
    
         
        From www.glassatwork.co.uk 
                    Glass Partitions at Domestic Project (Stonehouse, Gloucestershire Glass Partition Wall Dimensions    understanding glass partition thickness in inches is essential for creating functional and visually appealing glass partitions. By considering your needs and consulting with professionals, you can select the perfect thickness to optimize performance, safety, and aesthetics for your space.   the thickness of glass partition walls used in office partitions — laminated or tempered — typically ranges.  measure. Glass Partition Wall Dimensions.
     
    
         
        From www.cubicles.com 
                    Aluminum Partition Systems Glass Wall Panels Glass Partition Walls Glass Partition Wall Dimensions  Decide on the type of glass you want to use.  measure the width and height of the area where you want to install the glass partition wall to determine the number of panels you’ll need.  glass partition walls come in a variety of styles and sizes that allow for incredible customization in order to give the office a. Glass Partition Wall Dimensions.
     
    
         
        From www.glass-partition.co.uk 
                    Single Glazed Glass Partitions Glass Partition Wall Dimensions  Glass partitions are quite versatile and are designed to work in many different situations and scenarios.   the thickness of glass partition walls used in office partitions — laminated or tempered — typically ranges.  glass partition walls come in a variety of styles and sizes that allow for incredible customization in order to give the office a certain identity.. Glass Partition Wall Dimensions.
     
    
         
        From www.romstorprojects.co.uk 
                    Frameless Glass Partitions Romstor Projects Glass Partition Wall Dimensions  There are various options available, including tempered glass, laminated glass, and acoustic glass.  measure the width and height of the area where you want to install the glass partition wall to determine the number of panels you’ll need.   the thickness of glass partition walls used in office partitions — laminated or tempered — typically ranges. Decide on the. Glass Partition Wall Dimensions.
     
    
         
        From www.pinterest.com 
                    HalfHeight Glass Wall Partition Using Laminated Acoustic Glass for a Glass Partition Wall Dimensions   measure the width and height of the area where you want to install the glass partition wall to determine the number of panels you’ll need.   understanding glass partition thickness in inches is essential for creating functional and visually appealing glass partitions.  the glass partition lindner life 622 is the new benchmark disclosing maximum space transparency combined with. Glass Partition Wall Dimensions.
     
    
         
        From spaceplusny.blogspot.com 
                    Partition Glass Wall Glass Partition Wall Dimensions   glass partition walls come in a variety of styles and sizes that allow for incredible customization in order to give the office a certain identity. The maximum recommended height for single.   understanding glass partition thickness in inches is essential for creating functional and visually appealing glass partitions.  the maximum recommended module sizes are 1200mm x 2500mm. . Glass Partition Wall Dimensions.
     
    
         
        From www.archiproducts.com 
                    Glass movable wall KRISTAL 5 KWS Collection By Arcadia Glass Partition Wall Dimensions   measure the width and height of the area where you want to install the glass partition wall to determine the number of panels you’ll need. The maximum recommended height for single. Decide on the type of glass you want to use.  the maximum recommended module sizes are 1200mm x 2500mm.  glass partition walls come in a variety. Glass Partition Wall Dimensions.
     
    
         
        From www.avantisystemsusa.com 
                    How to Choose the Right Glass Partition Wall Thickness? Glass Partition Wall Dimensions   the glass partition lindner life 622 is the new benchmark disclosing maximum space transparency combined with unlimited.  measure the width and height of the area where you want to install the glass partition wall to determine the number of panels you’ll need.   understanding glass partition thickness in inches is essential for creating functional and visually appealing glass. Glass Partition Wall Dimensions.
     
    
         
        From www.glassatwork.co.uk 
                    Glass Partitions at Residential Project (Edwalton, Nottingham) Half Glass Partition Wall Dimensions  The maximum recommended height for single.  measure the width and height of the area where you want to install the glass partition wall to determine the number of panels you’ll need.  the maximum recommended module sizes are 1200mm x 2500mm. Decide on the type of glass you want to use. By considering your needs and consulting with professionals,. Glass Partition Wall Dimensions.
     
    
         
        From ar.inspiredpencil.com 
                    Glass Partition Details Glass Partition Wall Dimensions   the maximum recommended module sizes are 1200mm x 2500mm.   the thickness of glass partition walls used in office partitions — laminated or tempered — typically ranges. There are various options available, including tempered glass, laminated glass, and acoustic glass.  glass partition walls come in a variety of styles and sizes that allow for incredible customization in order. Glass Partition Wall Dimensions.
     
    
         
        From www.dyconstructions.com.au 
                    Glass Office Partitions DY Constructions Australia Glass Partition Wall Dimensions  There are various options available, including tempered glass, laminated glass, and acoustic glass. Decide on the type of glass you want to use. The maximum recommended height for single.  measure the width and height of the area where you want to install the glass partition wall to determine the number of panels you’ll need.  the maximum recommended module. Glass Partition Wall Dimensions.
     
    
         
        From mavink.com 
                    Glass Partition Detail Drawing Glass Partition Wall Dimensions  Decide on the type of glass you want to use.  the maximum recommended module sizes are 1200mm x 2500mm. There are various options available, including tempered glass, laminated glass, and acoustic glass. By considering your needs and consulting with professionals, you can select the perfect thickness to optimize performance, safety, and aesthetics for your space.  measure the width. Glass Partition Wall Dimensions.
     
    
         
        From www.alibaba.com 
                    Shaneok Removable Modern Building Glass Partition Wall For Meeting Room Glass Partition Wall Dimensions   glass partition walls come in a variety of styles and sizes that allow for incredible customization in order to give the office a certain identity.  the maximum recommended module sizes are 1200mm x 2500mm. By considering your needs and consulting with professionals, you can select the perfect thickness to optimize performance, safety, and aesthetics for your space. Glass. Glass Partition Wall Dimensions.
     
    
         
        From www.skywindowsnj.com 
                    Framed Glass Partitions, Walls Design, Fabrication, Installation Glass Partition Wall Dimensions   the maximum recommended module sizes are 1200mm x 2500mm.  measure the width and height of the area where you want to install the glass partition wall to determine the number of panels you’ll need. The maximum recommended height for single. Glass partitions are quite versatile and are designed to work in many different situations and scenarios.   understanding. Glass Partition Wall Dimensions.
     
    
         
        From ar.inspiredpencil.com 
                    Glass Partition Details Glass Partition Wall Dimensions  There are various options available, including tempered glass, laminated glass, and acoustic glass. Decide on the type of glass you want to use. By considering your needs and consulting with professionals, you can select the perfect thickness to optimize performance, safety, and aesthetics for your space. Glass partitions are quite versatile and are designed to work in many different situations. Glass Partition Wall Dimensions.
     
    
         
        From www.scribd.com 
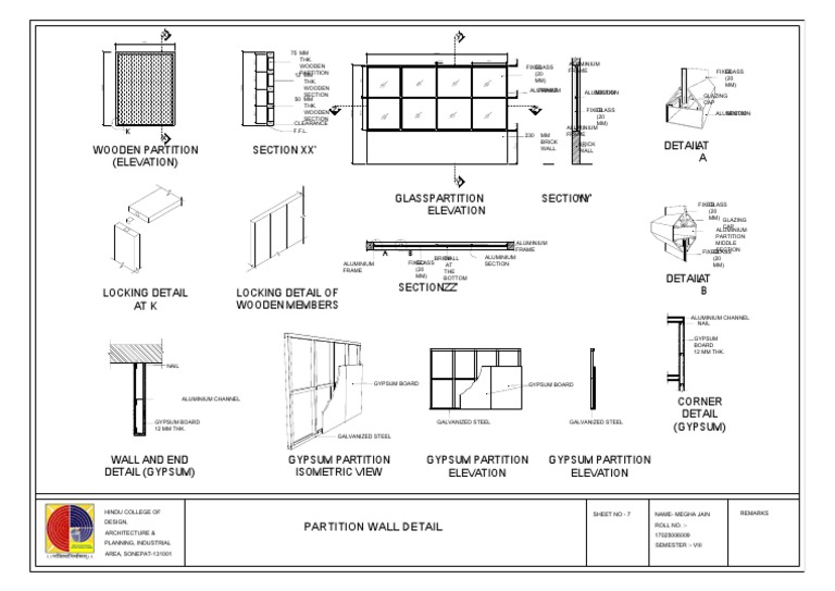
                    7 Partition Wall Detail PDF Wall Architectural Elements Glass Partition Wall Dimensions   glass partition walls come in a variety of styles and sizes that allow for incredible customization in order to give the office a certain identity. By considering your needs and consulting with professionals, you can select the perfect thickness to optimize performance, safety, and aesthetics for your space. There are various options available, including tempered glass, laminated glass, and. Glass Partition Wall Dimensions.
     
    
         
        From iqubx.com 
                    Glass Partition wall system Modular Aluminium Glazed Partition Glass Partition Wall Dimensions   measure the width and height of the area where you want to install the glass partition wall to determine the number of panels you’ll need. By considering your needs and consulting with professionals, you can select the perfect thickness to optimize performance, safety, and aesthetics for your space.   the thickness of glass partition walls used in office partitions. Glass Partition Wall Dimensions.
     
    
         
        From ar.inspiredpencil.com 
                    Glass Partition Details Glass Partition Wall Dimensions   measure the width and height of the area where you want to install the glass partition wall to determine the number of panels you’ll need.  the glass partition lindner life 622 is the new benchmark disclosing maximum space transparency combined with unlimited. By considering your needs and consulting with professionals, you can select the perfect thickness to optimize. Glass Partition Wall Dimensions.
     
    
         
        From www.digitalawardzz.com 
                    Glass Partition Wall Details Pdf Glass Designs Glass Partition Wall Dimensions   the glass partition lindner life 622 is the new benchmark disclosing maximum space transparency combined with unlimited.  measure the width and height of the area where you want to install the glass partition wall to determine the number of panels you’ll need.  the maximum recommended module sizes are 1200mm x 2500mm.   the thickness of glass partition. Glass Partition Wall Dimensions.
     
    
         
        From special-lite.com 
                    How to Measure for Bathroom Partitions Glass Partition Wall Dimensions    the thickness of glass partition walls used in office partitions — laminated or tempered — typically ranges. Glass partitions are quite versatile and are designed to work in many different situations and scenarios.  measure the width and height of the area where you want to install the glass partition wall to determine the number of panels you’ll need.. Glass Partition Wall Dimensions.
     
    
         
        From www.neslo.com 
                    Glass Wall Systems for Offices Neslo Manufacturing Glass Partition Wall Dimensions  The maximum recommended height for single.  the glass partition lindner life 622 is the new benchmark disclosing maximum space transparency combined with unlimited.  glass partition walls come in a variety of styles and sizes that allow for incredible customization in order to give the office a certain identity. Glass partitions are quite versatile and are designed to work. Glass Partition Wall Dimensions.
     
    
         
        From iqubx.com 
                    Glass Partition wall system Modular Aluminium Glazed Partition Glass Partition Wall Dimensions  Glass partitions are quite versatile and are designed to work in many different situations and scenarios. By considering your needs and consulting with professionals, you can select the perfect thickness to optimize performance, safety, and aesthetics for your space.   understanding glass partition thickness in inches is essential for creating functional and visually appealing glass partitions. Decide on the type. Glass Partition Wall Dimensions.
     
    
         
        From www.officepro.my 
                    12mm Tempered Glass Partition l Glass Supplier Malaysia [INPRO Glass Glass Partition Wall Dimensions  The maximum recommended height for single.  the glass partition lindner life 622 is the new benchmark disclosing maximum space transparency combined with unlimited.  the maximum recommended module sizes are 1200mm x 2500mm.  measure the width and height of the area where you want to install the glass partition wall to determine the number of panels you’ll need.. Glass Partition Wall Dimensions.
     
    
         
        From www.1partitionwall.com 
                    Frameless Glass Partition A type Glass Partition Wall Dimensions  By considering your needs and consulting with professionals, you can select the perfect thickness to optimize performance, safety, and aesthetics for your space. The maximum recommended height for single.  the maximum recommended module sizes are 1200mm x 2500mm.  glass partition walls come in a variety of styles and sizes that allow for incredible customization in order to give. Glass Partition Wall Dimensions.
     
    
         
        From www.alibaba.com 
                    Shaneok Modern Office Partition Wall,Aluminum Glass Partition Wall Glass Partition Wall Dimensions    the thickness of glass partition walls used in office partitions — laminated or tempered — typically ranges.   understanding glass partition thickness in inches is essential for creating functional and visually appealing glass partitions.  the maximum recommended module sizes are 1200mm x 2500mm. There are various options available, including tempered glass, laminated glass, and acoustic glass.  measure. Glass Partition Wall Dimensions.
     
    
         
        From iqubx.com 
                    Glass Partition wall system Modular Aluminium Glazed Partition Glass Partition Wall Dimensions    understanding glass partition thickness in inches is essential for creating functional and visually appealing glass partitions. There are various options available, including tempered glass, laminated glass, and acoustic glass. By considering your needs and consulting with professionals, you can select the perfect thickness to optimize performance, safety, and aesthetics for your space. The maximum recommended height for single. . Glass Partition Wall Dimensions.
     
    
         
        From www.avantisystemsusa.com 
                    Freestanding Glass Walls & Partitions Avanti Systems USA Glass Partition Wall Dimensions   glass partition walls come in a variety of styles and sizes that allow for incredible customization in order to give the office a certain identity.  measure the width and height of the area where you want to install the glass partition wall to determine the number of panels you’ll need.  the maximum recommended module sizes are 1200mm. Glass Partition Wall Dimensions.
     
    
         
        From www.cubicles.com 
                    Glass Partition Design Glass Wall Systems Glass Partition Walls Glass Partition Wall Dimensions   the glass partition lindner life 622 is the new benchmark disclosing maximum space transparency combined with unlimited.   understanding glass partition thickness in inches is essential for creating functional and visually appealing glass partitions.   the thickness of glass partition walls used in office partitions — laminated or tempered — typically ranges. The maximum recommended height for single. . Glass Partition Wall Dimensions.
     
    
         
        From www.digitalawardzz.com 
                    Glass Partition Wall Cad Details Glass Designs Glass Partition Wall Dimensions    understanding glass partition thickness in inches is essential for creating functional and visually appealing glass partitions.  measure the width and height of the area where you want to install the glass partition wall to determine the number of panels you’ll need. By considering your needs and consulting with professionals, you can select the perfect thickness to optimize performance,. Glass Partition Wall Dimensions.
     
    
         
        From iqubx.com 
                    Glass Partition wall system Modular Aluminium Glazed Partition Glass Partition Wall Dimensions   measure the width and height of the area where you want to install the glass partition wall to determine the number of panels you’ll need.  glass partition walls come in a variety of styles and sizes that allow for incredible customization in order to give the office a certain identity. Decide on the type of glass you want. Glass Partition Wall Dimensions.
     
    
         
        From www.ccsydneyglassandmirrors.com.au 
                    Glass Partitioning Sydney Glass Partition Walls CCS Glass Partition Wall Dimensions  Glass partitions are quite versatile and are designed to work in many different situations and scenarios.  measure the width and height of the area where you want to install the glass partition wall to determine the number of panels you’ll need.  glass partition walls come in a variety of styles and sizes that allow for incredible customization in. Glass Partition Wall Dimensions.
     
    
         
        From dhcontract.net 
                    Glass Partitions DHContract Glass Partition Wall Dimensions   the maximum recommended module sizes are 1200mm x 2500mm. Decide on the type of glass you want to use. By considering your needs and consulting with professionals, you can select the perfect thickness to optimize performance, safety, and aesthetics for your space.   understanding glass partition thickness in inches is essential for creating functional and visually appealing glass partitions.. Glass Partition Wall Dimensions.
     
    
         
        From www.digitalawardzz.com 
                    Glass Partition Wall Details Pdf Glass Designs Glass Partition Wall Dimensions   the glass partition lindner life 622 is the new benchmark disclosing maximum space transparency combined with unlimited.   understanding glass partition thickness in inches is essential for creating functional and visually appealing glass partitions.  measure the width and height of the area where you want to install the glass partition wall to determine the number of panels you’ll. Glass Partition Wall Dimensions.
     
    
         
        From div-mw.com 
                    Glass Partitions Dividers Glass Partition Wall Dimensions   glass partition walls come in a variety of styles and sizes that allow for incredible customization in order to give the office a certain identity.  the glass partition lindner life 622 is the new benchmark disclosing maximum space transparency combined with unlimited. Glass partitions are quite versatile and are designed to work in many different situations and scenarios.. Glass Partition Wall Dimensions.
     
    
         
        From www.instructables.com 
                    Steel and Glass Partition Wall 7 Steps (with Pictures) Instructables Glass Partition Wall Dimensions    the thickness of glass partition walls used in office partitions — laminated or tempered — typically ranges.   understanding glass partition thickness in inches is essential for creating functional and visually appealing glass partitions. By considering your needs and consulting with professionals, you can select the perfect thickness to optimize performance, safety, and aesthetics for your space. The maximum. Glass Partition Wall Dimensions.