How Much Is Fencing Permit Philippines . Ang video na ito ay nagpapakita kung anu mga. A fencing permit is secured by the real property owner prior to the construction of a fence. The fencing law sets out several important provisions that anyone constructing or maintaining a fence in the philippines should be aware of. Civil/structural permit form 4 pcs. Both temporary and fixed fences. Isa sa mga documento na kaylangan natin bago magpapabakod ay ang fencing permit. Requirements application form signed by owner / applicant, signed and sealed by engineer, forms are. It aims to promote harmonious relationships between property owners by establishing guidelines for the erection and maintenance of fences. Structural design computation (for fence more than 1.8 meters high) 4 pcs. City engineer’s office (office of the. You need a building permit because you want to comply with the proper construction of a house or a building following the requirements set by law or the. The fence law, also known as republic act no. Prior approval from the appropriate government agency may be required before erecting a fence. 1939, is a legislation that regulates the construction, maintenance, and ownership of fences in the philippines.
from www.scribd.com
Prior approval from the appropriate government agency may be required before erecting a fence. Isa sa mga documento na kaylangan natin bago magpapabakod ay ang fencing permit. City engineer’s office (office of the. 1939, is a legislation that regulates the construction, maintenance, and ownership of fences in the philippines. Both temporary and fixed fences. The fence law, also known as republic act no. Requirements application form signed by owner / applicant, signed and sealed by engineer, forms are. A fencing permit is secured by the real property owner prior to the construction of a fence. Ang video na ito ay nagpapakita kung anu mga. The fencing law sets out several important provisions that anyone constructing or maintaining a fence in the philippines should be aware of.
Fencing Permit PDF
How Much Is Fencing Permit Philippines A fencing permit is secured by the real property owner prior to the construction of a fence. A fencing permit is secured by the real property owner prior to the construction of a fence. It aims to promote harmonious relationships between property owners by establishing guidelines for the erection and maintenance of fences. Requirements application form signed by owner / applicant, signed and sealed by engineer, forms are. Both temporary and fixed fences. City engineer’s office (office of the. Civil/structural permit form 4 pcs. The fencing law sets out several important provisions that anyone constructing or maintaining a fence in the philippines should be aware of. 1939, is a legislation that regulates the construction, maintenance, and ownership of fences in the philippines. Structural design computation (for fence more than 1.8 meters high) 4 pcs. Prior approval from the appropriate government agency may be required before erecting a fence. You need a building permit because you want to comply with the proper construction of a house or a building following the requirements set by law or the. Ang video na ito ay nagpapakita kung anu mga. Isa sa mga documento na kaylangan natin bago magpapabakod ay ang fencing permit. The fence law, also known as republic act no.
From www.fencemastersinc.com
What You Need to Know About Fencing Permits Fence Masters Backyard How Much Is Fencing Permit Philippines A fencing permit is secured by the real property owner prior to the construction of a fence. Structural design computation (for fence more than 1.8 meters high) 4 pcs. Ang video na ito ay nagpapakita kung anu mga. You need a building permit because you want to comply with the proper construction of a house or a building following the. How Much Is Fencing Permit Philippines.
From www.scribd.com
Fencing Permit (FRONT) PDF How Much Is Fencing Permit Philippines Prior approval from the appropriate government agency may be required before erecting a fence. It aims to promote harmonious relationships between property owners by establishing guidelines for the erection and maintenance of fences. Structural design computation (for fence more than 1.8 meters high) 4 pcs. Requirements application form signed by owner / applicant, signed and sealed by engineer, forms are.. How Much Is Fencing Permit Philippines.
From www.scribd.com
Fencing Permit (Front) PDF Economic Sectors Business How Much Is Fencing Permit Philippines Prior approval from the appropriate government agency may be required before erecting a fence. City engineer’s office (office of the. Both temporary and fixed fences. 1939, is a legislation that regulates the construction, maintenance, and ownership of fences in the philippines. You need a building permit because you want to comply with the proper construction of a house or a. How Much Is Fencing Permit Philippines.
From www.scribd.com
Fencing Permit PDF How Much Is Fencing Permit Philippines Both temporary and fixed fences. Isa sa mga documento na kaylangan natin bago magpapabakod ay ang fencing permit. You need a building permit because you want to comply with the proper construction of a house or a building following the requirements set by law or the. Requirements application form signed by owner / applicant, signed and sealed by engineer, forms. How Much Is Fencing Permit Philippines.
From www.youtube.com
FENCING PERMIT MAGKANO NAGASTOS,ANO REQUIREMENTS AT PROCEDURES SA How Much Is Fencing Permit Philippines It aims to promote harmonious relationships between property owners by establishing guidelines for the erection and maintenance of fences. Ang video na ito ay nagpapakita kung anu mga. Prior approval from the appropriate government agency may be required before erecting a fence. Civil/structural permit form 4 pcs. City engineer’s office (office of the. A fencing permit is secured by the. How Much Is Fencing Permit Philippines.
From www.pdffiller.com
Fillable Online FENCING PERMIT Pasig City Fax Email Print pdfFiller How Much Is Fencing Permit Philippines The fence law, also known as republic act no. The fencing law sets out several important provisions that anyone constructing or maintaining a fence in the philippines should be aware of. Requirements application form signed by owner / applicant, signed and sealed by engineer, forms are. Structural design computation (for fence more than 1.8 meters high) 4 pcs. Prior approval. How Much Is Fencing Permit Philippines.
From www.youtube.com
HOW TO GET A FENCING PERMIT IN THE PHILIPPINES (LAPU LAPU CITY) YOU How Much Is Fencing Permit Philippines Both temporary and fixed fences. It aims to promote harmonious relationships between property owners by establishing guidelines for the erection and maintenance of fences. Structural design computation (for fence more than 1.8 meters high) 4 pcs. Requirements application form signed by owner / applicant, signed and sealed by engineer, forms are. A fencing permit is secured by the real property. How Much Is Fencing Permit Philippines.
From www.studocu.com
Fence specification for Fencing Permit Standard Specification for How Much Is Fencing Permit Philippines It aims to promote harmonious relationships between property owners by establishing guidelines for the erection and maintenance of fences. Ang video na ito ay nagpapakita kung anu mga. The fence law, also known as republic act no. The fencing law sets out several important provisions that anyone constructing or maintaining a fence in the philippines should be aware of. City. How Much Is Fencing Permit Philippines.
From www.scribd.com
Form Fencing Permit PDF How Much Is Fencing Permit Philippines It aims to promote harmonious relationships between property owners by establishing guidelines for the erection and maintenance of fences. Both temporary and fixed fences. Ang video na ito ay nagpapakita kung anu mga. Prior approval from the appropriate government agency may be required before erecting a fence. You need a building permit because you want to comply with the proper. How Much Is Fencing Permit Philippines.
From yardworship.com
Fence Permit What You Need to Know How Much Is Fencing Permit Philippines Prior approval from the appropriate government agency may be required before erecting a fence. Structural design computation (for fence more than 1.8 meters high) 4 pcs. Ang video na ito ay nagpapakita kung anu mga. Civil/structural permit form 4 pcs. 1939, is a legislation that regulates the construction, maintenance, and ownership of fences in the philippines. It aims to promote. How Much Is Fencing Permit Philippines.
From bestideasph.com
How to Swiftly Secure Your Barangay Clearance A Comprehensive Guide How Much Is Fencing Permit Philippines 1939, is a legislation that regulates the construction, maintenance, and ownership of fences in the philippines. The fence law, also known as republic act no. Ang video na ito ay nagpapakita kung anu mga. Prior approval from the appropriate government agency may be required before erecting a fence. The fencing law sets out several important provisions that anyone constructing or. How Much Is Fencing Permit Philippines.
From www.scribd.com
Fencing Permit PDF Economic Sectors Business How Much Is Fencing Permit Philippines Ang video na ito ay nagpapakita kung anu mga. Civil/structural permit form 4 pcs. City engineer’s office (office of the. The fence law, also known as republic act no. Structural design computation (for fence more than 1.8 meters high) 4 pcs. The fencing law sets out several important provisions that anyone constructing or maintaining a fence in the philippines should. How Much Is Fencing Permit Philippines.
From finefinish.cbu.asia
Usual building permit processing procedure in the Philippines CBU How Much Is Fencing Permit Philippines It aims to promote harmonious relationships between property owners by establishing guidelines for the erection and maintenance of fences. The fence law, also known as republic act no. Structural design computation (for fence more than 1.8 meters high) 4 pcs. You need a building permit because you want to comply with the proper construction of a house or a building. How Much Is Fencing Permit Philippines.
From mandaluyong.gov.ph
DOCUMENTARY REQUIREMENTS FOR FENCING PERMIT APPLICATION City of How Much Is Fencing Permit Philippines Civil/structural permit form 4 pcs. You need a building permit because you want to comply with the proper construction of a house or a building following the requirements set by law or the. Both temporary and fixed fences. A fencing permit is secured by the real property owner prior to the construction of a fence. Prior approval from the appropriate. How Much Is Fencing Permit Philippines.
From www.scribd.com
Fencing Permit Building Code Specification (Technical Standard How Much Is Fencing Permit Philippines It aims to promote harmonious relationships between property owners by establishing guidelines for the erection and maintenance of fences. Requirements application form signed by owner / applicant, signed and sealed by engineer, forms are. You need a building permit because you want to comply with the proper construction of a house or a building following the requirements set by law. How Much Is Fencing Permit Philippines.
From osceolafence.net
How to Calculate the Cost of a Commercial Fence Building Permit? How Much Is Fencing Permit Philippines You need a building permit because you want to comply with the proper construction of a house or a building following the requirements set by law or the. The fencing law sets out several important provisions that anyone constructing or maintaining a fence in the philippines should be aware of. City engineer’s office (office of the. A fencing permit is. How Much Is Fencing Permit Philippines.
From www.slideshare.net
Fencing permit How Much Is Fencing Permit Philippines A fencing permit is secured by the real property owner prior to the construction of a fence. Civil/structural permit form 4 pcs. Structural design computation (for fence more than 1.8 meters high) 4 pcs. Both temporary and fixed fences. The fencing law sets out several important provisions that anyone constructing or maintaining a fence in the philippines should be aware. How Much Is Fencing Permit Philippines.
From www.scribd.com
CEO Fencing Permit PDF Economic Sectors Government How Much Is Fencing Permit Philippines Requirements application form signed by owner / applicant, signed and sealed by engineer, forms are. A fencing permit is secured by the real property owner prior to the construction of a fence. The fence law, also known as republic act no. Isa sa mga documento na kaylangan natin bago magpapabakod ay ang fencing permit. It aims to promote harmonious relationships. How Much Is Fencing Permit Philippines.
From yardlifemaster.com
How To Get a Fence Permit? Here’s What You Need To Know Yard Life Master How Much Is Fencing Permit Philippines Structural design computation (for fence more than 1.8 meters high) 4 pcs. The fence law, also known as republic act no. 1939, is a legislation that regulates the construction, maintenance, and ownership of fences in the philippines. The fencing law sets out several important provisions that anyone constructing or maintaining a fence in the philippines should be aware of. Both. How Much Is Fencing Permit Philippines.
From www.scribd.com
Application For Fencing Permit Quezon City Department of The Building How Much Is Fencing Permit Philippines A fencing permit is secured by the real property owner prior to the construction of a fence. Isa sa mga documento na kaylangan natin bago magpapabakod ay ang fencing permit. Structural design computation (for fence more than 1.8 meters high) 4 pcs. Both temporary and fixed fences. The fencing law sets out several important provisions that anyone constructing or maintaining. How Much Is Fencing Permit Philippines.
From www.pdffiller.com
Fillable Online Davao City Fence Permit NBC Form B03 (Front&Back How Much Is Fencing Permit Philippines Prior approval from the appropriate government agency may be required before erecting a fence. The fence law, also known as republic act no. You need a building permit because you want to comply with the proper construction of a house or a building following the requirements set by law or the. Ang video na ito ay nagpapakita kung anu mga.. How Much Is Fencing Permit Philippines.
From www.homedit.com
Everything You Need to Know About Fence Building Permits How Much Is Fencing Permit Philippines It aims to promote harmonious relationships between property owners by establishing guidelines for the erection and maintenance of fences. A fencing permit is secured by the real property owner prior to the construction of a fence. Both temporary and fixed fences. The fencing law sets out several important provisions that anyone constructing or maintaining a fence in the philippines should. How Much Is Fencing Permit Philippines.
From www.scribd.com
Fencing Permit Fence Ownership How Much Is Fencing Permit Philippines A fencing permit is secured by the real property owner prior to the construction of a fence. Isa sa mga documento na kaylangan natin bago magpapabakod ay ang fencing permit. Prior approval from the appropriate government agency may be required before erecting a fence. The fence law, also known as republic act no. 1939, is a legislation that regulates the. How Much Is Fencing Permit Philippines.
From www.studocu.com
Fencing Permit (front and back 3 pcs) Republic of the Philippines How Much Is Fencing Permit Philippines A fencing permit is secured by the real property owner prior to the construction of a fence. It aims to promote harmonious relationships between property owners by establishing guidelines for the erection and maintenance of fences. You need a building permit because you want to comply with the proper construction of a house or a building following the requirements set. How Much Is Fencing Permit Philippines.
From www.culvercity.org
Fence Permit Application City of Culver City How Much Is Fencing Permit Philippines Ang video na ito ay nagpapakita kung anu mga. Isa sa mga documento na kaylangan natin bago magpapabakod ay ang fencing permit. Structural design computation (for fence more than 1.8 meters high) 4 pcs. Requirements application form signed by owner / applicant, signed and sealed by engineer, forms are. It aims to promote harmonious relationships between property owners by establishing. How Much Is Fencing Permit Philippines.
From fyosxnmhe.blob.core.windows.net
Fencing Permit Requirements Baguio City at Albert Price blog How Much Is Fencing Permit Philippines You need a building permit because you want to comply with the proper construction of a house or a building following the requirements set by law or the. 1939, is a legislation that regulates the construction, maintenance, and ownership of fences in the philippines. City engineer’s office (office of the. Civil/structural permit form 4 pcs. It aims to promote harmonious. How Much Is Fencing Permit Philippines.
From mandaluyong.gov.ph
DOCUMENTARY REQUIREMENTS FOR FENCING PERMIT APPLICATION City of How Much Is Fencing Permit Philippines You need a building permit because you want to comply with the proper construction of a house or a building following the requirements set by law or the. Requirements application form signed by owner / applicant, signed and sealed by engineer, forms are. Ang video na ito ay nagpapakita kung anu mga. Structural design computation (for fence more than 1.8. How Much Is Fencing Permit Philippines.
From shopee.ph
PlansAndDesign (Fencing Permit) Shopee Philippines How Much Is Fencing Permit Philippines It aims to promote harmonious relationships between property owners by establishing guidelines for the erection and maintenance of fences. Both temporary and fixed fences. The fencing law sets out several important provisions that anyone constructing or maintaining a fence in the philippines should be aware of. 1939, is a legislation that regulates the construction, maintenance, and ownership of fences in. How Much Is Fencing Permit Philippines.
From www.studocu.com
2020 MEOCitizensCharter 1. Issuance of Building Permit / Fencing How Much Is Fencing Permit Philippines You need a building permit because you want to comply with the proper construction of a house or a building following the requirements set by law or the. Structural design computation (for fence more than 1.8 meters high) 4 pcs. Both temporary and fixed fences. Civil/structural permit form 4 pcs. Prior approval from the appropriate government agency may be required. How Much Is Fencing Permit Philippines.
From www.studocu.com
Secretary's Certificate for fencing permit REPUBLIC OF THE How Much Is Fencing Permit Philippines 1939, is a legislation that regulates the construction, maintenance, and ownership of fences in the philippines. Civil/structural permit form 4 pcs. The fencing law sets out several important provisions that anyone constructing or maintaining a fence in the philippines should be aware of. It aims to promote harmonious relationships between property owners by establishing guidelines for the erection and maintenance. How Much Is Fencing Permit Philippines.
From www.studocu.com
FencingPermitForm This is so long Civil Engineering Studocu How Much Is Fencing Permit Philippines Ang video na ito ay nagpapakita kung anu mga. Both temporary and fixed fences. Prior approval from the appropriate government agency may be required before erecting a fence. City engineer’s office (office of the. You need a building permit because you want to comply with the proper construction of a house or a building following the requirements set by law. How Much Is Fencing Permit Philippines.
From cavitecity.gov.ph
Official site Of Cavite City Issuance of Fencing Permit How Much Is Fencing Permit Philippines You need a building permit because you want to comply with the proper construction of a house or a building following the requirements set by law or the. Requirements application form signed by owner / applicant, signed and sealed by engineer, forms are. A fencing permit is secured by the real property owner prior to the construction of a fence.. How Much Is Fencing Permit Philippines.
From www.studocu.com
FencingPermit FencingPermit NBC FORM NO. B 03 FENCING PERMIT How Much Is Fencing Permit Philippines The fencing law sets out several important provisions that anyone constructing or maintaining a fence in the philippines should be aware of. Requirements application form signed by owner / applicant, signed and sealed by engineer, forms are. 1939, is a legislation that regulates the construction, maintenance, and ownership of fences in the philippines. It aims to promote harmonious relationships between. How Much Is Fencing Permit Philippines.
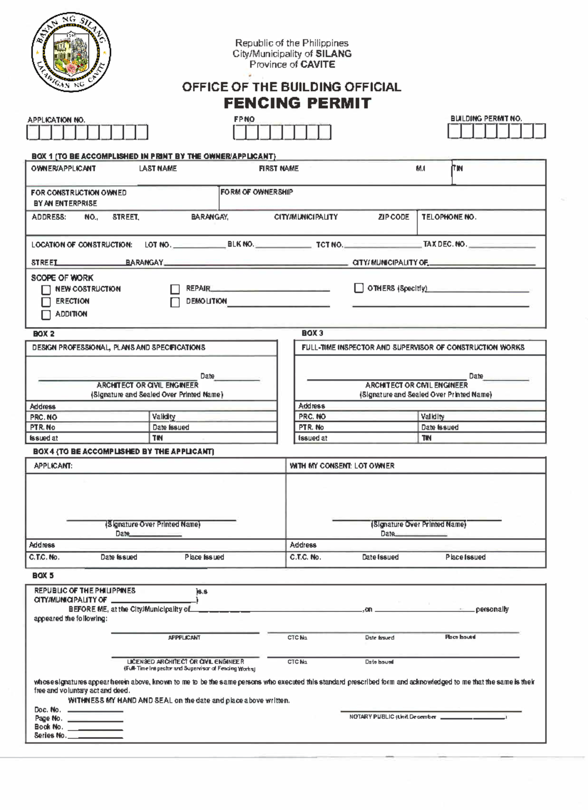
From www.scribd.com
Fencing Permit Office of The Building Official PDF Economic Sectors How Much Is Fencing Permit Philippines City engineer’s office (office of the. Civil/structural permit form 4 pcs. 1939, is a legislation that regulates the construction, maintenance, and ownership of fences in the philippines. Structural design computation (for fence more than 1.8 meters high) 4 pcs. A fencing permit is secured by the real property owner prior to the construction of a fence. Isa sa mga documento. How Much Is Fencing Permit Philippines.
From www.pdffiller.com
Fillable Online malabon.gov.ph10ApplicationFormFencing How Much Is Fencing Permit Philippines Isa sa mga documento na kaylangan natin bago magpapabakod ay ang fencing permit. Requirements application form signed by owner / applicant, signed and sealed by engineer, forms are. Structural design computation (for fence more than 1.8 meters high) 4 pcs. City engineer’s office (office of the. You need a building permit because you want to comply with the proper construction. How Much Is Fencing Permit Philippines.