Slo County Minor Use Permit . The minor use permit review process provides for public review of significant land use proposals that are not of sufficient magnitude to warrant. Learn about the purpose, content, process and time limits of minor use permit applications in the coastal zone land use of san luis obispo. The minor use permit review process provides for public review of significant land use proposals that are not of sufficient magnitude to warrant. Before acting on any minor use permit application, the director. New building permit applications will only be accepted up to 11 am to ensure adequate processing time. For applications via the online permit portal: The city clerk's office has. The san luis obispo municipal code is current through ordinance 1739, passed september 3, 2024.
from www.templateroller.com
The san luis obispo municipal code is current through ordinance 1739, passed september 3, 2024. The minor use permit review process provides for public review of significant land use proposals that are not of sufficient magnitude to warrant. For applications via the online permit portal: Learn about the purpose, content, process and time limits of minor use permit applications in the coastal zone land use of san luis obispo. The minor use permit review process provides for public review of significant land use proposals that are not of sufficient magnitude to warrant. New building permit applications will only be accepted up to 11 am to ensure adequate processing time. The city clerk's office has. Before acting on any minor use permit application, the director.
Form LAWS COM0000 Fill Out, Sign Online and Download Fillable PDF
Slo County Minor Use Permit The minor use permit review process provides for public review of significant land use proposals that are not of sufficient magnitude to warrant. The minor use permit review process provides for public review of significant land use proposals that are not of sufficient magnitude to warrant. Before acting on any minor use permit application, the director. For applications via the online permit portal: The city clerk's office has. New building permit applications will only be accepted up to 11 am to ensure adequate processing time. Learn about the purpose, content, process and time limits of minor use permit applications in the coastal zone land use of san luis obispo. The san luis obispo municipal code is current through ordinance 1739, passed september 3, 2024. The minor use permit review process provides for public review of significant land use proposals that are not of sufficient magnitude to warrant.
From www.formsbank.com
Fillable Minor Permit Application Form printable pdf download Slo County Minor Use Permit Before acting on any minor use permit application, the director. New building permit applications will only be accepted up to 11 am to ensure adequate processing time. The city clerk's office has. The minor use permit review process provides for public review of significant land use proposals that are not of sufficient magnitude to warrant. The minor use permit review. Slo County Minor Use Permit.
From klaybfbkb.blob.core.windows.net
License For A Food Trailer at Harris blog Slo County Minor Use Permit Learn about the purpose, content, process and time limits of minor use permit applications in the coastal zone land use of san luis obispo. The san luis obispo municipal code is current through ordinance 1739, passed september 3, 2024. New building permit applications will only be accepted up to 11 am to ensure adequate processing time. For applications via the. Slo County Minor Use Permit.
From www.youtube.com
New SLO County supervisorial district map includes major changes YouTube Slo County Minor Use Permit The san luis obispo municipal code is current through ordinance 1739, passed september 3, 2024. New building permit applications will only be accepted up to 11 am to ensure adequate processing time. The minor use permit review process provides for public review of significant land use proposals that are not of sufficient magnitude to warrant. Before acting on any minor. Slo County Minor Use Permit.
From www.templateroller.com
Sierra County, California Special Use Permit (Sup) Application for Slo County Minor Use Permit The minor use permit review process provides for public review of significant land use proposals that are not of sufficient magnitude to warrant. Learn about the purpose, content, process and time limits of minor use permit applications in the coastal zone land use of san luis obispo. The san luis obispo municipal code is current through ordinance 1739, passed september. Slo County Minor Use Permit.
From www.countyforms.com
San Luis Obispo County Superior Court Forms Slo County Minor Use Permit Before acting on any minor use permit application, the director. The city clerk's office has. New building permit applications will only be accepted up to 11 am to ensure adequate processing time. The minor use permit review process provides for public review of significant land use proposals that are not of sufficient magnitude to warrant. For applications via the online. Slo County Minor Use Permit.
From exogahnoh.blob.core.windows.net
San Luis Obispo County Land Use Ordinance at Doris Castillo blog Slo County Minor Use Permit New building permit applications will only be accepted up to 11 am to ensure adequate processing time. Before acting on any minor use permit application, the director. Learn about the purpose, content, process and time limits of minor use permit applications in the coastal zone land use of san luis obispo. The city clerk's office has. The san luis obispo. Slo County Minor Use Permit.
From formspal.com
Permit Application PDF Form FormsPal Slo County Minor Use Permit The minor use permit review process provides for public review of significant land use proposals that are not of sufficient magnitude to warrant. For applications via the online permit portal: New building permit applications will only be accepted up to 11 am to ensure adequate processing time. Before acting on any minor use permit application, the director. The san luis. Slo County Minor Use Permit.
From exogahnoh.blob.core.windows.net
San Luis Obispo County Land Use Ordinance at Doris Castillo blog Slo County Minor Use Permit The city clerk's office has. The minor use permit review process provides for public review of significant land use proposals that are not of sufficient magnitude to warrant. New building permit applications will only be accepted up to 11 am to ensure adequate processing time. For applications via the online permit portal: Learn about the purpose, content, process and time. Slo County Minor Use Permit.
From www.pdffiller.com
2010 Form GA DoT Single Trip Permit Application Fill Online, Printable Slo County Minor Use Permit Learn about the purpose, content, process and time limits of minor use permit applications in the coastal zone land use of san luis obispo. The city clerk's office has. The minor use permit review process provides for public review of significant land use proposals that are not of sufficient magnitude to warrant. New building permit applications will only be accepted. Slo County Minor Use Permit.
From data1.skinnyms.com
Printable Work Permit For Minors Slo County Minor Use Permit Learn about the purpose, content, process and time limits of minor use permit applications in the coastal zone land use of san luis obispo. The minor use permit review process provides for public review of significant land use proposals that are not of sufficient magnitude to warrant. The city clerk's office has. The minor use permit review process provides for. Slo County Minor Use Permit.
From www.pdffiller.com
Fillable Online placer ca CONDITIONAL USE PERMIT/MINOR USE PERMIT Slo County Minor Use Permit Learn about the purpose, content, process and time limits of minor use permit applications in the coastal zone land use of san luis obispo. New building permit applications will only be accepted up to 11 am to ensure adequate processing time. The minor use permit review process provides for public review of significant land use proposals that are not of. Slo County Minor Use Permit.
From printable.conaresvirtual.edu.sv
Printable Work Permit For Minors Slo County Minor Use Permit Learn about the purpose, content, process and time limits of minor use permit applications in the coastal zone land use of san luis obispo. The minor use permit review process provides for public review of significant land use proposals that are not of sufficient magnitude to warrant. The san luis obispo municipal code is current through ordinance 1739, passed september. Slo County Minor Use Permit.
From studylib.net
Conditional Use Permit Application Slo County Minor Use Permit The minor use permit review process provides for public review of significant land use proposals that are not of sufficient magnitude to warrant. The san luis obispo municipal code is current through ordinance 1739, passed september 3, 2024. The minor use permit review process provides for public review of significant land use proposals that are not of sufficient magnitude to. Slo County Minor Use Permit.
From www.templateroller.com
Form PDS565 Fill Out, Sign Online and Download Printable PDF, County Slo County Minor Use Permit For applications via the online permit portal: Before acting on any minor use permit application, the director. New building permit applications will only be accepted up to 11 am to ensure adequate processing time. The minor use permit review process provides for public review of significant land use proposals that are not of sufficient magnitude to warrant. The minor use. Slo County Minor Use Permit.
From formspal.com
Wisconsin Work Permit Form ≡ Fill Out Printable PDF Forms Online Slo County Minor Use Permit The san luis obispo municipal code is current through ordinance 1739, passed september 3, 2024. Before acting on any minor use permit application, the director. For applications via the online permit portal: New building permit applications will only be accepted up to 11 am to ensure adequate processing time. The minor use permit review process provides for public review of. Slo County Minor Use Permit.
From www.kcbx.org
CA Supreme Court denies emergency motion to stop use of new SLO County Slo County Minor Use Permit The minor use permit review process provides for public review of significant land use proposals that are not of sufficient magnitude to warrant. The minor use permit review process provides for public review of significant land use proposals that are not of sufficient magnitude to warrant. The city clerk's office has. Before acting on any minor use permit application, the. Slo County Minor Use Permit.
From www.templateroller.com
Form LAWS COM0000 Download Printable PDF or Fill Online Application for Slo County Minor Use Permit Learn about the purpose, content, process and time limits of minor use permit applications in the coastal zone land use of san luis obispo. The minor use permit review process provides for public review of significant land use proposals that are not of sufficient magnitude to warrant. The san luis obispo municipal code is current through ordinance 1739, passed september. Slo County Minor Use Permit.
From dokumen.tips
(PDF) Conditional Use Permit Major DOKUMEN.TIPS Slo County Minor Use Permit The city clerk's office has. The minor use permit review process provides for public review of significant land use proposals that are not of sufficient magnitude to warrant. New building permit applications will only be accepted up to 11 am to ensure adequate processing time. For applications via the online permit portal: Before acting on any minor use permit application,. Slo County Minor Use Permit.
From seic.co.id
Jasa Konsultansi Perizinan SLO No. 1 di Indonesia Modern Consultant Slo County Minor Use Permit For applications via the online permit portal: The city clerk's office has. The minor use permit review process provides for public review of significant land use proposals that are not of sufficient magnitude to warrant. Learn about the purpose, content, process and time limits of minor use permit applications in the coastal zone land use of san luis obispo. Before. Slo County Minor Use Permit.
From www.cityofpa.us
Land Use Permits Port Angeles, WA Official site Slo County Minor Use Permit The city clerk's office has. The minor use permit review process provides for public review of significant land use proposals that are not of sufficient magnitude to warrant. The san luis obispo municipal code is current through ordinance 1739, passed september 3, 2024. The minor use permit review process provides for public review of significant land use proposals that are. Slo County Minor Use Permit.
From www.signnow.com
Honolulu Dpp S 20152024 Form Fill Out and Sign Printable PDF Slo County Minor Use Permit Before acting on any minor use permit application, the director. Learn about the purpose, content, process and time limits of minor use permit applications in the coastal zone land use of san luis obispo. The san luis obispo municipal code is current through ordinance 1739, passed september 3, 2024. New building permit applications will only be accepted up to 11. Slo County Minor Use Permit.
From library.municode.com
Municode Library Slo County Minor Use Permit The san luis obispo municipal code is current through ordinance 1739, passed september 3, 2024. Learn about the purpose, content, process and time limits of minor use permit applications in the coastal zone land use of san luis obispo. Before acting on any minor use permit application, the director. The city clerk's office has. New building permit applications will only. Slo County Minor Use Permit.
From printable.conaresvirtual.edu.sv
Printable Work Permit For Minors Slo County Minor Use Permit Before acting on any minor use permit application, the director. The minor use permit review process provides for public review of significant land use proposals that are not of sufficient magnitude to warrant. Learn about the purpose, content, process and time limits of minor use permit applications in the coastal zone land use of san luis obispo. The minor use. Slo County Minor Use Permit.
From www.kcbx.org
SLO County Board of Supervisors finalizes Patten map as final district Slo County Minor Use Permit For applications via the online permit portal: Learn about the purpose, content, process and time limits of minor use permit applications in the coastal zone land use of san luis obispo. New building permit applications will only be accepted up to 11 am to ensure adequate processing time. The minor use permit review process provides for public review of significant. Slo County Minor Use Permit.
From www.pdffiller.com
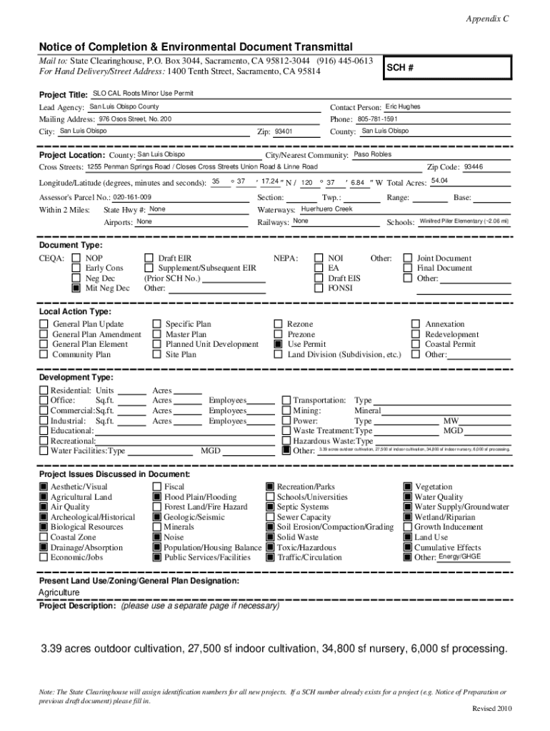
Fillable Online DRC201800228 SLO CAL Roots Minor Use Permit Slo County Minor Use Permit New building permit applications will only be accepted up to 11 am to ensure adequate processing time. The city clerk's office has. The san luis obispo municipal code is current through ordinance 1739, passed september 3, 2024. For applications via the online permit portal: The minor use permit review process provides for public review of significant land use proposals that. Slo County Minor Use Permit.
From www.slocounty.ca.gov
Storm Wrapup Jan 9 2023 County of San Luis Obispo Slo County Minor Use Permit For applications via the online permit portal: Learn about the purpose, content, process and time limits of minor use permit applications in the coastal zone land use of san luis obispo. The san luis obispo municipal code is current through ordinance 1739, passed september 3, 2024. Before acting on any minor use permit application, the director. The city clerk's office. Slo County Minor Use Permit.
From agniakhassaarkananta.com
Sertifikat Laik Operasi (SLO Permit) PT Agnia Khassa Arkananta Slo County Minor Use Permit The city clerk's office has. For applications via the online permit portal: The san luis obispo municipal code is current through ordinance 1739, passed september 3, 2024. The minor use permit review process provides for public review of significant land use proposals that are not of sufficient magnitude to warrant. The minor use permit review process provides for public review. Slo County Minor Use Permit.
From www.pdffiller.com
Fillable Online sites defaultFILE BOUNDARY Slo County Minor Use Permit The san luis obispo municipal code is current through ordinance 1739, passed september 3, 2024. For applications via the online permit portal: The minor use permit review process provides for public review of significant land use proposals that are not of sufficient magnitude to warrant. New building permit applications will only be accepted up to 11 am to ensure adequate. Slo County Minor Use Permit.
From www.templateroller.com
Form PDS565 Fill Out, Sign Online and Download Printable PDF, County Slo County Minor Use Permit The minor use permit review process provides for public review of significant land use proposals that are not of sufficient magnitude to warrant. The minor use permit review process provides for public review of significant land use proposals that are not of sufficient magnitude to warrant. The city clerk's office has. The san luis obispo municipal code is current through. Slo County Minor Use Permit.
From www.templateroller.com
Form LAWS COM0000 Fill Out, Sign Online and Download Fillable PDF Slo County Minor Use Permit The minor use permit review process provides for public review of significant land use proposals that are not of sufficient magnitude to warrant. The city clerk's office has. The minor use permit review process provides for public review of significant land use proposals that are not of sufficient magnitude to warrant. The san luis obispo municipal code is current through. Slo County Minor Use Permit.
From www.sanluisobispo.com
SLO County supervisors pursue redistricting commission San Luis Slo County Minor Use Permit The san luis obispo municipal code is current through ordinance 1739, passed september 3, 2024. The minor use permit review process provides for public review of significant land use proposals that are not of sufficient magnitude to warrant. The minor use permit review process provides for public review of significant land use proposals that are not of sufficient magnitude to. Slo County Minor Use Permit.
From www.signnow.com
County Sign Permit Application Complete with ease airSlate Slo County Minor Use Permit New building permit applications will only be accepted up to 11 am to ensure adequate processing time. For applications via the online permit portal: The minor use permit review process provides for public review of significant land use proposals that are not of sufficient magnitude to warrant. Learn about the purpose, content, process and time limits of minor use permit. Slo County Minor Use Permit.
From twitter.com
CAL FIRE SLO on Twitter "Effective tomorrow December 12th open burn Slo County Minor Use Permit For applications via the online permit portal: The san luis obispo municipal code is current through ordinance 1739, passed september 3, 2024. The minor use permit review process provides for public review of significant land use proposals that are not of sufficient magnitude to warrant. Before acting on any minor use permit application, the director. Learn about the purpose, content,. Slo County Minor Use Permit.
From www.newtimesslo.com
SLO County settles redistricting lawsuit, will replace Patten map Slo County Minor Use Permit The minor use permit review process provides for public review of significant land use proposals that are not of sufficient magnitude to warrant. For applications via the online permit portal: The san luis obispo municipal code is current through ordinance 1739, passed september 3, 2024. The minor use permit review process provides for public review of significant land use proposals. Slo County Minor Use Permit.
From www.pdffiller.com
Fillable Online Minor Use Permits Sacramento County, CaliforniaMajor Slo County Minor Use Permit Learn about the purpose, content, process and time limits of minor use permit applications in the coastal zone land use of san luis obispo. The city clerk's office has. The minor use permit review process provides for public review of significant land use proposals that are not of sufficient magnitude to warrant. Before acting on any minor use permit application,. Slo County Minor Use Permit.