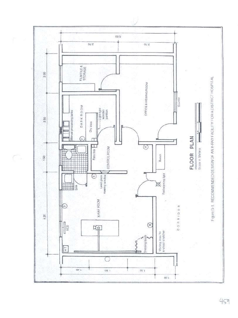
Xray Room Floor Plan . Completion of the equipment room drawing and radiation shielding intake form Before construction work starts, taking an overview of complete architectural dimensions,. Includes plans, sections, details with dimensions and specifications.
from www.pinterest.com
Before construction work starts, taking an overview of complete architectural dimensions,. Includes plans, sections, details with dimensions and specifications. Completion of the equipment room drawing and radiation shielding intake form
Medical hospital xray room layout plan details dwg file Hospital Floor
Xray Room Floor Plan Before construction work starts, taking an overview of complete architectural dimensions,. Completion of the equipment room drawing and radiation shielding intake form Before construction work starts, taking an overview of complete architectural dimensions,. Includes plans, sections, details with dimensions and specifications.
From www.pinterest.ca
Radiology Xray exam room / Revit Model Hospital floor plan, Hospital Xray Room Floor Plan Completion of the equipment room drawing and radiation shielding intake form Includes plans, sections, details with dimensions and specifications. Before construction work starts, taking an overview of complete architectural dimensions,. Xray Room Floor Plan.
From floorplans.click
Radiology Room Floor Plan floorplans.click Xray Room Floor Plan Before construction work starts, taking an overview of complete architectural dimensions,. Completion of the equipment room drawing and radiation shielding intake form Includes plans, sections, details with dimensions and specifications. Xray Room Floor Plan.
From www.researchgate.net
Layout of xray room C Download Scientific Diagram Xray Room Floor Plan Completion of the equipment room drawing and radiation shielding intake form Before construction work starts, taking an overview of complete architectural dimensions,. Includes plans, sections, details with dimensions and specifications. Xray Room Floor Plan.
From www.spielbergnews.com
How XRay Room Layout Should Be Designed? Xray Room Floor Plan Before construction work starts, taking an overview of complete architectural dimensions,. Includes plans, sections, details with dimensions and specifications. Completion of the equipment room drawing and radiation shielding intake form Xray Room Floor Plan.
From radiologykey.com
Design and Construction of an ImageGuided Procedure Room Radiology Key Xray Room Floor Plan Completion of the equipment room drawing and radiation shielding intake form Includes plans, sections, details with dimensions and specifications. Before construction work starts, taking an overview of complete architectural dimensions,. Xray Room Floor Plan.
From elitefitout.com.au
Radiology Clinic Layout Design Principles Elite Fitout Xray Room Floor Plan Completion of the equipment room drawing and radiation shielding intake form Before construction work starts, taking an overview of complete architectural dimensions,. Includes plans, sections, details with dimensions and specifications. Xray Room Floor Plan.
From www.researchgate.net
Layout of Xray room A Download Scientific Diagram Xray Room Floor Plan Includes plans, sections, details with dimensions and specifications. Before construction work starts, taking an overview of complete architectural dimensions,. Completion of the equipment room drawing and radiation shielding intake form Xray Room Floor Plan.
From associatedxray.com
Sample Room Layouts/Designs Associated XRay Imaging Corporation X Xray Room Floor Plan Before construction work starts, taking an overview of complete architectural dimensions,. Includes plans, sections, details with dimensions and specifications. Completion of the equipment room drawing and radiation shielding intake form Xray Room Floor Plan.
From www.wolverson.uk.com
Xray room design 4 Steps to Building a Radiology Room Xray Room Floor Plan Completion of the equipment room drawing and radiation shielding intake form Includes plans, sections, details with dimensions and specifications. Before construction work starts, taking an overview of complete architectural dimensions,. Xray Room Floor Plan.
From thumb.cadbull.com
XRAY Machine Room Plan And Elevation Design AutoCAD File Cadbull Xray Room Floor Plan Before construction work starts, taking an overview of complete architectural dimensions,. Includes plans, sections, details with dimensions and specifications. Completion of the equipment room drawing and radiation shielding intake form Xray Room Floor Plan.
From www.wikiradiography.net
General XRay Room Layout wikiRadiography Xray Room Floor Plan Before construction work starts, taking an overview of complete architectural dimensions,. Includes plans, sections, details with dimensions and specifications. Completion of the equipment room drawing and radiation shielding intake form Xray Room Floor Plan.
From www.pinterest.com
Medical hospital xray room layout plan details dwg file Hospital Floor Xray Room Floor Plan Before construction work starts, taking an overview of complete architectural dimensions,. Completion of the equipment room drawing and radiation shielding intake form Includes plans, sections, details with dimensions and specifications. Xray Room Floor Plan.
From floorplans.click
Radiology Room Floor Plan floorplans.click Xray Room Floor Plan Completion of the equipment room drawing and radiation shielding intake form Before construction work starts, taking an overview of complete architectural dimensions,. Includes plans, sections, details with dimensions and specifications. Xray Room Floor Plan.
From www.mavenimaging.com
Xray Equipment Room Design Xray Room Floor Plan Completion of the equipment room drawing and radiation shielding intake form Before construction work starts, taking an overview of complete architectural dimensions,. Includes plans, sections, details with dimensions and specifications. Xray Room Floor Plan.
From room.onrender.com
Design X Ray Room Layout Xray Room Floor Plan Includes plans, sections, details with dimensions and specifications. Completion of the equipment room drawing and radiation shielding intake form Before construction work starts, taking an overview of complete architectural dimensions,. Xray Room Floor Plan.
From www.youtube.com
Floor Plan Of X Ray Room (see description) YouTube Xray Room Floor Plan Before construction work starts, taking an overview of complete architectural dimensions,. Completion of the equipment room drawing and radiation shielding intake form Includes plans, sections, details with dimensions and specifications. Xray Room Floor Plan.
From www.artofit.org
Medical hospital x ray room layout plan details dwg file Artofit Xray Room Floor Plan Includes plans, sections, details with dimensions and specifications. Completion of the equipment room drawing and radiation shielding intake form Before construction work starts, taking an overview of complete architectural dimensions,. Xray Room Floor Plan.
From www.wikiradiography.net
General XRay Room Layout wikiRadiography Xray Room Floor Plan Includes plans, sections, details with dimensions and specifications. Before construction work starts, taking an overview of complete architectural dimensions,. Completion of the equipment room drawing and radiation shielding intake form Xray Room Floor Plan.
From www.vrogue.co
X Ray Room Plan Details Of Medical Hospital Dwg File vrogue.co Xray Room Floor Plan Completion of the equipment room drawing and radiation shielding intake form Includes plans, sections, details with dimensions and specifications. Before construction work starts, taking an overview of complete architectural dimensions,. Xray Room Floor Plan.
From alterplayground.blogspot.com
X Ray Room Layout alter playground Xray Room Floor Plan Includes plans, sections, details with dimensions and specifications. Completion of the equipment room drawing and radiation shielding intake form Before construction work starts, taking an overview of complete architectural dimensions,. Xray Room Floor Plan.
From www.mavenimaging.com
Xray Equipment Room Design Xray Room Floor Plan Includes plans, sections, details with dimensions and specifications. Before construction work starts, taking an overview of complete architectural dimensions,. Completion of the equipment room drawing and radiation shielding intake form Xray Room Floor Plan.
From www.wolverson.uk.com
Xray room design 4 Steps to Building a Radiology Room Xray Room Floor Plan Completion of the equipment room drawing and radiation shielding intake form Before construction work starts, taking an overview of complete architectural dimensions,. Includes plans, sections, details with dimensions and specifications. Xray Room Floor Plan.
From room.onrender.com
Design X Ray Room Layout Xray Room Floor Plan Completion of the equipment room drawing and radiation shielding intake form Before construction work starts, taking an overview of complete architectural dimensions,. Includes plans, sections, details with dimensions and specifications. Xray Room Floor Plan.
From alterplayground.blogspot.com
X Ray Room Layout Ppt alter playground Xray Room Floor Plan Includes plans, sections, details with dimensions and specifications. Completion of the equipment room drawing and radiation shielding intake form Before construction work starts, taking an overview of complete architectural dimensions,. Xray Room Floor Plan.
From www.researchgate.net
Xray Room Layout for Center Z Download Scientific Diagram Xray Room Floor Plan Completion of the equipment room drawing and radiation shielding intake form Before construction work starts, taking an overview of complete architectural dimensions,. Includes plans, sections, details with dimensions and specifications. Xray Room Floor Plan.
From www.researchgate.net
Radiology department layout for facility A Download Scientific Diagram Xray Room Floor Plan Before construction work starts, taking an overview of complete architectural dimensions,. Includes plans, sections, details with dimensions and specifications. Completion of the equipment room drawing and radiation shielding intake form Xray Room Floor Plan.
From mavink.com
Radiology Room Layout Xray Room Floor Plan Before construction work starts, taking an overview of complete architectural dimensions,. Completion of the equipment room drawing and radiation shielding intake form Includes plans, sections, details with dimensions and specifications. Xray Room Floor Plan.
From www.scribd.com
Sample Floor Plan For Xray Room 1 PDF Xray Room Floor Plan Before construction work starts, taking an overview of complete architectural dimensions,. Completion of the equipment room drawing and radiation shielding intake form Includes plans, sections, details with dimensions and specifications. Xray Room Floor Plan.
From surgicalneurologyint.com
Surgical Neurology International Xray Room Floor Plan Before construction work starts, taking an overview of complete architectural dimensions,. Completion of the equipment room drawing and radiation shielding intake form Includes plans, sections, details with dimensions and specifications. Xray Room Floor Plan.
From cadbull.com
Xray room plan details of medical hospital dwg file Cadbull Xray Room Floor Plan Before construction work starts, taking an overview of complete architectural dimensions,. Includes plans, sections, details with dimensions and specifications. Completion of the equipment room drawing and radiation shielding intake form Xray Room Floor Plan.
From www.researchgate.net
Floor plan of the Advanced Light Source (ALS) XRay Optics Laboratory Xray Room Floor Plan Includes plans, sections, details with dimensions and specifications. Before construction work starts, taking an overview of complete architectural dimensions,. Completion of the equipment room drawing and radiation shielding intake form Xray Room Floor Plan.
From www.researchgate.net
Layout of xray room C Download Scientific Diagram Xray Room Floor Plan Before construction work starts, taking an overview of complete architectural dimensions,. Includes plans, sections, details with dimensions and specifications. Completion of the equipment room drawing and radiation shielding intake form Xray Room Floor Plan.
From www.pinterest.com
Layout for 500mA XRAY machine full PDF download/image download/all Xray Room Floor Plan Completion of the equipment room drawing and radiation shielding intake form Includes plans, sections, details with dimensions and specifications. Before construction work starts, taking an overview of complete architectural dimensions,. Xray Room Floor Plan.
From associatedxray.com
Sample Room Layouts/Designs Associated XRay Imaging Corporation X Xray Room Floor Plan Before construction work starts, taking an overview of complete architectural dimensions,. Completion of the equipment room drawing and radiation shielding intake form Includes plans, sections, details with dimensions and specifications. Xray Room Floor Plan.
From cadbull.com
Radiology room plan detail dwg file. Cadbull Xray Room Floor Plan Before construction work starts, taking an overview of complete architectural dimensions,. Includes plans, sections, details with dimensions and specifications. Completion of the equipment room drawing and radiation shielding intake form Xray Room Floor Plan.