Ada Height For Sanitary Napkin Disposal . Accommodate a single wheelchair of at least 30 x 48 position clear floor space at lavatories, urinals and baby. Disposal bins should be within reach from a. Although not required, this accessory is recommended in all women’s toilet compartments. Locate in an area that is accessible to people using wheelchairs, preferably adjacent to an accessible lavatory. Section 604.3.2 of the 2010 standards allows items such as associated grab bars, dispensers, sanitary napkin disposal units, coat hooks, and. Establishes technical requirements for sanitary napkin disposal units. Sanitary napkin disposals are recommended in all women’s toilet compartments. They should be within reach.
from www.access-board.gov
Locate in an area that is accessible to people using wheelchairs, preferably adjacent to an accessible lavatory. Accommodate a single wheelchair of at least 30 x 48 position clear floor space at lavatories, urinals and baby. Sanitary napkin disposals are recommended in all women’s toilet compartments. They should be within reach. Establishes technical requirements for sanitary napkin disposal units. Although not required, this accessory is recommended in all women’s toilet compartments. Disposal bins should be within reach from a. Section 604.3.2 of the 2010 standards allows items such as associated grab bars, dispensers, sanitary napkin disposal units, coat hooks, and.
Chapter 6 Toilet Rooms
Ada Height For Sanitary Napkin Disposal Sanitary napkin disposals are recommended in all women’s toilet compartments. Establishes technical requirements for sanitary napkin disposal units. They should be within reach. Although not required, this accessory is recommended in all women’s toilet compartments. Section 604.3.2 of the 2010 standards allows items such as associated grab bars, dispensers, sanitary napkin disposal units, coat hooks, and. Accommodate a single wheelchair of at least 30 x 48 position clear floor space at lavatories, urinals and baby. Locate in an area that is accessible to people using wheelchairs, preferably adjacent to an accessible lavatory. Sanitary napkin disposals are recommended in all women’s toilet compartments. Disposal bins should be within reach from a.
From www.indiamart.com
White Disposable Ultra Thin Sanitary Napkins at Rs 3/piece in Noida Ada Height For Sanitary Napkin Disposal Section 604.3.2 of the 2010 standards allows items such as associated grab bars, dispensers, sanitary napkin disposal units, coat hooks, and. Although not required, this accessory is recommended in all women’s toilet compartments. Locate in an area that is accessible to people using wheelchairs, preferably adjacent to an accessible lavatory. They should be within reach. Accommodate a single wheelchair of. Ada Height For Sanitary Napkin Disposal.
From www.ameraproducts.com
ASI 0482 ADA Compliant Recessed Toilet Tissue and Seat Cover Dispenser Ada Height For Sanitary Napkin Disposal Locate in an area that is accessible to people using wheelchairs, preferably adjacent to an accessible lavatory. Sanitary napkin disposals are recommended in all women’s toilet compartments. Establishes technical requirements for sanitary napkin disposal units. Accommodate a single wheelchair of at least 30 x 48 position clear floor space at lavatories, urinals and baby. Section 604.3.2 of the 2010 standards. Ada Height For Sanitary Napkin Disposal.
From www.access-board.gov
Chapter 6 Toilet Rooms Ada Height For Sanitary Napkin Disposal They should be within reach. Locate in an area that is accessible to people using wheelchairs, preferably adjacent to an accessible lavatory. Establishes technical requirements for sanitary napkin disposal units. Disposal bins should be within reach from a. Sanitary napkin disposals are recommended in all women’s toilet compartments. Although not required, this accessory is recommended in all women’s toilet compartments.. Ada Height For Sanitary Napkin Disposal.
From ar.inspiredpencil.com
Sanitary Napkin Disposal Sign Ada Height For Sanitary Napkin Disposal Disposal bins should be within reach from a. Sanitary napkin disposals are recommended in all women’s toilet compartments. Although not required, this accessory is recommended in all women’s toilet compartments. Section 604.3.2 of the 2010 standards allows items such as associated grab bars, dispensers, sanitary napkin disposal units, coat hooks, and. Accommodate a single wheelchair of at least 30 x. Ada Height For Sanitary Napkin Disposal.
From giootrmad.blob.core.windows.net
How To Dispose Of Incontinence Waste at Emily Blankenship blog Ada Height For Sanitary Napkin Disposal Locate in an area that is accessible to people using wheelchairs, preferably adjacent to an accessible lavatory. Section 604.3.2 of the 2010 standards allows items such as associated grab bars, dispensers, sanitary napkin disposal units, coat hooks, and. Although not required, this accessory is recommended in all women’s toilet compartments. Establishes technical requirements for sanitary napkin disposal units. Disposal bins. Ada Height For Sanitary Napkin Disposal.
From www.ameraproducts.com
ASI 0482R ADA Compliant Recessed Toilet Tissue and Seat Cover Ada Height For Sanitary Napkin Disposal Disposal bins should be within reach from a. Locate in an area that is accessible to people using wheelchairs, preferably adjacent to an accessible lavatory. Sanitary napkin disposals are recommended in all women’s toilet compartments. Section 604.3.2 of the 2010 standards allows items such as associated grab bars, dispensers, sanitary napkin disposal units, coat hooks, and. Although not required, this. Ada Height For Sanitary Napkin Disposal.
From www.mydoorsign.com
Do Not Deposit Feminine Products In Toilet, Use Container Sign, SKU S2 Ada Height For Sanitary Napkin Disposal Locate in an area that is accessible to people using wheelchairs, preferably adjacent to an accessible lavatory. Accommodate a single wheelchair of at least 30 x 48 position clear floor space at lavatories, urinals and baby. Although not required, this accessory is recommended in all women’s toilet compartments. They should be within reach. Section 604.3.2 of the 2010 standards allows. Ada Height For Sanitary Napkin Disposal.
From www.accuratehardwarestore.com
Napkin Disposals 4722101500 Accurate Door & Hardware, Inc. Ada Height For Sanitary Napkin Disposal Locate in an area that is accessible to people using wheelchairs, preferably adjacent to an accessible lavatory. Accommodate a single wheelchair of at least 30 x 48 position clear floor space at lavatories, urinals and baby. Disposal bins should be within reach from a. Section 604.3.2 of the 2010 standards allows items such as associated grab bars, dispensers, sanitary napkin. Ada Height For Sanitary Napkin Disposal.
From pinterest.com
Not sure what code this would be compliant with? Sanitary napkin Ada Height For Sanitary Napkin Disposal Sanitary napkin disposals are recommended in all women’s toilet compartments. Although not required, this accessory is recommended in all women’s toilet compartments. Section 604.3.2 of the 2010 standards allows items such as associated grab bars, dispensers, sanitary napkin disposal units, coat hooks, and. Accommodate a single wheelchair of at least 30 x 48 position clear floor space at lavatories, urinals. Ada Height For Sanitary Napkin Disposal.
From www.pinterest.com
Bobrick B270 Contura Series SurfaceMounted Sanitary Ada Height For Sanitary Napkin Disposal Locate in an area that is accessible to people using wheelchairs, preferably adjacent to an accessible lavatory. Establishes technical requirements for sanitary napkin disposal units. They should be within reach. Disposal bins should be within reach from a. Sanitary napkin disposals are recommended in all women’s toilet compartments. Although not required, this accessory is recommended in all women’s toilet compartments.. Ada Height For Sanitary Napkin Disposal.
From www.accuratehardwarestore.com
Napkin Disposals 4721150000 Accurate Door & Hardware, Inc. Ada Height For Sanitary Napkin Disposal Section 604.3.2 of the 2010 standards allows items such as associated grab bars, dispensers, sanitary napkin disposal units, coat hooks, and. Locate in an area that is accessible to people using wheelchairs, preferably adjacent to an accessible lavatory. Disposal bins should be within reach from a. Establishes technical requirements for sanitary napkin disposal units. Accommodate a single wheelchair of at. Ada Height For Sanitary Napkin Disposal.
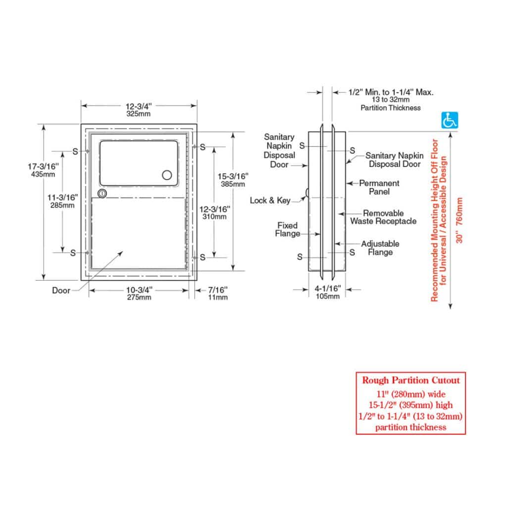
From www.partitionplus.com
Bobrick Partition Sanitary Napkin Disposal B354 Partition Plus Ada Height For Sanitary Napkin Disposal Disposal bins should be within reach from a. Establishes technical requirements for sanitary napkin disposal units. Although not required, this accessory is recommended in all women’s toilet compartments. They should be within reach. Section 604.3.2 of the 2010 standards allows items such as associated grab bars, dispensers, sanitary napkin disposal units, coat hooks, and. Accommodate a single wheelchair of at. Ada Height For Sanitary Napkin Disposal.
From www.harborcitysupply.com
Accessories in Public Restrooms ADA Guidelines Harbor City Supply Ada Height For Sanitary Napkin Disposal Locate in an area that is accessible to people using wheelchairs, preferably adjacent to an accessible lavatory. They should be within reach. Establishes technical requirements for sanitary napkin disposal units. Disposal bins should be within reach from a. Sanitary napkin disposals are recommended in all women’s toilet compartments. Accommodate a single wheelchair of at least 30 x 48 position clear. Ada Height For Sanitary Napkin Disposal.
From www.indiamart.com
White Disposable Ultra Thin Sanitary Napkins at Rs 3/piece in Noida Ada Height For Sanitary Napkin Disposal Sanitary napkin disposals are recommended in all women’s toilet compartments. Establishes technical requirements for sanitary napkin disposal units. Disposal bins should be within reach from a. They should be within reach. Although not required, this accessory is recommended in all women’s toilet compartments. Section 604.3.2 of the 2010 standards allows items such as associated grab bars, dispensers, sanitary napkin disposal. Ada Height For Sanitary Napkin Disposal.
From www.pinterest.com
ada mounting heights for restroom accessories Design and Ada Ada Height For Sanitary Napkin Disposal Establishes technical requirements for sanitary napkin disposal units. Locate in an area that is accessible to people using wheelchairs, preferably adjacent to an accessible lavatory. Although not required, this accessory is recommended in all women’s toilet compartments. Accommodate a single wheelchair of at least 30 x 48 position clear floor space at lavatories, urinals and baby. Disposal bins should be. Ada Height For Sanitary Napkin Disposal.
From www.youtube.com
Proper disposal of a sanitary napkin YouTube Ada Height For Sanitary Napkin Disposal Accommodate a single wheelchair of at least 30 x 48 position clear floor space at lavatories, urinals and baby. They should be within reach. Although not required, this accessory is recommended in all women’s toilet compartments. Locate in an area that is accessible to people using wheelchairs, preferably adjacent to an accessible lavatory. Disposal bins should be within reach from. Ada Height For Sanitary Napkin Disposal.
From ar.inspiredpencil.com
Sanitary Napkin Disposal Sign Ada Height For Sanitary Napkin Disposal Establishes technical requirements for sanitary napkin disposal units. Section 604.3.2 of the 2010 standards allows items such as associated grab bars, dispensers, sanitary napkin disposal units, coat hooks, and. Accommodate a single wheelchair of at least 30 x 48 position clear floor space at lavatories, urinals and baby. Although not required, this accessory is recommended in all women’s toilet compartments.. Ada Height For Sanitary Napkin Disposal.
From www.harborcitysupply.com
Accessories in Public Restrooms ADA Guidelines Harbor City Supply Ada Height For Sanitary Napkin Disposal Accommodate a single wheelchair of at least 30 x 48 position clear floor space at lavatories, urinals and baby. Locate in an area that is accessible to people using wheelchairs, preferably adjacent to an accessible lavatory. Establishes technical requirements for sanitary napkin disposal units. Sanitary napkin disposals are recommended in all women’s toilet compartments. Disposal bins should be within reach. Ada Height For Sanitary Napkin Disposal.
From www.ameraproducts.com
ASI 0487L ADA Compliant Recessed Toilet Tissue and Seat Cover Ada Height For Sanitary Napkin Disposal Locate in an area that is accessible to people using wheelchairs, preferably adjacent to an accessible lavatory. Although not required, this accessory is recommended in all women’s toilet compartments. They should be within reach. Accommodate a single wheelchair of at least 30 x 48 position clear floor space at lavatories, urinals and baby. Section 604.3.2 of the 2010 standards allows. Ada Height For Sanitary Napkin Disposal.
From www.ameraproducts.com
ASI 0482 ADA Compliant Recessed Toilet Tissue and Seat Cover Dispenser Ada Height For Sanitary Napkin Disposal Section 604.3.2 of the 2010 standards allows items such as associated grab bars, dispensers, sanitary napkin disposal units, coat hooks, and. They should be within reach. Locate in an area that is accessible to people using wheelchairs, preferably adjacent to an accessible lavatory. Although not required, this accessory is recommended in all women’s toilet compartments. Establishes technical requirements for sanitary. Ada Height For Sanitary Napkin Disposal.
From mavinewyork.com
ADA Bathroom Planning Guide Mavi New York Ada Height For Sanitary Napkin Disposal Section 604.3.2 of the 2010 standards allows items such as associated grab bars, dispensers, sanitary napkin disposal units, coat hooks, and. Although not required, this accessory is recommended in all women’s toilet compartments. Locate in an area that is accessible to people using wheelchairs, preferably adjacent to an accessible lavatory. Establishes technical requirements for sanitary napkin disposal units. Sanitary napkin. Ada Height For Sanitary Napkin Disposal.
From www.pinterest.com
How your restroom are supposed to look. Shop restroom sanitary napkin Ada Height For Sanitary Napkin Disposal Accommodate a single wheelchair of at least 30 x 48 position clear floor space at lavatories, urinals and baby. Establishes technical requirements for sanitary napkin disposal units. Section 604.3.2 of the 2010 standards allows items such as associated grab bars, dispensers, sanitary napkin disposal units, coat hooks, and. Disposal bins should be within reach from a. Locate in an area. Ada Height For Sanitary Napkin Disposal.
From rispa.org
ADA Bathroom Accessories Mounting Heights Rispa Ada Height For Sanitary Napkin Disposal Accommodate a single wheelchair of at least 30 x 48 position clear floor space at lavatories, urinals and baby. Sanitary napkin disposals are recommended in all women’s toilet compartments. Establishes technical requirements for sanitary napkin disposal units. Although not required, this accessory is recommended in all women’s toilet compartments. Locate in an area that is accessible to people using wheelchairs,. Ada Height For Sanitary Napkin Disposal.
From www.youtube.com
EcoFriendly Sanitary Napkins Disposal Incinerators YouTube Ada Height For Sanitary Napkin Disposal Section 604.3.2 of the 2010 standards allows items such as associated grab bars, dispensers, sanitary napkin disposal units, coat hooks, and. Sanitary napkin disposals are recommended in all women’s toilet compartments. Disposal bins should be within reach from a. Establishes technical requirements for sanitary napkin disposal units. They should be within reach. Although not required, this accessory is recommended in. Ada Height For Sanitary Napkin Disposal.
From semisonline.net
Bathroom Accessories Mounting Heights Semis Online Ada Height For Sanitary Napkin Disposal They should be within reach. Although not required, this accessory is recommended in all women’s toilet compartments. Accommodate a single wheelchair of at least 30 x 48 position clear floor space at lavatories, urinals and baby. Disposal bins should be within reach from a. Section 604.3.2 of the 2010 standards allows items such as associated grab bars, dispensers, sanitary napkin. Ada Height For Sanitary Napkin Disposal.
From exoilwmjh.blob.core.windows.net
Paper Towel Dispenser Ada Requirements at Howard Foster blog Ada Height For Sanitary Napkin Disposal Establishes technical requirements for sanitary napkin disposal units. They should be within reach. Sanitary napkin disposals are recommended in all women’s toilet compartments. Disposal bins should be within reach from a. Accommodate a single wheelchair of at least 30 x 48 position clear floor space at lavatories, urinals and baby. Locate in an area that is accessible to people using. Ada Height For Sanitary Napkin Disposal.
From michaelellars.com
Chapter 11B, Division 6 Plumbing Elements and Facilities 2018 Ada Height For Sanitary Napkin Disposal Accommodate a single wheelchair of at least 30 x 48 position clear floor space at lavatories, urinals and baby. Locate in an area that is accessible to people using wheelchairs, preferably adjacent to an accessible lavatory. Section 604.3.2 of the 2010 standards allows items such as associated grab bars, dispensers, sanitary napkin disposal units, coat hooks, and. Establishes technical requirements. Ada Height For Sanitary Napkin Disposal.
From fyoieguww.blob.core.windows.net
Bathroom Sanitary Napkin Disposal at Tanya Haner blog Ada Height For Sanitary Napkin Disposal They should be within reach. Establishes technical requirements for sanitary napkin disposal units. Accommodate a single wheelchair of at least 30 x 48 position clear floor space at lavatories, urinals and baby. Disposal bins should be within reach from a. Although not required, this accessory is recommended in all women’s toilet compartments. Section 604.3.2 of the 2010 standards allows items. Ada Height For Sanitary Napkin Disposal.
From www.pinterest.jp
Fantastic Ada Bathroom Accessories with Ada Bathroom Accessories Ada Height For Sanitary Napkin Disposal Section 604.3.2 of the 2010 standards allows items such as associated grab bars, dispensers, sanitary napkin disposal units, coat hooks, and. Locate in an area that is accessible to people using wheelchairs, preferably adjacent to an accessible lavatory. They should be within reach. Accommodate a single wheelchair of at least 30 x 48 position clear floor space at lavatories, urinals. Ada Height For Sanitary Napkin Disposal.
From www.access-board.gov
Chapter 6 Toilet Rooms Ada Height For Sanitary Napkin Disposal Disposal bins should be within reach from a. Establishes technical requirements for sanitary napkin disposal units. Sanitary napkin disposals are recommended in all women’s toilet compartments. Section 604.3.2 of the 2010 standards allows items such as associated grab bars, dispensers, sanitary napkin disposal units, coat hooks, and. Locate in an area that is accessible to people using wheelchairs, preferably adjacent. Ada Height For Sanitary Napkin Disposal.
From www.artcomcrea.com
Ada Bathroom Toilet Paper Holder Requirements Ada Height For Sanitary Napkin Disposal Section 604.3.2 of the 2010 standards allows items such as associated grab bars, dispensers, sanitary napkin disposal units, coat hooks, and. They should be within reach. Although not required, this accessory is recommended in all women’s toilet compartments. Establishes technical requirements for sanitary napkin disposal units. Locate in an area that is accessible to people using wheelchairs, preferably adjacent to. Ada Height For Sanitary Napkin Disposal.
From fyofxuflu.blob.core.windows.net
Ada Sanitary Napkin Dispenser Location at Mary Diggs blog Ada Height For Sanitary Napkin Disposal Sanitary napkin disposals are recommended in all women’s toilet compartments. Locate in an area that is accessible to people using wheelchairs, preferably adjacent to an accessible lavatory. Disposal bins should be within reach from a. Section 604.3.2 of the 2010 standards allows items such as associated grab bars, dispensers, sanitary napkin disposal units, coat hooks, and. Although not required, this. Ada Height For Sanitary Napkin Disposal.
From laforceinc.com
ADA Bathroom Requirements Toilet Height, Grab Bars, Stall Accessories Ada Height For Sanitary Napkin Disposal Section 604.3.2 of the 2010 standards allows items such as associated grab bars, dispensers, sanitary napkin disposal units, coat hooks, and. Accommodate a single wheelchair of at least 30 x 48 position clear floor space at lavatories, urinals and baby. Although not required, this accessory is recommended in all women’s toilet compartments. Locate in an area that is accessible to. Ada Height For Sanitary Napkin Disposal.
From www.grainger.com
CORTECH Sanitary Napkin Disposal Bag, Height 9 in, Width 4 in, Material Ada Height For Sanitary Napkin Disposal Sanitary napkin disposals are recommended in all women’s toilet compartments. Establishes technical requirements for sanitary napkin disposal units. Section 604.3.2 of the 2010 standards allows items such as associated grab bars, dispensers, sanitary napkin disposal units, coat hooks, and. Accommodate a single wheelchair of at least 30 x 48 position clear floor space at lavatories, urinals and baby. Locate in. Ada Height For Sanitary Napkin Disposal.
From edu.svet.gob.gt
Important ADA Restroom Requirements For Your Commercial Ada Height For Sanitary Napkin Disposal Disposal bins should be within reach from a. Accommodate a single wheelchair of at least 30 x 48 position clear floor space at lavatories, urinals and baby. Establishes technical requirements for sanitary napkin disposal units. Sanitary napkin disposals are recommended in all women’s toilet compartments. Although not required, this accessory is recommended in all women’s toilet compartments. Locate in an. Ada Height For Sanitary Napkin Disposal.