Pine County Building Permits . Learn how to apply for building permits for various projects in pine city, mn, and find the fees, inspections, and zoning requirements. Pine county requires building site permits for a wide range of activities. The web page also provides links to permit applications, code administration, and related documents. Conditional/interim use permits and variances: City of pine city zoning. *the first 2 digits of your parcel id (pid) correspond with your township or. Contact the septic inspector amy thompson for new septic installations and existing septic inspections at:. A separate fee will be required for each structure on the application. The building site application is used for many types of construction, including but. 1) submit completed application, site plan, and permit fee. Rum river construction consultants review zoning permit applications for accessory structures (sheds), outdoor signs, driveways, sidewalks, fences, retaining walls, pools and spas.
from www.journalgazette.net
The web page also provides links to permit applications, code administration, and related documents. 1) submit completed application, site plan, and permit fee. City of pine city zoning. The building site application is used for many types of construction, including but. Conditional/interim use permits and variances: *the first 2 digits of your parcel id (pid) correspond with your township or. Rum river construction consultants review zoning permit applications for accessory structures (sheds), outdoor signs, driveways, sidewalks, fences, retaining walls, pools and spas. A separate fee will be required for each structure on the application. Contact the septic inspector amy thompson for new septic installations and existing septic inspections at:. Learn how to apply for building permits for various projects in pine city, mn, and find the fees, inspections, and zoning requirements.
Allen County building permits ending October 31, 2023 Business
Pine County Building Permits Contact the septic inspector amy thompson for new septic installations and existing septic inspections at:. A separate fee will be required for each structure on the application. Rum river construction consultants review zoning permit applications for accessory structures (sheds), outdoor signs, driveways, sidewalks, fences, retaining walls, pools and spas. *the first 2 digits of your parcel id (pid) correspond with your township or. The building site application is used for many types of construction, including but. 1) submit completed application, site plan, and permit fee. The web page also provides links to permit applications, code administration, and related documents. Contact the septic inspector amy thompson for new septic installations and existing septic inspections at:. Conditional/interim use permits and variances: Pine county requires building site permits for a wide range of activities. City of pine city zoning. Learn how to apply for building permits for various projects in pine city, mn, and find the fees, inspections, and zoning requirements.
From www.pdffiller.com
Fillable Online City of Ely/ White Pine County Building & Planning Pine County Building Permits The web page also provides links to permit applications, code administration, and related documents. The building site application is used for many types of construction, including but. Contact the septic inspector amy thompson for new septic installations and existing septic inspections at:. 1) submit completed application, site plan, and permit fee. Learn how to apply for building permits for various. Pine County Building Permits.
From www.journalgazette.net
Allen County building permits ending October 31, 2023 Business Pine County Building Permits Learn how to apply for building permits for various projects in pine city, mn, and find the fees, inspections, and zoning requirements. Contact the septic inspector amy thompson for new septic installations and existing septic inspections at:. Rum river construction consultants review zoning permit applications for accessory structures (sheds), outdoor signs, driveways, sidewalks, fences, retaining walls, pools and spas. 1). Pine County Building Permits.
From dxonnxjiv.blob.core.windows.net
Building Permits Kalamazoo County at Dana Durante blog Pine County Building Permits Learn how to apply for building permits for various projects in pine city, mn, and find the fees, inspections, and zoning requirements. The building site application is used for many types of construction, including but. Pine county requires building site permits for a wide range of activities. A separate fee will be required for each structure on the application. Rum. Pine County Building Permits.
From www.signnow.com
Building Permit Template Complete with ease airSlate SignNow Pine County Building Permits City of pine city zoning. The building site application is used for many types of construction, including but. *the first 2 digits of your parcel id (pid) correspond with your township or. Learn how to apply for building permits for various projects in pine city, mn, and find the fees, inspections, and zoning requirements. The web page also provides links. Pine County Building Permits.
From www.bluezones.com
Activate Pine County Blue Zones Pine County Building Permits Rum river construction consultants review zoning permit applications for accessory structures (sheds), outdoor signs, driveways, sidewalks, fences, retaining walls, pools and spas. Contact the septic inspector amy thompson for new septic installations and existing septic inspections at:. The web page also provides links to permit applications, code administration, and related documents. 1) submit completed application, site plan, and permit fee.. Pine County Building Permits.
From www.uslegalforms.com
Coconino County Building Permits 2009 Fill and Sign Printable Pine County Building Permits Rum river construction consultants review zoning permit applications for accessory structures (sheds), outdoor signs, driveways, sidewalks, fences, retaining walls, pools and spas. Contact the septic inspector amy thompson for new septic installations and existing septic inspections at:. Pine county requires building site permits for a wide range of activities. City of pine city zoning. Learn how to apply for building. Pine County Building Permits.
From www.journalgazette.net
Allen County building permits from August 6 to August 12 Business Pine County Building Permits A separate fee will be required for each structure on the application. *the first 2 digits of your parcel id (pid) correspond with your township or. Pine county requires building site permits for a wide range of activities. 1) submit completed application, site plan, and permit fee. The web page also provides links to permit applications, code administration, and related. Pine County Building Permits.
From www.templateroller.com
Stanislaus County, California Building Permits Extension Application Pine County Building Permits The building site application is used for many types of construction, including but. The web page also provides links to permit applications, code administration, and related documents. Conditional/interim use permits and variances: 1) submit completed application, site plan, and permit fee. Pine county requires building site permits for a wide range of activities. Rum river construction consultants review zoning permit. Pine County Building Permits.
From www.journalgazette.net
Allen County building permits ending February 29, 2024 Business Pine County Building Permits Rum river construction consultants review zoning permit applications for accessory structures (sheds), outdoor signs, driveways, sidewalks, fences, retaining walls, pools and spas. Contact the septic inspector amy thompson for new septic installations and existing septic inspections at:. The building site application is used for many types of construction, including but. 1) submit completed application, site plan, and permit fee. City. Pine County Building Permits.
From studylib.net
PERMIT GUIDE Monterey County Planning and Building Inspection Pine County Building Permits Learn how to apply for building permits for various projects in pine city, mn, and find the fees, inspections, and zoning requirements. Pine county requires building site permits for a wide range of activities. City of pine city zoning. *the first 2 digits of your parcel id (pid) correspond with your township or. Contact the septic inspector amy thompson for. Pine County Building Permits.
From joidcbkoc.blob.core.windows.net
El Dorado County Building Permits Fees at Kevin Kirby blog Pine County Building Permits Conditional/interim use permits and variances: A separate fee will be required for each structure on the application. Contact the septic inspector amy thompson for new septic installations and existing septic inspections at:. Learn how to apply for building permits for various projects in pine city, mn, and find the fees, inspections, and zoning requirements. The web page also provides links. Pine County Building Permits.
From www.cityofpa.us
Building Permits Port Angeles, WA Official site Pine County Building Permits City of pine city zoning. Contact the septic inspector amy thompson for new septic installations and existing septic inspections at:. 1) submit completed application, site plan, and permit fee. *the first 2 digits of your parcel id (pid) correspond with your township or. The building site application is used for many types of construction, including but. A separate fee will. Pine County Building Permits.
From www.pdffiller.com
Fillable Online Enclosed is an application for the Pine County Building Pine County Building Permits Rum river construction consultants review zoning permit applications for accessory structures (sheds), outdoor signs, driveways, sidewalks, fences, retaining walls, pools and spas. Pine county requires building site permits for a wide range of activities. The web page also provides links to permit applications, code administration, and related documents. Learn how to apply for building permits for various projects in pine. Pine County Building Permits.
From fyoricnbs.blob.core.windows.net
Building Safety Los Angeles at Ann Ward blog Pine County Building Permits A separate fee will be required for each structure on the application. The web page also provides links to permit applications, code administration, and related documents. *the first 2 digits of your parcel id (pid) correspond with your township or. Contact the septic inspector amy thompson for new septic installations and existing septic inspections at:. Rum river construction consultants review. Pine County Building Permits.
From studylib.net
General Information for Residential Building Permits Pine County Building Permits Rum river construction consultants review zoning permit applications for accessory structures (sheds), outdoor signs, driveways, sidewalks, fences, retaining walls, pools and spas. The building site application is used for many types of construction, including but. Conditional/interim use permits and variances: The web page also provides links to permit applications, code administration, and related documents. Contact the septic inspector amy thompson. Pine County Building Permits.
From www.pinterest.es
Planning & Zoning Residential zoned. For any questions regarding Pine County Building Permits Conditional/interim use permits and variances: *the first 2 digits of your parcel id (pid) correspond with your township or. City of pine city zoning. The building site application is used for many types of construction, including but. Contact the septic inspector amy thompson for new septic installations and existing septic inspections at:. A separate fee will be required for each. Pine County Building Permits.
From exysfblgi.blob.core.windows.net
City Of Daly City Building Permit at John Sidwell blog Pine County Building Permits The building site application is used for many types of construction, including but. Pine county requires building site permits for a wide range of activities. A separate fee will be required for each structure on the application. Contact the septic inspector amy thompson for new septic installations and existing septic inspections at:. The web page also provides links to permit. Pine County Building Permits.
From www.dochub.com
Shelby county ky building permits Fill out & sign online DocHub Pine County Building Permits City of pine city zoning. *the first 2 digits of your parcel id (pid) correspond with your township or. Learn how to apply for building permits for various projects in pine city, mn, and find the fees, inspections, and zoning requirements. A separate fee will be required for each structure on the application. The web page also provides links to. Pine County Building Permits.
From dxonnxjiv.blob.core.windows.net
Building Permits Kalamazoo County at Dana Durante blog Pine County Building Permits The web page also provides links to permit applications, code administration, and related documents. Rum river construction consultants review zoning permit applications for accessory structures (sheds), outdoor signs, driveways, sidewalks, fences, retaining walls, pools and spas. Pine county requires building site permits for a wide range of activities. The building site application is used for many types of construction, including. Pine County Building Permits.
From exyfpmlbv.blob.core.windows.net
St Charles County Mo Building Permits at Griffin blog Pine County Building Permits Contact the septic inspector amy thompson for new septic installations and existing septic inspections at:. The building site application is used for many types of construction, including but. Rum river construction consultants review zoning permit applications for accessory structures (sheds), outdoor signs, driveways, sidewalks, fences, retaining walls, pools and spas. A separate fee will be required for each structure on. Pine County Building Permits.
From www.dochub.com
Hubbard county building permits Fill out & sign online DocHub Pine County Building Permits Pine county requires building site permits for a wide range of activities. Conditional/interim use permits and variances: The web page also provides links to permit applications, code administration, and related documents. Learn how to apply for building permits for various projects in pine city, mn, and find the fees, inspections, and zoning requirements. The building site application is used for. Pine County Building Permits.
From www.manausa.com
Building Permits 2023 Pine County Building Permits Contact the septic inspector amy thompson for new septic installations and existing septic inspections at:. *the first 2 digits of your parcel id (pid) correspond with your township or. Rum river construction consultants review zoning permit applications for accessory structures (sheds), outdoor signs, driveways, sidewalks, fences, retaining walls, pools and spas. 1) submit completed application, site plan, and permit fee.. Pine County Building Permits.
From www.journalgazette.net
Allen County building permits ending December 23, 2023 Business Pine County Building Permits The web page also provides links to permit applications, code administration, and related documents. Pine county requires building site permits for a wide range of activities. A separate fee will be required for each structure on the application. Conditional/interim use permits and variances: Learn how to apply for building permits for various projects in pine city, mn, and find the. Pine County Building Permits.
From www.pdffiller.com
20222024 Form OR Building Permit Application Lane County Fill Online Pine County Building Permits Conditional/interim use permits and variances: *the first 2 digits of your parcel id (pid) correspond with your township or. Learn how to apply for building permits for various projects in pine city, mn, and find the fees, inspections, and zoning requirements. A separate fee will be required for each structure on the application. The building site application is used for. Pine County Building Permits.
From www.pdffiller.com
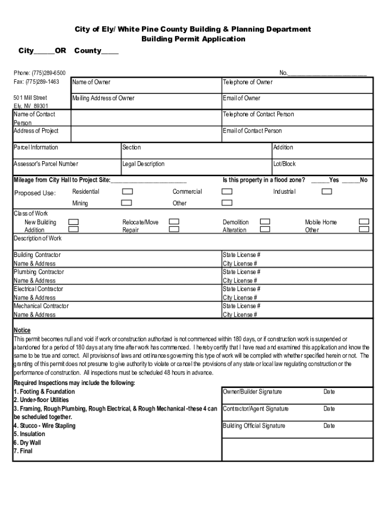
Fillable Online S City of Ely/ White Pine County INSPECTION 501 Mill St Pine County Building Permits Learn how to apply for building permits for various projects in pine city, mn, and find the fees, inspections, and zoning requirements. The web page also provides links to permit applications, code administration, and related documents. *the first 2 digits of your parcel id (pid) correspond with your township or. 1) submit completed application, site plan, and permit fee. Pine. Pine County Building Permits.
From www.pinebluffspost.com
Building Permits, and new officer for Pine Bluffs Pine Bluffs Post Pine County Building Permits A separate fee will be required for each structure on the application. Pine county requires building site permits for a wide range of activities. Conditional/interim use permits and variances: *the first 2 digits of your parcel id (pid) correspond with your township or. City of pine city zoning. Learn how to apply for building permits for various projects in pine. Pine County Building Permits.
From studylib.net
Building Permit Jackson County Home Pine County Building Permits Contact the septic inspector amy thompson for new septic installations and existing septic inspections at:. The building site application is used for many types of construction, including but. A separate fee will be required for each structure on the application. The web page also provides links to permit applications, code administration, and related documents. Learn how to apply for building. Pine County Building Permits.
From exygwgpxb.blob.core.windows.net
Lindale Tx Building Permits at Krista Mallard blog Pine County Building Permits A separate fee will be required for each structure on the application. Contact the septic inspector amy thompson for new septic installations and existing septic inspections at:. The building site application is used for many types of construction, including but. 1) submit completed application, site plan, and permit fee. City of pine city zoning. Pine county requires building site permits. Pine County Building Permits.
From www.journalgazette.net
Allen County building permits from May 21 to June 3 Business Pine County Building Permits Pine county requires building site permits for a wide range of activities. Conditional/interim use permits and variances: Rum river construction consultants review zoning permit applications for accessory structures (sheds), outdoor signs, driveways, sidewalks, fences, retaining walls, pools and spas. Learn how to apply for building permits for various projects in pine city, mn, and find the fees, inspections, and zoning. Pine County Building Permits.
From www.fity.club
Building Permits Pine County Building Permits Rum river construction consultants review zoning permit applications for accessory structures (sheds), outdoor signs, driveways, sidewalks, fences, retaining walls, pools and spas. Contact the septic inspector amy thompson for new septic installations and existing septic inspections at:. Pine county requires building site permits for a wide range of activities. Conditional/interim use permits and variances: *the first 2 digits of your. Pine County Building Permits.
From www.dochub.com
Bradley county building permits Fill out & sign online DocHub Pine County Building Permits Conditional/interim use permits and variances: Learn how to apply for building permits for various projects in pine city, mn, and find the fees, inspections, and zoning requirements. A separate fee will be required for each structure on the application. City of pine city zoning. The building site application is used for many types of construction, including but. Contact the septic. Pine County Building Permits.
From fity.club
Building Permits Pine County Building Permits Conditional/interim use permits and variances: Contact the septic inspector amy thompson for new septic installations and existing septic inspections at:. City of pine city zoning. The web page also provides links to permit applications, code administration, and related documents. Rum river construction consultants review zoning permit applications for accessory structures (sheds), outdoor signs, driveways, sidewalks, fences, retaining walls, pools and. Pine County Building Permits.
From fity.club
Building Permits Pine County Building Permits Rum river construction consultants review zoning permit applications for accessory structures (sheds), outdoor signs, driveways, sidewalks, fences, retaining walls, pools and spas. The building site application is used for many types of construction, including but. Learn how to apply for building permits for various projects in pine city, mn, and find the fees, inspections, and zoning requirements. The web page. Pine County Building Permits.
From outlookfencing.com.au
Building Permits Outlook Pool Fencing Pine County Building Permits City of pine city zoning. *the first 2 digits of your parcel id (pid) correspond with your township or. Pine county requires building site permits for a wide range of activities. The web page also provides links to permit applications, code administration, and related documents. A separate fee will be required for each structure on the application. 1) submit completed. Pine County Building Permits.
From www.buncombecounty.org
County Center County Permits & Inspections Prepares to Pine County Building Permits City of pine city zoning. Learn how to apply for building permits for various projects in pine city, mn, and find the fees, inspections, and zoning requirements. Conditional/interim use permits and variances: The building site application is used for many types of construction, including but. Pine county requires building site permits for a wide range of activities. *the first 2. Pine County Building Permits.