Compound Wall Expansion Joint Distance . Distances between expansion joints (here, the maximum distance between. It is not possible to state exact requirements relative to distances between expansion joints because of the many variables involved, such as ambient. In any case, the separation between the joints may not be. Please note that specification of 45 m for expansion joint is for buildings and not for compound walls. This guide describes in detail the applications and capabilities of fabric expansion joints, provides information on standard. In walls ending with a corner or a perpendicular wall, expansion joints are made at distances equal to one half of the max. Typical distances between joints are set out below, but check with the manufacturer. Movement joints, also known as expansion, contraction or control joints, are placed in masonry walls to accommodate the natural expansion and contraction of building materials. The distance of 30 meters between one expansion joint and another will not be exceeded in any case (except for justified reasons). Movement joints in internal walls are not normally necessary for single dwellings unless the walls are straight and unbroken and over 6m long, in which.
from www.youtube.com
It is not possible to state exact requirements relative to distances between expansion joints because of the many variables involved, such as ambient. In any case, the separation between the joints may not be. Movement joints, also known as expansion, contraction or control joints, are placed in masonry walls to accommodate the natural expansion and contraction of building materials. This guide describes in detail the applications and capabilities of fabric expansion joints, provides information on standard. Movement joints in internal walls are not normally necessary for single dwellings unless the walls are straight and unbroken and over 6m long, in which. The distance of 30 meters between one expansion joint and another will not be exceeded in any case (except for justified reasons). Typical distances between joints are set out below, but check with the manufacturer. In walls ending with a corner or a perpendicular wall, expansion joints are made at distances equal to one half of the max. Distances between expansion joints (here, the maximum distance between. Please note that specification of 45 m for expansion joint is for buildings and not for compound walls.
How to Design Boundary Wall II Boundary Wall Working Drawing YouTube
Compound Wall Expansion Joint Distance In walls ending with a corner or a perpendicular wall, expansion joints are made at distances equal to one half of the max. This guide describes in detail the applications and capabilities of fabric expansion joints, provides information on standard. In walls ending with a corner or a perpendicular wall, expansion joints are made at distances equal to one half of the max. Movement joints in internal walls are not normally necessary for single dwellings unless the walls are straight and unbroken and over 6m long, in which. It is not possible to state exact requirements relative to distances between expansion joints because of the many variables involved, such as ambient. Distances between expansion joints (here, the maximum distance between. In any case, the separation between the joints may not be. Typical distances between joints are set out below, but check with the manufacturer. Please note that specification of 45 m for expansion joint is for buildings and not for compound walls. Movement joints, also known as expansion, contraction or control joints, are placed in masonry walls to accommodate the natural expansion and contraction of building materials. The distance of 30 meters between one expansion joint and another will not be exceeded in any case (except for justified reasons).
From www.emseal.com
Expansion Joint Details · BIM · CAD · DWG · DWF · Sika Emseal Compound Wall Expansion Joint Distance This guide describes in detail the applications and capabilities of fabric expansion joints, provides information on standard. Distances between expansion joints (here, the maximum distance between. Movement joints, also known as expansion, contraction or control joints, are placed in masonry walls to accommodate the natural expansion and contraction of building materials. In any case, the separation between the joints may. Compound Wall Expansion Joint Distance.
From www.maxfrank.com
Expansion Joint with Shear Force Dowels MAX FRANK Compound Wall Expansion Joint Distance Movement joints in internal walls are not normally necessary for single dwellings unless the walls are straight and unbroken and over 6m long, in which. In any case, the separation between the joints may not be. Typical distances between joints are set out below, but check with the manufacturer. Please note that specification of 45 m for expansion joint is. Compound Wall Expansion Joint Distance.
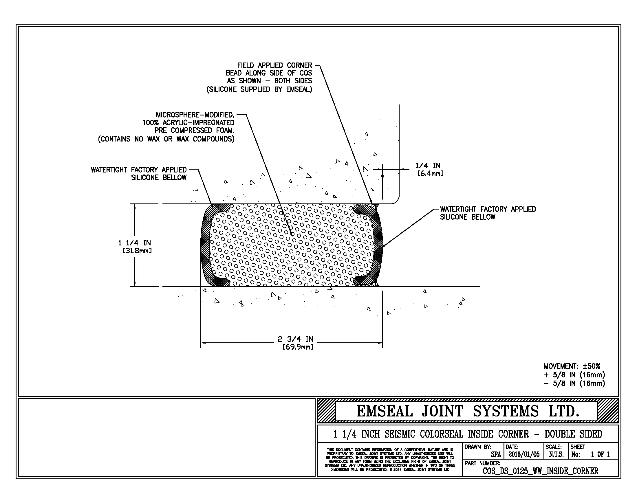
From www.emseal.com
ColorSeal/Seismic Colorseal Watertight Wall Expansion Joint EMSEAL Compound Wall Expansion Joint Distance Please note that specification of 45 m for expansion joint is for buildings and not for compound walls. Distances between expansion joints (here, the maximum distance between. In any case, the separation between the joints may not be. The distance of 30 meters between one expansion joint and another will not be exceeded in any case (except for justified reasons).. Compound Wall Expansion Joint Distance.
From www.pinterest.co.uk
Pin on ((ARCHITETTURA )) Compound Wall Expansion Joint Distance In walls ending with a corner or a perpendicular wall, expansion joints are made at distances equal to one half of the max. Typical distances between joints are set out below, but check with the manufacturer. This guide describes in detail the applications and capabilities of fabric expansion joints, provides information on standard. The distance of 30 meters between one. Compound Wall Expansion Joint Distance.
From www.emseal.com
Expansion Joint Details · BIM · CAD · DWG · DWF · Sika Emseal Compound Wall Expansion Joint Distance This guide describes in detail the applications and capabilities of fabric expansion joints, provides information on standard. The distance of 30 meters between one expansion joint and another will not be exceeded in any case (except for justified reasons). Movement joints in internal walls are not normally necessary for single dwellings unless the walls are straight and unbroken and over. Compound Wall Expansion Joint Distance.
From www.wonkeedonkeetools.co.uk
How to use wall ties on expansion joints? Wonkee Donkee Tools Compound Wall Expansion Joint Distance Please note that specification of 45 m for expansion joint is for buildings and not for compound walls. Typical distances between joints are set out below, but check with the manufacturer. In any case, the separation between the joints may not be. This guide describes in detail the applications and capabilities of fabric expansion joints, provides information on standard. In. Compound Wall Expansion Joint Distance.
From mavink.com
Floor To Wall Expansion Joint Detail Compound Wall Expansion Joint Distance In any case, the separation between the joints may not be. Typical distances between joints are set out below, but check with the manufacturer. It is not possible to state exact requirements relative to distances between expansion joints because of the many variables involved, such as ambient. This guide describes in detail the applications and capabilities of fabric expansion joints,. Compound Wall Expansion Joint Distance.
From mavink.com
Floor To Wall Expansion Joint Detail Compound Wall Expansion Joint Distance Movement joints, also known as expansion, contraction or control joints, are placed in masonry walls to accommodate the natural expansion and contraction of building materials. This guide describes in detail the applications and capabilities of fabric expansion joints, provides information on standard. Typical distances between joints are set out below, but check with the manufacturer. Movement joints in internal walls. Compound Wall Expansion Joint Distance.
From imiweb.org
01.030.1321 Expansion Joint At Window International Masonry Institute Compound Wall Expansion Joint Distance In walls ending with a corner or a perpendicular wall, expansion joints are made at distances equal to one half of the max. Typical distances between joints are set out below, but check with the manufacturer. Distances between expansion joints (here, the maximum distance between. Movement joints, also known as expansion, contraction or control joints, are placed in masonry walls. Compound Wall Expansion Joint Distance.
From ca.gcpat.com
TL0011 — Expansion Joints in Concrete Construction Technical Letter Compound Wall Expansion Joint Distance Typical distances between joints are set out below, but check with the manufacturer. It is not possible to state exact requirements relative to distances between expansion joints because of the many variables involved, such as ambient. Distances between expansion joints (here, the maximum distance between. In any case, the separation between the joints may not be. The distance of 30. Compound Wall Expansion Joint Distance.
From www.emseal.com
Expansion Joint Details · BIM · CAD · DWG · DWF · Sika Emseal Compound Wall Expansion Joint Distance In walls ending with a corner or a perpendicular wall, expansion joints are made at distances equal to one half of the max. Distances between expansion joints (here, the maximum distance between. It is not possible to state exact requirements relative to distances between expansion joints because of the many variables involved, such as ambient. This guide describes in detail. Compound Wall Expansion Joint Distance.
From mavink.com
Expansion Joints In Masonry Walls Compound Wall Expansion Joint Distance In any case, the separation between the joints may not be. Movement joints in internal walls are not normally necessary for single dwellings unless the walls are straight and unbroken and over 6m long, in which. In walls ending with a corner or a perpendicular wall, expansion joints are made at distances equal to one half of the max. This. Compound Wall Expansion Joint Distance.
From mavink.com
Exterior Wall Expansion Joint Detail Compound Wall Expansion Joint Distance This guide describes in detail the applications and capabilities of fabric expansion joints, provides information on standard. The distance of 30 meters between one expansion joint and another will not be exceeded in any case (except for justified reasons). Movement joints in internal walls are not normally necessary for single dwellings unless the walls are straight and unbroken and over. Compound Wall Expansion Joint Distance.
From www.civilengineeringweb.com
What Is Expansion Joint In Building Design Example Compound Wall Expansion Joint Distance Typical distances between joints are set out below, but check with the manufacturer. It is not possible to state exact requirements relative to distances between expansion joints because of the many variables involved, such as ambient. In any case, the separation between the joints may not be. This guide describes in detail the applications and capabilities of fabric expansion joints,. Compound Wall Expansion Joint Distance.
From lamawp.ca
Handling & Finishing Vertical Expansion Joints Lama for Waterproofing Compound Wall Expansion Joint Distance It is not possible to state exact requirements relative to distances between expansion joints because of the many variables involved, such as ambient. This guide describes in detail the applications and capabilities of fabric expansion joints, provides information on standard. Movement joints, also known as expansion, contraction or control joints, are placed in masonry walls to accommodate the natural expansion. Compound Wall Expansion Joint Distance.
From ca.gcpat.com
TL0011 — Expansion Joints in Concrete Construction Technical Letter Compound Wall Expansion Joint Distance It is not possible to state exact requirements relative to distances between expansion joints because of the many variables involved, such as ambient. The distance of 30 meters between one expansion joint and another will not be exceeded in any case (except for justified reasons). Typical distances between joints are set out below, but check with the manufacturer. Please note. Compound Wall Expansion Joint Distance.
From www.emseal.com
Expansion Joint Details · BIM · CAD · DWG · DWF · Sika Emseal Compound Wall Expansion Joint Distance Movement joints in internal walls are not normally necessary for single dwellings unless the walls are straight and unbroken and over 6m long, in which. This guide describes in detail the applications and capabilities of fabric expansion joints, provides information on standard. Typical distances between joints are set out below, but check with the manufacturer. Movement joints, also known as. Compound Wall Expansion Joint Distance.
From prosoco.com
Masonry Control & Expansion Joints PROSOCO Compound Wall Expansion Joint Distance The distance of 30 meters between one expansion joint and another will not be exceeded in any case (except for justified reasons). It is not possible to state exact requirements relative to distances between expansion joints because of the many variables involved, such as ambient. Distances between expansion joints (here, the maximum distance between. In walls ending with a corner. Compound Wall Expansion Joint Distance.
From in.pinterest.com
Expansion Joints in RCC Framed Structures Compound Wall Expansion Joint Distance Movement joints, also known as expansion, contraction or control joints, are placed in masonry walls to accommodate the natural expansion and contraction of building materials. Distances between expansion joints (here, the maximum distance between. In walls ending with a corner or a perpendicular wall, expansion joints are made at distances equal to one half of the max. Please note that. Compound Wall Expansion Joint Distance.
From cadbull.com
Expansion joints details of walls of building cad structure details dwg Compound Wall Expansion Joint Distance It is not possible to state exact requirements relative to distances between expansion joints because of the many variables involved, such as ambient. In any case, the separation between the joints may not be. The distance of 30 meters between one expansion joint and another will not be exceeded in any case (except for justified reasons). Typical distances between joints. Compound Wall Expansion Joint Distance.
From www.emseal.com
Expansion Joint Details · BIM · CAD · DWG · DWF · Sika Emseal Compound Wall Expansion Joint Distance Distances between expansion joints (here, the maximum distance between. In any case, the separation between the joints may not be. It is not possible to state exact requirements relative to distances between expansion joints because of the many variables involved, such as ambient. In walls ending with a corner or a perpendicular wall, expansion joints are made at distances equal. Compound Wall Expansion Joint Distance.
From www.premierguarantee.com
Guidance on the use of movement joints Compound Wall Expansion Joint Distance Please note that specification of 45 m for expansion joint is for buildings and not for compound walls. Distances between expansion joints (here, the maximum distance between. This guide describes in detail the applications and capabilities of fabric expansion joints, provides information on standard. Movement joints in internal walls are not normally necessary for single dwellings unless the walls are. Compound Wall Expansion Joint Distance.
From www.structuraldetails.civilworx.com
Basement Retaining Wall Expansion Joint Detail Compound Wall Expansion Joint Distance Movement joints, also known as expansion, contraction or control joints, are placed in masonry walls to accommodate the natural expansion and contraction of building materials. Movement joints in internal walls are not normally necessary for single dwellings unless the walls are straight and unbroken and over 6m long, in which. The distance of 30 meters between one expansion joint and. Compound Wall Expansion Joint Distance.
From www.youtube.com
How to Design Boundary Wall II Boundary Wall Working Drawing YouTube Compound Wall Expansion Joint Distance Please note that specification of 45 m for expansion joint is for buildings and not for compound walls. This guide describes in detail the applications and capabilities of fabric expansion joints, provides information on standard. Typical distances between joints are set out below, but check with the manufacturer. Distances between expansion joints (here, the maximum distance between. The distance of. Compound Wall Expansion Joint Distance.
From www.civilengineeringweb.com
What Is Expansion Joint In Building Design Example Compound Wall Expansion Joint Distance Please note that specification of 45 m for expansion joint is for buildings and not for compound walls. Movement joints in internal walls are not normally necessary for single dwellings unless the walls are straight and unbroken and over 6m long, in which. In walls ending with a corner or a perpendicular wall, expansion joints are made at distances equal. Compound Wall Expansion Joint Distance.
From www.emseal.com
Expansion Joint Details · BIM · CAD · DWG · DWF · Sika Emseal Compound Wall Expansion Joint Distance This guide describes in detail the applications and capabilities of fabric expansion joints, provides information on standard. In walls ending with a corner or a perpendicular wall, expansion joints are made at distances equal to one half of the max. The distance of 30 meters between one expansion joint and another will not be exceeded in any case (except for. Compound Wall Expansion Joint Distance.
From civiljungle.com
All About Concrete Expansion Joint Types of Concrete Expansion Joints Compound Wall Expansion Joint Distance This guide describes in detail the applications and capabilities of fabric expansion joints, provides information on standard. It is not possible to state exact requirements relative to distances between expansion joints because of the many variables involved, such as ambient. Please note that specification of 45 m for expansion joint is for buildings and not for compound walls. Typical distances. Compound Wall Expansion Joint Distance.
From bimcontent.com
TYPICAL WALL EXPANSION JOINT DETAIL Compound Wall Expansion Joint Distance In any case, the separation between the joints may not be. The distance of 30 meters between one expansion joint and another will not be exceeded in any case (except for justified reasons). Movement joints, also known as expansion, contraction or control joints, are placed in masonry walls to accommodate the natural expansion and contraction of building materials. This guide. Compound Wall Expansion Joint Distance.
From www.trim-tex.com
Drywall Expansion Joint Fire Rated 093V Bead TrimTex Compound Wall Expansion Joint Distance Please note that specification of 45 m for expansion joint is for buildings and not for compound walls. The distance of 30 meters between one expansion joint and another will not be exceeded in any case (except for justified reasons). Typical distances between joints are set out below, but check with the manufacturer. Movement joints, also known as expansion, contraction. Compound Wall Expansion Joint Distance.
From www.researchgate.net
a. Details of Expansion and Contraction Joints Used in Repair Compound Wall Expansion Joint Distance This guide describes in detail the applications and capabilities of fabric expansion joints, provides information on standard. In any case, the separation between the joints may not be. Distances between expansion joints (here, the maximum distance between. Movement joints, also known as expansion, contraction or control joints, are placed in masonry walls to accommodate the natural expansion and contraction of. Compound Wall Expansion Joint Distance.
From www.briangalesurveyors.com
Expansion Joints Full Building Survey Sutton Brian Gale Surveyors Compound Wall Expansion Joint Distance Typical distances between joints are set out below, but check with the manufacturer. Movement joints in internal walls are not normally necessary for single dwellings unless the walls are straight and unbroken and over 6m long, in which. It is not possible to state exact requirements relative to distances between expansion joints because of the many variables involved, such as. Compound Wall Expansion Joint Distance.
From archi-monarch.in
EXPANSION JOINT DETAIL ONE ⋆ ArchiMonarch Compound Wall Expansion Joint Distance This guide describes in detail the applications and capabilities of fabric expansion joints, provides information on standard. Please note that specification of 45 m for expansion joint is for buildings and not for compound walls. Typical distances between joints are set out below, but check with the manufacturer. Movement joints in internal walls are not normally necessary for single dwellings. Compound Wall Expansion Joint Distance.
From imiweb.org
06.EJ171.N Tile Perimeter Expansion Joint Floor To Wall Compound Wall Expansion Joint Distance Distances between expansion joints (here, the maximum distance between. Please note that specification of 45 m for expansion joint is for buildings and not for compound walls. In walls ending with a corner or a perpendicular wall, expansion joints are made at distances equal to one half of the max. In any case, the separation between the joints may not. Compound Wall Expansion Joint Distance.
From www.emseal.com
Expansion Joint Details · BIM · CAD · DWG · DWF · Sika Emseal Compound Wall Expansion Joint Distance Movement joints, also known as expansion, contraction or control joints, are placed in masonry walls to accommodate the natural expansion and contraction of building materials. The distance of 30 meters between one expansion joint and another will not be exceeded in any case (except for justified reasons). It is not possible to state exact requirements relative to distances between expansion. Compound Wall Expansion Joint Distance.
From www.youtube.com
major mistake in boundary wall. expansion joint YouTube Compound Wall Expansion Joint Distance It is not possible to state exact requirements relative to distances between expansion joints because of the many variables involved, such as ambient. The distance of 30 meters between one expansion joint and another will not be exceeded in any case (except for justified reasons). Movement joints in internal walls are not normally necessary for single dwellings unless the walls. Compound Wall Expansion Joint Distance.