Shower Recess Shelf Size . in this post i’ll show you how to find the best shower niche size for your shower remodel project. a shower niche is also known as a shower cubby or a shower recess. To get the most out of your new shower niche, you should carefully consider how large it will need to be and what style of niche. It allows the niche to fit between studs which are often 16 inches apart. want a recessed shelf in the shower? shower niche size & style is key. I’ll go over niche dimensions of all the popular prefab / preformed niche products, and tell you what you need to know to make an informed decision. a shower niche is fully recessed into the shower wall so it (and all your shower items) stay out of the way. Learn below the specific sizes of a shower niche. Here's how to choose the right size shower niche for your bathroom to suit your personal needs. when putting a shower niche in an existing wall, 12”w x 24”h is a good size.
from dxowiywbo.blob.core.windows.net
a shower niche is also known as a shower cubby or a shower recess. It allows the niche to fit between studs which are often 16 inches apart. when putting a shower niche in an existing wall, 12”w x 24”h is a good size. To get the most out of your new shower niche, you should carefully consider how large it will need to be and what style of niche. I’ll go over niche dimensions of all the popular prefab / preformed niche products, and tell you what you need to know to make an informed decision. Here's how to choose the right size shower niche for your bathroom to suit your personal needs. a shower niche is fully recessed into the shower wall so it (and all your shower items) stay out of the way. want a recessed shelf in the shower? shower niche size & style is key. in this post i’ll show you how to find the best shower niche size for your shower remodel project.
Recessed Bathroom Shelf In Shower at Lela Blake blog
Shower Recess Shelf Size To get the most out of your new shower niche, you should carefully consider how large it will need to be and what style of niche. To get the most out of your new shower niche, you should carefully consider how large it will need to be and what style of niche. Here's how to choose the right size shower niche for your bathroom to suit your personal needs. when putting a shower niche in an existing wall, 12”w x 24”h is a good size. shower niche size & style is key. Learn below the specific sizes of a shower niche. a shower niche is fully recessed into the shower wall so it (and all your shower items) stay out of the way. in this post i’ll show you how to find the best shower niche size for your shower remodel project. want a recessed shelf in the shower? It allows the niche to fit between studs which are often 16 inches apart. I’ll go over niche dimensions of all the popular prefab / preformed niche products, and tell you what you need to know to make an informed decision. a shower niche is also known as a shower cubby or a shower recess.
From decortango.com
50 Tile Shower Niche Ideas and Shelf Designs for Your Bathroom Planning Shower Recess Shelf Size want a recessed shelf in the shower? a shower niche is fully recessed into the shower wall so it (and all your shower items) stay out of the way. Here's how to choose the right size shower niche for your bathroom to suit your personal needs. when putting a shower niche in an existing wall, 12”w x. Shower Recess Shelf Size.
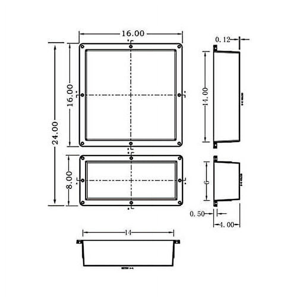
From bertena.com
How to Put Shelves in Shower Everything Bathroom Shower Recess Shelf Size when putting a shower niche in an existing wall, 12”w x 24”h is a good size. Learn below the specific sizes of a shower niche. want a recessed shelf in the shower? Here's how to choose the right size shower niche for your bathroom to suit your personal needs. a shower niche is fully recessed into the. Shower Recess Shelf Size.
From www.contemporist.com
What Is The Standard Height For A Shower Niche? Shower Recess Shelf Size Here's how to choose the right size shower niche for your bathroom to suit your personal needs. want a recessed shelf in the shower? I’ll go over niche dimensions of all the popular prefab / preformed niche products, and tell you what you need to know to make an informed decision. a shower niche is fully recessed into. Shower Recess Shelf Size.
From www.amazon.in
Quick Install Waterproof Recessed Shower Shelves Niche, ABS Plastic Shower Recess Shelf Size To get the most out of your new shower niche, you should carefully consider how large it will need to be and what style of niche. shower niche size & style is key. Here's how to choose the right size shower niche for your bathroom to suit your personal needs. when putting a shower niche in an existing. Shower Recess Shelf Size.
From www.decorhomeideas.com
10 Best Tile Shower Shelf Ideas To Add Even More Storage To Your Bathroom Shower Recess Shelf Size To get the most out of your new shower niche, you should carefully consider how large it will need to be and what style of niche. Here's how to choose the right size shower niche for your bathroom to suit your personal needs. want a recessed shelf in the shower? I’ll go over niche dimensions of all the popular. Shower Recess Shelf Size.
From carlaaston.com
25 Beautiful Shower Niche Ideas for Your Master Bathroom — DESIGNED Shower Recess Shelf Size want a recessed shelf in the shower? To get the most out of your new shower niche, you should carefully consider how large it will need to be and what style of niche. when putting a shower niche in an existing wall, 12”w x 24”h is a good size. I’ll go over niche dimensions of all the popular. Shower Recess Shelf Size.
From nextluxury.com
Top 70 Best Shower Niche Ideas Recessed Shelf Designs Shower Recess Shelf Size want a recessed shelf in the shower? To get the most out of your new shower niche, you should carefully consider how large it will need to be and what style of niche. It allows the niche to fit between studs which are often 16 inches apart. I’ll go over niche dimensions of all the popular prefab / preformed. Shower Recess Shelf Size.
From showertype.com
Recessed Shower Shelf The Ultimate Guide Shower Ideas Shower Recess Shelf Size Learn below the specific sizes of a shower niche. in this post i’ll show you how to find the best shower niche size for your shower remodel project. shower niche size & style is key. Here's how to choose the right size shower niche for your bathroom to suit your personal needs. To get the most out of. Shower Recess Shelf Size.
From www.amazon.co.uk
UniGreen Tile Shower Niche 16"X34",Recessed Shower ShelfYellow Shower Recess Shelf Size shower niche size & style is key. a shower niche is fully recessed into the shower wall so it (and all your shower items) stay out of the way. a shower niche is also known as a shower cubby or a shower recess. I’ll go over niche dimensions of all the popular prefab / preformed niche products,. Shower Recess Shelf Size.
From www.pinterest.com
Recessed shelf space in shower wall Shower panels, Shower enclosure Shower Recess Shelf Size when putting a shower niche in an existing wall, 12”w x 24”h is a good size. To get the most out of your new shower niche, you should carefully consider how large it will need to be and what style of niche. a shower niche is also known as a shower cubby or a shower recess. shower. Shower Recess Shelf Size.
From www.pinterest.com
Bathroom How To Build Recessed Shower Shelf For Your in 2021 Shower Recess Shelf Size when putting a shower niche in an existing wall, 12”w x 24”h is a good size. shower niche size & style is key. To get the most out of your new shower niche, you should carefully consider how large it will need to be and what style of niche. a shower niche is fully recessed into the. Shower Recess Shelf Size.
From jetstwit.com
How to Make a Recessed Shower Shelf Bathroom Guide by Jetstwit Shower Recess Shelf Size want a recessed shelf in the shower? Learn below the specific sizes of a shower niche. when putting a shower niche in an existing wall, 12”w x 24”h is a good size. I’ll go over niche dimensions of all the popular prefab / preformed niche products, and tell you what you need to know to make an informed. Shower Recess Shelf Size.
From www.zephyrandstone.com.au
Shower Niche vs Shower Shelf — What's Really Best? Comparing Shower Shower Recess Shelf Size To get the most out of your new shower niche, you should carefully consider how large it will need to be and what style of niche. It allows the niche to fit between studs which are often 16 inches apart. a shower niche is fully recessed into the shower wall so it (and all your shower items) stay out. Shower Recess Shelf Size.
From thenicheman.com.au
Shower Nice Vs. Shower Recess The Niche Man Shower Recess Shelf Size It allows the niche to fit between studs which are often 16 inches apart. when putting a shower niche in an existing wall, 12”w x 24”h is a good size. To get the most out of your new shower niche, you should carefully consider how large it will need to be and what style of niche. shower niche. Shower Recess Shelf Size.
From dxolomllr.blob.core.windows.net
Insert Shelf For Shower at Cindy Murphy blog Shower Recess Shelf Size Learn below the specific sizes of a shower niche. Here's how to choose the right size shower niche for your bathroom to suit your personal needs. when putting a shower niche in an existing wall, 12”w x 24”h is a good size. I’ll go over niche dimensions of all the popular prefab / preformed niche products, and tell you. Shower Recess Shelf Size.
From exomzjwum.blob.core.windows.net
How To Make Shower Shelves at Sharon Summers blog Shower Recess Shelf Size To get the most out of your new shower niche, you should carefully consider how large it will need to be and what style of niche. in this post i’ll show you how to find the best shower niche size for your shower remodel project. It allows the niche to fit between studs which are often 16 inches apart.. Shower Recess Shelf Size.
From www.bhg.com
How to Build a Recessed Wall Shelf Better Homes & Gardens Shower Recess Shelf Size To get the most out of your new shower niche, you should carefully consider how large it will need to be and what style of niche. when putting a shower niche in an existing wall, 12”w x 24”h is a good size. Learn below the specific sizes of a shower niche. a shower niche is fully recessed into. Shower Recess Shelf Size.
From showertype.com
Recessed Shower Shelves A Comprehensive Guide Shower Ideas Shower Recess Shelf Size I’ll go over niche dimensions of all the popular prefab / preformed niche products, and tell you what you need to know to make an informed decision. It allows the niche to fit between studs which are often 16 inches apart. a shower niche is fully recessed into the shower wall so it (and all your shower items) stay. Shower Recess Shelf Size.
From www.pinterest.com.au
Long Shower Recess Shower recess, Shower shelves, Shower storage Shower Recess Shelf Size To get the most out of your new shower niche, you should carefully consider how large it will need to be and what style of niche. I’ll go over niche dimensions of all the popular prefab / preformed niche products, and tell you what you need to know to make an informed decision. Here's how to choose the right size. Shower Recess Shelf Size.
From www.homenish.com
Shower Niche Dimensions and Guidelines Homenish Shower Recess Shelf Size a shower niche is also known as a shower cubby or a shower recess. want a recessed shelf in the shower? It allows the niche to fit between studs which are often 16 inches apart. I’ll go over niche dimensions of all the popular prefab / preformed niche products, and tell you what you need to know to. Shower Recess Shelf Size.
From exomwxdeu.blob.core.windows.net
Recessed Shower Shelf Dimensions at Della Chambers blog Shower Recess Shelf Size in this post i’ll show you how to find the best shower niche size for your shower remodel project. Here's how to choose the right size shower niche for your bathroom to suit your personal needs. It allows the niche to fit between studs which are often 16 inches apart. To get the most out of your new shower. Shower Recess Shelf Size.
From www.pinterest.com
Shower Box Shower Recess Shower Niche Bathroom Ideas Cararra Shower Recess Shelf Size Here's how to choose the right size shower niche for your bathroom to suit your personal needs. in this post i’ll show you how to find the best shower niche size for your shower remodel project. a shower niche is also known as a shower cubby or a shower recess. It allows the niche to fit between studs. Shower Recess Shelf Size.
From bestpicturessherpa.blogspot.com
Typical Shower Niche Dimensions It can be easily adjusted if necessary. Shower Recess Shelf Size I’ll go over niche dimensions of all the popular prefab / preformed niche products, and tell you what you need to know to make an informed decision. want a recessed shelf in the shower? a shower niche is fully recessed into the shower wall so it (and all your shower items) stay out of the way. a. Shower Recess Shelf Size.
From exomwxdeu.blob.core.windows.net
Recessed Shower Shelf Dimensions at Della Chambers blog Shower Recess Shelf Size a shower niche is also known as a shower cubby or a shower recess. a shower niche is fully recessed into the shower wall so it (and all your shower items) stay out of the way. It allows the niche to fit between studs which are often 16 inches apart. To get the most out of your new. Shower Recess Shelf Size.
From nextluxury.com
Top 70 Best Shower Niche Ideas Recessed Shelf Designs Shower Recess Shelf Size when putting a shower niche in an existing wall, 12”w x 24”h is a good size. in this post i’ll show you how to find the best shower niche size for your shower remodel project. Learn below the specific sizes of a shower niche. To get the most out of your new shower niche, you should carefully consider. Shower Recess Shelf Size.
From exouirghq.blob.core.windows.net
Standard Height For Shower Fixtures at Ralph Traub blog Shower Recess Shelf Size To get the most out of your new shower niche, you should carefully consider how large it will need to be and what style of niche. a shower niche is also known as a shower cubby or a shower recess. in this post i’ll show you how to find the best shower niche size for your shower remodel. Shower Recess Shelf Size.
From exolumthl.blob.core.windows.net
Build Inset Shower Shelf at Harold Cornell blog Shower Recess Shelf Size To get the most out of your new shower niche, you should carefully consider how large it will need to be and what style of niche. Learn below the specific sizes of a shower niche. a shower niche is also known as a shower cubby or a shower recess. I’ll go over niche dimensions of all the popular prefab. Shower Recess Shelf Size.
From designingidea.com
Shower Niche Sizes (Standard Height & Shelf Dimensions) Designing Idea Shower Recess Shelf Size To get the most out of your new shower niche, you should carefully consider how large it will need to be and what style of niche. when putting a shower niche in an existing wall, 12”w x 24”h is a good size. Learn below the specific sizes of a shower niche. a shower niche is also known as. Shower Recess Shelf Size.
From www.walmart.com
Tile Shower Niche 24X16 Double Shelves Shower Recess And Built In Shower Recess Shelf Size when putting a shower niche in an existing wall, 12”w x 24”h is a good size. To get the most out of your new shower niche, you should carefully consider how large it will need to be and what style of niche. a shower niche is also known as a shower cubby or a shower recess. shower. Shower Recess Shelf Size.
From www.pinterest.com
Recessed Shower Shelf Insert Shower Shelf Ideas Tile Shower Shelf Ideas Shower Recess Shelf Size I’ll go over niche dimensions of all the popular prefab / preformed niche products, and tell you what you need to know to make an informed decision. when putting a shower niche in an existing wall, 12”w x 24”h is a good size. a shower niche is also known as a shower cubby or a shower recess. . Shower Recess Shelf Size.
From roomfortuesday.com
How to Plan and Design a Shower Niche Room for Tuesday Shower Recess Shelf Size shower niche size & style is key. in this post i’ll show you how to find the best shower niche size for your shower remodel project. want a recessed shelf in the shower? a shower niche is fully recessed into the shower wall so it (and all your shower items) stay out of the way. Here's. Shower Recess Shelf Size.
From www.theplumbette.com.au
How to Choose the Right Size Shower Niche for Your Bathroom The Plumbette Shower Recess Shelf Size Here's how to choose the right size shower niche for your bathroom to suit your personal needs. a shower niche is also known as a shower cubby or a shower recess. Learn below the specific sizes of a shower niche. a shower niche is fully recessed into the shower wall so it (and all your shower items) stay. Shower Recess Shelf Size.
From lentinemarine.com
Ceramic Recessed Shower Shelf Decofurnish Lentine Marine Shower Recess Shelf Size a shower niche is fully recessed into the shower wall so it (and all your shower items) stay out of the way. in this post i’ll show you how to find the best shower niche size for your shower remodel project. Learn below the specific sizes of a shower niche. Here's how to choose the right size shower. Shower Recess Shelf Size.
From dxowiywbo.blob.core.windows.net
Recessed Bathroom Shelf In Shower at Lela Blake blog Shower Recess Shelf Size in this post i’ll show you how to find the best shower niche size for your shower remodel project. I’ll go over niche dimensions of all the popular prefab / preformed niche products, and tell you what you need to know to make an informed decision. Learn below the specific sizes of a shower niche. It allows the niche. Shower Recess Shelf Size.
From floorelf.com
How to Build a Niche for your Shower Part 1 Shower Recess Shelf Size a shower niche is fully recessed into the shower wall so it (and all your shower items) stay out of the way. It allows the niche to fit between studs which are often 16 inches apart. To get the most out of your new shower niche, you should carefully consider how large it will need to be and what. Shower Recess Shelf Size.