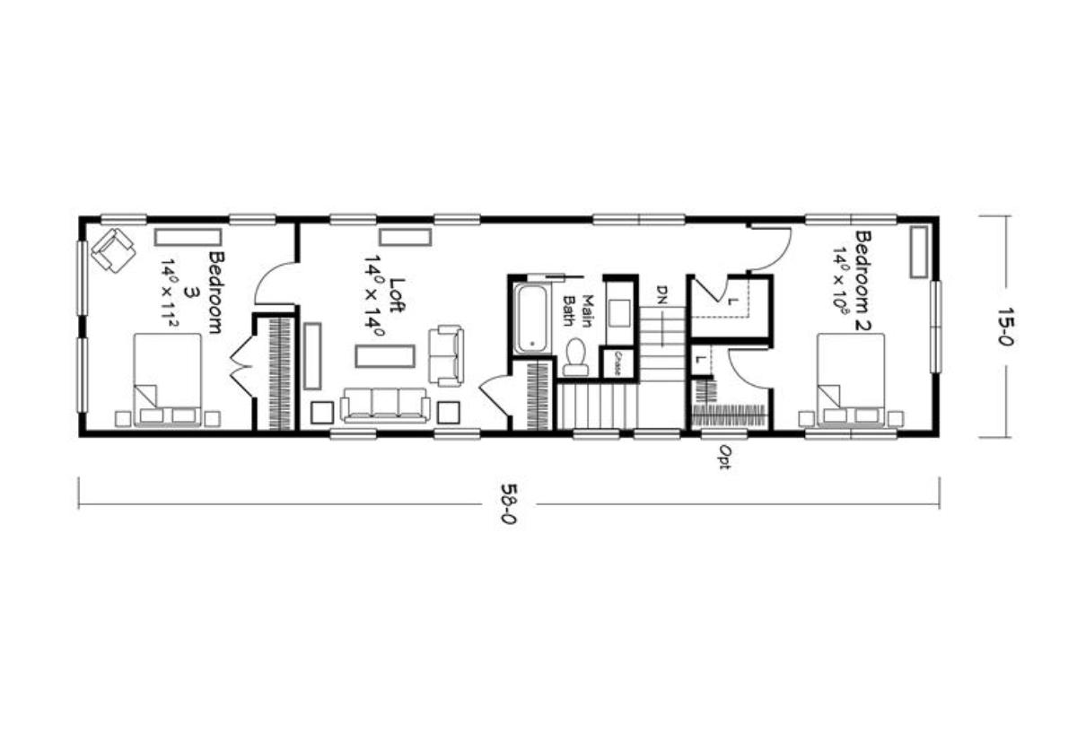
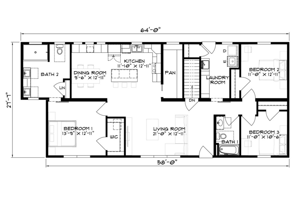
Showcase Homes Shippenville Pa . Home built by structural modular innovations. This 2 section ranch style home is part of the innovation series series. Showcase homes offers a variety of modular and manufactured homes on display in shippenville, pennsylvania. Browse floor plans, request a price quote, or visit their retail sales center to find. Showcase homes offers quality homes from top builders in northwestern pennsylvania, including shippenville. Take a 3d home tour, check out photos, and get a price quote on this floor plan today! Showcase homes is a new home builder in western pennsylvania with over 60 years of experience. Browse 244 floor plans, view photos, take 3d home tours, and request pricing for. 1,248 likes · 38 talking about this · 19 were here. This 2 section ranch style home is part of the innovation series series. Find your new home, view floor. The the centerville ranch is a 3 bed, 2 bath, 1800 sq. They offer 244 floor plans for order. The the rockville ranch is a 3 bed, 2 bath, 1140 sq. Home built by structural modular innovations.
from www.visitshowcasehomes.com
Showcase homes offers quality homes from top builders in northwestern pennsylvania, including shippenville. Browse floor plans, request a price quote, or visit their retail sales center to find. 1,248 likes · 38 talking about this · 19 were here. Home built by structural modular innovations. Showcase homes is a new home builder in western pennsylvania with over 60 years of experience. Home built by structural modular innovations. The the rockville ranch is a 3 bed, 2 bath, 1140 sq. Browse 244 floor plans, view photos, take 3d home tours, and request pricing for. The the centerville ranch is a 3 bed, 2 bath, 1800 sq. Showcase homes offers a variety of modular and manufactured homes on display in shippenville, pennsylvania.
Ultra Ultra 5 6P2402X by Pennwest Homes Showcase Homes
Showcase Homes Shippenville Pa This 2 section ranch style home is part of the innovation series series. Showcase homes is a new home builder in western pennsylvania with over 60 years of experience. They offer 244 floor plans for order. This 2 section ranch style home is part of the innovation series series. 1,248 likes · 38 talking about this · 19 were here. Browse floor plans, request a price quote, or visit their retail sales center to find. This 2 section ranch style home is part of the innovation series series. Home built by structural modular innovations. The the rockville ranch is a 3 bed, 2 bath, 1140 sq. Showcase homes offers a variety of modular and manufactured homes on display in shippenville, pennsylvania. Home built by structural modular innovations. Take a 3d home tour, check out photos, and get a price quote on this floor plan today! Find your new home, view floor. The the centerville ranch is a 3 bed, 2 bath, 1800 sq. Showcase homes offers quality homes from top builders in northwestern pennsylvania, including shippenville. Browse 244 floor plans, view photos, take 3d home tours, and request pricing for.
From www.visitshowcasehomes.com
Showcase Homes Real Estate Broker Shippenville, PA Showcase Homes Shippenville Pa Find your new home, view floor. Home built by structural modular innovations. The the rockville ranch is a 3 bed, 2 bath, 1140 sq. Browse 244 floor plans, view photos, take 3d home tours, and request pricing for. This 2 section ranch style home is part of the innovation series series. Take a 3d home tour, check out photos, and. Showcase Homes Shippenville Pa.
From www.visitshowcasehomes.com
Pennwest Reserve 2Story Crisfield 6P2001R by Pennwest Homes Showcase Homes Shippenville Pa The the rockville ranch is a 3 bed, 2 bath, 1140 sq. This 2 section ranch style home is part of the innovation series series. Showcase homes offers a variety of modular and manufactured homes on display in shippenville, pennsylvania. Take a 3d home tour, check out photos, and get a price quote on this floor plan today! The the. Showcase Homes Shippenville Pa.
From www.visitshowcasehomes.com
Showcase Homes Real Estate Broker Shippenville, PA Showcase Homes Shippenville Pa Find your new home, view floor. This 2 section ranch style home is part of the innovation series series. Browse 244 floor plans, view photos, take 3d home tours, and request pricing for. They offer 244 floor plans for order. The the centerville ranch is a 3 bed, 2 bath, 1800 sq. Browse floor plans, request a price quote, or. Showcase Homes Shippenville Pa.
From www.visitshowcasehomes.com
Ultra Ultra 5 6P2402X by Pennwest Homes Showcase Homes Showcase Homes Shippenville Pa The the centerville ranch is a 3 bed, 2 bath, 1800 sq. They offer 244 floor plans for order. Home built by structural modular innovations. Showcase homes is a new home builder in western pennsylvania with over 60 years of experience. Showcase homes offers a variety of modular and manufactured homes on display in shippenville, pennsylvania. Browse 244 floor plans,. Showcase Homes Shippenville Pa.
From www.visitshowcasehomes.com
Modern Living Series Axios Two Story by RitzCraft Custom Homes Showcase Homes Shippenville Pa They offer 244 floor plans for order. The the centerville ranch is a 3 bed, 2 bath, 1800 sq. Showcase homes offers quality homes from top builders in northwestern pennsylvania, including shippenville. Browse 244 floor plans, view photos, take 3d home tours, and request pricing for. Find your new home, view floor. Home built by structural modular innovations. Showcase homes. Showcase Homes Shippenville Pa.
From www.visitshowcasehomes.com
Showcase Homes Real Estate Broker Shippenville, PA Showcase Homes Shippenville Pa Browse floor plans, request a price quote, or visit their retail sales center to find. This 2 section ranch style home is part of the innovation series series. Showcase homes is a new home builder in western pennsylvania with over 60 years of experience. Home built by structural modular innovations. This 2 section ranch style home is part of the. Showcase Homes Shippenville Pa.
From www.modularhomes.com
Showcase Homes in Shippenville, Pennsylvania Showcase Homes Shippenville Pa Browse 244 floor plans, view photos, take 3d home tours, and request pricing for. Home built by structural modular innovations. Showcase homes is a new home builder in western pennsylvania with over 60 years of experience. Home built by structural modular innovations. Find your new home, view floor. They offer 244 floor plans for order. Take a 3d home tour,. Showcase Homes Shippenville Pa.
From www.visitshowcasehomes.com
Homes Built By Structural Modular Innovations Showcase Homes Showcase Homes Shippenville Pa Take a 3d home tour, check out photos, and get a price quote on this floor plan today! Showcase homes is a new home builder in western pennsylvania with over 60 years of experience. Find your new home, view floor. This 2 section ranch style home is part of the innovation series series. Showcase homes offers quality homes from top. Showcase Homes Shippenville Pa.
From www.manufacturedhomes.com
Innovation Series / The Knoxville Ranch by Showcase Homes Showcase Homes Shippenville Pa Showcase homes offers a variety of modular and manufactured homes on display in shippenville, pennsylvania. The the rockville ranch is a 3 bed, 2 bath, 1140 sq. Browse floor plans, request a price quote, or visit their retail sales center to find. They offer 244 floor plans for order. The the centerville ranch is a 3 bed, 2 bath, 1800. Showcase Homes Shippenville Pa.
From www.visitshowcasehomes.com
Tempo Series Stand by Me 51TIP24523AH from Showcase Homes Showcase Homes Showcase Homes Shippenville Pa Showcase homes offers a variety of modular and manufactured homes on display in shippenville, pennsylvania. Take a 3d home tour, check out photos, and get a price quote on this floor plan today! Browse 244 floor plans, view photos, take 3d home tours, and request pricing for. Showcase homes offers quality homes from top builders in northwestern pennsylvania, including shippenville.. Showcase Homes Shippenville Pa.
From www.visitshowcasehomes.com
Showcase Homes Manufactured Homes Shippenville, PA Showcase Homes Shippenville Pa Find your new home, view floor. Take a 3d home tour, check out photos, and get a price quote on this floor plan today! 1,248 likes · 38 talking about this · 19 were here. The the rockville ranch is a 3 bed, 2 bath, 1140 sq. Showcase homes offers a variety of modular and manufactured homes on display in. Showcase Homes Shippenville Pa.
From www.visitshowcasehomes.com
Manufactured And Modular Homes Available For Sale Showcase Homes Showcase Homes Shippenville Pa The the centerville ranch is a 3 bed, 2 bath, 1800 sq. The the rockville ranch is a 3 bed, 2 bath, 1140 sq. Find your new home, view floor. Take a 3d home tour, check out photos, and get a price quote on this floor plan today! Home built by structural modular innovations. They offer 244 floor plans for. Showcase Homes Shippenville Pa.
From www.visitshowcasehomes.com
Showcase Homes Manufactured Homes Shippenville, PA Showcase Homes Shippenville Pa Browse 244 floor plans, view photos, take 3d home tours, and request pricing for. They offer 244 floor plans for order. Take a 3d home tour, check out photos, and get a price quote on this floor plan today! Home built by structural modular innovations. Showcase homes offers a variety of modular and manufactured homes on display in shippenville, pennsylvania.. Showcase Homes Shippenville Pa.
From www.modularhomes.com
Showcase Homes in Shippenville, Pennsylvania Showcase Homes Shippenville Pa The the centerville ranch is a 3 bed, 2 bath, 1800 sq. Showcase homes is a new home builder in western pennsylvania with over 60 years of experience. Browse floor plans, request a price quote, or visit their retail sales center to find. They offer 244 floor plans for order. Showcase homes offers a variety of modular and manufactured homes. Showcase Homes Shippenville Pa.
From www.visitshowcasehomes.com
Showcase Homes Real Estate Broker Shippenville, PA Showcase Homes Shippenville Pa Showcase homes offers a variety of modular and manufactured homes on display in shippenville, pennsylvania. Home built by structural modular innovations. 1,248 likes · 38 talking about this · 19 were here. Take a 3d home tour, check out photos, and get a price quote on this floor plan today! Find your new home, view floor. They offer 244 floor. Showcase Homes Shippenville Pa.
From www.visitshowcasehomes.com
About Showcase Homes Shippenville, PA Modular Homes Showcase Homes Shippenville Pa Browse 244 floor plans, view photos, take 3d home tours, and request pricing for. Showcase homes offers a variety of modular and manufactured homes on display in shippenville, pennsylvania. Home built by structural modular innovations. 1,248 likes · 38 talking about this · 19 were here. This 2 section ranch style home is part of the innovation series series. Home. Showcase Homes Shippenville Pa.
From www.visitshowcasehomes.com
Epic Journey The Polo 76CEJ14562AH by Clayton Built Lewiston Showcase Showcase Homes Shippenville Pa Home built by structural modular innovations. Showcase homes offers quality homes from top builders in northwestern pennsylvania, including shippenville. They offer 244 floor plans for order. This 2 section ranch style home is part of the innovation series series. Showcase homes is a new home builder in western pennsylvania with over 60 years of experience. The the centerville ranch is. Showcase Homes Shippenville Pa.
From www.modularhomes.com
Showcase Homes in Shippenville, Pennsylvania Showcase Homes Shippenville Pa Showcase homes offers quality homes from top builders in northwestern pennsylvania, including shippenville. Showcase homes is a new home builder in western pennsylvania with over 60 years of experience. The the centerville ranch is a 3 bed, 2 bath, 1800 sq. This 2 section ranch style home is part of the innovation series series. 1,248 likes · 38 talking about. Showcase Homes Shippenville Pa.
From www.visitshowcasehomes.com
Homestead Series Anson by RitzCraft Custom Homes Showcase Homes Showcase Homes Shippenville Pa The the centerville ranch is a 3 bed, 2 bath, 1800 sq. This 2 section ranch style home is part of the innovation series series. Showcase homes is a new home builder in western pennsylvania with over 60 years of experience. 1,248 likes · 38 talking about this · 19 were here. Showcase homes offers a variety of modular and. Showcase Homes Shippenville Pa.
From www.facebook.com
The Explorer is proudly built by... Showcase Homes Direct Showcase Homes Shippenville Pa Showcase homes offers a variety of modular and manufactured homes on display in shippenville, pennsylvania. Home built by structural modular innovations. Browse floor plans, request a price quote, or visit their retail sales center to find. Home built by structural modular innovations. This 2 section ranch style home is part of the innovation series series. The the rockville ranch is. Showcase Homes Shippenville Pa.
From www.visitshowcasehomes.com
Showcase Homes Real Estate Broker Shippenville, PA Showcase Homes Shippenville Pa Find your new home, view floor. Take a 3d home tour, check out photos, and get a price quote on this floor plan today! Showcase homes is a new home builder in western pennsylvania with over 60 years of experience. The the centerville ranch is a 3 bed, 2 bath, 1800 sq. Browse 244 floor plans, view photos, take 3d. Showcase Homes Shippenville Pa.
From www.visitshowcasehomes.com
About Showcase Homes Shippenville, PA Modular Homes Showcase Homes Shippenville Pa 1,248 likes · 38 talking about this · 19 were here. Browse 244 floor plans, view photos, take 3d home tours, and request pricing for. Home built by structural modular innovations. This 2 section ranch style home is part of the innovation series series. Take a 3d home tour, check out photos, and get a price quote on this floor. Showcase Homes Shippenville Pa.
From www.manufacturedhomes.com
La Bella Casa / La Bella Casa 6 3P2801R by Showcase Homes Showcase Homes Shippenville Pa Browse floor plans, request a price quote, or visit their retail sales center to find. Showcase homes offers a variety of modular and manufactured homes on display in shippenville, pennsylvania. This 2 section ranch style home is part of the innovation series series. The the rockville ranch is a 3 bed, 2 bath, 1140 sq. They offer 244 floor plans. Showcase Homes Shippenville Pa.
From www.visitshowcasehomes.com
Ultra Ultra 8 6P2403X by Pennwest Homes Showcase Homes Showcase Homes Shippenville Pa Home built by structural modular innovations. Browse 244 floor plans, view photos, take 3d home tours, and request pricing for. The the centerville ranch is a 3 bed, 2 bath, 1800 sq. 1,248 likes · 38 talking about this · 19 were here. Browse floor plans, request a price quote, or visit their retail sales center to find. They offer. Showcase Homes Shippenville Pa.
From www.visitshowcasehomes.com
Ultra Ultra 4 6P2401X by Pennwest Homes Showcase Homes Showcase Homes Shippenville Pa Showcase homes offers quality homes from top builders in northwestern pennsylvania, including shippenville. Home built by structural modular innovations. Take a 3d home tour, check out photos, and get a price quote on this floor plan today! Home built by structural modular innovations. This 2 section ranch style home is part of the innovation series series. This 2 section ranch. Showcase Homes Shippenville Pa.
From www.visitshowcasehomes.com
Belle Ame Belle Ame 8 2PC2702R by Pennwest Homes Showcase Homes Showcase Homes Shippenville Pa The the rockville ranch is a 3 bed, 2 bath, 1140 sq. Browse floor plans, request a price quote, or visit their retail sales center to find. Showcase homes offers a variety of modular and manufactured homes on display in shippenville, pennsylvania. Showcase homes offers quality homes from top builders in northwestern pennsylvania, including shippenville. This 2 section ranch style. Showcase Homes Shippenville Pa.
From www.visitshowcasehomes.com
Showcase Homes Real Estate Broker Shippenville, PA Showcase Homes Shippenville Pa Home built by structural modular innovations. The the centerville ranch is a 3 bed, 2 bath, 1800 sq. Browse floor plans, request a price quote, or visit their retail sales center to find. The the rockville ranch is a 3 bed, 2 bath, 1140 sq. This 2 section ranch style home is part of the innovation series series. 1,248 likes. Showcase Homes Shippenville Pa.
From www.visitshowcasehomes.com
Ultra Ultra 5 6P2402X by Pennwest Homes Showcase Homes Showcase Homes Shippenville Pa This 2 section ranch style home is part of the innovation series series. Showcase homes offers quality homes from top builders in northwestern pennsylvania, including shippenville. Browse floor plans, request a price quote, or visit their retail sales center to find. Take a 3d home tour, check out photos, and get a price quote on this floor plan today! The. Showcase Homes Shippenville Pa.
From www.visitshowcasehomes.com
Manufactured And Modular Homes Available For Sale Showcase Homes Showcase Homes Shippenville Pa Home built by structural modular innovations. Showcase homes is a new home builder in western pennsylvania with over 60 years of experience. Take a 3d home tour, check out photos, and get a price quote on this floor plan today! Home built by structural modular innovations. Showcase homes offers quality homes from top builders in northwestern pennsylvania, including shippenville. Browse. Showcase Homes Shippenville Pa.
From www.visitshowcasehomes.com
Ultra Ultra 8 6P2403X by Pennwest Homes Showcase Homes Showcase Homes Shippenville Pa The the centerville ranch is a 3 bed, 2 bath, 1800 sq. Showcase homes offers a variety of modular and manufactured homes on display in shippenville, pennsylvania. They offer 244 floor plans for order. Browse floor plans, request a price quote, or visit their retail sales center to find. Showcase homes offers quality homes from top builders in northwestern pennsylvania,. Showcase Homes Shippenville Pa.
From northhomes.co.nz
Showcase Homes North Homes Showcase Homes Shippenville Pa They offer 244 floor plans for order. Home built by structural modular innovations. 1,248 likes · 38 talking about this · 19 were here. The the centerville ranch is a 3 bed, 2 bath, 1800 sq. Browse floor plans, request a price quote, or visit their retail sales center to find. Showcase homes offers a variety of modular and manufactured. Showcase Homes Shippenville Pa.
From www.modularhomes.com
Showcase Homes in Shippenville, Pennsylvania Showcase Homes Shippenville Pa They offer 244 floor plans for order. Browse floor plans, request a price quote, or visit their retail sales center to find. Find your new home, view floor. Browse 244 floor plans, view photos, take 3d home tours, and request pricing for. Showcase homes offers quality homes from top builders in northwestern pennsylvania, including shippenville. This 2 section ranch style. Showcase Homes Shippenville Pa.
From www.visitshowcasehomes.com
Magnifique Duex Maqnifique 2PC2601R by Pennwest Homes Showcase Homes Showcase Homes Shippenville Pa This 2 section ranch style home is part of the innovation series series. Find your new home, view floor. 1,248 likes · 38 talking about this · 19 were here. Showcase homes is a new home builder in western pennsylvania with over 60 years of experience. The the rockville ranch is a 3 bed, 2 bath, 1140 sq. Showcase homes. Showcase Homes Shippenville Pa.
From www.visitshowcasehomes.com
Pennwest Reserve 2Story Bethel 6P2003R by Pennwest Homes Showcase Homes Showcase Homes Shippenville Pa The the rockville ranch is a 3 bed, 2 bath, 1140 sq. Showcase homes offers a variety of modular and manufactured homes on display in shippenville, pennsylvania. Showcase homes offers quality homes from top builders in northwestern pennsylvania, including shippenville. Browse 244 floor plans, view photos, take 3d home tours, and request pricing for. Home built by structural modular innovations.. Showcase Homes Shippenville Pa.
From www.visitshowcasehomes.com
Manufactured And Modular Homes Available For Sale Showcase Homes Showcase Homes Shippenville Pa This 2 section ranch style home is part of the innovation series series. The the rockville ranch is a 3 bed, 2 bath, 1140 sq. They offer 244 floor plans for order. Take a 3d home tour, check out photos, and get a price quote on this floor plan today! Browse floor plans, request a price quote, or visit their. Showcase Homes Shippenville Pa.