Hydrostatic Pressure Testing Form . A hydrostatic test is performed by using water as the test medium,. All new or modified sprinkler installations, where the system working pressure* allows, should undergo a hydrostatic pressure test of no less than 200 psi [14 bar] for 2 hours with. Hydrostatic testing of piping designed for internal pressure the minimum hydrostatic test pressure at any point in the. Tpi inspectionquality control client name: There are two methods for pressure testing:
from constructandcommission.com
A hydrostatic test is performed by using water as the test medium,. Hydrostatic testing of piping designed for internal pressure the minimum hydrostatic test pressure at any point in the. There are two methods for pressure testing: All new or modified sprinkler installations, where the system working pressure* allows, should undergo a hydrostatic pressure test of no less than 200 psi [14 bar] for 2 hours with. Tpi inspectionquality control client name:
HYDRAULIC PRESSURE TESTING Explained With Templates
Hydrostatic Pressure Testing Form Hydrostatic testing of piping designed for internal pressure the minimum hydrostatic test pressure at any point in the. Tpi inspectionquality control client name: All new or modified sprinkler installations, where the system working pressure* allows, should undergo a hydrostatic pressure test of no less than 200 psi [14 bar] for 2 hours with. There are two methods for pressure testing: Hydrostatic testing of piping designed for internal pressure the minimum hydrostatic test pressure at any point in the. A hydrostatic test is performed by using water as the test medium,.
From hsseworld.com
Pressure Testing Checklist HSSE WORLD Hydrostatic Pressure Testing Form Tpi inspectionquality control client name: There are two methods for pressure testing: A hydrostatic test is performed by using water as the test medium,. Hydrostatic testing of piping designed for internal pressure the minimum hydrostatic test pressure at any point in the. All new or modified sprinkler installations, where the system working pressure* allows, should undergo a hydrostatic pressure test. Hydrostatic Pressure Testing Form.
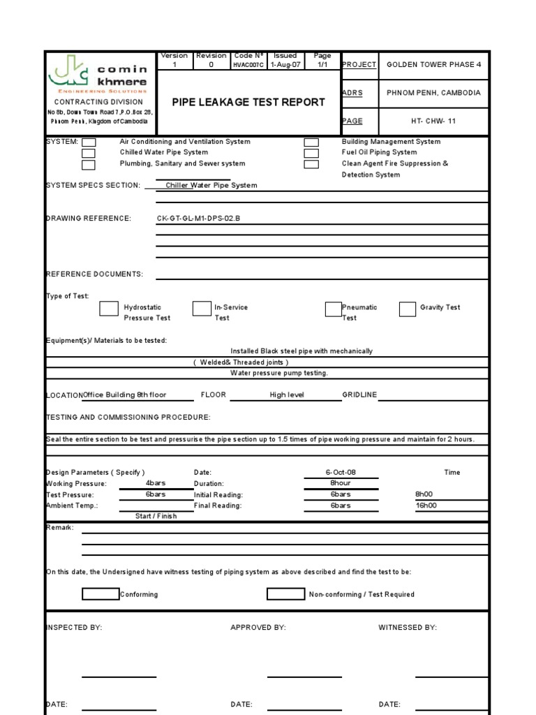
From www.scribd.com
Pressure Test Certificate Pressure Measurement Leak Hydrostatic Pressure Testing Form Hydrostatic testing of piping designed for internal pressure the minimum hydrostatic test pressure at any point in the. A hydrostatic test is performed by using water as the test medium,. All new or modified sprinkler installations, where the system working pressure* allows, should undergo a hydrostatic pressure test of no less than 200 psi [14 bar] for 2 hours with.. Hydrostatic Pressure Testing Form.
From constructandcommission.com
HYDRAULIC PRESSURE TESTING Explained With Templates Hydrostatic Pressure Testing Form There are two methods for pressure testing: Hydrostatic testing of piping designed for internal pressure the minimum hydrostatic test pressure at any point in the. A hydrostatic test is performed by using water as the test medium,. All new or modified sprinkler installations, where the system working pressure* allows, should undergo a hydrostatic pressure test of no less than 200. Hydrostatic Pressure Testing Form.
From www.thegreenerleithsocial.org
Secondary Containment Testing Report Form Pdf pertaining to Hydrostatic Pressure Testing Form A hydrostatic test is performed by using water as the test medium,. There are two methods for pressure testing: Tpi inspectionquality control client name: All new or modified sprinkler installations, where the system working pressure* allows, should undergo a hydrostatic pressure test of no less than 200 psi [14 bar] for 2 hours with. Hydrostatic testing of piping designed for. Hydrostatic Pressure Testing Form.
From www.animalia-life.club
Pressure Test Certificate Template Hydrostatic Pressure Testing Form Hydrostatic testing of piping designed for internal pressure the minimum hydrostatic test pressure at any point in the. A hydrostatic test is performed by using water as the test medium,. There are two methods for pressure testing: Tpi inspectionquality control client name: All new or modified sprinkler installations, where the system working pressure* allows, should undergo a hydrostatic pressure test. Hydrostatic Pressure Testing Form.
From www.scribd.com
Pipe Leakage Test Report Version Revision Issued Project Code Nº Hydrostatic Pressure Testing Form There are two methods for pressure testing: Hydrostatic testing of piping designed for internal pressure the minimum hydrostatic test pressure at any point in the. Tpi inspectionquality control client name: A hydrostatic test is performed by using water as the test medium,. All new or modified sprinkler installations, where the system working pressure* allows, should undergo a hydrostatic pressure test. Hydrostatic Pressure Testing Form.
From zestinthewest.com
Hydrostatic Pressure Test Report Template zestinthewest Hydrostatic Pressure Testing Form All new or modified sprinkler installations, where the system working pressure* allows, should undergo a hydrostatic pressure test of no less than 200 psi [14 bar] for 2 hours with. Hydrostatic testing of piping designed for internal pressure the minimum hydrostatic test pressure at any point in the. Tpi inspectionquality control client name: A hydrostatic test is performed by using. Hydrostatic Pressure Testing Form.
From vancecountyfair.com
Hydrostatic Pressure Test Report Template 10+ Professional Templates Hydrostatic Pressure Testing Form Hydrostatic testing of piping designed for internal pressure the minimum hydrostatic test pressure at any point in the. A hydrostatic test is performed by using water as the test medium,. All new or modified sprinkler installations, where the system working pressure* allows, should undergo a hydrostatic pressure test of no less than 200 psi [14 bar] for 2 hours with.. Hydrostatic Pressure Testing Form.
From vancecountyfair.com
Hydrostatic Pressure Test Report Template 10+ Professional Templates Hydrostatic Pressure Testing Form All new or modified sprinkler installations, where the system working pressure* allows, should undergo a hydrostatic pressure test of no less than 200 psi [14 bar] for 2 hours with. A hydrostatic test is performed by using water as the test medium,. Tpi inspectionquality control client name: Hydrostatic testing of piping designed for internal pressure the minimum hydrostatic test pressure. Hydrostatic Pressure Testing Form.
From mavink.com
Hydrostatic Pressure Test Report Form Hydrostatic Pressure Testing Form All new or modified sprinkler installations, where the system working pressure* allows, should undergo a hydrostatic pressure test of no less than 200 psi [14 bar] for 2 hours with. There are two methods for pressure testing: A hydrostatic test is performed by using water as the test medium,. Tpi inspectionquality control client name: Hydrostatic testing of piping designed for. Hydrostatic Pressure Testing Form.
From www.dochub.com
What is a cp15 gas certificate Fill out & sign online DocHub Hydrostatic Pressure Testing Form All new or modified sprinkler installations, where the system working pressure* allows, should undergo a hydrostatic pressure test of no less than 200 psi [14 bar] for 2 hours with. A hydrostatic test is performed by using water as the test medium,. Tpi inspectionquality control client name: Hydrostatic testing of piping designed for internal pressure the minimum hydrostatic test pressure. Hydrostatic Pressure Testing Form.
From www.pipingengineer.org
Pressure Test Data Sheet The Piping Engineering World Hydrostatic Pressure Testing Form There are two methods for pressure testing: All new or modified sprinkler installations, where the system working pressure* allows, should undergo a hydrostatic pressure test of no less than 200 psi [14 bar] for 2 hours with. Tpi inspectionquality control client name: A hydrostatic test is performed by using water as the test medium,. Hydrostatic testing of piping designed for. Hydrostatic Pressure Testing Form.
From www.scribd.com
Hydrostatic Pressure Test Report PDF Hydrostatic Pressure Testing Form Hydrostatic testing of piping designed for internal pressure the minimum hydrostatic test pressure at any point in the. There are two methods for pressure testing: Tpi inspectionquality control client name: A hydrostatic test is performed by using water as the test medium,. All new or modified sprinkler installations, where the system working pressure* allows, should undergo a hydrostatic pressure test. Hydrostatic Pressure Testing Form.
From www.animalia-life.club
Pressure Test Certificate Template Hydrostatic Pressure Testing Form Tpi inspectionquality control client name: A hydrostatic test is performed by using water as the test medium,. There are two methods for pressure testing: All new or modified sprinkler installations, where the system working pressure* allows, should undergo a hydrostatic pressure test of no less than 200 psi [14 bar] for 2 hours with. Hydrostatic testing of piping designed for. Hydrostatic Pressure Testing Form.
From www.uslegalforms.com
PIPELINE PRESSURE TEST RECORD TEST INFORMATION Azcc 20202022 Fill Hydrostatic Pressure Testing Form There are two methods for pressure testing: All new or modified sprinkler installations, where the system working pressure* allows, should undergo a hydrostatic pressure test of no less than 200 psi [14 bar] for 2 hours with. Tpi inspectionquality control client name: A hydrostatic test is performed by using water as the test medium,. Hydrostatic testing of piping designed for. Hydrostatic Pressure Testing Form.
From www.thegreenerleithsocial.org
Can/ulcS53604 Fire Alarm Annual Inspection Test Form with regard to Hydrostatic Pressure Testing Form All new or modified sprinkler installations, where the system working pressure* allows, should undergo a hydrostatic pressure test of no less than 200 psi [14 bar] for 2 hours with. A hydrostatic test is performed by using water as the test medium,. There are two methods for pressure testing: Hydrostatic testing of piping designed for internal pressure the minimum hydrostatic. Hydrostatic Pressure Testing Form.
From template.fromgrandma.best
Hydrostatic Pressure Test Report Template Hydrostatic Pressure Testing Form There are two methods for pressure testing: Hydrostatic testing of piping designed for internal pressure the minimum hydrostatic test pressure at any point in the. A hydrostatic test is performed by using water as the test medium,. All new or modified sprinkler installations, where the system working pressure* allows, should undergo a hydrostatic pressure test of no less than 200. Hydrostatic Pressure Testing Form.
From pray.gelorailmu.com
Hydrostatic Pressure Test Report Template Hydrostatic Pressure Testing Form All new or modified sprinkler installations, where the system working pressure* allows, should undergo a hydrostatic pressure test of no less than 200 psi [14 bar] for 2 hours with. A hydrostatic test is performed by using water as the test medium,. Tpi inspectionquality control client name: There are two methods for pressure testing: Hydrostatic testing of piping designed for. Hydrostatic Pressure Testing Form.
From www.pinterest.com
Hydrostatic Pressure Test Report Template (2) PROFESSIONAL TEMPLATES Hydrostatic Pressure Testing Form Hydrostatic testing of piping designed for internal pressure the minimum hydrostatic test pressure at any point in the. There are two methods for pressure testing: A hydrostatic test is performed by using water as the test medium,. All new or modified sprinkler installations, where the system working pressure* allows, should undergo a hydrostatic pressure test of no less than 200. Hydrostatic Pressure Testing Form.
From www.inpaspages.com
Hydrostatic test on components Engineering standards Hydrostatic Pressure Testing Form Hydrostatic testing of piping designed for internal pressure the minimum hydrostatic test pressure at any point in the. Tpi inspectionquality control client name: There are two methods for pressure testing: All new or modified sprinkler installations, where the system working pressure* allows, should undergo a hydrostatic pressure test of no less than 200 psi [14 bar] for 2 hours with.. Hydrostatic Pressure Testing Form.
From save.pejuang.net
Hydrostatic Pressure Test Report Template Best Creative Templates Hydrostatic Pressure Testing Form All new or modified sprinkler installations, where the system working pressure* allows, should undergo a hydrostatic pressure test of no less than 200 psi [14 bar] for 2 hours with. Tpi inspectionquality control client name: Hydrostatic testing of piping designed for internal pressure the minimum hydrostatic test pressure at any point in the. A hydrostatic test is performed by using. Hydrostatic Pressure Testing Form.
From template.pejuang.net
Ppt Hydrostatic Testing Practices Establishing Verifiable Inside Hydrostatic Pressure Testing Form Hydrostatic testing of piping designed for internal pressure the minimum hydrostatic test pressure at any point in the. Tpi inspectionquality control client name: All new or modified sprinkler installations, where the system working pressure* allows, should undergo a hydrostatic pressure test of no less than 200 psi [14 bar] for 2 hours with. There are two methods for pressure testing:. Hydrostatic Pressure Testing Form.
From www.scribd.com
Hydrostatic Test Form PDF Metrology Gases Hydrostatic Pressure Testing Form There are two methods for pressure testing: A hydrostatic test is performed by using water as the test medium,. Tpi inspectionquality control client name: All new or modified sprinkler installations, where the system working pressure* allows, should undergo a hydrostatic pressure test of no less than 200 psi [14 bar] for 2 hours with. Hydrostatic testing of piping designed for. Hydrostatic Pressure Testing Form.
From constructandcommission.com
NFPA 13 SPRINKLER Hydrostatic Testing Method With Template Hydrostatic Pressure Testing Form Hydrostatic testing of piping designed for internal pressure the minimum hydrostatic test pressure at any point in the. There are two methods for pressure testing: All new or modified sprinkler installations, where the system working pressure* allows, should undergo a hydrostatic pressure test of no less than 200 psi [14 bar] for 2 hours with. A hydrostatic test is performed. Hydrostatic Pressure Testing Form.
From business.fromgrandma.best
Hydrostatic Pressure Test Report Template Business.fromgrandma.best Hydrostatic Pressure Testing Form There are two methods for pressure testing: Tpi inspectionquality control client name: A hydrostatic test is performed by using water as the test medium,. Hydrostatic testing of piping designed for internal pressure the minimum hydrostatic test pressure at any point in the. All new or modified sprinkler installations, where the system working pressure* allows, should undergo a hydrostatic pressure test. Hydrostatic Pressure Testing Form.
From www.pinterest.com.au
Hydrostatic Pressure Test Report Template Hydrostatic Pressure Testing Form A hydrostatic test is performed by using water as the test medium,. Tpi inspectionquality control client name: There are two methods for pressure testing: Hydrostatic testing of piping designed for internal pressure the minimum hydrostatic test pressure at any point in the. All new or modified sprinkler installations, where the system working pressure* allows, should undergo a hydrostatic pressure test. Hydrostatic Pressure Testing Form.
From www.uslegalforms.com
Nfpa Above Ground Test Certificate Fill and Sign Printable Template Hydrostatic Pressure Testing Form Hydrostatic testing of piping designed for internal pressure the minimum hydrostatic test pressure at any point in the. There are two methods for pressure testing: Tpi inspectionquality control client name: A hydrostatic test is performed by using water as the test medium,. All new or modified sprinkler installations, where the system working pressure* allows, should undergo a hydrostatic pressure test. Hydrostatic Pressure Testing Form.
From ovrah.com
Hydrostatic Pressure Test Report Template Hydrostatic Pressure Testing Form There are two methods for pressure testing: Tpi inspectionquality control client name: A hydrostatic test is performed by using water as the test medium,. All new or modified sprinkler installations, where the system working pressure* allows, should undergo a hydrostatic pressure test of no less than 200 psi [14 bar] for 2 hours with. Hydrostatic testing of piping designed for. Hydrostatic Pressure Testing Form.
From www.signnow.com
Pressure Test Template 20152024 Form Fill Out and Sign Printable PDF Hydrostatic Pressure Testing Form Tpi inspectionquality control client name: A hydrostatic test is performed by using water as the test medium,. All new or modified sprinkler installations, where the system working pressure* allows, should undergo a hydrostatic pressure test of no less than 200 psi [14 bar] for 2 hours with. Hydrostatic testing of piping designed for internal pressure the minimum hydrostatic test pressure. Hydrostatic Pressure Testing Form.
From pray.gelorailmu.com
Bop Pressure Testing Procedure Pdf Free Download Within Hydrostatic Hydrostatic Pressure Testing Form Hydrostatic testing of piping designed for internal pressure the minimum hydrostatic test pressure at any point in the. A hydrostatic test is performed by using water as the test medium,. There are two methods for pressure testing: All new or modified sprinkler installations, where the system working pressure* allows, should undergo a hydrostatic pressure test of no less than 200. Hydrostatic Pressure Testing Form.
From www.youtube.com
Hydrostatic Testing How to Pressure Testing Hydro Test YouTube Hydrostatic Pressure Testing Form All new or modified sprinkler installations, where the system working pressure* allows, should undergo a hydrostatic pressure test of no less than 200 psi [14 bar] for 2 hours with. There are two methods for pressure testing: Tpi inspectionquality control client name: A hydrostatic test is performed by using water as the test medium,. Hydrostatic testing of piping designed for. Hydrostatic Pressure Testing Form.
From www.template.net
Pressure Test Report Certificate Template in Word, Publisher, Google Hydrostatic Pressure Testing Form Hydrostatic testing of piping designed for internal pressure the minimum hydrostatic test pressure at any point in the. Tpi inspectionquality control client name: A hydrostatic test is performed by using water as the test medium,. All new or modified sprinkler installations, where the system working pressure* allows, should undergo a hydrostatic pressure test of no less than 200 psi [14. Hydrostatic Pressure Testing Form.
From www.youtube.com
Work method statement for hydrostatic pressure testing in chilled water Hydrostatic Pressure Testing Form All new or modified sprinkler installations, where the system working pressure* allows, should undergo a hydrostatic pressure test of no less than 200 psi [14 bar] for 2 hours with. A hydrostatic test is performed by using water as the test medium,. There are two methods for pressure testing: Tpi inspectionquality control client name: Hydrostatic testing of piping designed for. Hydrostatic Pressure Testing Form.
From www.slideshare.net
Hydrostatic pressure testing of PE pipelines (handbook) as per EN805 PDF Hydrostatic Pressure Testing Form A hydrostatic test is performed by using water as the test medium,. Tpi inspectionquality control client name: All new or modified sprinkler installations, where the system working pressure* allows, should undergo a hydrostatic pressure test of no less than 200 psi [14 bar] for 2 hours with. Hydrostatic testing of piping designed for internal pressure the minimum hydrostatic test pressure. Hydrostatic Pressure Testing Form.
From pdf.fromgrandma.best
Bop Pressure Testing Procedure Pdf Free Download Throughout Hydrostatic Pressure Testing Form All new or modified sprinkler installations, where the system working pressure* allows, should undergo a hydrostatic pressure test of no less than 200 psi [14 bar] for 2 hours with. Tpi inspectionquality control client name: There are two methods for pressure testing: A hydrostatic test is performed by using water as the test medium,. Hydrostatic testing of piping designed for. Hydrostatic Pressure Testing Form.